The Project Gutenberg EBook of Encyclopaedia Britannica, 11th Edition,
Volume 10, Slice 6, by Various

This eBook is for the use of anyone anywhere at no cost and with
almost no restrictions whatsoever.  You may copy it, give it away or
re-use it under the terms of the Project Gutenberg License included
with this eBook or online at www.gutenberg.org


Title: Encyclopaedia Britannica, 11th Edition, Volume 10, Slice 6
       "Foraminifera" to "Fox, Edward"

Author: Various

Release Date: April 20, 2011 [EBook #35925]

Language: English

Character set encoding: ISO-8859-1

*** START OF THIS PROJECT GUTENBERG EBOOK ENCYCLOPAEDIA BRITANNICA ***




Produced by Marius Masi, Don Kretz and the Online
Distributed Proofreading Team at http://www.pgdp.net






Transcriber’s note: A few typographical errors have been corrected. They appear in the text like this, and the explanation will appear when the mouse pointer is moved over the marked passage. Sections in Greek will yield a transliteration when the pointer is moved over them, and words using diacritic characters in the Latin Extended Additional block, which may not display in some fonts or browsers, will display an unaccented version.

Links to other EB articles: Links to articles residing in other EB volumes will be made available when the respective volumes are introduced online.
 

THE ENCYCLOPÆDIA BRITANNICA

A DICTIONARY OF ARTS, SCIENCES, LITERATURE AND GENERAL INFORMATION

ELEVENTH EDITION

 

VOLUME X SLICE VI

Foraminifera to Fox, Edward


 

Articles in This Slice

FORAMINIFERA FORT LEE
FORBACH FORT MADISON
FORBES, ALEXANDER PENROSE FORTROSE
FORBES, ARCHIBALD FORT SCOTT
FORBES, DAVID FORT SMITH
FORBES, DUNCAN FORTUNA
FORBES, EDWARD FORTUNATIANUS, ATILIUS
FORBES, JAMES DAVID FORTUNATUS
FORBES, SIR JOHN FORTUNATUS, VENANTIUS HONORIUS CLEMENTIANUS
FORBES (town) FORTUNE, ROBERT
FORBES-ROBERTSON, JOHNSTON FORTUNY, MARIANO JOSE MARIA BERNARDO
FORBIN, CLAUDE DE FORT WAYNE
FORCELLINI, EGIDIO FORT WILLIAM (Ontario, Canada)
FORCHHAMMER, JOHANN GEORG FORT WILLIAM (Scotland)
FORCHHAMMER, PETER WILHELM FORT WORTH
FORCHHEIM FORTY
FORD, EDWARD ONSLOW FORUM
FORD, JOHN FORUM APPII
FORD, RICHARD FORUM CLODII
FORD, THOMAS FORUM TRAIANI
FORDE, FRANCIS FOSBROKE, THOMAS DUDLEY
FORDHAM FOSCARI, FRANCESCO
FORDUN, JOHN OF FOSCOLO, UGO
FORECLOSURE FOSS, EDWARD
FOREIGN OFFICE FOSSANO
FORELAND, NORTH and SOUTH FOSSANUOVA
FORESHORE FOSSE WAY
FORESTALLING FOSSICK
FOREST LAWS FOSSOMBRONE
FORESTS AND FORESTRY FOSSOMBRONI, VITTORIO
FOREY, ÉLIE FRÉDÉRIC FOSTER, SIR CLEMENT LE NEVE
FORFAR FOSTER, GEORGE EULAS
FORFARSHIRE FOSTER, JOHN
FORFEITURE FOSTER, SIR MICHAEL
FORGERY FOSTER, MYLES BIRKET
FORGET-ME-NOT FOSTER, STEPHEN COLLINS
FORGING FOSTORIA
FORK FOTHERGILL, JOHN
FORKEL, JOHANN NIKOLAUS FOTHERINGHAY
FORLÌ FOUCAULT, JEAN BERNARD LÉON
FORLIMPOPOLI FOUCHÉ, JOSEPH
FORLORN HOPE FOUCHER, SIMON
FORM FOUCQUET, JEAN
FORMALIN FOUGÈRES
FORMAN, ANDREW FOUILLÉE, ALFRED JULES EMILE
FORMAN, SIMON FOULD, ACHILLE
FORMERET FOULIS, ANDREW and ROBERT
FORMEY, JOHANN HEINRICH SAMUEL FOULLON, JOSEPH FRANÇOIS
FORMIA FOUNDATION
FORMIC ACID FOUNDATIONS
FORMOSA (territory of Argentine) FOUNDING
FORMOSA (Taiwan) FOUNDLING HOSPITALS
FORMOSUS FOUNTAIN
FORMULA FOUNTAINS ABBEY
FORNER, JUAN BAUTISTA PABLO FOUQUÉ, FERDINAND ANDRÉ
FORRES FOUQUÉ, FRIEDRICH HEINRICH KARL DE LA MOTTE
FORREST, EDWIN FOUQUET, NICOLAS
FORREST, SIR JOHN FOUQUIER-TINVILLE, ANTOINE QUENTIN
FORREST, NATHAN BEDFORD FOURCHAMBAULT
FORSKÅL, PETER FOURCROY, ANTOINE FRANÇOIS
FORSSELL, HANS LUDVIG FOURIER, FRANÇOIS CHARLES MARIE
FORST FOURIER, JEAN BAPTISTE JOSEPH
FORSTER, FRANÇOIS FOURIER'S SERIES
FÖRSTER, FRIEDRICH CHRISTOPH FOURMIES
FORSTER, JOHANN GEORG ADAM FOURMONT, ÉTIENNE
FORSTER, JOHN FOURNET, JOSEPH JEAN BAPTISTE XAVIER
FORSTER, JOHN COOPER FOURNIER, PIERRE SIMON
FORSTER, WILLIAM EDWARD FOURNIER L’HÉRITIER, CLAUDE
FORSYTH, PETER TAYLOR FOURTOU, MARIE FRANÇOIS OSCAR BARDY DE
FORTALEZA FOUSSA
FORT AUGUSTUS FOWEY
FORT DODGE FOWL
FORT EDWARD FOWLER, CHARLES
FORTESCUE, SIR JOHN (English lawyer) FOWLER, EDWARD
FORTESCUE, SIR JOHN (English statesman) FOWLER, JOHN
FORTEVIOT FOWLER, SIR JOHN
FORT GEORGE FOWLER, WILLIAM
FORTH FOX, CHARLES JAMES
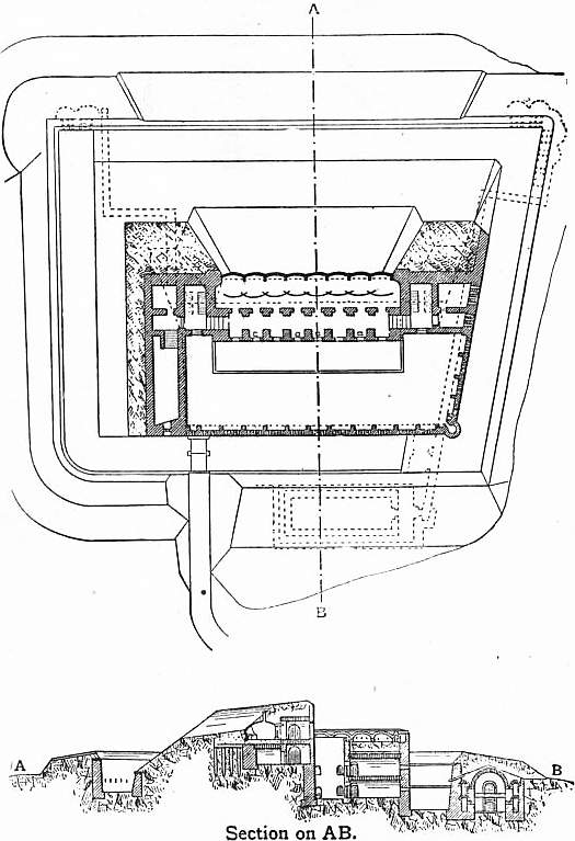
FORTIFICATION AND SIEGECRAFT FOX, EDWARD
FORTLAGE, KARL  

628

FORAMINIFERA, in zoology, a subdivision of Protozoa, the name selected for this enormous class being that given by A. D’Orbigny in 1826 to the shells characteristic of the majority of the species. He regarded them as minute Cephalopods, whose chambers communicated by pores (foramina). Later on their true nature was discovered by F. Dujardin, working on living forms, and he referred them to his Rhizopoda, characterized by pseudopodia given off from the sarcode (protoplasm) as organs of prehension and locomotion. W.B. Carpenter in 1862 differentiated the group nearly in its present limits as “Reticularia”; and since then it has been rendered more natural by the removal of a number of simple forms (mostly freshwater) with branching but not reticulate pseudopods, to Filosa, a distinct subclass, now united with Lobosa into the restricted class of Rhizopoda.

Fig. 1A.Lieberkühnia, with reticulate pseudopodia.

Anatomy.—Protista Sarcodina, with simple protoplasmic bodies of granular surface, emitting processes which branch and anastomose freely, either from the whole surface or from one or more elongated processes (“stylopods”); nucleus one or more (not yet demonstrated in some little known simple forms), usually in genetic relation to granules or strands of matter of similar composition, the “chromidia” scattered through the protoplasm; body naked, or provided with a permanent investment (shell or test), membranous, gelatinous, arenaceous (of compacted or cemented granules), calcareous, or very rarely (in deep sea forms) siliceous, sometimes freely perforated, but never latticed; opening by one or more permanent apertures (“pylomes”) or crevices between compacted sand-granules, often very complex; reproduction by fission (only in simplest naked forms), or by brood formation; in the latter case one mode of brood formation (A) eventuates in amoebiform embryos, the other (B) in flagellate zoospores which are exogamous 629 gametes, pairing but not with those of their own brood; the coupled cell (“zygote”) when mature in the shelled species gives rise to a very small primitive test-chamber or “microsphere.” The adult microspheric animal gives rise to the amoebiform brood which have a larger primitive test (“megalosphere”); and megalospheric forms appear to reproduce by the A type a series of similar forms before a B brood of gametes is finally borne, to pair and reproduce the microspheric type, which is consequently rare.

Fig. 1B.Protomyxa aurantiaca, Haeck. (After Haeckel.)

1, Adult, containing two diatom frustules, and three Tintinnid ciliates, with a large Dinoflagellate just caught by the expanded reticulate pseudopodia.

2, Adult encysted and segmented.

3, Flagellate zoospore just freed from cyst.

4, Zoospore which has passed into the amoeboid state.

Fig. 2.Allogromiidea.

1, Diplophrys archeri, Barker.
a, Nucleus.
b, Contractile vacuoles.
c, The yellow oil-like body. Moor pools, Ireland.

2, Allogromia oviformis, Duj.
a, The numerous nuclei; near these the elongated bodies represent ingested diatoms. Freshwater. Figs. 2, 3, 11, 12 belong to Rhizopoda Filosa, and are included here to show the characteristic filose pseudopodia in contrast with the reticulate spread of the others.

3, Shepheardella taeniiformis, Siddall (Quart. Jour. Micr. Sci., 1880).
 Marine. The protoplasm is retracted at both ends into the tubular case.
a. Nucleus.

5, Shepheardella taeniiformis; with pseudopodia fully expanded.

6-10, Varying appearance of the nucleus as it is carried along in the streaming protoplasm within the tube.

11, Amphitrema wrightianum, Archer, showing membranous shell encrusted with foreign particles. Moor pools, Ireland.

12, Diaphorophodon mobile, Archer.
a. Nucleus. Moor pools, Ireland.

The shells require special study. In the lowest forms they are membranous, sometimes encrusted with sand-grains, always very simple, the only complication being the doubling of the pylome in Diplophrys (fig. 2, 1), Shepheardella (fig. 2, 3-5), Amphitrema (fig. 2, 11), Diaphorophodon (fig. 2, 12). The marine shells are, as we have seen, of cemented particles, or calcareous, glassy, and regularly perforated, or again calcareous, but porcellanous and rarely perforate. These characters have been used as a guide to classification; but some sandy forms have so large a proportion of calcareous cement that they might well be called encrusted calcareous genera, and are also not very constant in respect of the character of perforation. The porcellanous genera, however, form a compact group, the replacement of the shell by silica in forms dwelling in the red clay of the ocean abysses, where calcium carbonate is soluble, not really making any difficulty. Moreover, the shells of this group show a deflected process or neck of the embryonic chamber (“camptopyle”) at least in the megalospheric forms, whereas when such a neck exists in other groups it is straight. The opening of the shell is called the pylome. This may be a mere hole where the lateral walls of the body end, or there may be a diaphragmatic ingrowth so as to narrow the entrance. It may be a simple rounded opening, oblong or tri-multi-radiate, or branching (fig. 4, 1); or replaced by a number of coarse pores (“ethmopyle”) (fig. 3, 5a). Again, it may lie at the end of a narrowed tube (“stylopyle”), which in Lagena (fig. 3, 9) may project outwards (“ectoselenial”), or inwards (“entoselenial”). In most groups the stylopyle is straight; but in the majority of the porcellanous shells it is bent down on the side of the shell, and constitutes the “flexopyle” of A. Kemna, which being a hybrid term should be replaced by “camptopyle.” The animal usually forms a simple shell only after it has attained a certain size, and this “embryonic chamber” cannot grow further. In Spirillina and Ammodiscus there is no pylomic end-wall, and the shell continues to grow as a spiral tube; in Cornuspira (fig. 3, 1) there is a slight constriction indicating the junction of a small embryonic chamber with a camptopyle, but the rest of the shell is a simple flat spiral of several turns. In the majority at least one chamber follows the first, with its own pylome at the distal end. This second chamber may rest on the first, so that the part on which it rests serves as a party-wall bounding the front of the newer chamber as well as the back of the older; and this state prevails for all added chambers in such cases. In the 630 highest vitreous shells, however, each chamber has its complete “proper wall”; while a “supplementary skeleton,” a deposit of shelly matter, binds the chambers together into a compact whole. In all cases the protoplasm from the pylome may deposit additional matter on the outside of the shell, so as to produce very characteristic sculpturing of the surface.

Fig. 3.—Various forms of Calcareous Foraminifera.

1, Cornuspira.

2, Spiroloculina.

3, Triloculina.

4, Biloculina.

5, Peneroplis.

6, Orbiculina (cyclical).

7, Orbiculina (young).

8, Orbiculina (spiral).

9, Lagena.

10, Nodosaria.

11, Cristellaria.

12, Globigerina.

13, Polymorphina.

14, Textularia.

15, Discorbina.

16, Polystomella.

17, Planorbulina.

18, Rotalia.

19, Nonionina.

Fig. 4.—Modifications of Peneroplis. 1, Dendritina; 2, Eu-Peneroplis.

Compound or “polythalamic” shells derive their general form largely from the relations of successive chambers in size, shape and direction. This is well shown in the porcellanous Miliolidae. If we call the straight line uniting the two ends of a chamber the “polar axis,” we find that successive chambers have their pylomes at alternate poles; but they lie on different meridians. In Spiroloculina (fig. 3, 2) the divergence between the meridians is 180°, and the chambers are strongly incurved, so that the whole shell forms a flat spiral, of nearly circular outline. In the majority, however, the chambers are crescentic in section, their transverse prolongations being termed “alary” outgrowths, so that successive chambers overlap; when under this condition the angle of successive meridians is still 180° we have the form Biloculina (fig. 3, 4), or with the alary extensions completely enveloping, Uniloculina; when the angle is 120° we have Triloculina, or 144°, Quinqueloculina. Again in Peneroplis (figs. 3, 5, and 4) the shell begins as a flattened shell which tends to straighten out with further growth and additional chambers. In some forms (Spirolina, fig. 22, 3) the chambers have a nearly circular transverse section, and the adult shell is thus crozier-shaped. In others (which may have the same sculpture, and are scarcely distinguishable as species) the chambers are short and wide, drawn out at right angles to the axis, but in the plane of the spiral, and the growing shell becomes fan-shaped or “flabelliform” (figs. 3, 5, 4, 2). This widening may go on till the outer chambers form the greater part of a circle, as in Orbiculina (fig. 3, 6-8) where, moreover, each large chamber is subdivided by incomplete vertical bulkheads into a tier of chamberlets; each chamberlet has a distinct pylomic pore opening to the outside or to those of the next outer zone. In Orbitolites (figs. 5, 6) we have a centre on a somewhat Milioline type; and after a few chambers in spiral succession, complete circles of chambers are formed. In the larger forms the new zones are of greater height, and horizontal bulkheads divide the chamberlets into vertical tiers, each with its own pylomic pore.

Fig. 5.—Shell of simple type of Orbitolites, showing primordial chamber a, and circumambient chamber b, surrounded by successive rings of chamberlets connected by circular galleries which open at the margin by pores.
Fig. 6.—Animal of simple type of Orbitolites, showing primordial segment a, and circumambient segment b, surrounded by annuli of sub-segments connected by radial and circular stolon-processes.

The Cheilostomellidae (fig. 3, 13) reproduce among perforate vitreous genera what we have already seen in the Miliolida: Orbitoides (fig. 10, 2) and Cycloclypeus, among the Nummulite group, with a very finely perforate wall, recall the porcellanous Orbiculina and Orbitolites.

In flat spiral forms (figs. 22, 1, 7; 3, 2, 16, 19, &c.) all the chambers may be freely exposed; or the successive chambers be wider transversely than their predecessors 631 and overlap by “alary extensions,” becoming “nautiloid”; in extreme cases only the last turn or whorl is seen (fig. 11). When the spiral axis is conical the shell may be “rotaloid,” the larger lower chambers partially concealing the upper smaller ones (fig. 3, 12, 15, 17, 18); or they may leave, as in Patellina, a wide central conical cavity—which, in this genus, is finally occupied by later formed “supplementary” chambers. When the successive chambers are disposed around a longitudinal central axis they may be said to “alternate” like the leaves of a plant. If the arrangement is distichous we get such forms as Polymorphina, Textularia and Frondicularia (fig. 3, 13, 14), if tristichous, Tritaxia. Such an arrangement may coexist with a spiral twist of the axis for at least part of its course, as in the crozier-shaped Spiroplecta.

Fig. 7.—Section of Rotalia beccarii, showing the canal system, a, b, c, in the substance of the intermediate skeleton; d, tubulated chamber-wall.
Fig. 8.—Internal cast of Polystomella craticulata.

a, Retral processes, proceeding from the posterior margin of one of the segments.

b, b¹, Smooth anterior margin of the same segment.

c, c¹, Stolons connecting successive segments and uniting themselves with the diverging branches of the meridional canals.

d, d¹, d², Three turns of one of the spiral canals.

e, e¹, e², Three of the meridional canals.

f, f¹, f², Their diverging branches.

Fig. 9.Operculina laid open, to show its internal structure.

a, Marginal cord seen in cross section at a’.

b, b, External walls of the chambers.

c, c, Cavities of the chambers.

c′, c′, Their alar prolongations.

d, d, Septa divided at d’, d’, and at d”, so as to lay open the interseptal canals, the general distribution of which is seen in the septa e, e; the lines radiating from e, e point to the secondary pores.

g, g, Non-tubular columns.

Two phenomena interfere with the ready availability of the characters of form for classificatory ends—dimorphism and multiformity.

Dimorphism.—The majority of foraminiferal shells show two types, the rarer with a much smaller central chamber than that of the more frequent. The chambers are called microsphere and megalosphere, the forms in which they occur microsphaeric and megalosphaeric forms, respectively. We shall study below their relation to the reproductive cycle.

Fig. 10.1, Piece of Nummulitic Limestone from the Pyrenees, showing Nummulites laid open by fracture through the median plane; 2, vertical section of Nummulite; 3, Orbitoides.
Fig. 11.—Vertical section of portion of Nummulites, showing the investment of the earlier whorls by the alar prolongations of the later.

a, Marginal cord.

b, Chamber of outer whorl.

c, c, Whorl invested by a.

d, One of the chambers of the fourth whorl from the margin.

e, e′, Marginal portions of the enclosed whorls.

f, Investing portion of the outer whorl.

g, g, Spaces left between the investing portions of successive whorls.

h, h, Sections of the partitions dividing these.

Fig. 12.—Internal surface of wall of two chambers, a, a, of Nummulites, showing the orifices of its minute tubuli.

b, b, The septa containing canals.

c, c, Extensions of these canals in the intermediate skeleton.

d, d, Larger pores.

Multiformity.—Many of the Polythalamia show different types of chamber-succession at different ages. We have noted this phenomenon in such crozier forms as Peneroplis, as well as in discoid forms; it is very frequent. Thus the microspheric Biloculina form the first few chambers in quinqueloculine succession. The microspheric forms attain to a greater size when adult than the megalospheric; and in Orbitolites the microsphere has a straight outlet, orthostyle, instead of the deflected camptostyle one, so general in porcellanous types; and the spiral succession is continued for more turns before reaching the fan-shaped and finally cyclic stage. Globigerina, whose chambers are nearly spherical, is sometimes seen to be enclosed in a spherical test, perforate, but without a pylome, and known as Orbulina; the chambered Globigerina-shell is attached at first inside the wall of the Orbulina, but ultimately disappears. The ultimate fate of the Orbulina shell is unknown; but it obviously marks a turning-point in the life-cycle.

Fig. 13.—Internal cast of two chambers, a, a, of Nummulites, the radial canals between them passing into b, marginal plexus.

Protoplasmic Body and Reproduction.—The protoplasm is not differentiated into ecto- and endosarc, although it is often denser 632 in the central part within the shell, and clearer in the pseudopodial ramifications and the layer (or stalk in the monothalamic forms) from which it is given off. In pelagic forms like Globigerina the external layer is almost if not quite identical in structure with the extracapsular protoplasm of Radiolaria (q.v.), being differentiated into granular strands traversing a clear jelly, rich in large vacuoles (alveoli), and uniting outside the jelly to form the basal layer of the pseudopods; these again are radiolarian in character. Hence E.R. Lankester justly enough compares the shell here to the central capsule of the Radiolarian, though the comparison must not be pushed too far. The cytoplasm contains granules of various kinds, and the internal protoplasm is sometimes pigmented. The Chrysomonad Flagellate, Zooxanthella, so abundant in its resting state—the so-called “yellow cells”—in the extracapsular protoplasm of Radiolaria (q.v.) also occurs in the outer protoplasm of many Foraminifera, not only pelagic but also bottom-dwellers, such as Orbitolites.

The nucleus is single in the Nuda and Allogromidia and in the megalospheric forms of higher Foraminifera; but microspheric forms when adult contain many simple similar nuclei. The nucleus in every case gives off granules and irregular masses (“chromidia”) of similar reactions, which play an important part in reproduction. During the maturation of the microsphere the nuclei disappear; and the cytoplasm breaks up into a large number of zoospores, each of which is soon provided with a single nucleus, whether entirely derived from the parent-nucleus or from the coalescence of chromidia, or from both these sources is still uncertain. These zoospores are amoeboid; they soon secrete a shell and reveal themselves as megalospheres, the original state of the megalospheric forms. In the adult megalosphere the solitary nucleus disappears and is replaced by hosts of minute vesicular nuclei, formed by the concentration of chromidia. Each nucleus aggregates around it a proper zone of dense protoplasm; by two successive mitotic divisions each mass becomes quadri-nucleate, and splits up into four biflagellate, uninucleate zoospores. These are pairing-cells or gametes, though they will not pair with members of the same brood. In the zygote resulting from pairing two nuclei soon fuse into one; but this again divides into two; an embryonic shell is secreted, and this is the microspheric type, which is multinuclear from the first. F. Schaudinn compares the nuclei of the adult Foraminifera with the (vegetative) meganucleus of Infusora (q.v.) and the chromidial mass with the micronucleus, whose chief function is reproductive.

Fig. 14.—Vertical section of tubulated chamber-walls, a, a, of Nummulites. b, b, Marginal cord; c, cavity of chamber; d, d, non-tubulated columns.

Since megalospheric forms are by far the most abundant, it seems probable that under most conditions they also give rise to megalospheric young like themselves; and that the production of zoospores, pairing to pass into the microspheric form, is only occasional, and possibly seasonal. This life-history we owe to the researches of Schaudinn and J.J. Lister.

In several species (notably Patellina) plastogamy, the union of the cytoplasmic bodies without nuclear fusion, has been noted, as a prelude to the resolution of the conjoined protoplasm into uninucleate amoebulae.

Calcituba, a porcellanous type, which after forming the embryonic chamber with its deflected pylome grows into branching stems, may fall apart into sections, or the protoplasm may escape and break up into small amoebulae. Of the reproduction of the simplest forms we know little. In Mikrogromia the cell undergoes fission within the test, and on its completion the daughter-cells may emerge as biflagellate zoospores.

The sandy shells are a very interesting series. In Astrorhiza the sand grains are loosely agglutinated, without mineral cement; they leave numerous pores for the exit of the protoplasm, and there are no true pylomes. In other forms the union of the grains by a calcareous or ferruginous cement necessitates the existence of distinct pylomes. Many of the species reproduce the varieties of form found in calcareous tests; some are finely perforated, others not. Many of the larger ones have their walls thickened internally and traversed by complex passages; this structure is called labyrinthic (fig. 19, g, h). The shell of Endothyra, a form only known to us by its abundance in Carboniferous and Triassic strata, is largely composed of calcite and is sometimes perforated.

Fig. 15.Cycloclypeus.

It is noteworthy that though of similar habitat each species selects its own size or sort of sand, some utilizing the siliceous spicules of sponges. Despite the roughness of the materials, they are often so laid as to yield a perfectly smooth inner wall; and sometimes the outer wall may be as simple. As we can find no record of a deflected stylopyle to the primitive chamber of the polythalamous Arenacea, it is safe to conclude that they have no close alliance with the Porcellanea.

Classification.

I. Nuda.—Protoplasmic body without any pellicle or shell save in the resting encysted condition, sometimes forming colonial aggregates by coalescence of pseudopods (Myxodictyum), or even plasmodia (Protomyxa). Brood cells at first uniflagellate or amoeboid from birth. Fresh-water and marine genera Protogenes (Haeckel), Biomyxa (Leidy), Myxodictyum (Haeckel), Protomyxa (Haeckel) (fig. 1B).

 This group of very simple forms includes many of Haeckel’s Monera, defined as “cytodes,” masses of protoplasm without a nucleus. A nucleus (or nuclei) has, however, been demonstrated by improved methods of staining in so many that it is probable that this distinction will fall to the ground.

Fig. 16.Heterostegina.

II. Allogromidiaceae (figs. 1A, 2).—Protoplasmic body protected in adult state by an imperforate test with one or two openings (pylomes) for the exit of the stylopod; test simple, gelatinous, membranous, sometimes incrusted with foreign bodies, never calcareous nor arenaceous; reproduction by fission alone known. Fresh-water or marine genera Allogromia (Rhumbl.), Myxotheca (Schaud.), Lieberkühnia (Cl. & L.) (fig. 1A), Shepheardella (Siddall) (fig. 2, 3-10), Diplophrys (Barker), Amphitrema (Arch.) (fig. 2, 11), Diaphorophodon (Arch.) (fig. 2, 12), are possibly Filosa. This group differs from the preceding in its simple test, but, like it, includes many fresh-water species, which possess contractile vacuoles.

III. Astrorhizidiaceae.—Simple forms, rarely polythalamous (some Rhabdamminidae), but often branching or radiate; test arenaceous, loosely compacted and traversed by chinks for pseudopodia (Astrorhizidae), or dense, and opening by one or more terminal pylomes at ends of branches. Marine, 4 Fam. The test of some Astrorhizidae is so loose that it falls to pieces when taken out of water. Haliphysema is remarkable for its history in relation to the “gastraea theory.” Pilulina has a neat globular shell of sponge-spicules and fine sand. Genera, Astrorhiza (Sandahl) 633 (fig. 22), Pilulina (Carptr.) (fig. 19), Saccammina (Sars) (fig. 19), Rhabdammina (Sars), Botellina (Carptr.), Haliphysema (Bowerbank) (fig. 22).

IV. Lituolidaceae.—Shell arenaceous, usually fine-grained, definite and often polythalamic, recalling in structure calcareous forms. Lituola (Lamk.) (fig. 19), Endothyra (Phil.), Ammodiscus (Reuss), Loftusia (Brady), Haplophragmium (Reuss) (fig. 22), Thurammina (Brady) (fig. 22).

Modified from F. Schaudinn, in Lang’s Zoologie.
Fig. 17.—Life Cycle of Polystomella crispa.

A, Young megalospheric individual.

B, Adult decalcified.

C, Later stage, resolving itself into two flagellate gametes.

D, Conjugation.

E, Microspheric individual produced from zygote.

F, The same resolved itself into pseudopodiospores which are growing into new megalospheric individuals.

1, Principal nucleus, and 2, subsidiary nuclei of megalospheric form.

3, Nuclei.

4, Nuclei in multiple division.

5, Chromidia derived from 4.

V. Miliolidaceae.—Shells porcellanous imperforate, almost invariably with a camptostyle leading from the embryonic chamber; Cornuspira (Schultze) (fig. 3); Miliola (Lamk.), including as subgenera Spiroloculina (d’Orb.) (figs. 3 and 22); Triloculina (d’Orb.) (fig. 3); Biloculina (d’Orb.) (fig. 3); Uniloculina (d’Orb.); Quinqueloculina (d’Orb.); Peneroplis (Montfort) (figs. 22, 3; 3), with form Dendritina (fig. 4, 1); Orbiculina (Lamk.) (fig. 3, 6-8); Orbitolites (Lamk.) (figs. 5, 6); Vertebralina (d’Orb.) (fig. 22); Squamulina (Sch.) (fig. 22); Calcituba (Schaudinn).

VI. Textulariadaceae.—Shells perforate, vitreous or (in the larger forms) arenaceous, in two or three alternating ranks (distichous or tristichous). Textularia (Defrance) (fig. 21).

VII. Cheilostomellaceae.—Shells vitreous, thin, the chambers doubling forwards and backwards as in Miliolidae. Cheilostomella (Reuss).

VIII. Lagenidaceae.—Shells vitreous, often sculptured, mono- or polythalamic, finely perforate; chambers flask-shaped, with a protruding or an inturned stylopyle; Lagena (Walker & Boys) (fig. 4, 9); Nodosaria (Lamk.) (figs. 23, 4; 4, 10); Polymorphina (d’Orb.) (fig. 4, 13); Cristellaria (Lamk.) (fig. 4, 11); Frondicularia (Def.) (fig. 23, 3).

IX. Globigerinidaceae.—Shells vitreous, coarsely perforated; chambers few spheroidal rapidly increasing in size; arranged in a trochoid or nautiloid spiral. Globigerina (Lamk.) (23, 6; 4, 12); Hastigerina (Wyville Thompson) (fig. 23, 5); Orbulina (d’Orb.) (fig. 23, 8).

X. Rotalidaceae.—Shells vitreous, finely perforate; walls thick, often double, but without an intermediate party-layer traversed by canals; form usually spiral or trochoid. Discorbina (Parker & Jones) (fig. 4, 15); Planorbulina (d’Orb.) (fig. 4, 17); Rotalia (Lamk.) (figs. 23, 1, 2; 7, 21); Calcarina (d’Orb.) (fig. 23, 10); Polytrema (Risso) (fig. 23, 9).

Fig. 18.—Biloculina depressa d’Orb., transverse sections showing dimorphism. (From Lister.)

a, Megalospheric shell × 50, showing uniform growth, biloculine throughout.

b, Microspheric shell × 90, showing multiform growth, quinqueloculine at first, and then multiform.

XI. Nummulinidaceae.—As in Rotalidaceae, but with a thicker finely perforated shell, often well developed, and a supplementary skeleton traversed by branching canals as an additional party-wall between the proper chamber-walls. Nonionina (d’Orb.) (fig. 4, 19); Fusulina (Fischer) (fig. 20); Polystomella (Lamk.) (figs. 4, 16; 8); Operculina (d’Orb.) (fig. 9); Heterostegina (d’Orb.) (fig. 16); Cycloclypeus (Carptr.) (fig. 15); Nummulites (Lamk.) (figs. 10, 11, 12, 13, 14).

Eozoon canadense,” described as a species of this order by J.W. Dawson and Carpenter, has been pronounced by a series of enquirers, most of whom started with a belief in its organic structure, to be merely a complex mineral concretion in ophicalcite, a rock composed of an admixture of silicates (mostly serpentine and pyroxene) and calcite.

Distribution in Vertical Space.—Owing to their lack of organs for active locomotion the Foraminifera are all crawling or attached, with the exception of a few genera (very rich in species, however) which float near the surface of the ocean, constituting part of the pelagic plankton (q.v.). Thus the majority are littoral or deep-sea, sometimes attached to other bodies or even burrowing in the tests of other Foraminifera; most of the fresh-water forms are sapropelic, inhabiting the layer of organic 634 débris at the surface of the bottom mud ditches of pools, ponds and lakes. The deep-sea species below a certain depth cannot possess a calcareous shell, for this would be dissolved; and it is in these that we find limesalts sometimes replaced by silica.

Fig. 19.—Arenaceous Foraminifera.

a, Exterior of Saccammina.

b, The same laid open.

c, Portion of test more highly magnified.

d, Pilulina.

e, Portion of test more highly magnified.

f, Nautiloid Lituola, exterior.

g, Chambered interior.

h, Portion of labyrinthic chamber wall, showing component sand-grains.

Fig. 20.—Section of Fusulina Limestone.
Fig. 21.—Microscopic Organisms in Chalk from Gravesend. a, b, c, d, Textularia globulosa; e, e, e, e, Rotalia aspera; f, Textularia aculeata; g, Planularia hexas; h, Navicula.

The pelagic floating genera are also specially modified. Their shell is either thin or extended many times by long slender tapering spines, and the protoplasm outside has the same character as that of the Radiolaria (q.v.), being differentiated into jelly containing enormous vacuoles and traversed by reticulate strands of granular protoplasm. These coalesce into a peripheral zone from which protrude the pseudopods, here rather radiate than reticulate. Most genera and most species are cosmopolitan; but local differences are often marked. Foraminifera abound in the shore sands and the crevices of coral reefs. The membranous shelled forms decay without leaving traces. The sandy or calcareous shells of dead Foraminifera constitute a large proportion of littoral sand, both below and above tide marks; and, as shown in the boring on Funafuti, enter largely into the constituents of coral rock. They may accumulate in the mud of the bottom to constitute Foraminiferal ooze. The source of these shells in the latter case is double: (1) shells of bottom-dwellers accumulate on the spot; (2) shells of dead plankton forms sink down in a continuous shower, to form a layer at the bottom of the ocean, during which process the spines are dissolved by the sea-water. Thus is formed an ooze known as “Globigerina-ooze,” being formed largely of that genus and its ally Hastigerina; below 3000 fathoms even the tests themselves are dissolved. Casts of their bodies in glauconite (a green ferrous silicate, whose composition has not yet been accurately determined) are, however, frequently left. Glauconitic casts of perforate shells, notably Globigerina, have been found in Lower Cambrian (e.g. Hollybush Sandstone), and the shells themselves in Siberian limestones of that age. It is only when we pass into the Silurian Wenlock limestone that sandy shells make their appearance. Above this horizon Foraminifera are more abundant as constituents, partial or principal of calcareous rocks, the genus Endothyra being indeed almost confined to Carboniferous beds. The genus Fusulina (fig. 20) and Saccammina (fig. 19) give their names (from their respective abundance) to two limestones of the Carboniferous series. Porcellanous shells become abundant only from the Lias upwards. The glauconitic grains of the Greensand formations are chiefly foraminiferal casts. Chalk is well known to consist largely of foraminiferal shells, mostly vitreous, like the north Atlantic globigerina ooze. In the Maestricht chalk more littoral conditions prevailed, and we find such large-sized species as Orbitoides (vitreous) and Orbitolites (porcellanous; figs. 5, 6), &c. In the Eocene Tertiaries the Calcaire Grossier of the Paris basin is mainly composed of Miliolid forms. Nummulites occur in English beds and in the Paris basin; but the great beds of these, forming reef-like masses of limestone, occur farther south, extending from the Pyrenees through the southern and eastern Alps to Egypt, Sinai, and on to north India. The peculiar structure occurring in the Lower Laurentian limestone, as well as other limestones of Archean age described as a Nummulitaceous genus, “Eozoon,” by Carpenter and Dawson, and abundantly illustrated in the 9th edition of his encyclopaedia, is now universally regarded as of inorganic origin. “Looking at the almost universal diffusion of existing Foraminifera and the continuous accumulation of their shells over vast areas of the ocean-bottom, they are certainly doing more than any other group of organisms to separate carbonate of lime from its solution in sea-water, so as to restore to the solid crust of the earth what is being continuously withdrawn from it by solution of the calcareous materials of the land above sea-level.” (E.R. Lankester, “Protozoa,” Ency. Brit. 9th ed.)

635

Fig. 22.—Imperforata.

1, Spiroloculina planulata, Lamarck, showing five “coils”; porcellanous.

2, Young ditto, with shell dissolved and protoplasm stained so as to show the seven nuclei n.

3, Spirolina (Peneroplis); a sculptured imperfectly coiled shell; porcellanous.

4, Vertebralina, a simple shell consisting of chambers succeeding one another in a straight line; porcellanous.

5, 6, Thurammina papillata, Brady, a sandy form. 5 is broken open so as to show an inner chamber; recent. × 25.

7, Haplophragmium canariensis, a sandy form; recent.

8, Nucleated reproductive bodies (bud-spores) of Haliphysema.

9, Squamulina laevis, M. Schultze; × 40; a simple porcellanous Miliolide.

10, Protoplasmic core removed after treatment with weak chromic acid from the shell of Haliphysema tumanovitzii, Bow. n, Vesicular nuclei, stained with haematoxylin. (After Lankester.)

11, Haliphysema tumanovitzii; × 25 diam.; living specimen, showing the wine-glass-shaped shell built up of sand-grains and sponge-spicules, and the abundant protoplasm p, issuing from the mouth of the shell and spreading partly over its projecting constituents.

12, Shell of Astrorhiza limicola, Sand.; × 32; showing the branching of the test on some of the rays usually broken away in preserved specimens (original).

13, Section of the shell of Marsipella, showing thick walls built of sand-grains.

Fig. 23.—Perforata.

1, Spiral arrangement of simple chambers of a Reticularian shell, as in small Rotalia.

2, Ditto, with double septal walls, and supplemental shell-substance (shaded), as in large Rotalia.

3, Diagram to show the mode in which successively-formed chambers may completely embrace their predecessors, as in Frondicularia.

4, Diagram of a simple straight series of non-embracing chambers, as in Nodosaria.

5, Hastigerina murrayi, Wyv. Thomson, a, Bubbly (vacuolated) protoplasm, enclosing b, the perforated Globigerina-like shell (conf. central capsule of Radiolaria). From the peripheral protoplasm project, not only fine pseudopodia, but hollow spines of calcareous matter, which are set on the shell, and have an axis of active protoplasm. Pelagic; drawn in the living state.

6, Globigerina bulloides, d’Orb., showing the punctiform perforations of the shell and the main aperture.

7, Fragment of the shell of Globigerina, seen from within, and highly magnified, a, Fine perforations in the inner shell substances; b, outer (secondary) shell substance. Two coarser perforations are seen in section, and one lying among the smaller.

8, Orbulina universa, d’Orb. Pelagic example, with adherent radiating calcareous spines (hollow), and internally a small Globigerina shell. It is probably a developmental phase of Globigerina, a, Orbulina shell; b, Globigerina shell.

9, Polytrema miniaceum, Lin.; × 12. Mediterranean. Example of a branched adherent calcareous perforate Recticularian.

10, Calcarina spengleri, Gmel.; × 10. Tertiary, Sicily. Shell dissected so as to show the spiral arrangement of the chambers, and the copious secondary shell substance. a², a³, a4, Chambers of three successive coils in section, showing the thin primary wall (finely tubulate) of each; b, b, b, b, perforate surfaces of the primary wall of four tiers of chambers, from which the secondary shell substance has been cleared away; c′, c′, secondary or intermediate shell substance in section, showing coarse canals; d, section of secondary shell substance at right angles to c′; e, tubercles of secondary shell substance on the surface; f, f, club-like processes of secondary shell substance.

636

Historical.—The Foraminifera were discovered as we have seen by A. d’Orbigny. C.E. Ehrenberg added a large number of species, but it was to F. Dujardin in 1835 that we owe the recognition of their true zoological position and the characters of the living animal. W.B. Carpenter and W.C. Williamson in England contributed largely to the study of the shell, the latter being the first to call attention to its multiform character in the development of a single species, and to utilize the method of thin sections, which has proved so fertile in results. W.K. Parker and H.B. Brady, separately, and in collaboration, described an enormous number of forms in a series of papers, as well as in the monograph by the latter of the Foraminifera of the “Challenger” expedition. Munier-Chalmas and Schlumberger brought out the fact of dimorphism in the group, which was later elucidated and incorporated in the full cytological study of the life-cycle of Foraminifera by J.J. Lister and F. Schaudinn, independently, but with concurrent results.

Literature.—The chief recent books are: F. Chapman, The Foraminifera (1902), and J.J. Lister, “The Foraminifera,” in E.R. Lankester’s Treatise on Zoology (1903), in which full bibliographies will be found. For a final résumé of the long controversy on Eozoon, see George P. Merrill in Report of the U.S. National Museum (1906), p. 635. Other classifications of the Foraminifera will be found by G.H. Theodor Eimer and C. Fickert in Zeitschr. für wissenschaftliche Zoologie, lxv. (1899), p. 599, and L. Rhumbler in Archiv für Protistenkunde, iii. (1903-1904); the account of the reproduction is based on the researches of J.J. Lister, summarized in the above-cited work, and of F. Schaudinn, in Arbeiten des kaiserlichen Gesundheitsamts, xix. (1903). We must also cite W.B. Carpenter, W.K. Parker and T. Rymer Jones, Introduction to the Study of the Foraminifera (Ray Society) (1862); W.B. Carpenter, “Foraminifera,” in Ency. Brit., 9th ed.; W.C. Williamson, On the Recent Foraminifera of Great Britain (Ray Society), (1858); H.B. Brady, “The Foraminifera,” in Challenger Reports, ix. (1884); A. Kemna, in Ann. de la soc. royale zoologique et malacologique de Belgique, xxxvii. (1902), p. 60; xxxix. (1904), p. 7.

Appendix.—The Xenophyophoridae are a small group of bottom-dwelling Sarcodina which show a certain resemblance to arenaceous Foraminifera, though observations in the living state show that the character of the pseudopodia is lacking. The multinucleate protoplasm is contained in branching tubes, aggregated into masses of definite form, bounded by a common wall of foreign bodies (sponge spicules, &c.) cemented into a membrane. The cytoplasm contains granules of BaSO4 and pellets of faecal matter. All that is known of reproduction is the resolution of the pellets into uninucleate cells. (F.E. Schultze, Wissenschaftliche Ergebnisse der deutschen Tiefsee-Expedition, vol. xi., 1905, pt. i.)

(M. Ha.)

FORBACH, a town of Germany in the imperial province of Alsace-Lorraine, on an affluent of the Rossel, and on the railway from Metz to Saarbrücken, 5½ m. S.W. of the latter. Pop. (1905) 8193. It has a Protestant and a Roman Catholic (Gothic) church, a synagogue and a Progymnasium. Its industries include the manufacture of tiles, pasteboard wares and gardening implements, while there are coal mines in the vicinity. After the battle on the neighbouring heights of Spicheren (6th of August 1870), in which the French under General Frossard were defeated by the Germans under General von Glümer, the town was occupied by the German troops, and at the conclusion of the war annexed to Germany. On the Schlossberg near the town are the ruins of the castle of the counts of Forbach, a branch of the counts of Saarbrücken.

See Besler, Geschichte des Schlosses, der Herrschaft und der Stadt Forbach (1895).


FORBES, ALEXANDER PENROSE (1817-1875), Scottish divine, was born at Edinburgh on the 6th of June 1817. He was the second son of John Henry Forbes, Lord Medwyn, a judge of the court of session, and grandson of Sir William Forbes of Pitsligo. He studied first at the Edinburgh Academy, then for two years under the Rev. Thomas Dale, the poet, in Kent, passed one session at Glasgow University in 1833, and, having chosen the career of the Indian civil service, completed his studies with distinction at Haileybury College. In 1836 he went to Madras and secured early promotion, but in consequence of ill-health he was obliged to return to England. He then entered Brasenose College, Oxford, where in 1841 he obtained the Boden Sanskrit scholarship, and graduated in 1844. He was at Oxford during the early years of the movement known as Puseyism, and was powerfully influenced by association with Newman, Pusey and Keble. This led him to resign his Indian appointment. In 1844 he was ordained deacon and priest in the English Church, and held curacies at Aston, Rowant and St Thomas’s, Oxford; but being naturally attracted to the Episcopal Church of his native land, then recovering from long depression, he removed in 1846 to Stonehaven, the chief town of Kincardineshire. The same year, however, he was appointed to the vicarage of St Saviour’s, Leeds, a church founded to preach and illustrate Tractarian principles. In 1848 Forbes was called to succeed Bishop Moir in the see of Brechin. He removed the episcopal residence to Dundee, where he resided till his death, combining the pastoral charge of the congregation with the duties of the see. When he came to Dundee the churchmen were accustomed owing to their small numbers to worship in a room over a bank. Through his energy several churches were built, and among them the pro-cathedral of St Paul’s. He was prosecuted in the church courts for heresy, the accusation being founded on his primary charge, delivered and published in 1857, in which he set forth his views on the Eucharist. He made a powerful defence of the charge, and was acquitted with “a censure and an admonition.” Keble wrote in his defence, and was present at his trial at Edinburgh. Forbes was a good scholar, a scientific theologian and a devoted worker, and was much beloved. He died at Dundee on the 8th of October 1875.

Principal works: A Short Explanation of the Nicene Creed (1852); An Explanation of the Thirty-nine Articles (2 vols., 1867 and 1868); Commentary on the Seven Penitential Psalms (1847); Commentary on the Canticles (1853). See Mackey’s Bishop Forbes, a Memoir.


FORBES, ARCHIBALD (1838-1900), British war correspondent, the son of a Presbyterian minister in Morayshire, was born on the 17th of April 1838, and was educated at Aberdeen University. Entering the Royal Dragoons as a private, he gained, while in the service, considerable practical experience of military life and affairs. Being invalided from his regiment, he settled in London, and became a journalist. When the Franco-German War broke out in 1870, Forbes was sent to the front as war correspondent to the Morning Advertiser, and in this capacity he gained valuable information as to the plans of the Parisians for withstanding a siege. Transferring his services to the Daily News, his brilliant feats in the transmission of intelligence drew world-wide attention to his despatches. He was with the German army from the beginning of the campaign, and he afterwards witnessed the rise and fall of the Commune. Forbes afterwards proceeded to Spain, where he chronicled the outbreak of the second Carlist War; but his work here was interrupted by a visit to India, where he spent eight months upon a mission of investigation into the Bengal famine of 1874. Then he returned to Spain, and followed at various times the Carlist, the Republican and the Alfonsist forces. As representative of the Daily News, he accompanied the prince of Wales in his tour through India in 1875-1876. Forbes went through the Servian campaign of 1876, and was present at all the important engagements. In the Russo-Turkish campaign of 1877 he achieved striking journalistic successes at great personal risk. Attached to the Russian army, he witnessed most of the principal operations, and remained continuously in the field until attacked by fever. His letters, together with those of his colleagues, MacGahan and Millet, were republished by the Daily News. On recovering from his fever, Forbes proceeded to Cyprus, in order to witness the British occupation. The same year (1878) he went to India, and in the winter accompanied the Khyber Pass force to Jalalabad. He was present at the taking of Ali Musjid, and marched with several expeditions against the hill tribes. Burma was Forbes’s next field of adventure, and at Mandalay, the capital, he had several interesting interviews with King Thibaw. He left Burma 637 hurriedly for South Africa, where, in consequence of the disaster of Isandlwana, a British force was collecting for the invasion of Zululand. He was present at the victory of Ulundi, and his famous ride of 120 m. in fifteen hours, by which he was enabled to convey the first news of the battle to England, remains one of the finest achievements in journalistic enterprise. Forbes subsequently delivered many lectures on his war experiences to large audiences. His closing years were spent in literary work. He had some years before published a military novel entitled Drawn from Life, and a volume on his experiences of the war between France and Germany. These were now followed by numerous publications, including Glimpses through the Cannon Smoke (1880); Souvenirs of some Continents (1885); William I. of Germany: a Biography (1888); Havelock, in the “English Men of Action” Series (1890); Barracks, Bivouacs, and Battles (1891); The Afghan Wars, 1839-80 (1892); Czar and Sultan (1895); Memories and Studies of War and Peace (1895), in many respects autobiographic; and Colin Campbell, Lord Clyde (1896). He died on the 30th of March 1900.


FORBES, DAVID (1828-1876), British mineralogist, metallurgist and chemist, brother of Edward Forbes (q.v.), was born on the 6th of September 1828, at Douglas, Isle of Man, and received his early education there and at Brentwood in Essex. When a boy of fourteen he had already acquired a remarkable knowledge of chemistry. This subject he studied at the university of Edinburgh, and he was still young when he was appointed superintendent of the mining and metallurgical works at Espedal in Norway. Subsequently he became a partner in the firm of Evans & Askin, nickel-smelters, of Birmingham, and in that capacity during the years 1857-1860 he visited Chile, Bolivia and Peru. Besides reports for the Iron and Steel Institute, of which, during the last years of his life, he was foreign secretary, he wrote upwards of 50 papers on scientific subjects, among which are the following: “The Action of Sulphurets on Metallic Silicates at High Temperatures,” Rep. Brit. Assoc., 1855, pt. ii. p. 62; “The Relations of the Silurian and Metamorphic Rocks of the south of Norway,” ib. p. 82; “The Causes producing Foliation in Rocks,” Journ. Geol. Soc. xi., 1855; “The Chemical Composition of the Silurian and Cambrian Limestones,” Phil. Mag. xiii. pp. 365-373, 1857; “The Geology of Bolivia and Southern Peru,” Journ. Geol. Soc. xvii. pp. 7-62, 1861; “The Mineralogy of Chile,” Phil. Mag., 1865; “Researches in British Mineralogy,” Phil. Mag., 1867-1868. His observations on the geology of South America were given in a masterly essay, and these and subsequent researches threw much light on igneous and metamorphic phenomena and on the resulting changes in rock-formations. He also contributed important articles on chemical geology to the Chemical News and Geological Magazine (1867 and 1868). In England he was a pioneer in microscopic petrology. He was elected F.R.S. in 1858. He died in London on the 5th of December 1876.

See Obituary by P.M. Duncan in Quart. Journ. Geol. Soc., vol. xxxiii., 1877, p. 41; and by J. Morris in Geol. Mag., 1877, p. 45.


FORBES, DUNCAN, of Culloden (1685-1747), Scottish statesman, was born at Bunchrew or at Culloden near Inverness on the 10th of November 1685. After he had completed his studies at the universities of Edinburgh and Leiden, he was admitted advocate at the Scottish bar in 1709. His own talents and the influence of the Argyll family secured his rapid advancement, which was still further helped by his loyalty to the Hanoverian cause at the period of the rebellion in 1715. In 1722 Forbes was returned member for Inverness, and in 1725 he succeeded Dundas of Arniston as lord advocate. He inherited the patrimonial estates on the death of his brother in 1734, and in 1737 he attained to the highest legal honours in Scotland, being made lord president of the court of session. As lord advocate, he had laboured to improve the legislation and revenue of the country, to extend trade and encourage manufactures, and no less to render the government popular and respected in Scotland. In the proceedings which followed the memorable Porteous mob, for example, when the government brought in a bill for disgracing the lord provost of Edinburgh, for fining the corporation, and for abolishing the town-guard and city-gate, Forbes both spoke and voted against the measure as an unwarranted outrage on the national feeling. As lord president also he carried out some useful legal reforms; and his term of office was characterized by quick and impartial administration of the law.

The rebellion of 1745 found him at his post, and it tried all his patriotism. Some years before (1738) he had repeatedly and earnestly urged upon the government the expediency of embodying Highland regiments, putting them under the command of colonels whose loyalty could be relied upon, but officering them with the native chieftains and cadets of old families in the north. “If government,” said he, “pre-engages the Highlanders in the manner I propose, they will not only serve well against the enemy abroad, but will be hostages for the good behaviour of their relations at home; and I am persuaded that it will be absolutely impossible to raise a rebellion in the Highlands.” In 1739, with Sir Robert Walpole’s approval, the original (1730) six companies (locally enlisted) of the Black Watch were formed into the famous “Forty-second” regiment of the line. The credit given to the earl of Chatham in some histories for this movement is an error; it rests really with Forbes and his friend Lord Islay, afterwards 3rd duke of Argyll (see the Autobiography of the 8th duke of Argyll, vol. i. p. 8 sq., 1906).

On the first rumour of the Jacobite rising Forbes hastened to Inverness, and through his personal influence with the chiefs of Macdonald and Macleod, those two powerful western clans were prevented from taking the field for Charles Edward; the town itself also he kept loyal and well protected at the commencement of the struggle, and many of the neighbouring proprietors were won over by his persuasions. His correspondence with Lord Lovat, published in the Culloden papers, affords a fine illustration of his character, in which the firmness of loyal principle and duty is found blended with neighbourly kindness and consideration. But at this critical juncture of affairs, the apathy of the government interfered considerably with the success of his negotiations. Advances of arms and money arrived too late, and though Forbes employed all his own means and what money he could borrow on his personal security, his resources were quite inadequate to the emergency. It is doubtful whether these advances were ever fully repaid. Part was doled out to him, after repeated solicitations that his credit might be maintained in the country; but it is evident he had fallen into disgrace in consequence of his humane exertions to mitigate the impolitic severities inflicted upon his countrymen after their disastrous defeat at Culloden. The ingratitude of the government, and the many distressing circumstances connected with the insurrection, sunk deep into the mind of Forbes. He never fairly rallied from the depression thus caused, and after a period of declining health he died on the 10th of December 1747.

Forbes was a patriot without ostentation or pretence, a true Scotsman with no narrow prejudice, an accomplished and even erudite scholar without pedantry, a man of genuine piety without asceticism or intolerance. His country long felt his influence through her reviving arts and institutions; and the example of such a character in that coarse and venal age, and among a people distracted by faction, political strife, and national antipathies, while it was invaluable to his contemporaries in a man of high position, is entitled to the lasting gratitude and veneration of his countrymen. In his intervals of leisure he cultivated with some success the study of philosophy, theology and biblical criticism. He is said to have been a diligent reader of the Hebrew Bible. His published writings, some of them of importance, include—A Letter to a Bishop, concerning some Important Discoveries in Philosophy and Theology (1732); Some Thoughts concerning Religion, natural and revealed, and the Manner of Understanding Revelation (1735); and Reflections on Incredulity (2nd ed., 1750).

His correspondence was collected and published in 1815, and a memoir of him (from the family papers) was written by Mr Hill Burton, and published along with a Life of Lord Lovat, in 1847. His statue by Roubillac stands in the Parliament House, Edinburgh.


638

FORBES, EDWARD (1815-1854), British naturalist, was born at Douglas, in the Isle of Man, on the 12th of February 1815. While still a child, when not engaged in reading, or in the writing of verses and drawing of caricatures, he occupied himself with the collecting of insects, shells, minerals, fossils, plants and other natural history objects. From his fifth to his eleventh year, delicacy of health precluded his attendance at any school, but in 1828 he became a day scholar at Athole House Academy in Douglas. In June 1831 he left the Isle of Man for London, where he studied drawing. In October, however, having given up all idea of making painting his profession, he returned home; and in the following month he matriculated as a student of medicine in the university of Edinburgh. His vacation in 1832 he spent in diligent work on the natural history of the Isle of Man. In 1833 he made a tour in Norway, the botanical results of which were published in Loudon’s Magazine of Natural History for 1835-1836. In the summer of 1834 he devoted much time to dredging in the Irish Sea; and in the succeeding year he travelled in France, Switzerland and Germany.

Born a naturalist, and having no relish for the practical duties of a surgeon, Forbes in the spring of 1836 abandoned the idea of taking a medical degree, resolving to devote himself to science and literature. The winter of 1836-1837 found him at Paris, where he attended the lectures at the Jardin des Plantes on natural history, comparative anatomy, geology and mineralogy. Leaving Paris in April 1837, he went to Algiers, and there obtained materials for a paper on land and freshwater Mollusca, published in the Annals of Natural History, vol. ii. p. 250. In the autumn of the same year he registered at Edinburgh as a student of literature; and in 1838 appeared his first volume, Malacologia Monensis, a synopsis of the species of Manx Mollusca. During the summer of 1838 he visited Styria and Carniola, and made extensive botanical collections. In the following autumn he read before the British Association at Newcastle a paper on the distribution of terrestrial Pulmonifera in Europe, and was commissioned to prepare a similar report with reference to the British Isles. In 1841 was published his History of British Star-fishes, embodying extensive observations and containing 120 illustrations, inclusive of humorous tail-pieces, all designed by the author. On the 17th of April of the same year Forbes, accompanied by his friend William Thompson, joined at Malta H.M. surveying ship “Beacon,” to which he had been appointed naturalist by her commander Captain Graves. From that date until October 1842 he was employed in investigating the botany, zoology and geology of the Mediterranean region. The results of these researches were made known in his “Report on the Mollusca and Radiata of the Aegean Sea, presented to the British Association in 1843,” and in Travels in Lycia, published in conjunction with Lieut. (afterwards Admiral) T.A.B. Spratt in 1847. In the former treatise he discussed the influence of climate and of the nature and depth of the sea bottom upon marine life, and divided the Aegean into eight biological zones; his conclusions with respect to bathymetrical distribution, however, have naturally been modified to a considerable extent by the more recent explorations of the deep seas.

Towards the end of the year 1842 Forbes, whom family misfortunes had now thrown upon his own resources, sought and obtained the curatorship of the museum of the Geological Society of London. To the duties of that post he added in 1843 those of the professorship of botany at King’s College. In November 1844 he resigned the curatorship of the Geological Society, and became palaeontologist to the Geological Survey of Great Britain. Two years later he published in the Memoirs of the Geological Survey, i. 336, his important essay “On the Connexion between the distribution of the existing Fauna and Flora of the British Isles, and the Geological Changes which have affected their Area, especially during the epoch of the Northern Drift.” It is therein pointed out that, in accordance with the theory of their origin from various specific centres, the plants of Great Britain may be divided into five well-marked groups: the W. and S.W. Irish, represented in the N. of Spain, the S.E. Irish and S.W. English, related to the flora of the Channel Isles and the neighbouring part of France; the S.E. English, characterized by species occurring on the opposite French coast; a group peculiar to mountain summits, Scandinavian in type; and, lastly, a general or Germanic flora. From a variety of arguments the conclusion is drawn that the greater part of the terrestrial animals and flowering plants of the British Islands migrated thitherward, over continuous land, at three distinct periods, before, during and after the glacial epoch. On this subject Forbes’s brilliant generalizations are now regarded as only partially true (see C. Reid’s Origin of the British Flora, 1899). In the autumn of 1848 Forbes married the daughter of General Sir C. Ashworth; and in the same year was published his Monograph of the British Naked-eyed Medusae (Ray Society). The year 1851 witnessed the removal of the collections of the Geological Survey from Craig’s Court to the museum in Jermyn Street, and the appointment of Forbes as professor of natural history to the Royal School of Mines just established in conjunction therewith. In 1852 was published the fourth and concluding volume of Forbes and S. Hanley’s History of British Mollusca; also his Monograph of the Echinodermata of the British Tertiaries (Palaeontographical Soc.).

In 1853 Forbes held the presidency of the Geological Society of London, and in the following year he obtained the fulfilment of a long-cherished wish in his appointment to the professorship of natural history in the university of Edinburgh, vacant by the death of R. Jameson, his former teacher. Since his return from the East in 1842, the determination and arrangement of fossils, frequent lectures, and incessant literary work, including the preparation of his palaeontological memoirs, had precluded Forbes from giving that attention to the natural history pursuits of his earlier life which he had earnestly desired. It seemed that at length he was to find leisure to reduce to order his stores of biological information. He lectured at Edinburgh, in the summer session of 1854, and in September of that year he occupied the post of president of the geological section at the Liverpool meeting of the British Association. But he was taken ill just after he had commenced his winter’s course of lectures in Edinburgh, and after not many days’ illness he died at Wardie, near Edinburgh, on the 18th of November 1854.

See Literary Gazette (November 25, 1854); Edinburgh New Philosophical Journal (New Ser.), (1855); Quart. Journ. Geol. Soc. (May 1855); G. Wilson and A. Geikie, Memoir of Edward Forbes (1861), in which, pp. 575-583, is given a list of Forbes’s writings. See also Literary Papers, edited by Lovell Reeve (1855). The following works were issued posthumously: “On the Tertiary Fluviomarine Formation of the Isle of Wight” (Geol. Survey), edited by R.A.C. Godwin-Austen (1856); “The Natural History of the European Seas,” edited and continued by R.A.C. Godwin-Austen (1859).


FORBES, JAMES DAVID (1809-1868), Scottish physicist, was the fourth son of Sir William Forbes, 7th baronet of Pitsligo, and was born at Edinburgh on the 20th of April 1809. He entered the university of Edinburgh in 1825, and soon afterwards began to contribute papers to the Edinburgh Philosophical Journal anonymously under the signature “Δ.” At the age of nineteen he became a fellow of the Royal Society of Edinburgh, and in 1832 he was elected to the Royal Society of London. A year later he was appointed professor of natural philosophy in Edinburgh University, in succession to Sir John Leslie and in competition with Sir David Brewster, and during his tenure of that office, which he did not give up till 1860, he not only proved himself an active and efficient teacher, but also did much to improve the internal conditions of the university. In 1859 he was appointed successor to Brewster in the principalship of the United College of St Andrews, a position which he held until his death at Clifton on the 31st of December 1868.

As a scientific investigator he is best known for his researches on heat and on glaciers. Between 1836 and 1844 he published in the Trans. Roy. Soc. Ed. four series of “Researches on Heat,” in the course of which he described the polarization of heat by tourmaline, by transmission through a bundle of thin mica plates inclined to the transmitted ray, and by reflection from the multiplied surfaces of a pile of mica plates placed at the polarizing angle, and also its circular polarization by two internal 639 reflections in rhombs of rock-salt. His work won him the Rumford medal of the Royal Society in 1838, and in 1843 he received its Royal medal for a paper on the “Transparency of the Atmosphere and the Laws of Extinction of the Sun’s Rays passing through it.” In 1846 he began experiments on the temperature of the earth at different depths and in different soils near Edinburgh, which yielded determinations of the thermal conductivity of trap-tufa, sandstone and pure loose sand. Towards the end of his life he was occupied with experimental inquiries into the laws of the conduction of heat in bars, and his last piece of work was to show that the thermal conductivity of iron diminishes with increase of temperature. His attention was directed to the question of the flow of glaciers in 1840 when he met Louis Agassiz at the Glasgow meeting of the British Association, and in subsequent years he made several visits to Switzerland and also to Norway for the purpose of obtaining accurate data. His observations led him to the view that a glacier is an imperfect fluid or a viscous body which is urged down slopes of a certain inclination by the mutual pressure of its parts, and involved him in some controversy with Tyndall and others both as to priority and to scientific principle. Forbes was also interested in geology, and published memoirs on the thermal springs of the Pyrenees, on the extinct volcanoes of the Vivarais (Ardêche), on the geology of the Cuchullin and Eildon hills, &c. In addition to about 150 scientific papers, he wrote Travels through the Alps of Savoy and Other Parts of the Pennine Chain, with Observations on the Phenomena of Glaciers (1843); Norway and its Glaciers (1853); Occasional Papers on the Theory of Glaciers (1859); A Tour of Mont Blanc and Monte Rosa (1855). He was also the author (1852) of the “Dissertation on the Progress of Mathematical and Physical Science,” published in the 8th edition of the Encyclopaedia Britannica.

See Forbes’s Life and Letters, by Principal Shairp, Professor P.G. Tait and A. Adams-Reilly (1873); Professor Forbes and his Biographers, by J. Tyndall (1873).


FORBES, SIR JOHN (1787-1861), British physician, was born at Cuttlebrae, Banffshire, in 1787. He attended the grammar school at Aberdeen, and afterwards entered Marischal College. After serving for nine years as a surgeon in the navy, he graduated M.D. at Edinburgh in 1817, and then began to practise in Penzance, whence he removed to Chichester in 1822. He took up his residence in London in 1840, and in the following year was appointed physician to the royal household. He was knighted in 1853, and died on the 13th of November 1861 at Whitchurch in Berkshire. Sir John Forbes was better known as an author and editor than as a practical physician. His works include the following:—Original Cases ... illustrating the Use of the Stethoscope and Percussion in the Diagnosis of Diseases of the Chest (1824); Illustrations of Modern Mesmerism (1845); A Physician’s Holiday (1st ed., 1849); Memorandums made in Ireland in the Autumn of 1852 (2 vols., 1853); Sightseeing in Germany and the Tyrol in the Autumn of 1855 (1856). He was joint editor with A. Tweedie and J. Conolly of The Cyclopaedia of Practical Medicine (4 vols., 1833-1835); and in 1836 he founded the British and Foreign Medical Review, which, after a period of prosperity, involved its editor in pecuniary loss, and was discontinued in 1847, partly in consequence of the advocacy in its later numbers of doctrines obnoxious to the profession.


FORBES, a municipal town of Ashburnham county, New South Wales, Australia, 289 m. W. by N. from Sydney, on the Lachlan river, and with a station on the Great Western railway. Pop. (1901) 4313. Its importance as a commercial centre is due to its advantageous position between the northern and southern markets. It has steam-sawing and flour-mills, breweries and wool-scouring establishments; while the surrounding country produces good quantities of cereals, lucerne, wine and fruit.


FORBES-ROBERTSON, JOHNSTON (1853-  ), English actor, was the son of John Forbes-Robertson of Aberdeen, an art critic. He was educated at Charterhouse, and studied at the Royal Academy schools with a view to becoming a painter. But though he kept up his interest in that art, in 1874 he turned to the theatre, making his first appearance in London as Chastelard, in Mary, Queen of Scots. He studied under Samuel Phelps, from whom he learnt the traditions of the tragic stage. He played with the Bancrofts and with John Hare, supported Miss Mary Anderson in both England and America, and also acted at different times with Sir Henry Irving. His refined and artistic style, and beautiful voice and elocution made him a marked man on the English stage, and in Pinero’s The Profligate at the Garrick theatre (1889), under Hare’s management, he established his position as one of the most individual of London actors. In 1895 he started under his own management at the Lyceum with Mrs Patrick Campbell, producing Romeo and Juliet, Hamlet, Macbeth and also some modern plays; his impersonation as Hamlet was especially fine, and his capacity as a romantic actor was shown to great advantage also in John Davidson’s For the Crown and in Maeterlinck’s Pelléas and Mélisande. In 1900 he married the actress Gertrude Elliott, with whom, as his leading lady, he appeared at various theatres, producing in subsequent years The Light that Failed, Madeleine Lucette Riley’s Mice and Men, and G. Bernard Shaw’s Caesar and Cleopatra, Jerome K. Jerome’s Passing of the Third Floor Back, &c. His brothers, Ian Robertson (b. 1858) and Norman Forbes (b. 1859), had also been well-known actors from about 1878 onwards.


FORBIN, CLAUDE DE (1656-1733), French naval commander, was born in Provence, of a family of high standing, in 1656. High-spirited and ungovernable in his boyhood, he ran away from his home, and through the influence of an uncle entered the navy, serving his first campaign in 1675. For a short time he quitted the navy and entered the army, but soon returned to his first choice. He made under D’Estrées the American campaign, and under Duquesne that of Algiers in 1683, on all occasions distinguishing himself by his impetuous courage. The most remarkable episode of his life was his mission to Siam. During the administration of the Greek adventurer Phaulcon in that country, the project was formed of introducing the Christian religion and European civilization, and the king sent an embassy to Louis XIV. In response a French embassy was sent out, Forbin accompanying the chevalier de Chaumont with the rank of major. When Chaumont returned to France, Forbin was induced to remain in the service of the Siamese king, and accepted, though with much reluctance, the posts of grand admiral, general of all the king’s armies and governor of Bangkok. His position, however, was soon made untenable by the jealousy and intrigues of the minister Phaulcon; and at the end of two years he left Siam, reaching France in 1688. He was afterwards fully engaged in active service, first with Jean Bart in the war with England, when they were both captured and taken to Plymouth. They succeeded in making their escape and were soon serving their country again. Forbin was wounded at the battle of La Hogue, and greatly distinguished himself at the battle of Lagos. He served under D’Estrées at the taking of Barcelona, was sent ambassador to Algiers, and in 1702 took a brilliant part in the Mediterranean in the War of the Spanish Succession. In 1706 he took command of a squadron at Dunkirk, and captured many valuable prizes from the Dutch and the English. In 1708 he was entrusted with the command of the squadron which was to convey the Pretender to Scotland; but so effectually were the coasts guarded by Byng that the expedition failed, and returned to Dunkirk. Forbin was now beginning to be weighed down with the infirmities of age and the toils of service, and in 1710 he retired to a country house near Marseilles. There he spent part of his time in writing his memoirs, published in 1730, which are full of interest and are written in a graphic and attractive style. Forbin died on the 4th of March 1733.


FORCELLINI, EGIDIO (1688-1768), Italian philologist, was born at Fener in the district of Treviso and belonged to a very poor family. He went to the seminary at Padua in 1704, studied under Facciolati, and in due course attained to the priesthood. From 1724 to 1731 he held the office of rector of the seminary at Ceneda, and from 1731 to 1765 that of father confessor in the seminary of Padua. The remaining years of his life were 640 mainly spent in his native village. He died at Padua in 1768 before the completion of the great work on which he had long co-operated with Facciolati. This was the vast Latin Lexicon (see Facciolati), which has formed the basis of all similar works that have since been published. He was engaged with his Herculean task for nearly 35 years, and the transcription of the manuscript by Luigi Violato occupied eight years more.


FORCHHAMMER, JOHANN GEORG (1794-1865), Danish mineralogist and geologist, was born at Husum, Schleswig, on the 24th of July 1794, and died at Copenhagen on the 14th of December 1865. After studying at Kiel and Copenhagen from 1815 to 1818, he joined Oersted and Lauritz Esmarch in their mineralogical exploration of Bornholm, and took a considerable share in the labours of the expedition. In 1820 he obtained his doctor’s degree by a chemical treatise De mangano, and immediately after set out on a journey through England, Scotland and the Faeroe Islands. In 1823 he was appointed lecturer at Copenhagen University on chemistry and mineralogy; in 1829 he obtained a similar post in the newly established polytechnic school; and in 1831 he was appointed professor of mineralogy in the university, and in 1848 became curator of the geological museum. From 1835 to 1837 he made many contributions to the geological survey of Denmark. On the death of H.C. Oersted in 1851, he succeeded him as director of the polytechnic school and secretary of the Academy of Sciences. In 1850 he began with J. Steenstrup and Worsaae various anthropological publications which gained a high reputation. As a public instructor Forchhammer held a high place and contributed potently to the progress of his favourite studies in his native country. He interested himself in such practical questions as the introduction of gas into Copenhagen, the establishment of the fire-brigade at Rosenberg and the boring of artesian wells.

Among his more important works are—Loerebog i de enkelte Radicalers Chemi (1842); Danmarks geognostiske Forhold (1835); Om de Bornholmske Kulformationer (1836); Dit myere Kridt i Danmark (1847); Bidrag til Skildringen af Danmarks geographiske Forhold (1858). A list of his contributions to scientific periodicals, Danish, English and German, will be found in the Catalogue of Scientific Papers published by the Royal Society of London. One of the most interesting and most recent is “On the Constitution of Sea Water at Different Depths and in Different Latitudes,” in the Proceedings of the Roy. Soc. xii. (1862-1863).


FORCHHAMMER, PETER WILHELM (1801-1894), German classical archaeologist, was born at Husum in Schleswig on the 23rd of October 1801. He was educated at the Lübeck gymnasium and the university of Kiel, with which he was connected for nearly 65 years. In 1830-1834 and 1838-1840 he travelled in Italy, Greece, Asia Minor and Egypt. In 1843 he was appointed professor of philology at Kiel and director of the archaeological museum founded by himself in co-operation with Otto Jahn. He died on the 8th of January 1894. Forchhammer was a democrat in the best sense of the word, and from 1871 to 1873 represented the progressive party of Schleswig-Holstein in the German Reichstag. His published works deal chiefly with topography and ancient mythology. His travels had convinced him that a full and comprehensive knowledge of classical antiquity could only be acquired by a thorough acquaintance with Greek and Roman monuments and works of art, and a detailed examination of the topographical and climatic conditions of the chief localities of the ancient world. These principles are illustrated in his Hellenika. Griechenland. Im Neuen das Alte (1837), which contains his theory of the origin and explanation of the Greek myths, which he never abandoned, in spite of the attacks to which it was subjected. According to him, the myths arose from definite local (especially atmospheric and aquatic) phenomena, and represented the annually recurring processes of nature as the acts of gods and heroes; thus, in Achill (1853), the Trojan War is the winter conflict of the elements in that district. Other similar short treatises are: Die Gründung Roms (1868); Daduchos (1875), on the language of the myths and mythical buildings; Die Wanderungen der Inachostochter Io (1880); Prolegomena zur Mythologie als Wissenschaft und Lexikon der Mythensprache (1891). Amongst his topographical works mention may be made of: Topographie von Athen (1841); Beschreibung der Ebene von Troja (1850), a commentary on a map of the locality executed by T.A. Spratt (see Journal of the Royal Geographical Society, xii., 1842); Topographia Thebarum Heptapylarum (1854); Erklärung der Ilias (1884), on the basis of the topographical and physical peculiarities of the plain of Troy. His Demokratenbüchlein (1849), in the main a discussion of the Aristotelian theory of the state, and Die Athener und Sokrates (1837), in which, contrary to the almost universal opinion, he upheld the procedure of the Athenians as perfectly legal and their verdict as a perfectly just one, also deserve notice.

For a full list of his works see the obituary notice by E. Alberti in C. Bursian’s Biographisches Jahrbuch für Altertumskunde, xx. (1897); also J. Sass in Allgemeine deutsche Biographie, and A. Hoeck and L.C. Pertsch, P.W. Forchhammer (1898).


FORCHHEIM, a town of Germany, in the kingdom of Bavaria, near the confluence of the Wiesent and the Regnitz, 16 m. S.S.E. of Bamberg. Pop. (1905) 8417. It has four Roman Catholic churches, including the Gothic Collegiate church and a Protestant church. Among the other public buildings are the progymnasium and an orphanage. The industries of the town include spinning and weaving, bleaching and dyeing, bone and glue works, brewing and paper-making. The spacious château occupies the site of the Carolingian palace which was destroyed in 1246.

Forchheim is of very early origin, having been the residence of the Carolingian sovereigns, including Charlemagne, in the 9th century. Consequently many diets were held here, and here also Conrad I. and Louis the Child were chosen German kings. The town was given by the emperor Henry II. in 1007 to the bishopric of Bamberg, and, except for a short period during the 11th century, it remained in the possession of the bishops until 1802, when it was ceded to Bavaria. In August 1796 a battle took place near Forchheim between the French and the Austrians. The fortifications of the town were dismantled in 1838.

See Hübsch, Chronik der Stadt Forchheim (Nüremberg, 1867).


FORD, EDWARD ONSLOW (1852-1901), English sculptor, was born in London. He received some education as a painter in Antwerp and as a sculptor in Munich under Professor Wagmüller, but was mainly self-taught. His first contribution to the Royal Academy, in 1875, was a bust of his wife, and in portraiture he may be said to have achieved his greatest success. His busts are always extremely refined and show his sitters at their best. Those (in bronze) of his fellow-artists Arthur Hacker (1894), Briton Riviere and Sir W.Q. Orchardson (1895), Sir L. Alma Tadema (1896), Sir Hubert von Herkomer and Sir John Millais (1897), and of A.J. Balfour are all striking likenesses, and are equalled by that in marble of Sir Frederick Bramwell (for the Royal Institution) and by many more. He gained the open competition for the statue of Sir Rowland Hill, erected in 1882 outside the Royal Exchange, and followed it in 1883 with “Henry Irving as Hamlet,” now in the Guildhall art gallery. This seated statue, good as it is, was soon surpassed by those of Dr Dale (1898, in the city museum, Birmingham) and Professor Huxley (1900), but the colossal memorial statue of Queen Victoria (1901), for Manchester, was less successful. The standing statue of W.E. Gladstone (1894, for the City Liberal Club, London) is to be regarded as one of Ford’s better portrait works. The colossal “General Charles Gordon,” camel-mounted, for Chatham, “Lord Strathnairn,” an equestrian group for Knightsbridge, and the “Maharajah of Mysore” (1900) comprise his larger works of the kind. A beautiful nude recumbent statue of Shelley (1892) upon a cleverly-designed base, which is not quite impeccable from the point of view of artistic taste, is at University College, Oxford, and a simplified version was presented by him to be set up on the shore of Viareggio, where the poet’s body was washed up. Ford’s ideal work has great charm and daintiness; his statue “Folly” (1886) was bought by the trustees of the Chantrey Fund, and was followed by other statues or statuettes of a similar order: “Peace” (1890), which secured his election as an associate of the Royal Academy, “Echo” (1895), on which he was elected full member, “The 641 Egyptian Singer” (1889), “Applause” (1893), “Glory to the Dead” (1901) and “Snowdrift” (1902). Ford’s influence on the younger generation of sculptors was considerable and of good effect. His charming disposition rendered him extremely popular, and when he died a monument was erected to his memory (C. Lucchesi, sculptor, J.W. Simpson, architect) in St John’s Wood, near to where he dwelt.

See Sculpture; also M.H. Spielmann, British Sculpture and Sculptors of To-day (London, 1901).


FORD, JOHN (1586-c. 1640), English dramatist, was baptized on the 17th of April 1586 at Ilsington in north Devon. He came of a good family; his father was in the commission of the peace and his mother was a sister of Sir John Popham, successively attorney-general and lord chief justice. The name of John Ford appears in the university register of Oxford as matriculating at Exeter College in 1601. Like a cousin and namesake (to whom, with other members of the society of Gray’s Inn, he dedicated his play of The Lover’s Melancholy), the future dramatist entered the profession of the law, being admitted of the Middle Temple in 1602; but he seems never to have been called to the bar. Four years afterwards he made his first appearance as an author with an elegy called Fame’s Memorial, or the Earl of Devonshire deceased, and dedicated to the widow of the earl (Charles Blount, Lord Mountjoy, “coronized,” to use Ford’s expression, by King James in 1603 for his services in Ireland)—a lady who would have been no unfitting heroine for one of his own tragedies of lawless passion, the famous Penelope, formerly Lady Rich. This panegyric, which is accompanied by a series of epitaphs and is composed in a strain of fearless extravagance, was, as the author declares, written “unfee’d”; it shows that Ford sympathized, as Shakespeare himself is supposed to have done, with the “awkward fate” of the countess’s brother, the earl of Essex. Who the “flint-hearted Lycia” may be, to whom the poet seems to allude as his own disdainful mistress, is unknown; indeed, the record of Ford’s private life is little better than a blank. To judge, however, from the dedications, prologues and epilogues of his various plays, he seems to have enjoyed the patronage of the earl, afterwards duke, of Newcastle, “himself a muse” after a fashion, and Lord Craven, the supposed husband of the ex-queen of Bohemia. Ford’s tract of Honor Triumphant, or the Peeres Challenge (printed 1606 and reprinted by the Shakespeare Society with the Line of Life, in 1843), and the simultaneously published verses The Monarches Meeting, or the King of Denmarkes Welcome into England, exhibit him as occasionally meeting the festive demands of court and nobility; and a kind of moral essay by him, entitled A Line of Life (printed 1620), which contains references to Raleigh, ends with a climax of fulsome praise to the address of King James I. Yet at least one of Ford’s plays (The Broken Heart, iii. 4) contains an implied protest against the absolute system of government generally accepted by the dramatists of the early Stuart reigns. Of his relations with his brother-authors little is known; it was natural that he should exchange complimentary verses with James Shirley, and that he should join in the chorus of laments over the death of Ben Jonson. It is more interesting to notice an epigram in honour of Ford by Richard Crashaw, morbidly passionate in one direction as Ford was in another. The lines run:

“Thou cheat’st us, Ford; mak’st one seem two by art:

What is Love’s Sacrifice but the Broken Heart?”

It has been concluded that in the latter part of his life he gratified the tendency to seclusion for which he was ridiculed in The Time Poets (Choice Drollery, 1656) by withdrawing from business and from literary life in London, to his native place; but nothing is known as to the date of his death. His career as a dramatist very probably began by collaboration with other authors. With Thomas Dekker he wrote The Fairy Knight and The Bristowe Merchant (licensed in 1624, but both unpublished), with John Webster A late Murther of the Sonne upon the Mother (licensed in 1624). A play entitled An ill Beginning has a good End, brought on the stage as early as 1613 and attributed to Ford, was (if his) his earliest acted play; whether Sir Thomas Overbury’s Life and untimely Death (1615) was a play is extremely doubtful; some lines of indignant regret by Ford on the same subject are still preserved. He is also said to have written, at dates unknown, The London Merchant (which, however, was an earlier name for Beaumont and Fletcher’s Knight of the Burning Pestle) and The Royal Combat; a tragedy by him, Beauty in a Trance, was entered in the Stationers’ Register in 1653, but never printed. These three (or four) plays were among those destroyed by Warburton’s cook. The Queen, or the Excellency of the Sea, a play of inverted passion, containing some fine sensuous lines, printed in 1653 by Alexander Singhe for private performance, has been recently edited by W. Bang (Materialien zur Kunde d. älteren engl. Dramas, 13, Louvain, 1906), and is by him on internal evidence confidently claimed as Ford’s. Of the plays by Ford preserved to us the dates span little more than a decade—the earliest, The Lover’s Melancholy, having been acted in 1628 and printed in 1629, the latest, The Lady’s Trial, acted in 1638 and printed in 1639.

When writing The Lover’s Melancholy, it would seem that Ford had not yet become fully aware of the bent of his own dramatic genius, although he was already master of his powers of poetic expression. He was attracted towards domestic tragedy by an irresistible desire to sound the depths of abnormal conflicts between passion and circumstances, to romantic comedy by a strong though not widely varied imaginative faculty, and by a delusion that he was possessed of abundant comic humour. In his next two works, undoubtedly those most characteristically expressive of his peculiar strength, ’Tis Pity she’s a Whore (acted c. 1626) and The Broken Heart (acted c. 1629), both printed in 1633 with the anagram of his name Fide Honor, he had found horrible situations which required dramatic explanation by intensely powerful motives. Ford by no means stood alone among English dramatists in his love of abnormal subjects; but few were so capable of treating them sympathetically, and yet without that reckless grossness or extravagance of expression which renders the morally repulsive aesthetically intolerable, or converts the horrible into the grotesque. For in Ford’s genius there was real refinement, except when the “supra-sensually sensual” impulse or the humbler self-delusion referred to came into play. In a third tragedy, Love’s Sacrifice (acted c. 1630; printed in 1633), he again worked on similar materials; but this time he unfortunately essayed to base the interest of his plot upon an unendurably unnatural possibility—doing homage to virtue after a fashion which is in itself an insult. In Perkin Warbeck (printed 1634; probably acted a year later) he chose an historical subject of great dramatic promise and psychological interest, and sought to emulate the glory of the great series of Shakespeare’s national histories. The effort is one of the most laudable, as it was by no means one of the least successful, in the dramatic literature of this period. The Fancies Chaste and Noble (acted before 1636, printed 1638), though it includes scenes of real force and feeling, is dramatically a failure, of which the main idea is almost provokingly slight and feeble; and The Lady’s Trial (acted 1638, printed 1639) is only redeemed from utter wearisomeness by an unusually even pleasingness of form. There remain two other dramatic works, of very different kinds, in which Ford co-operated with other writers, the mask of The Sun’s Darling (acted 1624, printed 1657), hardly to be placed in the first rank of early compositions, and The Witch of Edmonton (printed 1658, but probably acted about 1621), in which we see Ford as a joint writer with Dekker and Rowley of one of the most powerful domestic dramas of the English or any other stage.

A few notes may be added on some of the more remarkable of the plays enumerated. A wholly baseless anecdote, condensed into a stinging epigram by Endymion Porter, asserted that The Lover’s Melancholy was stolen by Ford from Shakespeare’s papers. Undoubtedly, the madness of the hero of this play of Ford’s occasionally recalls Hamlet, while the heroine is one of the many, and at the same time one of the most pleasing, parallels to Viola. But neither of them is a copy, as Friar Bonaventura in Ford’s second play may be said to be a copy of Friar Lawrence, whose kindly pliability he disagreeably exaggerates, or as D’Avolos in Love’s Sacrifice is clearly modelled on Iago. The plot of The Lover’s Melancholy, which is ineffective because it leaves no room for suspense in the mind of 642 the reader, seems original; in the dialogue, on the other hand, a justly famous passage in Act i. (the beautiful version of the story of the nightingale’s death) is translated from Strada; while the scheme of the tedious interlude exhibiting the various forms of madness is avowedly taken, together with sundry comments, from Burton’s Anatomy of Melancholy. Already in this play Ford exhibits the singular force of his pathos; the despondent misery of the aged Meleander, and the sweetness of the last scene, in which his daughter comes back to him, alike go to the heart. A situation—hazardous in spite of its comic substratum—between Thaumasta and the pretended Parthenophil is conducted, as Gifford points out, with real delicacy; but the comic scenes are merely stagy, notwithstanding, or by reason of, the effort expended on them by the author.

’Tis Pity she’s a Whore has been justly recognized as a tragedy of extraordinary power. Mr Swinburne, in his eloquent essay on Ford, has rightly shown what is the meaning of this tragedy, and has at the same time indicated wherein consists its poison. He dwells with great force upon the different treatment applied by Ford to the characters of the two miserable lovers—brother and sister. “The sin once committed, there is no more wavering or flinching possible to him, who has fought so hard against the demoniac possession; while she who resigned body and soul to the tempter, almost at a word, remains liable to the influences of religion and remorse.” This different treatment shows the feeling of the poet—the feeling for which he seeks to evoke our inmost sympathy—to oscillate between the belief that an awful crime brings with it its awful punishment (and it is sickening to observe how the argument by which the Friar persuades Annabella to forsake her evil courses mainly appeals to the physical terrors of retribution), and the notion that there is something fatal, something irresistible, and therefore in a sense self-justified, in so dominant a passion. The key-note to the conduct of Giovanni lies in his words at the close of the first scene—

“All this I’ll do, to free me from the rod

Of vengeance; else I’ll swear my fate’s my god.”

Thus there is no solution of the conflict between passion on the one side, and law, duty and religion on the other; and passion triumphs, in the dying words of “the student struck blind and mad by passion”—

“O, I bleed fast!

Death, thou’rt a guest long look’d for; I embrace

Thee and thy wounds: O, my last minute comes!

Where’er I go, let me enjoy this grace

Freely to view my Annabella’s face.”

It has been observed by J.A. Symonds that “English poets have given us the right key to the Italian temperament.... The love of Giovanni and Annabella is rightly depicted as more imaginative than sensual.” It is difficult to allow the appositeness of this special illustration; on the other hand, Ford has even in this case shown his art of depicting sensual passion without grossness of expression; for the exception in Annabella’s language to Soranzo seems to have a special intention, and is true to the pressure of the situation and the revulsion produced by it in a naturally weak and yielding mind. The entire atmosphere, so to speak, of the play is stifling, and is not rendered less so by the underplot with Hippolita.

’Tis Pity she’s a Whore was translated into French by Maurice Maeterlinck under the title of Annabella, and represented at the Théâtre de l’Œuvre in 1894. The translator prefixes to the version an eloquent appreciation of Ford’s genius, especially in his portraits of women, whose fate it is to live “dans les ténèbres, les craintes et les larmes.”

Like this tragedy, The Broken Heart was probably founded upon some Italian or other novel of the day; but since in the latter instance there is nothing revolting in the main idea of the subject, the play commends itself as the most enjoyable, while, in respect of many excellences, an unsurpassed specimen of Ford’s dramatic genius. The complicated plot is constructed with greater skill than is usual with this dramatist, and the pathos of particular situations, and of the entire character of Penthea—a woman doomed to hopeless misery, but capable of seeking to obtain for her brother a happiness which his cruelty has condemned her to forego—has an intensity and a depth which are all Ford’s own. Even the lesser characters are more pleasing than usual, and some beautiful lyrics are interspersed in the play.

Of the other plays written by Ford alone, only The Chronicle Historie of Perkin Warbeck. A Strange Truth, appears to call for special attention. A repeated perusal of this drama suggests the judgment that it is overpraised when ranked at no great distance from Shakespeare’s national dramas. Historical truth need not be taken into consideration in the matter; and if, notwithstanding James Gairdner’s essay appended to his Life and Reign of Richard III., there are still credulous persons left to think and assert that Perkin was not an impostor, they will derive little satisfaction from Ford’s play, which with really surprising skill avoids the slightest indication as to the poet’s own belief on the subject. That this tragedy should have been reprinted in 1714 and acted in 1745 only shows that the public, as is often the case, had an eye to the catastrophe rather than to the development of the action. The dramatic capabilities of the subject are, however, great, and it afterwards attracted Schiller, who, however, seems to have abandoned it in favour of the similar theme of the Russian Demetrius. Had Shakespeare treated it, he would hardly have contented himself with investing the hero with the nobility given by Ford to this personage of his play,—for it is hardly possible to speak of a personage as a character when the clue to his conduct is intentionally withheld. Nor could Shakespeare have failed to bring out with greater variety and distinctness the dramatic features in Henry VII., whom Ford depicts with sufficient distinctness to give some degree of individuality to the figure, but still with a tenderness of touch which would have been much to the credit of the dramatist’s skill had he been writing in the Tudor age. The play is, however, founded on Bacon’s Life, of which the text is used by Ford with admirable discretion, and on Thomas Gainsford’s True and Wonderful History of Perkin Warbeck (1618). The minor characters of the honest old Huntley, whom the Scottish king obliges to bestow his daughter’s hand upon Warbeck, and of her lover the faithful “Dalyell,” are most effectively drawn; even “the men of judgment,” the adventurers who surround the chief adventurer, are spirited sketches, and the Irishman among them has actually some humour; while the style of the play is, as befits a “Chronicle History,” so clear and straightforward as to make it easy as well as interesting to read.

The Witch of Edmonton was attributed by its publisher to William Rowley, Dekker, Ford, “&c.,” but the body of the play has been generally held to be ascribable to Ford and Dekker only. The subject of the play was no doubt suggested by the case of the reported witch, Elizabeth Sawyer, who was executed in 1621. Swinburne agrees with Gifford in thinking Ford the author of the whole of the first act; and he is most assuredly right in considering that “there is no more admirable exposition of a play on the English stage.” Supposing Dekker to be chiefly responsible for the scenes dealing with the unfortunate old woman whom persecution as a witch actually drives to become one, and Ford for the domestic tragedy of the bigamist murderer, it cannot be denied that both divisions of the subject are effectively treated, while the more important part of the task fell to the share of Ford. Yet it may be doubted whether any such division can be safely assumed; and it may suffice to repeat that no domestic tragedy has ever taught with more effective simplicity and thrilling truthfulness the homely double lesson of the folly of selfishness and the mad rashness of crime.

With Dekker Ford also wrote the mask of The Sun’s Darling; or, as seems most probable, they founded this production upon Phaeton, an earlier mask, of which Dekker had been sole author. Gifford holds that Dekker’s hand is perpetually traceable in the first three acts of The Sun’s Darling, and through the whole of its comic part, but that the last two acts are mainly Ford’s. If so, he is the author of the rather forced occasional tribute on the accession of King Charles I., of which the last act largely consists. This mask, which furnished abundant opportunities for the decorators, musicians and dancers, in showing forth how the seasons and their delights are successively exhausted by a “wanton darling,” Raybright the grandchild of the Sun, is said to have been very popular. It is at the same time commonplace enough in conception; but there is much that is charming in the descriptions, Jonson and Lyly being respectively laid under contribution in the course of the dialogue, and in one of the incidental lyrics.

Ford owes his position among English dramatists to the intensity of his passion, in particular scenes and passages where the character, the author and the reader are alike lost in the situation and in the sentiment evoked by it; and this gift is a supreme dramatic gift. But his plays—with the exception of The Witch of Edmonton, in which he doubtless had a prominent share—too often disturb the mind like a bad dream which ends as an unsolved dissonance; and this defect is a supreme dramatic defect. It is not the rigid or the stolid who have the most reason to complain of the insufficiency of tragic poetry such as Ford’s; nor is it that morality only which, as Ithocles says in The Broken Heart, “is formed of books and school-traditions,” which has a right to protest against the final effect of the most powerful creations of his genius. There is a morality which both

“Keeps the soul in tune,

At whose sweet music all our actions dance,”

and is able to physic

“The sickness of a mind

Broken with griefs.”

Of that morality—or of that deference to the binding power within man and the ruling power above him—tragedy is the truest expounder, even when it illustrates by contrasts; but the tragic poet who merely places the problem before us, and bids us stand aghast with him at its cruelty, is not to be reckoned among the great masters of a divine art.

643

Bibliography.—The best edition of Ford is that by Gifford, with notes and introduction, revised with additions to both text and notes by Alexander Dyce (1869). An edition of the Dramatic Works of Massinger and Ford appeared in 1840, with an introduction by Hartley Coleridge. The Best Plays of Ford were edited for the “Mermaid Series” in 1888, with an introduction by W.H. Havelock Ellis, and reissued in 1903. A.C. Swinburne’s “Essay on Ford” is reprinted among his Essays and Studies (1875). Perkin Warbeck and ’Tis Pity were translated into German by F. Bodenstedt in 1860; and the latter again by F. Blei in 1904. The probable sources of the various plays are discussed in Emil Koeppel’s Quellenstudien zu den Dramen George Chapman’s, Philip Massinger’s und John Ford’s (1897).

(A. W. W.)

FORD, RICHARD (1796-1858), English author of one of the earliest and best of travellers’ Handbooks, was the eldest son of Sir Richard Ford, who in 1789 was member of parliament for East Grinstead, and for many years afterwards chief police magistrate of London. His mother was the daughter and heiress of Benjamin Booth, a distinguished connoisseur in art. He was called to the bar, but never practised, and in 1830-1833 he travelled in Spain, spending much of his time in the Alhambra and at Seville. His first literary work (other than contributions to the Quarterly Review) was a pamphlet, An Historical Inquiry into the Unchangeable Character of a War in Spain (Murray, 1837), in reply to one called the Policy of England towards Spain, issued under the patronage of Lord Palmerston. He spent the winter of 1839-1840 in Italy, where he added largely to his collection of majolica; and soon after his return he began, at John Murray’s invitation, to write his Handbook for Travellers in Spain, with which his name is chiefly associated. He died on the 1st of September 1858, leaving a fine private collection of pictures to his widow (d. 1910), his third wife, a daughter of Sir A. Molesworth.


FORD, THOMAS (b. c. 1580), English musician, of whose life little more is known than that he was attached to the court of Prince Henry, son of James I. His works also are few, but they are sufficient to show the high stage of efficiency and musical knowledge which the English school had attained at the beginning of the 17th century. They consist of canons and other concerted pieces of vocal music, mostly with lute accompaniment. The chief collection of his works is entitled Musike of Sundrie Kinds set forth in Two Books, &c. (1607), and the histories of music by Burney and Hawkins give specimens of his art. Together with Dowland, immortalized in one of Shakespeare’s sonnets, Ford is the chief representative of the school which preceded Henry Lawes.


FORDE, FRANCIS (d. 1770), British soldier, first appears in the army list as a captain in the 39th Foot in 1746. This regiment was the first of the king’s service to serve in India (hence its motto Primus in Indis), and Forde was on duty there when in 1755 he became major, at the same time as Eyre Coote, soon to become his rival, was promoted captain. At the express invitation of Clive, Forde resigned his king’s commission to take the post of second in command of the E.I. Company’s troops in Bengal. Soon after Plassey, Forde was sent against the French of Masulipatam. Though feebly supported by the motley rabble of an army which Anandraz, the local ally, brought into the field, Forde pushed ahead through difficult country and came upon the enemy entrenched at Condore. For four days the two armies faced one another; on the fifth both commanders resolved on the offensive and an encounter ensued. In spite of the want of spirit shown by Anandraz and his men, Forde in the end succeeded in winning the battle, which was from first to last a brilliant piece of work. Nor did he content himself with this; on the same evening he stormed the French camp, and his pursuit was checked only by the guns of Masulipatam itself. The place was quickly invested on the land side, but difficulties crowded upon Forde and his handful of men. For fifty days little advance was made; then Forde, seeing the last avenues of escape closing behind him, ordered an assault at midnight on the 25th of January 1759. The Company’s troops lost one-third of their number, but the storm was a brilliant and astounding success. Forde received less than no reward. The Company refused to confirm his lieut.-colonel’s commission, and he found himself junior to Eyre Coote, his old subaltern in the 39th Foot. Nevertheless he continued to assist Clive, and on the 25th of November 1759 won a success comparable to Condore at Chinsurah (or Biderra) against the Dutch. A year later he at last received his commission, but was still opposed by a faction of the directors which supported Coote. Clive himself warmly supported Forde in these quarrels. In 1769, with Vansittart and Scrafton, Colonel Forde was sent out with full powers to investigate every detail of Indian administration. Their ship was never heard of after leaving the Cape of Good Hope on the 27th of December.

Monographs on Condore, Masulipatam and Chinsurah will be found in Malleson’s Decisive Battles of India.


FORDHAM, formerly a village of Westchester county, New York, U.S.A., and now a part of New York City. It lies on the mainland, along the eastern bank of the Harlem river, E. of the northern end of Manhattan Island. It is the seat of Fordham University (Roman Catholic), founded in 1841 as St John’s College, and since 1846 conducted by the Society of Jesus. In 1907 the institution was rechartered as Fordham University, and now includes St John’s College high school and grammar school, St John’s College, the Fordham University medical school (all in Fordham), and the Fordham University law school (42 Broadway, New York City). In 1907-1908 the university had 96 instructors and (exclusive of 364 students in the high school) 236 students, of whom 105 were in St John’s College, 31 in the medical school, and 100 in the law school. In Fordham still stands the house in which Edgar Allan Poe lived from 1844 to 1849 and in which he wrote “Annabel Lee,” “Ulalume,” &c.

The hamlet of Fordham was established in 1669 by Jan Arcer (a Dutchman, who called himself “John Archer” after coming to America), who in that year received permission from Francis Lovelace, colonial governor of New York, to settle sixteen families on the mainland close by a fording-place of the Spuyten Duyvil Creek, near where that stream enters the Harlem river. Between 1655 and 1671 Archer bought from the Indians the tract of land lying between Spuyten Duyvil Creek and the Harlem river on the east and the Bronx river on the west, and extending from the hamlet of Fordham to what is now High Bridge. In 1671 Governor Lovelace erected this tract into the manor of Fordham. In 1846 it was included with Morrisania in the township of West Farms; and in 1872 with part of the township of Yonkers was erected into the township of Kingsbridge, which in 1874 was annexed to the city of New York, and in 1898 became a part of the borough of the Bronx, New York City.


FORDUN, JOHN OF (d. c. 1384), Scottish chronicler. The statement generally made that the chronicler was born at Fordoun (Kincardineshire) has not been supported by any direct evidence. It is certain that he was a secular priest, and that he composed his history in the latter part of the 14th century; and it is probable that he was a chaplain in the cathedral of Aberdeen. The work of Fordun is the earliest attempt to write a continuous history of Scotland. We are informed that Fordun’s patriotic zeal was roused by the removal or destruction of many national records by Edward III. and that he travelled in England and Ireland, collecting material for his history. This work is divided into five books. The first three are almost entirely fabulous, and form the groundwork on which Boece and Buchanan afterwards based their historical fictions, which were exposed by Thomas Innes in his Critical Essay (i. pp. 201-214). The 4th and 5th books, though still mixed with fable, contain much valuable information, and become more authentic the more nearly they approach the author’s own time. The 5th book concludes with the death of King David I. in 1153. Besides these five books, Fordun wrote part of another book, and collected materials for bringing down the history to a later period. These materials were used by a continuator who wrote in the middle of the 15th century, and who is identified with Walter Bower (q.v.), abbot of the monastery of Inchcolm. The additions of Bower form eleven books, and bring down the narrative to the death of King James I. in 1437. According 644 to the custom of the time, the continuator did not hesitate to interpolate Fordun’s portion of the work with additions of his own, and the whole history thus compiled is known as the Scotichronicon.

The first printed edition of Fordun’s work was that of Thomas Gale in his Scriptores quindecim (vol. iii.), which was published in 1691. This was followed by Thomas Hearne’s (5 vols.) edition in 1722. The whole work, including Bower’s continuation, was published by Walter Goodall at Edinburgh in 1759. In 1871 and 1872 Fordun’s chronicle, in the original Latin and in an English translation, was edited by William F. Skene in The Historians of Scotland. The preface to this edition collects all the biographical details and gives full bibliographical references to MSS. and editions.


FORECLOSURE, in the law of mortgage, the extinguishment by order of the court of a mortgagor’s equity of redemption. In the law of equity the object of every mortgage transaction is eventually the repayment of a debt, the mortgaged property being incidental by way of security. Therefore, although the day named for repayment of the loan has passed and the mortgagor’s estate is consequently forfeited, equity steps in to mitigate the harshness of the common law, and will decree a reconveyance of the mortgaged property on payment of the principal, interest and costs. This right of the mortgagor to relief is termed his “equity of redemption.” But the right must be exercised within a reasonable time, otherwise he will be foreclosed his equity of redemption and the mortgagee’s possession converted into an absolute ownership. Such foreclosure is enforced in equity by a foreclosure action. An action is brought by the mortgagee against the mortgagor in the chancery division of the High Court in England, claiming that an account may be taken of the principal and interest due to the mortgagee, and that the mortgagor may be directed to pay the same, with costs, by a day to be appointed by the court and that in default thereof he may be foreclosed his equity of redemption. English county courts have jurisdiction in foreclosure actions where the mortgage or charge does not exceed £500, or where the mortgage is for more than £500, but less than that sum has been actually advanced. In a Welsh mortgage there is no right to foreclosure. (See also Mortgage.)


FOREIGN OFFICE, that department of the executive of the United Kingdom which is concerned with foreign affairs. The head of the Foreign Office is termed principal secretary of state for foreign affairs and his office dates from 1782. Between that date and the Revolution there had been only two secretaries of state, whose duties were divided by a geographical division of the globe into northern and southern departments. The duties of the secretary of the northern department of Europe comprised dealings with the northern powers of Europe, while the secretary of the southern department of Europe communicated with France, Spain, Portugal, Switzerland, Italy, Turkey, and also looked after Irish and colonial business, and carried out the work of the Home Office. In 1782 the duties of these two secretaries were revised, the northern department becoming the Foreign Office. The secretary for foreign affairs is the official agent of the crown in all communications between Great Britain and foreign powers; his intercourse is carried on either through the representatives of foreign states in Great Britain or through representatives of Great Britain abroad. He negotiates all treaties or alliances with foreign states, protects British subjects residing abroad, and demands satisfaction for any injuries they may sustain at the hands of foreigners. He is assisted by two under-secretaries of state (one of them a politician, the other a permanent civil servant), three assistant under-secretaries (civil servants), a librarian, a head of the treaty department and a staff of clerks. The departments of the Foreign Office are the African, American, commercial and sanitary, consular, eastern (Europe), far eastern, western (Europe), parliamentary, financial, librarian and keeper of the papers, treaties and registry. In the case of important despatches and correspondence, these, with the drafts of answers, are sent first to the permanent under-secretary, then to the prime minister, then to the sovereign and, lastly, are circulated among the members of the cabinet. The salary of the secretary for foreign affairs is £5000 per annum, that of the permanent under-secretary £2000, the parliamentary under-secretary and the first assistant under-secretary, £1500, and the other assistant under-secretaries £1200.

See Anson, Law and Custom of the Constitution, part ii.


FORELAND, NORTH and SOUTH, two chalk headlands on the Kent coast of England, overlooking the Strait of Dover, the North Foreland forming the eastern projection of the Isle of Thanet, and the South standing 3 m. N.E. of Dover. Both present bold cliffs to the sea, and command beautiful views over the strait. On the North Foreland (51° 22½′ N., 1° 27′ E.) there is a lighthouse, and on the South Foreland (51° 8½′ N., 1° 23′ E.) there are two. There is also a Foreland on the north coast of Devonshire, 2½ m. N.E. of Lynmouth, a fine projection of the highlands of Exmoor Forest, overlooking the Bristol Channel, and forming the most northerly point of the county.


FORESHORE, that part of the seashore which lies between high- and low-water mark at ordinary tides. In the United Kingdom it is ordinarily and prima facie vested in the crown, except where it may be vested in a subject by ancient grant or charter from the crown, or by prescription. Although numerous decisions, dating from 1795, have confirmed the prima facie title of the crown, S.A. Moore in his History of the Foreshore contends that the presumption is in favour of the subject rather than of the crown. But a subject can establish a title by proving an express grant from the crown or giving sufficient evidence of user from which a grant may be presumed. The chief acts showing title to foreshore are, taking wreck or royal fish, right of fishing, mining, digging and taking sand, seaweed, &c., embanking and enclosing. There is a public right of user in that part of the foreshore which belongs to the crown, for the purpose of navigation or fishery, but there is no right of passage over lands adjacent to the shore, except by a particular custom. So that, in order to make the right available, there must be a highway or other public land giving access to the foreshore. Thus it has been held that the public have no legal right to trespass on land above high-water mark for the purpose of bathing in the sea, though if they can get to it they may bathe there (Blundell v. Catteral, 1821, 5 B. & Ad. 268). There is no right in the public to take sand, shells or seaweed from the shore, nor, except in certain places by local custom, have fishermen the right to use the foreshore or the soil above it for drawing up their boats, or for drying their nets or similar purposes.

See S.A. Moore, History of the Foreshore and the Law relating thereto (1888); Coulson and Forbes, Law of Waters (1902).


FORESTALLING, in English criminal law, the offence of buying merchandise, victual, &c., coming to market, or making any bargain for buying the same, before they shall be in the market ready to be sold, or making any motion for enhancing the price, or dissuading any person from coming to market or forbearing to bring any of the things to market, &c. See Engrossing.


FOREST LAWS, the general term for the old English restriction laws, dealing with forests. One of the most cherished prerogatives of the king of England, at the time when his power was at the highest, was that of converting any portion of the country into a forest in which he might enjoy the pleasures of the chase. The earliest struggles between the king and the people testify to the extent to which this prerogative became a public grievance, and the charter by which its exercise was bounded (Carta de Foresta) was in substance part of the greatest constitutional code imposed by his barons upon King John. At common law it appears to have been the right of the king to make a forest where he pleased, provided that certain legal formalities were observed. The king having a continual care for the preservation of the realm, and for the peace and quiet of his subjects, he had therefore amongst many privileges this prerogative, viz. to have his place of recreation wheresoever he would appoint.1 Land once afforested became subject to a peculiar system of laws, which, as well as the formalities required to constitute a valid afforestment, have been carefully ascertained by the Anglo-Norman lawyers. “A forest,” 645 says Manwood, “is a certain territory of woody grounds and fruitful pastures, privileged for wild beasts and fowls of forest, chase, and warren to rest, and abide there in the safe protection of the king, for his delight and pleasure; which territory of ground so privileged is mered and bounded with unremovable marks, meres and boundaries, either known by matter of record or by prescription; and also replenished with wild beasts of venery or chase, and with great coverts of vert, for the succour of the said beasts there to abide: for the preservation and continuance of which said place, together with the vert and venison there are particular officers, laws, and privileges belonging to the same, requisite for that purpose, and proper only to a forest and to no other place.”2 And the same author distinguishes a forest, as “the highest franchise of princely pleasure,” from the inferior franchises of chase, park and warren—named in the order of their importance. The forest embraces all these, and it is distinguished by having laws and courts of its own, according to which offenders are justiceable. An offender in a chase is to be punished by the common law; an offender in a forest by the forest law. A chase is much the same as a park, only the latter is enclosed, and all of them are distinguished according to the class of wild beasts to which the privilege extended. Thus beasts of forest (the “five wild beasts of venery”) were the hart, the hind, the hare, the boar and the wolf. The beasts of chase were also five, viz. the buck, the doe, the fox, the marten and the roe. The beasts and fowls of warren were the hare, the coney, the pheasant and the partridge.

The courts of the forest were three in number, viz. the court of attachments, swainmote and justice-seat. The court of attachments (called also the wood-mote) is held every forty days for the foresters to bring in their attachments concerning any hurt done to vert or venison (in viridi et venatione) in the forest, and for the verderers to receive and mark the same, but no conviction takes place. The swainmote, held three times in the year, is the court to which all the freeholders within the forest owe suit and service, and of which the verderers are the judges. In this court all offences against the forest laws may be tried, but no judgment or punishment follows. This is reserved for the justice-seat, held every third year, to which the rolls of offences presented at the court of attachment, and tried at the swainmote, are presented by verderers. The justice-seat is the court of the chief justice in eyre, who, says Coke, “is commonly a man of greater dignity than knowledge of the laws of the forests; and therefore where justice-seats are to be held some other persons whom the king shall appoint are associated with him, who together are to determine omnia placita forestae.” There were two chief justices for the forests intra and ultra Trentam respectively. The necessary officers of a forest are a steward, verderers, foresters, regarders, agisters and woodwards. The verderer was a judicial officer chosen in full county by the freeholders in the same manner as the coroner. His office was to view and receive the attachments of the foresters, and to mark them on his rolls. A forester was “an officer sworn to preserve the vert and venison in the forest, and to attend upon the wild beasts within his bailiwick.” The regarders were of the nature of visitors: their duty was to make a regard (visitatio nemorum) every third year, to inquire of all offences, and of the concealment of such offences by any officer of the forest. The business of the agister was to look after the pasturage of the forest, and to receive the payments for the same by persons entitled to pasture their cattle in the forests. Both the pasturage and the payment were called “agistment.” The woodward was the officer who had the care of the woods and vert and presented offences at the court of attachment.

The legal conception of a forest was thus that of a definite territory within which the code of the forest law prevailed to the exclusion of the common law. The ownership of the soil might be in any one, but the rights of the proprietor were limited by the laws made for the protection of the king’s wild beasts. These laws, enforced by fines often arbitrary and excessive, were a great grievance to the unfortunate owners of land within or in the neighbourhood of the forest. The offence of “purpresture” may be cited as an example. This was an encroachment on the forest rights, by building a house within the forest, and it made no difference whether the land belonged to the builder or not. In either case it was an offence punishable by fines at discretion. And if a man converted woodlands within the forest into arable land, he was guilty of the offence known as “assarting,” whether the covert belonged to himself or not.

The hardships of the forest laws under the Norman kings, and their extension to private estates by the process of afforestment, were among the grievances which united the barons and people against the king in the reign of John. The Great Charter of King John contains clauses relating to the forest laws, but no separate charter of the forest. The first charter of the forest is that of Henry III., issued in 1217. “As an important piece of legislation,” said Stubbs,3 “it must be compared with the forest assize of 1184, and with 44th, 47th and 48th clauses of the charter of John. It is observable that most of the abuses which are remedied by it are regarded as having sprung up since the accession of Henry II.; but the most offensive afforestations have been made under Richard and John. These latter are at once disafforested; but those of Henry II. only so far as they had been carried out to the injury of the landowners and outside of the royal demesne.” Land which had thus been once forest land and was afterwards disafforested was known as purlieu—derived by Manwood from the French pur and lieu, i.e. “a place exempt from the forest.” The forest laws still applied in a modified manner to the purlieu. The benefit of the disafforestment existed only for the owner of the lands; as to all other persons the land was forest still, and the king’s wild beasts were to “have free recourse therein and safe return to the forest, without any hurt or destruction other than by the owners of the lands in the purlieu where they shall be found, and that only to hunt and chase them back again towards the forest without any forestalling” (Manwood, On the Forest Laws—article “Purlieu”).

The revival of the forest laws was one of the means resorted to by Charles I. for raising a revenue independently of parliament, and the royal forests in Essex were so enlarged that they were hyperbolically said to include the whole county. The 4th earl of Southampton was nearly ruined by a decision that stripped him of his estate near the New Forest. The boundaries of Rockingham Forest were increased from 6 m. to 60, and enormous fines imposed on the trespassers,—Lord Salisbury being assessed in £20,000, Lord Westmoreland in £19,000, Sir Christopher Hatton in £12,000 (Hallam’s Constitutional History of England, c. viii.). By the statute 16 Charles I. c. 16 (1640) the royal forests were determined for ever according to their boundaries in the twentieth year of James, all subsequent enlargements being annulled.

The forest laws, since the Revolution, have fallen into complete disuse.


1 Coke, 4 Inst., 300.

2 Manwood’s Treatise of the Forest Laws (4th edition, 1717).

3 Documents Illustrative of English History, p. 338.


FORESTS AND FORESTRY. Although most people know what a forest (Lat. foris, “out of doors”) is, a definition of it which suits all cases is by no means easy to give. Manwood, in his treatise of the Lawes of the Forest (1598), defines a forest as “a certain territory of woody grounds, fruitful pastures, privileged for wild beasts and fowls of forest, chase and warren, to rest and abide in, in the safe protection of the king, for his princely delight and pleasure.” This primitive definition has, in modern times, when the economic aspect of forests came more into the foreground, given place to others, so that forest may, in a general way, now be described as “an area which is for the most part set aside for the production of timber and other forest produce, or which is expected to exercise certain climatic effects, or to protect the locality against injurious influences.”

As far as conclusions can now be drawn, it is probable that the greater part of the dry land of the earth was, at some time, covered with forest, which consisted of a variety of trees and shrubs grouped according to climate, soil and configuration of the several localities. When the old trees reached their limit 646 of life, they disappeared, and younger trees took their place. The conditions for an uninterrupted regeneration of the forest were favourable, and the result was vigorous production by the creative powers of soil and climate. Then came man, and by degrees interfered, until in most countries of the earth the area under forest has been considerably reduced. The first decided interference was probably due to the establishment of domestic animals; men burnt the forest to obtain pasture for their flocks. Subsequently similar measures on an ever-increasing scale were employed to prepare the land for agricultural purposes. More recently enormous areas of forests were destroyed by reckless cutting and subsequent firing in the extraction of timber for economic purposes.

It will readily be understood that the distribution and character of the now remaining forests must differ enormously (see Plants: Distribution). Large portions of the earth are still covered with dense masses of tall trees, while others contain low scrub or grass land, or are desert. As a general rule, natural forests consist of a number of different species intermixed; but in some cases certain species, called gregarious, have succeeded in obtaining the upper hand, thus forming more or less pure forests of one species only. The number of species differs very much. In many tropical forests hundreds of species may be found on a comparatively small area, in other cases the number is limited. Burma has several thousand species of trees and shrubs, Sind has only ten species of trees. Central Europe has about forty species, and the greater part of northern Russia, Sweden and Norway contains forests consisting of about half a dozen species. Elevation above the sea acts similarly to rising latitude, but the effect is much more rapidly produced. Generally speaking, it may be said that the Tropics and adjoining parts of the earth, wherever the climate is not modified by considerable elevation, contain broad-leaved species, palms, bamboos, &c. Here most of the best and hardest timbers are found, such as teak, mahogany and ebony. The northern countries are rich in conifers. Taking a section from Central Africa to North Europe, it will be found that south and north of the equator there is a large belt of dense hardwood forest; then comes the Sahara, then the coast of the Mediterranean with forests of cork oak; then Italy with oak, olive, chestnut, gradually giving place to ash, sycamore, beech, birch and certain species of pine; in Switzerland and Germany silver fir and spruce gain ground. Silver fir disappears in central Germany, and the countries around the Baltic contain forests consisting chiefly of Scotch pine, spruce and birch, to which, in Siberia, larch must be added, while the lower parts of the ground are stocked with hornbeam, willow, alder and poplar. In North America the distribution is as follows: Tropical vegetation is found in south Florida, while in north Florida it changes into a subtropical vegetation consisting of evergreen broad-leaved species with pines on sandy soils. On going north in the Atlantic region, the forest becomes temperate, containing deciduous broad-leaved trees and pines, until Canada is reached, where larches, spruces and firs occupy the ground. Around the great lakes on sandy soils the broad-leaved forest gives way to pines. On proceeding west from the Atlantic region the forest changes into a shrubby vegetation, and this into the prairies. Farther west, towards the Pacific coast, extensive forests are found consisting, according to latitude and elevation above the sea, of pines, larches, fir, Thujas and Tsugas. In Japan a tropical vegetation is found in the south, comprising palms, figs, ebony, mangrove and others. This is followed on proceeding north by subtropical forests containing evergreen oaks, Podocarpus, tree-ferns, and, at higher elevations, Cryptomeria and Chamaecyparis. Then follow deciduous broad-leaved forests, and finally firs, spruces and larches. In India the character of the forests is governed chiefly by rainfall and elevation. Where the former is heavy evergreen forests of Guttiferae, Dipterocarpeae, Leguminosae, Euphorbias, figs, palms, ferns, bamboos and india-rubber trees are found. Under a less copious rainfall deciduous forests appear, containing teak and sal (Shorea robusta) and a great variety of other valuable trees. Under a still smaller rainfall the vegetation becomes sparse, containing acacias, Dalbergia sissoo and Tamarix. Where the rainfall is very light or nil, desert appears. In the Himalayas, subtropical to arctic conditions are found, the forests containing, according to elevation, pines, firs, deodars, oaks, chestnuts, magnolias, laurels, rhododendrons and bamboos. Australia, again, has its own particular flora of eucalypts, of which some two hundred species have been distinguished, as well as wattles. Some of the eucalypts attain an enormous height.

Utility of Forests.—In the economy of man and of nature forests are of direct and indirect value, the former chiefly through the produce which they yield, and the latter through the influence which they exercise upon climate, the regulation of moisture, the stability of the soil, the healthiness and beauty of a country and allied subjects. The indirect utility will be dealt with first. A piece of land bare of vegetation is, throughout the year, exposed to the full effect of sun and air currents, and the climatic conditions which are produced by these agencies. If, on the other hand, a piece of land is covered with a growth of plants, and especially with a dense crop of forest vegetation, it enjoys the benefit of certain agencies which modify the effect of sun and wind on the soil and the adjoining layers of air. These modifying agencies are as follows: (1) The crowns of the trees intercept the rays of the sun and the falling rain; they obstruct the movement of air currents, and reduce radiation at night. (2) The leaves, flowers and fruits, augmented by certain plants which grow in the shade of the trees, form a layer of mould, or humus, which protects the soil against rapid changes of temperature, and greatly influences the movement of water in it. (3) The roots of the trees penetrate into the soil in all directions, and bind it together. The effects of these agencies have been observed from ancient times, and widely differing views have been taken of them. Of late years, however, more careful observations have been made at so-called parallel stations, that is to say, one station in the middle of a forest, and another outside at some distance from its edge, but otherwise exposed to the same general conditions. In this way, the following results have been obtained: (1) Forests reduce the temperature of the air and soil to a moderate extent, and render the climate more equable. (2) They increase the relative humidity of the air, and reduce evaporation. (3) They tend to increase the precipitation of moisture. As regards the actual rainfall, their effect in low lands is nil or very small; in hilly countries it is probably greater, but definite results have not yet been obtained owing to the difficulty of separating the effect of forests from that of other factors. (4) They help to regulate the water supply, produce a more sustained feeding of springs, tend to reduce violent floods, and render the flow of water in rivers more continuous. (5) They assist in preventing denudation, erosion, landslips, avalanches, the silting up of rivers and low lands and the formation of sand dunes. (6) They reduce the velocity of air-currents, protect adjoining fields against cold or dry winds, and afford shelter to cattle, game and useful birds. (7) They may, under certain conditions, improve the healthiness of a country, and help in its defence. (8) They increase the beauty of a country, and produce a healthy aesthetic influence upon the people.

The direct utility of forests is chiefly due to their produce, the capital which they represent, and the work which they provide. The principal produce of forests consists of timber and firewood. Both are necessaries for the daily life of the people. Apart from a limited number of broad-leaved species, the conifers have become the most important timber trees in the economy of man. They are found in greatest quantities in the countries around the Baltic and in North America. In modern times iron and other materials have, to a considerable extent, replaced timber, while coal, lignite, and peat compete with firewood; nevertheless wood is still indispensable, and likely to remain so. This is borne out by the statistics of the most civilized nations. Whereas the population of Great Britain and Ireland, during the period 1880-1900, increased by about 20%, the imports of timber, during the same period, increased by 45%; in other words, every head of population in 1900 used more timber than 647 twenty years earlier. Germany produced in 1880 about as much timber as she required; in 1899 she imported 4,600,000 tons, valued at £14,000,000, and her imports are rapidly increasing, although the yield capacity of her own forests is much higher now than it was formerly. Wood is now used for many purposes which formerly were not thought of. The manufacture of the wood pulp annually imported into Britain consumes at least 2,000,000 tons of timber. A fabric closely resembling silk is now made of spruce wood. The variety of other, or minor, produce yielded by forests is very great, and much of it is essential for the well-being of the people and for various industries. The yield of fodder is of the utmost importance in countries subject to periodic droughts; in many places field crops could not be grown successfully without the leaf-mould and brushwood taken from the forests. As regards industries, attention need only be drawn to such articles as commercial fibre, tanning materials, dye-stuffs, lac, turpentine, resin, rubber, gutta-percha, &c. Great Britain and Ireland alone import every year such materials to the value of £12,000,000, half of this being represented by rubber.

The capital employed in forests consists chiefly of the value of the soil and growing stock of timber. The latter is, ordinarily, of much greater value than the former wherever a sustained annual yield of timber is expected from a forest. In the case of a Scotch pine forest, for instance, the value of the growing stock is, under the above-mentioned condition, from three to five times that of the soil. The rate of interest yielded by capital invested in forests differs, of course, considerably according to circumstances, but on the whole it may, under proper management, be placed equal to that yielded by agricultural land; it is lower than the agricultural rate on the better classes of land, but higher on the inferior classes. Hence the latter are specially indicated for the forest industry, and the former for the production of agricultural crops. Forests require labour in a great variety of ways, such as (1) general administration, formation, tending and harvesting; (2) transport of produce; and (3) industries which depend on forests for their prime material. The labour indicated under the first head differs considerably according to circumstances, but its amount is smaller than that required if the land is used for agriculture. Hence forests provide additional labour only if they are established on surplus lands. Owing to the bulky nature of forest produce its transport forms a business of considerable magnitude, the amount of labour being perhaps equal to half that employed under the first head. The greatest amount of labour is, however, required in the working up of the raw material yielded by forests. In this respect attention may be drawn to the chair industry in and around High Wycombe in Buckinghamshire, where more than 20,000 workmen are employed in converting the beech, grown on the adjoining chalk hills, into chairs and tools of many patterns. Complete statistics for Great Britain are not available under this head, but it may be mentioned that in Germany the people employed in the forests amount to 2.3% of the total population; those employed on transport of forest produce 1.1%; labourers employed on the various wood industries, 8.6%; or a total of 12%. An important feature of the work connected with forests and their produce is that a great part of it can be made to fit in with the requirements of agriculture; that is to say, it can be done at seasons when field crops do not require attention. Thus the rural labourers or small farmers can earn some money at times when they have nothing else to do, and when they would probably sit idle if no forest work were obtainable.

Whether, or how far, the utility of forests is brought out in a particular country depends on its special conditions, such as (1) the position of a country, its communications, and the control which it exercises over other countries, such as colonies; (2) the quantity and quality of substitutes for forest produce available in the country; (3) the value of land and labour, and the returns which land yields if used for other purposes; (4) the density of population; (5) the amount of capital available for investment; (6) the climate and configuration, especially the geographical position, whether inland or on the border of the sea, &c. No general rule can be laid down, showing whether forests are required in a country, or, if so, to what extent; that question must be answered according to the special circumstances of each case.

The subjoined table shows the forests of various European states:—

Countries. Area of
Forests, in
Acres.
Percentage
of Total
Area of
Country
under
Forest.
Percentage
of Forest
Area
belonging
to the
State.
Forest
Area per
Head of
Population,
in Acres.
Sweden 49,000,000 48 33 9.5
Norway 17,000,000 21 28 7.6
Russia, including Finland 518,000,000 40 61 5.9
Bosnia and Herzegovina 6,400,000 50 78 4.0
Bulgaria 7,600,000 30 30 2.3
Turkey 11,200,000 20 · · 1.7
Servia 3,900,000 32 37 1.5
Rumania 6,400,000 18 40 1.3
Spain 21,200,000 17 84 1.2
Hungary 22,500,000 28 15 1.2
Austria 24,000,000 32  7  .9
Greece 2,000,000 13 80  .85
Luxemburg 200,000 30 · ·  .82
Switzerland 2,100,000 20  5  .7
Germany 35,000,000 26 34  .6
France 24,000,000 18 12  .6
Italy 10,400,000 15  4  .3
Denmark 600,000  6 24  .25
Belgium 1,300,000 18  5  .2
Portugal 770,000  3.5  8  .15
Holland 560,000  7  ?  .1
Great Britain 3,000,000  4  3  .07

These data exhibit considerable differences, since the percentage of the forest area varies from 3.5 to 50, and the area per head of population from .07 to 9.5 acres. Russia, Sweden and Norway may as yet have more forest than they require for their own population. On the other hand, Great Britain and Ireland, Germany, Denmark, Portugal, Holland, and even Belgium, France and Italy have not a sufficient forest area to meet their own requirements; at the same time, they are all sea-bound countries, and importation is easy, while most of them are under the influence of moist sea winds, which reduces to a subordinate position the importance of forests for climatic reasons.

Intimately connected with the area of forests in a country is the state of ownership—whether they belong to the state, corporations or to private persons. Where, apart from the financial aspect and the supply of work, forests are not required for the sake of their indirect effects, and where importation from other countries is easy and assured, the government of the country need not, as a rule, trouble itself to maintain or acquire forests. Where the reverse conditions exist, and especially where the cost of transport over long distances becomes prohibitive, a wise administration will take measures to assure the maintenance of a suitable proportion of the country under forest. This can be done either by maintaining or constituting a suitable area of state forests, or by exercising a certain amount of control over corporation and even private forests. Such measures are more called for in continental countries than in those which are sea-bound, as is proved by the above statistics.

Supply of TimberImports and Exports.—The following table shows the net imports and exports of European countries (average data, calculated from the returns of recent years).

The only timber-exporting countries of Europe are Russia, Sweden, Norway, Austria-Hungary and Rumania; all the others either have only enough for their own consumption, or import timber. Great Britain and Ireland import now upwards of 10,000,000 tons a year, Germany about 4,600,000 tons, and 648 Belgium about 1,300,000 tons. Holland, France, Portugal, Spain and Italy are all importing countries, as also are Asia Minor, Egypt and Algeria. The west coast of Africa exports hardwoods, and imports coniferous timber. The Cape and Natal import considerable quantities of pine and fir wood. Australasia exports hardwoods and some Kauri pine from New Zealand, but imports larger quantities of light pine and fir timber. British India and Siam export teak and small quantities of fancy woods. The West Indies and South America export hardwoods, and import pine and fir wood. The United States of America will not much longer be a genuine exporting country, since they import already almost as much timber from Canada as they export. Canada exports considerable quantities of timber. The Dominion has still a forest area of 1,250,000 sq. m., equal to 38% of the total area, and giving 165 acres of forest for every inhabitant. Although only about one-third of the forest area can be called regular timber land, Canada possesses an enormous forest wealth, with which she might supply permanently nearly all other countries deficient in material, if the governing bodies in the several provinces would only determine to stop the present fearful waste caused by axe and fire, and to introduce a regular system of management. As matters stand, the supplies of the most valuable timber of Canada, the white or Weymouth pine (Pinus strobus), are nearly exhausted, the great stores of spruce in the eastern provinces are being rapidly destroyed, and the forests of Douglas fir in the western provinces have been attacked for export to the United States and to other countries.

Net Imports and Exports of European Countries.

Countries. Quantities in Tons. Value in £ Sterling.
Imports. Exports. Imports. Exports.
United Kingdom 10,004,000 · · 26,540,000 · ·
Germany 4,600,000 · · 14,820,000 · ·
Belgium 1,300,000 · · 5,040,000 · ·
France 1,230,000 · · 3,950,000 · ·
Italy 620,000 · · 2,100,000 · ·
Spain 470,000 · · 1,500,000 · ·
Denmark 470,000 · · 1,250,000 · ·
Switzerland 204,000 · · 480,000 · ·
Holland 180,000 · · 720,000 · ·
Servia 110,000 · · 160,000 · ·
Portugal 60,000 · · 200,000 · ·
Greece 35,000 · · 130,000 · ·
Rumania · · 400,000 · · 840,000
Norway · · 1,300,000 · · 2,200,000
Austria-Hungary with        
  Bosnia and Herzegovina · · 3,996,000 · · 11,400,000
Sweden · · 4,460,000 · · 7,930,000
Russia with Finland · · 6,890,000 · · 10,440,000
Total 19,283,000 17,046,000 56,890,000 32,810,000
Net Imports 2,237,000   24,080,000  
These net imports are received from non-European countries.
They consist chiefly of valuable hardwoods, like teak, mahogany,
eucalypts and others.

Taking the remaining stocks of the whole earth together, it may be said that a sufficient quantity of hardwoods is available, but the only countries which are able to supply coniferous timber for export on a considerable scale are Russia, Sweden, Norway, Austria and Canada. As these countries have practically to supply the rest of the world, and as the management of their forests is far from satisfactory, the question of supplying light pine and fir timber, which forms the very staff of life of the wood industries, must become a very serious matter before many years have passed. Unmistakable signs of the coming crisis are everywhere visible to all who wish to see, and it is difficult to over-state the gravity of the problem, when it is remembered, for instance, that 87% of all the timber imported into Great Britain consists of light pine and fir, and that most of the other importing countries are similarly situated. In some of these countries little or no room exists for the extension of woodland, but this statement does not apply to Great Britain and Ireland, which contain upwards of 12,000,000 acres of waste land, and 12,500,000 acres of mountain and heath land used for light grazing. One-fourth of that area, if put under forest, would produce all the timber now imported which can be grown in Britain, that is to say, about 95% of the total.

The subjoined table shows the movements of timber within the greater part of the British empire:—

Net Imports and Exports into and from the British Empire.

Countries. Annual Average
during the Years
1884-1888.
Annual Average
during the Years
1900-1903.
Net
Imports.
Net
Exports.
Net
Imports.
Net
Exports.
  £ £ £ £
United Kingdom 15,000,000 · · 26,540,000 · ·
Australasia 1,284,000 · · 568,000 · ·
Africa 72,000 · · 737,000 · ·
West Indies, Honduras and Guiana · · 207,000 · · 71,000
India, Ceylon and Mauritius · · 528,000 · · 580,000
Dominion of Canada · · 4,025,000 · · 4,789,000
Total 16,356,000 4,760,000 27,845,000 5,440,000
Net Imports 11,596,000 · · 22,405,000 · ·
Total increase in 16 years · · · · 10,809,000 · ·
Average annual increase of net        
  imports · · · · 675,562 · ·

Forest Management.—In early times there was practically no forest management. As long as the forests occupied considerable areas, their produce was looked upon as the free gift of nature, like air and water; men took it, used it, and even destroyed it without let or hindrance. With the gradual increase of population and the consequent reduction of the forest area, proprietary ideas developed; people claimed the ownership of certain forests, and proceeded to protect them against outsiders. Subsequently the law of the country was called in to help in protection, leading to the promulgation of special forest laws. By degrees it was found that mere protection was not sufficient, and that steps must be taken to enforce a more judicious treatment, as well as to limit the removal of timber to what the forests were capable of producing permanently. The teaching of natural science and of political economy was brought to bear upon the subject, so that now forestry has become a special science. This is recognized in many countries, amongst which Germany stands first, closely followed by France, Austria, Denmark and Belgium. Of non-European countries the palm belongs to British India, and then follow Ceylon, the Malay States, the Cape of Good Hope and Japan. The United States of America have also turned their attention to the subject. Most of the British colonies are, in this respect, as yet in a backward state, and the matter has still to be fought out in Great Britain and Ireland, though many writers have urged the importance of the question upon the public and the government. There can be no doubt that all civilized countries must, sooner or later, adopt a rational and systematic treatment of their forests.

For details as to the separate countries, see the articles under the country headings; in this article only some of the more important countries are dealt with, in so far as the history of their forestry is important. A few notes on Germany and France will be given, because in these countries forest management has been brought to highest perfection; Italy is mentioned, because she has allowed her forests to be destroyed; and a short description of forestry in the United Kingdom and in India follows. A separate section is devoted to the United States.

Germany is in general well-wooded. The winters being long and severe, an abundant supply of fuel is almost as essential as a sufficient supply of food. This necessity has led, along 649 with a passion for the chase, to the preservation of forests, and to the establishment of an admirable system of forest cultivation, almost as carefully conducted as field tillage. The Black Forest stretches the whole length of the grand-duchy of Baden and part of the kingdom of Württemberg, from the Neckar to Basel and the Lake of Constance. The vegetation resembles that of the Vosges; forests of spruce, silver fir, Scotch pine, and, mingled with birches, beech and oak, are the chief woods met with. Until comparatively recent times large quantities of timber derived from these forests were floated down the Rhine to Holland and also shipped to England. Now the greater part of it is used locally for construction, or it is converted into paper pulp. In the grand-duchy of Hesse the Odenwald range of mountains, stretching between the Main and the Neckar, contains the chief supply of timber. In the province of Nassau there are the large wooded tracts of the Taunus mountain range and the Westerwald.

In Rhenish Prussia valuable forests lie partly in the Eifel, on the borders of Belgium, and on the mountains overhanging the Upper Moselle, but they do not furnish such stately trees as the Black Forest and the Odenwald. The Spessart, near Aschaffenburg in Bavaria, is one of the most extensive forests of middle Germany, containing large masses of fine oak and beech, with plantations of coniferous trees, such as spruce, Scotch pine and silver fir. Bavaria possesses other fine forest tracts, such as the Baierischewald on the Bohemian frontier, the Kranzberg near Munich, and the Frankenwald in the north of the kingdom. North Germany has extensive forests on the Harz and Thüringian Mountains, while in East Prussia large tracts of flat ground are covered with Scotch pine, spruce, oak and beech.

Every German state has its forest organization. In Prussia the department is presided over by the Oberland Forstmeister at Berlin, while each province, or part of a province, has an Oberforstmeister, under whom a number of Oberförsters administrate the state and communal forests. These, again, are assisted by a lower class of officials called Försters. The Oberförsters throughout Germany are educated at special schools of forestry, of which in 1909 the following nine existed:

In Prussia: at Eberswalde and Münden.

In Bavaria: at Munich and Aschaffenburg.

In Saxony: at Tharand.

In Württemberg: at Tübingen.

In Baden: at Carlsruhe.

In Hesse: at Giessen.

In the grand-duchy of Saxony: at Eisenach.

The schools at Munich, Tübingen and Giessen form part of the universities at these places; that at Carlsruhe is attached to the technical high school; the others are academies for the study of forestry only, but there is a tendency to transfer them all to the universities. The subordinate staff are trained for their work in so-called silvicultural schools, of which a large number exist. In this way the German forests have been brought to a high degree of productiveness, but the material derived from them falls far short of the requirements, although the forests occupy 26% of the total area of the country; hence the net imports of timber amount already to 4,600,000 tons a year, and they are steadily rising.

France.—The principal timber tree of France is the oak. The cork oak is grown extensively in the south and in Corsica. The beech, ash, elm, maple, birch, walnut, chestnut and poplar are all important trees, while the silver fir and spruce form magnificent forests in the Vosges and Jura Mountains, and the Aleppo and maritime pines are cultivated in the south and south-west. About one-seventh of the entire territory is still covered with wood.

Forest legislation took its rise in France about the middle of the 16th century, and the great minister Sully urged the enforcement of restrictive forest laws. In 1669 a fixed treatment of state forests was enacted. Duhamel in 1755 published his famous work on forest trees. Reckless destruction of the forests, however, was in progress, and the Revolution of 1789 gave a fresh stimulus to the work of devastation. The usual results have followed in the frequency and destructiveness of floods, which have washed away the soil from the hillsides and valleys of many districts, especially in the south, and the frequent inundations of the last fifty years are no doubt caused by the deforesting of the sources of the Rhone and Saône. Laws were passed in 1860 and 1864, providing for the reforesting, “reboisement,” of the slopes of mountains, and these laws take effect on private as well as state property. Thousands of acres are annually planted in the departments of Hautes and Basses Alpes; and during the summer of 1875, when much injury was done by floods in the south of France, the Durance, formerly the most dangerous in this respect of French rivers, gave little cause for anxiety, as it is round the head waters of this river that the chief plantations have been formed. While tracts formerly covered with wood have been replanted, plantations have been formed on the shifting sands or dunes along the coast of Gascony. A forest of Pinus pinaster, 150 m. in length, now stretches from Bayonne to the mouth of the Gironde, raised by means of sowing steadily continued since 1789; the cultivation of the pine, along with draining, has transformed low marshy grounds into productive soil extending over an area of about two million acres. The forests thus created provide annually some 600,000 tons of pit timber for the Welsh coal mines.

The state forest department is administered by the director-general, who has his headquarters at Paris, assisted by a board of administration, charged with the working of the forests, questions of rights and law, finance and plantation works.

The department is supplied with officers from the forest school at Nancy. This institution was founded in 1824, when M. Lorentz, who had studied forestry in Germany, was appointed its first director.

Italy.—The kingdom of Italy comprises such different climates that within its limits we find the birch and pines of northern Europe, and the olive, fig, manna-ash, and palm of more southern latitudes. By the republic of Venice and the duchy of Genoa forestal legislation was attempted at various periods from the 15th century downwards. These efforts were not successful, as the governments were lax in enforcing the laws. In 1789 Pius VI. issued regulations prohibiting felling without licence, and later orders were published by his successors in the pontifical states. In Lombardy the woods, which in 1830 reached nearly down to Milan, have almost disappeared. The province of Como contains only a remnant of the primitive forests, and the same may also be said of the southern slopes of Tirol. At Ravenna there is still a large forest of stone pine, Pinus pinea, though it has been much reduced. The plains of Tuscany are adorned with planted trees, the olive, mulberry, fig and almond. Sardinia is rich in woods, which cover one-fifth of the area, and contain a large amount of oak, Quercus suber, robur and cerris. In Sicily the forests have long been felled, save the zone at the base of Mount Etna.

The destruction of woods has been gradual but persistent; at the end of the 17th century the effects of denudation were first felt in the destructive force given to mountain torrents by the deforesting of the Apennines. The work of devastation continued until a comparatively recent time.

In 1867 the monastic property of Vallombrosa, Tuscany, 30 m. from Florence, was purchased by government for the purposes of a forest academy, which was opened in 1869. As only 4% of the total forest area belongs to the state, it is doubtful whether much good can now be done.

Great Britain and Ireland.—The British Isles were formerly much more extensively wooded than at present. The rapid increase of population led to the disforesting of woodland; the climate required the maintenance of household fires during a great part of the year, and the increasing demand for arable land and the extension of manufacturing industries combined to cause the diminution of woodland. The proportion of forest is now very small, and yields but a fraction of the required annual supply of timber which is imported with facility from America, northern Europe and the numerous British colonies.

Owing to the nature of the climate of the British Islands, with its abundance of atmospheric moisture and freedom from such extremes of heat and cold as are prevalent in continental 650 Europe, a great variety of trees are successfully cultivated. In England and Ireland oak and beech are on the whole the most plentiful trees in the low and fertile parts; in the south of Scotland the beech and ash are perhaps most common, while the Scotch fir and birch are characteristic of the arboreous vegetation in the Highlands. Although few extensive forests now exist, woods of small area, belts of planting, clumps of trees, coppice and hedgerows, are generally distributed over the country, constituting a mass of wood of considerable importance, giving a clothed appearance in many parts, and affording illustrations of skilled arboriculture not to be found in any other country.

The principal state forests in England are Windsor Park, 14,000 acres; the New Forest, &c., in Hampshire, 76,000 acres; and the Dean Forest in Gloucestershire, 22,500 acres. The total extent of crown forests is about 125,000 acres. A large proportion of the crown forests, having been formed with the object of supplying timber for the navy, consists of oak. The largest forests in Scotland are in Perthshire, Inverness-shire and Aberdeenshire. Of these the most notable are the earl of Mansfield’s near Scone (8000 acres), the duke of Atholl’s larch plantations near Dunkeld (10,000 acres), and in Strathspey a large extent of Scotch pine, partly native, partly planted, belonging to the earl of Seafield. In the forests of Mar and Invercauld, the native pine attains a great size, and there are also large tracts of indigenous birch in various districts. Ireland was at one time richly clothed with wood; this is proved by the abundant remains of fallen trees in the bogs which occupy a large surface of the island. In addition to the causes above alluded to as tending to disforest England, the long unsettled state of the country also conduced to the diminishing of the woodlands.

The forests of Great Britain and Ireland, in spite of the large imports of timber, have not been appreciably extended up to the present time because (1) the rate at which foreign timber has been laid down in Britain is very low, thus keeping down the price of home-grown timber; (2) foreign timber is preferred to home-grown material, because it is in many cases of superior quality, while the latter comes into the market in an irregular and intermittent manner; (3) nearly the whole of the waste lands is private property. As regards prices, it can be shown that the lowest point was reached about the year 1888, in consequence of the remarkable development of means of communication, that prices then remained fairly stationary for some years, and that about 1894 a slow but steady rise set in, showing during the years 1894-1904 an increase of about 20% all round. This was due to the gradual approach of the coming crisis in the supply of coniferous timber to the world. It can be shown that even with present prices the growing of timber can be made to pay, provided it is carried on in a rational and economic manner. Improved silvicultural methods must be applied, so as to produce a better class of timber, and the forests must be managed according to well-arranged working plans, which provide for a regular and sustained out-turn of timber year by year, so as to develop a healthy and steady market for locally-grown material. Unfortunately the private proprietors of the waste lands are in many cases not in a financial position to plant. Starting forests demands a certain outlay in cash, and the proprietor must forgo the income, however small, hitherto derived from the land until the plantations begin to yield a return. In these circumstances the state may well be expected to help in one or all of the following ways: (1) The equipment of forest schools, where economic forestry, as elaborated by research, is taught; (2) the management of the crown forests on economic principles, so as to serve as patterns to private proprietors; (3) advances should be made to landed proprietors who desire to plant land, but are short of funds, just as is done in the case of improvements of agricultural holdings; and (4) the state might acquire surplus lands in certain parts of the country, such as congested districts, and convert them into forests. Action in these directions would soon lead to substantial benefits. The income of landed proprietors would rise, a considerable sum of money now sent abroad would remain in the country, and forest industries would spring up, thus helping to counteract the ever-increasing flow of people from the country into the large towns, where only too many must join the army of the unemployed. Even within a radius of 50 m. of London 700,000 acres of land are unaccounted for in the official agricultural returns. In Ireland more than 3,000,000 acres are waiting to be utilized, and it is well worth the consideration of the Irish Land Commissioners whether the lands remaining on their hands, when buying and breaking up large estates, should not be converted into state forests. Such a measure might become a useful auxiliary in the peaceful settlement of the Irish land question. No doubt success depends upon the probable financial results. There are at present no British statistics to prove such success; hence, by way of illustration, it may be stated what the results have been in the kingdom of Saxony, which, from an industrial point of view, is comparable with England. That country has 432,085 acres of state forests, of which about one-eighth are stocked with broad-leaved species, and seven-eighths with conifers. Some of the forests are situated on low lands, but the bulk of the area is found in the hilly parts of the country up to an elevation of 3000 ft. above the sea. The average price realized of late years per cubic foot of wood amounts to 5d., and yet to such perfection has the management been brought by a well-trained staff, that the mean annual net revenue, after meeting all expenses, comes to 21s. an acre all round. There can be no doubt that, under the more favourable climate of Great Britain, even better results can be obtained, especially if it is remembered that foreign supplies of coniferous timber must fall off, or, at any rate, the price per cubic foot rise considerably.

These things have been recognized to some extent, and a movement has been set on foot to improve matters. The Commissioners of Woods and a number of private proprietors had rational working plans prepared for their forests, and instruction in forestry has been developed. There is now a well-equipped school of forestry connected with the university of Oxford, while Cambridge is following on similar lines; instruction in forestry is given at the university of Edinburgh, the Durham College of Science, at Bangor, Cirencester and other places. The Commissioners of Woods have purchased an estate of 12,500 acres in Scotland, which will be converted into a crown forest, so as to serve as an example. The experience thus gained will prove valuable should action ever be taken on the lines suggested by a Royal Commission on Coast Erosion, Reclamation of Tidal Lands and Afforestation, which reported on the last subject in 1909.

India.—The history of forest administration in India is exceedingly instructive to all who take an interest in the welfare of the British Empire, because it places before the reader an account of the gradual destruction of the greater part of the natural forests, a process through which most other British colonies are now passing, and then it shows how India emerged triumphantly from the self-inflicted calamity. As far as information goes, India was, in the early times, for the most part covered with forest. Subsequently settlers opened out the country along fertile valleys and streams, while nomadic tribes, moving from pasture to pasture, fired alike hills and plains. This process went on for centuries. With the advent of British rule forest destruction became more rapid than ever, owing to the increase of population, extension of cultivation, the multiplication of herds of cattle, and the universal firing of the forests to produce fresh crops of grass. Then railways came, and with their extension the forests suffered anew, partly on account of the increased demand for timber and firewood, and partly on account of the fresh impetus given to cultivation along their routes. Ultimately, when failure to meet the requirements of public works was brought to notice, it was recognized that a grievous mistake had been made in allowing the forests to be recklessly destroyed. Already in the early part of the 19th century sporadic efforts were made to protect the forests in various parts of the country, and these continued intermittently; but the first organized steps were taken about the year 1855, when Lord Dalhousie was governor-general. At that time conservators of forests existed in Bombay, Madras and Burma. 651 Soon afterwards other appointments followed, and in 1864 an organized state department, presided over by the inspector-general of forests, was established. Since then the Indian Forest Department has steadily grown, so that it has now become of considerable importance for the welfare of the people, as well as for the Indian exchequer.

The first duty of the department was to ascertain the position and extent of the remaining forests, and more particularly of that portion which still belonged to the state. Then a special forest law was passed, which was superseded in 1878 by an improved act, providing for the legal formation of permanent state forests; the determination, regulation, and, if necessary, commutation of forest rights; the protection of the forests against unlawful acts and the punishment of forest offences; the protection of forest produce in transit; the constitution of a staff of forest officers, provision to invest them with suitable legal powers, and the determination of their duties and liabilities. The officers who administered the department in its infancy were mostly botanists and military officers. Some of these became excellent foresters. In order to provide a technically trained staff arrangements were made in 1866 by Sir Dietrich Brandis, the first inspector-general of forests, for the training of young Englishmen at the French Forest School at Nancy and at similar institutions in Germany. In 1876 the students were concentrated at Nancy, and in 1885 an English forest school for India was organized in connexion with the Royal Indian Engineering College at Cooper’s Hill. In 1905 the school was transferred to the university of Oxford. The imperial forest staff of India consisted in 1909 of—officers not specially trained before entering the department, 17; officers trained in France and Germany, 23; officers trained at Cooper’s Hill, 143—total 184.

In 1878 a forest school was started at Dehra Dun, United Provinces, for the training of natives of India as executive officers on the provincial staff. Since then a similar school, though on a smaller scale, has been established at Tharrawaddy in Burma. About 500 officers of this class have been appointed. In addition, there are about 11,000 subordinates, foresters and forest guards, who form the protective staff. The school at Dehra Dun has lately been converted into the Imperial Forest College.

The progress made since 1864 is really astonishing. According to the latest available returns, the areas taken under the management of the department are—reserved state forests, or permanent forest estates, 91,272 sq. m.; other state forests, 141,669 sq. m.; or a total of 232,941 sq. m., equal to 24% of the area over which they are scattered. At present, therefore, the average charge of each member of the controlling staff comprises 1266 sq. m.; that of each executive officer, 446 sq. m.; and that of each protective official, 21 sq. m. It is the intention to increase the executive and protective staff considerably, in the same degree as the management of the forests becomes more detailed. Of the above-mentioned area the Forest Survey Branch, established in 1872, has up to date surveyed and mapped about 65,000 sq. m. From 1864 onwards efforts were made to introduce systematic management into the forests, based upon working plans, but, as the management had been provincialized, there was no central or continuous control. This was remedied in 1884, when a central Working Plans Office, under the inspector-general of forests, was established. This officer has since then controlled the preparation and execution of the plans, a procedure which has led to most beneficial results. Plans referring to about 38,000 sq. m. are now (1909) in operation, and after a reasonable lapse of time there should not be a single forest of importance which is not worked on a well-regulated plan, and on the principle of a sustained yield. While the danger of overworking the forests is thus being gradually eliminated, their yield capacity is increased by suitable silvicultural treatment and by fire protection. Formerly most of the important forests were annually or periodically devastated by jungle fires, sometimes lighted accidentally, in other cases purposely. Now 38,000 sq. m. of forest are actually protected against fire by the efforts of the department, and it is the intention gradually to extend protection to all permanent state forests. Grazing of cattle is of great importance in India; at the same time it is liable to interfere seriously with the reproduction of the forests. To meet both requirements careful and minute arrangements have been made, according to which at present 38,000 sq. m. are closed to grazing; 19,000 sq. m. are closed only against the grazing of goats, sheep and camels; while 176,000 sq. m. are open to the grazing of all kinds of cattle. The areas closed in ordinary years form a reserve of fodder in years of drought and scarcity. During famine years they are either opened to grazing, or grass is cut in them and transported to districts where the cattle are in danger of starvation. The service rendered in this way by a wise forest administration should not be underrated, since one of the most serious calamities of a famine—the want of cattle to cultivate the land—is thus, if not avoided, at any rate considerably reduced. During 1907 the government of India established a Research Institute, with six members engaged in collecting data regarding silviculture, forest botany, forest zoology, forest economics, working plans, and chemistry in connexion with forest produce and production. The institute is likely to lead to further substantial progress in the management of the forests.

The financial results of forest administration in India for the years 1865 to 1905 show the progress made:

Period. Mean Annual
Net Revenue.
Percentage of
Annual Increase
during Period.
  Rupees.  
1865-1870 1,372,733 · ·
1870-1875 1,783,248 30
1875-1880 2,224,687 25
1880-1885 3,385,745 52
1885-1890 5,066,671 50
1890-1895 7,370,572 44
1895-1900 7,923,484  7
1900-1905 9,004,367 12

The highest percentage of increase occurred in the period 1880-1885. The revenue since 1886 has been considerably increased by the annexation of Upper Burma.

Apart from the net revenue, large quantities of produce are given free of charge, or at reduced rates, to the people of the country. Thus, in 1904-1905, the net revenue amounted to Rs. 11,062,094, while the produce given free or at reduced rates was valued at Rs. 3,500,661, making a total net benefit derived from the state forests during that year of Rs. 14,562,755, or in round figures one million pounds sterling. The out-turn during the same year amounted to 252 million cub. ft. of timber and fuel and 215 million bamboos. The receipts from the sale of other forest produce came to 9 million rupees, out of a total gross revenue of 24 million rupees.

These results are highly creditable to the government of India, which has led the way towards the introduction of rational forest management into the British empire, thus setting an example which has been followed more or less by various colonies. Even the movement in the United Kingdom during late years is due to it. Apart from India, substantial progress has been made in Cape Colony, Ceylon, the Straits Settlements and the Federated Malay States. Other British colonies are more backward in this respect. Energetic action is urgently wanted, especially in Canada and Australasia, where an enormous state property is threatened by destruction.

Literature.—The following works of special interest may be mentioned: W. Schlich, A Manual of Forestry (London) (vols. i., ii. and iii. by W. Schlich; vols. iv. and v. by W.R. Fisher; 3rd ed. of vol. i., 1906, of vol. ii., 1904, of vol. iii., 1905; 2nd ed. of vol. iv., 1907; 2nd ed. of vol. v., 1908); Baden-Powell, Forest Law (London, 1893); Brown, The Forester (ed. by Nisbet, Edinburgh and London, 1905); Broilliard, Le Traitement des bois (Paris, 1894); Huffel, Économie forestière (Paris, 1904-1907); Lorey, Handbuch der Forstwissenschaft (2nd ed. by Stoetzer, Tübingen, 1903); Rossmässler, Der Wald.

(W. Sch.)

United States

The Forest Regions.—The great treeless region east of the Rocky Mountains separates the wooded area of the United 652 States into two grand divisions, which may be called the Eastern and the Western forests. The Eastern forest is characterized by the predominance, on the whole, of broad-leafed trees, the comparative uniformity of its general types over wide areas, and its naturally unbroken distribution. In the Western forest conifers are conspicuously predominant; the individual species often reaches enormous and even unequalled dimensions, the forest is frequently interrupted by treeless areas, and the transitions from one type to another are often exceedingly abrupt. Both divisions are botanically and commercially rich in species.

The Eastern forest may conveniently be subdivided into three members:

1. The Northern forest, marked by great density and large volume of standing timber, and a comparative immunity, in its virgin condition, from fire. The characteristic trees are maples, birches and beech (Fagus atropunicea), among the hardwoods and white pine (Pinus strobus), spruce (Picea rubens and Picea mariana) and hemlock (Tsuga canadensis) among conifers.

2. The Southern forest is on the whole less dense than the Northern, and more frequently burned over. Among its characteristic trees are the longleaf (Pinus palustris) and other pines, oaks, gums, bald cypress (Taxodium distichum) and white cedar (Chamaecyparis thyoides).

3. The Central Hardwood forest, which differs comparatively little from adjacent portions of the Northern and Southern forests except in the absence of conifers. Among its trees are the chestnut (Castanea dentata), hickories, ashes and other hardwoods already mentioned.

The Western division has two members:

1. The Pacific Coast forest, marked by the great size of its trees and the vast accumulations of merchantable timber. Among its characteristic species are the redwood (Sequoia sempervirens) and the big tree (S. Washingtoniana), the Douglas fir (Pseudotsuga taxifolia), sugar pine (Pinus lambertiana), western hemlock (Tsuga heterophylla), giant arborvitae (Thuja plicata) and Sitka spruce (Picea sitchensis).

2. The Rocky Mountain forest, whose characteristic species are the western yellow pine (Pinus ponderosa), Engelmann spruce (Picea engelmanni) and lodgepole pine (Pinus murrayana). This forest is frequently broken by treeless areas of greater or less extent, especially towards the south, and it suffers greatly from fire. Subarid in character, except to the north and at high elevations, the vast mining interests of the region and its treeless surroundings give this forest an economic value out of proportion to the quantities of timber it contains.

This distribution of the various forests is indicated on the first of the two accompanying maps. The second map shows the situation of the national forests hereafter mentioned.

The forests of Alaska fall into two main divisions: the commercial though undeveloped forests of the south-east coast, which occur along the streams and on the lower slopes of the mountains and consist chiefly of western hemlock (Tsuga heterophylla), Sitka spruce (Picea sitchensis), yellow cedar (Chamaecyparis nootkatensis) and giant arborvitae (Thuja plicata), usually of large size and uninjured by fire; and the vast interior forests, swept by severe fires, and consisting chiefly of white and black spruces (Picea canadensis and nigra), paper birch (Betula papyrifera) and aspen (Populus tremuloides), all of small size but of great importance in connexion with mining. Northern Alaska and the extreme western coast regions are entirely barren.

The National Forest Policy.—The forest policy of the United States may be said to have had its origin in 1799 in the enactment of a law which authorized the purchase of timber suitable for the use of the navy, or of land upon which such timber was growing. It is true that laws were in force under the early governments of Massachusetts, New Jersey and other colonies, providing for the care and protection of forest interests in various ways, but these laws were distinctly survivals of tendencies acquired in Europe, and for the most part of little use. It was not until the apparent approach of a dangerous shortage in certain timber supplies that the first real step in forest policy was taken by the United States. Successive laws passed from 1817 to 1831 strove to give larger effect to the original enactment, but without permanent influence towards the preservation of the live oak (Quercus virginiana Mill.), which was the object in view. A long period of inaction followed these early measures. In 653 1831 the solicitor of the treasury assumed a partial responsibility for the care and protection of the public timber lands, and in 1855 this duty was transferred to the commissioner of the general land office in the Department of the Interior. The effect of these changes upon forest protection was unimportant. When, however, at the close of the Civil War railway building in the United States took on an unparalleled activity, the destruction of forests by fire and the axe increased in a corresponding ratio, and public sentiment began to take alarm. Action by several of the states slightly preceded that of the Federal government, but in 1876 Congress, acting under the inspiration of a memorial from the American Association for the Advancement of Science, authorized the appointment of an officer (Dr Franklin B. Hough) under the commissioner of agriculture, to collect and distribute information upon forest matters. His office became in 1880 the division of forestry in what is now the United States Department of Agriculture.

As the railways advanced into the treeless interior, public interest in tree-planting became keen. In 1873 Congress passed and later amended and repealed the timber culture acts, which granted homesteads on the treeless public lands to settlers who planted one-fourth of their entries with trees. Though these measures were not successful in themselves they directed attention towards forestry. The act which repealed them in 1891 contained a clause which lies at the foundation of the present forest policy of the United States. By it the president was authorized to set aside “any part of the public lands wholly or in part covered with timber or undergrowth, whether of commercial value or not, as public reservations, and the President shall, by public proclamation, declare the establishment of such reservations and the limits thereof.” Some eighteen million acres had been proclaimed as reservations at the time when, in 1896, the National Academy of Sciences was asked by the secretary of the interior to make an investigation and report upon “the inauguration of a rational forest policy for the forest lands of the United States.” Upon the recommendation of a commission named by the Academy, President Cleveland established more than twenty-one million acres of new reserves on the 22nd of February 1897. His action was widely misunderstood and attacked, but it awakened a public interest in forest questions without which the rapid progress of forestry in the United States since that time could never have been made.

Within a few months after the proclamation of the Cleveland reserves the present national forest policy took definite shape. Under this policy the national government holds and manages, in the common interest of all users of the forests or its products, such portions of the public lands as have been set aside by presidential proclamation in accordance with the act of 1891. These lands are held against private acquisition under the Homestead Act (except as to agricultural lands as hereafter mentioned), the Timber and Stone Act, and other laws under which the United States disposes of its unappropriated public domain, but not against private acquisition under the Mineral Land Laws. They are selected from lands believed to be more valuable for forest purposes than for agriculture, and are managed with the purpose of securing from them the best and largest possible returns, present and future, whether in the form of water for irrigation or power, of timber, of forage for stock, or of any other beneficial product. The aggregate area of the reserves, or national forests, has been steadily increased until they now include nearly all the timber lands left of the public domain.

The general lines of this policy were in part laid down by the commission already mentioned, in its report submitted to the secretary of the interior, May 1, 1897, and by the act of June 4, 1897, which was largely shaped by the work of the commission. Until this act was passed the national forests had been in theory closed against any form of use; nor had the possibility of securing forest preservation by wise use received much thought from those who had favoured their creation. Such a state of affairs could not continue. Before long public opinion would have forced the opening to use of the resources thus arbitrarily locked up, and in the absence of any administrative system providing for conservative use, the national forests would inevitably have been abolished, and the whole policy of government forest holdings would have ceased. The act of June 4, 1897 was therefore of the first importance. This act conferred upon the secretary of the interior general powers for the proper management of the national forests through the general land office of his department. It provided for the designation and sale of dead, mature and large timber; authorized the secretary to permit free use of timber in small quantities by settlers, miners and residents; empowered him to “make such rules and regulations and establish such service as will insure the objects of such reservations, namely, to regulate their occupancy and use and to preserve the forests thereon from destruction”; and made violation of the act or of such rules and regulations a misdemeanour. The statute limited the power to establish forest reservations to the purpose of improving and protecting the forest, securing favourable conditions of water flows, and furnishing a continuous supply of timber for the use and necessities of citizens of the United States. Lands found, upon due examination, to be more valuable for other purposes than for forest uses might be eliminated from any reservation, and all mineral lands within the reservations were left open to private appropriation under the mineral laws. The rights of settlers and claimants were safeguarded, and civil and criminal jurisdiction, except so far as the punishment of offences against the United States in the reservations was concerned, was reserved to the States.

While the administration of the national forests was entrusted to the general land office, the same act assigned the surveying and mapping of them to the United States Geological Survey, which has published descriptions and maps of some of the more important.

No attempt was made in the general land office to develop a technical forest service. There were, indeed, at the time of passage of the act, less than ten trained foresters in the United States, no means of training more, and very little conception of what forestry actually meant. The purpose of the administration was therefore mainly protection against trespass and fire, particularly the latter. Regulations were made giving effect to the provisions of the act of June 4, set forth above, but in the absence of technical knowledge as to what might safely be done, the tendency was rather to restrict than to extend the use of the forest. Meanwhile, however, there was rapidly developing in another branch of the government service an organization qualified for actual forest management.

One year after the passage of the act of June 4, 1897, the division of forestry in the Department of Agriculture ceased to be merely a bureau of information, and became an active agency for introducing the actual practice of forestry among private owners and for conducting the investigations upon which a sound American forest practice could be based. The work awakened great interest among forest owners, and exerted a powerful educational influence upon the country at large. The division extended its work and became (July 1, 1901) the Bureau of Forestry. It drew into its employment for a time nearly all the men who were preparing themselves in increasing numbers (at first abroad, then in the newly-founded schools in the United States) for the profession of forestry, and was soon recognized as qualified to speak authoritatively on technical questions connected with the administration of the national forests. This led to a request from the secretary of the interior for the advice of the bureau on such questions. Working plans were accordingly undertaken for a number of the forests. The general land office, however, was not ready to attempt active forest management. Though some timber was sold and the grazing of stock regulated to some extent, the main object of the land office administration continued to be protection against fire. Many of the regulations which it made could not be enforced.

The disadvantages of dispersal of the Federal government forest work among three separate agencies grew more and more apparent, until, on the 1st of February 1905, control of the 63,000,000 acres of forest reserves which up to that time had been set aside was transferred from the general land office to 654 the Bureau of Forestry. In recognition of its new duties the designation of the bureau became the Forest Service.

Other provisions of the act which affected the transfer were that forest supervisors and rangers should be selected, so far as possible, from qualified citizens of the state or territory in which each forest was situated, and that all money received from the sale of any products or the use of any land or resources of the national forests should be covered into the treasury and constitute a special fund for their protection, administration, improvement and extension. Five days later a statute gave forest officers the power to arrest trespassers; and on the 3rd of March the lieu land selection law was repealed. This law had opened the way for grave abuses through the exchange of worthless land by private owners within the forests for an equal area of valuable timber lands outside.

The law has been modified since by the change of the old name “Forest Reserves” to “National Forests.” The act of June 11, 1906, opened to homestead entry lands within national forests found by examination to be chiefly valuable for agriculture. The administration and improvement of the national forests are now provided for directly by congressional appropriation. The power to create national forests conferred on the president by the act of March 1891 has been repealed for the states of Washington, Oregon, Idaho, Montana, Wyoming and Colorado, but for no others.

The Forest Service began in earnest the development of all the resources of the national forests. Mature timber was sold wherever there was a demand for it and the permanent welfare of the forests and protection of the streams permitted, but always so as to prevent waste, guard against fire, protect young growth and ensure reproduction. Regulations were adopted which allowed small sales to be made without formality or delay, secured for the government the full value of timber sold, and eliminated unnecessary routine. Care was taken to safeguard the interests of the government and provide for the maintenance of good technical standards. The conduct of local business was entrusted to local officers. Large transactions with general policies were controlled from Washington, but with careful 655 provision for first-hand knowledge and close touch with the work in the field. Business efficiency and the convenience of the public were carefully studied. In short, an organization was created capable of handling safely, speedily and satisfactorily the complex business of making useful a forest property of vast extent, scattered through sixteen different states of an aggregate area of over 1,500,000 sq. m. and with a population of 9,000,000.

The growth since the 1st of July 1897 of the area of the national forests, of the expenditures of the government for forestry, and of the receipts from the national forests, is shown by the statement which follows. Though the act of June 4, 1897, became effective immediately upon its passage, the fiscal year 1899 was the first of actual administration, because the first for which Congress made the appropriation necessary to carry out the law.

Area of National Forests, Annual Expenditures of the Federal Government for Forestry and National Forest Administration, and Receipts from National Forests, 1898-1909.

Fiscal
Year.1
Area of
National Forests
at Close of Year
(June 30).
Division of Forestry
(Bureau of Forestry,
Forest Service).
General
Land Office.
Receipts from
National Forests.
Receipts from
National Forests,
per Acre.
Expenditures upon
National Forests,
per Acre.
  Acres. $ $ $ $ $
1898 40,866,184 20,000.00 · · · · · · · ·
1899 46,168,439 28,520.00 175,000.00 7,534.83 0.00016 0.0038
1900 46,515,039 48,520.00 210,000.00 36,754.02  .00078  .0045
1901 46,324,479 88,520.00 325,000.00 29,250.88  .00063  .0070
1902 51,896,357 185,440.00 300,000.00 25,431.87  .00049  .0060
1903 62,211,240 291,860.00 304,135.00 45,838.08  .00074  .0054
1904 62,611,449 350,000.00 375,000.00 58,436.19  .00093  .0072
1905 85,693,422 632,232.362 217,907.642 73,276.15  .00085  .0059
1906 106,994,018 1,191,400.21 · · 767,219.96  .00717  .0089
1907 150,832,665 1,800,595.20 · · 1,571,059.44  .01041  .0097
1909 167,677,749 2,948,153.08 · · 1,807,276.66  .00931  .0151

Until 1906, the sole source of receipts was the sale of timber. In the fiscal year 1907, however, timber sales furnished less than half the receipts. The following statement concerning the timber sales of the fiscal years 1904-1907 will serve to bring out the change that followed the transfer of control to the forest service in the midst of the fiscal year 1905:—

Fiscal
Year.
Amount of
Timber Sold.
Amount of
Timber Cut.
Receipts from
Timber Sales.
  Bd.-ft. Bd.-ft. $
1904 112,773,710 58,435,000 58,436.19
1905 113,661,508 68,475,000 73,270.15
1906 328,230,326 138,665,000 245,013.49
1907 1,044,855,000 194,872,000 686,813.12

These figures show (1) a large excess each year in the amount of timber sold over that cut and paid for; (2) nine times as much timber sold at the end of the four-year period as at the beginning and three times as much cut; and (3) a much higher price obtained per thousand board-feet at the end of the period than at the beginning. Each of these matters calls for comment. The sales are of stumpage only; the government does no logging on its own account.

1. More timber is sold each year than is cut and paid for, because many of the sales extend over several years. With increasing sales the amount sold each year for future removal has exceeded the amount to be removed during that year under sales of earlier years. Large sales covering a term of years are made because the national forests contain much overmature timber, which needs removal, but which is frequently too inaccessible to be saleable in small amounts. To prevent speculation the time allowed for cutting is never more than five years, and cutting must begin at once and be continued steadily.

2. The volume of sales has increased rapidly because much forest is ripe for the axe, the demand is strong, and control by trained men makes it safe to cut more freely. The increase is marked both in small and in large sales, but a score of sales for less than $5000 are made against one for more. The total cut is still far below the annual increment of the forests. As the demand grows restrictions must increase in order to husband the present supply until the next crop matures.

3. The stumpage price would seem on the face of the figures to have risen from about one dollar to more than three dollars per thousand board-feet. The receipts, however, for any one year are not exclusively for the timber cut in that year, since payments are made in advance. In the year 1907 the average price obtained was something less than $2.50 per thousand. It is therefore true that stumpage prices have risen greatly, although conditions new to the American lumbermen are imposed. Full utilization of all merchantable material, care of young growth in felling and logging, and the piling of brush, to be subsequently burned by the forest officers if burning is necessary, are among these conditions. Timber to be cut must first be marked by the forest officers. Sales of more than $100 in value are made only after public advertisement.

Only the simplest forms of silviculture have as yet been introduced. The vast area of the national forests, the comparatively sparse population of the West, the rough and broken character of the forests themselves, and the newness of the problems which their management presents, make the general application of intensive methods for the present impracticable. Natural reproduction is secured. The selection system is most used, often under the rough and ready method of an approximate diameter limit, with the reservation of seed trees where needed. The tendency, however, is strongly towards a more flexible and effective application of the selection principle, as a better trained field force is developed and as market conditions improve.

One conspicuous achievement was the reduction of loss by fires on the national forests. During the unusually dry season of 1905 there were only eight fires of any importance, and the area burned over amounted only to about .16 of 1% of the total area. In 1900 about .12 of 1% was burned. This was accomplished by efficient patrol, co-operation of the public, and by preventive measures, such as piling and burning the brush on cut-over areas.

Since the beginning of 1906 the largest source of income from the national forests was their use for grazing. Stock-raising is one of the most important industries of the West. Formerly cattle and sheep grazed freely on all parts of the public domain. In the early days of the national forests the wisdom of permitting any grazing at all upon them was sharply questioned. Unrestricted grazing had led to friction between individuals, the deterioration of much of the range through overstocking, and serious injury to the forests and stream flow. The forests of the West, however, are largely of open growth and contain many grassy parks, the results of old fires, and many high mountain meadows. Under proper regulations the grass and 656 other forage plants which they produce in great quantity can be used without detriment to the forests themselves, and with great benefit to the stock industry, which often can find summer pasturage nowhere else. Except in southern California grazing is now permitted on all national forests unless the watersheds furnish water for domestic use; but the time of entering and leaving, the number of head to be grazed by each applicant, and the part of the range to be occupied are carefully prescribed. Planted areas and cut-over areas are closed to stock until the young growth is safe from harm, and goats are allowed only in the brushland of the foothills.

The results of regulation, in addition to the protection of forest growth and streams, are the prevention of disputes, improved range, better stock, stable conditions in the stock industry, and the best use of the range in the interest of progress and development. The first right to graze stock on the forests is given to residents, small owners and those who have used the range before. Thus the crowding out of the weaker by the stronger and of the settler by the roving outsider has been stopped. In 1906 the forest service began to impose a moderate charge for the use of the national forest range. The following statement shows the amount of stock grazed on the national forests 1904-09, and the receipts for the grazing charge:—

Year. Number of
Cattle and Horses.
Number of
Sheep and Goats.
Receipts.
      $
1904 610,091 1,806,722 · ·
1905 692,124 1,709,987 · ·
1906 1,015,148 5,763,100 514,692.87
1907 1,200,158 6,657,083 863,920.32
1909 1,581,404 7,819,594 1,032,185.70

A work of enormous magnitude which has now begun is planting on the national forests. At present, with low stumpage prices and incomplete utilization of forest products, clear cutting with subsequent planting is not practicable. There are, however, many million acres of denuded land within the national forests which require planting. Such planting is still confined chiefly to watersheds which supply cities and towns with water. The first planting was done in 1892, in California. Since then similar work has been done on city watersheds in Colorado, Utah, Idaho and New Mexico. Other plantations are in the Black Hills national forest, where large areas of cut-over and burned-over land are entirely without seed trees, and in the sandhill region of Nebraska. Up to 1908 about 2,000,000 seedlings had been planted, on over 2000 acres—a small beginning, but the work was entirely new and presented many hard problems.

The nursery operations of the forest service are concentrated at seven stations, located in southern California, Nebraska, Colorado, New Mexico (2), Utah and Idaho, where stock is raised for local planting and for shipment elsewhere. These nurseries are small. Their annual productive capacity is between 8,000,000 and 10,000,000 seedlings. Each nursery is practically an experimental forest-planting station, at which a large variety of species are grown and various methods are tried.

The organization of the administrative work of the national forests is by single forests. On the 1st of January 1908 the total number of forests was 165 with a total area of 162,023,190 acres (on April 7, 1909, the numbers were 146 national forests in the U.S. with 167,672,467 acres, besides two in Alaska with 26,761,626 and one in Porto Rico with 65,950 acres). In charge of each forest is a forest supervisor. Under the supervisors are forest rangers and forest guards, whose duties include patrol, marking timber and scaling logs, enforcing the regulations and conducting some of the minor business arising from the use of the forests. Guards are temporary employés; rangers are employed by the year. The supervisors report directly to and receive instructions from the central office at Washington. In this office there are four branches—operation, grazing, silviculture and products—each of which directs that part of the work which belongs to it, dealing directly with the supervisor. For inspection purposes, however, the forests are separated into six districts, in each of which is located a chief inspector with a corps of assistants. The inspectors are without administrative authority, but assist by their counsel the supervisors, and through inspection reports keep the Washington office informed of the condition of all lines of administrative work in progress. Administrative officers alternate frequently between field and office duties.

The number of forest officers in the several grades on the 1st of January 1908 were: 6 chief inspectors, 26 inspectors, 106 forest supervisors, 41 deputy forest supervisors, 820 forest rangers and 283 forest guards. The total number of employés of the forest service on the same date, including the clerical force, was 2034.

Besides the administration of the national forests, the forest service conducts general investigations, carries on an extensive educational work, and co-operates with private owners who contemplate forest management upon their own tracts. This last work is undertaken because of the need of bringing forestry into practice, the lack of trained foresters outside of the employ of the government, and the lack of information as to how to apply forestry and what returns may be obtained. Co-operation takes the form of advice upon the ground and, on occasion, of the making of working plans. The educational work of the service is performed chiefly through publications, the purpose of which is to spread very widely a knowledge of the importance of forestry to the nation and of the principles upon which its practice rests. The investigations which the service conducts extend from studies of the natural distribution and classification of American forests and of their varied silvicultural problems to statistics of lumber production and laboratory researches which bear upon the economical utilization of forest products. As examples of these researches may be mentioned tests of the strength of timber, studies of the preservative treatment of wood for various uses, wood-pulp investigations and studies in wood chemistry.

Forest Instruction.—Most of the men now in the forest service received their training in the United States. There are several professional schools of forestry. The Yale Forest School, which was opened as a department of Yale University in September 1900, offers a two-years’ graduate course with abundant field work, and also conducts a summer school of forestry, especially adapted to the training of forest rangers and special students, at Milford, Pennsylvania. The university of Michigan and Harvard University also offer a two-years’ graduate course in forestry. The Pennsylvania State College has recently established a four-years’ undergraduate course in forestry. The Biltmore Forest School in North Carolina, the oldest of all these schools, offers a one-year course in technical forestry. A large number of the agricultural colleges give instruction in forestry. Among these are Nebraska, Minnesota, Maine, Michigan, Washington and Mississippi agricultural colleges, the university of Georgia and Iowa State College. Berea College, Kentucky, deserves special mention as a college which has done valuable work in teaching forestry without attempting to turn out professional foresters.

Forestry among the States.—Among the states forestry has hardly reached the stage of practical application on the ground. New York holds 1,500,000 acres of forest land. It has a commission to care for its forest preserve, and to protect the forest land throughout the state from fire. The constitution of the state, however, prohibits the cutting of timber on state land, and thus confines the work entirely to protection of the forest and to the planting of waste areas. Pennsylvania is at present showing the most efficient activity in working out a forest policy. It has state forests of 820,000 acres, a good fire law more and more satisfactorily enforced, and eight nurseries for growing planting material. In 1905, 160,000 white pine seedlings were set out. It has also a school for forest rangers, to be employed on the state forests, and it has just established a state professional school of forestry.

Twenty-six of the states have regularly appointed forest officers, six have carried on studies of forest conditions in co-operation with the forest service, and there is scarcely one which is not actively interested in forestry. Laws, generally good, to prevent damage from forest fires, have been enacted by practically all 657 the states, but their enforcement has unfortunately been lax. Public sentiment, however, is making rapid progress. Among the best laws are those of Maine, New Hampshire, Minnesota, New York, Pennsylvania and Wisconsin. The New York law, for example, provides for the appointment of one or more fire-wardens in each town of the counties in which damage by fire is especially to be feared. In other counties supervisors of towns are ex-officio fire-wardens. A chief fire-warden has general supervision of their work. The wardens, half of the cost of whose services is paid by the state, receive compensation only for the time actually employed in fighting fires. They may command the service of any citizen to assist them. Setting fire to woods or waste lands belonging to the state or to another, if such fire results in loss, is punishable by a fine not exceeding $250 or imprisonment not exceeding one year, or both, and damages are provided for the person injured. Since fire is beyond question the most dangerous enemy of forests in the United States, the measures taken against it are of vital importance.

The following table shows the amount of forest land held by the different states, and by the territory of Hawaii:—

Area of State Forest Reservations, 1907.

Connecticut 1,360 acres
Hawaii 117,532
Indiana 2,000
Maryland 3,540
Michigan 39,000
Minnesota 42,800
New Jersey 2,474
New York 1,439,998
Pennsylvania 820,000
Wisconsin 254,072

Forestry on Private Lands.—The practice of forestry among private owners is of old date. One of the earliest instances was that of Jared Eliot, who, in 1730, began the systematic cutting of timber land to supply charcoal for an iron furnace at Old Salisbury, Connecticut. The successful planting of waste lands with timber trees in Massachusetts dates from about ten years later. But such examples were comparatively rare until recent times. At present the intelligent harvesting of timber with a view to successive crops, which is forestry, is much more common than is usually supposed. Among farmers it is especially frequent. It was begun among lumbermen by the late E.S. Coe, of Bangor, Maine, who made a practice of restricting the cut of spruce from his forests to trees 10, 12 or sometimes even 14 in. in diameter, with the result that much of his land yielded, during his life, a second crop as plentiful as the first. Many owners of spruce lands have followed his example, but until very recently without improving upon it. Systematic forestry on a large scale among lumbermen was begun in the Adirondacks during the summer of 1898 on the lands of Dr W.S. Webb and Hon. W.C. Whitney, of a combined area of over 100,000 acres, under the superintendence of the then Division of Forestry. In these forests spruce, maple, beech and birch predominate, but the spruce alone is at present of the first commercial importance. The treatment is a form of the selection system. Under it a second crop of equal yield would be ripe for the axe in thirty-five years. Spruce and pine are the only trees cut. The work had been executed, at least up to the year 1902, with great satisfaction to the owners and the lumbering contractors, as well as to the decided benefit of the forest. The lumbering is regulated by the following rules, and competent inspectors are employed to see that they are rightly carried out: (1) No trees shall be cut which are not marked. (2) All trees marked shall be cut. (3) No trees shall be left lodged in the woods, and none shall be overlooked by the skidders or haulers. (4) All merchantable logs which are as large as 6 in. in diameter at the small end must be utilized. (5) No stumps shall be cut more than 6 in. higher than the stump is wide. (6) No spruce shall be used for bridges, corduroy, skids, slides, or for any purpose except building camps, dams or booms, unless it is absolutely necessary on account of lack of other timber. (7) All merchantable spruce used for skidways must be cut into logs and hauled out. (8) Contractors must not do any unnecessary damage to young growth in lumbering; and if any is done, they must discharge the men who did it.

These two instances of forestry have been most useful and effective among lumbermen and other owners of forest land in the north-east. Among those which have followed their example are the Berlin Mills Paper Company in northern New Hampshire, the Cleveland Cliffs Iron Company in northern Michigan, and the Delaware and Hudson Railroad Company in New York, all of which have employed professional foresters.

The most notable instance of forestry in the south is on the estate of George W. Vanderbilt at Biltmore, N.C. This was the first case of systematic forestry under regular working plans in the United States. It was begun in 1891 on about 4000 acres, and has since been extended until it now covers about 100,000 acres. A professional forester with a corps of trained rangers under him is in charge of the work. The Pennsylvania Railroad has recently employed a trained forester and several assistants and has undertaken systematic forestry on a large scale.

The effect of the work of the forest service in assisting private owners is evidenced by the fact that down to the year 1908 670 wood lots and timber tracts had been examined by agents of the forest service, of which 250 were tracts over 400 acres in extent, and planting plans had been made for 436 owners covering a total area of 80,000 acres. Expert advice is also given to wood lot owners upon application by many of the state foresters.

American Practice.—The conditions under which forestry is practised in Europe and in America differ so widely that rules which are received as axiomatic in the one must often be rejected in the other. Among these conditions in America are the highly developed and specialized methods and machinery of lumbering, the greater facilities for transportation and consequent greater mobility of the lumber trade, the vast number of small holdings of forest land, and the enormous supply of low-grade wood in the timbered regions. High taxes on forest properties, cut-over as well as virgin, notably in the north-western pineries, and the firmly established habits of lumbermen, are factors of great importance. From these and other considerations it follows that such generally accepted essentials of European methods of forestry as a sustained annual yield, a permanent force of forest labourers, a permanent road system and the like, are in most cases utterly inapplicable in the United States at the present day in private forestry. Methods of forest management, to find acceptance, must there conform as closely as possible to existing methods of lumbering. Rules of marked simplicity, the observance of which will yet secure the safety of the forest, must open the way for more refined methods in the future. For the present a periodic or irregular yield, temporary means of transport, constantly changing crews, and an almost total ignorance of the silvics of all but a few of the most important trees—all combine to enforce the simplest silvicultural treatment and the utmost concentration of purpose on the two main objects of forestry, which are the production of a net revenue and the perpetuation of the forest. Such concentration has been followed in practice by complete success.

The forests with which the American forester deals are rich in species, usually endowed with abundant powers of reproduction, and, over a large part of their range, greatly dependent for their composition and general character upon the action of forest fires. Of the commercially valuable trees there may be said to be, in round numbers, a hundred out of a total forest flora of about 500 species, but many trees not yet of importance in the lumber trade will become so hereafter, as has already happened in many cases. The attention of the forester must usually be concentrated upon the growth and reproduction of a single species, and never of more than a very few. Thus the silvicultural problems which must be solved in the practice of forestry in America are fortunately less complicated than the presence of so many kinds of trees in forests of such diverse types would naturally seem to indicate.

The forest fire problem is one of the most difficult with which the American forester has to deal. It is probable that forest 658 fires have had more to do with the character and distribution of forests in America than any other factor except rainfall. With an annual range over thousands of square miles, in many portions of the United States they occur regularly year after year on the same ground. Trees whose thick bark or abundant seeding gives them peculiar powers of resistance, frequently owe their exclusive possessions of vast areas purely to the action of fire. On the economic side fire is equally influential. The probability, or often the practical certainty, of fire after the first cut, commonly determines lumbermen to leave no merchantable tree standing. Forest fires are thus the most effective barriers to the introduction of forestry. Excessive taxation of timber land is another of almost equal effect. Because of it lumbermen hasten to cut, and afterwards often to abandon, lands which they cannot afford to hold. This evil, which only the progress of public sentiment can control, is especially prevalent in certain portions of the white pine belt.

Forest Associations.—Public sentiment in favour of the protection of forests is now widespread and increasingly effective throughout the United States. As the general understanding of the objects and methods of forestry becomes clearer, the tendency, formerly very marked, to confound ornamental tree planting and botanical matters with forestry proper is rapidly growing less. At the same time, the number and activity of associations dealing with forest matters is increasing with notable rapidity. There are now about thirty such associations in the United States. One of these, the Society of American Foresters, is composed exclusively of professional foresters. The American Forestry Association is the oldest and largest. It has been influential in preparing the ground work of popular interest in forestry, and especially in advocating and securing the adoption of the federal forest reservation policy, the most important step yet taken by the national government. It publishes as its organ a monthly magazine called Forestry and Irrigation. The Pennsylvania Forestry Association has been instrumental in placing that state in the forefront of forest progress. Its organ is a bi-monthly publication called Forest Leaves. Other states which have associations or societies of special influence in forest matters are California, Massachusetts, Minnesota, Colorado, New Hampshire, Georgia and Oregon. Arbor Day, instituted in Nebraska in 1872 as a day for shade-tree planting by farmers who had settled on the treeless prairies, has been taken up as a means of interesting school children in the planting of trees, and has spread until it is now observed in every state and territory. It continues to serve an admirable purpose.

Lumbering.—According to the census report for 1905 the capital invested in logging operations in the United States was $90,454,596, the number of employés engaged 146,596, and their wages $66,990,000; sawmills represented an invested capital of $381,621,000, and employed 223,674 persons, whose wages were $100,311,000, while planing mills represented a capital of $222,294,000 and employed 132,030 persons whose wages were $66,434,000.

Product. Output 1906. Equivalent
Wood
Volume.
Estimated
Woods
Waste.3
Estimated
Mill
Waste.4
Total Wood
Volume
Consumed.
      Million
cub. ft.
Million
cub. ft.
Million
cub. ft.
Million
cub. ft.
Lumber—            
  Conifers 30,200,000 thousand bd. ft. 2517 1173 2170 5860
  Hardwoods 7,300,000 thousand bd. ft. 612 577 461 1650
Shingles 11,900,000 thousand bd. ft. 107 54 109 270
Pulpwood 2,900,000 cords 261 79 · · 340
Wood distillation 1,200,000 cords 108 12 · · 120
Heading 146,000,000 sets 32 33 45 110
Staves—            
  Tight cooperage 267,000,000   22 36 32 90
  Slack cooperage 1,097,000,000   27 22 21 70
Poles 3,500,000   35 15 · · 50
Veneer 300,000 thousand bd. ft. 50 30 · · 80
Round mine timbers 165,000,000 cub. ft. 165 35 · · 200
Hewn cross ties 77,500,000   207 503 · · 710
      4143 2569 2838 9550

All the operations of the lumber trade in the United States are controlled, and to no small degree determined, by the peculiar unit of measure which has been adopted. This unit, the board-foot, is generally defined as a board one foot long, one foot wide and one inch thick, but in reality it is equivalent to 144 cub. in. of manufactured lumber in any form. To purchase logs by this measure one must first know about what each log will yield in one-inch boards. For this purpose a scale or table is used, which gives the contents of logs of various diameters and lengths in board feet. Under such a standard the purchaser pays for nothing but the saleable lumber in each log, the inevitable waste in slabs and sawdust costing him nothing.

The table at foot gives the estimated consumption of wood for certain purposes in the United States in 1906.

In addition to this amount, an immense quantity of wood is used each year for fuel, posts and other domestic purposes, and the total annual consumption is not less than 20 billion cub. ft.

The years 1890 to 1906 were marked by rapid changes in the rank of the important timber trees with reference to the amount of timber cut, and a shifting of the important centres of production. Among coniferous trees, white pine has yielded successively to yellow pine and Douglas fir, while the scene of greatest activity has shifted from the Northern forest to the Southern, and from there is rapidly shifting to the Pacific Coast. The total cut of coniferous lumber has increased steadily, but that of the hardwoods is falling off, and in 1906 it was 15% less than in 1899, while inferior hardwoods are gradually assuming more and more importance, and the scene of greatest activity has passed from the middle west to the south and the Appalachian region.

Conifers.—The coniferous supply of the country is derived from four forest regions: (1) The Northern forest; (2) the Southern forest; (3) the Pacific Coast forest; and (4) the Rocky Mountain forest.

1. The Northern forest was long the chief source of the coniferous lumber production in the United States. The principal timber tree of this region is the white pine, usually known in Europe as the Weymouth pine. It has an average height when mature of 110 ft., with a diameter a little less than 3 ft., but the virgin timber is approaching exhaustion. White pine was one of the first trees to be cut extensively in the United States, and Maine, the pine tree state, was at first the centre of production. In 1851 the cut of white pine on the Penobscot river was 144 million ft., that of spruce 14 million and of hemlock 11 million. Thirty years later the pine cut had sunk to 23 million, spruce had risen to 118 million, and hemlock had passed pine by a million feet. Meanwhile, the centre of production had passed from the north woods to the Lake States, and for many years this region was the scene of the most vigorous lumbering activity in the world. The following figures show the cut for the Lake 659 States from 1873 to 1906. It is certain that the remarkable decline in the cut of white pine which these figures show will continue still farther.

1873 3,993,780,000 1890 8,597,659,352
1874 3,751,306,000 1891 7,879,948,349
1875 3,968,553,000 1892 8,594,222,802
1876 3,879,046,000 1893 7,326,263,782
1877 3,595,333,496 1894 6,821,516,412
1878 3,629,472,759 1895 7,050,669,235
1879 4,806,943,000 1896 5,725,763,035
1880 5,651,295,000 1897 6,233,454,000
1881 6,768,856,749 1898 6,155,300,000
1882 7,552,150,744 1899 6,056,508,000
1883 7,624,789,786 1900 5,485,261,000
1884 7,935,033,054 1901 5,336,000,000
1885 7,053,094,555 1902 5,294,000,000
1886 7,425,368,443 1903 4,792,000,000
1887 7,757,916,784 1904 4,220,000,000
1888 8,388,716,460 1905 3,777,000,000
1889 8,183,050,755 1906 3,032,000,000

Second to the white pine among the coniferous lumber trees of the Northern forest is the hemlock (Tsuga canadensis). It is used chiefly for construction purposes and furnishes a comparatively low grade of lumber.

The spruce (Picea rubens) is used chiefly for lumber, but it is in large and increasing demand in the manufacture of paper pulp. For the latter purpose hemlock, poplar (Populus tremuloides and P. grandidentata) and several other woods are also employed, but on a smaller scale. The total consumption of wood for paper in the United States for 1906 was 3,660,000 cords, of which 2,500,000 was spruce. Of this, however, 720,000 cords were imported from Canada.

2. The chief product of the Southern forest is the yellow pine. This is the collective term for the longleaf, shortleaf, loblolly and Cuban pines. Of these the longleaf pine (Pinus palustris Mill.), called pitch-pine in Europe, is the most important. Its timber is probably superior in strength and durability to that of any other member of the genus Pinus, and in addition to its value as a timber tree it is the source of naval stores in the United States. The average size of the mature longleaf pine is 90 ft. in height and 20 in. in diameter. Shortleaf (Pinus echinata) and loblolly (P. taeda) are other important members of this group. Their wood very closely resembles that of the longleaf pine and is often difficult to distinguish from it. The trees are also of about the same size and height. Loblolly is, however, of more rapid growth. The total cut of yellow pine in 1906 was 11,661,000,000 board ft.; it has perhaps not yet reached its maximum, but is certainly near it.

Another important coniferous tree of the Southern forest is the bald cypress (Taxodium distichum), which grows in the swamps. The cut in 1906 was 839,000,000 board ft., a gain of 69% over 1899.

3. But the great supply of coniferous timber is now on the Pacific Coast. The Douglas fir (Pseudotsuga taxifolia), also known as Douglas spruce, red fir and Oregon pine, is the foremost tree in Oregon and Washington, and the redwood in California. When mature the Douglas fir averages 200 ft. in height and 4 ft. in diameter, and the redwood 225 ft. in height and 8 ft. in diameter. Other important trees of the Pacific Coast are sugar pine (Pinus lambertiana), western red cedar (Thuja plicata), western larch (Larix occidentalis), Sitka spruce (Picea sitchensis), western hemlock (Tsuga heterophylla) and western yellow pine (Pinus ponderosa). These trees will all be of increasing importance.

Logging on the Pacific Coast is characterized by the use of powerful machinery and by extreme skill in handling enormous weights. This is especially true in California, where the logs of redwood and of the big tree (Sequoia Washingtoniana) are often more than 10 ft. in diameter. Logging is usually done by wire cables operated by donkey-engines. The journey to the mill is usually by rail. The mills are often of great size, built on piles over tide water and so arranged that their product is delivered directly from the saws and dry kilns to vessels moored alongside. The products of the Pacific Coast forest make their way over land to the markets of the central and eastern states and into foreign markets. Among the lumber-producing states, Washington has in seven years jumped from fifth place to first, and its output has increased from 1,428,000,000 board ft. in 1899 to 4,305,000,000 ft. in 1906. Oregon and California have increased their output from 734,000,000 each in 1899 to 1,605,000,000 and 1,349,000,000 ft. respectively in 1906. Of the total output of these three states (7,259,000,000 ft.) 4,880,000,000 ft. is Douglas fir and 660,000,000 redwood.

4. The important lumber trees of the Rocky Mountain forest are the western yellow pine, the lodgepole pine, the Douglas fir and the Engelmann spruce. The Douglas fir, here extremely variable in size and value, reaches in this region average dimensions of perhaps 80 ft. in height by 2 ft. in diameter, the western yellow pine 90 ft. by 3 ft. and the Engelmann spruce 60 ft. by 2 ft. Mining, railroad and domestic uses chiefly absorb the annual timber product, which is considerable in quantity, and of vast importance to the local population. The lumber output of the Rocky Mountain region is, however, increasing very rapidly both in the north and in the south-west. One of the largest mills in the United States is in Idaho.

The following table summarizes the cut of the important coniferous species during the years 1899-1906:

Kind. 1899. 1904. 1906. Per Cent Increase
(+) or Decrease
(−) since 1899.
  Million
ft.
Million
ft.
Million
ft.
 
Yellow Pine 9,659 11,533 11,661 +  20.7
Douglas Fir 1,737 2,928 4,970 + 186.2
White Pine 7,742 5,333 4,584 −  40.8
Hemlock 3,421 3,269 3,537 +  3.4
Spruce 1,448 1,304 1,645 +  13.6
Western Pine 944 1,279 1,387 +  46.9
Cypress 496 750 839 +  69.3
Redwood 360 519 683 +  83.2
Cedar 233 223 358 +  53.7
  26,040 27,138 29,664 +  14

Hardwoods.—The hardwood supply of the country is derived almost entirely from the eastern half of the continent, and comes from each of the three great Eastern forest regions.

The following table shows the cut of the important species of hardwoods for 1899 and 1906:

Kind. 1899. 1906. Per Cent
Increase (+)
or Decrease (−).
  Thousand
Feet.
Thousand
Feet.
 
Oak 4,438,027 2,820,393 −  36.5
Maple 633,466 882,878 +  39.4
Poplar 1,115,242 693,076 −  37.9
Red gum 285,417 453,678 +  59.0
Chestnut 206,688 407,379 +  97.1
Basswood 308,069 376,838 +  22.3
Birch 132,601 370,432 + 179.4
Cottonwood 415,124 263,996 −  36.4
Beech (a) 275,661 · ·
Elm 456,731 224,795 −  50.8
Ash 269,120 214,460 −  20.8
Hickory 96,636 148,212 +  53.4
Tupelo (a) 47,882 · ·
Walnut 38,681 48,174 +  24.5
Sycamore 29,715 (a) · ·
All other 208,504 87,637 −  58.0
Total 8,634,021 7,315,491 −  15.3
a Not separately reported.

Oak, which in 1899 furnished over half the entire output, has fallen off 36.5%. Yellow poplar, which in 1899 was second among the hardwoods, has fallen off 38% and now occupies third place; and elm, the great stand-by in slack cooperage, has fallen 50.8%. On the other hand less valuable species like maple and red gum have advanced 39 and 59% respectively.

The decrease is largely due to the fact that the hardwoods grow naturally on the better classes of soil, and in the eastern 660 United States where the population has always been the densest, and as a consequence of this, a large proportion of the original hardwood land has been cleared up and put under cultivation. The hardwood supply of the future must be obtained chiefly from the Appalachian region, where the conditions are less favourable to agriculture.

In addition to the lumber cut, enormous quantities of hardwoods are used each year for railroad ties, telephone and other poles, piles, fence posts and fuel, and there is a great amount of waste in the course of lumbering and manufacture.

Authorities.—Sargent, Silva of North America (Boston, 1891-1897), Manual of Trees of North America (Boston, 1903); Lemmon, Handbook of West American Cone-Bearers (San Francisco, 1895); Bruncken, North American Forests and Forestry (New York, 1900); Fernow, Economics of Forestry (New York, 1902); Pinchot, The Adirondack Spruce (New York, 1898); Pinchot and Graves, The White Pine (New York, 1896). See also the various publications of the U.S. forest service, including especially the following general works: Forest Influences; Primer of Forestry; the Timber Supply of the United States; the Waning Hardwood Supply; Forest Products of the United States in 1906; Exports and Imports of Forest Products in 1906; Federal and State Forest Laws; Regulations and Instructions for the Use of the National Forests; The Use of the National Forests; also part v. of the Nineteenth and of the Twenty-first Annual Reports of the United States Geological Survey, and vol. ix. of the 10th Census Report on the Forests of North America; and Reports of the State Forestry Commissions of New York, New Hampshire, Maine, Pennsylvania, Michigan, Ohio, &c., and of the State Geological Surveys of New Jersey, Maryland and North Carolina.

(G. P.)

1 The United States fiscal year ends June 30, and receives its designation from the calendar year in which it terminates. Thus, the fiscal year 1898 is the year July 1, 1897-June 30, 1898.

2 Administration transferred to Bureau of Forestry, February 1, 1905.

3 Woods waste includes tops, stumps, cull logs and butts, but does not include defective trees left or trees used for road purposes.

4 Mill waste includes bark, kerf, slabs and edgings.


FOREY, ÉLIE FRÉDÉRIC (1804-1872), marshal of France, was born at Paris on the 5th of January 1804, and entered the army from St Cyr in 1824. He took part in the earlier Algerian campaigns, and became captain in 1835. Four years later he was given command of a battalion of chasseurs à pied and in 1844 he became colonel. At the Revolution of 1848 Cavaignac made him a general of brigade. He took an active part in the coup d’état of the 2nd of December 1851, and Napoleon III. made him a general of division shortly afterwards. He held a superior command in the Crimean War, and in the Italian campaign of 1859 distinguished himself very greatly in the action of Montebello (20th May). In 1862 Forey was placed in command of the French expeditionary corps in Mexico, with the fullest civil and military powers, and he crowned a successful campaign by the capture of Mexico city in May 1863, receiving as his reward the marshal’s bâton. From December 1863 to 1867 he held high commands in France, but in the latter year he was struck with paralysis and had to retire. Marshal Forey died at Paris on the 20th of June 1872.


FORFAR, a royal, municipal and police burgh, and capital of the county of Forfarshire, Scotland. Pop. (1901) 12,117. It lies at the east end of the Loch of Forfar in the valley of Strathmore, and is 13 m. N. by E. of Dundee by road and 21¼ m. by the Caledonian railway. It is also situated on the same company’s main line to Aberdeen and sends off a branch to Brechin. The principal buildings comprise the court house, the county hall (with portraits by Raeburn, Romney, Opie and others), the town hall, the Meffan Institute (including the free library), the infirmary, poorhouse and the Reid hall, founded by Peter Reid, a merchant in the burgh who also gave the public park. The burgh unites with Montrose, Arbroath, Brechin and Inverbervie (the Montrose group of burghs) in returning one member to parliament. The Loch of Forfar, 1¼ m. long by ¼ m. wide, is drained by Dean Burn, and contains pike and perch. On a gravel bank or spit in the north-west of the lake stood a castle which was sometimes used as a residence by Margaret, queen of Malcolm Canmore. The staple industries are linen and jute manufactures, but brewing, tanning, bleaching, rope-making and iron-founding are also carried on.

Forfar is at least as old as the time of Malcolm Canmore, for the first parliament after the defeat of Macbeth met in the old castle, which stood on a mound on the northern side of the town. The parliaments of William the Lion, Alexander II. and Robert II. also assembled within its walls. The town, which was created a royal burgh by David I., was burnt down about the middle of the 13th century. Edward I. captured the castle on one of his incursions, but in 1307 Robert Bruce seized it, put its defenders to the sword and then destroyed it, its site being now marked by the town cross. Previous to the reign of James VI. the weekly market was held on Sunday, but after the union of the crowns parliament enacted that it should be held on Friday. The town sided with Charles I. during the Civil War, and Charles II. presented the Cross to it out of regard for the loyalty shown to his father. Forfar seems to have played a less reputable part in the persecution of witches. In 1661 a crown commission was issued for the trial of certain miserable creatures, some of whom were condemned to be burnt. In the same year one John Ford for his services as a witch-finder was admitted a burgess along with Lord Kinghorne. The witches’ bridle, a gag to prevent them from speaking whilst being led to execution, is still preserved in the county hall. One mile to the E. lie the ruins of Restennet Priory, where a son of Robert Bruce was buried. For twenty five years after the Reformation it was used as the parish church and afterwards by the Episcopalians, until they obtained a chapel of their own in 1822.


FORFARSHIRE, or Angus, an eastern county of Scotland, bounded N. by the shires of Kincardine and Aberdeen, W. by Perthshire, S. by the Firth of Tay and E. by the North Sea. It has an area of 559,171 acres, or 873.7 sq. m. The island of Rossie and the Bell Rock belong to the shire.

Forfarshire is characterized by great variety of surface and may be divided physically into four well-marked sections. In the most northerly of these many of the rugged masses of the Grampians are found; this belt is succeeded by Strathmore, or the Howe of Angus, a fertile valley, from 6 to 8 m. broad, which is a continuation of the Howe of the Mearns, and runs south-westwards till it enters Strathearn, to the south-west of Perth; then come the Sidlaw Hills and a number of isolated heights, which in turn give way to the plain of the coast and the Firth. The mountains are all in the northern division and belong to the Binchinnin group (sometimes rather inexactly called the Braes of Angus) of the Grampian ranges. Among the highest masses, most of which lie on or near the confines of the bordering counties, are Glas Maol(3502 ft.), on the summit of which the shires of Aberdeen, Forfar and Perth meet, Cairn-na-Glasha (3484), Fafernie (3274), Broad Cairn (3268), Creag Leacach (3238), Tolmount (3143), Tom Buidhe (3140), Driesh (3105), Mount Keen (3077) and Mayar (3043), while peaks of upwards of 2000 ft. are numerous. The Sidlaw Hills—the greater part of which, however, belongs to Perthshire—are much less lofty and of less striking appearance. They have a breadth of from 3 to 6 m., the highest points within the county being Craigowl Hill (1493 ft.), Auchterhouse Hill (1399) and Gallow Hill (1242). None of the rivers is navigable, and only three are of any importance. The Isla, rising in Cairn-na-Glasha, flows southwards, then turns S.E. and finally S.W. till it enters the Tay after a course of 45 m. Its chief tributaries on the right are the Alyth, Ericht and Lunan, and on the left the Newton, Melgam and Dean. Near Bridge of Craig is the fall of Reekie Linn (70 ft.), so named from the fact that when the stream is in flood the spray rises in a dense cloud like smoke (reek). Near old Airlie Castle are the cascades called the Slugs of Auchrannie. The North Esk, formed by the confluence of the Lee and Mark at Invermark, after a south-easterly course of 28 m. enters the North Sea 3 m. N. of Montrose. On the right bank it receives the West Water and Cruick and on the left the Tarf and Luther. It gives the title of earl of Northesk to a branch of the Carnegie family. The South Esk rises in the Grampians near Mount Fafernie and not far from its source forms the Falls of Bachnagairn; after flowing towards the south-east, it bends eastwards near Tannadice and reaches the North Sea at Montrose, the length of its course being 48 m. Its principal affluents are the Prosen on the right and the Noran on the left. It supplies the title of earl of Southesk to another branch of the Carnegies. The lakes are small, the two largest being the Loch of Forfar and the mountain-girt Loch Lee (1 m. long by ¼ m. wide). Lintrathen (circular in shape and about ¾ m. across), to the north of Airlie Castle, supplies Dundee with drinking water. The glens of the Forfarshire 661 Grampians are remarkable for their beauty, and several of them for the wealth of their botanical specimens. The largest and finest of them are Glen Isla, in which are the ruins of Forter Castle, destroyed by Argyll in 1640, and the earl of Airlie’s shooting-lodge of the Tulchan; Glen Clova, near the entrance to which stands Cortachy Castle, the seat of the earl of Airlie; Glen Esk and Glen Prosen.

Geology.—A great earth fracture traverses this county from near Edzell on the N.E. to Lintrathen Loch on the S.W. Between Cortachy and the south-western boundary this fault runs in Old Red Sandstone, but north-east of that place it forms the junction line of Silurian and Old Red; and in a general way we may say that on the N.W. side of the fault the metamorphosed Silurian rocks are found, while the remainder of the county is occupied by the Old Red Sandstone. On the margin of the disturbance the Silurian rocks are little-altered grey and green clay slates with bands of pebbly grit; farther towards the N.W. we find the same rocks metamorphosed into mica schists and gneisses with pebbly quartzites. Rising up through the schists between Carn Bannock and Mount Battock is a great mass of granite. The Old Red Sandstone extends from this county into Perthshire and Kincardineshire; here some 20,000 ft. of these deposits are seen; an important part being formed of volcanic tuffs and lavas which are regularly interbedded in the sandstones and conglomerates. North of Dundee some of the lower beds are traversed by intrusive dolerites, and Dundee Law is probably the remains of an old vent through which some of the contemporaneous lavas, &c., were discharged. The Old Red Rocks have been subjected to a good deal of folding, as may be seen along the coast. The principal direction of strike is from N.E. to S.W. A synclinal fold occupies Strathmore, and between Longforgan and Montrose the northern extension of the Sidlaw Hills is an anticlinal fold. Two fish-bearing beds occur in the county; from the lower one many large Eurypterids have been obtained. The well-known paving flags of Arbroath belong to the lower part of the formation. The Upper Old Red Sandstone is found only in one spot about a mile north of Arbroath. During the Glacial period the ice travelled south-eastward across Strathmore and over the Sidlaw Hills; abundant evidence of this transporting agent is to be seen in the form of morainic deposits, the most striking of which is the great transverse barrier of Glenairn in the valley of the S. Esk, half a mile in length and about 200 ft. high. Relics of the same period are found round the coast in the form of raised beaches at 100, 50 and 25 ft. above the present sea-level.

Climate and Agriculture.—On the whole the climate is healthy and favourable to agricultural pursuits. The mean temperature for the year is 47.3° F., for January 38° and for July 59°. The average annual rainfall is 34 in., the coast being considerably drier than the uplands. In the low-lying districts of the south the harvest is nearly as early as it is in the rest of Scotland, but in the north it is often late. The principal wheat districts are Strathmore and the neighbourhood of Dundee and Arbroath; and the yield is well up to the best Scottish average. Barley, an important crop, has increased steadily. Oats, however, though still the leading crop, have somewhat declined. Potatoes are mostly grown near the seaboard in the higher ground; turnips also are largely raised. The northern belt, where it is not waste land, has been turned into sheep walks and deer forests. The black-faced sheep are the most common in the mountainous country; cross-bred sheep in the lowlands. Though it is their native county (where they date from 1808), polled Angus are not reared so generally as in the neighbouring shire of Aberdeen, but shorthorns are a favourite stock and Irish cattle are imported for winter-feeding. Excepting in the vicinity of the towns there are no dairy farms. Horses are raised successfully, Clydesdales being the commonest breed, but the small native garrons are now little used. Pigs also are reared. Save perhaps in the case of the crofts, or very small holdings of less than 10 acres, farm management is fully abreast of the times.

Other Industries.—The staple industries are the jute and flax manufactures. Their headquarters are in Dundee, but they flourish also at other places. Shipbuilding is carried on at Dundee, Arbroath and Montrose. The manufactures of jams, confectionery, leather, machinery, soap and chemicals, are all of great and growing value. Sandstone quarries employ many hands and the deep-sea fisheries, of which Montrose is the centre, are of considerable importance. The netting of salmon at the mouth of the North Esk is also a profitable pursuit.

Two railway companies serve the county. The North British, entering from the south by the Tay Bridge, follows the coast north-eastwards, sending off at Montrose a branch to Bervie. The Caledonian runs up Strathmore to Forfar, whence it diverges due east to Guthrie, where it again resumes its north-easterly course to Dubton and Marykirk; it reaches Dundee from Perth by the shore of the estuary of the Tay, and sends branches from Dundee to Kirriemuir via Monikie and Forfar and to Alyth Junction via Newtyle, while a short line from Dubton gives it touch with Montrose.

Population and Government.—The population was 277,735 in 1891, and 284,083 in 1901, when 1303 spoke Gaelic and English, and 13 Gaelic only. The chief towns are Arbroath (pop. in 1901, 22,398), Brechin (8941), Broughty Ferry (10,484), Carnoustie (5204), Dundee (161,173), Forfar (11,397), Kirriemuir (4096), Monifieth (2134) and Montrose (12,427). Forfarshire returns one member to Parliament. It is a sheriffdom and there is a resident sheriff-substitute at Dundee and another at Forfar, the county town, and courts are held also at Arbroath. In addition to numerous board schools there are secondary schools at Dundee, Montrose, Arbroath, Brechin, Forfar and Kirriemuir, and technical schools at Dundee and Arbroath. Many of the elementary schools earn grants for higher education. The county council and the Dundee and Arbroath town councils expend the “residue” grant in subsidizing science and art and technical schools and classes, including University College, the textile school, the technical institute, the navigation school, and the workshop schools at Dundee, the technical school at Arbroath, besides cookery, dairy, dress-cutting, laundry, plumbing and veterinary science classes at different places.

History.—In the time of the Romans the country now known as Forfarshire was inhabited by Picts, of whose occupation there are evidences in remains of weems, or underground houses. Traces of Roman camps and stone forts are common, and there are vitrified forts at Finhaven, Dumsturdy Muir, the hill of Laws near Monifieth and at other points. Spearheads, battle-axes, sepulchral deposits, Scandinavian bronze pins, and other antiquarian relics testify to periods of storm and stress before the land settled down into order, towards which the Church was a powerful contributor. In the earliest days strife was frequent. The battle in which Agricola defeated Galgacus is supposed to have occurred in the Forfarshire Grampians (A.D. 84); the Northumbrian King Egfrith and the Pictish king Burde fought near Dunnichen in 685, the former being slain; conflicts with the Danes took place at Aberlemno and other spots; Elpin king of the Scots was defeated by Aengus in the parish of Liff in 730; at Restennet, about 835, the Picts and Scots had a bitter encounter. In later times the principal historical events, whether of peace or war, were more immediately connected with burghs than with the county as a whole. There is some doubt whether the county was named Angus, its title for several centuries, after a legendary Scottish prince or from the hill of Angus to the east of the church of Aberlemno. It was early governed by hereditary earls and was made a hereditary sheriffdom by David II. The first earl of Angus (by charter of 1389) was George Douglas, an illegitimate son of the 1st earl of Douglas by Margaret Stuart, who was countess of Angus in her own right. On the death of the 1st and only duke of Douglas, who was also 13th earl of Angus, in 1761, the earldom merged in the dukedom of Hamilton. Precisely when the shire became known by the name of the county town has not been ascertained, but probably the usage dates from the 16th century. Among old castles are the roofless square tower of Red Castle at the mouth of the Lunan; the tower of the castle of Auchinleck; the stronghold of Inverquharity near Kirriemuir; the castle of Finhaven; the two towers of old Edzell Castle; the ruins of Melgund Castle, which are fairly complete; the small castle of Newtyle, and the old square tower and gateway of the castle of Craig.

See A. Jervise, Memorials of Angus and Mearns (Edinburgh, 1895); Land of the Lindsays (Edinburgh, 1882); Epitaphs and Inscriptions (Edinburgh, 1879); Earl of Crawford, Lives of the 662 Lindsays (London, 1835); Sir W. Fraser, History of the Carnegies (Edinburgh, 1867); A.H. Millar, Historical Castles and Mansions (Paisley, 1890); G. Hay, History of Arbroath (Arbroath, 1876); D.D. Black, History of Brechin (Edinburgh, 1867).


FORFEITURE (from “forfeit,” originally an offence, and hence a fine exacted as a penalty for such; derived through the O. Fr. forfait, from the late Lat. foris factum, a trespass, that which is done foris, outside), in English law, the term applied (1) to loss or liability to the loss of property in consequence of an offence or breach of contract; (2) to the property of which the party is deprived.

Under the common law, conviction and attainder on indictment for treason or felony was followed not only by forfeiture of the life of the offender, but also by forfeiture of his lands and goods. In the case of treason all the traitor’s lands of whomsoever holden were forfeited to the king; in the case of felony (including felo-de-se, or suicide), the felon’s lands escheated (exceciderunt) to his immediate lord, subject to the king’s right to waste them for a year and a day. This rule did not apply to lands held in gavelkind in the county of Kent. The goods of traitors and felons were forfeited to the king. The desire of the king and his officers to realize the profits of these forfeitures was one of the chief motives for instituting the circuits of the king’s justices throughout England; and from time to time conflicts arose from attempts by these justices to extend the law of treason—under which the king levied all the forfeitures—at the expense of felony, in which the lord of the felon benefited by the escheats. As regards theft, the king’s rights overrode those of the owner of the stolen property, until, in the reign of Henry VIII., provision was made for restitution of the goods to the owner if he prosecuted the thief to conviction. In Pepys’s Diary, 21st of January 1667-1668, will be found an illustration of the working of the old law. We find that on the suicide of his brother-in-law, Pepys at once applied to the king personally and obtained a grant of the brother-in-law’s estate in favour of his widow and children should the inquest find a verdict of felo-de-se. It was common practice for persons anticipating conviction for treason or felony to assign all their property to others to avoid the forfeiture; and in some instances the accused refused to plead to the indictment and endured the peine forte et dure, until death supervened, to avoid these consequences of conviction. The royal rights to forfeitures arising within particular areas were frequently granted by charter to corporations or individuals. In 1897 the courts had to interpret such charters granted to the town of Nottingham in 1399 and 1448. All forfeitures and escheats with respect to conviction and attainder for treason and felony were abolished as from the 4th of July 1870, except forfeitures consequent upon the now disused process of outlawry, and the forfeitures included in the penalties of praemunire.

The term “forfeit” is also applied to penalties imposed by statute for acts or omissions which are neither treasonable nor felonious. In such statutes the forfeiture enures in favour of the crown unless the statute indicates another destination; and unless a particular method of enforcing the forfeiture is indicated it is enforceable as a debt to the crown and has priority as such. The words “forfeit and pay” are often used in imposing a pecuniary penalty for a petty misdemeanour, and where they are used the court dealing with the case must not only convict the offender but adjudicate as to the forfeiture.

Statutory forfeitures in some cases extend to specific chattels, e.g. of a British merchant-ship when her character as such is fraudulently dissimulated (Merch. Shipp. Act 1894, ss. 70, 76), or of goods smuggled in contravention of the customs acts or books introduced in violation of the copyright acts. Recognisances are said to be forfeited when the conditions are broken and an order of court is made for their enforcement as a crown debt against the persons bound by them.

The term “forfeiture” is now most commonly used with reference to real property, i.e. with reference to the rights of lords of the manor or lessors to determine the estate or interest of a copyholder or lessee for breach of the customary or contractual terms of tenure. It is also applied to express the deprivation of a limited owner of settled property, real or personal, for breach of the conditions by which his rights are limited; e.g. by becoming bankrupt or attempting to charge or alienate his interest. As a general rule, the courts “lean against forfeitures” of this kind; and are astute to defeat the claim of the superior landlord or other person seeking to enforce them. By legislation of 1881 and 1892 there is jurisdiction to grant relief upon terms against the forfeiture of a lease for breach of certain classes of covenant, e.g. to pay rent or to insure.


FORGERY (derived through the French from Latin fabricare, to construct), in English law, “the fraudulent making or alteration of a writing to the prejudice of another man’s right,” or “the false making, or making malo animo, of any written instrument for the purpose of fraud or deceit.” This definition, it will be seen, comprehends all fraudulent tampering with documents. “Not only the fabrication and false making of the whole of a written instrument, but a fraudulent insertion, alteration or erasure, even of a letter, in any material part of a true instrument whereby a new operation is given to it, will amount to forgery,—and this though it be afterwards executed by another person ignorant of the deceit” (Russell on Crimes and Misdemeanours, vol. ii.). Changing the word Dale into Sale in a lease, so that it appears to be a lease of the manor of Sale instead of the manor of Dale, is a forgery. And when a country banker’s note was made payable at the house of a banker in London who failed, it was held to be forgery to alter the name of such London banker to that of another London banker with whom the country banker had subsequently made his notes payable. As to the fraud, “an intent to defraud is presumed to exist if it appears that at the time when the false document was made there was in existence a specific person, ascertained or unascertained, capable of being defrauded thereby; and this presumption is not rebutted by proof that the offender took or intended to take measures to prevent such person from being defrauded in fact, nor by the fact that he had or thought he had a right to the thing to be obtained by the false document” (Stephen’s Digest of the Criminal Law). Thus when a man makes a false acceptance to a bill of exchange, and circulates it, intending to take it up and actually taking it up before it is presented for payment, he is guilty of forgery. Even if it be proved as a matter of fact that no person could be defrauded (as when A forges a cheque in B’s name on a bank from which B had withdrawn his account), the intent to defraud will be presumed. But it would appear that if A knew that B had withdrawn his account, the absence of fraudulent intention would be inferred. A general intention to cheat the public is not the kind of fraud necessary to constitute forgery. Thus if a quack forges a diploma of the college of surgeons, in order to make people believe that he is a member of that body, he is not guilty of forgery.

The crime of forgery in English law has been from time to time dealt with in an enormous number of statutes. It was first made a statutory offence in 1562, and was punishable by fine, by standing in the pillory, having both ears cut off, the nostrils slit up and seared, the forfeiture of land and perpetual imprisonment. It was made capital, without benefit of clergy in 1634. The most notable cases of those who have suffered the extreme penalty of the law are those of the Rev. Dr W. Dodd in 1777, for forging Lord Chesterfield’s name on a bond, and Henry Fauntleroy, a partner in the banking-house of Marsh, Sibbald & Co., for the appropriation by means of forged instruments of money entrusted to the bank, in 1824. “Anthony Hammond, in the title Forgery of his Criminal Code, has enumerated more than 400 statutes which contain provisions against the offence” (Sir J.T. Coleridge’s notes to Blackstone). Blackstone notices the increasing severity of the legislature against forgery, and says that “through the number of these general and special provisions there is now hardly a case possible to be conceived wherein forgery that tends to defraud, whether in the name of a real or fictitious person, is not made a capital crime.” These acts were consolidated in 1830. The later 663 statutes, fixing penalties from penal servitude for life downwards, were consolidated by the Forgery Act 1861. It would take too much space to enumerate all the varieties of the offence with their appropriate punishments. The following condensed summary is based upon chapter xlv. of Sir J. Stephen’s Digest of the Criminal Law:

1. Forgeries punishable with penal servitude for life as a maximum are—

(a) Forgeries of the great seal, privy seal, &c.

(b) Forgeries of transfers of stock, India bonds, exchequer bills, bank-notes, deeds, wills, bills of exchange, &c.

(c) Obliterations or alterations of crossing on a cheque.

(d) Forgeries of registers of birth, &c., or of copies thereof and others.

2. Forgeries punishable with fourteen years’ penal servitude are—

(a) Forgeries of debentures.

(b) Forgeries of documents relating to the registering of deeds, &c.

(c) Forgeries of instruments purporting to be made by the accountant general and other officers of the court of chancery, &c.

(d) Drawing bill of exchange, &c., on account of another, per procuration or otherwise, without authority.

(e) Obtaining property by means of a forged instrument, knowing it to be forged, or by probate obtained on a forged will, false oath, &c.

3. Forgeries punishable with seven years’ penal servitude:—Forgeries of seals of courts, of the process of courts, of certificates, and of documents to be used in evidence, &c.

By the Merchandise Marks Acts 1887 and 1891, forgery of trade marks is an offence punishable on conviction by indictment with imprisonment not exceeding two years or to fine, or both, and on conviction by summary proceedings with imprisonment not exceeding four months or with a fine.

The Forged Transfers Act 1891, made retrospective by the Forged Transfers Act 1892, enables companies and local authorities to make compensation by a cash payment out of their funds for any loss arising from a transfer of their stocks, shares or securities through a forged transfer.

United States.—Forgery is made a crime by statute in most if not all the states, in addition to being a common law cheat. These statutes have much enlarged the common definition of this crime. It is also made a crime by a Federal statute (U.S. Rev. Stat., ch. 5), which includes forgery of national banknotes, letters patent, public bid, record, signature of a judge, land warrants, powers of attorney, ships’ papers or custom-house documents, certificates of naturalization, &c.; the punishment is by fine or by imprisonment from one to fifteen years with or without hard labour.

In Illinois, fraudulently connecting together different parts of several banknotes or other genuine instruments so as to produce one additional note or instrument with intent to pass all as genuine, is a forgery of each of them (Rev. Stats. 1901, ch. 38, § 108). The alleged instrument must be apparently capable of defrauding (Goodman v. People [1907], 228, Ill. 154).

In Massachusetts, forgery of any note, certificate or bill of credit issued by the state treasurer and receiver general, or by any other officer, for a debt of that commonwealth, or a bank bill of any bank, is punishable by imprisonment for life or any term of years (Rev. Laws 1902, ch. 209, §§ 4 and 5).

In New York, forgery includes the false making, counterfeiting, alteration, erasure or obliteration of a genuine instrument (Penal Code, § 520). An officer or agent of a corporation who with intent to defraud sells, pledges or issues a fraudulent scrip, share certificate, is guilty of forgery in third degree. Falsely making any instrument which purports to be issued by a corporation bearing a pretended signature of a person falsely indicated as an officer of the company, is forgery just as if such person were in truth such officer (id. § 519). Counterfeiting railroad tickets is forgery in the third degree. Falsely certifying that the execution of a deed has been acknowledged is forgery (id. § 511). So also is the forging a fictitious name (People v. Browne [1907], 103 N.Y. suppl. 903). Punishment for forgery in the first degree may be twenty years, in the second degree ten years, in the third degree five years.

In Pennsylvania, fraudulently making, signing, altering, uttering or publishing any written instrument other than bank bills, cheques or drafts, was punishable by fine and imprisonment “by separate or solitary confinement at labour for a term not exceeding ten years” (L. 1860, March 31); forging bank bills, &c., for a term not exceeding five years. Defacing, removing, or counterfeiting brands from lumber floating in any river is punishable by imprisonment for a term not exceeding two years or a fine (L. 1887, May 23). Fraudulently using the registered mark of another on lumber is punishable by fine or imprisonment by solitary confinement for a term not exceeding three years (id.).

In Tennessee, forgery may be committed by typewriting the body of and signature to an instrument which may be the subject of forgery (1906; State v. Bradley, 116 Tenn. 711).

In Vermont, the act of 1904, p. 135, no. 115, § 24, authorizes licensees to sell intoxicating liquors only on the written prescription of a legally qualified physician stating that it “is given and necessary for medicinal use.” It was held that a prescription containing no such statement was invalid and the alteration thereof was not forgery (1906; State v. McManus, 78 St. 433).

Authorities.—Pollock and Maitland, History of English Law; Stephen, Digest of Criminal Law; History of Criminal Law; L.O. Pike, History of Crime in England, 1873-1876; Russell, On Crimes; Archbold, Criminal Pleadings.


FORGET-ME-NOT, or Scorpion-Grass (Ger. Vergissmeinnicht, Fr. grémillet, scorpionne), the name popularly applied to the small annual or perennial herbs forming the genus Myosotis of the natural order Boraginaceae, so called from the Greek μῦς, a mouse, and οὖς, an ear, on account of the shape of the leaves. The genus is represented in Europe, north Asia, North America and Australia, and is characterized by oblong or linear stem-leaves, flowers in terminal scorpioid cymes, small blue, pink or white flowers, a five-cleft persistent calyx, a salver- or funnel-shaped corolla, having its mouth closed by five short scales and hard, smooth, shining nutlets. The common or true forget-me-not, M. palustris, is a perennial plant growing to a height of 6 to 18 in., with rootstock creeping, stem clothed with lax spreading hairs, leaves light green, and somewhat shining, buds pink, becoming blue as they expand, and corolla rotate, broad, with retuse lobes and bright blue with a yellow centre. The divisions of the calyx extend only about one-third the length of the corolla, whereas in the other British species of Myosotis it is deeply cleft. The forget-me-not, a favourite with poets, and the symbol of constancy, is a frequent ornament of brooks, rivers and ditches, and, according to an old German tradition, received its name from the last words of a knight who was drowned in the attempt to procure the flower for his lady. It attains its greatest perfection under cultivation, and, as it flowers throughout the summer, is used with good effect for garden borders; a variety, M. strigulosa, is more hairy and erect, and its flowers are smaller. In M. versicolor the flowers are yellow when first open and change generally to a dull blue; sometimes they are permanently yellowish-white. Of the species in cultivation, M. dissitiflora, 6 to 8 in., with large handsome abundant sky-blue flowers, is the best and earliest, flowering from February onwards; it does well in light cool soils, preferring peaty ones, and should be renewed annually from seeds or cuttings. M. rupicola, or M. alpestris, 2 to 3 in., intense blue, is a fine rock plant, preferring shady situations and gritty soil; M. azorica (a native of the Azores) with purple, ultimately blue flowers about half an inch across, has a similar habit but larger flowers; M. sylvatica, 1 ft., blue, pink or white, used for spring bedding, should be sown annually in August.


FORGING, the craft of the smith, or “blacksmith,” exercised on malleable iron and steel, in the production of works of constructive utility and of ornament. It differs from founding (q.v.) in the fact that the metal is never melted. It is essentially a moulding process, the iron or steel being worked at a full red, or white, heat when it is in a plastic and more or less pasty condition. Consequently the tools used are in the main counterparts of the shapes desired, and they mould by impact. All the operations of forging may be reduced to a few very simple ones: (1) Reducing or drawing down from a larger to a smaller section (“fullering” and “swaging”); (2) enlargement of a smaller to a larger portion (“upsetting”); (3) bending, or turning round 664 to any angle of curvature; (4) uniting one piece of metal to another (“welding”); (5) the formation of holes by punching; and (6) severance, or cutting off. These include all the operations that are done at the anvil. In none of these processes, the last excepted, is the use of a sharp cutting tool involved, and therefore there is no violence done to the fibre of the malleable metal. Nor have the tools of the smith any sharp edges, except the cutting-off tools or “setts.” The essential fact of the flow of the metal, which is viscous when at a full red heat, must never be lost sight of; and in forging wrought iron the judgment of the smith must be exercised in arranging the direction of the fibre in a way best calculated to secure maximum strength.

Fig. 1.

Fullering denotes the preliminary roughing-down of the material between tools having convex edges; swaging, the completion or finishing process between swages, or dies of definite shape, nearly hemispherical in form. When a bar has to be reduced Fullering and swaging. from larger to smaller dimensions, it is laid upon a fuller or round-faced stake, set in the anvil, or, in some cases, on a flat face (fig. 1), and blows are dealt upon that portion of the face which lies exactly opposite with a fullering tool A, grasped by a rather loosely-fitting handle and struck on its head by a sledge. The position of the piece of work is quickly changed at brief intervals in order to bring successive portions under the action of the swages until the reduction is completed; the upper face, and if a bottom fuller is used the under face also, is thus left corrugated slightly. These corrugations are then removed either by a flatter, if the surfaces are plane (fig. 2), or by hollow swages, if the cross section is circular (fig. 3). Spring swages (fig. 4) are frequently used instead of separate “top and bottom tools.” Frequently swaging is practised at once, without the preliminary detail of fullering. It is adopted when the amount of reduction is slight, and also when a steam hammer or other type of power hammer is available. This process of drawing down or fullering is, when practicable, adopted in preference to either upsetting or welding, because it is open to no objection, and involves no risk of damage to the material, while it improves the metal by consolidating its fibres. But its limitations in anvil work lie in the tediousness of the operation, when the part to be reduced is very much less in diameter, and very much longer, than the original piece of bar. Then there are other alternatives.

Fig. 2. Fig. 3.
Fig. 4.

If a long bar is required to have an enlargement at any portion of its length, not very much larger in diameter than the bar, nor of great length, upsetting is the method adopted. The part to be enlarged is heated, the parts adjacent remaining Upsetting. cold, and an end is hammered, or else lifted and dropped heavily on the anvil or on an iron plate, with the result that the heated portion becomes both shortened and enlarged (figs. 5 and 6). This process is only suitable for relatively short lengths, and has the disadvantage that the fibres of wrought iron are liable to open, and so cause weakening of the upset portion. But steel, which has no direction of fibre, can be upset without injury; this method is therefore commonly adopted in steel work, in power presses to an equal extent with drawing down. The alternative to upsetting is generally to weld a larger to a smaller bar or section, or to encircle the bar with a ring and weld the two (fig. 7), and then to impart any shape desired to the ring in swages.

Bending is effected either by the hammer or by the simple exercise of leverage, the heated bar being pulled round a fulcrum. It is always, when practicable, preferable to cutting out a curved or angular shape with a hot sett or to welding. The continuity of Bending. the fibre in iron is preserved by bending, and the risk of an imperfect weld is avoided. Hence it is a simple and safe process which is constantly being performed at the anvil. An objection to sharp bends, or those having a small radius, is that the fibres become extended on the outer radius, the cross section being at the same time reduced below that of the bar itself. This is met by imparting a preliminary amount of upsetting to the part to be bent, sufficient to counteract the amount of reduction due to extension of the fibres. A familiar example is seen in the corners of dip cranks.

Fig. 5. Fig. 6. Fig. 7.

The property possessed by pieces of iron or steel of uniting autogeneously while in a condition of semi-fusion is very valuable. When portions which differ greatly in dimensions have to be united, welding is the only method practicable at the Welding. anvil. It is also generally the best to adopt when union has to be made between pieces at right angles, or when a piece on which much work has to be done is required at the end of a long plain bar, as in the tension rods of cranes and other structures with eyes. The art of welding depends chiefly on having perfectly clean joint faces, free from scale, so that metal can unite to metal; union would be prevented by the presence of oxide or of dirt. Also it is essential to have a temperature sufficiently high, yet not such as to overheat the metal. A dazzling white, at which small particles of metal begin to drop off, is suitable for iron, but steel must not be made so hot. A very few hammer blows suffice to effect the actual union; if the joint be faulty, no amount of subsequent hammering will weld it. The forms of weld-joints include the scarf (figs. 8 and 9), the butt (fig. 10), the V (fig. 11) and the glut, one form of which is shown in fig. 12; the illustrations are of bars prepared for welding. These forms give the smith a suitable choice for different conditions. A convexity is imparted to the joint faces in order to favour the expulsion of slag and dirt during the closing of the joint; these undesirable matters become entangled between concave faces. The ends are upset or enlarged in order to leave enough metal to be dressed down flush, by swaging or by flattering. The proportional lengths of the joint faces shown are those which conform to good practice. The fluxes used for welding are numerous. Sand alone is generally dusted on wrought iron, but steel requires borax applied on the joint while in the fire, and also dusted on the joint at the anvil and on the face of the latter itself. Electric welding is largely taking the place of the hand process, but machines are required to maintain the parts in contact during the passage of the current. Butt joints are employed, and a large quantity of power is absorbed, but the output is immensely greater than that of hand-made welds.

Fig. 8. Fig. 9.
Fig. 10. Fig. 11.
Fig. 12.

When holes are not very large they are formed by punching, but large holes are preferably produced by bending a rod round and welding it, so forming an eye (fig. 13). Small holes are often punched simply as a preliminary stage in the Punching. formation of a larger hole by a process of drifting. A piece of work to be punched is supported either on the anvil or on a ring of metal termed a bolster, laid on the anvil, through which the burr, when severed, falls. But in making small holes through a thick mass, no burr is produced, the metal yielding sideways and forming an enlargement or boss. Examples occur in the wrought iron stanchions 665 that carry light hand railing. In such cases the hole has to be punched from each face, meeting in the centre. Punching under power hammers is done similarly, but occupies less time.

The cutting-off or severance of material is done either on hot or cold metal. In the first case the chisels used, “hot setts,” have Cutting-off. keener cutting angles than those employed for the second, termed “cold setts.” One sett is held in a hole in the anvil face, the “anvil chisel,” the other is handled and struck with a sledge.

Fig. 13.

The difference between iron and steel at the forge is that iron possesses a very marked fibre whereas steel does not. Many forgings therefore must be made differently according as they are in iron or in steel. In the first the fibre must never be allowed to run transversely to the axis of greatest tensile or bending stress, but must be in line therewith. For this reason many forgings, of which a common eye or loop (fig. 13) is a typical example, that would be stamped from a solid piece if made in steel, must be bent round from bar and welded if in wrought iron. Further, welding which is practically uniformly trustworthy in wrought iron, is distrusted in steel. The difference is due to the very fibrous character of iron, the welding of which gives much less anxiety to the smith than that of steel. Welds in iron are frequently made without any flux, those in steel never. Though mention has only been made of iron and steel, other alloys are forged, as those of aluminium, delta metal, &c. But the essential operations are alike, the differences being in temperature at which the forging is done and nature of the fluxes used for welding. For hardening and tempering, an important section of smith’s work, see Annealing.

Die Forging.—The smith operating by hand uses the above methods only. There is, however, a large and increasing volume of forgings produced in other ways, and comprehended under the general terms, “die forging” or “drop forging.”

Little proof is needed to show that the various operations done at the anvil might be performed in a more expeditious way by the aid of power-operated appliances; for the elementary processes of reducing, and enlarging, bending, punching, &c., are extremely simple, and the most elaborate forged work involves only a repetition of these. The fact that the material used is entirely plastic when raised to a white heat is most favourable to the method of forging in matrices or dies. A white hot mass of metal can be placed in a matrix, and stamped into shape in a few blows under a hammer with as much ease as a medal can be stamped in steel dies under a coining press. But much detail is involved in the translation of the principle into practice. The parallel between coining dies and forging dies does not go far. The blank for the coin is prepared to such exact dimensions that no surplus material is left over by the striking of the coin, which is struck while cold. But the blank used in die forging is generally a shapeless piece, taken without any preliminary preparation, a mere lump, a piece of bar or rod, which may be square or round irrespective of whether the ultimate forging is to be square, or round, or flat or a combination of forms. At the verge of the welding heat to which it is raised, and under the intensity of the impact of hammer blows rained rapidly on the upper die, the metal yields like lead, and flows and fills the dies.

Herein lies a difference between striking a coin and moulding a forging. A large amount of metal is squeezed out beyond the concavity of the forging dies, and this would, if allowed to flow over between the joints, prevent the dies from being closed on the forging. There are two methods adopted for removing this “fin,” or “flash” as it is termed, one being that of suppression, applicable to circular work, the other that of stripping, applied to almost all other cases.

Fig. 14.

The suppression of fin means that the circular bar is rotated in the dies (fig. 14) through a small arc, alternating between every few blows, with the result that the fin is obliterated immediately when formed, this being done at the same time that reduction of section is being effected over a portion or the whole of the bar.

Stripping means that when a considerable amount of fin has been formed, it is removed by laying the forging on a die pierced right through with an opening of the same shape and area as the forging, and then dealing the forging a blow with the hammer. The forging is thus knocked through the die, leaving the severed or stripped fin behind. The forging is then returned to the dies and again treated, and the stripping may be repeated twice, or even oftener, before the forging can be completed.

Figs. 15 and 16 illustrate the bottom dies of a set for forging in a particular form of eye, the top dies being of exactly the same shape. The first operation takes place in fig. 15, in which a bar of metal is reduced to a globular and cylindrical form, being constantly rotated meanwhile. The shank portion is then drawn down in the parallel recess to the left. The shape of the eye is completed in fig. 16, and the shank in the recess to the left of that. Fig. 17 shows how a lever is stamped between top and bottom dies. The hole in the larger boss is formed by punching, the punches nearly meeting in the centre, and the centre for the hole to be drilled subsequently in the smaller boss is located by a conical projection in the top die.

Fig. 15. Fig. 16.

It is evident that the methods of die forging, though only explained here in barest outline, constitute a principle of extensive application.

An intricate or ornamental forging, which might occupy a smith a quarter of a day in making at the anvil, can often be produced in dies within five minutes (fig. 18). On the other hand, there is the cost of the preparation of the dies, which is often heavy, so that the question of method is resolved into the relative one of the cost of dies, distributed over the number of identical forgings required. From this point of view it is clear that given say a thousand forgings, ordered all alike, the cost of even expensive dies distributed over the whole becomes only an infinitesimal amount per forging.

Fig. 17. Fig. 18.

There is, further, the very important fact that forgings which are produced in dies are uniform and generally of more exact dimensions than anvil-made articles. This is seen to be an advantage when forgings have to be turned or otherwise tooled in the engineer’s machine shop, since it lessens the amount of work required there. 666 Besides, for many purposes such forgings do not require tooling at all, or only superficial grinding, while anvil-made ones would, in consequence of their slight inaccuracies.

Fig. 19.

Yet again, die forging is a very elastic system, and herein lies much of its value. Though it reaches its highest development when thousands of similar pieces are wanted, it is also adaptable to a hundred, or even to a dozen, similar forgings. In such cases economy is secured by using dies of a very cheap character; or, by employing such dies as supplementary to anvil work for effecting neat finish to more precise dimensions than can be ensured at the anvil. In the first case use is made of dies of cast iron moulded from patterns (fig. 19) instead of having their matrices laboriously cut in steel with drills, chisels and milling tools. In the second, preliminary drawing down is done under the steam hammer, and bending and welding at the anvil, or under the steam hammer, until the forgings are brought approximately to their final shape and dimensions. Then they are reheated and inserted in the dies, when a few blows under the steam or drop hammer suffice to impart a neat and accurate finish.

The limitations of die forging are chiefly those due to large dimensions. The system is most successful for the smallest forgings and dies which can be handled by one man without the assistance of cranes; and massive forgings are not required in such large numbers as are those of small dimensions. But there are many large articles manufactured which do not strictly come under the term forgings, in which the aid of dies actuated by powerful hydraulic presses is utilized. These include work that is bent, drawn and shaped from steel plate, of which the fittings of railway wagons constitute by far the largest proportion. The dies used for some of these are massive, and a single squeeze from the ram of the hydraulic press employed bends the steel plate between the dies to shape at once. Fairly massive forgings are also produced in these presses.

Die forging in its highest developments invades the craft of the skilled smith. In shops where it is adopted entirely, the only craftsmen required are the few who have general charge of the shops. The men who attend to the machines are not smiths, but unskilled helpers.

(J. G. H.)

FORK (Lat. furca), an implement formed of two or more prongs at the end of a shaft or handle, the most familiar type of which is the table-fork for use in eating. In agriculture and horticulture the fork is used for pitching hay, and other green crops, manure, &c.; commonly this has two prongs, “tines”; for digging, breaking up surface soil, preparing for hand weeding and for planting the three-pronged fork is used. The word is also applied to many objects which are characterized by branching ends, as the tuning-fork, with two branching metal prongs, which on being struck vibrates and gives a musical note, used to give a standard of pitch; to the branching into two streams of a river, or the junction where a tributary runs into the main river; and in the human body, to that part where the legs branch off from the trunk.

The furca, two pieces of wood fastened together in the form of the letter Λ, was used by the Romans as an instrument of punishment. It was placed over the shoulders of the criminal, and his hands were fastened to it, condemned slaves were compelled to carry it about with them, and those sentenced to be flogged would be tied to it; crucifixions were sometimes carried out on a similar shaped instrument. From the great defeat of the Romans by the Samnites at the battle of the Caudine Forks (Furculae Caudinae), a narrow gorge, where the vanquished were compelled to pass under the yoke (jugum), as a sign of submission, the expression “to pass through or under the forks” has been loosely used of such a disgraceful surrender. The “forks” in any allusion to this defeat should refer to the topographical name and not to the jugum, which consisted of two upright spears with a third placed transversely as a cross-bar.


FORKEL, JOHANN NIKOLAUS (1749-1818), German musician, was born on the 22nd of February 1749 at Meeder in Coburg. He was the son of a cobbler, and as a practical musician, especially as a pianoforte player, achieved some eminence; but his claims to a more abiding name rest chiefly upon his literary skill and deep research as an historian of musical science and literature. He was an enthusiastic admirer of J.S. Bach, whose music he did much to popularize. His library, which was accumulated with care and discrimination at a time when rare books were cheap, forms a valuable portion of the royal library in Berlin and also of the library of the Königlicher Institut für Kirchenmusik. He was organist to the university church of Göttingen, obtained the degree of doctor of philosophy, and in 1778 became musical director of the university. He died at Göttingen on the 20th of March 1818. The following is a list of his principal works: Über die Theorie der Musik (Göttingen, 1777); Musikalisch kritische Bibliothek (Gotha, 1778); Allgemeine Geschichte der Musik (Leipzig, 1788). The last is his most important work. He also wrote a Dictionary of Musical Literature, which is full of valuable material. To his musical compositions, which are numerous, little interest is to-day to be attached. But it is worth noting that he wrote variations on the English national anthem “God save the king” for the clavichord, and that Abt Vogler wrote a sharp criticism on them, which appeared at Frankfort in 1793 together with a set of variations as he conceived they ought to be written.


FORLÌ (anc. Forum Livii), a town and episcopal see of Emilia, Italy, the capital of the province of Forlì, 40 m. S.E. of Bologna by rail, 108 ft. above sea-level. Pop. (1901) 15,461 (town); 43,321 (commune). Forlì is situated on the railway between Bologna and Rimini. It is connected by steam tramways with Ravenna and Meldola, and by a road through the Apennines with Pontassieve. The church of S. Mercuriale stands in the principal square, and contains, besides paintings, some good carved and inlaid choir stalls by Alessandro dei Bigni. The façade has been considerably altered, but the campanile, erected in 1178-1180, still exists; it is 252 ft. in height, square and built of brickwork, and is one of the finest of Lombard campanili. The pictures in this church are the work of Marco Palmezzano (1456-1537) and others; S. Biagio and the municipal picture gallery also contain works by him. The latter has other interesting pictures, including a fresco representing an apprentice with pestle and mortar (Pestapepe), the only authentic work in Forlì of Melozzo da Forlì (1438-1494), an eminent master whose style was formed under the influence of Piero della Francesca, and who was the master of Palmezzano; the frescoes in the Sforza chapel in SS. Biagio e Girolamo are from the former’s designs, though executed by the latter. The church also contains the fine tomb (1466) of Barbara Manfredi. The cathedral (Santa Croce) has been almost entirely rebuilt since 1844. The Palazzo del Podestà, now a private house, is a brick building of the 15th century. The citadel (Rocca Ravaldina), constructed about 1360-1370, and later rebuilt, is now used as a prison. Flavio Biondo, the first Renaissance writer on the topography of ancient Rome (1388-1463), was a native of Forlì.

Of the ancient Forum Livii, which lay on the Via Aemilia, hardly anything is known. In the 12th century we find Forlì in league with Ravenna, and in the 13th the imperial count of the province of Romagna resided there. In 1275 Forlì defeated Bologna with great loss. Martin IV. sent an army to besiege it in 1282, which was driven out after severe fighting in the streets; but the town soon afterwards surrendered. In the 14th and 15th centuries it was under the government of the Ordelaffi; and in 1500 was taken by Caesar Borgia, despite a determined resistance by Caterina Sforza, widow of Girolamo Riario. Forlì finally became a part of the papal state in 1504.

(T. As.)

FORLIMPOPOLI (anc. Forum Popillii), a village of Emilia, Italy, in the province of Forlì, from which it is 5 m. S.E. by rail, 105 ft. above sea-level. Pop. (1901) 2299 (town); 5795 (commune). The ancient Forum Popillii, a station on the Via Aemilia, was destroyed by Grimuald in 672. Whether its site is occupied by the present town is not certain; the former should perhaps be sought a mile or so farther to the S.E., where were found most of the inscriptions of which the place of discovery is certain. Forlimpopoli was again destroyed by Cardinal Albornoz in 1360, and rebuilt by Sinibaldo Ordelaffi, who constructed the well-preserved medieval castle (1380), rectangular with four circular towers at the corners.

(T. As.)

FORLORN HOPE (through Dutch verloren hoop, from Ger. verlorene Haufe = “lost troop”; Haufe, “heap,” being equivalent in the 17th century to “body of troops”; the French 667 equivalent is enfants perdus), a military term (sometimes shortened to “forlorn”), used in the 16th and 17th centuries for a body of troops thrown out in front of the line of battle to engage the hostile line, somewhat after the fashion of skirmishers, though they were always solid closed bodies. These troops ran great risks, because they were often trapped between the two lines of battle as the latter closed upon one another, and fired upon or ridden down by their friends; further, their mission was to facilitate the attacks of their own main body by striking the first blow against or meeting the first shock of the fresh and unshaken enemy. In the following century (18th), when lines of masses were no longer employed, a thin line of skirmishers alone preceded the three-deep line of battle, but the term “forlorn hope” continued to be used for picked bodies of men entrusted with dangerous tasks, and in particular for the storming party at the assault of a fortress. In this last sense “forlorn hope” is often used at the present time. The misunderstanding of the word “hope” has led to various applications of “forlorn hope,” such as to an enterprise offering little chance of success, or, further still from the original meaning, to the faint or desperate hope of such success.


FORM (Lat. forma), in general, the external shape, appearance, configuration of an object, in contradistinction to the matter of which it is composed; thus a speech may contain excellent arguments,—the matter may be good, while the style, grammar, arrangement,—the form—is bad. The term, with its adjective “formal” and the derived nouns “formality” and “formalism,” is hence contemptuously used for that which is superficial, unessential, hypocritical: chap. xxiii. of Matthew’s gospel is a classical instance of the distinction between the formalism of the Pharisaic code and genuine religion. With this may be compared the popular phrases “good form” and “bad form” applied to behaviour in society: so “format” (from the French) is technically used of the shape and size, e.g. of a book (octavo, quarto, &c.) or of a cigarette. The word “form” is also applied to certain definite objects: in printing a body of type secured in a chase for printing at one impression (“form” or “forme”); a bench without a back, such as is used in schools (perhaps to be compared with O. Fr. s’asseoir en forme, to sit in a row); a mould or shape on or in which an object is manufactured; the lair or nest of a hare. From its use in the sense of regulated order comes the application of the term to a class in a school (“sixth form,” “fifth form,” &c.); this sense has been explained without sufficient ground as due to the idea of all children in the same class sitting on a single form (bench).

The word has been used technically in philosophy with various shades of meaning. Thus it is used to translate the Platonic ἰδέα, εἶδος, the permanent reality which makes a thing what it is, in contrast with the particulars which are finite and subject to change. Whether Plato understood these forms as actually existent apart from all the particular examples, or as being of the nature of immutable physical laws, is matter of discussion. For practical purposes Aristotle was the first to distinguish between matter (ὕλη) and form (εἶδος). To Aristotle matter is the undifferentiated primal element: it is rather that from which things develop (ὑποκείμενον, δύναμις) than a thing in itself (ἐνεργεία). The development of particular things from this germinal matter consists in differentiation, the acquiring of particular forms of which the knowable universe consists (cf. Causation for the Aristotelian “formal cause”). The perfection of the form of a thing is its entelechy (ἐντελέχεια) in virtue of which it attains its fullest realization of function (De anima, ii. 2, ἡ μὲν ὕλη δύναμις τὸ δὲ εἶδος ἐντελέχεια). Thus the entelechy of the body is the soul. The origin of the differentiation process is to be sought in a “prime mover” (πρῶτον κινοῦν), i.e. pure form entirely separate (χωριστόν) from all matter, eternal, unchangeable, operating not by its own activity but by the impulse which its own absolute existence excites in matter (ὡς ἐρώμενον, οὐ κινούμενον). The Aristotelian conception of form was nominally, though perhaps in most cases unintelligently, adopted by the Scholastics, to whom, however, its origin in the observation of the physical universe was an entirely foreign idea. The most remarkable adaptation is probably that of Aquinas, who distinguished the spiritual world with its “subsistent forms” (formae separatae) from the material with its “inherent forms” which exist only in combination with matter. Bacon, returning to the physical standpoint, maintained that all true research must be devoted to the discovery of the real nature or essence of things. His induction searches for the true “form” of light, heat and so forth, analysing the external “form” given in perception into simpler “forms” and their “differences.” Thus he would collect all possible instances of hot things, and discover that which is present in all, excluding all those qualities which belong accidentally to one or more of the examples investigated: the “form” of heat is the residuum common to all. Kant transferred the term from the objective to the subjective sphere. All perception is necessarily conditioned by pure “forms of sensibility,” i.e. space and time: whatever is perceived is perceived as having spacial and temporal relations (see Space and Time; Kant). These forms are not obtained by abstraction from sensible data, nor are they strictly speaking innate: they are obtained “by the very action of the mind from the co-ordination of its sensation.”


FORMALIN, or Formaldehyde, CH2O or H·CHO, the first member of the series of saturated aliphatic aldehydes. It is most readily prepared by passing the vapour of methyl alcohol, mixed with air, over heated copper or platinum. In order to collect the formaldehyde, the vapour is condensed and absorbed, either in water or alcohol. It may also be obtained, although only in small quantities, by the distillation of calcium formate. At ordinary temperatures formaldehyde is a gas possessing a pungent smell; it is a strong antiseptic and disinfectant, a 40% solution of the aldehyde in water or methyl alcohol, sold as formalin, being employed as a deodorant, fungicide and preservative. It is not possible to obtain the aldehyde in a pure condition, since it readily polymerizes. It is a strong reducing agent; it combines with ammonia to form hexamethylene tetramine, (CH2)6N4, and easily “condenses” in the presence of many bases to produce compounds which apparently belong to the sugars (q.v.). It renders glue or gelatin insoluble in water, and is used in the coal-tar colour industry in the manufacture of para-rosaniline, pyronines and rosamines. Several polymers have been described. Para-formaldehyde, or trioxymethylene, obtained by concentrating solutions of formaldehyde in vacuo, is a white crystalline solid, which sublimes at about 100° C. and melts at a somewhat higher temperature, changing back into the original form. It is insoluble in cold water, alcohol and ether. A diformaldehyde is supposed to separate as white flakes when the vapour is passed into chloroform (Körber, Pharm. Zeit., 1904, xlix. p. 609); F. Auerbach and H. Barschall (Chem. Zentr., 1907, ii. p. 1734) obtained three polymers by acting with concentrated sulphuric acid on solutions of formaldehyde, and a fourth by heating one of the forms so obtained. The strength of solutions of formaldehyde may be ascertained by the addition of excess of standard ammonia to the aldehyde solution (hexamethylene tetramine being formed), the excess of ammonia being then estimated by titration with standard acid. On the formation of formaldehyde by the oxidation of methane at high temperatures, see W.A. Bone (Journ. Chem. Soc., 1902, 81, p. 535; 1903, 83, p. 1074). Formaldehyde also appears to be a reduction product of carbon dioxide (see Annual Reports of the Chemical Society).


FORMAN, ANDREW (c. 1465-1521), Scottish ecclesiastic, was educated at the university of St Andrews and entered the service of King James IV. about 1489. He soon earned the favour of this king, who treated him with great generosity and who on several occasions sent him on important embassies to the English, the French and the papal courts. In 1501 he became bishop of Moray and in July 1513 Louis XII. of France secured his appointment as archbishop of Bourges, while pope Julius II. promised to make him a cardinal. In 1514 during a long absence from his own land Forman was nominated by Pope Leo X. to the vacant archbishopric of St Andrews and was made papal legate in Scotland, but it was some time before he secured possession of 668 the see owing to the attempts of Henry VIII. to subject Scotland to England and to the efforts of his rivals, Gavin Douglas, the poet, and John Hepburn, prior of St Andrews, and their supporters. Eventually, however, he resigned some of his many benefices, the holding of which had made him unpopular, and through the good offices of the regent, John Stewart, duke of Albany, obtained the coveted archbishopric and the primacy of Scotland. Afterwards he was one of the vice-regents of the kingdom and he died on the 11th of March 1521. As archbishop he issued a series of constitutions which are printed in J. Robertson’s Concilia Scotiae (1866). Mr Andrew Lang (History of Scotland, vol. i.) describes Forman as “the Wolsey of Scotland, and a fomenter of the war which ended at Flodden.”

See the biography of the archbishop which forms vol. ii. of The Archbishops of St Andrews, by J. Herkless and R.K. Hannay (1909).


FORMAN, SIMON (1552-1611), English physician and astrologer, was born in 1552 at Quidham, a small village near Wilton, Wiltshire. At the age of fourteen he became apprentice to a druggist at Salisbury, but at the end of four years he exchanged this profession for that of a schoolmaster. Shortly afterwards he entered Magdalen College, Oxford, where he studied chiefly medicine and astrology. After continuing the same studies in Holland he commenced practice as a physician in Philpot Lane, London, but as he possessed no diploma, he on this account underwent more than one term of imprisonment. Ultimately, however, he obtained a diploma from Cambridge university, and established himself as a physician and astrologer at Lambeth, where he was consulted, especially as a physician, by many persons of rank, among others by the notorious countess of Essex. He expired suddenly while crossing the Thames in a boat on the 12th of September 1611.

A list of Forman’s works on astrology is given in Bliss’s edition of the Athenae Oxonienses; many of his MS. works are contained in the Bodleian Library, the British Museum and the Plymouth Library. A Brief Description of the Forman MSS. in the Public Library, Plymouth, was published in 1853.


FORMERET, a French architectural term for the wall-rib carrying the web or filling-in of a vault (q.v.).


FORMEY, JOHANN HEINRICH SAMUEL (1711-1797), Franco-German author, was born of French parentage at Berlin on the 31st of May 1711. He was educated for the ministry, and at the age of twenty became pastor of the French church at Brandenburg. Having in 1736 accepted the invitation of a congregation in Berlin, he was in the following year chosen professor of rhetoric in the French college of that city and in 1739 professor of philosophy. On the organization of the academy of Berlin in 1744 he was named a member, and in 1748 became its perpetual secretary. He died at Berlin on the 7th of March 1797. His principal works are La Belle Wolfienne (1741-1750, 6 vols.), a kind of novel written with the view of enforcing the precepts of the Wolfian philosophy; Bibliothèque critique, ou mémoires pour servir à l’histoire littéraire ancienne et moderne (1746); Le Philosophe chrétien (1750); L’Émile chrétien (1764), intended as an answer to the Émile of Rousseau; and Souvenirs d’un citoyen (Berlin, 1789). He also published an immense number of contemporary memoirs in the transactions of the Berlin Academy.


FORMIA (anc. Formiae, called Mola di Gaeta until recent times), a town of Campania, Italy, in the province of Caserta, from which it is 48 m. W.N.W. by rail. Pop. (1901) 5514 (town); 8452 (commune). It is situated at the N.W. extremity of the Bay of Gaeta, and commands beautiful views. It lay on the ancient Via Appia, and was much frequented as a resort by wealthy Romans. There was considerable imperial property here and along the coast as far as Sperlonga, and there are numerous remains of ancient villas along the coast and on the slopes above it. The so-called villa of Cicero contains two well-preserved nymphaea with Doric architecture. Its site is now occupied by the villa Caposele, once a summer residence of the kings of Naples. There are many other modern villas, and the sheltered hillsides (for the mountains rise abruptly behind the town) are covered with lemon, orange and pomegranate gardens. The now deserted promontory of the Monte Scauri to the E. is also covered with remains of ancient villas; the hill is crowned by a large tomb, known as Torre Giano. To the E. at Scauri is a large villa with substructions in “Cyclopean” work. The ancient Formiae was, according to the legend, the home of the Laestrygones, and later a Spartan colony (Ὁρμίαιδιὰ τὸ εὔορμον, Strabo v. 3. 6, p. 233). It was a Volscian town, and, like Fundi, received the civitas sine suffragio from Rome in 338 (or 332 B.C.) because the passage through its territory had always been secure. This was strategically important for the Romans, as the military road definitely constructed by Appius Claudius in 312 B.C., still easily traceable by its remains, and in part followed by the high-road, traversed a narrow pass, which could easily be blocked, between Fundi and Formiae. In 188 B.C., with Fundi, it received the full citizenship, and, like it, was to a certain extent under the control of a praefectus sent from Rome, though it retained its three aediles. Mamurra was a native of Formia. Cicero possessed a favourite villa here, and was murdered in its vicinity in 43 B.C., but neither the villa nor the tomb can be identified with any certainty. It was devastated by Sextus Pompeius, and became a colony, with duoviri as chief magistrates, under Hadrian. Portus Caietae (the modern Gaeta) was dependent upon it.

See T. Ashby, “Dessins inédits de Carlo Labruzzi,” in Mélanges de l’école française de Rome (1903), 410 seq.

(T. As.)

FORMIC ACID, H2CO2 or H·COOH, the first member of the series of aliphatic monobasic acids of the general formula CnH2nO2. It is distinguished from the other members of the series by certain characteristic properties; for example, it shows an aldehydic character in reducing silver salts to metallic silver, and it does not form an acid chloride or an acid anhydride. Its nitrile (prussic acid) has an acid character, a property not possessed by the nitriles of the other members of the series; and, by the abstraction of the elements of water from the acid, carbon monoxide is produced, a reaction which finds no parallel in the higher members of the series. Finally, formic acid is, as shown by the determination of its affinity constant, a much stronger acid than the other acids of the series. It occurs naturally in red ants (Lat. formica), in stinging nettles, in some mineral waters, in animal secretions and in muscle. It may be prepared artificially by the oxidation of methyl alcohol and of formaldehyde; by the rapid heating of oxalic acid (J. Gay-Lussac, Ann. chim. phys., 1831 [2] 46, p. 218), but best by heating oxalic acid with glycerin, at a temperature of 100-110° C. (M. Berthelot, Ann., 1856, 98, p. 139). In this reaction a glycerol ester is formed as an intermediate product, and undergoes decomposition by the water which is also produced at the same time.

C3H5(OH)3 + H2C2O4 = C3H5(OH)2·OCHO+CO2 + H2O
C3H5(OH)2O·CHO + H2O = C3H5(OH)3 + H2CO2.

Many other synthetical processes for the production of the acid or its salts are known. Hydrolysis of hydrocyanic acid by means of hydrochloric acid yields formic acid. Chloroform boiled with alcoholic potash forms potassium formate (J. Dumas, Berzelius Jahresberichte, vol. 15, p. 371), a somewhat similar decomposition being shown by chloral and aqueous potash (J. v. Liebig, Ann., 1832, 1, p. 198). Formates are also produced by the action of moist carbon monoxide on soda lime at 190-220° C. (V. Merz and J. Tibiçira, Ber., 1880, 13, p. 23; A. Geuther, Ann., 1880, 202, p. 317), or by the action of moist carbon dioxide on potassium (H. Kolbe and R. Schmitt, Ann., 1861, 119, p. 251). H. Moissan (Comptes rend., 1902, 134, p. 261) prepared potassium formate by passing a current of carbon monoxide or carbon dioxide over heated potassium hydride,

KH + CO2 = KHCO2 and KH + 2CO = KHCO2 + C.

A concentrated acid may be obtained from the diluted acid either by neutralization with soda, the sodium salt thus obtained being then dried and heated with the equivalent quantity of anhydrous oxalic acid (Lorin, Bull. soc. chim., 37, p. 104), or the lead or copper salt may be decomposed by dry sulphuretted hydrogen at 130° C. L. Maquenne (Bull. soc. chim., 1888, 50, p. 662) distils the commercial acid, in vacuo, with concentrated sulphuric acid below 75° C.

Formic acid is a colourless, sharp-smelling liquid, which crystallizes at 0° C., melts at 8.6° C. and boils at 100.8° C. Its specific gravity is 1.22 (20°/4°). It is miscible in all proportions with water, alcohol and ether. When heated with zinc dust, the acid decomposes into carbon monoxide and hydrogen. The sodium and potassium salts, when heated to 400° C., give oxalates and carbonates of the 669 alkali metals, but the magnesium, calcium and barium salts yield carbonates only. The free acid, when heated with concentrated sulphuric acid, is decomposed into water and pure carbon monoxide; when heated with nitric acid, it is oxidized first to oxalic acid and finally to carbon dioxide. The salts of the acid are known as formates, and are mostly soluble in water, those of silver and lead being the least soluble. They crystallize well and are readily decomposed. Concentrated sulphuric acid converts them into sulphates, with simultaneous liberation of carbon monoxide. The calcium salt, when heated with the calcium salts of higher homologues, gives aldehydes. The silver and mercury salts, when heated, yield the metal, with liberation of carbon dioxide and formation of free formic acid; and the ammonium salt, when distilled, gives some formamide, HCONH2. The esters of the acid may be obtained by distilling a mixture of the sodium or potassium salts and the corresponding alcohol with hydrochloric or sulphuric acids.

Formamide, HCONH2, is obtained by heating ethyl formate with ammonia; by heating ammonium formate with urea to 140° C.,

2HCO·ONH4 + CO(NH2)2 = 2HCONH2 + (NH4)2CO3;

by heating ammonium formate in a sealed tube for some hours at 230° C., or by the action of sodium amalgam on a solution of potassium cyanate (H. Basarow, Ber., 1871, 4, p. 409). It is a liquid which boils in vacuo at 150°, but at 192-195° C. under ordinary atmospheric pressure, with partial decomposition into carbon monoxide and ammonia. It dissolves mercuric oxide, with the formation of mercuric formamide, (HCONH)2Hg.


FORMOSA, a northern territory of the Argentine republic, bounded N. by Bolivia, N.E. and E. by Paraguay, S. by the Chaco Territory, and W. by Salta, with the Pilcomayo and Bermejo forming its northern and southern boundaries. Estimated area, 41,402 sq. m. It is a vast plain, sloping gently to the S.E., covered with marshes and tropical forests. Very little is known of it except small areas along the Bermejo and Paraguay rivers, where attempts have been made to form settlements. The unexplored interior is still occupied by tribes of wild Indians. The climate is hot, the summer temperature rising to a maximum of 104° F. Timber-cutting is the principal occupation of the settlers, though stock-raising and agriculture engage some attention in the settlements on the Paraguay. The capital, Formosa (founded 1879), is a small settlement on the Paraguay with a population of about 1000 in 1900. The settled population of the territory was 4829 in 1895, which it was estimated had increased to 13,431 in 1905. The nomadic Indians are estimated at 8000.


FORMOSA (called Taiwan by the Chinese, and following them by the Japanese, into whose possession it came after their war with China in 1895), an island in the western Pacific Ocean, between the Southern and the Eastern China Sea, separated from the Chinese mainland by the Formosa Strait, which has a width of about 90 m. in its narrowest part. The island is 225 m. long and from 60 to 80 m. broad, has a coast-line measuring 731 m., an area of 13,429 sq. m.—being thus nearly the same size as Kiushiu, the most southern of the four chief islands forming the Japanese empire proper—and extends from 20° 56′ to 25° 15′ N. and from 120° to 122° E. It forms part of the long line of islands which are interposed as a protective barrier between the Asiatic coast and the outer Pacific, and is the cause of the immunity from typhoons enjoyed by the ports of China from Amoy to the Yellow Sea. Along the western coast is a low plain, not exceeding 20 m. in extreme width; on the east coast there is a rich plain called Giran, and there are also some fertile valleys in the neighbourhood of Karenko and Pinan, extending up the longitudinal valleys of the rivers Karenko and Pinan, between which and the east coast the Taito range intervenes; but the rest of the island is mountainous and covered with virgin forest. In the plains the soil is generally of sand or alluvial clay, covered in the valleys with a rich vegetable mould. The scenery of Formosa is frequently of majestic beauty, and to this it is indebted for its European name, happily bestowed by the early Spanish navigators.

On the addition of Formosa to her dominions, Fuji ceased to be Japan’s highest mountain, and took the third place on the list. Mount Morrison (14,270 ft.), which the Japanese renamed Niitaka-yama (New High Mountain), stands first, and Mount Sylvia (12,480 ft.), to which they give the name of Setzu-zan (Snowy Mountain), comes second. Mount Morrison stands nearly under the Tropic of Cancer. It is not volcanic, but consists of argillaceous schist and quartzite. An ascent made by Dr Honda of the imperial university of Japan showed that, up to a height of 6000 ft., the mountain is clothed with primeval forests of palms, banyans, cork trees, camphor trees, tree ferns, interlacing creepers and dense thickets of rattan or stretches of grass higher than a man’s stature. The next interval of 1000 ft. has gigantic cryptomerias and chamoecyparis; then follow pines; then, at a height of 9500 ft., a broad plateau, and then alternate stretches of grass and forest up to the top, which consists of several small peaks. There is no snow. Mount Morrison, being surrounded by high ranges, is not a conspicuous object. Mount Sylvia lies in 24° 30´ N. lat. There are many other mountains of considerable elevation. In the north is Getsurôbi-zan (4101 ft.); and on either side of Setzu-zan, with which they form a range running due east and west across the island, are Jusampunzan (4698 ft.) and Kali-zan (7027 ft.). Twenty-two miles due south of Kali-zan stands Hakumosha-zan (5282 ft.), and just 20 m. due south of Hakumosha-zan begins a chain of three peaks, Suisha-zan (6200 ft.), Hoo-zan (4928), and Niitaka-yama. These five mountains, Hari-zan, Hakumosha-zan, Suisha-zan, Hoo-zan and Niitaka-yama, stand almost exactly under 121° E. long., in the very centre of the island. But the backbone of the island lies east of them, extending S. from Setzu-zan through Gokan-zan, and Noko-zan and other peaks and bending S.W. to Niitaka-yama. Yet farther south, and still lying in line down the centre of the island, are Sankyakunan-zan (3752 ft.), Shurogi-zan (5729 ft.), Poren-zan (4957 ft.), and Kado-zan (9055 ft.), and, finally, in the south-east Arugan-zan (4985 ft.). These, it will be observed, are all Japanese names, and the heights have been determined by Japanese observers. In addition to these remarkable inland mountains, Formosa’s eastern shores show magnificent cliff scenery, the bases of the hills on the seaside taking the form of almost perpendicular walls as high as from 1500 to 2500 ft. Volcanic outbreaks of steam and sulphur-springs are found. Owing to the precipitous character of the east coast few rivers of any size find their way to the sea in that direction. The west coast, on the contrary, has many streams, but the only two of any considerable length are the Kotansui, which rises on Shurogi-zan, and has its mouth at Toko after a course of some 60 m. and the Seirakei, which rises on Hakumosha-zan, and enters the sea at a point 57 m. farther north after a course of 90 m.

The climate is damp, hot and malarious. In the north, the driest and best months are October, November and December; in the south, December, January, February and March. The sea immediately south of Formosa is the birthplace of innumerable typhoons, but the high mountains of the island protect it partially against the extreme violence of the wind.

Flora and Fauna.—The vegetation of the island is characterized by tropical luxuriance,—the mountainous regions being clad with dense forest, in which various species of palms, the camphor-tree (Laurus Camphora), and the aloe are conspicuous. Consul R. Swinhoe obtained no fewer than 65 different kinds of timber from a large yard in Taiwanfu; and his specimens are now to be seen in the museum at Kew. The tree which supplies the materials for the pith paper of the Chinese is not uncommon, and the cassia tree is found in the mountains. Travellers are especially struck with the beauty of some of the wild flowers, more especially with the lilies and convolvuluses; and European greenhouses have been enriched by several Formosan orchids and other ornamental plants. The pine-apple grows in abundance. In the lowlands of the western portion, the Chinese have introduced a large number of cultivated plants and fruit trees. Rice is grown in such quantities as to procure for Formosa, in former days, the title of the “granary of China”; and the sweet potato, taro, millet, barley, wheat and maize are also cultivated. Camphor, sugar, tea, indigo, ground peanuts, jute, hemp, oil and rattans are all articles of export.

The Formosan fauna has been but partially ascertained; but at least three kinds of deer, wild boars, bears, goats, monkeys (probably Macacus speciosus), squirrels, and flying squirrels 670 are fairly common, and panthers and wild cats are not unfrequent. A poisonous but beautiful green snake is often mentioned by travellers. Pheasants, ducks, geese and snipe are abundant, and Dr C. Collingwood in his Naturalist’s Rambles in the China Seas mentions Ardea prasinosceles and other species of herons, several species of fly-catchers, kingfishers, shrikes and larks, the black drongo, the Cotyle sinensis and the Prinia sonitans. Dogs are kept by the savages for hunting. The horse is hardly known, and his place is taken by the ox, which is regularly bridled and saddled and ridden with all dignity. The rivers and neighbouring seas seem to be well stocked with fish, and especial mention must be made of the turtles, flying-fish, and brilliant coral-fish which swarm in the waters warmed by the Kurosiwo current, the gulf-stream of the Pacific. Shell-fish form an important article of diet to both the Chinese and the aborigines along the coast—a species of Cyrena, a species of Tapes, Cytheraea petechiana and Modiola teres being most abundant.

Population.—The population of Formosa, according to a census in 1904, is estimated at 3,022,687, made up as follows: aborigines 104,334, Chinese 2,860,574 and Japanese 51,770. The inhabitants of Formosa may be divided into four classes: the Japanese, who are comparatively few, as there has not been much tendency to immigration; the Chinese, many of whom immigrated from the neighbourhood of Amoy and speak the dialect of that district, while others were Hakkas from the vicinity of Swatow; the subjugated aborigines, who largely intermingled with the Chinese; and the uncivilized aborigines of the eastern region who refuse to recognize authority and carry on raids as opportunity occurs. The semi-civilized aborigines, who adopted the Chinese language, dress and customs, were called Pe-pa-hwan (Anglice Pepo-hoans), while their wilder brethren bear the name of Chin-hwan or “green savages,” otherwise Sheng-fan or “wild savages.” They appear to belong to the Malay stock, and their language bears out the supposition. They are broken up into almost countless tribes and clans, many of which number only a few hundred individuals, and their language consequently presents a variety of dialects, of which no classification has yet been effected: in the district of Posia alone a member of the Presbyterian mission distinguished eight different mutually unintelligible dialects. The people themselves are described as of “middle height, broad-chested and muscular, with remarkably large hands and feet, the eyes large, the forehead round, and not narrow or receding in many instances, the nose broad, the mouth large and disfigured with betel.” The custom of tattooing is universal. In the north of the island at least, the dead are buried in a sitting posture under the bed on which they have expired. Petty wars are extremely common, not only along the Chinese frontiers, but between the neighbouring clans; and the heads of the slain are carefully preserved as trophies. In some districts the young men and boys sleep in the skull-chambers, in order that they may be inspired with courage. Many of the tribes that had least intercourse with the Chinese show a considerable amount of skill in the arts of civilization. The use of Manchester prints and other European goods is fairly general; and the women, who make a fine native cloth from hemp, introduce coloured threads from the foreign stuffs, so as to produce ornamental devices. The office of chieftain is sometimes held by women.

The chief town is Taipe (called by the Japanese Taihoku), which is on the Tamsui-yei river, and has a population of about 118,000, including 5850 Japanese. Taipe may be said to have two ports; one, Tamsui, at the mouth of the river Tamsui-yei, 10 m. distant on the north-west coast, the other Kelung (called by the Japanese Kiirun), on the north-east shore, with which it is connected by rail, a run of some 18 m. The foreign settlement at Taipe lies outside the walls of the city, and is called Twatutia (Taitotei by the Japanese). Kelung (the ancient Pekiang) is an excellent harbour, and the scenery is very beautiful. There are coal-mines in the neighbourhood. Tamsui (called Tansui by the Japanese) is usually termed Hobe by foreigners. It is the site of the first foreign settlement, has a population of about 7000, but cannot be made a good harbour without considerable expenditure. On the west coast there is no place of any importance until reaching Anping (23° N. lat.), a port where a few foreign merchants reside for the sake of the sugar trade. It is an unlovely place, surrounded by mud flats, and a hotbed of malaria. It has a population of 4000 Chinese and 200 Japanese. At a distance of some 2½ m. inland is the former capital of Formosa, the walled city of Tainan, which has a population of 100,000 Chinese, 2300 Japanese, and a few British merchants and missionaries. Connected with Anping by rail (26 m.) and laying south of it is Takau, a treaty port. It has a population of 6800, and is prettily situated on two sides of a large lagoon. Six miles inland from Takau is a prosperous Chinese town called Feng-shan (Japanese, Hozan). The anchorages on the east coast are Soo, Karenko and Pinan, which do not call for special notice. Forty-seven m. east of the extreme south coast there is a little island called Botel-tobago (Japanese, Koto-sho), which rises to a height of 1914 ft. and is inhabited by a tribe whose customs differ essentially from those of the natives on the main island.

Administration and Commerce.—The island is treated as an outlying territory; it has not been brought within the full purview of the Japanese constitution. Its affairs are administered by a governor-general, who is also commander-in-chief of the forces, by a bureau of civil government, and by three prefectural governors, below whom are the heads of twenty territorial divisions called cho; its finances are not included in the general budget of the Japanese empire; it is garrisoned by a mixed brigade taken from the home divisions; and its currency is on a silver basis. One of the first abuses with which the Japanese had to deal was the excessive use of opium by the Chinese settlers. To interdict the importation of the drug altogether, as is done in Japan, was the step advocated by Japanese public opinion. But, influenced by medical views and by the almost insuperable difficulty of enforcing any drastic import veto in the face of Formosa’s large communications by junk with China, the Japanese finally adopted the middle course of licensing the preparation and sale of the drug, and limiting its use to persons in receipt of medical sanction. Under the administration of the Japanese the island has been largely developed. Among other industries gold-mining is advancing rapidly. In 1902 48,400 oz. of gold representing a value of £168,626 were obtained from the mines and alluvial washings. Coal is also found in large quantities near Kelung and sulphur springs exist in the north of the island.

An extensive scheme of railway construction has been planned, the four main lines projected being (1) from Takau to Tainan; (2) from Tainan to Kagi; (3) from Kagi to Shoka; and (4) from Shoka to Kelung; these four forming, in effect, a main trunk road running from the south-west to the north-east, its course being along the foot of the mountains that border the western coast-plains. The Takau-Tainan section (26 m.) was opened to traffic on the 3rd of November 1900, and by 1905 the whole line of 259 m. was practically complete. Harbour improvements also are projected, but in Formosa, as in Japan proper, paucity of capital constitutes a fatal obstacle to rapid development.

There are thirteen ports of export and import, but 75% of the total business is done at Tamsui. Tea and camphor are the staple exports. The greater part of the former goes to Amoy for re-shipment to the west, but it is believed that if harbour improvements were effected at Tamsui so as to render it accessible for ocean-going steamers, shipments would be made thence direct to New York. The camphor trade being a government monopoly, the quantity exported is under strict control.

History.—The island of Formosa must have been known from a very early date to the Chinese who were established in the Pescadores. The inhabitants are mentioned in the official works of the Yuan dynasty as Tung-fan or eastern barbarians; and under the Ming dynasty the island begins to appear as Kilung. In the beginning of the 16th century it began to be known to the Portuguese and Spanish navigators, and the latter at least made some attempts at establishing settlements or missions. The Dutch were the first, however, to take footing in the island; 671 in 1624 they built a fort, Zelandia, on the east coast, where subsequently rose the town of Taiwan, and the settlement was maintained for thrity-seven years. On the expulsion of the Ming dynasty in China, a number of their defeated adherents came over to Formosa, and under a leader called in European accounts Coxinga, succeeded in expelling the Dutch and taking possession of a good part of the island. In 1682 the Chinese of Formosa recognized the emperor K’ang-hi, and the island then began to form part of the Chinese empire. From the close of the 17th century a long era of conflict ensued between the Chinese and the aborigines. A more debased population than the peoples thus struggling for supremacy could scarcely be conceived. The aborigines, Sheng-fan, or “wild savages,” deserved the appellation in some respects, for they lived by the chase and had little knowledge even of husbandry; while the Chinese themselves, uneducated labourers, acknowledged no right except that of might. The former were not implacably cruel or vindictive. They merely clung to their homesteads, and harboured a natural resentment against the raiders who had dispossessed them. Their disposition was to leave the Chinese in unmolested possession of the plain. But some of the most valuable products of the island, as camphor and rattan, are to be found in the upland forests, and the Chinese, whenever they ventured too far in search of these products, fell into ambushes of hill-men who neither gave nor sought quarter, and who regarded a Chinese skull as a specially attractive article of household furniture. A violent rebellion is mentioned in 1788, put down only after the loss, it is said, of 100,000 men by disease and sword, and the expenditure of 2,000,000 taels of silver. Reconciliation never took place on any large scale, though it is true that, in the course of time, some fitful displays of administrative ability on the part of the Chinese, and the opening of partial means of communication, led to the pacification of a section of the Sheng-fan, who thenceforth became known as Pe-pa-hwan (Pepohoan).

In the early part of the 19th century the island was chiefly known to Europeans on account of the wrecks which took place on its coasts, and the dangers that the crews had to run from the cannibal propensities of the aborigines, and the almost equally cruel tendencies of the Chinese. Among the most notable was the loss in 1842 of the British brig “Ann,” with fifty-seven persons on board, of whom forty-three were executed at Taichu. By the treaty of Tientsin (1860) Taichu was opened to European commerce, but the place was found quite unsuitable for a port of trade, and the harbour of Tamsui was selected instead. From 1859 both Protestant and Presbyterian missions were established in the island. An attack made on those at Feng-shan (Hozan) in 1868 led to the occupation of Fort Zelandia and Anping by British forces; but this action was disapproved by the home government, and the indemnity demanded from the Chinese restored. In 1874 the island was invaded by the Japanese for the purpose of obtaining satisfaction for the murder of a shipwrecked crew who had been put to death by one of the semi-savage tribes on the southern coast, the Chinese government being either unable or unwilling to punish the culprits. A war was averted through the good offices of the British minister, Sir T.F. Wade, and the Japanese retired on payment of an indemnity of 500,000 taels. The political state of the island during these years was very bad; in a report of 1872 there is recorded a proverb among the official classes, “every three years an outbreak, every five a rebellion”; but subsequent to 1877 some improvement was manifested, and public works were pushed forward by the Chinese authorities. In 1884, in the course of belligerent proceedings arising out of the Tongking dispute, the forts at Kelung on the north were bombarded by the French fleet, and the place was captured and held for some months by French troops. An attack on the neighbouring town of Tamsui failed, but a semi-blockade of the island was maintained by the French fleet during the winter and spring of 1884-1885. The troops were withdrawn on the conclusion of peace in June 1885.

In 1895 the island was ceded to Japan by the treaty of Shimonoseki at the close of the Japanese war. The resident Chinese officials, however, refused to recognize the cession, declared a republic, and prepared to offer resistance. It is even said they offered to transfer the sovereignty to Great Britain if that power would accept it. A formal transfer to Japan was made in June of the same year in pursuance of the treaty, the ceremony taking place on board ship outside Kelung, as the Chinese commissioners did not venture to land. The Japanese were thus left to take possession as best they could, and some four months elapsed before they effected a landing on the south of the island. Takau was bombarded and captured on the 15th of October, and the resistance collapsed. Liu Yung-fu, the notorious Black Flag general, and the back-bone of the resistance, sought refuge in flight. The general state of the island when the Japanese assumed possession was that the plain of Giran on the eastern coast and the hill-districts were inhabited by semi-barbarous folk, the western plains by Chinese of a degraded type, and that between the two there existed a traditional and continuous feud, leading to mutual displays of merciless and murderous violence. By many of these Chinese settlers the Japanese conquerors, when they came to occupy the island, were regarded in precisely the same light as the Chinese themselves had been regarded from time immemorial by the aborigines. Insurrections occurred frequently, the insurgents receiving secret aid from sympathizers in China, and the difficulties of the Japanese being increased not only by their ignorance of the country, which abounds in fastnesses where bandits can find almost inaccessible refuge, but also by the unwillingness of experienced officials to abandon their home posts for the purpose of taking service in the new territory.

Bibliography.—C. Imbault-Huart, L’Île Formose, histoire et description (Paris, 1893), 4o; J.D. Clark, Formosa (Shanghai, 1896); W.A. Pickering, Pioneering in Formosa (London, 1898); George Candidius, A Short Account of the Island of Formosa in the Indies ..., vol. i.; Churchill’s Collection of Voyages (1744); Robert Swinhoe, Notes on the Island of Formosa, read before the British Association (1863); W. Campbell, “Aboriginal Savages of Formosa,” Ocean Highways (April 1873); H.J. Klaproth, Description de l’île de Formose, mém. rel. à l’Asie (1826); Mrs T.F. Hughes, Notes of a Six Years’ Residence in Formosa (London, 1881); Y. Takekoshi, Japanese Rule in Formosa (transl. by G. Braithwaite) (London, 1907).


FORMOSUS, pope from 891 to 896, the successor of Stephen V. (or VI.). He first appears in history when, as bishop of Porto, he was sent on an embassy to the Bulgarians. Having afterwards sided with a faction against John VIII., he was excommunicated, and compelled to take an oath never to return to Rome or again to assume his priestly functions. From this oath he was, however, absolved by Marinus, the successor of John VIII., and restored to his dignities; and on the death of Stephen V. in 891 he was chosen pope. At that time the Holy See was engaged in a struggle against the oppression of the princes of Spoleto, and a powerful party in Rome was eager to obtain the intervention of Arnulf, king of Germany, against these dangerous neighbours. Formosus himself shared this view; but he was forced to yield to circumstances and to consecrate as emperor Lambert, the young son of Guy of Spoleto. Guy had already been consecrated by Stephen V., and died in 894. In the following year Arnulf succeeded in seizing Rome, and Formosus crowned him emperor. But, as he was advancing on Spoleto against Lambert, Arnulf was seized with paralysis, and was forced to return to Germany. Overwhelmed with chagrin, Formosus died on the 4th of April 896. The discords in which he had been involved continued after his death. The validity of his acts was contested on the pretext that, having been originally bishop of Porto, he could not be a legitimate pope. The fundamental factor in these dissensions was the rivalry between the princes of Spoleto and the Carolingian house, represented by the king of Germany. The body of Formosus was disinterred in 897 by Stephen VI., and treated with contumely as that of a usurper of the papal throne; but Theodore II. restored it to Christian burial, and at a council presided over by John IX. the pontificate of Formosus was declared valid and all his acts confirmed.

(L. D.*)

672

FORMULA (Lat. diminutive of forma, shape, pattern, &c., especially used of rules of judicial procedure), in general, a stereotyped form of words to be used on stated occasions, for specific purposes, ceremonies, &c. In the sciences, the word usually denotes a symbolical statement of certain facts; for example, a chemical formula exhibits the composition of a substance (see Chemistry); a botanical formula gives the differentia of a plant; a dentition formula indicates the arrangement and number of the teeth of an animal.


FORNER, JUAN BAUTISTA PABLO (1756-1799), Spanish satirist and scholar, was born at Mérida (Badajoz) on the 23rd of February 1756, studied at the university of Salamanca, and was called to the bar at Madrid in 1783. During the next few years—under the pseudonyms of “Tomé Cecial,” “Pablo Segarra,” “Don Antonio Varas,” “Bartolo,” “Pablo Ignocausto,” “El Bachiller Regañadientes,” and “Silvio Liberio”—Forner was engaged in a series of polemics with García de la Huerta, Iriarte and other writers; the violence of his attacks was so extreme that he was finally forbidden to publish any controversial pamphlets, and was transferred to a legal post at Seville. In 1796 he became crown prosecutor at Madrid, where he died on the 17th of March 1799. Forner’s brutality is almost unexampled, and his satirical writings give a false impression of his powers. His Oración apologética por la España y su mérito literario (1787) is an excellent example of learned advocacy, far superior to similar efforts made by Denina and Antonio Cavanilles; and his posthumous Exequias de la lengua castellana (printed in the Biblioteca de autores españoles, vol. lxiii.) testifies to his scholarship and taste.


FORRES (Gaelic, far uis, “near water”), a royal and police burgh of Elginshire, Scotland. Pop. (1891) 3971; (1901) 4317. It is situated on the Findhorn, which sweeps past the town and is crossed by a suspension bridge about a mile to the W., 11 m. W. of Elgin by the Highland railway, and 6 m. by road from Findhorn, its port, due north. It is one of the most ancient towns in the north of Scotland. King Donald (892-900), son of Constantine, died in Forres, not without suspicion of poisoning, and in it King Duff (961-967) was murdered. Macbeth is said to have slain Duncan in the first structure that gave its name to Castlehill, which was probably the building demolished in 1297 by the adherents of Wallace. The next castle was a royal residence from 1189 to 1371 and was occupied occasionally by William the Lion, Alexander II. and David II. It was burned down by the Wolf of Badenoch in 1390. The ruins on the hill, however, are those of a later edifice and are surmounted by a granite obelisk, 65 ft. high, raised to the memory of Surgeon James Thomson, a native of Cromarty, who at the cost of his life tended the Russian wounded on the field of the Alma. The public buildings include the town hall, a fine and commodious house on the site of the old tolbooth; the Falconer museum, containing among other exhibits several valuable fossils, and named after Dr Hugh Falconer (1808-1865), the distinguished palaeontologist and botanist, a native of the town; the mechanics’ institute; the agricultural and market hall; Leanchoil hospital and Anderson’s Institution for poor boys. The cross, in Decorated Gothic, stands beside the town hall. Adjoining the town on the south-east is the beautifully-wooded Cluny Hill, a favourite public resort, carrying on its summit the tower, 70 ft. high, which was erected in 1806 to the memory of Nelson, and on its southern slopes a well-known hydropathic. An excellent golf-course extends from Kinloss to Findhorn. The industries comprise the manufacture of chemicals and artificial manures, granite polishing, flour and sawmills, boot- and shoe-making, carriage-building and woollen manufactures. There is also considerable trade in cattle.

Sueno’s Stone, about 23 ft. high, probably the finest sculptured monolith in Scotland, stands in a field to the east of the town. Its origin and character have given rise to endless surmises. It is carved with figures of soldiers, priests, slaughtered men and captives on one side, and on the other with a cross and Runic ornamentation. One theory is that it is a relic of the early Christian church, symbolizing the battle of life and the triumph of good over evil. According to an older tradition it was named after Sueno, son of Harold, king of Denmark, who won a victory on the spot in 1008. A third conjecture is that it commemorates the expulsion of the Danes from Moray in 1014. Skene’s view is that it chronicles the struggle in 900 between Sigurd, earl of Orkney, and Maelbrigd, Maormor of Moray. Another storied stone is called the Witches’ Stone, because it marks the place near Forres where Macbeth is said to have encountered the weird sisters.

Forres is one of the Inverness district group of parliamentary burghs, the other members being Nairn, Fortrose and Inverness. The town is amongst the healthiest in Scotland and has the lowest rainfall in the county.

Within 2 m. of Forres, to the S.W., lie the beautiful woods of Altyre, the seat of the Gordon-Cummings. Three miles farther south is Relugas House, the favourite residence of Sir Thomas Dick Lauder, romantically situated on a height near the confluence of the Divie and the Findhorn. Not far away stand the ruins of the old castle of Dunphail. On the left bank of the Findhorn, 3½ m. W. of Forres, is situated Brodie Castle, partly ancient and partly modern. The Brodies—the old name of their estate was Brothie, from the Irish broth, a ditch, in allusion to the trench that ran from the village of Dyke to the north of the house—were a family of great consequence at the period of the Covenant. Alexander Brodie (1617-1680), the fourteenth laird, was one of the commissioners who went to the Hague to treat with Charles II., and afterwards became a Scottish lord of session and an English judge. He and his son were regarded as amongst the staunchest of the Presbyterians. Farther south is the forest of Darnaway, famous for its oaks, in which stands the earl of Moray’s mansion of Darnaway Castle. It occupies the site of the castle which was built by Thomas Randolph, the first earl. Attached to it is the great hall, capable of accommodating 1000 men, with an open roof of fine dark oak, the only remaining portion of the castle that was erected by Archibald Douglas, earl of Moray, in 1450. Queen Mary held a council in it in 1562. Earl Randolph’s chair, not unlike the coronation chair, has been preserved. Kinloss Abbey, now in ruins, stands some 2½ m. to the N.E. of Forres. It was founded in 1150 by David I., and remained in the hands of the Cistercians till its suppression at the Reformation. Robert Reid, who ruled from 1526 to 1540, was its greatest abbot. His hobby was gardening, and it is believed that many of the 123 varieties of pears and 146 varieties of apples for which the district is famous were due to his skill and enterprise. Edward I. stayed in the abbey for a short time in 1303 and Queen Mary spent two nights in it in 1562.


FORREST, EDWIN (1806-1872), American actor, was born at Philadelphia, Pennsylvania, on the 9th of March 1806, of Scottish and German descent. He made his first stage appearance on the 27th of November 1820, at the Walnut Street theatre, in Home’s Douglas. In 1826 he had a great success in New York as Othello. He played at Drury Lane in the Gladiator in 1836, but his Macbeth in 1845 was hissed by the English audience, and his affront to Macready in Edinburgh shortly afterwards—when he stood up in a private box and hissed him,—was fatal to his popularity in Great Britain. His jealousy of Macready resulted in the Astor Place riot in 1849. In 1837 he had married Catherine, daughter of John Sinclair, an English singer, and his divorce suit in 1852 was a cause célèbre which hurt his reputation and soured his temper. His last appearance was as Richelieu in Boston in 1871. He died on the 12th of December 1872. He had amassed a large fortune, much of which he left by will to found a home for aged actors.

See Lawrence Barrett’s Edwin Forrest (Boston, 1881).


FORREST, SIR JOHN (1847-  ), West Australian statesman and explorer, son of William Forrest, of Bunbury, West Australia, was born near Bunbury, on the 22nd of August 1847, and educated at Perth, W.A. In 1865 he became connected with the Government Survey Department at Perth, and in 1869 led an exploring expedition into the interior in search of D. Leichardt, penetrating through bush and salt-marshes as far inland as 673 123° E. In 1870 he again made an expedition from Perth to Adelaide, along the southern shores. In 1874, with his brother Alexander Forrest (born 1849), he explored eastwards from Champion Bay, following as far as possible the 26th parallel, and striking the telegraph line between Adelaide and Port Darwin; a distance of about 2000 m. was covered in about five months with horses and without carriers, a particularly fine achievement (see Australia: Exploration). John Forrest also surveyed in 1878 the north-western district between the rivers Ashburton and Lady Grey, and in 1882 the Fitzroy district. In 1876 he was made deputy surveyor-general, receiving the thanks of the colony for his services and a grant of 5000 acres of land; for a few months at the end of 1878 he acted as commissioner of crown lands and surveyor-general, being given the full appointment in 1883 and retaining it till 1890. When the colony obtained in 1890 its constitution of self-government, Sir John Forrest (who was made K.C.M.G. in 1891, and G.C.M.G. in 1901) became its first premier, and he held that position till in 1901 he joined the Commonwealth government, first as minister for defence, later as minister for home affairs and postmaster-general, resigning the office of federal treasurer in July 1907. His influence in West Australia was one of an almost autocratic character, owing to the robust vigour of his personality and his success in enforcing his views (see Western Australia: History). In 1897 he was made a member of the Privy Council. Sir John Forrest married in 1876 Margaret Hamersley. He published Explorations in Australia (1876) and Notes on Western Australia (1884-1887).


FORREST, NATHAN BEDFORD (1821-1877), Confederate cavalry general in the American Civil War, was born near Chapel Hill, Tennessee, on the 13th of July 1821. Before his father’s death in 1837 the family had removed to Mississippi, and for some years thereafter it was supported principally by Nathan, who was the eldest son. Thus he never received any formal education (as witnessed by the uncouth phraseology and spelling of his war despatches), but he managed to teach himself with very fair success, and is said to have possessed considerable ability as a mathematician. He was in turn a horse and cattle trader in Mississippi, and a slave dealer and horse trader in Memphis, until 1859, when he took to cotton planting in north-western Mississippi, where he acquired considerable wealth. At the outbreak of the Civil War in 1861 he volunteered as a private, raised a cavalry battalion, of which he was lieut.-colonel, and in February 1862 took part in the defence of Fort Donelson, and refusing, like Generals Floyd and Pillow, to capitulate with the rest of the Confederate forces, made his way out, before the surrender, with all the mounted troops there. He was promptly made a colonel and regimental commander, and fought at Shiloh with distinction, receiving a severe wound. Shortly after this he was promoted brigadier-general (July 1862). At the head of a mounted brigade he took a brilliant part in General Bragg’s autumn campaign, and in the winter of 1862-1863 he was continually active in raiding the hostile lines of communication. These raids have been the theme of innumerable discussions, and on the whole their value seems to have been overrated. At the same time, and apart from the question of their utility, Forrest’s raids were uniformly bold and skilful, and are his chief title to fame in the history of the cavalry arm. Indeed, next to Stuart and Sheridan, he was the finest cavalry leader of the whole war. One of the most remarkable of his actions was his capture, near Rome, Georgia, after five days of marching and fighting, of an entire cavalry brigade under Colonel A.D. Streight (April 1863). He was present at the battle of Chickamauga in September, after which (largely on account of his criticism of General Bragg, the army commander) he was transferred to the Mississippi. Forrest was made a major-general in December 1863. In the winter of 1863-1864 he was as active as ever, and in the spring of 1864 he raided as far north as Paducah, Ky. On the 12th of April 1864 he assaulted and captured Fort Pillow, in Tennessee on the Mississippi; U.S. negro troops formed a large part of the garrison and according to survivors many were massacred after the fort had surrendered. The “Massacre of Fort Pillow” has been the subject of much controversy and there is much conflicting testimony regarding it, but it seems probable that Forrest himself had no part in it. On the 10th of June Forrest decisively defeated a superior Federal force at Brice’s Cross Roads, Miss., and throughout the year, though the greatest efforts were made by the Federals to crush him, he raided in Mississippi, Tennessee and Alabama with almost unvarying success. He was once more with the main Confederate army of the West in the last disastrous campaign of Nashville, and fought stubborn rearguard actions to cover the retreat of the broken Confederates. In February 1865 he was made a lieut.-general, but the struggle was almost at an end and General James H. Wilson, one of the ablest of the Union cavalry generals, rapidly forced back the few Confederates, now under Forrest’s command, and stormed Selma, Alabama, on the 2nd of April. The surrender of General Forrest and his whole command, under the agreement between General Richard Taylor and General E.S. Canby, followed on the 9th of May. After the war he lived in Memphis. He sold his cotton plantation in 1867, and for some years was president of the Selma, Marion and Memphis Railroad. He died at Memphis, Tennessee, on the 29th of October 1877.

The military character of General Forrest, apart from questions of his technical skill, horsemastership and detail special to his arm of the service, was admittedly that of a great leader. He never commanded a large force of all arms. He was uneducated, and had neither experience of nor training for the strategical handling of great armies. Yet his personality and his natural soldierly gifts were such that General Sherman considered him “the most remarkable man the Civil War produced on either side.” Joseph Johnston, the Confederate general whose greatness lay above all in calm and critical judgment, said that Forrest, had he had the advantage of a thorough military training, “would have been the great central figure of the war.”

See the biographies by J.A. Wyeth (1899) and J.H. Mathes (1902).


FORSKÅL, PETER (1736-1763), Swedish traveller and naturalist, was born in Kalmar in 1736. He studied at Göttingen, where he published a dissertation entitled Dubia de principiis philosophiae recentioris (1756). Thence he returned to his native country, which, however, he had to leave after the publication of a pamphlet entitled Pensées sur la liberté civile (1759). By Linnaeus he was recommended to Frederick V. of Denmark, who appointed him to accompany Carsten Niebuhr in an expedition to Arabia and Egypt in 1761. He died of the plague at Jerim in Arabia on the 11th of July 1763.

His friend and companion, Niebuhr, was entrusted with the care of editing his MSS., and published in 1775 Descriptiones animalium, avium, amphibiorum, piscium, insectorum, vermium, quae in itin. Orient. observavit Petrus Forskål. In the same year appeared also his account of the plants of Arabia Felix and of lower Egypt, under the title of Flora Aegyptiaco-Arabica.


FORSSELL, HANS LUDVIG (1843-1901), Swedish historian and political writer, the son of Adolf Forssell, a distinguished mathematician, was born at Gefle, where his father was professor, on 14th January 1843. At the age of sixteen he became a student in Upsala University, where he distinguished himself, and where, in 1866, having taken the degree of doctor, he was appointed reader in history. At the age of thirty, however, Forssell, who had already shown remarkable business capacity, was called to Stockholm, where he filled one important post after another in the Swedish civil service. In 1875 he was appointed head of the treasury, and in 1880 was transferred to the department of inland revenue, of which he continued to be president until the time of his death. In addition to the responsibilities which these offices devolved upon him, Forssell was constantly called to serve on royal commissions, and his political influence was immense. In spite of all these public duties, which he carried through with the utmost diligence, Forssell also found leisure for an abundant literary activity. Of his historical writings the most important were: The Administrative and Economical History of Sweden after Gustavus I. (1869-1875) and Sweden in 1571 (1872). He was also for several years, in company with the poet Wirsén, editor of the Swedish Literary Review. He published two volumes of Studies and 674 Criticisms (1875, 1888). In the year 1881, at the death of the historian Anders Fryxell, Forssell was elected to the vacant seat on the Swedish Academy. The energy of Forssell was so great, and he understood so little the economy of strength, that he unquestionably overtaxed his vital force. His death, however, which occurred with great suddenness on the 2nd of August 1901 while he was staying at San Bernardino in Switzerland, was wholly unexpected. There was little of the typical Swedish urbanity in Forssell’s exterior manner, which was somewhat dry and abrupt. Like many able men who have from early life administered responsible public posts, there appeared a certain want of sympathy in his demands upon others. His views were distinct, and held with great firmness; for example, he was a free-trader, and his consistent opposition to what he called “the new system” had a considerable effect on Swedish policy. He was not exactly an attractive man, but he was a capable, upright and efficient public servant. In 1867 he married Miss Zulamith Eneroth, a daughter of the well-known pomologist of Upsala; she survived him, with two sons and two daughters.

(E. G.)

FORST (originally Forsta or Forste), a town of Germany, in the Prussian province of Brandenburg, on the Neisse, 44 m. S.E. of Frankfort-on-Oder. Pop. (1905) 33,757. It has two Evangelical, a Roman Catholic and an Old Lutheran church; there are two schools and two hospitals in the town. The chief industry of Forst is the manufacture of cloth, but spinning, dyeing and the making of artificial flowers are also carried on. Founded in the 13th century, Forst passed in 1667 to the duke of Saxe-Merseburg, becoming part of electoral Saxony in 1740. It was ceded to Prussia in 1815.


FORSTER, FRANÇOIS (1790-1872), French engraver, was born at Locle in Neufchâtel, on the 22nd of August 1790. In 1805 he was apprenticed to an engraver in Paris, and he also studied painting and engraving simultaneously in the École des Beaux-Arts. His preference was ultimately fixed on the latter art, and on his obtaining in 1814 the first “grand prix de gravure,” the king of Prussia, who was then with the allies in Paris, bestowed on him a gold medal, and a pension of 1500 francs for two years. With the aid of this sum he pursued his studies in Rome, where his attention was devoted chiefly to the works of Raphael. In 1844 he succeeded Tardieu in the Academy. He died at Paris on the 27th of June 1872. Forster occupied the first position among the French engravers of his time, and was equally successful in historical pieces and in portraits. Among his works may be mentioned—The Three Graces, and La Vierge de la légende, after Raphael; La Vierge au bas-relief, after Leonardo da Vinci; Francis I. and Charles V., after Gros; St Cecilia, after Paul Delaroche; Albert Dürer and Henry IV., after Porbus; Wellington, after Gérard; and Queen Victoria, after Winterhalter.


FÖRSTER, FRIEDRICH CHRISTOPH (1791-1868), German historian and poet, was the second son of Karl Christoph Förster (1751-1811), and consequently a brother of the painter, Ernest Joachim Förster (1800-1885). Born at Münchengosserstadt on the Saale on the 24th of September 1791, he received his early education at Altenburg, and after a course of theology at Jena, devoted some time to archaeology and the history of art. At the outbreak of the War of Liberation in 1813, he joined the army, quickly attaining the rank of captain; and by his war-songs added to the national enthusiasm. On the conclusion of the war he was appointed professor at the school of engineering and artillery in Berlin, but on account of some democratic writings he was dismissed from this office in 1817. He then became connected with various journals until about 1829, when he received an appointment at the royal museum in Berlin, with the title of court councillor (Hofrat). He was the founder and secretary of the Wissenschaftlicher Kunstverein in Berlin, and died in Berlin on the 8th of November 1868. Förster’s principal works are: Beiträge zur neueren Kriegsgeschichte (Berlin, 1816); Grundzüge der Geschichte des preussischen Staates (Berlin, 1818); Der Feldmarschall Blücher und seine Umgebungen (Leipzig, 1820); Friedrich der Grosse, Jugendjahre, Bildung und Geist (Berlin, 1822); Albrecht von Wallenstein (Potsdam, 1834); Friedrich Wilhelm I., König von Preussen (Potsdam, 1834-1835); Die Höfe und Kabinette Europas im 18. Jahrhundert (Potsdam, 1836-1839); Leben und Taten Friedrichs des Grossen (Meissen, 1840-1841); Wallensteins Prozess (Leipzig, 1844); and Preussens Helden in Krieg und Frieden, neuere und neueste preussische Geschichte, 7 volumes (Berlin, 1849-1860). The three concluding volumes of this work contain the history of the war of liberation of 1813-14-15. He brought out an edition of Hegel’s works, adapted several of Shakespeare’s plays for the theatre, wrote a number of poems and an historical drama, Gustav Adolf (Berlin, 1832).

Many of his lesser writings were collected and published as Kriegslieder, Romanzen, Erzählungen und Legenden (Berlin, 1838). The beginning of an autobiography of Förster, edited by H. Kletke, has been published under the title, Kunst und Leben (Berlin, 1873).


FORSTER, JOHANN GEORG ADAM (1754-1794), German traveller and author, was born at Nassenhuben, a small village near Danzig, on the 27th of November 1754. His father, Johann Reinhold Forster, a man of great scientific attainments but an intractable temper, was at that time pastor of the place; the family are said to have been of Scottish extraction. In 1765 the elder Forster was commissioned by the empress Catherine to inspect the Russian colonies in the province of Saratov, which gave his son an opportunity of acquiring the Russian language and the elements of a scientific education. After a few years the father quarrelled with the Russian government, and went to England, where he obtained a professorship of natural history and the modern languages at the famous non-conformist academy at Warrington. His violent temper soon compelled him to resign this appointment, and for two years he and his son earned a precarious livelihood by translations in London—a practical education, however, exceedingly useful to the younger Forster, who became a thorough master of English, and acquired many of the ideas which chiefly influenced his subsequent life. At length the turning point in his career came in the shape of an invitation for him and his father to accompany Captain Cook in his third voyage round the world. Such an expedition was admirably calculated to call forth Forster’s peculiar powers. His account of Cook’s voyage (A Voyage round the World, London, 1777; in German, Berlin, 1778-1780), is almost the first example of the glowing yet faithful description of natural phenomena which has since made a knowledge of them the common property of the educated world. The publication of this work was, however, impeded for some time by differences with the admiralty, during which Forster proceeded to the continent to obtain an appointment for his father as professor at Cassel, and found to his surprise that it was conferred upon himself. The elder Forster, however, was soon provided for elsewhere, being appointed professor of natural history at Halle. At Cassel Forster formed an intimate friendship with the great anatomist Sömmerring, and about the same time made the acquaintance of Jacobi, who gave him a leaning towards mysticism from which he subsequently emancipated himself. The want of books and scientific apparatus at Cassel induced him to resort frequently to Göttingen, where he became betrothed to Therese Heyne, the daughter of the illustrious philologist, a clever and cultivated woman, but ill-suited to be Forster’s wife. To be able to marry he accepted (1784) a professorship at the university of Wilna, which he did not find to his taste. The penury and barbarism of Polish circumstances are graphically described in his and his wife’s letters of this period. After a few years’ residence at Wilna he resigned his appointment to participate in a scientific expedition projected by the Russian government, and upon the relinquishment of this undertaking became librarian to the elector of Mainz. He actively promoted the incorporation of the left bank of the Rhine with France and in 1793 went to Paris to carry on the negotiations. Meanwhile, however, the Germans seized Mainz, and Forster—already disheartened by the turn of events in France—was cut off from all return. Domestic sorrows were added to his political troubles and he died suddenly at Paris on the 10th of January 1794.

675

Forster’s masterpiece is his Ansichten vom Niederrhein, von Brabant, Flandern, Holland, England und Frankreich (1791-1794), one of the ablest books of travel of the 18th century. His style is clear and vivid; his method of describing what he sees extraordinarily plastic; above all, he has the art of presenting objects to us from their most interesting and attractive side. The same qualities are also more or less conspicuous in his minor writings. By his translation (from the English) of the Sakuntala of Kalidasa (1791), he first awakened German interest in Indian literature.

Forster’s Sämtliche Werke appeared at Leipzig in 9 vols. in 1843. The Ansichten vom Rhein, &c., has been frequently reprinted (best edition by A. Leitzmann, Halle, 1893); Leitzmann has also published (Stuttgart, 1894) a selection of Forster’s Kleine Schriften, which originally appeared in 6 vols. (1789-1797). His correspondence was published by his wife (2 vols., Leipzig, 1829); his Briefwechsel mit Sömmerring by H. Hettner (Brunswick, 1877). See J. Moleschott, G. Forster, der Naturforscher des Volks (1854; 3rd ed., 1874); K. Klein, G. Forster in Mainz (Gotha, 1863); A. Leitzmann, G. Forster (Vorlesung) (Halle, 1893).


FORSTER, JOHN (1812-1876), English biographer and critic, was born on the 2nd of April 1812 at Newcastle. His father, who was a Unitarian and belonged to the junior branch of a good Northumberland family, was a cattle-dealer. After being well grounded in classics and mathematics at the grammar school of his native town, John Forster was sent in 1828 to Cambridge, but after only a month’s residence he removed to London, where he attended classes at University College, and was entered at the Inner Temple. He devoted himself, however, chiefly to literary pursuits. He contributed to The True Sun, The Morning Chronicle and to The Examiner, for which he acted as literary and dramatic critic; and the influence of his powerful individuality soon made itself felt. His Lives of the Statesmen of the Commonwealth (1836-1839) appeared partly in Lardner’s Cyclopaedia. He published the work separately in 1840 with a Treatise on the Popular Progress in English History. Its merits obtained immediate recognition, and Forster became a prominent figure in that distinguished circle of literary men which included Bulwer, Talfourd, Albany, Fonblanque, Landor, Carlyle and Dickens. Forster is said to have been for some time engaged to Letitia Landon, but the engagement was broken off, and Miss Landon married George Maclean. In 1843 he was called to the bar but he never became a practising lawyer. For some years he edited the Foreign Quarterly Review; in 1846, on the retirement of Charles Dickens, he took charge for some months of the Daily News; and from 1847 to 1856 he edited the Examiner. From 1836 onwards he contributed to the Edinburgh Quarterly and Foreign Quarterly Reviews a variety of articles, some of which were republished in two volumes of Biographical and Historical Essays (1858). In 1848 appeared his admirable Life and Times of Oliver Goldsmith (revised in 1854). Continuing his researches into English history under the early Stuarts, he published in 1860 the Arrest of the Five Members by Charles I.—A Chapter of English History rewritten, and The Debates on the Grand Remonstrance, with an Introductory Essay on English Freedom. These were followed by his Sir John Eliot: a Biography (1864), elaborated from one of his earlier studies for the Lives of Eminent British Statesmen. In 1868 appeared his Life of Landor, and, on the death of his friend Alexander Dyce, Forster undertook the publication of his third edition of Shakespeare. For several years he had been collecting materials for a life of Swift, but he interrupted his studies in this direction to write his standard Life of Charles Dickens. He had long been intimate with the novelist, and it is by this work that John Forster is now chiefly remembered. The first volume appeared in 1872, and the biography was completed in 1874. Towards the close of 1875 the first volume of his Life of Swift was published; and he had made some progress in the preparation of the second at the time of his death on the 2nd of February 1876. In 1855 Forster had been appointed secretary to the lunacy commission, and from 1861 to 1872 he held the office of a commissioner in lunacy. His valuable collection of manuscripts, including the original copies of Charles Dickens’s novels, together with his books and pictures, was bequeathed to South Kensington Museum.

An admirable account of him by Henry Morley is prefixed to the official handbook (1877) of the Dyce and Forster bequests.


FORSTER, JOHN COOPER (1823-1886), British surgeon, was born in 1823 in Lambeth, London, where his father and grandfather before him had been local medical practitioners. He entered Guy’s hospital in 1841, was appointed demonstrator of anatomy in 1850, assistant-surgeon, 1855, and surgeon, 1870. He became a member of the College of Surgeons in 1844, fellow in 1849 and president in 1884. He was a prompt and sometimes bold operator. In 1858 he performed practically the first gastrostomy in England for a case of cancer of the oesophagus. Among his best-known papers were discussions of acupressure, syphilis, hydrophobia, intestinal obstruction, modified obturator hernia, torsion, and colloid cancer of the large intestine; and he published a book on Surgical Diseases of Children in 1860, founded on his experience as surgeon to the hospital for children and women in Waterloo Road. He died suddenly in London on the 2nd of March 1886.


FORSTER, WILLIAM EDWARD (1818-1886), British statesman, was born of Quaker parents at Bradpole in Dorsetshire on the 11th of July 1818. He was educated at the Friends’ school at Tottenham, where his father’s family had long been settled, and on leaving school he was put into business. He declined, however, on principle, to enter a brewery. Becoming in due time a woollen manufacturer in a large way at Bradford, Yorkshire (from which after his marriage he moved to Burley-in-Wharfedale), he soon made himself known as a practical philanthropist. In 1846-1847 he accompanied his father to Ireland as distributor of the Friends’ relief fund for the famine in Connemara, and the state of the country made a deep impression on him. In 1849 he wrote a preface to a new edition of Clarkson’s Life of William Penn, defending the Quaker statesman against Macaulay’s criticisms. In 1850 he married Jane Martha, eldest daughter of the famous Dr Arnold of Rugby. She was not a Quaker, and her husband was formally excommunicated for marrying her, but the Friends who were commissioned to announce the sentence “shook hands and stayed to luncheon.” Forster thereafter ranked himself as a member of the Church of England, for which, indeed, he was in later life charged with having too great a partiality. There were no children of the marriage, but when Mrs Forster’s brother, William Arnold, died in 1859, leaving four orphans, the Forsters adopted them as their own.

One of these children was Mr H.O. Arnold-Forster (1855-1909), the well-known Liberal-Unionist member of parliament, who eventually became a member of Mr Balfour’s cabinet; he was secretary to the admiralty (1900-1903), and then secretary of state for war (1903-1905), and was the author of numerous educational books published by Cassell & Co., of which firm he was a director.

W.E. Forster gradually began to take an active part in public affairs by speaking and lecturing. In 1858 he gave a lecture before the Leeds Philosophical Institution on “How we Tax India.” In 1859 he stood as Liberal candidate for Leeds, but was beaten. But he was highly esteemed in the West Riding, and in 1861 he was returned unopposed for Bradford. In 1865 (unopposed) and in 1868 (at the head of the poll) he was again returned. He took a prominent part in parliament in the debates on the American Civil War, and in 1868 was made under-secretary for the colonies in Earl Russell’s ministry. It was then that he first became a prominent advocate of imperial federation. In 1866 his attitude on parliamentary reform attracted a good deal of attention. His speeches were full of knowledge of the real condition of the people, and contained something like an original programme of Radical legislation. “We have other things to do,” he said, “besides extending the franchise. We want to make Ireland loyal and contented; we want to get rid of pauperism in this country; we want to fight against a class which is more to be dreaded than the holders of a £7 franchise—I mean the dangerous class in our large towns. We want to see 676 whether we cannot make for the agricultural labourer some better hope than the workhouse in his old age. We want to have Old England as well taught as New England.” In these words he heralded the education campaign which occupied the country for so many years afterwards. Directly the Reform Bill had passed, the necessity of “inducing our masters to learn their letters” (in Robert Lowe’s phrase) became pressing. Mr Forster and Mr Cardwell, as private members in opposition, brought in Education Bills in 1867 and 1868; and in 1868, when the Liberal party returned to office, Mr Forster was appointed vice-president of the council, with the duty of preparing a government measure for national education. The Elementary Education Bill (see Education) was introduced on the 17th of February 1870. The religious difficulty at once came to the front. The Manchester Education Union and the Birmingham Education League had already formulated in the provinces the two opposing theories, the former standing for the preservation of denominational interests, the latter advocating secular rate-aided education as the only means of protecting Nonconformity against the Church. The Dissenters were by no means satisfied with Forster’s “conscience clause” as contained in the bill, and they regarded him, the ex-Quaker, as a deserter from their own side; while they resented the “25th clause,” permitting school boards to pay the fees of needy children at denominational schools out of the rates, as an insidious attack upon themselves. By the 14th of March, when the second reading came on, the controversy had assumed threatening proportions; and Mr Dixon, the Liberal member for Birmingham and chairman of the Education League, moved an amendment, the effect of which was to prohibit all religious education in board schools. The government made its rejection a question of confidence, and the amendment was withdrawn; but the result was the insertion of the Cowper-Temple clause as a compromise before the bill passed. Extremists on both sides abused Forster, but the government had a difficult set of circumstances to deal with, and he acted like a prudent statesman in contenting himself with what he could get. An ideal bill was impracticable; it is to Forster’s enduring credit that the bill of 1870, imperfect as it was, established at last some approach to a system of national education in England without running absolutely counter to the most cherished English ideas and without ignoring the principal agencies already in existence.

Forster’s next important work was in passing the Ballot Act of 1872, but for several years afterwards his life was uneventful. In 1874 he was again returned for Bradford, in spite of Dissenting attacks, and he took his full share of the work of the Opposition Front Bench. In 1875, when Mr Gladstone “retired,” he was strongly supported for the leadership of the Liberal party, but declined to be nominated against Lord Harrington. In the same year he was elected F.R.S., and made lord rector of Aberdeen University. In 1876, when the Eastern question was looming large, he visited Servia and Turkey, and his subsequent speeches on the subject were marked by studious moderation, distasteful to extremists on both sides. On Mr Gladstone’s return to office in 1880 he was made chief secretary for Ireland, with Lord Cowper as lord-lieutenant. He carried the Compensation for Disturbance Bill through the Commons, only to see it thrown out in the Lords, and his task was made more difficult by the agitation which arose in consequence. During the gloomy autumn and winter of 1880-1881 Forster’s energy and devotion in grappling with the situation in Ireland (see Ireland) were indefatigable, his labour was enormous, and the personal risks he ran were many; but he enjoyed the Irish character in spite of all obstacles, and inspired genuine admiration in all his coadjutors. On the 24th of January 1881 he introduced a new Coercion Bill in the House of Commons, to deal with the growth of the Land League, and in the course of his speech declared it to be “the most painful duty” he had ever had to perform, and one which would have prevented his accepting his office if he had known that it would fall upon him. The bill passed, among its provisions being one enabling the Irish government to arrest without trial persons “reasonably suspected” of crime and conspiracy. The Irish party used every opportunity in and out of parliament for resenting this act, and Forster was kept constantly on the move between Dublin and London, conducting his campaign against crime and anarchy and defending it in the House of Commons. His scrupulous conscientiousness and anxiety to meet every reasonable claim availed him nothing with such antagonists, and the strain was intense and continuous. He was nicknamed “Buckshot” by the Nationalist press, on the supposition that he had ordered its use by the police when firing on a crowd. On the 13th of October Mr Parnell was arrested, and on the 20th the Land League was proclaimed. From that time Forster’s life was in constant danger, and he had to be escorted by mounted police when he drove in Dublin. Early in March 1882 he visited some of the worst districts in Ireland, and addressed the crowd at Tullamore on the subject of outrages, denouncing the people for their want of courage in not assisting the government, but adding, “whether you do or not, it is the duty of the government to stop the outrages, and stop them we will.” Forster’s pluck in speaking out like this was fully appreciated in England, but it was not till after the revelations connected with the Phoenix Park murders that the dangers he had confronted were properly realized, and it became known that several plans to murder him had only been frustrated by the merest accidents. On the 2nd of May Mr Gladstone announced that the government intended to release Mr Parnell and his fellow-prisoners in Kilmainham, and that both Lord Cowper and Mr Forster had in consequence resigned; and the following Saturday Forster’s successor, Lord Frederick Cavendish, was, with Mr Burke, murdered in Phoenix Park. It was characteristic of the man that Forster at once offered to go back to Dublin temporarily as chief secretary, but the offer was declined. His position naturally attracted universal attention towards him, particularly during the debates which ensued in parliament on the “Kilmainham Treaty.” But Mr Gladstone’s influence with the Liberal party was paramount, in spite of the damaging appearance of the compact made with Parnell, and Forster’s pointed criticisms only caused thoroughgoing partisans to accuse him of a desire to avenge himself. It was not till the next session that he delivered his fiercest attack on Parnell in the debate on the address, denouncing him for his connexion with the Land League, and quoting against him the violent speeches of his supporters and the articles of his newspaper organs. It was on this occasion that Parnell, on Forster’s charging him, not with directly planning or perpetrating outrages or murder, but with conniving at them, ejaculated “It’s a lie”; and, replying on the next day, the Irish leader, instead of disproving Forster’s charges, bitterly denounced his methods of administration. Though, during the few remaining years of his life, Forster’s political record covered various interesting subjects, his connexion with these stormy times in Ireland throws them all into shadow. He died on the 6th of April 1886, on the eve of the introduction of the Home Rule Bill, to which he was stoutly opposed. In the interval there had been other questions on which he found himself at variance with Gladstonian Liberalism, for instance, as regards the Sudan and the Transvaal, nor was he inclined to stomach the claims of the Caucus or the Birmingham programme. When the Redistribution Act divided Bradford into three constituencies, Forster was returned for the central division, but he never took his seat in the new parliament.

Forster, like John Bright, was an excellent representative of the English middle-class in public life. Patriotic, energetic, independent, incorruptible, shrewd, fair-minded, he was endowed not only with great sympathy with progress, but also with a full faculty for resistance to mere democraticism. He was tall (the Yorkshiremen called him “Long Forster”) and strongly though stiffly built, and, with his simple tastes and straightforward manners and methods, was a typical North-country figure. His oratory was rough and unpolished, but full of freshness and force and genuine feeling. It was Forster who, when appealing to the government at the time of Gordon’s danger at Khartum, spoke of Mr Gladstone as able “to persuade most people of most things, and himself of almost anything,” and though the phrase 677 was much resented by Mr Gladstone’s entourage, the truth that underlay it may be taken as representing the very converse of his own character. His personal difficulties with some of his colleagues, both in regard to the Education Act of 1870 and his Irish administration, must be properly understood if a complete comprehension of his political career is to be obtained. For an account of them we need only refer to the Life of the Right Hon. W.E. Forster, by Sir T. Wemyss Reid.

(H. Ch.)

FORSYTH, PETER TAYLOR (1848-  ), British Nonconformist divine, was born at Aberdeen in 1848. He took first-class honours in classics at Aberdeen, subsequently studied at Göttingen (under Ritschl) and at New College, Hampstead, and entered the Congregational ministry. Having held pastorates at Shipley, Hackney, Manchester, Leicester and Cambridge, he became principal of Hackney Theological College, Hampstead, in 1901. In 1907 he delivered the Lyman Beecher lectures on preaching at Yale University, published as Positive Preaching and Modern Mind. Among his other publications may be mentioned Religion in Recent Art, and articles in the Contemporary Review, Hibbert Journal, and London Quarterly. He was chairman of the Congregational Union of England and Wales in 1905.


FORTALEZA (usually called Ceará by foreigners), a city and port of Brazil and the capital of the state of Ceará, on a crescent-shaped indentation of the coast-line immediately W. of Cape Mucuripe or Mocoripe, 7½ m. from the mouth of the Ceará river, in lat. 3° 42′ S., long. 38° 30′ W. Pop. (1890) of the municipality, including a large rural district, 40,902. The city stands on an open sandy plain overlooking the sea, and is regularly laid out, with broad, well-paved, gas-lighted streets and numerous squares. Owing to the aridity of the climate the vegetation is less luxuriant than in most Brazilian cities. The temperature is usually high, but it is modified by the strong sea winds. Fortaleza has suffered much from epidemics of yellow-fever, small-pox and beri-beri, but the climate is considered to be healthy. A small branch of the Ceará river, called the Pajehú, traverses the city and divides it into two parts, that on its right bank being locally known as Outeiro. Fortaleza is the see of a bishopric, created in 1854, but it has no cathedral, one of its ten churches being used for that purpose. Its public buildings include the government house, legislative chambers, bishop’s palace, an episcopal seminary, a lyceum (high school), Misericordia hospital, and asylums for mendicants and the insane. The custom-house stands nearer the seashore, 1¾ m. from the railway station in the city, with which it is connected by rail. The port is the principal outlet for the products of the state, but its anchorage is an open roadstead, one of the most dangerous on the northern coast of Brazil, and all ships are compelled to anchor well out from shore and discharge into lighters. Port improvements designed by the eminent engineer Sir John Hawkshaw have been under construction for many years, but have made very slow progress. The Baturité railway, built by the national government partly to give employment to starving refugees in times of long-continued droughts, connects the city and its port with fertile regions to the S.W., and extends to Senador Pompeu, 178 m. distant. The exports include sugar, coffee, rubber, cotton, rum, rice, beans, fruits, hides and skins.

Fortaleza had its origin in a small village adjoining a fort established at this point in early colonial times. In 1654 it took the name of Villa do Forte da Assumpçã, but it was generally spoken of as Fortaleza. In 1810 it became the capital of Ceará, and in 1823 it was raised to the dignity of a city under the title of Fortaleza da Nova Bragança.


FORT AUGUSTUS, a village of Inverness-shire, Scotland. Pop. (1901) 706. It is delightfully situated at the south-western extremity of Loch Ness, about 30 m. S.W. of Inverness, on the rivers Oich and Tarff and the Caledonian Canal. A branch line connects with Spean Bridge on the West Highland railway via Invergarry. The fort, then called Kilchumin, was built in 1716 for the purpose of keeping the Highlanders in check, and was enlarged in 1730 by General Wade. It was captured by the Jacobites in 1745, but reoccupied after the battle of Culloden, when it received its present name in honour of William Augustus, duke of Cumberland, the victorious general. The fort was used as a sanatorium until 1857, when it was bought by the 12th Lord Lovat, whose son presented it in 1876 to the English order of Benedictines. Within four years there rose upon its site a pile of stately buildings under the title of St Benedict’s Abbey and school, a monastic and collegiate institution intended for the higher education of the sons of the Roman Catholic nobility and gentry. The series of buildings consists of the college, monastery, hospice and scriptorium—the four forming a quadrangle connected by beautiful cloisters. Amongst its benefactors were many Catholic Scots and English peers and gentlemen whose arms are emblazoned on the windows of the spacious refectory hall. The summit of the college tower is 110 ft. high.


FORT DODGE, a city and the county-seat of Webster county, Iowa, U.S.A., on the Des Moines river, 85 m. (by rail) N. by W. from Des Moines. Pop. (1890) 4871; (1900) 12,162; (1905, state census) 14,369, (2269 being foreign-born); (1910) 15,543. It is served by the Illinois Central, the Chicago Great Western, the Minneapolis & Saint Louis, and the Fort Dodge, Des Moines & Southern railways, the last an electric interurban line. Eureka Springs and Wild Cat Cave are of interest to visitors, and attractive scenery is furnished by the river and its bordering bluffs. The river is here spanned by the Chicago Great Western railway steel bridge, or viaduct, one of the longest in the country. Fort Dodge is the seat of Tobin College (420 students in 1907-1908), a commercial and business school, with preparatory, normal and classical departments, and courses in oratory and music; among its other institutions are St Paul’s school (Evangelical Lutheran), two Roman Catholic schools, Corpus Christi Academy and the Sacred Heart school, Our Lady of Lourdes convent and a Carnegie library. Oleson Park and Reynold’s Park are the city’s principal parks. Immediately surrounding Fort Dodge is a rich farming country. To the E. of the city lies a gypsum bed, extending over an area of about 50 sq. m., and considered to be the most valuable in the United States; to the S. coal abounds; there are also limestone quarries and deposits of clay in the vicinity—the clay being, for the most part, obtained by mining. Fort Dodge is a market for the products of the surrounding country, and is a shipping centre of considerable importance. It has various manufactures, including gypsum, plaster, oatmeal, brick and tile, sewer pipe, pottery, foundry and machine-shop products, and shoes. In 1905 the value of all the factory products was $3,025,659, an increase of 200.8% over that for 1900. Fort Clark was erected on the site in 1850 to protect settlers against the Indians; in 1851 the name was changed by order of the secretary of war to Fort Dodge in honour of Colonel Henry Dodge (1782-1867), who was a lieutenant-colonel of Missouri Volunteers in the War of 1812, served with distinction as a colonel of Michigan Mounted Volunteers in the Black Hawk War, resigned from the military service in March 1833, was governor of Wisconsin Territory from 1836 to 1841 and from 1846 to 1848, and was a delegate from Wisconsin Territory to Congress from 1841 to 1845, and a United States senator from Wisconsin in 1848-1857. The fort was abandoned in 1853, and in 1854 a town was laid out. It was chartered as a city in 1869. From the gypsum beds near Fort Dodge was taken in 1868 the block of gypsum from which was modelled the “Cardiff Giant,” a rudely-fashioned human figure, which was buried near Cardiff, Onondaga county, New York, where it was “discovered” late in 1869. It was then exhibited in various parts of the country as a “petrified man.” The hoax was finally exposed by Professor Othniel C. Marsh of Yale; and George Hall of Binghamton, N.Y., confessed to the fraud, his object having been to discredit belief in the “giants” of Genesis vi. 4. (See “The Cardiff Giant: the True Story of a Remarkable Deception,” by Andrew D. White, in the Century Magazine, vol. xlii., 1902.)


FORT EDWARD, a village of Washington county, New York, U.S.A., in the township of Fort Edward, on the Hudson river, 56 m. by rail N. of Albany. Pop. of the village (1900) 3521, of whom 385 were foreign-born; (1905) 3806; (1910) 3762; of 678 the township, including the village (1900), 5216; (1905), 5300; (1910), 5740. The village lies mostly at the foot of a steep hill, is at the junction of the main line and the Glens Falls branch of the Delaware & Hudson railway, and is also served by electric line to Albany and Glens Falls; the barge canal connecting Lake Champlain and the Hudson river enters the Hudson here. The river furnishes good water-power, which is used in the manufacture of paper and wood pulp, the leading industry. Shirts and pottery (flower pots, jars and drain tile) are manufactured also. The village is the seat of the Fort Edward Collegiate Institute, a non-sectarian school for girls, which was founded in 1854 and until 1893 was coeducational. The village owns and operates the waterworks. Indian war parties on their way to Canada were accustomed to make a portage from this place, the head of navigation for small boats on the Hudson, to Lake George or Lake Champlain, and hence it was known as the Great Carrying Place. Governor (afterwards Sir) Francis Nicholson in 1709, in his expedition against Canada, built here a stockade which was named Fort Nicholson. Some years afterwards John Henry Lydius (1693-1791) established a settlement and protected it by a new fort, named Fort Lydius, but this was destroyed by the French and Indians in 1745. In 1755, a third fort was built by General Phineas Lyman (1716-1774), as preliminary to the expedition against Crown Point under General William Johnson, and was named Fort Lyman; in 1756 Johnson renamed it Fort Edward in honour of Edward, Duke of York. In the War for Independence Fort Edward was the headquarters of General Philip Schuyler while he and his troops were blocking the march of General Burgoyne’s army from Fort Ticonderoga. When a part of Burgoyne’s forces was distant only 3 or 4 m. from Fort Edward, on Fort Edward Hill, on the 27th of July 1777, the leader of an Indian band whose assistance the British had sought is supposed to have murdered Jane McCrea (c. 1757-1777), a young-girl who had been visiting friends in Fort Edward, and who was to be escorted on that day to the British camp and there to be married to David Jones, a loyalist serving as a lieutenant in Burgoyne’s army; it is possible that she was shot accidentally by Americans pursuing her Indian escorts, but her death did much to rouse local sentiment against Burgoyne and his Indian allies, and caused many volunteers to join the American army resisting Burgoyne’s invasion. A monument has been erected by the Jane McCrea Chapter of the Daughters of the American Revolution near the spot where she was killed, and she is buried in Union Cemetery in Fort Edward. Fort Edward township was erected in 1818 from a part of the township of Argyle. Fort Edward village was incorporated in 1852.

See R.O. Bascom, The Fort Edward Book (Fort Edward, 1903).


FORTESCUE, SIR JOHN (c. 1394-c. 1476), English lawyer, the second son of Sir John Fortescue, of an ancient family in Devonshire, was born at Norris, near South Brent, in Somersetshire. He was educated at Exeter College, Oxford. During the reign of Henry VI. he was three times appointed one of the governors of Lincoln’s Inn. In 1441 he was made a king’s sergeant at law, and in the following year chief justice of the king’s bench. As a judge Fortescue is highly recommended for his wisdom, gravity and uprightness; and he seems to have enjoyed great favour with the king, who is said to have given him some substantial proofs of esteem and regard. He held his office during the remainder of the reign of Henry VI., to whom he steadily adhered; and having faithfully served that unfortunate monarch in all his troubles, he was attainted of treason in the first parliament of Edward IV. When Henry subsequently fled into Scotland, he is supposed to have appointed Fortescue, who appears to have accompanied him in his flight, chancellor of England. In 1463 Fortescue accompanied Queen Margaret and her court in their exile on the Continent, and returned with them afterwards to England. During their wanderings abroad the chancellor wrote for the instruction of the young prince Edward his celebrated work De laudibus legum Angliae. On the defeat of the Lancastrian party he made his submission to Edward IV., from whom he received a general pardon dated Westminster, October 13, 1471. He died at an advanced age, but the exact date of his death has not been ascertained.

Fortescue’s masterly vindication of the laws of England, though received with great favour by the learned of the profession to whom it was communicated, did not appear in print until the reign of Henry VIII., when it was published, but without a date. It was subsequently many times reprinted. Another valuable and learned work by Fortescue, written in English, was published in 1714, under the title of The Difference between an Absolute and a Limited Monarchy. In the Cotton library there is a manuscript of this work, in the title of which it is said to have been addressed to Henry VI.; but many passages show plainly that it was written in favour of Edward IV. A revised edition of this work, with a very valuable historical and biographical introduction, was published in 1885 by Charles Plummer, under the title The Governance of England. All of Fortescue’s minor writings appear in The Works of Sir John Fortescue, now first Collected and Arranged, published in 1869 for private circulation, by his descendant, Lord Clermont.

Authorities.—Plummer’s Introduction to The Governance of England; Life in Lord Clermont’s edition; Gairdner’s Paston Letters; Foss’s Lives of the Judges.


FORTESCUE, SIR JOHN (c. 1531-1607), English statesman, was the eldest son of Sir Adrian Fortescue (executed in 1539), and of his second wife, Anne, daughter of Sir William Reade or Rede of Borstall in Buckinghamshire. The exact date of his birth is unrecorded.1 He was restored in blood and to his estate at Shirburn in Oxfordshire in 1551. Through his father’s mother, Alice, daughter of Sir Geoffrey Boleyn, he was a second cousin once removed from Queen Elizabeth. He acquired early a considerable reputation as a scholar and was chosen to direct the Princess Elizabeth’s classical studies in Mary’s reign. On the accession of Elizabeth he was appointed keeper of the great wardrobe. He was returned in 1572 to parliament for Wallingford, in 1586 for Buckingham borough, in 1588 and 1597 for Buckingham county, and in 1601 for Middlesex. In 1589 he was appointed chancellor of the exchequer and a member of the privy council. In 1592 he was knighted, and in November 1601, in addition to his two great offices, he received that of chancellor of the duchy of Lancaster. By means of his lucrative employments he amassed great wealth, with which he bought large estates in Oxfordshire and Buckinghamshire, and kept up much state and a large household. He took a prominent part in public business, was a member of the court of the star chamber and an ecclesiastical commissioner, sat on various important commissions, and as chancellor of the exchequer explained the queen’s financial needs and proposed subsidies in parliament. On the death of Elizabeth he suggested that certain restrictions should be imposed on James’s powers, in order probably to limit the appointment of Scotchmen to office,2 but his advice was not followed. He was deprived by James of the chancellorship of the exchequer, but evidently did not forfeit his favour, as he retained his two other offices and entertained James several times at Henden and Salden. In 1604 Sir John, who stood for Buckinghamshire, was defeated by Sir Francis Goodwin, whose election, however, was declared void by the lord chancellor on the ground of a sentence of outlawry under which he lay, and Fortescue was by a second election returned in his place. This incident gave rise to a violent controversy, regarding the chancellor’s jurisdiction in deciding disputed elections to parliament, which was repudiated by the Commons but maintained by the king. The matter after much debate was ended by a compromise, which, while leaving the principle unsettled, set aside the elections of both candidates and provided for the issue of a new writ. Fortescue was then in February 1606 returned for Middlesex, which he represented till his death on the 23rd of December 1607. He was buried in Mursley church in Buckinghamshire, where a monument was erected to his memory. His long public career was highly honourable, and he served his sovereign and country with unswerving fidelity and honesty. His learned attainments too were considerable—Camden styles him “vir integer, Graece, 679 Latineque apprime eruditus,”3 and his scholarship is also praised by Lloyd, while his friendship with Sir Thomas Bodley procured gifts of books and manuscripts to the latter’s library. Fortescue married (1) Cecily, daughter of Sir Edmund Ashfield of Ewelme, by whom, besides a daughter, he had two sons, Sir Francis and Sir William; and (2) Alice, daughter of Christopher Smyth of Annabels in Hertfordshire, by whom he had one daughter. His descent in the male line became extinct with the death of Sir John Fortescue, 3rd baronet, in 1717.

Bibliography.—Article in the Dict. of Nat. Biography; Lord Clermont’s Hist. of the Family of the Fortescues; Hist. Notices of the Parishes of Swyncombe and Ewelme, by A. Napier, p. 390; D. Lloyd’s State Worthies (1670), p. 556; Add. MSS. 12497 f. 143 (“Sir John Fortescue’s meanes of gaine by Sir R. Thikstin told me [Sir Julius Caesar]”); Hist. MSS. Comm., Marquis of Salisbury’s MSS.; Spedding’s Life of Bacon; Architectural and Archaeological Soc. for Bucks, Records of Bucks, vol. i. p. 86.

(P. C. Y.)

1 The inscription on his tomb states that he was 76 at his death on the 23rd of December 1607 (Lord Clermont’s Hist. of the Family of Fortescue, 377), but according to a statement ascribed to himself, he was born the same year as Queen Elizabeth and therefore in 1533 (Bucks. Architect. and Archaeolog. Soc. Records of Bucks, i. p. 89).

2 David Lloyd’s State Worthies (1670), 556.

3 Annales, 613.


FORTEVIOT, a village and parish of Perthshire, Scotland, on the Water of May, a right-hand affluent of the Earn, 6¾ m. S.W. of Perth. Pop. of parish (1901) 562. It is a place of remote antiquity, having been a capital of the Picts, when the district was known as Fortrenn, and afterwards of the Scots. The army led by Edward Baliol camped here before the battle of Dupplin (1332), in which the regent, Donald, earl of Mar, was slain along with 13,000 out of 30,000 men. The parish of Findo-Gask adjoining it on the N.W. contains remains of a Roman road, station and outpost, besides the “auld hoose” of Gask in which the Baroness Nairne was born, and which forms the theme of one of her most popular songs. The new house in which she died dates from 1801.


FORT GEORGE, a military station of Inverness-shire, Scotland. It lies 12 m. N.E. of Inverness, and is the terminus of the small branch line connecting with the Highland railway at Gollanfield junction. It occupies a sandy promontory forming the extreme end of the southern shore of Inner Moray Firth (also called the Firth of Inverness), which is here only 1 m. wide. There is communication by ferry with Fortrose on the opposite coast of the Black Isle. The fort was begun in 1748, partly after the plan of one of Vauban’s works, and named in honour of George II. Wolfe, who saw it in course of erection in 1751, was much impressed with it and thought it would, when finished, be “the most considerable fortress and best situated in Great Britain.” It covers 16 acres and contains accommodation for nearly 2200 men. It is the depot of the Seaforth Highlanders, and a military training-ground of some size and importance because the surrounding country gives ample facilities for exercise and manœuvres. General Wade’s road is maintained in good order. Fort George, it is said, had almost been chosen as the place of detention for Napoleon when the claims of St Helena were put forward. About 2 m. S.E. is the fishing village of Campbelltown, in growing repute as a seaside resort. Midway between the fort and Inverness stands Castle Stuart, a shooting-box of the earl of Moray.


FORTH, a river and firth of the east of Scotland. The river is formed by two head streams, Duchray Water (12 m.) and Avondhu (10 m.), or Laggan as it is called after it leaves Loch Ard, both rising in the north-east of Ben Lomond in Stirlingshire, and uniting 1 m. west of Aberfoyle. From this point till it receives the Kelty, the Forth continues to be a Perthshire stream, but afterwards it becomes the dividing line between the counties of Perth and Stirling as far as the confluence of the Allan. Thence it belongs to Stirlingshire to a point 1½ m. due west of Cambus, whence it serves as the boundary between the shires of Stirling and Clackmannan. Owing to the extremely tortuous character of its course between Gartmore and Alloa—the famous “links of the Forth,”—the actual length of the river is 66 m., or nearly double the distance in a direct line (30 m.) between the source of the Duchray and Kincardine, where the firth begins. The river drains an area of 645 sq. m. Its general direction is mainly easterly with a gentle trend towards the south, and the principal tributaries on the left are the Goodie, Teith, Allan and Devon, and on the right, the Kelty, Boquhan and Bannock. The alluvial plain extending from Gartmore to the county town is called the Carse of Stirling. The places of interest on the banks are Aberfoyle, Kippen, Stirling, Cambuskenneth, Alloa and Kincardine, but after it crosses the Highland line the Forth does not present many passages of remarkable beauty. There are bridges at Aberfoyle, Gartmore, Frew, Drip and Stirling (2), besides railway viaducts at Stirling and Alloa, and there are ferries at Stirling (for Cambuskenneth), Alloa (for South Alloa) and Kincardine (for Airth). The tide rises to 4½ m. above Stirling, where the river is navigable at high water by vessels of 100 tons. There is, however, a brisk shipping trade at Alloa, where the dock accommodates vessels of at least 300 tons.

The Firth of Forth extends from Kincardine to the North Sea, that is, to an imaginary line drawn, just west of the Isle of May, from the East Neuk of Fife to the mouth of the Tyne in Haddingtonshire—a distance of 48 m. Thus, according to some calculations, the Forth measures from source to sea 114 m. The width of the firth varies from ½ m. at Kincardine and 1½ m. at Queensferry to 6½ m. at Leith and 17½ m. at the mouth. The chief affluents are, on the south, the Carron, Avon, Almond, Leith, Esk and Tyne, and on the north, the Tiel, Leven, Kiel and Dreel. The principal ports on the south shore are Grangemouth, Bo’ness, Granton and Leith, and on the north, Burntisland and Kirkcaldy; but fishery centres and holiday resorts are very numerous on both coasts. Since the opening of the Forth Bridge (see Bridges) in 1890 the ferries at Queensferry and Burntisland have greatly diminished in importance. The fisheries are still considerable, though the oyster trade is dwindling. The larger islands are Inchcolm, with the ruins of an abbey, Inchkeith, with fortifications and a lighthouse, and the Isle of May, with a lighthouse. The anchorage of St Margaret’s Hope, with the naval base of Rosyth, lies off the shore of Fife immediately to the west of the Forth Bridge.

The Forth was the Bodotria of Tacitus and the Scots Water of the chroniclers of the 11th and 12th centuries; while Bede (d. 735) knew the firth as Sinus orientalis (the Eastern Gulf), and Nennius (fl. 796) as Mare Friesicum (the Frisian Sea).


FORTIFICATION AND SIEGECRAFT. “Fortification” is the military art of strengthening positions against attack. The word (Lat. fortis, strong, and facere, to make) implies the creation of defences. Thus the boy who from the top of a mound defies his comrades, or shelters from their snowballs behind a fence, is merely taking advantage of ground; but if he puts up a hurdle on his mound and stands behind that he has fortified his position.

Fortification consists of two elements, viz. protection and obstacle. The protection shields the defender from the enemy’s missiles; the obstacle prevents the enemy from coming to close quarters, and delays him under fire.

Protection may be of several kinds, direct or indirect. Direct protection is given by a wall or rampart of earth, strong enough to stop the enemy’s missiles. The value of this is reduced in proportion as the defender has to expose himself to return the enemy’s fire, or to resist his attempts to destroy the defences. Indirect protection is given by distance, as for instance by a high wall placed on a cliff so that the defender on the top of the wall is out of reach of the enemy’s missiles if these are of short range, such as arrows. This kind of defence was very popular in the middle ages. In the present day the same object is attained by pushing out detached forts to such a distance from the town they are protecting that the besieger cannot bombard the town as long as he is outside the forts. Another form of indirect protection of great importance is concealment.

The obstacle may consist of anything which will impede the enemy’s advance and prevent him from coming to close quarters. In the earliest forms of fortification the protecting wall was also the obstacle, or it may be a wet or dry ditch, an entanglement, a swamp, a thorn hedge, a spiked palisade, or some temporary expedient, such as crows’ feet or chevaux de frise. The two elements must of course be arranged in combination. The besieged must be able to defend the obstacle from their protected position, otherwise it can be surmounted or destroyed at leisure. But a close connexion is no longer essential. The effect of modern 680 firearms permits of great elasticity in the disposition of the obstacle; and this simplifies some of the problems of defence.

Protection must be arranged mainly with reference to the enemy’s methods of attack and the weapons he uses. The obstacle, on the other hand, should be of such a nature as to bring out the best effects of the defender’s weapons. It follows from this that a well-armed force operating against a badly-armed uncivilized enemy may use with advantage very simple old-fashioned methods of protection; or even dispense with it altogether if the obstacle is a good one.

When the assailant has modern weapons the importance of protection is very great. In fact, it may be said that in proportion as missile weapons have grown more effective, the importance of protection and the difficulty of providing it have increased, while the necessity for a monumental physical obstacle has decreased.

The art of the engineer who is about to fortify consists in appreciating and harmonizing all the conditions of the problem, such as the weapons in use, nature of the ground, materials available, temper of assailants and defenders, strategical possibilities, expenditure to be incurred, and so forth. Few of these conditions are in themselves difficult to understand, but they are so many and their reactions are so complex that a real familiarity with all of them is essential to successful work. The keynote of the solution should be simplicity; but this is the first point usually lost sight of by the makers of “systems,” especially by those who during a long period of peace have time to give play to their imaginations.

Fortification is usually divided into two branches, namely permanent fortification and field fortification. Permanent fortifications are erected at leisure, with all the resources that a state can supply of constructive and mechanical skill, and are built of enduring materials. Field fortifications are extemporized by troops in the field, perhaps assisted by such local labour and tools as may be procurable, and with materials that do not require much preparation, such as earth, brushwood and light timber. There is also an intermediate branch known as semi-permanent fortification. This is employed when in the course of a campaign it becomes desirable to protect some locality with the best imitation of permanent defences that can be made in a short time, ample resources and skilled civilian labour being available.

The objects of fortification are various. The vast enceintes of Nineveh and Babylon were planned so that in time of war they might give shelter to the whole population of the country except the field army, with their flocks and herds and household stuff. The same idea may be seen to-day in the walls of such cities as Kano. In the middle ages feudal lords built castles for security against the attacks of their neighbours, and also to watch over towns or bridges or fords from which they drew revenue; whilst rich towns were surrounded with walls merely for the protection of their own inhabitants and their property. The feudal castles lost their importance when the art of cannon-founding was fairly developed; and in the leisurely wars of the 17th and 18th centuries, when roads were few and bad, a swarm of fortified towns, large and small, played a great part in delaying the march of victorious armies.

In the present day isolated forts are seldom used, and only for such purposes as to block passes in mountainous districts. Fortresses are used either to protect points of vital importance, such as capital cities, military depots and dockyards, or at strategic points such as railway junctions. Combinations of fortresses are also used for more general strategic purposes, as will be explained later.

I. History

The most elementary type of fortification is the thorn hedge, a type which naturally recurs from age to age under primitive conditions. Thus, Alexander found the villages of the Hyrcanians defended by thick hedges, and the same Ancient methods. arrangements may be seen to-day among the least civilized tribes of Africa. The next advance from the hedge is the bank of earth, with the exterior made steep by revetments of sods or hurdle-work. This has a double advantage over the hedge, as, besides being a better obstacle against assault, it gives the defenders an advantage of position in a hand-to-hand fight. Such banks formed the defences of the German towns in Caesar’s time, and they were constructed with a high degree of skill. Timber being plentiful, the parapets were built of alternate layers of stones, earth and tree trunks. The latter were built in at right angles to the length of the parapet, and were thus very difficult to displace, while the earth prevented their being set on fire. The bank was often strengthened by a palisade of tree trunks or hurdle-work.

After the bank the most important step in advance for a nation progressing in the arts was the wall, of masonry, sun-dried brick or mud. The history of the development of the wall and of the methods of attacking it is the history of fortification for several thousand years.

The first necessity for the wall was height, to give security against escalade. The second-was thickness, so that the defenders might have a platform on the top which would give them space to circulate freely and to use their weapons. A lofty wall, thick enough at the top for purposes of defence, would be very expensive if built of solid masonry; therefore the plan was early introduced of building two walls with a filling of earth or rubble between them. The face of the outer wall would be carried up a few feet above the platform, and crenellated to give protection against arrows and other projectiles.

The next forward step for the defence was the construction of towers at intervals along the wall. These provided flanking fire along the front; they also afforded refuges for the garrison in case of a successful escalade, and from them the platform could be enfiladed.

The evolution of the wall with towers was simple. The main requirements were despotic power and unlimited labour. Thus the finest examples of the system known to history are also amongst the earliest. One of these was Nineveh, built more than 2000 years B.C. The object of its huge perimeter, more than 50 m., has been mentioned. The wall was 120 ft. high and 30 ft. thick; and there were 1500 towers.

After this no practical advance in the art of fortification was made for a very long time, from a constructional point of view. Many centuries indeed elapsed before the inventive genius of man evolved engines and methods of attack fit to cope with such colossal obstacles.

The earliest form of attack was of course escalade, either by ladders or by heaping up a ramp of faggots or other portable materials. When the increasing height of walls made escalade too difficult, other means of attack had to be invented. Probably the first of these were the ram, for battering down the walls, and mining. The latter might have two objects: (a) to drive an underground gallery below the wall from the besiegers’ position into the fortress, or (b) to destroy the wall itself by undermining.

The use of missile engines for throwing heavy projectiles probably came later. They are mentioned in the preparations made for the defence of Jerusalem against the Philistines in the 8th century B.C. They are not mentioned in connexion with the siege of Troy. At the sieges of Tyre and Jerusalem by Nebuchadnezzar in 587 B.C. we first find mention of the ram and of movable towers placed on mounds to overlook the walls.

The Asiatics, however, had not the qualities of mind necessary for a systematic development of siegecraft, and it was left for the Greeks practically to create this science. Taking it up in the 5th century B.C. they soon, under Philip Classical times. of Macedon and Alexander, arrived at a very high degree of skill. They invented and systematized methods which were afterwards perfected by the Romans. Alexander’s siegecraft was extremely practical. His successors endeavoured to improve on it by increasing the size of their missile and other engines, which, however, were so cumbrous that they were of little use. When the Romans a little later took up the science they returned to the practical methods of Alexander, and by the time of Caesar’s wars had become past-masters of it. The 681 highest development of siegecraft before the use of gunpowder was probably attained in the early days of the Roman empire. The beginning of the Christian era is therefore a suitable period at which to take a survey of the arts of fortification and siegecraft as practised by the ancients.

In fortification the wall with towers was still the leading idea. The towers were preferred circular in plan, as this form offered the best resistance to the ram. The wall was usually reinforced by a ditch, which had three advantages: it Conditions at opening of the Christian era. increased the height of the obstacle, made the bringing up of the engines of attack more difficult, and supplied material for the filling of the wall. In special cases, as at Jerusalem and Rhodes, the enclosure walls were doubled and trebled. Citadels were also built on a large scale.

The typical site preferred by the Romans for a fortified town was on high ground sloping to a river on one side and with steep slopes falling away on the other three sides. At the highest point was a castle serving as citadel. The town enclosure was designed in accordance with the character of the surrounding country. Where the enemy’s approach was easiest, the walls were higher, flanking towers stronger and ditches wider and deeper. Some of the towers were made high for look-out posts. If there was a bridge over the river, it was defended by a bridge-head on the far side; and stockades defended by towers were built out from either bank above and below the bridge, between which chains or booms could be stretched to bar the passage.

The natural features of the ground were skilfully utilized. Thus when a large town was spread over an irregular site broken by hills, the enceinte wall would be carried over the top of the hills; and in the intervening valleys the wall would not only be made stronger, but would be somewhat drawn back to allow of a flanking defence from the hill tops on either side. The walls would consist of two strong masonry faces, 20 ft. apart, the space between filled with earth and stones. Usually when the lie of the ground was favourable, the outside of the wall would be much higher than the inside, the parapet walk perhaps being but a little above the level of the town. Palisades were used to strengthen the ditches, especially before the gates.

There was little scope, however, in masonry for the genius of Roman warfare, which had a better opportunity in the active work of attack and defence. For siegecraft the Roman legions were specially apt. No modern engineer, civil or military, accustomed to rely on machinery, steam and hydraulic apparatus, could hope to emulate the feats of the legionaries. In earthworks they excelled; and in such work as building and moving about colossal wooden towers under war conditions, they accomplished things at which nowadays we can only wonder.

The attack was carried on mainly by the use of “engines,” under which head were included all mechanical means of attack—towers, missile engines such as catapults and balistae, rams of different kinds, “tortoises” (see below), &c. Mining, too, was freely resorted to, also approach trenches, the use of which had been introduced by the Greeks.

The object of mining, as has been said, might be the driving of a gallery under the wall into the interior of the place, or the destruction of the wall. The latter was effected by excavating large chambers under the foundations. These were supported while the excavation was proceeding by timber struts and planking. When the chambers were large enough the timber supports were burnt and the wall collapsed. The besieged replied to the mining attack by countermines. With these they would undermine and destroy the besiegers’ galleries, or would break into them and drive out the workers, either by force of arms or by filling the galleries with smoke.

Breaches in the wall were made by rams. These were of two kinds. For dislodging the cemented masonry of the face of the wall, steel-pointed heads were used; when this was done, another head, shaped like a ram’s head, was substituted for battering down the filling of the wall.

For escalade they used ladders fixed on wheeled platforms; but the most important means of attack against a high wall were the movable towers of wood. These were built so high that from their tops the parapet walk of the wall could be swept with arrows and stones; and drawbridges were let down from them, by which a storming party could reach the top of the wall. The height of the towers was from 70 to 150 ft. They were moved on wheels of solid oak or elm, 6 to 12 ft. in diameter and 3 to 4 ft. thick. The ground floor contained one or two rams. The upper floors, of which there might be as many as fifteen, were furnished with missile engines of a smaller kind. The archers occupied the top floor. There also were placed reservoirs of water to extinguish fire. These were filled by force pumps and fitted with hose made of the intestines of cattle. Drawbridges, either hanging or worked on rollers, were placed at the proper height to give access to the top of the wall, or to a breach, as might be required. Apollodorus proposed to place a couple of rams in the upper part of the tower to destroy the crenellations of the wall.

The siege towers had of course to be very solidly built of strong timbers to resist the heavy stones thrown by the engines of the defence. They were protected against fire by screens of osiers, plaited rope or raw hides. Sometimes it was necessary, in order to gain greater height, to place them on high terraces of earth. In that case they would be built on the site. At the siege of Marseilles, described by Caesar, special methods of attack had to be employed on account of the strength of the engines used by the besieged and their frequent sallies to destroy the siege works. A square fort, with brick walls 30 ft. long and 5 ft. thick, was built in front of one of the towers of the town to resist sorties. This fort was subsequently raised to a height of six storeys, under shelter of a roof which projected beyond the walls, and from the eaves of which hung heavy mats made of ships’ cables. The mats protected the men working at the walls, and as these were built up the roof was gradually raised by the use of endless screws. The roof was made of heavy beams and planks, over which were laid bricks and clay, and the whole was covered with mats and hides to prevent the bricks from being dislodged. This structure was completed without the loss of a man, and could only have been built by the Romans, whose soldiers were all skilled workmen.

Although these towers were provided with bridges by which storming parties could reach the top of the wall, their main object was usually to dominate the defence and keep down the fire from the walls and towers. Under this protection breaching operations could be carried on. The approaches to the wall were usually made under shelter of galleries of timber or hurdle-work, which were placed on wheels and moved into position as required. When the wall was reached, a shelter of stronger construction, known as a “rat,” was placed in position against it. Under this a ram was swung or worked on rollers; or the rat might be used as a shelter for miners or for workmen cutting away the face of the wall. The great rat at Marseilles, which extended from the tower already described to the base of the tower of the city, was 60 ft. long, and built largely of great beams 2 ft. square, connected by iron pins and bands. It was unusually narrow, the ground sills of the side walls being only 4 ft. apart. This was no doubt in order to keep down the weight of the structure, which, massive as it was, had to be movable. The sloping roof and sides of timber were protected, like those of the tower, with bricks and moist clay, hides and wool mattresses. Huge stones and barrels of blazing pitch were thrown from the wall upon this rat without effect, and under its cover the soldiers loosened and removed the foundations of the tower until it fell down.

In order that it might be possible to move these heavy structures, it was usually necessary to fill up the ditch or to level the surface of the ground. For this purpose an “approach tortoise” was often used. This was a shelter, something between the ordinary gallery and the rat, which was moved end on towards the wall, and had an open front with a hood, under cover of which the earth brought up for filling the ditch was distributed.

The missile engines threw stones up to 600 ℔ weight, heavy darts from 6 to 12 ft. long, and Greek fire. Archimedes at the siege of Syracuse even made some throwing 1800 ℔. The ranges varied, according to the machine and the weight thrown, up to 600 yds. for direct fire and 1000 yds. for curved fire. At the siege of Jerusalem Titus employed three hundred catapults of different sizes and forty balistae, of which the smallest threw missiles of 75 ℔ weight. At Carthage Scipio found 120 large and 281 medium catapults, 23 large and 52 small balistae, and a great number of scorpions and other small missile engines.

Screens and mantlets for the protection of the engine-workers were used in great variety.

In addition to the above, great mechanical skill was shown in the construction of many kinds of machines for occasional purposes. A kind of jib crane of great height on a movable platform was used to hoist a cage containing fifteen or twenty men on to the wall. A long spar with a steel claw at the end, swung in the middle from a lofty frame, served to pull down the upper parts of parapets and overhanging galleries. The defenders on their side were not slow in replying with similar devices. Fenders were let down from the wall to soften the blow of the ram, or the ram heads were caught and held by cranes. Grapnels were lowered from cranes to seize the rats and overturn them. Archimedes used the same idea in the defence of Syracuse for lifting and sinking the Roman galleys. Wooden towers were built on the walls to overtop the towers of the besiegers. Many devices for throwing fire were employed. The tradition that Archimedes burnt the Roman fleet, or a portion of it, at Syracuse, by focusing the rays of the sun with reflectors, is supported by an experiment made by Buffon in 1747. With a reflector having a surface of 50 sq. ft., made up of 168 small mirrors each 6 by 8 in., lead was melted at a distance of 140 ft. and wood was set on fire at 160 ft.

The development of masonry in permanent fortification had long since reached its practical limit, and was no longer proof against the destructive methods that had been evolved. The extemporized defences were, as is always the case, worn down by a resolute besieger, and the attack was stronger than the defence.

Through the dark ages the Eastern Empire kept alive the twin sciences of fortification and siegecraft long enough for the Crusaders to learn from them what had been lost in the West. 682 Byzantium, however, always a storehouse of military science, Middle ages. while conserving a knowledge of the ancient methods and the great missile engines, contributed no new ideas to fortification, so far as we know. In practice the Byzantines favoured multiplied enceintes or several concentric lines of defence. This of course is always a tendency of decadent nations.

In the West the Roman fortifications remained standing, and the Visigoths, allies of Rome, utilized their principles in the defences of Carcassonne, Toulouse, &c. in the 5th century. Viollet-le-Duc’s description and illustrations of the defences of Carcassonne will give a very good idea of the methods then in use:—

Fig. 1.—Plan of one of the Towers at Carcassonne.

“The Visigoth fortification of the city of Carcassonne, which is still preserved, offers an analogous arrangement recalling those described by Vegetius. The level of the town is much more elevated than the ground outside, and almost as high as the parapet walks. The curtain walls, of great thickness, are composed of two faces of small cubical masonry alternating with courses of brick; the middle portion being filled, not with earth but with rubble run with lime. The towers were raised above these curtains, and their communication with the latter might be cut off, so as to make of each tower a small independent fort; externally these towers are cylindrical, and on the side of the town square; they rest, also towards the country, upon a cubical base or foundation. We subjoin (fig. 1) the plan of one of these towers with the curtains adjoining. A is the plan of the ground-level; B the plan of the first storey at the level of the parapet. We see, at C and D, the two excavations formed in front of the gates of the tower to intercept, when the drawbridges were raised, all communication between the town or the parapet walk and the several storeys of the tower. From the first storey access was had to the upper crenellated or battlemented portion of the tower by a ladder of wood placed interiorly against the side of the flat wall. The external ground-level was much lower than that of the tower, and also beneath the ground-level of the town, from which it was reached by a descending flight of from ten to fifteen steps. Fig. 2 shows the tower and its two curtains on the side of the town; the bridges of communication are supposed to have been removed. The battlemented portion at the top is covered with a roof, and open on the side of the town in order to permit the defenders of the tower to see what was going on therein, and also to allow of their hoisting up stones and other projectiles by means of a rope and pulley. Fig. 3 shows the same tower on the side towards the country; we have added a postern, the sill of which is sufficiently raised above the ground to necessitate the use of a scaling or step ladder, to obtain ingress. The postern is defended, as was customary, by a palisade or barrier, each gate or postern being provided with a work of this kind.”

Fig. 2.—One of the Towers at Carcassonne, inside view.
Fig. 3.—One of the Towers at Carcassonne, outside view.

Meanwhile, in western Europe, siegecraft had almost disappeared. Its perfect development was only possible for an army like that of the Romans. The Huns and Goths knew nothing of it, and the efforts of Charlemagne and others of the Frankish kings to restore the art were hampered by the fact that their warriors despised handicrafts and understood nothing but the use of their weapons. During the dark ages the towns of the Gauls retained their old Roman and Visigoth defences, which no one knew properly how to attack, and accordingly the sieges of that period dragged themselves out through long years, and if ultimately successful were so as a rule only through blockade and famine. It was not until the 11th century that siegecraft was revived in the West on the ancient lines.

By this time a new departure of great importance had been made in the seigneurial castle (q.v.), which restored for some centuries a definite superiority to the defence. Built primarily as strongholds for local magnates or for small bodies of warriors dominating a conquered country, the conditions which called Castles. them into existence offered several marked advantages. The defences of a town had to follow the growth of the town, and would naturally have weak points. It was not to be expected that a town would develop itself in the manner most suitable for defence; nor indeed that any position large enough for a town could be found that would be naturally strong all round. But the site of a castle could be chosen purely for its natural strength, without regard, except as a secondary consideration, to the protection of anything outside it; and as its area was small it was often easy to find a natural position entirely suited for the purpose. In fact it frequently happened that the existence of such a position was the raison d’être of the castle. A small hill with steep sides might well be unapproachable in every direction by such cumbrous structures as towers and rats, while the height of the hill, added to the height of the walls, would be too much for the besiegers’ missiles. If the sides of the hill were precipitous and rocky, mining became impossible, and the site was perfect for defence. A castle built under such conditions was practically impregnable; and this was the cause of the independence of the barons in the 11th and 12th centuries. They could only be reduced by blockade, and a blockade of long duration was very difficult in the feudal age.

A very instructive example of 12th-century work is the Château Gaillard, built by Richard Cœur-de-Lion in 1196. This great castle, with ditches and escarpments cut out of the solid rock, and extensive outworks, was completed in one year. In the article Castle will be found the plan of the main work, which is here supplemented by an elevation of the donjon (or keep). The waved face of the inner or main wall of the castle, giving a divergent fire over the front, is an interesting feature in advance of the time. So also is the masonry protection of the machicolation at the top of the donjon, a protection which at that time was usually given by wooden hoardings. After the death of Richard, Philip Augustus besieged the château, and carried it after a blockade of seven months and a regular attack of one month. In this attack the tower at A was first mined, after which the whole of that outwork was abandoned by the defenders. The outer enceinte was next captured by surprise; and finally the gate of the main wall was breached by the pioneers. When this happened a sudden rush of the besiegers 683 prevented the remains of the garrison from gaining the shelter of the donjon, and they had to lay down their arms.

Château Gaillard, designed by perhaps the greatest general of his time, exemplifies in its brief resistance the weak points of the designs of the 12th century. It is easy to understand how at each step gained by the besiegers the very difficulties which had been placed in the way of their further advance prevented the garrison from reinforcing strongly the points attacked.

Fig. 4.—Donjon, Château Gaillard.

In the 13th century many influences were at work in the development of castellar fortification. The experience of such sieges as that of Château Gaillard, and still more that gained in the Crusades, the larger garrisons at the disposal of the great feudal lords, and the importance of the interests which they had to protect in their towns, led to a freer style of design. We must also take note of an essential difference between the forms of attack preferred by the Roman soldiery and by the medieval chivalry. The former, who were artisans as well as soldiers, preferred in siege works the certain if laborious methods of breaching and mining. The latter, who considered all manual labour beneath them and whose only ideal of warfare was personal combat, affected the tower and its bridge, giving access to the top of the wall rather than the rat and battering-ram. They were also fond of surprises, which the bad discipline of the time favoured.

We find, therefore, important progress in enlarging the area of defence and in improving arrangements for flanking. The size and height of all works were increased. The keep of Coucy Castle, built in 1220, was 200 ft. high. Montargis Castle, also built about this time, had a central donjon and a large open enclosure, within which the whole garrison could move freely, to reinforce quickly any threatened point. The effect of flanking fire was increased by giving more projection to the towers, whose sides were in some cases made at right angles to the curtain walls.

We find also a tendency, the influence of which lasted long after medieval times, towards complexity and multiplication of defences, to guard against surprise and localize successful assaults. Great attention was paid to the “step by step” defence. Flanking towers were cut off from their walls and arranged for separate resistance. Complicated entrances with traps and many doors were arranged. Almost all defence was from the tops of the walls and towers, the loopholes on the lower storeys being mainly for light and air and reconnoitring. Machicouli galleries (for vertical defence) were protected either by stone walls built out on corbels, or by strong timber hoardings built in war time, for which the walls were prepared beforehand by recesses left in the masonry. Loopholes and crenelles were protected by shutters. Great care and much ingenuity were expended on details of all kinds.

Already in the 12th century the engineers of the defence had made provision for countermining, by building chambers and galleries at the base of the towers and walls. Further protection for the towers against the pioneer attack was given by carrying out the masonry in front of the tower in a kind of projecting horn. This was found later to have the further advantages of doing away with the dead ground in front of the tower unseen from the curtain, and of increasing the projection and therefore the flanking power of the tower itself. The arrangement is seen in several of the towers at Carcassonne, and has in it the germ of the idea of the bastion.

Fig. 5.—Plan of Carcassonne, 13th century.

The defences of Carcassonne, remodelled in the latter half of the 13th century on the old Visigoth foundations, exemplify some of the best work of the period. Figs. 5 and 6 (reproduced from Viollet-le-Duc) show the plan of the defences of the town and castle, and a bird’s-eye view of the castle with its two barbicans. The thick black line shows the main wall; beyond this are the lists and then the moat. It will be noted that the wall of the lists as well as the main wall is defended by towers. There are only two gates. That on the east is defended by two great towers and a semicircular barbican. The gate of the castle, on the west, has a most complicated approach defended by a labyrinth of gates and flanking walls, which cannot be shown on this small scale, and beyond these is a huge circular barbican in several storeys, capable of holding 1500 men. On the side of the town the castle is protected by a wide moat, and the entrance is masked by another large semicircular barbican. An interesting feature of the general arrangement is the importance which the lists have assumed. The slight wooden barricade of older times has developed into a wall with towers; and the effect is that the besieger, if he gains a footing in the lists, has a very narrow space in which to work the engines of attack. The castle, after the Roman fashion, adjoins the outer wall of the town, so that there may be a possibility of communicating with a relieving force from outside after the town has fallen. There were also several posterns, small openings made in the wall at some height above the ground, for use with rope ladders.

The siegecraft of the period was still that of the ancients. Mining was the most effective form of attack, and the approach to the walls was covered by engines throwing great stones against the hoardings of the parapets, and by cross-bowmen who were sheltered behind light mantlets moved on wheels. Barrels of burning pitch and other incendiary projectiles were thrown as before; and at one siege we read of the carcasses of dead horses and barrels of sewage being thrown into the town to breed pestilence, which had the effect of forcing a capitulation.

With all this the attack was inferior to the defence. As Professor C.W.C. Oman has pointed out, the mechanical application of the three powers of tension, torsion and counterpoise (in the missile engines) had its limits. If these engines were enlarged they grew too costly and unwieldy. If they were multiplied it was impossible on account of their short range and great bulk to concentrate the fire of enough of them on a single portion of the wall.

It is difficult to give anything like an accurate account, in a small space, of the changes in fortification which took place in the first two centuries after the introduction of gunpowder. The number of existing fortifications that had to be Introduction of gunpowder. modified was infinite, so also was the number of attempted solutions of the new problems. Engineers had not yet begun to publish descriptions of their “systems”; also the new names and terms which came into use with the new works were spread over Europe by engineers of different countries, and adopted into new languages without much accuracy.

Artillery was in use for some time before it began to have any effect on the design of fortification. The earliest cannon threw so very light a projectile that they had no effect on masonry and 684 were more useful for the defence than the attack. Later, larger pieces were made, which acted practically as mortars, throwing stone balls with high elevation, and barrels of burning composition. In the middle of the 15th century the art of cannon-founding was much developed by the brothers Bureau in France. They introduced iron cannon balls and greatly strengthened the guns. In 1428 the English besieging Orleans were entirely defeated by the superior artillery of the besieged. By 1450 Charles VII. was furnished with so powerful a siege train that he captured the whole of the castles in Normandy from the English in one year.

Fig. 6.—Carcassonne Castle and Barbican.

But the great change came after the invasion of Italy by Charles VIII. with a greatly improved siege train in 1494. The astonishing rapidity with which castles and fortified towns fell before him proved the uselessness of the old defences. It became necessary to create a new system of defences, and, says Cosseron de Villenoisy, “thanks to the mental activity of the Renaissance and the warlike conditions prevailing everywhere, the time could not have been more favourable.” There is no doubt that the engineers of Italy as a body were responsible for the first advance in fortification. There, where vital and mental energy were at boiling-point, and where the first striking demonstration of the new force had been given, the greatest intellects, men such as Leonardo da Vinci, Michelangelo and Machiavelli, busied themselves over the problem of defence.

It has been claimed that Albert Dürer was the first writer on modern fortification. This was not so; Dürer’s work was published in 1527, and more than one Italian engineer, certainly Martini of Siena and San Gallo, had preceded him. Also Machiavelli, writing between 1512 and 1527, had offered some most valuable criticisms and general principles. Dürer, moreover, had little influence on the progress of fortification; though we may see in his ideas, if we choose, the germ of the “polygonal” system, developed long afterwards by Montalembert. Dürer’s work was to some extent a connecting link between the old fortification and the new. He proposed greatly to enlarge the old towers; and he provided both them and the curtains with vaulted chambers for guns (casemates) in several tiers, so as to command both the ditch and the ground beyond it. His projects were too massive and costly for execution, but his name is associated with the first practical gun casemates.

Before beginning to trace the effect of gunpowder on the design of fortification, it may be noted that two causes weakened the influence of the castles. First, their owners were slow to adopt the new ideas and abandon their high strong walls for low extended parapets, and, secondly, they had not the men necessary for long lines of defence. At the same time the corporations of the towns had learnt to take an active part in warfare, and provided trained and disciplined soldiers in large numbers.

When artillery became strong enough to destroy masonry from a distance two results followed: it was necessary to modify the masonry defences so as to make them less vulnerable, and to improve the means of employing the guns of the defence. For both these purposes the older castles with their restricted area were little suited, and we must now trace the development of the fortified towns.

Fig. 7.

Probably the first form of construction directly due to the appearance of the new weapons was the bulwark (boulevard, baluardo or bollwerk). This was an outwork usually semicircular in plan, built of earth consolidated with timber and revetted The bulwark. with hurdles. Such works were placed as a shield in front of the gates, which could be destroyed even by the early light cannon-balls; and they offered at the same time advanced positions for the guns of the defence. They were found so useful for gun positions for flanking fire that later they were placed in front of towers or at intervals along the walls for that purpose.

This, however, was only a temporary expedient, and we have now to consider the radical modifications in designs. These affected both the construction and trace of the walls.

The first lesson taught by improved artillery was that the walls should not be set up on high as targets, but in some manner screened. One method of doing this in the case of old works was by placing bulwarks in front of them. In other cases the The wall. lists or outer walls, being surrounded by moats, were already partially screened and suitable for conversion into the main defence; and as with improved flanking defence great height was no longer essential, the tops of the walls were in some cases cut down. In new works it was natural to sink the wall in a ditch, the earth from which was useful for making ramparts.

As regards resistance to the effect of shot, it was found that thin masonry walls with rubble filling behind them were very easily destroyed. A bank of earth behind the wall lessened the vibration of the shot, but once a breach was made the earth came down, making a slope easy of ascent. To obviate this, horizontal layers of brushwood, timber and sometimes masonry were built into the earth bank, and answered very well (fig. 7).

Fig. 8. Fig. 9.

Another expedient of still greater value was the use of counterforts. The earliest counterforts were simply buttresses built inward from the wall into the rampart instead of outward (fig. 8). Their effect was to strengthen the wall and make the breaches more difficult of ascent. An alternative arrangement for strengthening the wall was an arched gallery built behind it under the rampart (fig. 9). This construction was in harmony with the idea, already familiar, of a passage in the wall from which countermines could be started; but it has the obvious weakness that the destruction of the face wall takes away one of the supports of the arch. The best arrangement, which is ascribed to Albert Dürer, was the “counter-arched revetment.” This consisted of a series of arches built between the counterforts, with their axes at right angles to the face of the wall. Their advantage was that, while supporting the wall and taking all the weight of the rampart, they formed an obstacle after the destruction of the wall more difficult to surmount than the wall itself and very hard to destroy. The counter-arches might be in one, two or three tiers, according to the height of the wall (figs. 10 and 11, the latter without the earth of the rampart and showing also a countermine gallery).

Fig. 10.

A more important question, however, than the improvement of the passive defence or obstacle was the development of the active 685 defence by artillery. For this purpose it was necessary to find room for the working of the guns. At the outset it was of course a question The rampart. of modifying the existing defences at as little cost as possible. With this object the roofs of towers were removed and platforms for guns substituted, but this only gave room for one or two guns. Also the loopholes in the lower storeys of towers were converted into embrasures to give a grazing fire over the ditch; this became the commonest method of strengthening old works for cannon, but was of little use as the resulting field of fire was so small. In some cases the towers were made larger, with a semicircular front and side walls at right angles to the curtain. Such towers built at Langres early in the 16th century had walls 20 ft. thick to resist battering.

Even in new works some attempts were made to combine artillery defence with pure masonry protection. The works of Albert Dürer in theory, and the bridge-head of Schaffhausen in practice, are the best examples of this. The Italian engineers also showed much ingenuity in arranging for the defence of ditches with masonry caponiers. These were developed from external buttresses, and equally with the casemated flanking towers of Dürer contained the germs of the idea of “polygonal” defence.

The natural solution, however, which was soon generally adopted, was the rampart; that is, a bank of earth thrown up behind the wall, which, while strengthening the wall as already indicated, offered plenty of space for the disposal of the guns.

Fig. 11.

The ditch, which had only been occasionally used in ancient and medieval fortification, now became essential and characteristic. Serving as it did for the double purpose of supplying The ditch. earth for a rampart and allowing the wall to be sunk for concealment, it was found also to have a definite use as an obstacle. Hitherto the wall had sufficed for this purpose, the ditch being useful mainly to prevent the besieger from bringing up his engines of attack.

When the wall (or escarp) was lowered, the obstacle offered by the ditch was increased by revetting the far side of it with a counterscarp. Beyond the counterscarp wall some of the earth excavated from the ditch was piled up to increase the protection given to the escarp wall. This earth was sloped down gently on the outer side to meet the natural surface of the ground in such a manner as to be swept by the fire from the ramparts and was called the glacis.

Now, however, a new difficulty arose. In all times a chief element in a successful defence has consisted in action by the besieged outside the walls. The old ditches, when they existed, had merely a slope on the far side leading up to the ground-level; and the ditch was a convenient place in which troops preparing for a sortie could assemble without being seen by the enemy, and ascend the slope to make their attack. The introduction of the counterscarp wall prevented sorties from the ditch. At first it was customary, after the introduction of the counterscarp, to leave a narrow space on the top of it, behind the glacis, for a patrol path. Eventually the difficulty was met by widening this patrol path into a space of about 30 ft., in which there was room for troops to assemble. This was known as the covered way.

With this last addition the ordinary elements of a profile of modern fortification were complete and are exemplified in fig. 12.

Fig. 12.

Up to the gunpowder period the trace of fortifications, that is, the plan on which they were arranged on the ground, was very simple. It was merely a question of an enclosure wall adapted to the site and provided with towers at suitable intervals. The The trace. foot of the wall could be seen and defended everywhere, from the tops of the towers and the machicoulis galleries. The introduction of ramparts and artillery made this more difficult in two ways. The rampart, interposed between the defenders and the face of the wall, put a stop to vertical defence. Also with the inferior gun-carriages of the time very little depression could be given to the guns, and thus the top of the enceinte wall, with or without a rampart, was not a suitable position for guns intended to flank the ditch in their immediate neighbourhood. The problem of the “trace” therefore at the beginning of the 16th century was to rearrange the line of defence so as to give due opportunity to the artillery of the besieged, both to oppose the besiegers’ breaching batteries and later to defend the breaches. At the outset the latter rôle was the more important.

In considering the early efforts of engineers to solve this problem we must remember that for economical reasons they had to make the best use they could of the existing walls. At first for flanking purposes casemates on the ditch level were used, the old flanking towers being enlarged for the purpose. Masonry galleries were constructed across the ditch, containing casemates which could fire to either side, and after this casemates were used in the counterscarps. Some use was also made of the fire from detached bulwarks. It was soon realized, however, that the flanking defence of the body of the place ought not to be dependent on outworks, and that greater freedom was required for guns than was consistent with casemate defence. The bulwark (which in its earliest shape suggests that it was in some sort the offspring of the barbican, placed to protect an entrance) gave plenty of space for guns, but was too detached for security. The enlarged tower, as an integral part of the lines, gave security, and its walls at right angles to the curtain gave direct flanking fire, but the guns in it were too cramped. The blending of the two ideas produced the bastion, an element of fortification which dominated the science for three hundred years, and so impressed itself on the imagination that to this day any strong advanced position in a defensive line is called by that name by unscientific writers. The word had been in use for a long time in connexion with extemporized towers or platforms for flanking purposes, the earliest forms being bastille, bastide, bastillon, and in its origin it apparently refers rather to the quality of work in the construction than to its defensive intention.

Fig. 13.—Bastion at Troyes.

The earliest bastions were modified bulwarks with straight faces and flanks, attached to the main wall, for which the old towers often acted as keeps; and at first the terms bulwark and bastion were more or less interchangeable. Fig. 13, taken from a contemporary MS. by Viollet-le-Duc, shows a bastion added to the old wall of Troyes about 1528. On the other hand, in fig. 14 (taken from an English MS. of 1559, which again is based on the Italian work of Zanchi published in 1554), we find a a spoken of as “bulwarks” and b b as “bastilions.” The triangular works between the bastilions are described as “ramparts,” intended to protect the curtains from breaching fire. (We may also notice in this design the broad ditch, the counterscarp with narrow covered way, and loopholes indicating counterscarp galleries.)

Towards the end of the 16th century the term “bulwark” began to be reserved for banks of earth thrown up a little distance in front of the main wall to protect it from breaching fire, and it thus reverted to its original defensive intention. The term “bastion” henceforth denoted an artillery position connected by flanks to the main wall; and the question of the arrangement of these flanks was one of the main preoccupations of engineers. 686 Flanks retired, casemated or open, or sometimes in several tiers were proposed in infinite variety.

Fig. 14.

Thus, while in the early part of the 16th century the actual modification of existing defences was proceeding very slowly on account of the expense involved, the era of theoretical “systems” had begun, based on the mutual relations of flank and face. These can be grouped under three heads as follows:—

1. The crémaillère or indented trace: Faces and flanks succeeding each other in regular order (fig. 15).

Fig. 15. Fig. 16.

2. The tenaille trace: Flanks back to back between the faces (fig. 16). The development of the flanks in this case gives us the star trace (fig. 17).

Fig. 17. Fig. 18.

3. The bastioned trace: Flanks facing each other and connected by curtains (fig. 18).

In comparing these three traces it will be observed that unless casemates are used the flanking in the first two is incomplete. Guns on the ramparts of the faces cannot defend the flanks, and therefore there are “dead” angles in the ditch. In the bastioned trace there is no “dead” ground, provided the flanks are so far apart that a shot from the rampart of a flank can reach the ditch at the centre of the curtain.

Here was therefore the parting of the ways. For those who objected to casemate fire, the bastioned trace was the way of salvation. They were soon in the majority; perhaps because the symmetry and completeness of the idea The bastioned trace. captivated the imagination. At all events the bastioned trace, once fairly developed, held the field in one form or another practically without a rival until near the end of the 18th century. The Italian engineers, who were supreme throughout most of the 16th century, started it; the French, who took the lead in the following century, developed it, and officially never deserted it until late in the 19th century, when the increasing power of artillery made enceintes of secondary importance.

It will be useful at this point to go forward a little, with a couple of explanatory figures, in order to get a grasp of the component parts of the bastioned trace as ultimately developed, and of its outworks.

Fig. 19.

In fig. 19 ABCD represents part of an imaginary line drawn round the place to be fortified, forming a polygon, regular or irregular.

ABC is an exterior angle or angle of the polygon.

BC is an exterior side.

zz is an interior side.

abcdefghijk is the trace of the enceinte.

bcdef is a bastion.

zdef is a demi-bastion.

de is a face of the bastion.

ef is a flank of the bastion.

fg is the curtain.

bf is the gorge.

(Two demi-bastions with the connecting curtain make the bastioned front, defghi.)

zd bisecting the exterior angle ABC is the capital of the bastion.

xy is the perpendicular, the proportionate length of which to the exterior side BC (usually about one-sixth) is an important element of the trace.

efC is the angle of defence.

BCf is the diminished angle.

cde is the flanked angle or salient angle of the bastion.

e is the shoulder of the bastion.

def is the angle of the shoulder.

efg is the angle of the flank.

The line of the escarp is called the magistral line since it regulates the trace. When plans of fortifications are given without much detail, this line, with that of the counterscarp and the crest of the parapet, are often the only ones shown,—the crest of the parapet, as being the most important line, whence the fire proceeds, being usually emphasized by a thick black line.

Fig. 20.

Fig. 20, reproduced from a French engraving of 1705, shows an imaginary place fortified as a hexagon with bastions and all the different kinds of outworks then in use. The following is the explanation of its figuring and lettering.

1. Flat bastion: Placed in the middle of a curtain when the lines of defence were too long for musketry range.

2. Demi-bastion: Used generally on the bank of a river.

3. Tenaille bastion: Used when the flanked angle is too acute; that is, less than 70°.

4. Redans: Used along the bank of a river, or when the parapet of the covered way can be taken in reverse from the front.

A, B. Ravelins.

C. Demi-lunes: So called from the shape of the gorge. They differ from the ravelins in being placed in front of the bastions instead of the curtains.

D. Counter-guards: Used instead of demi-lunes, which were then going out of fashion.

E. Simple tenaille.

F. Double tenaille (see L and M).

(If the tenaille E is reduced in width towards the gorge, as shown alternatively, it is called a swallow-tail. If the double tenaille is 687 reduced as at G, it is called a bonnet de prêtre. Such works were rarely used.)

H. Hornwork: Much used for gates, &c.

I. Crown-work.

K. Crowned hornwork.

L. M. New forms of tenaille: (N.B.—These are the forms which ultimately retained the name.)

N. New form of work called a demi-lune lunettée, the ravelin N being protected by two counterguards, O.

P. Re-entering places of arms.

Q. Traverses.

R. Salient places of arms.

S. Places of arms without traverses.

T. Orillon, to protect the flank V.

X. A double bastion or cavalier.

Y. A retrenchment with a ditch, of the breach Z.

&. Traverses to protect the terreplein of the ramparts from enfilade.

Turning back now to the middle of the 16th century we find in the early examples of the use of the bastion that there is no attempt made to defend its faces by flanking fire, the curtains being considered the only weak points of the enceinte. Accordingly, the flanks are arranged at right angles to the curtain, and the prolongation of the faces sometimes falls near the middle of it. When it was found that the faces needed protection, the first attempts to give it were made by erecting cavaliers, or raised parapets, behind the parapet of the curtain or in the bastions.

Fig. 21.

The first example of the complete bastioned system is found in Paciotto’s citadel of Antwerp, built in 1568 (fig. 21). Here we have faces, flanks and curtain in due proportion; the faces long enough to contain a powerful battery, and the flanks able to defend both curtain and faces. The weak points of this trace, due to its being arranged on a small pentagon, are that the terreplein or interior space of the bastions is rather cramped, and the salient angles too acute.

In the systems published by Speckle of Strassburg in 1589 we find a distinct advance. Speckle’s actual constructions in fortification are of no great importance; but he was a The 16th century. great traveller and observer, and in his work, published just before his death, he has evidently assimilated, and to some extent improved, the best ideas that had been put forward up to that time.

Two specimens from Speckle’s work are well worth studying as connecting links between the 16th and 17th centuries.

Fig. 22 is early 16th-century work much improved. There are no outworks, except the covered way, now fully developed, with a battery in the re-entering place of arms. The bastions are large, but the faces directed on the curtain get little protection from the flanks. To make up for this they are flanked by the large cavaliers in the middle of the curtain. The careful arrangement of the flank should be noted; part of it is retired, with two tiers of fire, some of which is arranged to bear on the face of the bastion. The great saliency of the bastion is a weak point, but the whole arrangement is simple and strong.

Fig 22.

In the second example, known as Speckle’s “reinforced trace” (fig. 23), we find him anticipating the work of the next century. The ravelin is here introduced, and made so large that its faces are in prolongation of those of the bastions. Speckle’s other favourite ideas are here: the cavaliers and double parapets and his own particular invention of the low batteries behind the re-entering place of arms and the gorge of the ravelin. These low batteries did not find favour with other writers, being liable to be too easily destroyed by the besiegers’ batteries crowning the salients of the covered way.

Speckle’s book is of great importance as embodying the best work of the period. His own ideas are large and simple, but rather in advance of the powers of the artillery of his day.

At the beginning of the 17th century we find the Italian engineers following Paciotto in developing the complete bastioned trace; but they got on to a bad line of thought in trying to reduce everything to symmetry and system. The era of geometrical The 17th century. fortification (or, as Sir George Clarke has called it, “drawing-board” fortification) had already begun with Marchi, and his followers busied themselves entirely in finding geometrical solutions for the application of symmetrical bastioned fronts to such imaginary forms of perimeter as the oval, club, heart, figure of eight, &c. Marchi, however, was one of the first to think of prolonging the resistance of a place by means of outworks such as the ravelin. De Villenoisy says that Busca was the first to discuss the proportions and functions of all the component parts of a front; and Floriani, about 1630, was the last of the important Italians. The characteristics of a good deal of Spanish fortification carried out at this time were, according to the same authority, that the works were well adapted to sites, and the masonry excellent but too much exposed, while the bastions were too small. The Dutch and German schools will be referred to later.

Fig. 23.—Speckle’s Reinforced Trace.

The French engineers now began to take the lead in adapting the principles already established to actual sites. In the first half of the century the names of de Ville and Pagan stand out as having contributed valuable studies to the advancement of the science. In putting forward their designs they discussed very fully such practical questions as the length of the line of defence, whether this should be governed by the range of artillery or musketry fire, the length of flanks, the use in them of orillons, casemates and retired flanks, the size of bastions, &c.

It is the latter half of the 17th century, however, which is one 688 of the most important periods in the history of fortification, chiefly because it was illuminated by the work of Vauban. It was at this time also that a prodigious output of purely theoretical fortification began, which went on till the French Revolution. Many of the “systems” published at this time were elaborated by men who had no practical knowledge of the subject, some of them priests who were engaged in educating the sons of the upper classes, and who had to teach the elements of fortification among other things. They naturally wrote treatises, which were valuable for their clearness of style; and with their industry and ingenuity the elaboration of existing methods was a very congenial task. Most of these essays took the form of multiplication and elaboration of outworks on an impossible scale, and they culminated in such fantastic extravagances as the system of Rhana, published in 1769 (fig. 24). These proposals, however, were of no practical importance.

The work of the real masters who knew more than they published can always be recognized by its comparative simplicity. The greatest of these was Sebastien le Prestre de Vauban (q.v.). Born in 1633, and busied from his eighteenth year till his death in Vauban. 1707 in war or preparations for war, he earned alike by his genius, his experience, his industry and his personal character the chief place among modern military engineers. His experience alone puts him in a category apart from others. Of this it is enough to say that he took part in forty-eight sieges, forty of which he directed as chief engineer without a single failure, and repaired or constructed more than 160 places. Vauban’s genius was essentially practical, and he was no believer in systems. He would say, “One does not fortify by systems but by common sense.” Of new ideas in fortification he introduced practically none, but he improved and modified existing ideas with consummate skill in actual construction. His most original work was in the attack (see below), which he reduced to a scientific method most certain in its results. It is therefore one of the ironies of fate that Vauban should be chiefly known to us by three so-called “systems,” known as his “first,” “second” and “third.” How far he was from following a system is shown by de Villenoisy, who reproduces twenty-eight fronts constructed by him between 1667 and 1698, no two of which are quite alike and most of which vary very considerably to suit local conditions.

Fig. 24.

Vauban’s “first system,” as variously described by other writers even in his own time, is pieced together from some of the early examples of his work. The “second system” is the “tower bastion” defence of Belfort and Landau (1684-1688), obviously suggested by a design of Castriotto’s one hundred years earlier; and the “third system” is the front of Neu-Breisach (1698), which is merely Landau slightly improved. In other works, between 1688 and 1698, he did not keep to the tower bastion idea.

It will be convenient to take the “first system,” as reproduced in the Royal Military Academy text book of fortification (fig. 25) as typical of much of Vauban’s work. It may be observed that he sometimes uses the straight flank, and sometimes the curved flank with orillon. Parapets in several tiers are never used, nor cavaliers. The ravelin is almost always used. It is small, having little artillery power and giving no protection to the shoulders of the bastions. Sometimes it has flanks and occasionally a keep.

The tenaille is very generally found. In this form, viz. as a shield to the escarp of the curtain, it was probably invented by him. Fig. 25 shows two forms. In both the parapet of the tenaille had to be kept low, so that the flanks might defend a breach at the shoulder of the opposite bastion, with artillery fire striking within 12 ft. of the base of the escarp. Traverses are used for the first time on the covered way to guard against enfilade fire; and the re-entering place of arms, to which Vauban attached considerable importance, is large.

Fig. 25.—Vauban’s First System.

For the construction of the trace an average length of about 400 yds. (which, however, is a matter entirely dependent on the site) may be taken for the exterior side. The perpendicular, except for polygons of less than six sides, is one-sixth, and the faces of the bastions two-sevenths of the exterior side. The flanks are chords of arcs struck from the opposite shoulder as centres. An arc described with the same radius, but with the angle of the flank as a centre, and cutting the perpendicular produced outwardly, gives the salient of the ravelin; the prolongations of the faces of the ravelin fall upon the faces of the bastions at 11 yds. from the shoulders. The main ditch has a width of 38 yds. at the salient of the bastions, and the counterscarp is directed upon the shoulders of the adjoining bastions. The ditch of the ravelin is 24 yds. wide throughout.

As regards the profile the bastions and curtain have a command of 25 ft. over the country, 17 ft. over the crest of the glacis and 8 ft. over the ravelin. The ditches are 18 ft. deep throughout. The parapets are 18 ft. thick with full revetments. In his later works he used demi-revetments.

Fig. 26 shows the tower bastions of Neu-Breisach, or the so-called “third system.” It is worth introducing, simply as showing that even a mind like Vauban’s could not resist in old age the tendency to duplicate defences. Here the main bastions and tenaille are detached from the enceinte. The line of the enceinte is broken with flanks and further flanked by the towers. The ravelin is large and has a keep. The section through the face of the bastion shows a demi-revetment with wide berm, and a hedge as an additional obstacle.

After Vauban died, though the theories continued, the valuable additions to the system were few. Among his successors in the early part of the 18th century Cormontaingne (q.v.) has the greatest reputation, though his experience 18th and 19th centuries. and authority fell far short of Vauban’s. He was a clear thinker and writer, and the elements of the system were distinctly advanced by him. His trace includes an enlarged ravelin with flanks, the ends of which were intended to close the gaps at the end of the tenaille, and a keep to the ravelin with flanks. He provides a very large re-entering place of arms, also with a keep, the ditches of which are carefully traced so as to be protected from enfilade by the salients of the ravelin and bastion. He was also in favour of a permanent retrenchment of the gorge of the bastion. His works were printed, with many alterations, more than twenty years after his death, to serve as a text-book for the school of Mézières. This school was established in 1748, and from this time forward there was an official school of thought, based on Vauban. Cormontaingne’s work, therefore, represents the modifications of Vauban’s ideas accepted 689 by French engineers in the latter part of the 18th century. The school of Mézières was afterwards replaced by that of Metz, which carried on its traditions. Such schools are necessarily conservative, and hence, in spite of the gradual improvement in ordnance and firearms, we find the main elements of the bastioned system remaining unchanged right up to the period of the Franco-German War in 1870. Chasseloup-Laubat tells us that, before the Revolution, to attempt novelties in fortification was to write one’s self down ignorant. How far the general form of the bastion with its outworks had become crystallized is evident from a cursory comparison of fig. 27 with Vauban’s early work. This figure is the front of the Metz school in 1822, by General Noizet.

Fig. 26.—Neu-Breisach.
Fig. 27.—Noizet.

Since, therefore, the official view was that the general outlines of the system were sacred, the efforts of orthodox engineers from Cormontaingne’s time onwards were given to improvements of detail, and mainly to retard breaching operations as long as possible. We find enormous pains being bestowed on the study of the comparative heights of the masonry walls and crest levels; with the introduction here and there of glacis slopes in the ditches, put in both to facilitate their defence and to protect portions of the escarps.

Among the unorthodox two names deserve mention. The first of these is Chasseloup-Laubat (q.v.), who served throughout the wars of the Republic and Empire, and constructed the fortress of Alessandria in Piedmont.

Chasseloup’s main proposals to improve the bastioned system were two:

First, in order to prevent the bastions from being breached through the gaps made by the ditch of the ravelin, he threw forward the ravelin and its keep outside the main glacis. This had the further advantage of giving great saliency to the ravelin for cross-fire over the terrain of the attack. On the other hand, it made the ravelin liable to capture by the gorge. It is probable that this system would have lent itself to a splendid defence by an able commander with a strong force; but under the opposite conditions it has a dangerous element of weakness.

Secondly, in order to get freedom to use longer fronts than those admissible for the ordinary bastioned trace, he proposed to extend his exterior side up to about 650 yds. and to break the faces of his bastions; the portion next the shoulder being defended from the flank of the collateral bastion and coinciding with the line of defence, and the portion next the salient, up to about 80 yds. in length, being defended from a central keep or caponier placed in front of the tenaille. The natural criticism of this arrangement is that it combines some of the defects of both the bastioned and polygonal systems without getting the full advantages of either.

Fig. 28.—Chasseloup-Laubat.

Fig. 28 shows a half front of Chasseloup’s system, of ordinary length, as actually constructed. The section shows an interesting detail, viz. the Chasseloup mask—a detached mask with tunnels for the casemate guns to fire through, the intention of which is to save them from being destroyed from a distance.

The second name is that of Captain Choumara of the French Engineers, born in 1787, whose work was published in 1827. 690 Two leading ideas are due to him. The first is that of the “independence of parapets.” A glance at any of the plans that have already been shown will show that hitherto the crests of parapets had always been traced parallel to the escarp or magistral line. Choumara pointed out that, while it was necessary for the escarp to be traced in straight lines with reference to the flanking arrangements, there was no such necessity as regards the parapets. By making the crest of the parapet quite independent of the escarp line he obtained great freedom of direction for his fire. The second idea is that of the “inner glacis.” This was a glacis parapet placed in the main ditch to shield the escarp; its effect being to prevent the escarp of the body of the place from being breached in the usual way by batteries crowning the crest of the covered way.

The need for Choumara’s improvements has passed by, but he was in his time a real teacher. One sentence of his strikes a resounding note: “What is chiefly required in fortification is simplicity and strength. It is not on a few little contrivances carefully hidden that one can rely for a good defence. The fate of a place should not depend on the intelligence of a corporal shut up in a small post prepared for his detachment.

Fig. 29.—Sedan in 1705.

Before leaving the bastioned system it will be of interest to study a couple of actual and complete examples, one irregular and one regular. Fig. 29 shows the defences of Sedan as they were at the end of the 17th century. One sees the touch of Vauban here and there, but the work is for the most part apparently early 17th century. It will be observed that on the river side of the town the defence consists of very irregular bastions with duplicated wet ditches (see the Dutch style, below); and on the other side, where water is not available, strength is sought for by pushing a succession of hornworks far out.

Fig. 30 is Saarlouis, constructed by Vauban in 1680 in his early manner, a remarkable example of symmetry. Vauban of course never thought of aiming at symmetry, which is of itself neither good nor bad, but it is interesting to note such a perfect example of the system.

It must here be remarked that the reproach of “geometrical” fortification is in no way applicable to the works of Vauban and his immediate successors. The true geometric fortification, which worshipped symmetry as a fetish, marked, as has been already pointed out, the decadence of the Italian school. Vauban and his fellows excelled in adapting works to sites, the real test of the engineer.

The bastioned system was the 17th-century solution of the fortification problem. Given an artillery and musketry of short range and too slow for effective frontal defence, a ditch is necessary as an obstacle. What is the best means of flanking the ditch and of protecting the flanking arrangements? If Vauban elected for the bastion, we must before criticizing his choice remember that he was the most experienced engineer of his day, a man of the first ability and quite without prejudice. What is matter for regret is that the authority of Vauban should have practically paralysed the French school during the 18th and most of the 19th century, so that while the conditions of attack and defence were gradually altering they could admit no change of idea, and their best men, who could not help being original, were struggling against the whole weight of official opposition.

Fig. 30.

Again, such duplication of outworks as we see at Sedan is not geometric fortification. It is a definite attempt to retard the attack, on ground favourable to it, by successive lines of defence. As to the policy of this, no axiom can be laid down. Nowadays most of us think, as Machiavelli did, that a single line of defence is best and that a second line only serves to suggest the advisability of retreat. There are also, of course, the recognized drawbacks of outworks, difficulty of retreat, of relief and so forth, and the moral effect of their loss. But the engineers of such defences as Ostend and Candia might well say, “Oh, if only when we had held on to that bastion for so many months we had had a second and a third line of permanent retrenchment to fall back upon, we could have held the place for ever.” And who shall say that they were wrong? Let us at all events remember that the leading engineers of that time were men who had passed their lives in a state of war, and that we ourselves in comparison with them are the theorists.

From the end of the 16th century the Dutch methods of fortification acquired a great reputation, thanks to the stout resistance offered to the Spaniards by some of their fortresses, the three years’ defence of Ostend being The Dutch school. perhaps the most striking example. Prolonged defences, which were mainly due to the desperate energy of the besieged, were credited to the quality of their defences. In point of fact the Dutch owed more to nature, and more still to their own spirit, than to art; but they showed a good deal of skill in adapting recent ideas to their needs.

Three conditions governed the development of the Dutch works at this time, viz. want of time, want of money and abundance of water. When the Netherlands began their revolt against Spain, they would no doubt have been glad enough of expensive masonry fortresses on such models as Paciotto’s citadel of Antwerp. But there was neither time nor money for such works. Something had to be extemporized, and fortunately for them they had wet ditches to take the place of high revetted walls. Everywhere water was near the surface, and rivers or canals were available for inundations. A wide and shallow ditch, while making a good obstacle, was also the readiest means of obtaining earth for the ramparts. High command was, owing to the flatness of the country, unnecessary and even undesirable, as it did not allow of grazing fire.

What the Dutch actually did in strengthening their towns gives little evidence of system. Starting as a rule from an existing enceinte, sometimes a medieval wall, they would provide a broad wet ditch. No further provision was usually made on the sides of the town which were additionally protected by a river or inundation. On the other sides the wet ditch was made still broader, and sometimes contained a counterguard, sometimes ravelins and lunettes. These were quite irregular in their design and relation to each other. At the foot of the glacis would be found another but narrower wet ditch, which was a peculiarly Dutch feature; and sometimes if the town was in a bend of a river there would be a canal cut across the bend in a straight line, strengthened by several redans.

Speaking generally, they endeavoured to provide for the want 691 of a first-class masonry obstacle by multiplication of wet ditches, and further to strengthen these obstacles by great quantities of palisading, for which purpose the timber of old ships was used. They also recognized the inherent weaknesses of wet ditches, as, for instance, that when frozen they no longer provide an obstacle; and they studied the means, not only of causing inundations, but also of arranging to empty as well as to fill the ditches at will. Simon Stevin was the leader in this work.

Nevertheless a Dutch school of design did come into existence at this time. The leaders, early in the 17th century, were Simon Stevin, Maurice and Henry of Nassau, Marollois and Freitag. The fortress of Coevorden, constructed by Prince Maurice, of which fig. 31 shows a front, is a well-known example of this, and the section shows clearly some typical features of the school.

Fig. 31.—Coevorden.

The elements of the plan are those of the early bastioned trace, but we find added both ravelins and lunettes, very regular in design. There is also the ditch at the foot of the glacis, and surrounding the rampart of the enceinte a continuous fausse-braie. This work, which partook of the nature of both boulevard and counterguard, served several purposes. It was desirable that the weight of the rampart should be drawn back a little from the edge of the ditch, and the fausse-braie filled what would otherwise have been dead ground at the foot of the rampart. It also afforded a grazing fire over the ditch, which was very important, and which the rampart supported by a plunging fire.

Fig. 32.—Coehoorn’s First System.

Coehoorn (q.v.), the contemporary and nearest rival to Vauban, was the greatest light of the Dutch school. Like Vauban he was distinguished as a fighting engineer, both in attack and defence; but in the attack he differed from him in Coehoorn. relying more on powerful artillery fire than systematic earthworks. He introduced the Coehoorn mortar. His “first system,” which was employed at Mannheim (fig. 32), is reproduced for the sake of comparison with the Coevorden front designed a hundred years earlier. Among other points will be noticed the combination of wet and dry ditches; the very broad main ditch with counterguard; the roomy keep of the ravelin; the expansion of the fausse-brais into an independent low parapet; and the powerful flanking fire in three tiers.

The “tenaille” system and the “polygonal” system which grew out of it are mainly identified with the German school. That school, says von Zastrow, does not, like that of France, represent the authoritative teaching of an German school. official establishment, but rather the general practice of the German engineers. It was founded on the principles of Dürer, Speckle and especially Rimpler, and much influenced in execution by Montalembert. “The German engineers desired a simple trace, a strong fortification with retrenchments and keeps, bomb-proof accommodation and an organization suitable for an offensive defence.”

These had always been the German principles. Already in the 16th century the Prussian defences of Kustrin, Spandau and Peitz had large bomb-proof casemates sufficient for a great part of the garrison. The same thing is seen in the defences of Giogau, Schweidnitz, &c., built by Frederick the Great. These works show various applications of the tenaille system. In 1776 Frederick became acquainted with the work of Montalembert, and his influence is seen in the casemates of Kosel.

Whether through the influence of Albert Dürer or not cannot be said, but while the bastion was being developed in France the tenaille and the accompanying casemates from the first found acceptance in Germany, and thence in eastern and northern Europe. De Groote, who wrote in 1618, produced a sort of tenaille system, and may have been the inspiration of Rimpler. Dillich (1640), Landsberg the elder (1648), Griendel d’Aach (1677), Werthmuller (1685) and others advocated both bastion and tenaille, sometimes in combination; the German bastion being usually distinguished by short faces and long flanks.

Rimpler, who was present at the siege of Candia (taken by the Turks in 1669) and died at that of Vienna in 1683, exercised a great influence. He had been struck by the weakness of the early Italian bastions at Candia, and published a book in 1673 called Fortification with Central Bastions, which was practically the polygonal trace. Zastrow thinks that Rimpler inspired Montalembert. He left unfortunately no designs to illustrate his ideas.

Fig. 33.

Landsberg the younger (1670-1746), a major-general in the Prussian service, who saw many sieges, also had a great influence. He appears to have been the first who frankly advocated the tenaille alone, chiefly on the ground that the flank, which was the most important part of the bastioned system, was also the weakest. Fig. 33 shows his system, published in 1712.

It was, however, ultimately a Frenchman, Marc René Montalembert (q.v.), who was the great apostle of the tenaille, though in his later years he leaned more to the polygonal trace. He objected to the bastioned trace on many grounds; principally that the bastion was a shell trap, that the flanks by Montalembert and Carnot. crossing their fire lost the advantage of the full range of their weapons, and that the curtain was useless for defence. He took the view that the bastions with their ravelins constituted practically a tenaille trace, spoilt by the detachment of the ravelins and cramped by the presence of the curtains and flanks. His tenaille system consisted of redans, with salient angles of 60° or more, flanking each other at right angles; from which he gave to his system the name of “perpendicular fortification.”

Lazare Carnot (q.v.), the “Organizer of Victory,” was, in 692 fortification, a follower of Montalembert, and produced in 1797 a tenaille system (fig. 34) on strong and simple lines.

Fig. 34.
Fig. 35.—Mortar-casemate and Detached Wall.
Fig. 36.—Montalembert, 1786.

In 1812 Carnot offered three systems. For a dry and level site he recommended a bastioned trace; but for wet ditches and for irregular ground, tenaille traces. Both of these latter differ from his 1797 trace in that the re-entering angle is reinforced by a tenaille whose faces are parallel to the main faces and reach almost to the salients. There are also counterguards in front of the salients, whose ends overlap the ends of the tenaille. (N.B. To avoid confusion between the tenaille trace and the tenaille, it should be noted that the latter is a low detached parapet placed in front of the escarp of the body of the place, partly as a shield, and partly as an additional line of defence. It is used in front of the curtain in the bastioned trace, and in the re-entering angle in the tenaille trace.)

Other important features of Carnot’s work were: a continuous general retrenchment, or interior parapet, following more or less the lines of the main parapet; the use of the detached wall in place of the escarp revetment; and the countersloping glacis. This last (of which Carnot was not the inventor), instead of sloping gently outwards from a crest raised about 8 ft. down to the natural level of the ground, sloped inwards from the ground-level to the bottom of the ditch. The advantage of the additional obstacle of the counterscarp was thus lost to the defence. On the other hand, the besiegers’ saps, as they progressed down the glacis, were exposed to a plunging fire from the parapet.

Carnot was also, like Coehoorn, a great believer in the mortar; but while Coehoorn introduced the small portable mortar that bears his name, Carnot expected great results from a 13 in. mortar throwing 600 iron balls at each discharge. He endeavoured to prove mathematically that the discharge of these mortars would in due course kill off the whole of the besieging force. These mortars he emplaced in open fronted mortar-casemates, in concealed positions. Fig. 35 shows in section one of these mortar-casemates, placed between the parapet of the retrenchment and a detached wall.

The leading idea of Montalembert was that for a successful defence it was necessary for the artillery to be superior to that of the enemy. This idea led him to the adoption of casemates in several tiers; in preference to open The polygonal trace. parapets, exposed to artillery fire of all kinds, high angle, ricochet and reverse. In considering the defects of bastions he had arrived at the conclusion that for flanking purposes two forms of trace were preferable; either the tenaille form, connecting the ravelins with the body of the place, or the form in which the primary flanking elements, instead of facing each other with overlapping fire, as with the bastions, should be placed back to back in the middle of the exterior side. Fig. 36 is an example of this. The central flanking work resulting from this arrangement is the caponier of the early Italians, reintroduced and developed; and with it Montalembert laid the foundation of the polygonal system of our own time.

Montalembert was one of the first to foresee the coming necessity for detached forts, and it was for these that he chiefly proposed to use his caponier flanking, preferring the tenaille system for large places. In abandoning the bastioned trace he was already committed to the principle of casemate defence for ditches; and the combination of this principle with his desire for an overwhelming artillery defence led him in the course of years of controversial writing into somewhat extravagant proposals. For instance, for a square fort of about 400 yds. side, he proposed over 1000 casemate guns; and one of his caponier sections shows 10 tiers of masonry gun-casemates one above the other. Confiding in the power of such an artillery, he freely exposed the upper parts of his casemates to direct fire.

Montalembert is said to have contributed more new ideas to fortification than any other man. His designs must be considered in some ways unworkable and unsound, but all the best work of the 19th century rests on his teaching. The Germans, who already used the tenaille system and made free provision of bomb-proof casemates, took from him the polygonal trace and the idea of the entrenched camp.

The polygonal system in fortification implies straight or slightly broken exterior sides, flanked by casemated caponiers. The caponier is the vital point of the front, and is protected in important works by a ravelin and keep. The essence of the system is its simplicity, which allows of its being applied to any sort of ground, level or broken, and to long or short fronts.

Fig. 37.—Front at Posen.

The final period of smooth bore artillery is an important one in the history of fortification. It is true that the many expensive works that were constructed at this time were obsolete almost as soon as they were finished; but this was 1815-1855, entrenched camps. inevitable, thanks to the pace at which the world was travelling. After the Napoleonic wars the Germanic Confederation began to strengthen its frontiers; and considering that they had not derived much strategic advantage from their existing fortresses, the Germans took up Montalembert’s idea of entrenched camps, utilizing at the same time his polygonal system with modifications for the main enceintes. The Prussians began with the fortresses of Coblenz and Cologne; later Posen, Königsberg and other places were treated on the same lines. The Austrians constructed, among other places, Linz and Verona. The Germanic Confederation reinforced Mainz with improved works, and reorganized entirely Rastatt and Ulm. The Bavarians built Germersheim and Ingolstadt. While all these works were conceived in the spirit of Rimpler and Montalembert, they showed the differences of national temperament. The Prussian works, simple in design, relied upon powerful artillery fire, and exposed a good deal of masonry to the enemy’s view. The Austrians covered part of their masonry with earth and gave more attention to detail.

693

The German development of the polygonal system at this time is not of great importance, since the great masonry caponiers were designed without sufficient consideration for the increasing powers of artillery. One example (fig. 37) is given for the sake of historical comparison. It is a front of Posen.

“The exterior side of the front is about 650 yds. (600 metres) long. It is flanked by a central caponier, which is protected by a detached bastion.... The main front is broken back to flank the faces of the bastion from casemates behind the escarp, as well as from the parapet.

“The central caponier forms the keep of the whole front and sweeps both the interior and the ditch by its flanking fire. It has two floors of gun-casemates and one for musketry, and on the top is a parapet completely commanding alike the Posen. outworks and the body of the place. It contains barrack accommodation for a battalion of 1000 men, and has a large inner courtyard closed at the gorge by a detached wall. The caponier is itself flanked by three small caponiers at the head, and one at the inner end of each flank.

“The escarp of the body of the place is a simple detached wall; that of the detached bastion is either a detached wall with piers and arches, or a counter-arched revetment. At the salient of the bastion there is a mortar battery under the rampart, and a casemated traverse for howitzers upon the terreplein. The flanks of the bastion are parallel to those of the caponier, and at the same distance from it as the faces.

“Masonry blockhouses, loopholed for musketry, are provided as keeps of the re-entering and salient places of arms. In the latter case they have stairs leading down into a counterscarp gallery, which serves as a base for countermine galleries, and is connected with the detached bastion by a gallery under the ditch. The counterscarp is not revetted if the ditch is wet.

“The angle of the polygon should not be less than 160°, in order that the prolongation of the main ditch may fall within the salients of the detached bastions of the neighbouring fronts, and the masonry of the caponiers may thus be hidden from outside view.” (R.M.A. Text-book of F. & M.E., 1886.)

We have now reached a period when the “detached fort” becomes of more importance than the organization of the enceinte. The early conception of the rôle of detached forts in connexion with the fortress was to form an entrenched The detached fort. camp within which an army corps could seek safety if necessary. The idea had occurred to Vauban, who added to the permanent defences of Toulon a large camp defended by field parapets attached to one side of the fortress. The substitution of a ring of detached forts, while giving it the greater safety of permanent instead of field defences, gave also a wider area and freer scope for the operations of an army seeking shelter under the guns of a fortress, and at the same time made siege more difficult by increasing the line of investment. The use of the detached fort as a means of protecting the body of the place from bombardment had not yet been made necessary by increased range of artillery.

When these detached forts were first used by Germany the scope of the idea had evidently not been realised, as they were placed much too close to the fortress. Those at Cologne, for instance, were only some 400 or 500 yds. in advance of the ramparts. The same leading idea is seen in most of these forts as in the new enceintes; i.e. a lunette, with a casemated keep at the gorge. The keep is the essential part of the work, the rampart of the lunette serving to protect it from frontal artillery fire. The keep projects to the rear, so as not only to be able to flank its own gorge, but to give some support to the neighbouring works with guns protected from frontal fire. This is a valuable arrangement, which is still sometimes used. The front ditches of the lunettes were flanked by caponiers. Some of the larger forts were simple quadrangular works with casemate barracks and caponier ditch defence.

In 1830, in Austria, the archduke Maximilian made an entirely fresh departure with the defences of Linz. The idea was to provide an entrenched camp at the least possible cost, whose works should require the smallest possible garrison. With this object Linz was surrounded with a belt of circular towers spaced about 600 yds. apart. The towers, 25 metres in diameter, were enclosed by a ditch and glacis, and contained 3 tiers of casemates. The masonry was concealed from view by the ditch and glacis. On the top of the tower was an earth parapet, over which a battery of 13 guns fired en barbette. In order to find room for so many guns in the restricted space, the whole 13 were placed parallel and close together on a single specially designed mounting.

This new departure was received with a certain amount of approval at the time, which is somewhat difficult to account for, as a more faulty system could hardly be devised; but the experiment was never repeated.

The credit for much of the clear views and real progress made in Germany during this period is due to General von Brese-Winiari, inspector-general of the Prussian engineers.

France, for a few years after 1815, could spare little money for fortifications, and nothing was done but repairs and minor improvements on the old lines. Belgium, having some money in hand, rebuilt and improved in detail a number of bastioned fortresses which had fallen into disrepair.

Fig. 38. The Fortress of Antwerp.

In 1830 France began to follow the lead of Germany with entrenched camps. The enceinte of Paris was reconstructed, and detached forts were added at a cost, according to von Zastrow, of £8,000,000. The Belgian and German frontiers of France being considered fairly protected by the existing fortresses, they turned their attention to the Swiss and Italian frontiers, and constructed three fortresses with detached forts at Belfort, Besançon and Grenoble. The cost of the new works at Lyons was, according to the same writer, £1,000,000 without the armament. Here and elsewhere the enceinte was simplified on account of the advanced defences. That of Paris, which was influenced by political considerations, was a simple bastioned trace with rather long fronts and without ravelins or other outworks; the escarp was high and therefore exposed, and the counterscarp was not revetted.

As regards the detached forts there was certainly a want of clearness of conception. Those of Paris were simply fortresses in miniature, square or pentagonal figures with bastioned fronts and containing defensible barracks. Those of Lyons were much more carefully designed, but the authors wavered between two ideas. Unwilling to give up the bastion, but evidently hankering after the new caponiers, they produced a type which it is difficult to praise. The larger works were irregular four- or five-sided figures with bastioned fronts; and practically the whole interior space was taken up by a large keep, with its ditch, on the 694 polygonal system. The smaller works, instead of a keep, had defensible barracks in the gorge.

Fig. 39.

During the period 1855-1870 a considerable impulse was given to the science of fortification, both by the Crimean War and the arrival of the rifled gun. One immediate result of these was the condemnation of masonry exposed to artillery Period from 1855 to 1870. fire. The most important work of the period was the new scheme of defence of Antwerp, initiated in 1859. This is chiefly interesting as giving us the last and finest expression of the medieval enceinte, at a time when the war between the polygonal and bastioned traces was still raging, though the boom of the long-range guns had already given warning that a new era had begun. Antwerp is also associated with the name of General Brialmont (q.v.), of the Belgian engineers, whom posterity will no doubt regard as the greatest writer on fortification of the latter half of the 19th century.

Fig. 40.—Sections of fig. 39.

We give in figs. 38, 39 and 40 the general plan of the 1859 defences of Antwerp, the plan of a front of the enceinte, and its Antwerp. sections, as showing almost the last word of fortification before the arrival of high explosives.

The defences of Antwerp were designed, as the strategic centre of the national defence of Belgium, for an entrenched camp for 100,000 men. The length of the enceinte is about 9 m. The detached forts, which on the sides not defended by inundation are about 1¼ m. apart and from 2 to 3 m. in front of the enceinte, are powerful works, arranged for a garrison of 1000 men. They have each a frontal crest-line of over 700 yds. and are intended for an armament of 120 guns and 15 mortars.

The general arrangement of the fronts of the enceinte should be compared with the earlier German type of Posen. It will be noticed that while the large casemated caponier at Posen breaks the enceinte and flanks it both without and within, at Antwerp the caponier is detached—a much sounder arrangement—and flanks the front only. The defence of the faces rests on the width of the wet ditches and on the flanking power of the caponier; there is no attempt to add to it by fausse-braie or detached wall. The dimensions are everywhere very generous, allowing free movement for the troops of the defence; the covered way is 22 yds. 695 wide and there is a double terreplein on the face. The parapet of the face is 27 ft. thick. The masonry of the casemate guns in the caponier, first flank and low battery, is protected by earth, à la Haxo.

In 1859 Austria acknowledged the influence of the new artillery with some new forts at Verona. The detached forts built by Radetzky in 1848 were only from 1000 to 2000 yds. distant from the ramparts. Those now added, of which fig. 41 is an example, were from 3000 to 4000 yds. out.

Fig. 41.—Austrian Fort at Verona.

In the same year the land defences of some of the British dockyards were taken in hand. These first serious attempts at permanent fortification in England were received with approval on the continent, as constituting an advance on anything that had been done before. The detached forts intended to keep an enemy outside bombarding distance were roomy works with small keeps. The parapets were organized for artillery and the ditches were defended by caponiers or counterscarp galleries. The forts were spaced about a mile apart and arranged so as to support each other by their fire.

The sieges of the Franco-German War of 1870 are alluded to in the section below dealing with the “Attack of Fortresses.” As regards their effect on the designs of fortification the most important thing to note is the distance to Period from 1870 to 1885. which it was thought necessary to throw out the detached forts. These distances were of course influenced by the character of the ground, but for the most part they were very largely increased. Thus at Paris the fort at St Cyr was 18,000 yds. from the enceinte; at Verdun the distances varied from 2300 to 12,000 yds.; at Belfort the new forts were from 4500 to 11,500 yds. out; at Metz 2300 to 4500; and at Strassburg 5200 to 10,000. One result of these increased distances was of course to increase very largely the length of the zone of investment, and therefore the strength necessary for the besieging force.

As regards the character of the works, the typical shape adopted both in France and Germany was a very obtuse-angled lunette, shallow from front to rear. The German type had one parapet only, which was organized for artillery and heavily traversed, the living casemates being under this parapet. The ditch defence was provided for by caponiers and a detached wall (see fig. 42).

The French forts had two parapets, that in the rear being placed over living casemates (in two tiers, as shown in the section of fig. 43 by a dotted line), and commanding the front one. There was a long controversy as to whether the artillery of the fort should be on the upper or the lower parapet, the advocates of the upper parapet attaching great importance to the command that the guns would have over the country in front. The other school, objecting to having guns on the skyline, preferred to sacrifice the command and place them on the lower parapet, as in fig. 43, the infantry occupying the upper parapet. It will be observed that the bastioned trace is abandoned, the ditches, like those of the German fort, being defended by caponiers.

Fig. 42.—German Fort about 1880.
Fig. 43.—French Fort about 1880.

While a great deal of work was done on these lines, a very active controversy had already begun on the general question as to whether guns should be employed in forts at all. Some declared that the accuracy and power of artillery had already developed so far, that guns in fixed and visible positions must needs be put out of action in a very short time. The remedy proposed by these was the removal of the guns from the forts into “wing-batteries” which should be less conspicuous; but soon the broader idea was put forward of placing the guns in concealed positions and moving them from one to another by means of previously prepared roads or railways. Others declared that there was no safety for the guns outside the forts, and that the use of steel turrets and disappearing cupolas was the only solution of the difficulty. General Brialmont, who had by this time become the first European authority on fortification questions, ranged himself on the side of the turrets. The younger 696 school were largely in favour of mobility and expressed themselves eagerly in a shower of pamphlets.

It was at this juncture that a new factor was introduced, namely, the obus-torpille, or long shell with high-explosive bursting charge. With its appearance we say good-bye to the old school and enter upon the consideration of the fortification of to-day.

II. Modern Permanent Fortification

Modern fortification dates by universal consent from 1885. The Germans had begun experiments a year or two before this, with long shell containing large charges of gun-cotton. But it was the experiments at Fort Malmaison in France High-angle fire with long shell. in 1886 that set the military world speculating on the future of fortification. The fort was used as a target for 8-in. shell of five calibres length containing large charges of melinite. The reported effects of these made a tremendous sensation, and it was thought at first that the days of permanent fortification were over. Magazine casemates were destroyed by a single shell, and revetment walls were overturned and practicable breaches made by two or three shells falling behind them. It must be remembered, however, that the works were not adapted to meet this kind of fire. The casemates had enough earth over them to tamp the shell thoroughly, but not enough to prevent it from coming into contact with the masonry, and the latter was not thick enough to resist the explosion of the big charges. Other experiments were made in the same direction in Germany, Holland, Belgium and Austria. The Germans used shell containing from 60 to 130 ℔ of high explosive.

From Plessix and Legrand’s Manuel complet de la fortification, by permission.
Fig. 44.—Metz in 1899.

After the first alarm had subsided foreign engineers set about adapting their works to meet the new projectiles. Revetments were enormously strengthened, and designed so that their weight resisted overturning. Concrete roofs were made from 6 to 10 ft. thick, and in many cases the surface of the concrete was left bare so as to expose a hard surface to the shell without any earth tamping. The idea of cupolas and shielded guns gained ground, and is now practically accepted all over the continent of Europe. In many cases the main armament, in some only the safety armament (see below), is in cupolas in the forts.

But meanwhile Europe had been flooded with literature on the subject, and the whole policy of fortification as well as its minutest details were discussed ab ovo. The extremists of both sides revelled in their opportunity. Some declared that, with the use of heavy guns and armour, fortresses could be made stronger than ever. Others held that modern fortresses were far too expensive, that their use led to strategic mistakes, and (arguing from certain well-known examples) that extemporized field defences could offer as good a resistance as permanent works.

697

European military opinion generally is now more or less agreed on the following lines:—

1. Important places must be defended by fortresses.

2. Their girdle of forts must be far enough out to prevent the bombardment of the place.

3. An enceinte is desirable, but need not be elaborate.

4. A few guns (called “safety armament”) should be in the forts, and these must be protected by armour.

5. The bulk of the artillery of the defence should be outside the forts; the direct-fire guns preferably in cupolas, the howitzers in concealed positions.

6. The forts should be connected by lines of entrenched infantry positions and obstacles, permanent bomb-proof shelters being provided for the infantry.

7. There should be ample communications—radial and peripheral—between the place and the forts, both by road and rail.

8. Special lines of communication—such as mountain passes—should be closed by barrier forts.

These considerations will now be taken somewhat more in detail, but first it will be useful to deal with the plan of Metz in 1899 (fig. 44).

Here the fortifications of successive periods can be readily recognized. First the old enceinte, unaltered by the Germans and now Metz. déclassée. Next the detached forts, begun by the French engineers in 1868 and still unfinished in 1870, can be readily recognized by their bastioned trace. Among them are Fort Manteuffel, formerly St Julien, and Fort Goeben (fig. 45), formerly Queuleu. These were not altered in their general lines.

From Plessix and Legrand’s Manuel complet de la fortification, by permission.
Fig. 45.—Fort Goeben, Metz.

This early line of detached forts, less than 3000 yds. from the enceinte, was completed by the Germans with forts of polygonal type such as Fort Prinz August. The hill of St Quentin (fig. 46), a very important point, was converted into a fortified position, with two forts and connecting parapets, and a communication running north to Fort Alvensleben.

The arrangement of wing batteries in connexion with the forts can be clearly noted at Fort Manteuffel. These are reinforced by other batteries either for the defence of the intervals or to dominate important lines of approach such as the valley of the Moselle (canal battery at Montigny). To these were added later armoured batteries.

There are also infantry positions, shelters and magazines in connexion with this line.

Finally some new forts of modern type were commenced in 1899 at about 9000 yds. from the place.

Leaving out of consideration at present the strategic use of Fortresses. groups of fortresses, the places which, as mentioned above, are intrinsically worth being defended as fortresses are:—

(a) Centres of national, industrial or military resources.

(b) Places which may serve as points d’appui for manœuvres.

(c) Points of intersection of important railroads.

(d) Bridges over considerable rivers.

(e) Certain lines of communication across a frontier.

Examples of (a) are Paris, Antwerp, Lyons, Verdun. Again for (a) and (b), as is pointed out by Plessix and Legrand, Metz in the hands of the Germans may serve both as a base of supplies and a point d’appui for one flank. Strassburg is a bridge-head giving the Germans a secure retreat across the Rhine if beaten in the plains of Alsace, and an opportunity of resuming the offensive when they have re-formed behind the river.

From Plessix and Legrand’s Manuel complet de la fortification, by permission.
Fig. 46.—St Quentin position, Metz.

The distance of detached forts from the place depends on the range of the siege artillery and the distance at which it can usually be established from the forts, and is variously given by different continental writers at from 4 to 9 km. The ring of detached forts. (4500 to 10,000 yds.). The bombarding range of siege howitzers with heavy shells is considered to be about 8000 yds., and if it is possible for them to be emplaced within say 2000 yds. of the forts, this would give a minimum distance of 6000 yds. from the forts to the body of the place. Some writers extend the minimum distance to 7 km., or nearly 8000 yds. In practice, however, it must happen that the position of the forts is determined to a very large extent by the lie of the ground. Thus some good positions for forts may be found within 4000 or 5000 yds. of the place, and no others suitable on the same front within 15,000 yds. In that case the question of expense might necessitate choosing the nearer positions. Some examples of the actual distances of existing forts have already been given. Others, more recent, are, at Bucharest 7-10 km., Lyons 8-10½, Copenhagen 7-8 and Paris 14-17. Strategic pivots are in a different category from other fortresses. While not necessarily protected from bombardment, they may yet have one or two forts thrown out from 9 to 12 km., to get advantage of ground. Such are Langres, Epinal and Belfort.

The Enceinte.—The desirability of this is almost universally allowed; but often it is more as a concession to tradition than for any solid reason. The idea is that behind the line of forts, which is the main defensive position, any favourable points that exist should be provisionally fortified to assist in a “step-by-step” defence: and behind these again the body of the place should be surrounded by a last line of defence, so that the garrison may resist to the last moment. It may be remarked that apart from the additional expense of an enceinte, such a position would not, under modern conditions, be the most favourable for the last stages of a defence. Again, there is the difficulty that it is practically impossible to shut in a large modern town by a continuous enceinte. It has been proposed to construct the enceinte in sections in front of the salient portions of the place. This system of course abandons several of the chief advantages claimed for an enceinte.

In actual practice enceintes have been constructed since 1870 in France and other countries, consisting of a simple wall 10 or 12 ft. high with a banquette and loopholes at intervals. This of course can only be looked upon as a measure of police. For war purposes, in face of modern artillery, it is a reductio ad absurdum.

The Safety Armament.—If the bulk of the artillery is to be placed in positions prepared on the outbreak of war, it is considered very necessary that a few heavy long-range guns should be permanently in position ready at any moment to keep an enemy at a distance, forcing him to open his first batteries at long range and checking the advance of his investment line. Such guns would naturally be in secure positions inside the forts, and if they are to be worked from such positions they must have armour to shield them from the concentrated fire of the numerous field artillery that a besieger could bring to bear from the first.

Artillery outside the forts constitutes the most important part of the defence, and there is room for much discussion as to whether it should have positions prepared for it beforehand 698 or should be placed in positions selected as the attack develops The question of artillery positions. itself. On the one hand the preparation of the positions beforehand, which in many cases means the use of armour and concrete, increases very largely the initial expense of the defence, and ties the defender somewhat in the special dispositions that become desirable once the attack has taken shape. Moreover, such expenditure must be incurred on all the fronts of the fortress, whereas the results would only be realized on the front or fronts actually attacked. On the other hand much time and labour are involved in emplacing heavy and medium artillery with extemporized protection, and this becomes a serious consideration when one remembers how much work of all kinds is necessary in preparing a fortress against attack. Again, to avoid the danger of a successful attack on the intervals between the forts before their defences have been fully completed, the fire of the guns in the intermediate positions might be urgently required. The solution in any given case would no doubt depend on the importance of the place. In most cases a certain amount of compromise will come in, some preparation being made for batteries, without their being completed. Armoured batteries of whatever kind must in any case be prepared in peace time. It should not be overlooked that as, whatever theories may exist about successive lines of defence, the onus of the defence will now lie on the fort line, just as it formerly did on the enceintes, so that line should be fully prepared, and should not have to commence its fight in a position of inequality.

From Brialmont’s Progrès de la défense des états et de la fortification permanente depuis Vauban, by permission of M. le Commandant G. Meeüs.
Fig. 47.

Defence of Intervals of Forts.—The frontal fire of the batteries in the intervals and the flanking fire of some of the guns in the forts will play an important part, but the main reliance should be on infantry defence. A fully prepared fortress would have practically a complete chain of infantry fighting positions and obstacles between the forts, at all events on the fronts likely to be seriously attacked. The positions would consist largely of fire trenches, with good communications; but it is pretty generally recognized that there must be some points d’appui in the shape of redoubts or infantry forts, and also bomb-proof shelter for men, ammunition and stores near the fighting line. This is usually included in the redoubts. If they are to resist the heaviest shell, such shelters must be built in peace time.

Communications are of the first importance, not merely to facilitate the movement of the enormous stores of ammunition and materials required in the fighting line, but also that defenders may fully utilize the advantage of acting on interior lines. They should include both railways and roads running from the centre of the place to the different sectors of defence, and all round, in rear of the line of forts; also ample covered approaches to the fighting line. Concealment is essential, and where the lie of the ground does not help, it must be got from earth parapets or plantations.

The principal use of barrier forts is in country where the necessary line of communication cannot be easily diverted. For instance, in a comparatively flat country a barrier fort commanding a road or railway is of little use Barrier forts. because roads may be found passing round it, or a line of railway may be diverted for some miles to avoid it. But in mountainous country, where such diversion is impossible, it will be necessary for the enemy to capture the fort before he can advance; and the impossibility of surrounding it, the few positions from which siege artillery can be brought into play, and the fact that there is practically only one road of approach to be denied, make these positions peculiarly suitable for forts with armoured batteries. Italy makes considerable use of such forts for the defence of frontier passes.

General Brialmont’s Theoretical Claim for the Defence of a Country.—Before going into details, it is worth while to state the full claim of strategic fortification advanced by General Brialmont, the most thorough of all its advocates. It is as follows:—

A. Fortify the capital.

B. Fortify the points where main lines of communication pass a strategic barrier.

C. Make an entrenched camp at the most important centre of communication in each zone of invasion: and support it by one or two places arranged so as to make a fortified district.

699

D. Close with barrier forts the lines necessary to an enemy across mountains or marshes.

E. Make a central place behind a mountain chain as a pivot for the army watching it.

F. Defend mountain roads by provisional fortifications.

G. Make a large place in each theatre of war which is far from the principal theatre, and where the enemy might wish to establish himself.

H. Fortify coasts and harbours.

From Brialmont’s Progrès de la défense des états et de la fortification depuis Vauban, by permission of Commandant G. Meeüs.
Fig. 48.

Objections to these proposals will be readily supplied by the 700 officials of the national treasury and the commanders-in-chief of the active armies.

So many types of detached forts have been proposed by competent authorities, as well as actually constructed Types of detached forts. in recent years, that it is impossible here to consider all of them, and a few only will be reproduced of those which are most representative of modern continental thought.

Taking first the type of heavily armed fort, which contains guns for the artillery fight as well as safety armament, we must give precedence to General Brialmont. The two works here shown are taken from the Progrès de la défense des états, &c., published in 1898. The pentagonal fort (fig. 47) has two special features. In section 1 is shown a concrete infantry parapet, with a gallery in which the defenders of the parapet may take shelter from the bombardment preceding an assault. In section 2 it will be seen that the counterscarp galleries flanking the ditch are drawn back from the face of the counterscarp. This is to counteract proposals that have been made to obscure the view from the flanking galleries, and perhaps drive the defenders out of them by throwing smoke-producing materials into the ditch at the moment of an assault. The arrangement may save the occupants of the galleries from excessive heat and noxious fumes, but will not of course prevent the smoke from obscuring the view.

The following points may be noticed about this design in comparing it with earlier types. There is no escarp, the natural slope of the rampart being carried down to the bottom of the ditch. There is a counterscarp to the faces, but no covered way. The flanks have no counterscarp, but a steel fence at the foot of the slope, and the covered way which is utilized for a wire entanglement which is under the fire of the parapet. The gorge has a very slight bastioned indentation, which allows for an efficient flanking of the ditch by a couple of machine guns placed in a single casemate on either side.

The abolition of the covered way as such is noteworthy. It marks an essential difference between the fort and the old enceinte profiles; showing that offensive action is not expected from the garrison of the fort, and is the duty of the troops of the intermediate lines.

The great central mass of concrete containing all the casemates and the gun-cupolas, a very popular feature, is omitted in this design, advantage being taken of the great lateral extent of the fort to spread the casemates under the faces, flanks and gorge, with a communication across the centre of the fort. This arrangement gives more freedom to the disposition of the cupolas. The thickness of the concrete over the casemate arches is more than 8 ft. Communication between the faces and the counterscarp galleries is obtained by posterns under the ditch. The armament, which is all protected by cupolas, is powerful. It consists of two 150-mm. (6 in.) guns, four 120-mm. (4.7 in.) guns, two 210-mm. (8.4 in.) howitzers, two 210-mm. (8.4 in.) mortars, four 57-mm. Q.F. guns for close defence. There is also a shielded electric light projector in the centre.

This fort is a great advance on General Brialmont’s designs before 1885. These were marked by great complexity of earth parapets and various chicanes which would not long survive bombardment. This type is simple and powerful. It is also very expensive.

The second Brialmont fort (fig. 48) is selected because it shows a keep or citadel, an inner work designed to hold out after the capture of the outer parapet. General Brialmont held strongly to the necessity of keeps for all important works. History of course gives instances of citadels which have enabled the garrison to recapture the main work with assistance, or caused a really useful delay in the progress of the general attack. It affords still more instances in which the keeps have made no resistance, or none of any value. Some think that the existence of a keep encourages the defenders of the main work; others that it encourages the idea of retreat. The British school of thought is against keeps. In any case they add largely to expense.

In the present design the keep is a mass of concrete, which depends for the defence of its front ditches on counterscarp galleries in the main work, the few embrasures for frontal defence being practically useless. Its main function is to prevent the attackers from establishing themselves on the gorge, thus leaving the way open for a reinforcement from outside to enter (assisted by bamboo flying bridges) through the passages left for the purpose in the outer and inner gorge parapets.

As regards the main work, the arrangements for defence of the ditch and the armament are similar to the design last considered. This parapet has no concrete shelter for the defenders. The casemates are all collected in the keep and the gorge, with a passage all round giving access to the parapet and the cupolas.

From Brialmont’s Progrès de la défense des états, &c., by permission of Commandant G. Meeüs.
Fig. 49.—Fort Molsheim, Strassburg.

Fig. 49 is a German work, Fort Molsheim at Strassburg. This is a simple type of triangular fort. The main mass of concrete rests on the gorge, and is divided by a narrow courtyard to give light and air to the front casemates. The fort has a medium armament for the artillery fight, consisting of four 6-in. howitzers in cupolas. On each face are two small Q.F. guns in cupolas for close defence, for which purpose, it will be seen, there is also an infantry parapet. At the angles are look-out turrets. The ditch has escarp and counterscarp, and is defended by counterscarp galleries at the angles. There is no covered way. The thickness of concrete over the casemates, where it is uncovered, is about 10 ft.

Fig. 50 is Fort Lyngby at Copenhagen. The new Copenhagen defences are very interesting, giving evidence of clear and original thought, and effectiveness combined with economy. There is one special feature worth noting about the outer ring of forts, of which Lyngby is one. These works are intended for the artillery fight only, their main armament being four 6-in. guns (in pairs) and three 6-in. howitzers, all in cupolas. The armament for immediate defence is trifling, consisting of only two 57-mm. guns and a machine-gun. There is no provision for infantry defence. The ditch has no escarp or counterscarp, and is flanked by counterscarp galleries at the salient.

It is usual in the case of works so slightly organized for their own defence, and intended only for the long-range artillery fight, to withdraw them somewhat from the front line. The Danish engineers, however, have not hesitated to put these works in the very front line, some 2000 metres in front of the permanent intermediate batteries. The object of this is to force the enemy to establish his heavy artillery at such long ranges that it will be able to afford little assistance to the trench attack of the infantry. The intermediate batteries, being withdrawn, are comparatively safe. They therefore do not require expensive protection, and can reserve their strength to resist the advance of the attack. The success of this arrangement will depend on the fighting strength of the cupolas under war conditions; and what that may be, war alone can tell us.

In the details of these works, besides the bold cutting down of defensive precautions, we may note the skilful and economical use of layers of large stones over the casemates to diminish the thickness of concrete required. The roofs of the casemates are stiffened underneath with steel rails, and steel lathing is used to prevent lumps of concrete from falling on the occupants. The living casemates look out on the gorge, getting plenty of light and air, while the magazines are under the cupolas.

The forts above described are all armed with a view to their taking an important part in the distant artillery fight. The next type to be considered (fig. 51) is selected mainly because it is a good example of the use of concealed flanking batteries, known on the continent as batteries traditores, which seem to be growing in popularity.

This design by Colonel Voorduin of the Dutch engineers has a 701 medium armament, which is not intended for the artillery duel, but to command the immediate front of the neighbouring forts and the intervals. The fort is long and narrow, with small casemate accommodation. It contains eight 4.7-in. guns. Two of these are in a cupola concealed from view, though not protected, by a bank of earth in front. The other six are in an armoured battery behind the cupola. It may be remarked that as the cupola gets no real protection from the covering mass of earth, it would be better to be able to utilize the fire of its guns to the front. The batterie traditore, if properly protected overhead, would be very difficult to silence, and its flanking fire would probably be available up to the last moment. There is very much to be said both for and against the policy of so emplacing the guns. The immediate defence of the work, with the aid of a broad wet ditch, is easy; but the great mass of concrete, which is intended to form an indestructible platform and breastwork for the infantry, would seem to be a needless expense.

From Brialmont’s Progrès de la défense des états, &c., by permission of Commandant G. Meeüs.
Fig. 50.—Fort Lyngby, Copenhagen.
From Leithner’s Beständige Befestigung.
Fig. 51.

Fig. 52, designed by the Austrian lieutenant field-marshal Moritz Ritter von Brunner (1839-1904), is selected as a type of the intermediate fort which is intended only to be a strong point in the infantry line of defence between the main forts. It has a protected armament, but this, which consists only of four small Q.F. guns in cupolas, is for its own defence, and not to take part in the artillery duel. There is also a movable armament of four light Q.F. guns on wheels, for which a shelter is provided between the two observatory cupolas. The garrison would be a half company of infantry, for whom casemates are provided in the gorge. The gorge ditch is flanked by a caponier, but there is no flank defence for the front ditch. This is defended by a glacis parapet. At the bottom of the ditch is a wire entanglement and the glacis slope is planted with thorns. The thickness of concrete on the casemates is 2 metres (6 ft. 7 in.). This is a strong and simple form of infantry work, but considering its rôle it appears to be needlessly expensive.

702

Fig. 53 is an Italian type of barrier fort in mountainous country. A powerful battery of eight medium guns protected by a Gruson shield commands the approach. The fort with its dwelling casemates is surrounded by a deep ditch flanked by counterscarp galleries. There are certain apparent weaknesses in the type, but the difficulties of the attack in such country and its limitations must be borne in mind.

Modern Details of Protection and Obstacle.—After considering the above types of fort, it will be of use to note some of the details in which modern construction has been modified to provide against the increasing power of artillery.

From Brialmont’s Progrès de la défense des états, &c., by permission of Commandant G. Meeüs.
Fig. 52.

The penetration of projectiles varies according to the nature of the soil—the lighter the better for protection. Sand offers the greatest resistance to penetration, clay the least. Since, however, the penetration of heavy shells fired Bomb-proof protection. from long ranges with high elevation may be 20 ft. or more in ordinary soil, we can no longer look to earth alone as a source of protection against bombardment. Again a moderate quantity of earth over a casemate increases the explosive effect of a shell by “tamping” it, that is by preventing the force of the explosion from being wasted in the open air. We find therefore that in most modern designs the tops of casemates are left uncovered, or with only a few inches of earth over them, in which grass may be grown for concealment.

For the materials of casemates and revetment walls exposed to fire, concrete (q.v.) has entirely replaced masonry and brickwork, not because of its convenience in construction, but because it offers the best resistance. The exact composition of the concrete is a matter that demands great care and knowledge. It should be, like an armour plate, hard on the surface and tough within. The great thickness of 10 ft. of concrete for casemate arches, very generally prescribed on the continent in important positions, is meant to meet the danger of several successive shells striking the same spot. To stop a single shell of any siege calibre in use at present, 5 ft. of good concrete would be enough. A good deal is expected from the use of “reinforced concrete” (that is concrete strengthened by steel) both for revetment walls and casemates.

Parapets are frequently made continuous or glacis-wise, that is the superior slope is prolonged to the bottom of the ditch so that the whole rampart can be swept by the fire of the defenders from the crest, and there is no dead ground Parapets. in front of it. It is also common to build the crest of the parapet in solid concrete, with sometimes a concrete banquette, so that bombardment shall not destroy the line the defenders have to man in repelling an assault. This concrete parapet may be further reinforced by hinged steel bullet-proof plates, to give head cover; which when not in use hang down behind the crest.

From General Rocchi’s Traccia per lo studio della fortificazione, by permission.
Fig. 53.

The escarp is falling into disfavour, on account of the great expense of a revetment that can withstand breaching fire. A counterscarp of very solid construction is generally used. It is low and gives cover to a wire entanglement Obstacles. in the ditch. This may be supplemented by a steel unclimbable fence, and by entanglements or thorn plantations on the covered way and the lower slopes of the parapet. Entanglements are attached to steel posts bedded in concrete. The upper parts of revetments and the foundations of walls are protected against the action of shells, that falling steeply might act as mines to overturn them, by thick aprons of large stones. Fig. 54 shows most of these dispositions.

Electric search-lights are now used in all important works and batteries. They are usually placed in disappearing cupolas. They are of great value for discovering working parties at night, and lighting up the foreground during an Search-lights. attack; and since only the projector need be exposed, they are not very vulnerable. Their value, however, must not be over-estimated. The most powerful search-light can in no way compare with daylight as an illuminant, and, like all other mechanical contrivances, they have certain marked drawbacks in war. They may give rise to a false confidence; an important light may fail at a critical moment; and in foggy weather they are useless.

The use of armour (see also Armour-Plates) for coast batteries followed closely upon its employment for ships, for those were the days of short ranges and close fighting, and it seemed natural not to leave the battery in a position of inferiority to 703 Armour. the ship in the matter of protection. In England the coast battery for a generation after the Crimean War was a combination of masonry and iron; and in 1860 Brialmont employed armoured turrets at Antwerp in the forts which commanded the Scheldt. For land defence purposes, however, engineers were very slow to adopt armour. Apart from all questions of difficulty of manufacture, expense, &c., the idea was that sea and land fronts were radically different. It was pointed out that a ship gun, fired from an unsteady platform, had not enough accuracy to strike repeated blows on the same spot; so that a shield which was strong enough to resist a single shot would give complete protection. A battery on a land front, on the other hand, was exposed to an accurate fire from guns which could strike successive blows on the same spot, and break down the resistance of the strongest shield. But in time continental opinion gradually began to turn in favour of iron protection. Practical types of disappearing and revolving cupolas were produced, and many engineers were influenced in their favour by the effect of the big high-explosive shell. Eventually it was argued that, after all, the object of fortification is not to obtain a resisting power without limit, but to put the men and guns of a work in an advantageous position to defend themselves as long as possible against a superior force; and that from this point of view armour cannot but add strength to defensive works.

From Deguise’s La Fortification permanente, by permission of J. Polleunis.
Fig. 54.

The question has of course long passed beyond the stage of theory. Practically every European state uses iron or steel casemates and cupolas. German, Danish, Italian and other types of forts so armed have been shown. Recent French types have not been published, but it is known that cupolas are employed; and Velichko, the Russian authority, long an uncompromising opponent of armour, in the end changed his views. These countries have had to proceed gradually, by improving existing fortresses, and with such resources as could be spared from the needs of the active armies. Among the smaller states Rumania and Belgium have entered most freely into the new way. In England, which is less directly interested, opinion has been led by Sir George Clarke, since the publication in 1890 of his well-known book on fortification. Having witnessed officially the experiments at Bucharest in 1885 with a St Chamond turret and a Gruson cupola, he expressed himself very strongly against the whole system. Besides pointing out very clearly the theoretical objections to it, and the weak points of the constructions under experiment, he added: “The cost of the French turret was about £10,000 exclusive of its armament, and for this sum about six movable overbank guns of greater power could be provided.” In view of the weight that belongs of right to his criticisms it is as well to point out that while this remark is quite true, yet the six guns would require also six gun detachments, with arrangements for supply, &c.; a consideration which alters the working of this apparently elementary sum. The whole object of protection is to enable a few men and guns successfully to oppose a larger number.

At the time when Sir George Clarke’s first edition came out, such extravagances were before the public as Mougin’s fort; “a mastless turret ship,” as he called it, “buried up to the deck-level in the ground and manned by mechanics.” Such ideas tended to throw discredit on the more reasonable use of armour, but whether the system be right or wrong, it exists now and has to be taken account of. Nowhere has it been applied more boldly than in Rumania. The defences of Bucharest (designed by Brialmont) consist of 18 main and 18 small forts, with intermediate batteries. The main forts are some 4500 yds. apart, and 11,000 to 12,000 yds. from the centre of the place. The typical armament of a main fort is six 6-in. guns in three cupolas (one for indirect fire), two 8.4-in. howitzers in cupolas, one 4.7-in. howitzer in a cupola, six small Q.F. guns in disappearing cupolas. The total armament of the place (all protected) is eighty-six 6-in. guns, seventy-four 8.4-in. howitzers, eighteen 4.7-in. howitzers, 127 small calibre Q.F. guns in disappearing cupolas, 476 small calibre Q.F. guns in casemates for flanking the ditches. The “Sereth Line” will be described later.

Different Forms of Protection: Casemate, Cupola, &c.—The broad difference between casemates or shielded batteries and turrets and cupolas is that the former are fixed while the latter revolve and in some cases disappear. The casemate thus has the disadvantages that the arc of fire of the gun, which has to fire through a fixed embrasure or port-hole, is very limited, and that the muzzle of the gun and the port-hole, the weak points of the system, are constantly exposed to the fire of the enemy. The advantage of the casemate lies in its comparative cheapness and the greater strength of a fixed structure. It is well suited for barrier forts (fig. 53) and other analogous positions; and the Italians amongst other nations have so employed it at such places as the end of the Mont Cenis tunnel. Steel and iron casemates are also useful as caponiers for ditch flanking (fig. 55).

From Leithner’s Beständige Befestigung, by permission.
Fig. 55.

Turrets and Cupolas.—The difference between a turret and a cupola is that the former is cylindrical with a flat or nearly flat top and presents a vertical target; while the latter is a flattened 704 dome, the vertical supports of which are entirely concealed. The turret appears to be little used. The object of both forms is at once to give an all-round arc of fire to the guns and to allow of the weak point of the structure, the port-hole and muzzle of the gun, being turned away from the enemy in the intervals of firing. Both usually emerge from a mass of concrete, which is strengthened round the opening by a collar of chilled cast iron about 12 to 15 in. thick.

There are four types of cupolas, viz. (a) Disappearing, (b) Oscillating, (c) Central pivot, (d) On roller rings.

(a) Disappearing cupolas are used chiefly for small quick-firing guns, on account of the expense of the various systems. They can be used for medium guns. The details of the best foreign systems are secret. (b) The oscillating turret is a Mougin Cupolas. type, in which the turret is supported in the centre by a knife-edge on which it can swing. The oscillation is controlled by powerful springs. The effect of it is that after firing, the front of the cupola with the port-hole swings downwards under cover, and is held there until the gun is ready to fire again. (c) Schumann’s centre pivot is understood to be approved in Germany. It has been adopted in Rumania and Belgium for howitzer cupolas. It is only suitable for a single piece; d is strong and steady—the best cupola for coast batteries; c and d are best for rapid fire because they can be loaded without lowering. They are suited for long guns.

The following types are illustrated as being generally representative of the different classes of cupola.

Fig. 56.—Cupola for 6-in. gun (Friedr. Krupp A.G.).

Fig. 56 is a section of Messrs Krupp’s typical cupola for one 6-in. gun. The shield is of nickel steel, the collar of cast steel. A small space is left between the cupola and its collar to prevent the possibility of the shield jamming after being damaged. The guns are muzzle-pivoting and thickened out near the muzzle by the addition of a ring, so as to close the port as much as possible. The recoil is controlled within narrow limits both to economize space and to prevent the smoke from the muzzle from getting into the cupola. To facilitate the elevation and depression of the gun (with muzzle pivotings the breech has of course to be moved through a much larger arc than with ordinary mountings) it is balanced by a counterweight. The cupola rests on a roller ring and is traversed by a winch. It can be turned through a complete circle in about one minute.

From Leithner’s Beständige Befestigung.
Fig. 57.—Gruson Spherical Mortar.

Fig. 57 shows a Schumann shielded mortar (sphere-mortar, Kugelmörser). In this case it will be observed that the cupola is replaced by an enlargement of the encircling collar; and the mortar (8.4-in. calibre) is enclosed in a sphere of cast iron, so as to close completely the opening of the collar in any position.

Fig. 58 shows a Gruson cupola for one 4.7-in. Q.F. howitzer.

Fig. 59 shows a disappearing turret for an electric light projector.

Fig. 60 shows a Krupp transportable cupola for a 5.7-cm. gun. This is drawn on a four-wheeled carriage, and when coming into action slides on rollers on to a platform in the parapet. It weighs about 2½ tons, and with carriage and platform about 4 tons.

The mechanism of these cupolas is for the most part simpler than it appears. Counterweights and hand winches are much in use for the lighter natures of guns. The armouring of course keeps pace with improvements in manufacture. The chilled cast iron first made popular by the Gruson firm is now little used except for such purposes as the collar round a cupola. Wrought iron, steel and compound plates for the tops of cupolas have all been tried, the most recent Krupp-Gruson designs being of nickel steel.

The sighting in some cases may be done by sights on the gun, with suitable enlargements in the port-hole; in others by sights affixed to the cupola itself (which of course can give horizontal direction only); in others training and elevation are given in accordance with the readings on electric dials, or instructions by telephone or speaking tube. There is of course nothing unreasonable in this in the case of indirect fire guns and howitzers, for if not firing from cupolas they would be behind the shelter of some wood or quarry.

Schumann’s System: “Armoured Fronts.”—Lieut.-Colonel Maximilian Schumann (1827-1889) of the Prussian engineers, who took a very prominent part in the design and advocacy of armoured defences, eventually produced a system which dispensed entirely with forts and relied on the fire of protected guns. It consists of several lines of batteries for Q.F. guns and howitzers in cupolas. He considered that such batteries would be able to defend their own front, and the infantry garrison was not to be called into action except in the case of the enemy breaking through at some point of the line.

This system was actually adopted by Rumania (1889-1892) for the Sereth Line. There are three routes by which the Russians can enter the country across the Sereth river: through Focshani, Nemolassa and Galatz. These three routes are barred by bridge-heads, those at Focshani, the most important, being on the left bank of the Milkov, a tributary of the Sereth.

The Focshani works consist of 71 batteries arranged on a semicircular front about 12 m. long and from 8000 to 10,000 yds. in advance of the bridges. The batteries are placed in three lines, which are about 500 yds. apart, and are subdivided into groups. The normal group consists of 5 batteries, of which 3 are in the first line, 1 in the second, and 1 in the third. The first-line batteries each contain five small Q.F. guns in travelling 705 cupolas. The second-line batteries, each six small Q.F. guns in disappearing cupolas. The third-line batteries have one 120-mm. gun in a cupola, and two 210-mm. spherical mortars with Gruson shields. The immediate defence of the batteries consists of a glacis planted with thorn bushes and a wire entanglement.

From Leithner’s Beständige Befestigung.
Fig. 58.—Cupola for 4.7-in. Howitzer.

The fortification of these three bridge-heads are said to have cost about £1,100,000. But the system of “armoured fronts” is never likely to be reproduced, having been condemned by all authoritative continental opinion. Its defects have been summarized by Schroeter as follows: weakness of artillery at long ranges, want of security against a surprise rush, the neglect of the use of infantry in the defence, and the difficulty of command. This last is the most serious of all. It is indeed difficult to conceive that any one should expect half-a-dozen expert gunners, each shut up in an iron box with a gun, to stop the rush of a thousand men, even by day. But imagine the feelings of the gunner on the night of a big attack, alone in his box, his nerves already strained by a preliminary bombardment and nights of watching. He hears the sounds of battle all around; he knows nothing of the progress of the attack, but expects everything, and feels every moment the door of his box being opened and the bayonet entering his back. No wise commander would submit his troops to such a test.

Sir George Clarke and Unarmoured Systems.—Before leaving the subject of fortresses it is necessary to consider the ideas of those who, while recognizing the necessity for places permanently organized for defence, prefer to treat them more from the point of view of perfected field defences. It is to the credit of English military science that Sir George Clarke may be taken as the representative of this school of thought. His study of fortification, as he tells us, began with a history of the defence of Plevna (q.v.). He was led to compare the resistance made behind extemporized defences at such places as Sevastopol, Kars and Plevna, with those at other places fortified in the most complete manner known to science. From this comparison he drew the conclusion that the true strength of fortification does not depend on great masonry works intricately pieced together at vast expense, but on organization, communications and invisibility. In his 1907 edition he says:—

“Future defences will divide themselves naturally into the following categories: (1) Permanent works wholly constructed in peace time and forming the key points of the position. (2) Gun emplacements, magazines and shelters for men in rear of the main line, all concrete structures and platforms to be completed, though some earthwork may be left until the position is placed in a state of defence. (3) Field works, trenches, &c., guarding the intervals between the permanent defences in the main line, or providing rear positions. These should be deliberately planned in time of peace ready to be put in hand at short notice. The essence of a well-fortified position is that the weapons of the defender shall obtain the utmost possible scope of action, and that those of the attacker shall have the minimum chances of effecting injury.”

Drawn from illustration in Leithner’s Beständige Befestigung, by permission.
Fig. 59.—Disappearing Turret for Searchlight.

Since Sir George Clarke published his first edition in 1890 continental ideas have expanded a good deal. The foregoing statement as to the three categories of defences would be accepted anywhere now: the differences of opinion come in Infantry redoubts. when we reach the stage of classifying under the first head the permanent works to be constructed in peace time. In most countries these would include forts with guns for the artillery duel, forts with safety armaments, fixed batteries with or without armour, and forts for infantry only. Sir George Clarke will have no armour for guns except in certain special cases of barrier forts. Heavy guns and howitzers requiring permanent emplacements (concrete platforms, &c.) must either be well concealed or be provided with alternative positions. The only permanent works which he admits are for infantry. They are redoubts of simple form intended for 350 or 400 men, with casemate accommodation for three-fourths of that number. Fig. 61 shows the design:—two rows of casemates, one under the front parapet, one under a parados; frontal musketry defence; obstacle consisting of entanglements, mines, &c., with or without escarp and counterscarp.

Fig. 60.—Transportable Cupola for 5.7-cm. Gun (Friedr. Krupp A.G.).

“The intervals (he says) between the infantry redoubts may be about 2500 yds.; but this will necessarily depend upon the conformation of the ground. Where there are good artillery positions falling within the sphere of protection of the redoubts, large intervals will be permissible. Thus, in the case of an extended line of defence where the ground offers marked tactical features, the idea of a continuous chain of permanent works may be abandoned in favour 706 of groups of redoubts guarding the artillery positions. In this case, the redoubts in a group might be distributed on a curve bent back in approximately horse-shoe form.”

From Sir George S. Clarke’s Fortification, by permission of John Murray.
Fig. 61.

The keystones of the close defence of the fighting line in future will undoubtedly be these infantry redoubts, and therefore it is of great interest to compare with the above types two studies put forward by Schroeter (Die Festung in der heutigen Kriegführung), one in his first edition in 1898 (fig. 62), and the other in the second in 1905 (fig. 63). In both these the defensive arrangements are merely trenches of field profile with entanglements, the command and the obstacle being less than in Sir George Clarke’s work; and it will be noticed that in the 1905 type, published after the Russo-Japanese War, the plan is much less simple and arrangements for close flanking defence have been introduced. But these works of Schroeter’s are merely infantry supporting points in a line which contains forts of the triangular type with guns, and armoured batteries, as well as a very complete arrangement of field defences and communications; while Sir G. Clarke’s redoubts are the only permanent works giving casemate protection in the front line.

From Schoeter’s Die Festung in der heutigen Kriegführung, by permission of E.S. Mittler u. Sohn.
Fig. 62.

The comparative merits of either design for an infantry redoubt are not of much importance. It is agreed that the main line of defence must consist of a more or less continuous line of field defences and obstacles, and that at some points in the line there should be infantry supporting points with bomb-proof protection capable of resisting big shells. The open question is, what additional works, if any, are required for the artillery, whether for the medium and heavy guns that will take part in the “artillery duel,” or for the lighter natures that will help in the close fight and defence of the intervals. Is it best for the defenders to rely on armoured protection or on concealment for his guns?

Official opinion outside England has certainly sanctioned armour, since all over the continent it is to some extent adopted in practice. National practice is usually based on the advice of the most distinguished officers of the day, and therefore it is Opposing views as to armour, gun positions, &c. unsafe to condemn it hastily. Sir George Clarke and those who are with him—and they are many, both in Great Britain and abroad—object entirely to armour. He says (Fortification, ed. 1907, p. 96): “The great advantage possessed by the attack in all ages has been the employment of a mobile artillery against armaments cribbed, cabined and confined by fortification. It is necessary to perpetuate this advantage?” Of course the effect of long-range weapons, in increasing the length of front that can be held by a given force, has given much greater 707 freedom of action to the defence and this should be taken full advantage of.

From Schroeter’s Die Festung in der heutigen Kriegführung, by permission of E.S. Mittler u. Sohn.
Fig. 63.

The argument as to the vulnerability of shielded guns is not at present strong. Sir George says (ib. p. 94), “If the high angle fire ... is ever to find a favourable opportunity, it will surely be against a cupola, the site of which can generally be determined with accuracy.” On the other hand he says (p. 90), “During the long and costly experiments carried on at Bucharest in 1885-1886, 164 rounds were fired from the Krupp 21 cm. mortar at targets of about 40 sq. metres area” (about 430 sq. ft.) “without obtaining a single hit. The range was 2700 yds.; the targets were towers built upon a level plain; the shooting conditions were ideal, and the fall of each shell was telephoned back to the firing point; but it must have been evident to the least instructed observer that to attempt to group 6 or 8 shells on an invisible area 2 metres square would have been absolutely futile.” These facts are adduced to prove that it is not necessary to give great thickness to concrete casemates, to resist successive bursts of shells in the same place; but surely they are equally applicable to cupolas. Again (p. 252), “The experience gained at Port Arthur was not altogether encouraging as regards the use of high angle fire. The Russian vessels in the harbour were sunk by opening their sea-valves.... Fire was subsequently directed upon them from 11 in. howitzers at ranges up to about 7500 yds. This was deliberate practice from siege batteries at stationary targets; but the effect was distinctly disappointing.” The cupolas therefore can hardly be considered ideal targets: and the probability is that they would hold their own against both direct and indirect fire for a long time. There are other and stronger arguments against the general use of them, all of which are clearly set forth by Sir George Clarke.

The worst objections to the cupola are the military disadvantages of isolation and immobility, and the multiplication of mechanical arrangements. For a successful round from a disappearing cupola, the elevating and traversing arrangements, the elevating and loading gear of the gun, and the telephone communication, must all be in good order. At night the successful co-operation of the searchlight is also in many cases necessary.

The teaching of history is all against immobile mechanical defences. Initiative, surprise, unforeseen offensive action, keeping the besieger in ignorance of the dispositions of the garrison, and of what progress he is making: all these, with their influence on the morale of both sides, tend towards successful defences and do not point towards the use of armour.

It may further be said that the use of armour as a general rule is unnecessary, because a concealed battery is a protected one; and with the long ranges now usual for heavy guns and howitzers, there is not generally much difficulty about concealment.

In the opinion, however, of the present writer an exception must be made for guns intended to flank the line of defence, which would generally need bomb-proof over-head cover. Further, when we leave theory and come to the consideration of actual problems of defence, it will often be found that it is necessary to place guns in certain positions where good concealment cannot be got. In such cases some form of protection must be given if the guns are to engage the concealed batteries of the attack.

III. The Attack of Fortresses

In considering the history of siegecraft since the introduction of gunpowder, there are three main lines of development to follow, viz. the gradually increasing power of artillery, the systematizing of the works of attack, and in recent times the change that has been brought about by the effect of modern small-arm fire.

Cannon appear to have been first used in sieges as mortars, to destroy hoardings by throwing round stones and barrels of burning composition. Early in the 15th century we find cannon throwing metal balls, not only against hoarding and battlements, but also to breach the bases of the walls. It was only possible to work the guns very slowly, and archers or crossbowmen were needed in support of them, to drive the defenders from the crenellations or loopholes of the battlements. At that period the artillery was used in place of the medieval siege engines and in much the same manner. The guns of the defence were inaccurate, and being placed high on the walls were made ineffective by bad mountings, which did not allow of proper depression. The besieger therefore could place his guns close to the walls, with only the protection of a few large gabions filled with earth, set up on the ground on either side of the muzzle.

In the course of the 15th century the power of artillery was largely increased, so that walls and gates were destroyed by it in an astonishingly short time. Three results shortly followed. 708 The guns of the defence having gained equally in effectiveness, greater protection was needed for the attack batteries; bastions and outworks were introduced to keep the besieger at a distance from the inner walls; and the walls were sunk in ditches so that they could only be breached by batteries placed on the edge of the glacis.

Early in the 16th century fortresses were being rapidly remodelled on these lines, and the difficulties of the attack were at once very much increased. The tendency of the assailants was still to make for the curtain, which had always been considered the weak point; but the besiegers now found that they had to bring their guns right up to the edge of the ditch before they could make a breach, and in doing so had to pass over ground which was covered by the converging fire from the faces of the bastions. Towards the end of the century the attack of the curtain was delayed and the cross-fire over the ground in front increased by the introduction of ravelins.

The slight gabion protection for the siege batteries was at first replaced by strong timber shelters. These were found inadequate; but a still greater difficulty was that of bringing up the siege guns to their positions, emplacing them and maintaining communication with them under fire. In addition to this, the guns of the defence until they could be overpowered (a slow process) dominated a wide belt of ground in front of the fortress; and unless the besiegers could find some means of maintaining a strong guard close to their batteries these were liable to be destroyed by sorties from the covered way.

Gradually the whole problem of siege work centred round the artillery. The besiegers found that they had first to bring up enough guns to overpower those of the defence; then Siegecraft before Vauban. to advance their guns to positions from which they could breach the walls; and throughout these operations to protect them against sorties. Breaches once made, the assault could follow on the old lines.

The natural solution of the difficulty of approach to the battery positions was the use of trenches. The Turks were the first to make systematic use of them, having probably inherited the idea from the Eastern Empire. The soldiers of Christendom, however, strongly disliked digging, and at first great leaders like Bayard and Montluc had themselves to use pick and shovel, to give their men an example. In due course the necessity of the trenches was recognized, but the soldiers never took kindly to them, and the difficulty was dealt with in a manner reminiscent of the feudal ages, by impressing large bodies of peasantry as workmen whenever a siege was in contemplation.

Through the 16th and most of the 17th century, therefore, we find the attack being conducted by means of trenches leading to the batteries, and supported by redoubts often called “places of arms” also made by trench work. During this period the result of a siege was always doubtful. Both trenches and batteries were arranged more or less at haphazard without any definite plan; and naturally it often happened that offensive action by the besieged against the trenches would disorder the attack and at times delay it indefinitely. Fig. 64, taken from a late 17th-century print by de Fer of Paris, gives a good idea of the general practice of that day when Vauban’s methods were not yet generally known.

Another weak point about the attack was that after the escarp walls had been strengthened to resist artillery fire as has been described, there was no clear idea as to how they should be breached. The usual process was merely an indiscriminate pounding from batteries established on the crest of the glacis. Thus there were cases of sieges being abandoned after they had been carried as far as the attempt to breach.

It is in no way strange that this want of method should have characterized the attack for two centuries after artillery had begun to assert its power. At the outset many new ideas had to be assimilated. Guns were gradually growing in power; sieges were conducted under all sorts of conditions, sometimes against medieval castles, sometimes against various and widely-differing examples of the new fortification; and the military systems of the time were not favourable to the evolution of method. It is the special feature of Vauban’s practical genius for siege warfare that he introduced order into this chaos and made the issue of a siege under normal conditions, a mere matter of time, usually a very short time.

The whole of Vauban’s teaching and practice cannot be condensed into the limits of this article, but special reference must be made to several points. The most important of these is his general arrangement of the attack. Vauban’s teaching. The ultimate object of the attack works was to make a breach for the assaulting columns. To do this it was necessary to establish breaching batteries on the crest of the glacis; and before this could be done it was necessary to overpower the enemy’s artillery. This preliminary operation is nowadays called the “artillery duel.” In Vauban’s day the effective range of guns was 600 to 700 yds. He tells us that it was customary to establish batteries at 1000 yds. from the place, but that at that range they did little more than make a great deal of noise. The first object of the attack, therefore, after the preliminary operations of investment, &c., had been completed, was to establish batteries within 600 or 700 yds. of the place, to counter-batter or enfilade all the faces bearing on the front of attack; and to protect these batteries against sorties. After the artillery of the defences had been subdued—if it could not be absolutely silenced—it was necessary to push trenches to the front so that guns might be conveyed to the breaching positions and emplaced there in batteries. Throughout these processes it was necessary to protect the working parties and the batteries against sorties.

Fig. 64.—Siege-works of the 17th century.

For this purpose Vauban devised the Places d’armes or lignes parallèles. He tells us that they were first used in 1673 at the siege of Maestricht, where he conducted the attack, and which was captured in thirteen days after the opening of the trenches. The object of these parallels was to provide successive positions for the guard of the trenches, where they could be at hand to repel sorties. The latter were most commonly directed against the trenches and batteries, to destroy them and drive out the working parties. The most vulnerable points were the heads of the approach trenches. It was necessary, therefore, that the guard of the trenches should be in a position to reach the heads of the approaches more quickly than the besieged could do so from the covered way. This was provided for as follows.

The first parallel was usually established at about 600 yds. from the place, this being considered the limiting range of action 709 of a sortie. The parallel was a trench 12 to 15 ft. wide and 3 ft. deep, the excavated earth being thrown forward to make a parapet 3 or 4 ft. high. In front of the first parallel and close to it were placed the batteries of the “first artillery position.”

While these batteries were engaged in silencing the enemy’s artillery, for which purpose most of them were placed in prolongation of the faces of the fortress so as to enfilade them, the “Approach Trenches” were being pushed The attack. forward. The normal attack included a couple of bastions and the ravelin between, with such faces of the fortress as could support them; and the approach trenches (usually three sets) were directed on the capitals of the bastions and ravelin, advancing in a zigzag so arranged that the prolongations of the trenches always fell clear of the fortress and could not be enfiladed.

Fig. 65, taken from Vauban’s Attack and Defence of Places, shows clearly the arrangement of trenches and batteries.

Fig. 65.—Regular Attack (Vauban).

After the approach trenches had been carried forward nearly half-way to the most advanced points of the covered way, the “second parallel” was constructed, and again the approach trenches were pushed forward. Midway between the second parallel and the covered way, short branches called Demi-parallels were thrown out to either flank of the attacks: and finally at the foot of the glacis came the third parallel. Thus there was always a secure position for a sufficient guard of the trenches. Upon an alarm the working parties could fall back and the guard would advance.

Trenches were either made by common trenchwork, flying trenchwork or sap. In the first two a considerable length of trench was excavated at one time by a large working party extended along the trench: flying trenchwork (formerly known as flying sap) being distinguished from common trenchwork by the use of gabions, by the help of which protection could be more quickly obtained. Both these kinds of trenchwork were commenced at night, the position of the trench having been previously marked out by tape. The “tasks” or quantities of earth to be excavated by each man were so calculated that by daybreak the trench would afford a fair amount of cover. Flying trenchwork was generally used for the 2nd parallel and its approaches, and as far beyond it as possible. In proportion as the attack drew nearer to the covered way, the fire of the defenders’ small-arms and wall-pieces naturally grew more effective, though by this time most of their artillery would have been dismounted by the fire of the siege batteries. It therefore became necessary before reaching the 3rd parallel to have recourse to sap.

Sapping required trained men. It consisted in gradually pushing forward the end of a narrow trench in the desired direction. At the sap-head was a squad of sappers. The leading man excavated a trench 1 ft. 6 in. wide and deep. To protect the head of the trench Sapping. he had a shield on wheels, under cover of which he placed the gabions in position one after another as the sap-head progressed. Other men following strengthened the parapet with fascines, and increased the trench to a depth of 3 ft., and a width of 2 ft. 6 in. to 3 ft. Fig. 66, taken from Vauban’s treatise on the attack, shows the process clearly. The sap after being completed to this extent could be widened at leisure to ordinary trench dimensions by infantry working parties.

Fig. 66.—Sapping (Vauban).

As the work at the sap-head was very dangerous, Vauban encouraged his sappers by paying them on the spot at piecework rates, which increased rapidly in proportion to the risk. He thus stimulated all concerned to do their best, and reckoned that under average conditions he could depend on a rate of progress for an ordinary sap of about 50 yds. in 24 hours.

It is interesting to compare the more recent method of sapping with that above described (fig. 67 taken from the Instruction in Military Engineering, 1896). It is no longer possible to place gabions in position at the sap-head under fire. Accordingly the leading sapper excavates to the full depth of 4 ft. 6 in., and the rate of progress is retarded proportionately, so that an advance of only 15 to 30 yds. in 24 hours can be reckoned on instead of 50. The head of the sap is protected by a number of half-filled sandbags, which the leading sapper throws forward as he goes on.

The nearer the approaches drew to the covered way, the more oblique became the zig-zags, so that little forward progress was made in proportion to the length of the trench. The approaches were then carried straight to the front, by means of the “double sap,” which consisted of two single saps worked together with a parapet on each side (fig. 68). To protect these from being enfiladed from the front, traverses had to be left at intervals, usually by turning the two saps at right angles to right or left for a few feet, then forward, and so on as shown in fig. 69, the distance apart of these traverses being of course regulated by the height from which the enemy’s fire commanded the trench.

The later stages in the attack are illustrated in fig. 70. From the third parallel the attack was pushed forward up the glacis by means of the double sap. It was then pushed right and left along the glacis, a little distance from the crest of the Later stages of the attack. covered way. This was called “crowning” the covered way, 710 and on the position thus gained breaching batteries were established in full view of the escarp. While the escarp was being breached, if it was intended to use a systematic attack throughout, a mine gallery (see Mining below) was driven under the covered way and an opening made through the counterscarp into the ditch. The sap was then pushed across the ditch, and if necessary up the breach, the defenders’ resistance being kept under by musketry and artillery fire from the covered way. The ravelin and bastions were thus captured successively, and where the bastions had been retrenched the same methods were used against the retrenchment.

From Military Engineering, by permission of the Controller of H.M. Stationery Office.
Fig. 67.—“Deep” Sap.

Vauban showed how to breach the escarp with the least expenditure of ammunition. This was done by making, with successive shots placed close together (which was feasible even in those days from a position so close as the crest of the covered way) horizontal and vertical cuts through the revetment wall. The portion of revetment enclosed by the cuts being thus detached from support was overturned by the pressure of the earth from the rampart. Ricochet fire was also the invention of Vauban. He showed how, in enfilading the face of a work, by using greatly reduced charges a shot could be made to drop over the crest of the parapet and skim along the terreplein, dismounting guns and killing men as it went.

The constant success of Vauban must be ascribed to method and thorough organization. There was a deadly certainty about his system that gave rise to the saying “Place assiégée, place prise.” He left nothing to chance, 18th-century principles of defence. and preferred as a rule the slow and certain progress of saps across the ditch and up the breach to the loss and delay that might follow an unsuccessful assault. His contemporary and nearest rival Coehoorn tried to shorten sieges by heavy artillery fire and attacks across the open; but in the long run his sieges were slower than Vauban’s.

So much a matter of form did the attack become under these conditions, that in comparing the supposed defensive powers of different systems of fortification it was usual to calculate the number of days that would be required in each case before the breach was opened, the time being measured by the number of hours of work required for the construction of the various trenches and batteries. It began to be taken as a matter of course that no place under any circumstances could hold out more than a given number of days; and naturally, when the whole question had become one of formula, it is not surprising to find that places were very often surrendered without more than a perfunctory show of resistance.

Fig. 68.—Double Sap.
Fig. 69.—Direct advance by Double Sap.

The theory of defence at this time appeared to be that since it was impossible to arrest the now methodical and protected progress of the besiegers’ trenches, no real resistance was possible until after they had reached the covered way, and this idea is at the root of the extraordinary complications of outworks and multiplied lines of ramparts that characterized the “systems” of this period. No doubt if a successor to Vauban could have brought the same genius to bear on the actual defence of places as he did on the attack, he would have discovered that the essence of successful defence lay in offensive action outside the body of the place, viz. with trench against trench. For want of such a man the engineers of the defence resigned themselves contentedly to the loss of the open ground outside their walls, and relied either upon successive permanent lines of defence, or if these did not exist, upon extemporized retrenchments, usually at the gorge of the bastion.

It is curious that such experienced soldiers as most of them were should not have realized the fatal effect upon the minds of the defenders which this almost passive abandonment of line after line must needs produce. Even a civilian—Machiavelli—had seen into the truth of the matter years before when he said (Treatise on the Art of War, Book vii.): “And here I ought to give an advice ... to those who are constructing a fortress, and that is, not to establish within its circuit fortifications which may serve as a retreat to troops who have been driven back from the first line.... I maintain that there is no greater danger for a fortress than rear fortifications whither troops can retire in case of a reverse; for once the soldier knows that he has a secure retreat after he has abandoned the first post, he does in fact abandon it and so causes the loss of the entire fortress.”

It must, however, be remembered that in those days when soldiers were mostly of a separate or professional caste, the whole thing had become a matter of business. Fighting was so much regulated by the laws and customs of war that men thought nothing of giving up a place if, according to accepted opinion, the enemy had advanced so far that they could no longer hope to defend it successfully. Once this idea had set in it became hopeless to expect successful defences, save now and then when some officer of very unusual resolution was in command. This is the real reason for the feeble resistance so often made by fortresses in the 17th and 18th centuries, which has been attributed to inherent weakness in fortifications. Custom exacted that a commandant should not give up a place until there was an open breach or, perhaps, until he had stood at least one assault. Even Napoleon recognized this limitation of the powers of the defence when in the later years of his reign he was trying to impress upon his governors the importance of their charge. The limitation was perfectly unnecessary, for history at that time could have afforded plenty of instances of places that had been successfully defended for many months after breaches were opened, and assault after assault repulsed on the same breach. But the same soldiers of the 17th and 18th centuries who had created this artificial condition of affairs, 711 established it by making it an understood thing that a garrison which surrendered without giving too much trouble after a breach had been opened should have honourable consideration; while if they put the besiegers to the pains of storming the breach, they were liable to be put to the sword.

It has been necessary to dwell at some length on the siegecraft of Vauban and his time, not merely for its historical interest, but because the system he introduced was practically unaltered until the end of the 19th century. The Peninsular War. sieges of the Peninsular War were conducted on his lines; so was that of Antwerp in 1830; and as far as the disposition of siege trenches was concerned, the same system remained in the Crimea, the Franco-German War and the Russo-Turkish War. The sieges in the Napoleonic wars were few, except in the Iberian peninsula. These last differed from those of the Vauban period and the 18th century in this, that instead of being deliberately undertaken with ample means, against fortresses that answered to the requirements of the time, they were attempted with inadequate forces and materials, against out-of-date works. The fortresses that Wellington besieged in Spain had rudimentary outworks, and escarps that could be seen and breached from a distance. At that time, though the power of small arms had increased very slightly since the last century, there had been a distinct improvement in artillery, so that it was possible to breach a visible revetment at ranges from 500 to 1000 yds. Wellington was very badly off for engineers, siege artillery and material. Trench works could only be carried out on a small scale and slowly. Time being usually of great importance, as in the first two sieges of Badajoz, his technical advisers endeavoured to shorten sieges by breaching the escarp from a distance—a new departure—and launching assaults from trenches that had not reached the covered way. Under these circumstances the direct attacks on breaches failed several times, with great loss of life. Wellington in one or two earlier despatches reflected on his engineers for not establishing their batteries on the crest of the glacis. The failures are, however, clearly due to attempts to push sieges to a conclusion without proper preparation.

Fig. 70.—Later Stages of the Attack (Vauban).

So much has been written of late years in criticism of the fortification to what may be called the Vauban period that it is important to note what were the preparations considered necessary for a siege at that time (Journals of Sieges in Spain, 1811 to 1814). Sir John Jones summarizes his own experience in Spain and the data accumulated by practical engineers in former sieges from the time of Vauban onwards, in the following conclusions: The actual work of entrenching, sapping, &c., on the front attacked was much the same whether the fortress contained 5000 or 10,000 men. On the other hand the guard of the trenches was proportionate to the fighting men inside the fortress. (The total number of men had of course to be sufficient to allow three or four complete shifts or “reliefs” for all work and duties.) Adding a proportion of men for camp and other duties, he calculates, for the vigorous siege of an ordinary place situated in open country and containing 5000 men, a corps of 32,080 effectives, and remarks further that this force would be greatly exhausted after a month’s service. The same place held by 10,000 would call for a besieging army of 50,830 men (guards and duties increasing, but not working parties). Thus the besieger should if possible have a superiority of 7 to 1 if the garrison numbered 5000, 6 to 1 if 10,000 and 5 to 1 if 15,000 and so on. As regards artillery, he should have as many, and if possible twice as many, guns as those of the defender on the front of attack, as well as howitzers for sweeping every line subject to enfilade and mortars for destroying traverses, &c. Later in the siege, more howitzers and mortars to clear the covered way and places of arms, and finally, after the covering of the covered way, fifty additional battering guns would be required. It is apparent from this that the practical engineers of the day looked upon a siege as a serious matter, and did not find permanent fortifications wanting in defensive strength.

During the long peace that followed the Napoleonic wars, one advance was made in siegecraft. In England in 1824 successful experiments were carried out in breaching an unseen wall by curved or indirect fire from howitzers. At Antwerp in 1830 the increasing power and range of artillery, and especially of howitzers, were used for Crimea. bombarding purposes, the breaches there being mostly made by mines. Then came one of the world’s great sieges; that of Sevastopol in 1854-1855 (see Crimean War). The outstanding lesson of Sevastopol is the value of an active defence; of going out to meet the besieger, with countertrench and countermine. This lesson has increased in value for us in proportion to the increased power of the rifle.

In comparing the resistance made behind the earthworks of Sevastopol with the recorded defences of permanent works, it is essential to remember that the conditions there were quite abnormal. Sir John Jones has told us what the relative forces of besiegers and besieged should be, and the necessary preponderance of artillery for the attack. The following quotations may be added:

“The siege corps should be sufficiently strong—(1) To invest the fortress completely, and maintain the investment against all the efforts of the garrison. (2) If a regular siege is contemplated, to execute and guard all the siege works required for it. Complete investment may sometimes be impossible, but experience has repeatedly shown that the difficulties of a siege are enormously increased if the garrison are able to draw fresh troops and supplies from outside, and to rid themselves of their sick and wounded.” (Lewis). Again as regards artillery: “In a regular attack, where every point is gained inch by inch, it is impossible to succeed without overpowering the defensive artillery”; and “it is useless to attempt to sap near a place till its artillery fire is subdued ...” (Jones).

These conditions were so far from being fulfilled at Sevastopol that (a) there was no investment—in fact the Russians came nearer to investing the Allies; (b) the Russians had the preponderance in guns almost throughout; (c) the Russian force in and about Sevastopol was numerically superior to that of the Allies. We must add to this that Todleben had been able to get rid of most of his 712 civilian population, and those who remained were chiefly dockyard workmen, able to give most valuable assistance on the defence works. The circumstances were therefore exceptionally favourable to an active defence. The weak point about the extemporized earthworks, which eventually led to the fall of the place, was the want of good bomb-proof cover near the parapets.

The Franco-German War of 1870 produced no great novelty. The Germans were not anxious to undertake siege operations when it could be avoided. In several cases minor fortresses surrendered after a slight bombardment. Franco-German War. In others, after the bombardment failed, the Germans contented themselves with establishing a blockade or detaching a small observing force. By far the most interesting siege was that of Belfort (q.v.). Here Colonel Denfert-Rochereau employed the active defence so successfully by extemporizing detached redoubts and fortifying outlying villages, that he obliged the besiegers (who, however, were a small force at first) to take up an investing line 25 m. long; and succeeded in holding the village of Danjoutin, 2000 yds. in advance of the enceinte, for two months after the siege began. He also used indirect fire, withdrawing guns from the ramparts and placing them in the ditches, in the open spaces of the town, &c. At Paris the French found great advantage in placing batteries in inconspicuous positions outside the forts. Their direct fire guns were at a disadvantage in being fired through embrasures. These had served their purpose when artillery fire was very inaccurate, but had now for a long time been recognized by the best engineers as out of date. The Germans since the siege of Düppel in 1864 had mounted their siege guns on “overbank” carriages; that is, high carriages which made it possible to fire the guns over the parapet of the battery without embrasures. The guns in the Paris forts which were further handicapped by conspicuous parapets and the bad shooting of the gunners were easily silenced.

At Strassburg indirect fire against escarps was used. The escarp of Lunette 53 was successfully breached by this method. The breaching battery was 870 yds. distant, and the shot struck the face of the wall at an angle (horizontally) of 55°, the effect being observed and reported from the counterscarp. 1000 rounds from 60-pounder guns sufficed to make a breach 30 yds. wide.

Fig. 71 is a good example of the attack in the late stages. It will be observed that batteries for mortars and field guns are established in the captured lunettes. The narrow wet ditch of Lunette 53 was crossed by a dam of earth and fascines, the headway protected by a parapet or screen of sandbags.

“Lunette 52 was unrevetted, and its ditch was more than 60 yds. wide, and 6 to 9 ft. deep.... It was determined to effect the passage by a cask bridge, for which the casks were furnished by breweries near at hand.... The formation of the bridge was begun at nightfall. A pioneer swam across, hauled over a cable, and made it fast to the hedge on the berm. Four men were stationed in the water, close to the covered way, the casks were rolled down to them one after the other, and fitted with saddles, so as to form piers ... these piers were successively boomed out along the line of the cable.... In two hours the bridge was finished, and the lunette was entered.... The work had not been discovered by the besieged, and the formation of lodgments inside the lunette was already begun, when the noise made by some troops in passing the bridge attracted attention, and drew a fire which cost the besiegers about 50 men. A dam was afterwards substituted for the bridge, as it was repeatedly struck by shells.” (R.E. Professional Papers, vol. xix.)

It is curious to realize that this happened at so recent a time. Such operations would be impossible now, as long as any defending guns remained in action.

On the whole it may be said that siegecraft gained practically nothing from the Franco-German War. The Russo-Turkish war taught less, Plevna (q.v.) having been defended by field works and attacked by the old-fashioned Modern siege warfare. methods. For the last ten years of the 19th century military opinion was quite at a loss as to how the sieges of the future would work out. As guns and projectiles continued to improve the “attaque brusquée” proposed by von Sauer had many adherents. It was thought that a heavy bombardment would paralyse resistance and open the way for an attack, to be delivered by great numbers and with special appliances for crossing obstacles. Others thought that the strength of the defence, as manifested by the Plevna field works, would be greater than ever when the field works were backed by permanent works, good communications and the resources of a fortress. One thing was obvious—namely, that as long as the artillery of the place, of even the smallest calibres, remained unsubdued, the difficulty of trenchwork and sapping would be enormously increased, and no one seemed to have formed a clear conception of how that difficulty was to be met. A lecture delivered in Germany about 1895 is worth quoting as a fair example of the vagueness of idea then prevailing: “For the attack, the following is the actual procedure: Accumulation and preparation of material for attack before the fortress: advance of attacking artillery, covered by infantry. Artillery duel. Throwing forward of infantry: destruction of the capability for defence of the position attacked; when possible by long-range artillery fire, otherwise by the aid of the engineers. Occupation of the defensive position. Assault on the inner lines of the fortress.” That seemed quite a simple prescription, but the necessary drugs were wanting. And even since Port Arthur great uncertainty as to the future of the attack remains.

From Textbook of Fortification, by permission of the Controller H.M. Stationery Office.
Fig. 71.—Strassburg, Lunettes 52 and 53, 1870.

Modern artillery has much simplified the construction of siege batteries. Formerly siege batteries and rampart batteries opposed each other with direct fire at ranges not too long for the unaided human eye, and the shells, travelling with low velocity, bit into the parapets, and, exploding, produced their full effect. Accordingly the task of the gunners was, by accurate fire, to destroy the parapets and embrasures, and to dismount the guns. The parapets of siege batteries were therefore made from 18 to 30 ft. thick, and the construction of such batteries, with traverses, &c., involved much work. The height of parapet necessary for proper protection being 7 ft. 6 in. to 8 ft., a great deal of labour could be saved by sinking the gun-platforms about 4 ft. below the surface level, but of course this was only possible where rock or water were not near the surface.

The effect of modern projectiles was to reduce the thickness of earth necessary for parapets. High velocity projectiles are very easily deflected upwards by even a slight bank of earth. This is 713 especially the case with sand. Loose earth is better than compacted earth, and clay offers the least resistance to penetration. These facts were taken note of in England more than on the Continent in the design of instructional siege batteries.

The construction of batteries is moreover vastly simplified by the long ranges at which artillery will fight in future. It will as a rule be possible to place howitzer batteries in such positions that even from balloons it will be difficult to locate them; and even direct fire batteries can easily be screened from view. This renders parapets unnecessary, and probably no more protection will be used than light splinter-proof screens to stop shrapnel bullets or fragments of common shell. Moreover batteries can be constructed at leisure and by daylight.

The most important point about the modern battery is the gun platform for the larger natures of guns and howitzers. These require very solid construction to resist the heavy shock of discharge. Not long ago it was thought that the defence would have larger ordnance than the attack, as anything heavier than an 8 in. howitzer required a concrete bed, which could not be made at short notice. The Japanese, however, at Port Arthur made concrete platforms for 11 in. howitzers. It may be remarked that difficulties which loom largely in peace are often overcome easily enough under the stress of war.

Another gain to the attack is in connexion with magazines. The old powder magazines were particularly dangerous adjuncts to batteries, and had to be very carefully bomb-proofed. Such propellants as cordite, however, are comparatively harmless in the open. They are very difficult to detonate, and if set on fire do not explode like gunpowder. It is therefore unnecessary to provide bomb-proof magazines for them in connexion with the batteries.

In future sieges the question of supply will be more important than it has ever been. Leaving out of the question the bringing up of supplies from the base of operations, the task of distribution at the front is a very large one. The Paris siege manœuvres of 1894 furnish some instructive data on this point. The main siege park was at Meaux, 10 m. from the 1st artillery position, and the average distance from the 1st artillery position to the principal fort attacked was 5000 yds. The front of attack on Fort Vaujours and its collateral batteries covered 10,000 yds. There were 24 batteries in the 1st artillery position; say 100 guns, spread over a front of 4000 yds. To connect Meaux with the front, the French laid some 30 m. of narrow gauge railway largely along existing roads. The line was single, with numerous branches and sidings. They ran 11 regular trains to the front daily and half-a-dozen supplementary. The amount of artillery material sent up was over 5000 tons, without any projectiles; but it can easily be imagined that large demands were also made on transport for other purposes. For instance, one complete bakery train was sent up daily. The amount of ammunition sent up would be limited only by the power of transporting it. A siege train of 100 pieces could probably dispose of from 500 to 1000 tons of ammunition a day, at the maximum rate of firing.

But the most important question affecting the sieges of the future (putting aside accidental circumstances) will be the configuration of the ground. Assuming that local conditions do not specially favour the artillery of either side, it is highly probable that the artillery duel will result in a deadlock. If the besiegers’ guns do not succeed in silencing those of the defence from the 1st or distant artillery position (which, whether they are in cupolas or in concealed positions, will in any case be an extremely difficult task), it will be necessary for the infantry to press in; to feel for weak points, and to fight for those that offer better positions for fire and observation. In doing this they will have to face the defenders’ infantry, entrenched, backed by their unsilenced guns, and having secure places of assembly from which to deliver counter-attacks. The distance to which they can work forward and establish themselves under these conditions will depend on the ground. It will then be for the engineers to cross the remaining space by sap. This, under present conditions, will be a tedious process, and may even take long enough to cause the failure of the siege.

As to the manner of the sap, it will certainly be “deep,” as long as the defence retains any artillery power. When the 4 ft. 6 in. sap already described was first introduced, it was known as a “deep sap”; but the sieges of the future will probably necessitate a true deep sap, that is one in which the whole of the necessary cover is got below the surface of the earth.

Such a sap may consist of an open trench, about 6 ft. deep, the whole of the excavated earth being carried away through the trench to the rear; or a blinded trench, covered in as it progresses by splinter-proof timbers and earth; or a tunnelled trench, leaving a foot or so of surface earth undisturbed. In either case nothing should be visible from the front to attract artillery fire. As the sap is completed, it will sometimes be necessary to add a slight parapet in places, to give command over the foreground for the rifles of the guard of the trenches.

The sap will have to be pushed up quite close to the defenders’ trenches and obstacles. After that further progress must either be made by mining, or as seems very probable, by getting the better of the defenders in a contest with shells from short-range mortars.

Just as in the feudal ages a castle was built on some solitary eminence which lent itself to the defensive methods of the time, so in the future the detached forts and supporting points in the girdle of a fortress will be sited where smooth and gentle slopes of ground give the utmost opportunity to the defenders’ fire, and the least chance of concealment to the enemy. There will be considerable latitude of choice in the defensive positions; though not, of course, the same latitude as when the existence of a precipitous hill was the raison d’être of the castle. In some places, as at Port Arthur, the whole country-side may by reason of its steep and broken slopes be unfavourable to the defence, though even then genius will turn the difficulties to account. But wherever it is possible the defender will provide for a space of 1000 yds. or so, swept by fire and illuminated by searchlights, in front of his lines. That space will have to be crossed by sap, and it needs little imagination to realize how great the task will be for the besieger.

There are other modern methods of siege warfare to be noticed, the use of which is common to besiegers and besieged. Much is expected of balloons; but the use of these in war is unlikely to correspond to peace expectations. They must be kept at a considerable distance from the enemy’s guns, a distance which will increase as the means of range-finding improve; and as the height from which they can observe usefully is limited, so is the observers’ power to search out hidden objects behind vertical screens. Thus, suppose a captive balloon at a height of 2000 ft., and distant 4000 yds. from an enemy’s howitzer battery: and suppose the battery placed behind a steep hill-side or a grove of trees, at such a distance that a shell fired with 30° elevation can just clear this screen. The line of sight from the observer to the battery is inclined to the horizontal at 2000 / (3 × 4000), that is 16, or roughly 10°. It is obvious, therefore, that the observer cannot see the battery.

Balloon observers are expected to assist the batteries by marking the effects of their fire. For this to be done on any practical scale a balloon would be required for each battery: that is, for only 100 guns, some 20 or 25 balloons. These would require an equal number of highly skilled observers (of whom there are not too many in existence), besides the other balloon personnel and accessories, and the means of making gas, which is too much to expect, even if an enemy were obliging enough to give notice of his intentions.

Telephones and all other means of transmitting intelligence rapidly are now of the utmost importance to both attack and defence. Maps marked with numbered squares are necessary for directing artillery fire, especially from cupolas. Organization in every branch will give better results than ever before, and the question of communication and transport from the base of supplies right up to the front needs detailed study, in view of the great weight of ammunition and supplies that will have to be handled.

The use of light mortars for the trenches, introduced by Coehoorn and revived with extemporized means at Port Arthur, needs great attention. It may be prophesied that the issue of important sieges in the future, when skilfully conducted on both sides with sufficient resources, will depend mainly on the energy of the defenders in trench work, on mining and countermining in connexion with the trenches, and on the use of light mortars made to throw large charges of high explosive for short distances with great accuracy.

For a brief narrative of the siege of Port Arthur in 1904, one of the greatest sieges of history, both as regards its epic interest and its military importance, the reader is referred to the article Russo-Japanese War.

Definitions.—The following definitions may be useful, but have no place in the evolution of the attack, to which this section is mainly devoted.

Investment.—This most necessary, almost indispensable operation of every siege consists in surrounding the fortress about to be besieged, so as to cut off its communications with the outside world. Preliminary investment which is carried out by cavalry and light troops before the arrival of the besieging force, consists in closing the roads so as to shut out supplies and reinforcements. Close investment should be of such a character as to prevent any sort of communication, even by single messengers or spies. The term “blockade” is sometimes loosely used instead of investment.

Lines of Circumvallation and Contravallation.—These now obsolete terms were in great use until the 19th century. The circumvallation was a line of parapet which the besieger made outside the investing position of his own force, to protect it when there was a chance of attack by a relieving army. The line of contravallation was the line of parapet and trench sometimes made by the besieger all round the town he was attacking, to check the sorties of the garrison.

Observing Force.—When circumstances make the reduction of a particular fortress in the theatre of operations unnecessary a force is often detached to “observe” it. The duty of this force will be to watch the garrison and prevent any hostile action such as raids on the lines of communications.

Bombardment.—This operation, common to all ages, consists in a general (sometimes an indiscriminate) fire against either the whole target offered by the fortress or a particular section of that target. In ancient and medieval times the effect of a bombardment—whether of ordinary missiles, of incendiary projectiles, or of poisonous matters tending to breed pestilence—upon a population closely crowded within its walls was very powerful. In the present day little military importance is attached to bombardment, since under modern conditions it cannot do much real harm.

714

IV. Military Mining

It has been noted already that mining is one of the most ancient resources of siege warfare. The use of gunpowder in mining operations dates from the end of the 15th century. When Shakespeare makes Fluellen say, at Henry V.’s siege of Harfleur, “th’athversary is digt himself four yards under the countermines; I think ’a will plow up all, if there is not better directions,” he is anticipating the development of siegecraft by nearly 100 years. Pedro di Navarro, a Spanish officer, is credited with the first practical use of explosive mines. He employed them with great success at the siege of Naples in 1503; and afterwards, when rebuilding the Castello Nuovo after the siege, was probably the first to make permanent provision for their use in countermines. Countermining had been a measure of defence against the earlier methods of attack-mining; the object being to break into the besiegers’ galleries and fight hand to hand for the possession of them. When the explosive mine was introduced, it became the object of the defenders to establish their countermines near the besiegers’ galleries and destroy them by the effect of the explosion. In the 400 years or so that have passed this branch of warfare has changed less than any other. Methods of mining have not advanced much, and the increased power of high explosives as compared with gunpowder has its least advantage in moving masses of earth.

When a besieger has arrived by means of trenches within a certain distance of the enemy’s works without having subdued their fire, he may find that the advance by sap becomes too slow and too dangerous. He can then advance underground by means of mine galleries, and by exploding large charges at the heads of these galleries can make a series of craters. These craters are then occupied by infantry, and are connected with each other and with the parallel in rear by trenches, thus forming a new parallel. If not interfered with by the defenders the besieger can advance in this way until he reaches the counterscarp. His mines will now be turned to a new purpose, viz. to breach the counterscarp and afterwards the escarp. This is done by placing suitable charges at intervals behind the scarps at such a height above the foundations that the pressure of the earth above the mine will more than counterbalance the resistance of the masonry.

But if the defenders are active, they will countermine. There is as a general rule this broad difference between the mines of the defence and those of the attack, that the defenders do not wish the surface of the ground broken, lest Mines and countermines. increased opportunities of getting cover should be offered to the besiegers. The object of the defence, therefore, is to destroy the besiegers’ galleries without forming craters, and for this purpose they generally endeavour to get underneath the attack galleries. The defenders may, however, wish, if the opportunity is allowed them, to explode mines under the attack parallels, in which case there is of course no objection to disturbing the surface.

“At the commencement of the subterranean war the main object of the defence is to force the besieger to take to mining operations as early as possible, as it is a tedious operation and will prolong the siege. Every endeavour must be made to push forward countermines so as to meet and check the attack. On the approach of the opponents to each other careful listening for the enemy must be resorted to. To this end it is necessary at irregular intervals to suspend all work for some minutes at a time, closing doors of communication and employing experienced listeners at the heads of the countermines. This matter is a most important one, as a premature explosion of the defender’s mines is a double loss to the defender, a loss of a mine and an advantage to the enemy in more than one way. As soon as the overcharged mines of the besieger have been fired, a heavy fire should be brought to bear on the craters, and if possible sorties should be made to prevent the enemy occupying them. At the same time every effort should be made underground to surround with galleries, and as it were isolate, the craters so as to prevent the besieger making a new advance from them. The efforts of the attack at this stage will probably be directed to the formation of what are called “Boule shafts” (i.e. shafts partially lined in which charges are hastily fired with little or no tamping), and to meet these in time the defender may resort to the use of boring tools, and so place charges somewhere in advance of the heads of the countermines. His great object must be to prevent as long as possible the besieger from getting underground again; and these occasions, when the power of resistance is temporarily equal to, if not greater than, that of the attack, should be made the most of by the defence.” (Lewis, Text-book on Fortification, &c., 1893.)

The defence has the advantage, in the case of fortresses, of being able to establish beforehand a system of countermine galleries in masonry. Many systems have been worked out for this purpose. A good typical arrangement is that of General Marescot, published in 1799, shown in fig. 72.

From Textbook of Fortification, by permission of the Controller H.M. Stationery Office.
Fig. 72.

The main galleries (those running out in a straight line from the counterscarp gallery e to three of the points a) fall gently to the front to a depth of 30 or 40 ft. below the surface—the deeper they are the less they will suffer from the enemy’s mines. Branch galleries (marked c b + d c) run obliquely upward from them to right and to left, leading to the mines, which are placed at various depths, according to circumstances.

Two main points must be observed in any system of countermines: the branch galleries must run obliquely forward, so as not to present their sides to the action of the enemy’s mines; and the distance between the ends of the branches from adjacent main galleries should be such that the enemy cannot pass between them unheard. This distance will vary with the nature of the soil, but may be taken roughly as 20 yds. A convenient size for main galleries is 6 ft. high by 3 ft. wide: branch galleries may be 5 ft. by 3 ft. When the enemy is approaching, other branch galleries, called listeners, will be pushed out from main 715 and branch galleries. The section to fig. 1 of fig. 72 shows openings left for the purpose.

Another use of mines in defence is in connexion with breaches. A permanent arrangement for this purpose, by General Dufour, is shown in fig. 72. Yet another use, on which much ingenuity was expended in the 18th century, is to extemporize retrenchments.

The charges of mines depend of course upon the effect which is desired. When the charge is strong enough to produce a crater, the radius of the circular opening on the surface of the ground is called the radius of the crater. The Different kinds of mines. line drawn from the centre of the charge to the nearest surface, which is expressed in feet, is called the line of least resistance (L.L.R.). When a mine produces a crater the diameter of which is equal to the line of least resistance, it is called a one-lined crater; when the diameter is double the L.L.R., a two-lined crater and so on. Common mines are those which produce a two-lined crater. Over-charged mines produce craters greater than two-lined, and undercharged mines less. A camouflet does not produce a crater; it is used when the object is to destroy an enemy’s gallery without breaking the surface. Fig. 73 shows sections of the different kinds of mines, with their craters and the effect they will produce downwards and horizontally in ordinary earth.

From Instructions in Military Engineering, by permission of the Controller of H.M. Stationery Office.
Fig. 73.—Mines.

Consideration of this figure will show that it is possible to place a long charge at such a depth below the surface that it will destroy all galleries of the enemy within a considerable radius, without much disturbing the surface of the ground.

Bored mines, which have been alluded to above, are a comparatively recent innovation. When the enemy is heard at work in one of his galleries and his position approximately determined by the sound, it is necessary to drive a branch gallery with all speed in that direction, and when it has advanced as far as appears necessary, to load, tamp and discharge a mine before the enemy can fire his own mine. This is one of the most delicate and dangerous operations of war, and success will fall to those who are at the same time most skilful and most determined. The work can be hastened and made less dangerous as follows: Instead of driving a branch gallery, a hole several inches in diameter is bored in the required direction. With suitable tools there is no difficulty in driving a straight bore hole 20 or 30 ft. long. A small charge of high explosives is then pushed up to the end of the borehole and fired. This forms a small camouflet chamber by compressing the earth around it. Into this chamber the charge for the mine is passed up the bore-hole. No tamping of course is required.

Mine warfare is slow, dangerous and uncertain in its results. It will certainly delay the besiegers’ advance very much and may do so indefinitely. One point is distinctly in favour of the defence, namely that when ground has been much mined it becomes charged with poisonous gases. Some explosives are less noxious than others in this way, and it will be advantageous for the attack, but not necessarily for the defence, to make use of these.

Calculation of Charges.—The quantity of powder required for a charge is expressed in lbs. in terms of L.L.R.3, and the following formulae are used:

l = L.L.R. in feet, r = radius of crater in feet, c = powder charge in pounds, s = a variable dependent on the nature of the soil.

For a common mine c = (s/10) l3.

For an overcharged mine c = (s/10) {l + .9 (r − l)}3.

For an undercharged mine c = (s/10) {l − .9 (l − r)}3.

The values to be given to s are:

   Nature of Soil. Value of s.
Very light earth 0.80
Common earth 1.00
Hard sand 1.25
Earth mixed with stones 1.40
Clay mixed with loam 1.55
Inferior brickwork 1.66
Rock or good new brickwork 2.25
Very good old brickwork 2.50

Military mining is carried on by means of vertical shafts and horizontal or inclined galleries. When the soil is very stiff, very little or even no lining is required for shafts and galleries; but usually they have to be lined either with cases or frames.

Cases make a complete lining of 2 in. planking. Frames are used at intervals of 4 or 5 ft. to support a partial lining of planks. Cases are of course preferable in other respects; but in ordinary soil they take up more timber.

There are two kinds of gallery in ordinary use in the British service, namely the common gallery whose interior dimensions with cases are 5 ft. 6 in. × 2 ft., and the branch gallery which is 4 ft. × 2 ft. The shaft has about the same dimensions as Shafts and galleries. a branch gallery. Formerly it was sometimes necessary in the systematic attack of a fortress to get guns down into the ditch. For this purpose a “great gallery” was used, 6 ft. 6 in. in height and 6 ft. 8 in. wide, internal dimensions.

Miners’ Tools.—These are few and simple. The pick and shovel differ from the ordinary types in having rather shorter helves suitable for the confined space in which they are used. There is also a push-pick, an implement with a straight helve and a pointed shovel head 6 in. long and 3½ in. wide. The miner’s truck, used for drawing the earth from the end of the gallery to the bottom of the shaft, is a small wooden truck holding about 2 cub. ft. of earth. Formerly the noise of the wheels of the truck passing over the uneven wooden floor of the gallery was very liable to be heard by the enemy. To obviate this they now have leather tyres and should run on battens nailed to the floor. The miner’s bucket is a small canvas bucket with a couple of ropes attached, by which the earth can be drawn up the shaft. Nowadays, however, the truck itself has chains attached to it, by which it is drawn up, with the aid of a windlass, to the surface. By this method more earth can be taken up in one lift, and time and labour are not wasted in transferring the contents of the truck to the bucket.

Ventilation is an important point. The breath of the miners and the burning of their candles (when electric light is not available) vitiates the air in the galleries; so that even in clean ground a gallery should not be driven more than 60 ft. without providing some means of renewing the air. This is usually done by forcing fresh air, by means of a pump or bellows, through a flexible hose to the head of the gallery. Where mines have been fired close by, there is great danger from poisonous gases filtering through the soil into the gallery. This difficulty is nowadays met by the use of special apparatus, such as helmets into which fresh air is pumped, so that the wearers need not breathe the air of the gallery at all. Ventilation can also be assisted by boring holes vertically to the surface of the ground.

Where a point has been reached at which it is proposed to fire a mine, a chamber just large enough to hold the charge is cut in the 716 side of the gallery. The object of this is to keep the charge out of the direct line of the gallery and thus increase the force of the explosion. The charge may be placed in canvas bags, barrels or boxes, precautions being taken against damp.

The operation of loading is of the first importance, for if the mine is not exploded with success, not only is valuable time lost, which may give the enemy his opportunity, but it will probably be necessary to untamp the mine in order to renew the Charging mines. fuze; an operation attended by considerable danger. The loading of the mine should therefore be done by the officer in charge with his own hands. He has to work in a very cramped position and practically in the dark (unless with electric light) as of course no naked lights can be allowed near powder. Everything should therefore be prepared beforehand to facilitate the loading of the mine and placing of the fuze. At Chatham a 1000 ℔ mine, at the end of a gallery 136 ft. long, has been loaded in 30 minutes. The powder was passed up the gallery by hand in sandbags, and emptied into a box of the required size.

Whatever method of firing (see below) is employed, the officer who loads the mine must be careful to see that it is so arranged as to make firing certain, and that the leads passing out of the gallery are not liable to damage in the process of tamping.

Tamping.—This operation consists in filling up the head of the gallery solidly, for such a distance that there shall be no possibility of the charge wasting its force along the gallery. The distance depends on the charge and on the solidity of the tamping. For a common mine it should extend to about 3/2 L.L.R. from the charge, when the tamping is of earth in sandbags; for a 3-lined crater, to about 2 L.L.R. Tamping can be improved by jamming pieces of timber across the shaft or gallery among the other filling.

Firing.—This may be done electrically, or by means of safety or instantaneous fuze or powder hose.

Electric firing is the safest and best, and allows of the charge being exploded at any given moment. For this purpose electric fuzes (for powder) or electric detonators (for guncotton or other high explosive) are employed. The current that fires them is passed through copper wire leads.

The safety fuze used in the British service burns at the rate of about 3 ft. a minute. Instantaneous fuze burns at the rate of a mile a minute. Both can be fired under water. They are often used in conjunction, a considerable length of instantaneous fuze, leading from the charge, being connected to a short length of safety fuze.

Powder hose, an old-time expedient, can be extemporized by making a tube of strong linen, say 1 in. in diameter, and filling it with powder. It burns at the rate of 10 to 20 ft. per second.

Explosives.—The old-fashioned gunpowder of the grained black variety is still the best for most kinds of military mines. Pebble and prism powders do not give as good results, presumably because their action is so slow that some of the gases of explosion can escape through the pores of the earth. High explosives, with their quick shattering and rending effect, are little more effective than gunpowder in actually moving large quantities of earth. Most of them give off much more poisonous fumes than gunpowder. Some recent high explosives, however, have been specially designed to be comparatively innocuous in this respect.

Some formulae have been given above for the calculation of charges. It will, however, simplify matters for the Effects of mines. reader to record some actual instances of charges fired both in peace and war.

In the matter of scientific experiment we find Vauban as usual leading the way, and the following results among others were obtained by him at Tournay in 1686 and 1689: A charge of 162 ℔ placed 13 ft. below the surface produced a crater of 13 ft. radius (a two-lined crater, or “common mine”). Galleries were destroyed at distances equal to the L.L.R. in both horizontal and vertical directions. Double the charge, placed at double the depth, i.e. 324 ℔ with an L.L.R. of 27 ft. made no crater, but like the first destroyed galleries below it and on each side at distances equal to the L.L.R. A charge of 3828 ℔ with L.L.R. of 37 ft. made a two-lined crater and destroyed a gallery distant 61 ft. horizontally.

Bernard Forest de Belidor, a French engineer, made many experiments at La Fère about 1732, and 20 years later, as a general officer and inspector of miners, continued them on a larger scale. His experiments were directed towards destroying an enemy’s galleries at greater distances than had hitherto been supposed possible, by means of very large charges (in proportion to the L.L.R.) which he called “globes of compression.” In one of them a charge of 4320 ℔ of powder placed only 15 ft. 9 in. below the surface damaged or “compressed” a gallery distant 65 ft. horizontally. The radius of the crater was 34 ft. 8 in.

At Frederick the Great’s siege of Schweidnitz in 1762 some very large charges were exploded. One of them, of 5400 ℔ with an L.L.R. of 16 ft. 3 in., made a crater of 42 ft. 3 in. radius. Readers of Carlyle’s Frederick the Great may recall his description of the contest of the rival engineers on this occasion.

At Graudenz in 1862 (experiments) a charge of 1031 ℔ of powder placed 10 ft. deep, untamped, in a vertical shaft, made a crater of 15 ft. 6 in. radius. A charge of 412 ℔ of guncotton, calculated as being equivalent to the above charge of powder and placed under the same conditions, made a crater of 14 ft. radius. The absence of tamping in both cases of course placed the gunpowder at a disadvantage.

Perhaps the most interesting mine ever fired was that at the siege of Petersburg in the American Civil War, in June 1864. The circumstances were all abnormal, and the untechnical account of it in Battles and Leaders of the Civil War (vol. The Petersburg Mine, 1864. iv.) is well worth perusal. No mining tools or materials and no military miners were available; and no one had any confidence in the success of the attempt except its originator, Lieut.-Colonel Pleasants, a mining engineer by profession, his regiment which was recruited from a mining population, and General Burnside the corps commander. The opposing entrenchments were 130 yds. apart. The mine gallery was started behind the Federal lines and driven a distance of 510 ft. till it came under a field redoubt in the Confederate lines. There two branches were made right and left, each about 38 ft. long, and in them eight mines aggregating 8000 ℔ of powder were placed. The first attempt to fire them failed, and an officer and a sergeant volunteered to enter the gallery to seek the cause of the failure. A defective splice in two lengths of fuze was thus discovered and repaired. At the second attempt all the mines were fired simultaneously with success, and made a gigantic crater 170 ft. long by 60 ft. wide and 30 ft. deep. The occupants of the redoubt, at least several hundred men (they have been stated at 1000), were blown up and mostly killed. The assault which followed, however, failed completely, for want of organization. The infantry was drawn up in readiness to advance, but no outlets had been provided from the parallel, and this and other causes delayed the occupation of the crater and gave the defending artillery a moment’s respite. Thus the assailants gained the crater but could not advance beyond it in face of the defenders’ fire, nor could they establish themselves within it, on its steep clay sides, for want of entrenching tools. A good many troops were sent forwards in support, but being in many cases of inferior quality, they could not be induced to go forward, and huddled in disorder in the already overcrowded crater. Over 1000 of these were captured when the Confederates retook the crater by a counter-attack and the total loss of the Federals in the attack was nearly 4000.

The wars of the last generation have done little or nothing to advance the science of military mining, but a good deal has been done in peace to improve the means. Electric lighting and electric firing of mines will be a great help; modern drilling machines may be used to go through rock; ventilating arrangements are much improved; and the use of bored mines is sure to have great developments. The Russo-Japanese War taught nothing new in mine-warfare, or as to the effects of mines, but the siege of Port Arthur had this moral among others; just as in future, in the frontal attack of positions, trench must oppose trench, so in fortress warfare mines will be more necessary than ever. It appears that they will be essential to destroy both the ditch-flanking arrangements of forts and the escarp or other permanent obstacle beyond the ditch.

V. Field Fortification

Field Fortifications, now more often spoken of as field defences, are those which are constructed at short notice, with the means locally available, usually when the enemy is near at hand. Subject to the question of time, a very high degree of strength can be given to them, if the military situation makes it worth while to expend sufficient labour. A century or more ago, the dividing line between permanent and field fortification was very rigidly drawn, since in those days a high masonry escarp surmounted by a rampart was essential to a permanent fortress, and these could naturally not be extemporized. Works without masonry, in other ways made as strong as possible with deep ditches and heavy timbers,—such as would require about six weeks for their construction—were known as semi-permanent, and were used for the defence of places which acquired strategic importance in the course of a war, but were not immediately threatened. The term field fortification was reserved for works constructed of lighter materials, with parapets and ditches of only moderate development. Redoubts of this class required a fortnight at most for their construction.

In modern fortification if cupolas and deep revetted ditches were essential to permanent defences, the dividing line would be equally clear. But as has been shown, this is not universally admitted, and where the resources exist, the use of our present 717 means of construction, such as steel joists, railway rails, reinforced concrete and wire, in conjunction with the defensive power of modern firearms, makes it possible to extemporize in a very short time works having much of the resisting power of a permanent fortress. Further, such works can be expanded from the smallest beginnings; and, if the site is not too exposed, in the presence of the enemy.

Field fortification offers, as regards the actual constructions, a very limited scope to the engineer; and a little consideration will show that its defensive possibilities were not greatly affected by the change from machine-thrown projectiles to those fired by rude smooth-bore guns. There is therefore nothing in the history of this branch of the subject that is worth tracing, from the earliest ages to about the end of the 18th century. One or two points may be noticed. The use of obstacles is probably one of the earliest measures of defence. Long before missile weapons had acquired such an importance as to make it worth while to seek shelter from them, it would obviously have been found desirable to have some means of checking the onrush of an enemy physically or numerically superior. Hence the use by savage tribes, to this day, of pits, pointed stakes hidden in the grass, entanglements and similar obstacles. In this direction the ages have made no change, and the most highly civilized nations still use the same obstacles on occasion.

Another use of field defences common to all ages is the protection of camps at night, where small forces are operating against an enemy more numerous but inferior in arms and discipline. In daylight such an enemy is not feared, but at night his numbers might be dangerous. Hence the Roman practice of making each foot-soldier carry a couple of stakes for palisades; and the simple defence of a thorn zariba used by the British for their camps in the Sudan.

Palisades and trenches, abatis and sharpened stakes have always been used. Except wire, there is practically no new material. As to methods, the laagers of the Boers are preceded by the wagon-forts of the Hussites, and those no doubt by similar arrangements of British or Assyrian war chariots; and so in almost every direction it will be found that the expedient of to-day has had its forerunners in those of the countless yesterdays. The only really marked change in the arrangements of field defences has been caused not by gunpowder but by quick-firing rifled weapons. For that reason it is worth while to consider briefly what were the principles of field fortification at the end of the 18th century. That period has been chosen because it gives us the result of a couple of centuries of constant fighting between disciplined troops with fairly effective firearms. The field defences of the 19th century are transitional in character. Based mainly on the old methods, they show only faint attempts at adaptation to new conditions, and it was not till quite the end of the century that the methods now accepted began to take shape.

The essential elements of fieldworks up to the time of the Peninsular War were command and obstacle; now they are protection and concealment.

The command and obstacle were as necessary in the days of smooth-bore muskets and guns as in those of javelins and arrows. When the enemy could get close up to a work without serious loss, and attack in close order, Old type of field defences. the defenders needed a really good obstacle in front of them. Moreover, since they could not rely on their fire alone to repulse the attack, they needed a two-deep line, with reserves close at hand, to meet it with the “arme blanche.” For this purpose a parapet 7 or 8 ft. high, with a steep slope, perhaps palisaded, up which the attackers must climb after passing the obstacle, was excellent. The defenders after firing their last volley could use their bayonets from the top of the parapet with the advantage of position. The high parapet had also the advantage that the attackers could not tell what was going on inside the redoubt, and the defenders were sheltered from their fire as well from view until the last moment.

The strength of a fortified line in the 18th century depended principally on its redoubts. Lines of shelter trenches had little power of defence at the time, unless they held practically as many men as would have sufficed to fight in the open. Obstacles on the other hand had a greater value, against the inelastic tactics of the time, than they have now. A good position therefore was one which offered good fire-positions for redoubts and plenty of facilities for creating obstacles. Strong redoubts which could resist determined assaults; good obstacles in the intervals, guns in the redoubts to sweep the intervals, and troops in formed bodies kept in reserve for counter-strokes—these were the essentials in the days of the smooth-bore.

The redoubts were liable to a heavy cannonade by field-guns before the attack. To withstand this, the parapets had to be made of a suitable thickness—from 4 or 5 ft. upwards—according to the time available, the resisting nature of the soil, and the severity of the bombardment expected.

The whole of the earth for the parapet was as a rule obtained from the ditch, in order to make as much as possible of this obstacle. The garrison in all parts of the interior of the redoubt were to be sheltered, if possible, from the enemy’s fire, and with this object great pains were bestowed on the principle of “defilade.” The object of defilade, which was a great fetish in theoretical works, was so to arrange the height of the parapet with reference to the terreplein of a work that a straight line (not, be it observed, the trajectory of the projectiles) passing from the muzzle of a musket or gun on the most commanding point of the enemy’s position, over the crest of the parapet, should just clear the head of a defender standing in any part of the work. This problem of defilade became quite out of date after the development of time shrapnel, but was nevertheless taught with great rigour till within the last twenty years.

The sectional area of the ditch was calculated so that with an addition of about 10% for expansion it would equal that of the parapet. If a wider and deeper ditch was considered necessary, the surplus earth could be used to form a glacis.

The interior of the redoubt had to afford sufficient space to allow the garrison to sleep in it, which was sometimes a matter of some difficulty if a small irregularly shaped work had to contain a strong garrison. Consideration of the plan and sections of these works will show that the banquette for infantry with its slopes, and the gun platforms, took off a good deal from the interior space within the crest-line. Guns were usually placed at the salients, where they could get the widest field of fire. They were sometimes placed on the ground level, firing through embrasures in the parapet, and sometimes on platforms so as to fire over the parapet (en barbette).

As in permanent fortification, immense pains were taken to elaborate theoretically the traces of works. A distinction was made between forts and redoubts, the former being those which were arranged to flank their own ditches, while the redoubts did not. Redoubts again were classed as “closed,” those which had an equally strong defence all round; and “half-closed,” those which had only a slight parapet or timber stockade for the gorge or rear faces. Open works (those which had no gorge defence) were named according to their trace, as redans and lunettes. A redan is a work with two faces making a salient angle. It was frequently used in connexion with straight lines of trench or breastwork. A lunette is a work with two faces, usually forming an obtuse angle, and two flanks.

The forts described in the text-books, as might be expected, were designed with great ingenuity, with bastioned or demi-bastioned fronts, star traces, and so forth, and in the same books intricate calculations were entered into to balance the remblai and déblai, that is, the amount of earth in the parapets with that excavated from the ditches. In practice such niceties of course disappeared, though occasionally when the ground allowed of it star forts and bastioned fronts were employed.

On irregular ground the first necessity was to fit the redoubt to the ground on which it stood, so as to sweep the whole of the foreground, and this was generally a sufficiently difficult matter without adding the complications of flanking defences. Sir John Jones, speaking of the traces of the several works in the Torres Vedras lines, says:—

718

“The redoubts were made of every capacity, from that of fig. 74 a, limited by want of space on the ground it occupied to 50 men and two pieces of artillery, to that of fig. 74 b, for 500 men and six pieces of artillery, the importance of the object to be Torres Vedras. attained being the only guide in forming the dimensions. Many of the redoubts first thrown up, even some of the smallest, were shaped like stars, under the idea of procuring a flank defence for the ditches; but this construction was latterly rejected, it being found to cut up the interior space, and to be almost fallacious with respect to flank defence, the breadth of the exterior slopes being in some cases equal to the whole length of the flanks so obtained. Even when, from the greater size of the work, some flanking fire was thus gained, the angle formed by the faces was generally so obtuse that it demanded more coolness in the defenders than ought reasonably to be expected to aim along the ditch of the opposite face: and further, this construction prevented the fire of the work being more powerful in front than in rear.

Fig. 74.—Torres Vedras Works.

In order to decide on the proper trace of a work, it is necessary to consider whether its object be to prevent an enemy establishing himself on the ground on which it is to be placed, or whether it be to insure a heavy fire of artillery on some other point in its vicinity. In the first case every consideration should be sacrificed to that of adding to its powers of self-defence by flanks or other expedients. In the second, its powers of resistance are secondary to the establishment of a powerful offensive fire and its trace cannot be too simple. Latterly, the shape of the redoubts was invariably that most fitted to the ground, or such as best parried the enfilade fire or musketry plunge of neighbouring heights, care being taken to present the front of fire deemed necessary towards the pass, or other object to be guarded; and such will generally be found the best rule of proceeding.

This recommendation, however, is not intended to apply to isolated works of large dimensions, and more particularly to those considered the key of any position. No labour or expense should be spared to render such works capable of resisting the most furious assaults, either by breaking the parapet into flanks, or forming a flank defence in the ditch; for the experience gained in the Peninsula shows that an unflanked work of even more than an ordinary field profile, if skilfully and determinedly assaulted, will generally be carried.... Nor does the serious evil of curtailing the interior space, which renders breaks in the outline so objectionable in small works, apply to works of large dimensions.... Under this view the great work on Monte Agraça (fig. 75) must be considered as very defective, the flank defence being confined to an occasional break of a few feet in the trace, caused by a change of direction in the contour of the height, whilst the interior space is more than doubly sufficient for the number of its allotted garrison to encamp.

Fig. 75.—Monte Agraça, Torres Vedras.

Interior and other Defences.—This work, however, had some of its salient points ... cut off by earthen lines of parapet, steeply revetted externally, and so traced as to serve for traverses to the interior. It had also three or four small enclosed posts formed within it; and the work at Torres Vedras (fig. 76) had each of its salient points formed into an independent post. These interior defences and retrenchments were intended to guard against a general panic amongst the garrison, which would necessarily be composed in part of indifferent troops, and also to prevent the loss of the work by the entry of the assailants at any weak or ill-defended point. Such interior lines to rally on are absolutely essential to the security of a large field-work. They serve as substitutes for a blockhouse or tower, placed in the interior of all well-constructed permanent earthen works, and merit far more attention than they generally receive.

Fig. 76.—Torres Vedras Works.

The small circular windmills of stone, which were frequently found occupying salient knolls ... readily converted into admirable interior posts of that nature. The profile of the several works varied on every face and flank, according to its liability to be attacked or cannonaded; the only general rule enforced being that all ditches should be at least 15 ft. wide at top and 10 ft. in depth, and the crest of the parapet have at least 5 ft. command over the crest of the counterscarp. No parapet exceeded 10 ft. in thickness, unless exposed to be severely cannonaded, and few more than 6 or 8 ft.; and some, on high knolls, where artillery could not by any possibility be brought against them, were made of stone or rubble less than 2 ft. in thickness, to gain more interior space, and allow full liberty for the use of the defenders’ bayonets.”

Fig. 77 gives two typical sections of these works.

Fig. 77.

The works of Torres Vedras have been chosen for illustration because they offer very good historical examples, and also because of the value of the critical remarks of Sir John Jones, who as a captain was the engineer in charge of their construction. At the same time it must be remembered that they differ from ordinary field-works in having an unusual degree of strength, plenty of time and civilian labour having been available for their construction. In this respect they approximate more to semi-permanent works, the main reason why they did not receive under the circumstances a greater development of ditch and parapet being that in addition to the large number of works required, much labour was expended in abatis, inundations, scarping hill-sides and constructing roads.

Some further remarks of Sir John on the situations of the works are very instructive:—

“Many of the redoubts were placed on very elevated situations on the summit of steep hills, which gave them a most imposing 719 appearance; but it was in reality a defect ... for the fire of their artillery on the object to be guarded became so plunging as to lose half its powers; the musketry could not be made to scour the face of the hill sufficiently; and during the night both arms became of most uncertain effect.

“The domineering situation of the redoubts, however, gave confidence to the young troops which composed their garrisons, protected them from a cannonade, and screened their interior from musketry, unless fired at a high angle, and consequently at random. These considerations perhaps justify the unusually elevated sites selected for most of the redoubts on the lines, though they cannot induce an approval of them as a general measure.”

The chief principle of the period was thus that the redoubts were the most important features of lines of defence, and that they combined physical obstacle and protection with good musketry and artillery positions. The value of concealment was not ignored, but it was as a rule subordinated to other considerations.

The principles of this time remained unaltered until after the Crimean War. In the American Civil War the power of the rifle began to assert itself, and it was found that a simple breastwork defended by a double rank of men could 19th century. protect itself by its fire against an ordinary assault. This power of the rifle gave greatly enhanced importance to any defences that could be hastily extemporized behind walls, hedges or any natural cover. About the period of the Franco-German War other considerations came in. The increased velocity of artillery projectiles reduced in some ways their destructive effects against earth parapets, because the shell had an increasing tendency to deflect upwards on striking a bank of loose earth. Also the use of shrapnel made it impossible for troops to find cover on the terreplein of a work some distance behind the parapet.

These considerations, however, were not fully realized at that time. The reason was partly a want of touch between the engineers and the non-technical branches of most armies, and partly that original writers from the Napoleonic wars to the present day have been more occupied with the primary question of the value of field defences as a matter of tactics than with their details considered from the standpoint of fortification.

There was always an influential school of writers who declaimed against all defences, as being injurious to the offensive spirit so essential to success. Those writers who treated of the arrangements of defences devoted themselves to theoretical details of trace quite after the old style; discussing the size and shape of typical redoubts, their distance apart and relation to lines of trenches, &c. The profiles—the thick parapet with command of 7 ft. or more, the deep ditch, and the inadequate cover behind the parapet—remained as they had been for a century.

The American Civil War showed the power of rifles behind slight defences. Plevna in 1877 taught a further lesson. It proved the great resisting power of extemporized lines; but more than that, we begin to find new arrangements for protection against shell fire (see plans and sections in Greene’s The Russian Army and its Campaign in Turkey). The trace of the works and the sections of parapet and ditch suggest Torres Vedras; but a multiplication of interior traverses and splinter-proof shelters show the necessity for a different class of protection. The parapet was designed according to the old type, for want of a better; the traverses and shelters were added later, to meet the necessities of the case. The Turks also used two or three tiers of musketry fire, as for instance one from the crest of the glacis, one from the parapet, and one from a traverse in rear of it. This, however, is a development which will not be necessary in future, thanks to magazine rifles.

From 1877 to 1899 the efficiency of rifles and guns rapidly increased, and certain new principles, causing the field defences of the present day to differ radically from those of the 18th century, remained to be developed. These Principles of modern field defences. may be considered under the following heads: the nature of protection required, the diminished need of obstacle, and the adaptation of works to ground.

The principle that thickness of parapet is no longer required, to resist artillery fire, was first laid down at Chatham in 1896. The distance at which guns now engage makes direct hits on parapets comparatively rare. Further, a shell striking near the crest of a parapet may perhaps kill one man if he is in the way, and displace a bushel of earth. That is nothing. It is the contents of the shell, whether shrapnel or explosive, that is the source of danger and not the shell itself. Thus the enemy’s object is to burst his common shell immediately behind the parapet, or his shrapnel a short distance in front of it, in order to get searching effect. It follows that a parapet is thick enough if it suffices to stop rifle bullets, since the same thickness will a fortiori keep out shrapnel bullets or splinters of shell. For this purpose 3 ft. is enough.

Real protection is gained by a trench close in rear of the parapet, deep enough to give shelter from high angle shrapnel, and narrow enough to minimize the chance of a common shell dropping into it. This protection is increased by frequent traverses across the trench.

The most essential point of all is concealment. In gaining this we say good-bye finally to the old type of work. Protection is now given by the trench rather than the parapet; command and the ditch-obstacle (which furnished the earth for the high parapet) are alike unnecessary. Concealment can therefore be studied by keeping the parapet down to the lowest level above the surface from which the foreground can be seen. This may be 18 in. or less.

The need of obstacle, in daylight and when the defenders are not abnormally few, has practically disappeared. For night work, or when the assailant is so strong as to be able to force home his attack in face of protected rifle fire, what is needed is not a deep ditch immediately in front of the parapet, difficult to climb, but also difficult to flank, but an obstacle that will detain him under fire at short range. It may be an entanglement, an abatis, an inundation: anything that will check the rush and make him move slowly.

In the adaptation of works to ground, the governing factor is the power of the rifle in frontal defence. We have seen that in Peninsular times great reliance was placed on the flanking defence of lines by guns in redoubts. Infantry extended behind a simple line of trench could not resist a strong attack without such support. Now, however, infantry behind a slight trench, with a good field of fire should be able to defend themselves against any infantry attack.

This being so, the enemy’s artillery seeks to locate the trenches and to cover them with a steady hail of shells, so as to force the defenders to keep down under cover. If they can succeed in doing this, it is possible for the attacking infantry to advance, and the artillery fire is kept up until the last moment, so that the attack may have the narrowest possible space to cover after the defenders have manned their parapets and opened fire. Fig. 78 shows the action of various natures of projectiles.

From Mil. Engineering, by permission of the Controller of H.M. Stationery Office.
Fig. 78.—Effect of Projectiles.

We need not here discuss the rôle of the defenders’ artillery in replying to that of the enemy and playing on the attack; nor for the moment consider how far the defence of the trenches while under artillery fire can be made easier by overhead cover. The main question is—what is, in view of the nature of the attack, 720 the best disposition of lines of trench; and do they require the addition of redoubts?

The most important point, with the object of protection, is that the trenches must not be conspicuous; this is the best defence against artillery. With the object of resistance by their own fire they must have a good view, or, as it is generally described, no dead ground in front of them. For this purpose 300 or 400 yds. may be enough if the ground is even and affords no cover.

This necessity for invisibility, together with the shallowness of the zone that suffices for producing a decisive fire effect, has of late years very much affected the choice of ground for a line of trenches.

For a defensive position on high ground, it was usually laid down until the South African War that a line of trenches should be on the “military crest” (Fr. crête militaire), i.e. the highest point on the hill from which the whole of the slopes in Siting of trenches. front can be seen. Thus in the three sections of ground shown in fig. 79 it would be at a, b and c respectively. The simplicity of this prescription made it attractive and it came to be rather abused in the text-books. There were, even before the improvements in artillery, objections to it, because on most slopes the military crest would be found at very different elevations on different parts of the line, so that by a strict adherence to the rule some of the trenches would be placed near the top of the hill, and some in dangerous isolation near the bottom. Moreover a rounded hill has no military crest.

Fig. 79.

Further, we have to consider nowadays not only the position of the fire-trenches, but those of supports, reserves and artillery, and the whole question is extremely difficult.

For instance, considering the sections alone, as if they did not vary along the line, the positions at a and b, fig. 79, are bad because they are on the sky-line and therefore a good mark for artillery. That at b is especially bad because the slope in front is so steep that the defenders would have to expose themselves very much to fire down it, and the artillery fire against them can be kept up until the very last moment. The position c has the advantage of not being on the sky-line, but the position of the supports in rear is exposed.

Fig. 80.
Fig. 81.
Fig. 82.
Fig. 83.

Such a position as that at d, fig. 80, is good, but protected or concealed communications must be made for the supports coming from e over the brow of the hill.

Another possible position for the infantry line is at f, fig. 81, with the guns on the high ground behind. They might easily be quite concealed from the enemy’s artillery. The drawback is that no retirement up the exposed slope would be possible for them, except at night. The fire from f will be grazing, which will be a great advantage as compared with the plunging fire that would be obtained from a position up the hill.

It is idle, however, to give more than the most cursory consideration to sections of imaginary positions. It is only by actual practice on the ground that skill can be attained in laying out positions, and only a trained soldier with a good eye can succeed in it. Briefly, the advantages of view and position given by high ground must be paid for in some degree by exposure to the enemy’s artillery; and at least as much consideration—possibly as much labour—must be given to communications with the fire-trenches as to the trenches themselves. Irregular ground simplifies the question of concealment but also gives cover to the enemy’s approach. The lie of the ground will itself dictate the position of the trenches, subject to the predispositions of the responsible officer. On flat featureless ground the general trace of the trenches should be irregular. This makes a more difficult target for artillery, and affords a certain amount of cross and flanking fire, which is a very great advantage. Great care should, however, be taken not to expose the trenches to oblique or enfilade fire; or at least to protect them, if so exposed, by traversing.

Concealment of trenches is generally attempted by covering the freshly turned earth of the small parapet with sods, leafy branches or grass. In this connexion it should be remembered that after a day or two cut leaves and grass wither and Trenches. may become conspicuous against a green surface. Where the ground is so even that a good view of the foreground is possible from the surface level, the trench may be made without a parapet; but this entails great labour in removing and disposing of the excavated earth. A common device is to conceal the parapet as well as possible and to make a dummy trench some distance away to draw fire.

Besides the direct concealment of trenches, care must be taken that the site is not conspicuous. Thus a trench should not be placed along the meeting line of two different kinds of cultivation, or along the edge of a belt of heather on a hill-side, or where a difference of gradient is sharply defined; or where any conspicuous landmark would help the enemy’s artillery to get the range.

Trenches are broadly distinguished as “fire trenches” and “cover trenches,” according as they are for the firing line or supporting troops. The following simple types are taken from the 1908 edition of Military Engineering (part 1): “Field Defences.”

Fig. 82 is the most common form of fire trench, in which labour is saved by equalizing trench and parapet. This would take 1½ to 2 hours in ordinary soil. Fig. 83 shows the same trench improved by 2 or 3 hours’ more work. Fig. 84 shows a fire trench without parapet, with cover trench and communication.

From Mil. Engineering: Field Defences (1908), by permission of the Controller H. M. Stationery Office.
Fig. 84.

The addition of a loophole of sandbags on the top for concealment (called head-cover), gives increased protection, but at the cost of greater prominence for the parapet (fig. 85). Overhead cover can only be provided in fire trenches by giving the parapet still greater height and it is not usually done. Portions of the trench not used for firing can, however, be given splinter-proof protection by putting over them branches or bundles, covered with a few inches of earth: or by boards, or sheets of corrugated iron if they can be had. A better plan when time permits is to provide cover trenches immediately behind and communicating with the fire trench.

From Mil. Engineering: Field Defences, by permission of the Controller H. M. Stationery Office.
Fig. 85.

The question of redoubts has been a vexed one for years; partly they were thought to be unnecessary in view of the resisting power of a line of trenches, but chiefly because the redoubt was always imagined as one of the older type, with a high Redoubts. conspicuous parapet. Of course a redoubt of such a nature would be readily identified and made untenable. But the idea of a redoubt does not necessarily imply command. Its object is that it shall be capable of all-round defence. There can be no doubt that as there is always a possibility of lines being pierced somewhere, it is desirable, unless the whole line is to be thrown into confusion and forced back, to have some point at which the defenders can maintain themselves. This is not possible unless at such points there is provision for defence towards both flanks and rear, that is to say, when there are redoubts, which can hold on after certain portions of the line have been lost and thereby can localize the enemy’s success and simplify 721 the action of supporting troops. In order that redoubts may exercise this function, all that is necessary is that their defenders should be able to see the ground for a furlong in front of them in every direction. Their parapets, therefore, need be in no way more conspicuous than those of the neighbouring fire trenches, and in that case there is no fear of their drawing special attention from the enemy’s artillery. Whatever theories may have been put forward en the subject, in practice they are constantly used, and in the Russo-Japanese War, where the experience of South Africa was already available, we find them in the fighting lines on both sides.

Fig. 86.

The modern type of field redoubt is a fire trench, no more conspicuous than the others, in any simple form adapted to the ground that will give effective all-round fire, such as a square with blunted angles. Enhanced strength may be given by deepening the trenches and improving the overhead cover; and special use may here be made of obstacles.

Fig. 87.

Within the redoubt cover may be provided for men in excess of those required to man the parapet, by means of cover trenches and field casemates. Fig. 86 gives the general idea of such a redoubt, and figs. 87, 88 the plan and section of the interior shelters. Such a work can easily be made quite invisible from a distance. It gives excellent cover against shrapnel, but would not be tenable against howitzer common shell, if the enemy did manage to bring an accurate fire to bear on it.

Fig. 88.

Fig. 89 shows the section of a parapet with two shelters behind it for a work with a high command of 5 or 6 ft. This work would require a concealed position, which can often be found a little in rear of the firing line.

From Mil. Engineering: Field Defences (1908), by permission of the Controller H.M. Stationery Office.
Fig. 89.

In the South African War a good deal of interest was excited by a type of trench used by the Boers. It was very narrow at the surface, giving only just room for a man to stand; but undercut or hollowed out below, so that he could sit down with very good Boer, Russian and Japanese types. cover. Such a section is only possible in very firm soil. Apart from this, the type is really only suited to rifle pits, as a trench proper should have room for officers and N.C.O’s to move along within it. The Boers showed great skill in concealing their trenches. One good point was that there was generally something making a background immediately behind the men’s heads, so that they did not stand out in relief when raised above the parapet.

From Russo-Japanese War: British Officers’ Reports, vol. ii., by permission of the Controller H.M. Stationery Office.
Figs. 90 and 91.

In the Russo-Japanese War the Russian trenches at the outset were of old-fashioned type and very conspicuous. Later on better types were evolved. Figs. 90 and 91 are a couple of sections from Port Arthur; the first borrowed from the Boers but wider at the top. The Japanese appear to have taken their type mainly from the latest British official books, but applied them with great skill to the ground studying especially invisibility. In their prepared positions they used large redoubts manned by several companies.

From Mil. Engineering: Field Defences, by permission of the Controller H. M. Stationery Office.
Fig. 92.—Gun-pit.

Cover for Guns.—Some degree of cover for guns, in addition to the shield, is always desirable. If the gun stands on the natural surface of the ground, the cover is called an epaulment. In that case a bank is thrown up in front of the gun, about 1 ft. high in the centre, and 3 ft. 6 in. high at the ends. On either side of the gun and close up to the bank is a small pit for the gunners. The rest of the earth for the epaulment is got from a trench in front. If the gun is sunk, the shelter is called a gun-pit.

In this case there is no bank immediately in front of the gun. Shelter can be got more quickly with a pit than an epaulment, but it is generally undesirable to break the surface of the ground.

722

The commonest forms of obstacle now used are abatis and Obstacles. wire entanglements. Fig. 93 shows a well-finished type of abatis. The branches are stripped and pointed, and the butts are buried and pegged firmly down. Wire entanglement may be added to this with advantage. An abatis should be protected from artillery fire, which is sometimes done by placing it in a shallow excavation with the earth thrown up in front of it.

From Mil. Engineering: Field Defences, by permission of the Controller H.M. Stationery Office.
Fig. 93.—Abatis.

Wire may be used as a high or low entanglement or as a fence or trip wire or concealed obstacle. The usual form of high wire entanglement consists of several rows of stout stakes 4 or 5 ft. long, driven firmly into the ground about 6 ft. apart, and connected horizontally and diagonally with barbed wire.

Fig. 94.—Crows’ Feet. Fig. 95.—Plan and section of Trous-de-loup.

Palisades are still used, and need no description. They were formerly often made bullet-proof, but this is no longer possible. Fraises are seldom heard of now, though they may appear occasionally in a modified form. They were much used in connexion with deep ditches, and are palisades placed so as to project horizontally from the escarp, or sloping forward in the bottom of the ditch. Military pits both deep and shallow (the latter, shown in fig. 95, called trous de loup) are not so much used as formerly, because the obstacle is hardly worth the labour expended on it. Both, however, were employed in the Russo-Japanese War. Crows’ feet, formerly much used as a defence against cavalry, are practically obsolete. They consisted of four iron spikes joined together at their bases in such a manner that however they were thrown down one point would always be pointing upwards (fig. 94). Chevaux-de-frise (q.v.) were formerly a much-used type of obstacle.

The best obstacle is that which can be made to fulfil a given object with the least expenditure of time and labour. From this point of view barbed wire is far the best. One of its greatest advantages is that it gives no cover whatever to the enemy.

Fougasses have always for convenience been classed as obstacles. A fougasse is a charge of powder buried at the bottom of a sloping pit. Over the powder is a wooden shield, 3 or 4 in. thick, and over the shield a quantity of stones are piled. The illustration, fig. 96, gives a clear idea of the arrangement. A fougasse of this form, charged with 80 ℔ of powder, will throw 5 tons of stones over a surface 160 yds. long by 120 wide. They may be fired by powder hose, fuze or electricity. Their actual effect is very often a matter of chance, but the moral effect is usually considerable.

Dams are most effective obstacles, when circumstances allow of their use. They are constructed by military engineers as small temporary dams would be in civil works.

A most important question, especially in connexion with obstacles, is that of lighting up the foreground at night. Portable electric searchlights are most valuable, especially for detecting the enemy’s movements at some distance; but their use Illumination. will naturally always be restricted. Star shells and parachute lights fired from guns are not of much use for the immediate foreground, and do not burn very long. They were formerly chiefly of use in siege works, to light up an enemy’s working parties. Germany has introduced lightballs fired from pistols, which will probably have a considerable future.

Various civilian forms of flare-light would be very useful to illuminate obstacles, but cannot well be carried in the field. Bonfires are very useful when material is available. They require careful treatment, e.g. they must be so arranged that they can be lighted instantaneously (they may be lighted automatically, by means of a trip wire and a fuze); they must give a bright light at once (this can be ensured with shavings or straw sprinkled with petroleum); they must be firmly built so that the enemy cannot destroy them easily; and if possible there should be a screen arranged behind them so that they may not light up the defence as well as the attack.

Blockhouses are familiar to the public from the part they played Blockhouses. in the South African War of 1899-1902. In the old-fashioned permanent fortification they were used as keeps in such positions as re-entering places of arms and built of masonry. Stone blockhouses have long been used in the Balkans for frontier outposts; they are sometimes built cruciform, so as to get some flanking defence. In the form of bullet-proof log-cabins they have played a great part in warfare between pioneer settlers and savages.

From Mil. Engineering, by permission of the Controller H.M. Stationery Office.
Fig. 96.—Fougasse.

In the 19th century blockhouses were usually designed to give partial protection against field artillery; the walls being built of two thicknesses of logs with earth between them, the roof flat and covered with 2 or 3 ft. of earth, and earth being piled against the walls up to the loopholes. Nowadays they are employed only in positions where it is not likely that artillery will be brought against them: but they may be made tenable for a while even under artillery fire if they are surrounded by a trench and parapet.

Blockhouses are especially useful for small posts protecting such points as railway bridges, which the enemy may attempt to destroy by cavalry raids. The essential feature is a bullet-proof loopholed wall, arranged for all-round fire, with enough interior space for the garrison to sleep in. The roof may be simply weatherproof. Some arrangement for storing water must be provided. Circular blockhouses were very popular in South Africa. They were made of sheets of corrugated iron fastened 6 in. apart on a wooden framework, the space between the sheets being filled with small stones. The loopholes were made of sheet-iron frames inserted in the walls. Fig. 97 shows a section of one of these blockhouses.

By permission of the Controller H.M. Stationery Office.
Fig. 97.—Blockhouse, South Africa, 1900-1902.

The defence of woods was formerly an important branch of field defences. Abatis and entanglements could readily be extemporized, trunks of trees made strong breastworks, and the wood concealed the numbers of the defenders. A wood was Woods. therefore generally considered a useful addition to a line of defence. It was customary to hold the front edge of the wood, the irregularities of the outline being utilized for frontal and flanking fire, while obstacles were disposed some 50 yds. in front. In a carefully prepared position, clearings would be made parallel to the front and some distance back from it, for support positions, and great attention was paid (in theory at least) to clearing communications, erections, signposts, &c., so that the defending troops might move freely in any desired direction.

Woods, however, had their inherent drawbacks. The ground is hard to dig, clearing involves great labour; and communication, at the best, is cramped. Nowadays a wood can hardly be considered a strong defensive element in a line. The front of it is an excellent ranging mark for artillery, and positions within the wood are not easily made, because of the difficulty of trenching, and the fact that no reasonable amount of timber will make a breastwork proof against the modern bullet. Once an enemy gets a footing within a wood, the position is more favourable to offensive than to defensive action. If a wood has to be occupied in a line of defence, it is probable that in most cases the rear edge or a line slightly behind it would be the best to fortify, though the front edge would no doubt be held by the fighting line at the outset.

The defence of villages is another question which has been much affected by recent improvements in artillery. Formerly villages were very important adjuncts to a line of defence, and strong points for a detached force to hold. There were Villages. indeed always drawbacks. The preparations for defence entailed 723 a good deal of labour, and the defending force was scattered in houses and enclosures, so that control and united action were difficult. But the value of the ready-made protection afforded by walls was so great—and sometimes even decisive—that villages were occupied as a matter of course. This is certainly now changed, but precisely to what extent it will be impossible to say, until after the next European war. A village under fire is not now an ideal defensive position. A single shrapnel penetrating the outer wall may kill all the occupants of a room; a single field-howitzer shell may practically ruin a house. At the same time, a house or line of houses may (without any preliminary labour at all) give very good protection against shell fire to troops behind them. Further, the value to the defence of the slightest cover, once the infantry attack has developed, is so great that the ruins of walls and houses occupied at the right moment may prove an impregnable stronghold. This class of fighting, however, does not properly come under the present heading. For the details of the defence of walls, houses, &c., see the official Mil. Engineering (1908).

Entrenching under Fire.—Progress in this direction has been delayed by the reluctance of military authorities to add a portable entrenching tool to the heavy burden already carried by the infantry soldier. Further delay has resulted from the attempts of enthusiastic inventors to produce a tool that shall weigh nothing, go easily in the pocket, and be available as a pick, shovel, saw, hand-axe or corkscrew. A tool that will serve more than one use is seldom satisfactory for any.

The object of entrenching under fire is to enable attacking infantry, when their advance is checked by the enemy’s fire, to maintain the ground they have won by extemporizing cover where none exists. The need of this was first felt in the American Extemporized cover. Civil War, and towards the close of it a small entrenching spade 22 in. long and weighing only 1½ ℔ was introduced by Brigadier-General H.W. Benham into the Army of the Potomac. Since that time a great number of patterns have been tried, including shovel, trowel and adze types. The most popular of these has been the Linnemann spade, which is used by most continental armies and by the Japanese. The Austrian form of this tool is a rectangular spade with straight handle. The length over all is a little less than 20 in. The blade is 8 in. long by 6 wide. One side of it has a saw edge, and the other a cutting edge. For carriage, the blade is enclosed in a leather case, which is strapped to the pack or the waist-belt. In the British army the Wallace combined pick and shovel was used for some time, but was eventually dropped. There was always great doubt whether the utility of a portable entrenching tool was such as to justify the inconvenience caused to the soldier in carrying it. But the experience of the Russo-Japanese War seems to have finally established the necessity of it, and also the fact that it must generally be used lying down. For this purpose and for convenience in carrying it on the person, a very light short-handled tool is required.

The soldier lying down cannot attempt to dig a trench, but can make a little hole by his side as he lies, and put the earth in front of his head. A method introduced by the Japanese is that at each check in the advance the front line should do this, and, as they go forward, the supporting lines in succession should improve the cover thus commenced.

There are few things that soldiers dislike more, in the way of training, than trenchwork. For men unused to it, it is tiring and tedious work, and it is difficult for them to realize its importance. At the same time it is a commonplace of General remarks. recent history that men who have been in action a few times develop a great affection for the shovel. The need of trenches grows with the growth of firearms, and the latest feature of modern tactics is the use of them in attack as well as in defence. The observation has often been made—with what truth as a general proposition we cannot here discuss—that modern battles tend more and more to resemble a siege. The weaker side, it is said, entrenches itself; the other bombards and attacks. After gaining as much ground as they can, the attacking troops wait for nightfall and entrench; perhaps making a further advance and entrenchment before dawn. In the last stage the attack might even be reduced to gaining ground by sapping. In open and featureless ground, where the rifle and gun have full play, the trench is to the modern soldier very much what the breast-plate was to the man-at-arms, an absolute essential.

The most important point in connexion with modern field fortification is the effect on both strategy and tactics of the increased resisting power of the defence. A small force well entrenched can check the frontal attack of a very much larger force, and while holding its position can make itself felt over a wider radius than ever before. This must needs have a marked effect on strategy, and it is quite possible to foresee such an ultimate triumph of field fortification as that one force should succeed in surrounding another stronger than itself, and by entrenching prevent the latter from breaking out and compel its surrender.

VI. Conclusion

In tracing the history of the science of fortification and in outlining the practice of our own time it has been necessary to dwell chiefly on the material means of defence and attack. The human element has had to be almost ignored. But here comes in the paradox, that the material means are after all the least important element of defence. Certainly it is inconceivable that the designer of a fortress should not try to make it as strong as is consistent with the object in view and the means at his disposal. And yet while engineers in all ages have sought eagerly for strength and refinements of strength, the fact remains that the best defences recorded in history owed little to the builder’s art. The splendid defence in 1667 of Candia, whose enceinte, of early Italian design, was already obsolete but whose capture cost the Turks 100,000 men; the three years defence of Ostend in 1601; the holding of Arcot by Clive, are instances that present themselves to the memory at once. The very weight of the odds against them sometimes calls out the best qualities of the defenders; and the man when at his best is worth many times more than the rampart behind which he fights. But it would be a poor dependence deliberately to make a place weak in order to evoke these qualities. One cannot be sure that the garrison will rise to the occasion, and the weakness of the place has very often been found an excuse for giving it up with little or no resistance.

Very much depends on the governor. Hence the French saying, “tant vaut l’homme, tant vaut la place.” Among modern men we think of Todleben (not governor, but the soul of the defence) at Sevastopol, Fenwick Williams at Kars, Denfert-Rochereau at Belfort, and Osman Pasha at Plevna. The sieges of the 16th and 17th centuries offer many instances in which the event turned absolutely on the personal qualities of the governor; in some cases distinguished by courage, skill and foresight, in others by incapacity, cowardice or treachery. The reader is referred to Carnot’s Défense des places fortes for a most interesting summary of such cases, one or two of which are quoted below.

Naarden was besieged by the prince of Orange in September 1673 and defended by Philippe de Procé, sieur Dupas. The duke of Luxemburg visited the place some hours before it was invested, and arranged with Dupas to The spirit of the defence. relieve him as soon as he had collected his cavalry. But the governor lost his head when he saw the enemy encamped round the place, and surrendered it before he had even lost the covered way. He was subsequently tried by a council of war and sentenced to be degraded before the troops and imprisoned for life. The reason the court gave for not condemning him to death was that they could find no regulation which condemned a man to loss of life for being a coward. (At that period the decapitation of a governor who was considered to have failed in his duty was not uncommon.) This man, however, was not wanting in physical courage. He was in prison at Grave when it was besieged a year later, obtained leave to serve as a volunteer in the defence, fought well and was killed.

A similar case occurred in the English Civil War. In 1645 the young governor of the royal post at Bletchingdon House was entertaining a party of ladies from Oxford, when Cromwell appeared and summoned him to surrender. The attacking force had no firearm more powerful than a carbine, but the governor, overawed by Cromwell’s personality, yielded. Charles I., who was usually merciful to his officers, caused this governor to be shot.

A defence of another kind was that of Quillebœuf in 1592. Henry IV. had occupied it and ordered it to be fortified. Before the works had been well begun, Mayenne sent 5000 men to retake it. Bellegarde undertook its defence, with 115 soldiers, 45 gentlemen and a few inhabitants. He had ammunition but not much provisions. With these forces and a line of defence a league in length, he sustained a siege, beat off an assault on the 17th day, and was relieved immediately afterwards. The relieving forces were astonished to find that he had been defending not a fortified town but a village, with a ditch which, in the places where it had been begun, measured no more than 4 ft. wide and deep.

At that period the business aspect of siege warfare already 724 alluded to had been recognized, but many commanders retained the old spirit of chivalry in their reluctance to say the “loth word.” The gallant Marshal d’Essé, who feared nothing but the idea of dying in his bed, was lying ill at his country house when he was sent for by the king. He was ordered to take command at Thérouanne, then threatened by Charles V., and made his farewell with these words, which remind us somewhat of Grenville: “Sire, je m’y en vais donc de bon et loyal cœur; mais j’ai ouï dire que la place est mal envitaillée, non pas seulement pourvue de palles, de tranches, ni de hottes pour remparer et remuer la terre; mais lors, quand entendrez que Thérouanne est prise, dites hardiment que d’Essé est guéri de sa jaunisse et mort.” And he made good his word, for he was killed at the breach by a shot from the arquebus of a Spanish soldier.

Sometimes the ardour of defence inspired the whole body of the inhabitants. Fine examples of this are the defences of Rochelle (1627) and Saint-Jean de Lône (1636), but these are too long to quote. We may, however, mention Livron, which is curious. In 1574 Henry III. sent one of his favourites, Saint Lary Bellegarde, against the Huguenots in the Dauphiné. Being entrusted with a good army, this gentleman hoped to achieve some distinction. He began by attacking the little town of Livron, which had no garrison and was defended only by the inhabitants. But he was repulsed in three assaults, and the women of the town conceived such a contempt for him that they came in crowds to empty their slops at the breach by way of insult. This annoyed him very much, and he ordered a fresh assault. The women alone sustained this one, repulsed it lightheartedly, and the siege was raised.

The history of siege warfare has more in it of human interest than any other branch of military history. It is full of the personal element, of the nobility of human endurance and of dramatic surprises. And more than any battles Arcot. in the open field, it shows the great results of the courage of men fighting at bay. Think of Clive at Arcot. With 4 officers, 120 Europeans and 200 sepoys, with two 18-pounders and 8 lighter guns, he held the fort against 150 Europeans and some 10,000 native troops. “The fort” (says Orme) “seemed little capable of sustaining the impending siege. Its extent was more than a mile in circumference. The walls were in many places ruinous; the rampart too narrow to admit the firing of artillery; the parapet low and slightly built; several of the towers were decayed, and none of them capable of receiving more than one piece of cannon; the ditch was in most places fordable, in others dry and in some choked up,” &c. These feeble ramparts were commanded almost everywhere by the enemy’s musketry from the houses of the city outside the fort, so that the defenders were hardly able to show themselves without being hit, and much loss was suffered in this way. Yet with his tiny garrison, which timbered about one man for every 7 yds. of the enclosure, Clive sustained a siege of 50 days, ending with a really severe assault on two large open breaches, which was repulsed, and after which the enemy hastily decamped.

Such feats as this make arguments about successive lines of defence and the necessity of keeps seem very barren. History, as far as the writer knows, shows no instances where successive lines have been held with such brilliant results.

Clive’s defence of his breaches, which by all the then accepted rules of war were untenable, brings us to another point which has been already mentioned, namely, that a garrison might honourably make terms when there was an open breach in their main line of defence. This is a question upon which Carnot delivers himself very strongly in endeavouring to impress upon French officers the necessity of defence to the last moment. Speaking of Cormontaingne’s imaginary Journal of the Attack of a Fortress (which is carried up to the 35th day, and finishes by the words “It is now time to surrender”), he says with great scorn: “Crillon would have cried, ‘It is time to begin fighting.’ He would have said as at the siege of Quillebœuf, ‘Crillon is within, the enemy is without.’ Thus when Bayard was defending the shattered walls of Mézières, M. de Cormontaingne, if he had been there, would have said, ‘It is time to surrender.’ Thus when Guise was repairing the breaches of Metz under the redoubled fire of the enemy, M. de Cormontaingne, if he had been there, would have said, ‘It is time to surrender.’” Carnot of course allows that Cormontaingne was personally brave. His scorn is for the accepted principle, not for the man.

It is interesting to contrast with this passage some remarks by Sir John Jones, made in answer to Carnot’s book. He says in the notes to the second volume of the Journals of the Sieges in Spain: “When the breach shall be Resisting “to the last.” pushed properly forward, if the governor insists upon the ceremony of his last retrenchment being stormed, as by so doing he spills the blood of many brave men without a justifiable object, his life and the lives of the garrison should be made the forfeit. A system enforced by terror must be counteracted by still greater terror. Humanity towards an enemy in such a case is cruelty to one’s own troops.... The principle to be combated is not the obligation to resist behind the breach—for where there is a good retrenchment the bastion should be disputed equally with the counter-guard or the ravelin and can as safely be so—but the doctrine that surrender shall not take place when successful resistance becomes hopeless.”

Carnot’s word is “fight to the last.” Sir John Jones says the commander has no right to provoke further carnage when resistance is hopeless. The question of course is, When is resistance hopeless? Sir John Jones’s reputation leaves little doubt that if he had been commanding a fortress on British soil he would not have thought resistance hopeless as long as there was anything whatever left to defend. The reason why these two men of similar temper are found in opposition is quite simple. When Carnot wrote, the French army occupied most of the important fortresses of Europe, and it was to the interest of the emperor that if attacked they should be held to the last moment, in order to cause the enemy as much delay and loss as possible. Jones, on the other hand, was one of the engineers who were engaged in besieging those fortresses, and his arguments were prompted by sympathy for his own countrymen whose lives were sacrificed by the prolongation of such resistance.

A century has passed since Carnot and Jones wrote, and the ideas in which they had been educated were those of the pre-Napoleonic era. In the 18th century fortresses were many, good roads few, and campaigns for the most part leisurely. To the European nations of that time, inheritors of a perennial state of war, the idea of concentrating the national resources on a short and decisive campaign had not occurred. The “knock-out blow” had not been invented. All these conditions are now so changed that new standards must be and indeed have been set up, both for the defence of places and the general employment of fortification.

As regards the conduct of the defence, the massacre of a garrison as a penalty for holding out too long would meet with no sympathy in the present day. On the other hand, the issue of modern wars is worked out so rapidly that if a fortress is well defended, with the advantage of the present weapons, there is always a chance of holding out till the close of the war. If the place is worth holding, it should as a rule be held to the bitter end on the chance of a favourable turn in affairs; moreover, the maintenance of an important siege under modern conditions imposes a severe strain on the enemy and immobilizes a large number of his troops.

In concluding this article some elementary considerations in connexion with the use of permanent defences may be noticed, though the general question of strategic fortification is outside its scope. The objects of fortification differ, Permanent defences. as has been shown, from age to age. In former times a peaceful people exposed to the raids of piratical Norsemen might find their refuge tower essential; later, a robber-baron might look on his castle as so much capital invested; a wealthy medieval town might prove the value of its walls more than once in a generation; a country without a standing army might gain time for preparation by means of fortresses barring the roads across the frontier. But how does the question stand to-day among European countries which can mobilize 725 their full fighting strength at a few hours’ notice? It can only be answered when the circumstances of a particular country are examined.

If we assume such an impossible case as that of two nations of equal fighting strength and equal resources standing ready in arms to defend a common frontier, and that the theatre of war presents no difficulties on either side, The use and abuse of fortresses. then the use of permanent fortifications, merely as an adjunct to military strength, is wrong. Fortresses do not decide the issue of a campaign; they can only influence it. It is better, therefore, to put all the money the fortress would have cost, and all the man-power that its maintenance implies, into the increase and equipment of the active army. For the fate of the fortress must depend ultimately on the result of the operations of the active armies. Moreover, the very assumption that resources on both sides are equal means that the nation which has spent money on permanent fortifications will have the smaller active army, and therefore condemns itself beforehand to a defensive rôle.

This general negation is only useful as a corrective to the tendency to over-fortify, for such a case cannot occur. In practice there will always be occasion for some use of fortification. A mountain range may lend itself to an economical defence by a few men and some inexpensive barrier forts. A nation may have close to its frontier an important strategic centre, such as a railway junction, or a town of the first manufacturing importance, which must be protected. In such a case it may be necessary to guard against accidents by means of a fortress. Again, if one nation is admittedly slower in mobilization than the other, it may be desirable to guard one portion of the frontier by fortresses so as to force invasion into a district where concentration against it is easiest.

As for the defence of a capital, this cannot become necessary if it stands at a reasonable distance from the frontier until the active armies have arrived at some result. If the fighting strength of the country has been practically destroyed, it is not of much use to stand a siege in the capital. There can be but one end, and it is better, as business men say, to cut losses. If the fighting strength is not entirely destroyed and can be recruited within a reasonable time, say two or three months, then it appears that under modern conditions the capital might be held for that time by means of extemporized defences. The question is one that can only be decided by going into the circumstances of each particular case.

The case of a weak country with powerful and aggressive neighbours is in a different category. If she stands alone she will be eaten up in time, fortifications or no fortifications; but if she can reckon on assistance from outside, it may be worth while to expend most of the national resources on permanent defences.

These hypothetical cases have, however, no value, except as illustrations to the most elementary arguments. The actual problems that soldiers and statesmen have to consider are too complex to be dealt with in generalities, and no mere treatise can supply the place of knowledge, thought and practice.

Bibliography.—The more important works on the subject are: Dürer, Unterricht zur Befestigung (Nüremberg, 1527); Speckle, Architectur von Festungen (Strassburg, 1589); Fritach, L’Architecture mil. ou la f. nouvelle (Paris, 1637); Pagan, Les Fortif. (Paris, 1689); de Ville, Les Fortif. (Lyons, 1629); de Fer, Introduction à la fortification (Paris, 1723); B.F. de Belidor, Science des Ingénieurs, &c. (Paris, 1729); works of Coehoorn, Vauban, Montalembert, Cormontaingne; Mandar, De l’architecture des forteresses (Paris, 1801); Chasseloup-Laubat, Essais sur quelques parties de l’artil. et de la fortification (Milan, 1811); Carnot, Défense des places fortes (Paris, 1812); Jones, Journals of Sieges in Spain (3rd ed., London, 1846); T. Choumara, Mémoire sur la fortification (1847); A. von Zastrow, Geschichte der beständigen Befestigung (N.D., Fr. trans.); works of Sir C. Pasley; Noizet, Principes de fortif. (Paris, 1859); Dufour, De la fortif. permanente (Paris, 1850); E. Viollet le Duc, L’Architecture militaire au moyen âge (Paris, 1854); Cosseron de Villenoisy, Essai historique sur la fortification (Paris, 1869); works of Brialmont (q.v.); Delambre, La Fortification dans ses rapports avec la tactique et la stratégie (Paris, 1887); v. Sauer, Angriff und Verteidigung fester Plätze (Berlin, 1885); Schroeter, Die Festung in der heutigen Kriegführung (Berlin, 1898-1906); Baron E. v. Leithner, Die beständige Befestigung und der Festungskrieg (Vienna, 1894-1899); W. Stavenhagen, Grundriss der Befestigungslehre (Berlin, 1900-1909); Plessix and Legrand, Manuel complet de fortification (Paris, 1900, new edition 1909); Ritter v. Brunner, Die beständige Befestigung (Vienna, 1909), Die Feldbefestigung (Vienna, 1904); Rocchi, Traccia per lo studio della fortificazione permanente (Turin, 1902); Sir G.S. Clarke, Fortification (1907); V. Deguise, La Fortification permanente contemporaine (Brussels, 1908); Royal Military Academy, Text-book of Fortification, pt. ii. (London, 1893); British official Instruction in Military Engineering, pts. i., ii. and iv. (London, 1900-1908).

(L. J.)

FORTLAGE, KARL (1806-1881), German philosopher, was born at Osnabrück. After teaching in Heidelberg and Berlin, he became professor of philosophy at Jena (1846), a post which he held till his death. Originally a follower of Hegel, he turned to Fichte and Beneke (q.v.), with whose insistence on psychology as the basis of all philosophy he fully agreed. The fundamental idea of his psychology is impulse, which combines representation (which presupposes consciousness) and feeling (i.e. pleasure). Reason is the highest thing in nature, i.e. is divine in its nature, God is the absolute Ego and the empirical egos are his instruments.

Fortlage’s chief works are: Genetische Geschichte d. Philos. seit Kant (Leipzig, 1852); System d. Psych, als empirische Wissenschaft (2 vols., Leipzig, 1855); Darstellung und Kritik der Beweise für das Dasein Gottes (Heidelberg, 1840); Beiträge zur Psych. als Wissenschaft (Leipzig, 1875).


FORT LEE, a borough of Bergen county, New Jersey, U.S.A., in the N.E. part of the state, on the W. bank of the Hudson river, opposite the northern part of New York City. Pop. (1905) 3433; (1910) 4472. It is connected with the neighbouring towns and cities by electric railways, and by ferry with New York City, of which it is a residential suburb. The main part of the borough lies along the summit of the Palisades; north of Fort Lee is an Interstate Palisades Park. Early in the War of Independence the Americans erected here a fortification, first called Fort Constitution but later renamed Fort Lee, in honour of General Charles Lee. The name of the fort was subsequently applied to the village that grew up in its vicinity. From the 15th of September until the 20th of November 1776 Fort Lee was held by Gen. Nathanael Greene with a garrison of 3500 men, but the capture by the British of Fort Washington on the opposite bank of the river and the crossing of the Hudson by Lord Cornwallis with 5000 men made it necessary for Greene to abandon this post and join Washington in the famous “retreat across the Jerseys.” An attempt to recapture Fort Lee was made by General Anthony Wayne in 1780, but was unsuccessful. On the site of the fort a monument, designed by Carl E. Tefft and consisting of heroic figures of a Continental trooper and drummer boy, was erected in 1908. The borough of Fort Lee was incorporated in 1904.


FORT MADISON, a city and the county-seat of Lee county, Iowa, U.S.A., on the Mississippi river, in the S.E. corner of the state, and about 20 m. S.W. of Burlington. Pop. (1890) 7901; (1900) 9278, of whom 1025 were foreign-born; (1905) 8767; (1910) 8900. Fort Madison is served by the Atchison, Topeka & Santa Fé (which has repair shops here) and the Chicago, Burlington & Quincy railways. The city has various manufactures, including canned goods, chairs, paper and farm implements; the value of its factory product in 1905 was $2,378,892, an increase of 50.8% over that of 1900. Fort Madison is the seat of one of Iowa’s penitentiaries. A stockade fort was erected on the site of the city in 1808, but was burned in 1813. Permanently settled in 1833, Fort Madison was laid out as a town in 1836, and was chartered as a city in 1839.


FORTROSE (Gaelic for t’rois, “the wood on the promontory”), a royal and police burgh, and seaport of the county of Ross and Cromarty, Scotland. Pop. (1901) 1179. It is situated on the south-eastern coast of the peninsula of the Black Isle, 8 m. due N.N.E. of Inverness, 26¼ m. by rail. It is the terminus of the Black Isle branch of the Highland railway; there is communication by steamer with Inverness and also with Fort George, 2½ m. distant, by ferry from Chanonry Ness. Fortrose consists of the two towns of Rosemarkie and Chanonry, about 1 m. apart, which were united into a free burgh by James II. in 1455 and created a royal burgh in 1590. It is a place of considerable antiquity, a monastery having been established in the 6th century by St Moluag, a friend of Columba’s, and St Peter’s 726 church built in the 8th century. In 1124 David I. instituted the bishopric of Ross, with its seat here, and the town acquired some fame for its school of theology and law. The cathedral is believed to have been founded in 1330 by the countess of Ross (her canopied tomb, against the chancel wall, still exists) and finished in 1485 by Abbot Fraser, whose previous residence at Melrose is said to account for the Perpendicular features of his portion of the work. It was Early Decorated in style, cruciform in plan, and built of red sandstone, but all that is left are the south aisles of the nave and the chancel, with the chapter-house, a two-storeyed structure, standing apart near the north-eastern corner. The cathedral and bishop’s palace were destroyed by order of Cromwell, who used the stones for his great fort at Inverness. Another relic of the past survives in the bell of 1460. These ruins form the chief object of interest in the town, but other buildings include the academy and the Black Isle combination poorhouse. The town is an agricultural centre of some consequence, and the harbour is kept in repair. Rosemarkie, in the churchyard of which is an ancient Celtic cross, is much resorted to for sea-bathing, and there is a golf course in Chanonry Ness. The burgh belongs to the Inverness district group of parliamentary burghs.


FORT SCOTT, a city and the county-seat of Bourbon county, Kansas, U.S.A., on the Marmaton river, about 100 m. S. of Kansas City, Missouri. Pop. (1880) 5372; (1890) 11,946; (1900) 10,322, of whom 1205 were negroes; (1910 census) 10,463. It is the point of intersection of the Kansas City, Fort Scott & Memphis (St Louis & San Francisco system), the Missouri, Kansas & Texas, and the Missouri Pacific railways, and has in consequence a large traffic. The city is built on a rolling plain. Among its institutions are an Epworth house (1899), Mercy hospital (1889), the Goodlander home, and a Carnegie library. Near the city there is a national cemetery. Fort Scott is in the midst of the Kansas mineral fields, and its trade in bituminous coal is especially important. Building stones, cement rock, clays, oil and gas, lead and zinc are also found in the neighbourhood. An excellent white sulphur water is procured from artesian wells about 800 ft. deep, and there is a mineral-water bath house. The city is also a trading centre for a rich farming region, and is a horse and mule market of considerable importance. Among its manufactures are mattresses, syrup, bricks, pottery, cement and foundry products. In 1905 the total value of the city’s factory product was $1,349,026, being an increase of 89% since 1900. The city owns and operates its waterworks. The fort after which the city is named was established by the Federal government in 1842, at a time when the whole of eastern Kansas was still parcelled out among Indian tribes; it was abandoned in 1855. The town was platted in 1857, and Fort Scott was chartered as a city in 1860.


FORT SMITH, a city and the county-seat of Sebastian county, on the extreme W. border of Arkansas, U.S.A., lying about 440 ft. above sea-level, on the S. bank of the Arkansas river, at its junction with the Poteau, and at the point where the Arkansas breaks through the Boston mountains. Pop. (1890) 11,311; (1900) 11,587, of whom 2407 were of negro descent and 684 were foreign-born; (1910 census) 23,975. Transportation is afforded by the river and by six railways, the St Louis & San Francisco, the St Louis, Iron Mountain & Southern, the Arkansas Central, the Fort Smith & Western, the Midland Valley and the Kansas City Southern. A belt line round the business centre of the city facilitates freight transfers. Some of the business streets are unusually broad, and the streets in the residential district are well shaded. Fort Smith is the business centre of a fine agricultural country and of the Arkansas coal and natural gas region. It has extensive wholesale jobbing interests and a large miscellaneous trade, partly in its own manufactures, among which are cotton and timber products, chairs, mattresses and other furniture, wagons, brooms and bricks. In 1905 the total value of the factory product was $2,329,454, an increase of 66.2% since 1900. The public schools have a rich endowment: the proceeds of lands (about 200 acres) once belonging to the local military reservation, which—except the part occupied by a national cemetery—was given by Congress to the city in 1884. Near the centre of the city are a Catholic academy, convent and infirmary; and there is a Carnegie library. A United States army post was established here in 1817; the town was laid out in 1821; and the county was created in 1851. Fort Smith was incorporated as a town in 1842, and was chartered as a city in 1845. All transportation was by river and wagon until 1876, when the railway was completed from Little Rock. The military post, in earlier years the chief depôt for the western forts, was abandoned in 1871. During the Civil War Fort Smith was strongly in sympathy with the Confederacy. The fort was seized by state troops in April 1861, and was reoccupied by the Union forces in September 1863. There was considerable unrest due to border “bushwhacking” throughout the war, and several skirmishes took place here in 1864. The area of the city was more than doubled in 1905.


FORTUNA (Fortune), an Italian goddess of great antiquity, but apparently not native at Rome, where, according to universal Roman tradition, she was introduced by the king Servius Tullius as Fors Fortuna, and established in a temple on the Etruscan side of the Tiber outside the city, and also under other titles in other shrines. In Latium she had two famous places of worship, one at Praeneste, where there was an oracle of Fortuna primigenia (the first-born), frequented especially by women who, as we may suppose, desired to know the fortunes of their children or their own fortune in child-birth; the other at Antium, well known from Horace’s ode (i. 35). It is highly probable that Fortuna was never a deity of the abstract idea of chance, but represented the hopes and fears of men and especially of women at different stages of their life and experience; thus we find her worshipped as time went on under numerous cult-titles, such as muliebris, virilis, hujusce diei, equestris, redux, &c., which connected her supposed powers with individuals, groups of individuals, or particular occasions. Gradually she became more or less closely identified with the Gr. Τύχη, and was represented on coins, &c., with a cornucopia as the giver of prosperity, a rudder as the controller of destinies, and with a wheel, or standing on a ball, to indicate the uncertainty of fortune. In this semi-Greek form she came to be worshipped over the whole empire, and Pliny (N.H. ii. 22) declares that in his day she was invoked in all places and every hour. She even became identified with Isis, and as Panthea was supposed to combine the attributes of all other deities.

The best account of this difficult subject is to be found in Roscher’s Mythological Lexicon (s.v.); see also Wissowa, Religion und Kultus der Römer, p. 206 foll.

(W. W. F.*)

FORTUNATIANUS, ATILIUS, Latin grammarian, flourished in the 4th century A.D. He was the author of a treatise on metres, dedicated to one of his pupils, a youth of senatorial rank, who desired to be instructed in the Horatian metres. The manual opens with a discussion of the fundamental ideas of metre and the chief rules of prosody, and ends with a detailed analysis of the metres of Horace. The chief authorities used are Caesius Bassus and the Latin adaptation by Juba the grammarian of the Τέχνη of Heliodorus. Fortunatianus being a common name in the African provinces, it is probable that the author was a countryman of Juba, Terentianus Maurus and Victorinus.

Editions of the Ars in H. Keil, Grammatici Latini, vi., and separately by him (1885).


FORTUNATUS, the legendary hero of a popular European chap-book. He was a native, says the story, of Famagusta in Cyprus, and meeting the goddess of Fortune in a forest received from her a purse which was continually replenished as often as he drew from it. With this he wandered through many lands, and at Cairo was the guest of the sultan. Among the treasures which the sultan showed him was an old napless hat which had the power of transporting its wearer to any place he desired. Of this hat he feloniously possessed himself, and returned to Cyprus, where he led a luxurious life. On his death he left the 727 purse and the hat to his sons Ampedo and Andelosia; but they were jealous of each other, and by their recklessness and folly soon fell on evil days. The moral of the story is obvious: men should desire reason and wisdom before all the treasures of the world. In its full form the history of Fortunatus occupies in Karl Simrock’s Die deutschen Volksbücher, vol. iii., upwards of 158 pages. The scene is continually shifted—from Cyprus to Flanders, from Flanders to London, from London to France; and a large number of secondary characters appear. The style and allusions indicate a comparatively modern date for the authorship; but the nucleus of the legend can be traced back to a much earlier period. The stories of Jonathas and the three jewels in the Gesta Romanorum, of the emperor Frederick and the three precious stones in the Cento Novelle antiche, of the Mazin of Khorassan in the Thousand and one Nights, and the flying scaffold in the Bahar Danush, have all a certain similarity. The earliest known edition of the German text of Fortunatus appeared at Augsburg in 1509, and the modern German investigators are disposed to regard this as the original form. Innumerable versions occur in French, Italian, Dutch and English. The story was dramatized by Hans Sachs in 1553, and by Thomas Dekker in 1600; and the latter’s comedy appeared in a German translation in Englische Komödien und Tragödien, 1620. Ludwig Tieck has utilized the legend in his Phantasus, and Adelbert von Chamisso in his Peter Schlemihl; and Ludwig Uhland left an unfinished narrative poem entitled “Fortunatus and his Sons.”

See Dr Fr. W.V. Schmidt’s Fortunatus und seine Söhne, eine Zauber-Tragödie, von Thomas Decker, mit einem Anhang, &c. (Berlin, 1819); Joseph Johann Görres, Die deutschen Volksbücher (1807).


FORTUNATUS, VENANTIUS HONORIUS CLEMENTIANUS (530-609), bishop of Poitiers, and the chief Latin poet of his time, was born near Ceneda in Treviso in 530. He studied at Milan and Ravenna, with the special object of excelling as a rhetorician and poet, and in 565 he journeyed to France, where he was received with much favour at the court of Sigbert, king of Austrasia, whose marriage with Brunhild he celebrated in an epithalamium. After remaining a year or two at the court of Sigbert he travelled in various parts of France, visiting persons of distinction, and composing short pieces of poetry on any subject that occurred to him. At Poitiers he visited Queen Radegunda, who lived there in retirement, and she induced him to prolong his stay in the city indefinitely. Here he also enjoyed the friendship of the famous Gregory of Tours and other eminent ecclesiastics. He was elected bishop of Poitiers in 599, and died about 609. The later poems of Fortunatus were collected in 11 books, and consist of hymns (including the Vexilla regis prodeunt, Englished by J.M. Neale as “The royal banners forward go”), epitaphs, poetical epistles, and verses in honour of his patroness Radegunda and her sister Agnes, the abbess of a nunnery at Poitiers. He also wrote a large poem in 4 books in honour of St Martin, and several lives of the saints in prose. His prose is stiff and mechanical, but most of his poetry has an easy rhythmical flow.

An edition of the works of Fortunatus was published by C. Brower at Fulda in 1603 (2nd ed., Mainz, 1617). The edition of M.A. Luschi (Rome, 1785) was afterwards reprinted in Migne’s Patrologiae cursus completus, vol. lxxxviii. See the edition by Leo and Krusch (Berlin, 1881-1885). There are French lives by Nisard (1880) and Leroux (1885).


FORTUNE, ROBERT (1813-1880), Scottish botanist and traveller, was born at Kelloe in Berwickshire on the 16th of September 1813. He was employed in the botanical garden at Edinburgh, and afterwards in the Royal Horticultural Society’s garden at Chiswick, and upon the termination of the Chinese War in 1842 was sent out by the Society to collect plants in China. His travels resulted in the introduction to Europe of many beautiful flowers; but another journey, undertaken in 1848 on behalf of the East India Company, had much more important consequences, occasioning the successful introduction into India of the tea-plant. In subsequent journeys he visited Formosa and Japan, described the culture of the silkworm and the manufacture of rice paper, and introduced many trees, shrubs and flowers now generally cultivated in Europe. The incidents of his travels were related in a succession of interesting books. He died in London on the 13th of April 1880.


FORTUNY, MARIANO JOSE MARIA BERNARDO (1838-1874), Spanish painter, was born at Reus on the 11th of June 1838. His parents, who were in poor circumstances, sent him for education to the primary school of his native town, where he received some instruction in the rudiments of art. When he was twelve years old his parents died and he came under the care of his grandfather, who, though a joiner by trade, had made a collection of wax figures, with which he was travelling from town to town. In the working of this show the boy took an active part, modelling and painting many of the figures; and two years later, when he reached Barcelona, the cleverness of his handiwork made so much impression on some people in authority there that they induced the municipality to make him an allowance of forty-two francs monthly, so that he might be enabled to go through a systematic course of study. He entered the Academy of Barcelona and worked there for four years under Claudio Lorenzale, and in March 1857 he gained a scholarship that entitled him to complete his studies in Rome. Then followed a period of more than two years, during which he laboured steadily at copies of the old pictures to which he had access at Rome. To this period an end was put by the outbreak of the war between Spain and the emperor of Morocco, as Fortuny was sent by the authorities of Barcelona to paint the most striking incidents of the campaign. The expedition lasted for about six months only, but it made upon him an impression that was powerful enough to affect the whole course of his subsequent development, and to implant permanently in his mind a preference for the glitter and brilliancy of African colour. He returned to Spain in the summer of 1860, and was commissioned by the city of Barcelona to paint a large picture of the capture of the camps of Muley-el-Abbas and Muley-el-Hamed by the Spanish army. After making a large number of studies he went back to Rome, and began the composition on a canvas fifteen metres long; but though it occupied much of his time during the next few years, he never finished it. He busied himself instead with a wonderful series of pictures, mostly of no great size, in which he showed an astonishing command over vivacities of technique and modulations of colour. He visited Paris in 1868 and shortly afterwards married the daughter of Federico Madrazo, the director of the royal museum at Madrid. Another visit to Paris in 1870 was followed by a two years’ stay at Granada, but then he returned to Rome, where he died somewhat suddenly on the 21st of November 1874 from an attack of malarial fever, contracted while painting in the open air at Naples and Portici in the summer of 1874.

The work which Fortuny accomplished during his short life is distinguished by a superlative facility of execution and a marvellous cleverness in the arrangement of brilliant hues, but the qualities of his art are those that are attainable by a master of technical resource rather than by a deep thinker. His insight into subtleties of illumination was extraordinary, his dexterity was remarkable in the extreme, and as a colourist he was vivacious to the point of extravagance. At the same time in such pictures as “La Vicaria” and “Choosing a Model,” and in some of his Moorish subjects, like “The Snake Charmers” and “Moors playing with a Vulture,” he showed himself to be endowed with a sensitive appreciation of shades of character and a thorough understanding of the peculiarities of a national type. His love of detail was instinctive, and he chose motives that gave him the fullest opportunity of displaying his readiness as a craftsman.

See Davillier, Fortuny, sa vie, son œuvre, sa correspondance, &c. (Paris, 1876); C. Yriarte, Fortuny (Artistes célèbres series) (Paris, 1889).

(A. L. B.)

FORT WAYNE, a city and the county-seat of Allen county, Indiana, U.S.A., 102 m. N.E. of Indianapolis, at the point where the St Joseph and St Mary’s rivers join to form the Maumee river. Pop. (1880) 26,880; (1890) 35,393; (1900) 45,115, of whom 6791 were foreign-born; (1910, census) 63,933. It is served by the Cincinnati, Hamilton & Dayton, the Fort Wayne, 728 Cincinnati & Louisville, the Grand Rapids & Indiana, the Lake Shore & Michigan Southern, the New York, Chicago & St Louis, the Pennsylvania and the Wabash railways, and also by interurban electric lines. The site of the city is high (about 770 ft. above sea-level) and level, and its land area was in 1906 a little more than 6 sq. m. The streets are laid out on a rectangular plan and bordered by a profusion of shade trees. The city has several parks, including Lawton Park (31 acres), in which there is a monument in honour of Major-General Henry Ware Lawton (1843-1899), who lived in Fort Wayne for a time, Lake Side Park (22 acres), Reservoir Park (13 acres), Piqua Park (1 acre), and Old Fort Park (¼ acre), which is on the site of Old Fort Wayne. The educational institutions include the German Concordia Collegium (Lutheran), founded in 1839, and having 220 students in 1908, and the state school for feeble-minded youth (1879). The city has a Carnegie library. Fort Wayne is one of the most important railway centres in the Middle West, and several railways maintain here their principal car and repair shops, which add greatly to the value of its manufacturing industries; in 1905 it ranked first among the cities of the state in the value of cars constructed and repaired by steam-railway companies. The other manufactories include foundries and machine shops, iron and steel mills, knitting mills, planing mills, sash and door, car-wheel, electrical machinery, and woodenware factories and flour mills. In 1905 the total value of the factory product of the city was $15,129,562, showing an increase of 34.3% since 1900.

The Miami Indians had several villages in the immediate neighbourhood, and the principal one, Kekionaga (Miami Town or Great Miami Village), was situated on the E. bank of the St Joseph river, within the limits of the present city. On the E. bank of the St Mary’s a French trading post was built about 1680. In 1749-1750 the French fort (Fort Miami) was moved to the E. bank of the St Joseph. The English occupied the fort in 1760 and Pontiac captured it in May 1763, after a siege of more than three months. In 1790 the Miami villages were destroyed. In September 1794 General Anthony Wayne built on the S. bank of the Maumee river the stockade fort which was named in his honour, the site of which forms the present Old Fort Park. By the treaty of Greenville, concluded by General Wayne on the 3rd of August 1795, a piece of land 6 sq. m. in area, including the tract of the Miami towns, was ceded to the United States, and free passage to Fort Wayne and down the Maumee to Lake Erie was guaranteed to the people of the United States by the Indians. By the treaty of Fort Wayne, concluded by General W.H. Harrison on the 7th of June 1803, the tract about Vincennes reserved to the United States by the treaty of Greenville was described and defined; by the second treaty of Fort Wayne, concluded by Harrison on the 30th of September 1809, the Indians sold to the United States about 2,900,000 acres of land, mostly S.E. of the Wabash river. In September 1813 Fort Wayne was besieged by Indians, who withdrew on the arrival, on the 12th of September, of General Harrison with about 2700 men from Kentucky and Ohio. The fort was abandoned on the 19th of April 1819 and no trace of it remains. The first permanent settlement here was made in 1815, and the village was an important fur-trading depôt until 1830. The opening of the Wabash & Erie canal in 1843 stimulated its growth. A town was platted and was made the county-seat in 1824; and in 1840 Fort Wayne was chartered as a city.

See W.A. Brice, History of Fort Wayne (Ft. Wayne, 1868); John B. Dillon, History of Indiana, from its Earliest Exploration by Europeans to the Close of the Territorial Government in 1816 (Indianapolis, Ind., 1859); and Charles E. Slocum, History of the Maumee River Basin, from the Earliest Accounts to its Organization into Counties (Defiance, Ohio, 1905).


FORT WILLIAM, the principal town of Thunder Bay district, Ontario, Canada, 426 m. (by rail) E.S.E. of Winnipeg, on the Kaministiquia river, about a mile from Lake Superior. It is the lake terminus of the Canadian Pacific railway, of the new Grand Trunk Pacific railway, and of several steamship lines. Port Arthur, the terminus of the Canadian Northern railway, lies 4 m. to the N.E. Fort William contains numerous grain elevators, railway repair shops and docks, and has a large export trade in grain and other farm produce. Minerals are also exported from the mining district, of which it is the centre. Industries, such as saw, planing and flour mills, have also sprung up. The population was 4800 in 1901, but has since increased with great rapidity.


FORT WILLIAM, a police burgh of Inverness-shire, Scotland. Pop. (1901) 2087. It lies at the north-eastern end of Loch Linnhe, an arm of the sea, about 62 m. S.S.W. of Inverness by road or canal, and was, in bygone days, one of the keys of the Highlands. It is 122½ m. N.E. of Glasgow by the West Highland railway. The fort, at first called Kilmallie, was built by General Monk in 1655 to hold the Cameron men in subjection, and was enlarged in 1690 by General Hugh Mackay, who renamed it after William III., the burgh then being known as Maryburgh in honour of his queen. Here the perpetrators of the massacre of Glencoe met to share their plunder. The Jacobites unsuccessfully besieged it in 1715 and 1746. The fort was dismantled in 1860, and demolished in 1890 to provide room for the railway and the station. Amongst the public buildings are the Belford hospital, public hall, court house and the low-level meteorological observatory, constructed in 1891, which was in connexion with the observatory on the top of Ben Nevis, until the latter was closed in 1904. Its great industry is distilling, and the distilleries, about 2 m. N.E., are a familiar feature in the landscape. Beyond the railway station stands the obelisk to the memory of Ewen Maclachlan (1775-1822), the Gaelic poet, who was born in the parish. Fort William is a popular tourist resort and place of call for the steamers passing through the Caledonian canal. The town is the point from which the ascent of Ben Nevis—4½ m. E.S.E. as the crow flies—is commonly made. At Corpach, about 2 m. N., the Caledonian canal begins, the series of locks between here and Banavie—within little more than a mile—being known as “Neptune’s Staircase.” Both the Lochy and the Nevis enter Loch Linnhe immediately to the north of Fort William. A mile and a half from the town, on the Lochy, stands the grand old ruin of Inverlochy Castle, a massive quadrangular pile with a round tower at each corner, a favourite subject with landscape painters. Close by is the scene of the battle of the 2nd of February 1645, in which Montrose completely defeated the earl of Argyll. The modern castle, in the Scottish Baronial style, 1½ m. to the N.E. of this stronghold and farther from the river, is the seat of Lord Abinger.


FORT WORTH, a city and the county-seat of Tarrant county, Texas, U.S.A., about 30 m. W. of Dallas, on the S. bank of the West Fork of the Trinity river. Pop. (1880) 6663; (1890) 23,076; (1900) 26,688, of whom 1793 were foreign-born and 4249 were negroes; (1910, census) 73,312. It is served by the Chicago, Rock Island & Gulf, the Fort Worth & Denver City, the Fort Worth & Rio Grande, and the St Louis, San Francisco & Texas of the “Frisco” system, the Gulf, Colorado & Santa Fé, the Houston & Texas Central, the International & Great Northern, the Missouri, Kansas & Texas, the St Louis South-Western, the Texas & Pacific, and the Trinity & Brazos Valley (Colorado & Southern) railways. Fort Worth is beautifully situated on a level space above the river. It is the seat of Fort Worth University (coeducational), a Methodist Episcopal institution, which was established as the Texas Wesleyan College in 1881, received its present name in 1889, comprises an academy, a college of liberal arts and sciences, a conservatory of music, a law school, a medical school, a school of commerce, and a department of oratory and elocution, and in 1907 had 802 students; the Polytechnic College (coeducational; Methodist Episcopal, South), which was established in 1890, has preparatory, collegiate, normal, commercial, and fine arts departments and a summer school, and in 1906 had 12 instructors and (altogether) 696 students; the Texas masonic manual training school; a kindergarten training school; St Andrews school (Protestant Episcopal), and St Ignatius Academy (Roman Catholic). There are several good business, municipal and county buildings, and a Carnegie library. On the 3rd of April 1909 a fire destroyed ten blocks in the centre of the city. Fort Worth lies in the 729 midst of a stock-raising and fertile agricultural region; there is an important stockyard and packing establishment just outside the city; and considerable quantities of cotton are raised in the vicinity. Among the products are packed meats, flour, beer, trunks, crackers, candy, paint, ice, paste, cigars, clothing, shoes, mattresses, woven wire beds, furniture and overalls; and there are foundries, iron rolling mills and tanneries. In 1905 the total value of the city’s factory product was $5,668,391, an increase of 62.5% since 1900; Fort Worth in 1900 ranked fifth among the cities of the state in the value of its factory product; in 1905 it ranked fourth. Fort Worth’s numerous railways have given it great importance as a commercial centre. The municipality owns and operates the waterworks and the electric-lighting plant.

A military post was established here in 1849, being called first Camp Worth and then Fort Worth. It was abandoned in 1853. A settlement grew up about the fort, and the city was incorporated in 1873. The fort and the settlement were named in honour of General William Jenkins Worth (1794-1849), a native of Hudson, New York, who served in the War of 1812, commanded the United States forces against the Seminole Indians in 1841-1842, served under both General Taylor and General Scott in the Mexican War, distinguishing himself at Monterey (where he earned the brevet of major-general) and in other engagements, and later commanded the department of Texas. In 1907 Fort Worth adopted a commission form of government.


FORTY, the cardinal number equal to four tens. The word is derived from the O. Eng. feówertig, a combination of feówer, four, and tig, an old form of “ten,” used as a suffix, cf. Icel. tiu, Dan. ti, ten, and Ger. vierzig, forty. The name “The Forty” has been given to various bodies composed of that number of members, particularly to a judicial body in ancient Athens, who tried small cases in the rural districts, and to a court of criminal jurisdiction and two civil appeal courts in the Venetian republic. The French Academy (see Academies) has also been known as “The Forty” or “The Forty Immortals.” The period just before the repeal of the corn laws in the United Kingdom is frequently alluded to, particularly by the free trade school, as the “hungry forties”; and the “roaring forties” is a sailor’s name for the stormy region between the 40th and 50th latitudes N. and S., but more particularly applied to the portion of the north Atlantic lying between those latitudes.


FORUM (Lat. from foris, “out of doors”), in Roman antiquity, any open place used, like the Greek ἀγορά, for the transaction of mercantile, judicial or political business, sometimes merely as a promenade. It was level, rectangular in form, surrounded by porticoes, basilicas, courts of law and other public buildings. In the laws of the Twelve Tables the word is used of the vestibule of a tomb (Cicero, De legibus, ii. 24); in a Roman camp the forum was an open place immediately beside the praetorium; and the term was no doubt originally applied generally to the space in front of any public building or gateway. In Rome (q.v.) itself, however, during the period of the early history, forum was almost a proper name, denoting the flat and formerly marshy space between the Palatine and Capitoline hills (also called Forum Romanum), which probably even during the regal period afforded the accommodation necessary for such public meetings as could not be held within the area Capitolina. In early times the Forum Romanum was used for athletic games, and over the porticoes were galleries for spectators; there were also shops of various kinds. But with the growth of the city and the increase of provincial business, more than one forum became necessary, and under the empire a considerable number of civilia (judicial) and venalia (mercantile) fora came into existence. In addition to the Forum Romanum, the Fora of Caesar and Augustus belonged to the former class; the Forum boarium (cattle), holitorium (vegetable), piscarium (fish), pistorium (bread), vinarium (wine), to the latter. The Fora of Nerva (also called transitorium or pervium, because a main road led through it to the Forum Romanum), Trajan, and Vespasian, although partly intended to facilitate the course of public business, were chiefly erected to embellish the city. The construction of separate markets was not, however, necessarily the rule in the provincial fora; thus, in Pompeii, at the north-east end of the forum, there was a macellum (market), and shops for provisions and possibly money changers, and on the east side a building supposed to have been the clothworkers’ exchange, and at Timgad in North Africa (a military colony founded under Trajan) the whole of the south side of the forum was occupied by shops. The forum was usually paved, and although on festal occasions chariots were probably driven through, it was not a thoroughfare and was enclosed by gates at the entrances, of which traces have been found at Pompeii. When the sites for new towns were being selected, that for the forum was in the centre, and the two main streets crossed one another close to but not through it. At Timgad the main streets are some 5 or 6 ft. lower than the forum. The word forum frequently appears in the names of Roman market towns; as, for example, in Forum Appii, Forum Julii (Fréjus), Forum Livii (Forli), Forum Sempronii (Fossombrone). These fora were distinguished from mere vici by the possession of a municipal organization, which, however, was less complete than that of a prefecture. In legal phraseology, which distinguishes the forum commune from the forum privilegiatum, and the forum generale from the forum speciale, the word is practically equivalent to “court” or “jurisdiction.”

For the fora at Rome, see Rome: Archaeology, and works quoted.


FORUM APPII, an ancient post station on the Via Appia, 43 m. S.E. of Rome, founded, no doubt, by the original constructor of the road. Horace mentions it as the usual halt at the end of the first day’s journey from Rome, and describes it as full of boatmen and cheating innkeepers. The presence of the former was due to the fact that it was the starting-point of a canal which ran parallel to the road through the Pomptine Marshes, and was used instead of it at the time of Strabo and Horace (see Appia, Via). It is mentioned also as a halting place in the account of Paul’s journey to Rome (Acts xxviii. 15). Under Nerva and Trajan the road was repaired; one inscription records expressly the paving with silex (replacing the former gravelling) of the section from Tripontium, 4 m. N.W., to Forum Appii; the bridge near Tripontium was similarly repaired, and that at Forum Appii, though it bears no inscription, is of the same style. Only scanty relics of antiquity have been found here; a post station was placed here by Pius VI. when the Via Appia was reconstructed.

(T. As.)

FORUM CLODII, a post station on the Via Clodia, about 23 m. N.W. of Rome (not 32 m. as in the Antonine Itinerary), situated above the western bank of the Lacus Sabatinus (mod. Lake of Bracciano), and connected with the Via Cassia at Vacanae by a branch road which ran round the N. side of the lake (Ann. Inst., 1859, 43). The site is marked by the church of SS. Marcus, Marcianus and Liberatus, which was founded in the 8th or 9th century A.D. Inscriptions mentioning the Foro-Clodienses have come to light on the spot; and an inscription of the Augustan period, which probably stood over the door of a villa, calls the place Pausilypon—a name justified by the beauty of the site.

See Notizie degli scavi (1889), 5; D. Vaglieri, ibid. (1895), 342.


FORUM TRAIANI (mod. Fordongianus), an ancient town of Sardinia, on the river Thyrsus (Tirso), and a station on the Roman road through the centre of the island from Carales to Olbia and Turris Libisonis. Many of its ruins have been destroyed since 1860. The best preserved are the baths, erected over hot mineral springs. The tanks for collecting the water and the large central piscina are noteworthy. The bridge over the Tirso has been to some extent modernized. On the opposite bank are the scanty remains of an amphitheatre. Not far off is a group of nuraghi, of which that of St Barbara in the commune of Villanova Truschedda is one of the finest.

See Taramelli in Notizie degli scavi (1903), 469.


FOSBROKE, THOMAS DUDLEY (1770-1842), English antiquary, was born in London on the 27th of May 1770. He was educated at St Paul’s school and Pembroke College, Oxford, 730 graduating M.A. in 1792. In that year he was ordained and became curate of Horsley, Gloucestershire, where he remained till 1810. He then removed to Walford in Herefordshire, and remained there the rest of his life, as curate till 1830, and afterwards as vicar. His first important work, British Monachism (2 vols., 1802), was a compilation, from manuscripts in the British Museum and Bodleian libraries, of facts relating to English monastic life. In 1799 Fosbroke had been elected fellow of the Society of Antiquaries. The work for which he is best remembered, the Encyclopaedia of Antiquities, appeared in 1824. A sequel to this, Foreign Topography, was published in 1828. Fosbroke published many other volumes. He died at Walford on the 1st of January 1842.


FOSCARI, FRANCESCO (1373-1457), doge of Venice, belonged to a noble Venetian family, and held many of the highest offices of the republic—ambassador, president of the Forty, member of the Council of Ten, inquisitor, procurator of St Mark, avvogadore di comun, &c. His first wife was Maria Priuli and his second Maria Nani; of his many children all save one son (Jacopo) died young. But although a capable administrator he was ambitious and adventurous, and the reigning doge Tommaso Mocenigo, when speaking on his deathbed of the various candidates for the succession, warned the council against electing Foscari, who, he said, would perpetually plunge the republic into disastrous and costly wars. Nevertheless Foscari was elected (1423) and reigned for thirty-four years. In proclaiming the new doge the customary formula which recognized the people’s share in the appointment and asked for their approval—the last vestige of popular government—was finally dropped.

Foscari’s reign bore out Mocenigo’s warning and was full of wars on the terra ferma, and through the doge’s influence Venice joined the Florentines in their campaign against Milan, which was carried on with varying success for eight years. In 1430 an attempt was made on Foscari’s life by a noble to whom he had refused an appointment; and three years later a conspiracy of young bloods to secure the various offices for themselves by illicit intrigues was discovered. These events, as well as the long and expensive wars and the unsatisfactory state of Venetian finances, induced Foscari to ask permission to abdicate, which was, however, refused. In 1444 began that long domestic tragedy by which the name of Foscari has become famous. The doge’s son Jacopo, a cultivated and intelligent but frivolous and irresponsible youth, was in that year accused of the serious crime of having accepted presents from various citizens and foreign princes who either desired government appointments or wished to influence the policy of the republic. Jacopo escaped, but was tried in contumacy before the Council of Ten and condemned to be exiled to Napoli di Romania (Nauplia) and to have his property confiscated. But the execution of the sentence was delayed, as he was lying ill at Trieste, and eventually the penalty was commuted to banishment at Treviso (1446). Four years later Ermolao Donato, a distinguished official who had been a member of the Ten at the time of the trial, was assassinated and Jacopo Foscari was suspected of complicity in the deed. After a long inquiry he was brought to trial for the second time, and although all the evidence clearly pointed to his guilt the judges could not obtain a confession from the accused, and so merely banished him to Candia for the rest of his life, with a pension of two hundred ducats a year. In 1456 the council received information from the rector (governor) of Candia to the effect that Jacopo Foscari had been in treasonable correspondence with the duke of Milan and the sultan of Turkey. He was summoned to Venice, tried and condemned to a year’s imprisonment, to be followed by a return to his place of exile. His aged father was allowed to see him while in prison, and to Jacopo’s entreaties that he should obtain a full pardon for him, he replied advising him to bear his punishment without protest. When the year was up Jacopo returned to Candia, where he died in January 1457. The doge was overwhelmed with grief at this bereavement and became quite incapable of attending to business. Consequently the council decided to ask him to abdicate; at first he refused, but was finally obliged to conform to their wishes and retired on a yearly pension of 1500 ducats. Within a week Pasquale Malipiero was elected in his place and two days later (1st of November 1457) Francesco Foscari was dead.

The story is a very sad and pathetic one, but legend has added many picturesque though quite apocryphal details, most of them tending to show the iniquity and harshness of Jacopo’s judges and accusers, whereas, as we have shown, he was treated with exceptional leniency. The most accurate account is contained in S. Romanin’s Storia documentata di Venezia, lib. x. cap. iv. vii. and x. (Venice, 1855); where the original authorities are quoted; see also Berlan, I due Foscari (Turin, 1852). Among the poetical works on the subject Byron’s tragedy is the most famous (1821), and Roger’s poem Italy (1821); Giuseppe Verdi composed an opera on the subject entitled I due Foscari.

(L. V.*)

FOSCOLO, UGO (1778-1827), Italian writer, was born at Zante in the Ionian Isles on the 26th of January 1778. On the death of his father, a physician at Spalatro, in Dalmatia, the family removed to Venice, and in the University of Padua Foscolo prosecuted the studies begun in the Dalmatian grammar school. The fact that amongst his Paduan masters was the abbé Cesarotti, whose version of Ossian had made that work highly popular in Italy, was not without influence on Foscolo’s literary tastes, and his early knowledge of modern facilitated his studies in ancient Greek. His literary ambition revealed itself by the appearance in 1797 of his tragedy Tieste—a production which obtained a certain degree of success. Foscolo, who, from causes not clearly explained, had changed his Christian name Niccolo to that of Ugo, now began to take an active part in the stormy political discussions which the fall of the republic of Venice had provoked. He was a prominent member of the national committees, and addressed an ode to Napoleon the liberator, expecting from the military successes of the French general, not merely the overthrow of the effete Venetian oligarchy, but the establishment of a free republican government.

The treaty of Campo Formio (17th Oct. 1797), by which Napoleon handed Venice over to the Austrians, gave a rude shock to Foscolo, but did not quite destroy his hopes. The state of mind produced by that shock is reflected in the Letters of Jacopo Ortis (1798), a species of political Werther,—for the hero of Foscolo embodies the mental sufferings and suicide of an undeceived Italian patriot just as the hero of Goethe places before us the too delicate sensitiveness embittering and at last cutting short the life of a private German scholar. The story of Foscolo, like that of Goethe, had a groundwork of melancholy fact. Jacopo Ortis had been a real personage; he was a young student of Padua, and committed suicide there under circumstances akin to those described by Foscolo. At this period Foscolo’s mind appears to have been only too familiar with the thought of suicide. Cato and the many classical examples of self-destruction scattered through the pages of Plutarch appealed to the imaginations of young Italian patriots as they had done in France to those of the heroes and heroines of the Gironde. In the case of Foscolo, as in that of Goethe, the effect produced on the writer’s mind by the composition of the work seems to have been beneficial. He had seen the ideal of a great national future rudely shattered; but he did not despair of his country, and sought relief in now turning to gaze on the ideal of a great national poet. At Milan, whither he repaired after the fall of Venice, he was engaged in other literary pursuits besides the composition of Ortis. The friendship formed there with the great poet Parini was ever afterwards remembered with pride and gratitude. The friendship formed with another celebrated Milanese poet soon gave place to a feeling of bitter enmity. Still hoping that his country would be freed by Napoleon, he served as a volunteer in the French army, took part in the battle of the Trebbia and the siege of Genoa, was wounded and made prisoner. When released he returned to Milan, and there gave the last touches to his Ortis, published a translation of and commentary upon Callimachus, commenced a version of the Iliad, and began his translation of Sterne’s Sentimental Journey. The result of a memorandum prepared for Lyons, where, along with other Italian delegates, he was to have laid before Napoleon the state of Italy, only proved that the views cherished by him for his 731 country were too bold to be even submitted to the dictator of France. The year 1807 witnessed the appearance of his Carme sui sepolcri, of which the entire spirit and language may be described as a sublime effort to seek refuge in the past from the misery of the present and the darkness of the future. The mighty dead are summoned from their tombs, as ages before they had been in the masterpieces of Greek oratory, to fight again the battles of their country. The inaugural lecture on the origin and duty of literature, delivered by Foscolo in January 1809 when appointed to the chair of Italian eloquence at Pavia, was conceived in the same spirit. In this lecture Foscolo urged his young countrymen to study letters, not in obedience to academic traditions, but in their relation to individual and national life and growth. The sensation produced by this lecture had no slight share in provoking the decree of Napoleon by which the chair of national eloquence was abolished in all the Italian universities. Soon afterwards Foscolo’s tragedy of Ajax was represented but with little success at Milan, and its supposed allusions to Napoleon rendering the author an object of suspicion, he was forced to remove from Milan to Tuscany. The chief fruits of his stay in Florence are the tragedy of Ricciarda, the Ode to the Graces, left unfinished, and the completion of his version of the Sentimental Journey (1813). His version of Sterne is an important feature in his personal history. When serving with the French he had been at the Boulogne camp, and had traversed much of the ground gone over by Yorick; and in his memoir of Didimo Cherico, to whom the version is ascribed, he throws much curious light on his own character. He returned to Milan in 1813, until the entry of the Austrians; thence he passed into Switzerland, where he wrote a fierce satire in Latin on his political and literary opponents; and finally he sought the shores of England at the close of 1816.

During the eleven years passed by Foscolo in London, until his death there, he enjoyed all the social distinction which the most brilliant circles of the English capital confer on foreigners of political and literary renown, and experienced all the misery which follows on a disregard of the first conditions of domestic economy. His contributions to the Edinburgh and Quarterly Reviews, his dissertations in Italian on the text of Dante and Boccaccio, and still more his English essays on Petrarch, of which the value was enhanced by Lady Dacre’s admirable translations of some of Petrarch’s finest sonnets, heightened his previous fame as a man of letters. But his want of care and forethought in pecuniary matters involved him in much embarrassment, and at last consigned him to a prison; and when released he felt bitterly the change in his social position, and the coldness now shown to him by many whom he had been accustomed to regard as friends. His general bearing in society—if we may accept on this point the testimony of so keen an observer and so tolerant a man as Sir Walter Scott—had unhappily not been such as to gain and retain lasting friendships. He died at Turnham Green on the 10th of October 1827. Forty-four years after his death, in 1871, his remains were brought to Florence, and with all the pride, pomp and circumstance of a great national mourning, found their final resting-place beside the monuments of Machiavelli and Alfieri, of Michelangelo and Galileo, in Italy’s Westminster Abbey, the church of Santa Croce. To that solemn national tribute Foscolo was fully entitled. For the originality of his thoughts and the splendour of his diction his country honours him as a great classic author. He had assigned to the literature of his nation higher aims than any which it previously recognized. With all his defects of character, and through all his vicissitudes of fortune, he was always a sincere and courageous patriot.

Ample materials for the study of Foscolo’s character and career may be found in the complete series of his works published in Florence by Le Monnier. The series consists of Prose letterarie, (4 vols., 1850); Epistolario (3 vols., 1854); Prose politiche (1 vol., 1850); Poesie (1 vol., 1856); Lettere di Ortis (1 vol., 1858); Saggi di critica storico-letteraria (1st vol., 1859; 2nd vol., 1862). To this series must be added the very interesting work published at Leghorn in 1876, Lettere inedite del Foscolo, del Giordani, e della Signora di Staël, a Vincenzo Monti. The work published at Florence in the summer of 1878, Vita di Ugo Foscolo, di Pellegrino Artusi, throws much doubt on the genuineness of the text in Foscolo’s writings as given in the complete Florence edition, whilst it furnishes some curious and original illustrations of Foscolo’s familiarity with the English language.

(J. M. S.)

FOSS, EDWARD (1787-1870), English lawyer and biographer, was born in London on the 16th of October 1787. He was a solicitor by profession, and on his retirement from practice in 1840, he devoted himself to the study of legal antiquities. His Judges of England (9 vols., 1848-1864) is a standard work, characterized by accuracy and extensive research. Biographia Juridica, a Biographical Dictionary of English Judges, appeared shortly after his death. He assisted in founding the Incorporated Law Society, of which he was president in 1842 and 1843. He died of apoplexy on the 27th of July 1870.


FOSSANO, a town and episcopal see of Piedmont, Italy, in the province of Cuneo, 15 m. N.E. of it by rail, 1180 ft. above sea-level. Pop. (1901) 7696 (town), 18,175 (commune). It has an imposing castle with four towers, begun by Filippo d’Acaia in 1314. The cathedral was reconstructed at the end of the 18th century. The place began to acquire some importance in the 13th century. It appears as a commune in 1237, but in 1251 had to yield to Asti. It finally surrendered in 1314 to Filippo d’Acaia, whose successor handed it over to the house of Savoy. It lies on the main line from Turin to Cuneo, and has a branch line to Mondovì.


FOSSANUOVA, an abbey of Italy, in the province of Rome, near the railway station of Sonnino, 64 m. S.E. of Rome. It is the finest example of a Cistercian abbey, and of the Burgundian Early Gothic style, in Italy, and dates from the end of the 12th to the end of the 13th century. The church (1187-1208) is closely similar to that of Casamari. The other conventual buildings also are noteworthy. Thomas Aquinas died here in 1274.

See C. Enlart, Origines françaises de l’architecture gothique en Italie (Paris, 1894) (Bibliothèque des écoles françaises d’Athènes et de Rome, fasc. 66).


FOSSE (or Foss) WAY, the Early English name of a Roman road or series of roads in Britain, used later by the English, running from Lincoln by Leicester and Bath to Exeter. Almost all the Roman line is still in use as modern road or lane. It passes from Lincoln through Newark and Leicester (the Roman Ratae) to High Cross (Venonae), where it intersects Watling Street at a point often called “the centre of England.” Hence it runs to Moreton-in-the-Marsh, Cirencester, Bath and Ilchester, crosses the hills near Chard, Axminster and Honiton, and enters Exeter. Antiquaries have taken it farther, usually to Totnes, but without warrant. (See further under Ermine Street.)

(F. J. H.)

FOSSICK (probably an English dialectical expression, meaning fussy or troublesome), a term applied by the gold diggers of Australia to the search for gold by solitary individuals, in untried localities or in abandoned diggings. A “fossicker,” or pocket miner, is one who buys up the right to search old claims, in the hope of finding gold overlooked by previous diggers.


FOSSOMBRONE (anc. Forum Sempronii), a town and episcopal see of the Marches, Italy, in the province of Pesaro and Urbino, 11 m. E.S.E. of the latter by road, 394 ft. above sea-level. Pop. (1901) town, 7531, commune, 10,847. The town is situated in the valley of the Metauro, in the centre of fine scenery, at the meeting-point of roads to Fano, to the Furlo pass and Fossato di Vico (the ancient Via Flaminia), to Urbino and to Sinigaglia, the last crossing the river by a fine bridge. The cathedral, rebuilt in 1772-1784, contains the chief work of the sculptor Domenico Rosselli of Rovezzano, a richly sculptured ancona of 1480. S. Francesco has a lunette by him over the portal. The library, founded by a nephew of Cardinal Passionei, contains some antiquities. Above the town is a medieval castle. There is a considerable trade in silk.

The ancient Forum Sempronii lay about 2 m. to the N.E. at S. Martino al Piano, where remains still exist. It was a station on the Via Flaminia and a municipium. The date of its foundation is not known. Excavations in 1879-1880 led to the discovery of a house and of other buildings on the ancient road (A. 732 Vernarecci in Notizie degli scavi, 1880, 458). It already had a bishop in the years 499-502. In 1295 the Malatesta obtained possession of it, and kept it until 1444, when it was sold, with Pesaro, to Federico di Montefeltro of Urbino, and with the latter it passed to the papacy under Urban VIII. in 1631.


FOSSOMBRONI, VITTORIO, Count (1754-1844), Tuscan statesman and mathematician, was born at Arezzo. He was educated at the university of Pisa, where he devoted himself particularly to mathematics. He obtained an official appointment in Tuscany in 1782, and twelve years later was entrusted by the grand duke with the direction of the works for the drainage of the Val di Chiana, on which subject he had published a treatise in 1789. In 1796 he was made minister for foreign affairs, but on the French occupation of Tuscany in 1799 he fled to Sicily. On the erection of the grand duchy into the ephemeral kingdom of Etruria, under the queen-regent Maria Louisa, he was appointed president of the commission of finance. In 1809 he went to Paris as one of the senators for Tuscany to pay homage to Napoleon. He was made president of the legislative commission on the restoration of the grand duke Ferdinand III. in 1814, and subsequently prime minister, which position he retained under the grand duke Leopold II. His administration, which was only terminated by his death, greatly contributed to promote the well-being of the country. He was the real master of Tuscany, and the bases of his rule were equality of all subjects before the law, honesty in the administration of justice and toleration of opinion, but he totally neglected the moral improvement of the people. At the age of seventy-eight he married, and twelve years afterwards died, in 1844.

Bibliography.—Gino Capponi, Il Conte V. Fossombroni, A. von Reumont, Geschichte Toscanas unter dem Hause Lothringen-Habsburg (Gotha, 1877); Zobi, Storia civile delta Toscana (Florence, 1850-1853); Galeotti, Delle Leggi e dell’ amministrazione della Toscana (Florence, 1847); Baldasseroni, Leopoldo II. (Florence, 1871); see also under Capponi, Gino; Ferdinand III., of Tuscany, and Leopold II., of Tuscany.

(L. V.*)

FOSTER, SIR CLEMENT LE NEVE (1841-1904), English geologist and mineralogist, the second son of Peter Le Neve Foster (for many years secretary of the Society of Arts), was born at Camberwell on the 23rd of March 1841. After receiving his early education at Boulogne and Amiens, he studied successively at the Royal School of Mines in London and at the mining college of Freiburg in Saxony. In 1860 he joined the Geological Survey in England, working in the Wealden area and afterwards in Derbyshire. Conjointly with William Topley (1841-1894) he communicated to the Geological Society of London in 1865 the now classic paper “On the superficial deposits of the Valley of the Medway, with remarks on the Denudation of the Weald.” In this paper the sculpturing of the Wealden area by rain and rivers was ably advocated. Retiring from the Geological Survey in 1865, Foster devoted his attention to mineralogy and mining in Cornwall, Egypt and Venezuela. In 1872 he was appointed an inspector of mines under the home office for the S.W. of England, and in 1880 he was transferred to the N. Wales district. In 1890 he was appointed professor of mining at the Royal College of Science and he held this post until the close of his life. His later work is embodied largely in the reports of mines and quarries issued annually by the home office. He was distinguished for his extensive scientific and practical knowledge of metalliferous mining and stone quarrying. He was elected F.R.S. in 1892 and was knighted in 1903. While investigating the cause of a mining disaster in the Isle of Man in 1897 his constitution suffered much injury from carbonic-oxide gas, and he never fully recovered from the effects. He died in London on the 19th of April 1904. He published Ore and Stone Mining, 1894 (ed. 5, 1904); and The Elements of Mining and Quarrying, 1903.


FOSTER, GEORGE EULAS (1847-  ), Canadian politician and financier, was born in New Brunswick on the 3rd of September 1847, of U.E. Loyalist descent. After a brilliant university career at the university of Brunswick, at Edinburgh and Heidelberg, he returned to Canada and taught in various local schools, eventually becoming professor of classics and history in the local university. In 1882 he became Conservative member for King’s County, N.B., in the Dominion parliament, and in 1885 entered the cabinet of Sir John Macdonald as minister of marine and fisheries; in 1888 he became minister of finance, which position he held till the defeat of his party in 1896. A careful and even brilliant financier, and a keen debater, he became known as a strong believer in protection for Canadian industries and in preferential trade within the British empire.


FOSTER, JOHN (1770-1843), English author and dissenting minister, generally known as the “Essayist,” was born in a small farmhouse near Halifax, Yorkshire, on the 17th of September 1770. Partly from constitutional causes, but partly also from the want of proper companions, as well as from the grave and severe habits of his parents, his earlier years were enshrouded in a somewhat gloomy and sombre atmosphere, which was never afterwards wholly dissipated. His youthful energy, finding no proper outlet, developed within him a tendency to morbid intensity of thought and feeling; and, according to his own testimony, before he was twelve years old he was possessed of a “painful sense of an awkward but entire individuality.”

The small income accruing to Foster’s parents from their farm they supplemented by weaving, and at an early age he began to assist them by spinning wool by the hand wheel, and from his fourteenth year by weaving double stuffs. Even “when a child,” however, he had the “feelings of a foreigner in the place”; and though he performed his monotonous task with conscientious diligence, he succeeded so indifferently in fixing his wandering thoughts upon it that his work never without difficulty passed the ordeal of inspection. He had acquired a great taste for reading, to gratify which he sometimes shut himself up alone in a barn, afterwards working at his loom “like a horse,” to make up for lost time. He had also at this period “a passion for making pictures with a pen.” Shortly after completing his seventeenth year he became a member of the Baptist church at Hebden Bridge, with which his parents were connected; and with the view of preparing himself for the ministerial office he began about the same time to attend a seminary at Brearley Hall conducted by his pastor Dr Fawcett.

After remaining three years at Brearley Hall he was admitted to the Baptist College, Bristol, and on finishing his course of study at this institution he obtained an engagement at Newcastle-on-Tyne, where he preached to an audience of less than a hundred persons, in a small and dingy room situated near the river at the top of a flight of steps called Tuthill Stairs. At Newcastle he remained only three months. In the beginning of 1793 he proceeded to Dublin, where, after failing as a preacher, he attempted to revive a classical and mathematical school, but with so little success that he did not prosecute the experiment for more than eight or nine months. From 1797 to 1799 he was minister of a Baptist church at Chichester, but though he applied himself with more earnestness and perseverance than formerly to the discharge of his ministerial duties, his efforts produced little apparent impression, and the gradual diminution of his hearers necessitated his resignation. After employing himself for a few months at Battersea in the instruction of twenty African youths brought to England by Zachary Macaulay, with the view of having them trained to aid as missionaries to their fellow-countrymen, he in 1800 accepted the charge of a small congregation at Downend, Bristol, where he continued about four years. In 1804, chiefly through the recommendation of Robert Hall, he became pastor of a congregation at Frome, but a swelling in the thyroid gland compelled him in 1806 to resign his charge. In the same year he published the volume of Essays on which his literary fame most largely if not mainly rests. They were written in the form of letters addressed to the lady whom he afterwards married, and consist of four papers,—“On a Man writing Memoirs of himself”; “On Decision of Character”; “On the Application of the Epithet Romantic”; and “On some Causes by which Evangelical Religion has been rendered unacceptable to Men of Cultivated Taste.” The success of this work was immediate, and was so considerable that on resigning his charge he determined to adopt literature as his profession. 733 The Eclectic Review was the only periodical with which he established a connexion; but his contributions to that journal, which were begun in 1807, number no fewer than 185 articles. On his marriage in May 1808 he removed to Bourton-on-the-Water, a small village in Gloucestershire, where he remained till 1817, when he returned to Downend and resumed his duties to his old congregation. Here he published in 1820 his Essay on Popular Ignorance, which was the enlargement of a sermon originally preached on behalf of the British and Foreign School Society. In 1821 he removed to Stapleton near Bristol, and in 1822 he began a series of fortnightly lectures at Broadmead chapel, Bristol, which were afterwards published. On the settlement of Robert Hall at Bristol this service was discontinued, as in such circumstances it appeared to Foster to be “altogether superfluous and even bordering on impertinent.” The health of Foster during the later years of his life was somewhat infirm, the result chiefly of the toil and effort of literary composition; and the death of his only son, his wife and the greater number of his most intimate friends combined with his bodily ailments to lend additional sombreness to his manner of regarding the events and arrangements of the present world—the “visage of death” being almost his “one remaining luminary.” He died at Stapleton on the 15th of October 1843.

The cast of Foster’s mind was meditative and reflective rather than logical or metaphysical, and though holding moderately Calvinistic views, his language even in preaching very seldom took the mould of theological forms. Though always retaining his connexion with the Baptist denomination, the evils resulting from organized religious communities seemed to him so great that he came to be “strongly of opinion that churches are useless and mischievous institutions, and the sooner they are dissolved the better.” The only Christian observances which he regarded as of any importance were public worship and the Lord’s Supper, and it so happened that he never administered the ordinance of baptism. His cast of thought is largely coloured by a constant reference to the “endless future.” He was a firm believer in supernatural appearances, and cherished a longing hope that a ray of light from the other world might sometimes in this way be vouchsafed to mortals. As a writer he was most painstaking and laborious in his choice of diction, and his style has its natural consequent defects, though the result is eloquent in its way.

Besides the works already alluded to, Foster was the author of a Discourse on Missions (1818); “Introductory Essay” to Doddridge’s Rise and Progress of Religion (1825); “Observations on Mr Hall’s Character as a Preacher,” prefixed to the collected edition of Hall’s Works (1832); an “Introduction” to a pamphlet by Mr Marshman on the Serampore Missionaries; several political letters to the Morning Chronicle, and contributions to the Eclectic Review, published posthumously in 2 vols., 1844. His Life and Correspondence, edited by J.E. Ryland, was published in 1846.


FOSTER, SIR MICHAEL (1836-1907), English physiologist, was born at Huntingdon on the 8th of March 1836. After graduating in medicine at London University in 1859, he began to practise in his native town, but in 1867 he returned to London as teacher of practical physiology at University College, where two years afterwards he became professor. In 1870 he was appointed by Trinity College, Cambridge, to its praelectorship in physiology, and thirteen years later he became the first occupant of the newly-created chair of physiology in the university, holding it till 1903. He excelled as a teacher and administrator, and had a very large share in the organization and development of the Cambridge biological school. From 1881 to 1903 he was one of the secretaries of the Royal Society, and in that capacity exercised a wide influence on the study of biology in Great Britain. In 1899 he was created K.C.B., and served as president of the British Association at its meeting at Dover. In the following year he was elected to represent the university of London in parliament. Though returned as a Unionist, his political action was not to be dictated by party considerations, and he gravitated towards Liberalism; but he played no prominent part in parliament and at the election of 1906 was defeated. His chief writings were a Textbook of Physiology (1876), which became a standard work, and Lectures on the History of Physiology in the 16th, 17th and 18th Centuries (1901), which consisted of lectures delivered at the Cooper Medical College, San Francisco, in 1900. He died suddenly in London on the 29th of January 1907.


FOSTER, MYLES BIRKET (1825-1899), English painter, was born at North Shields. At the age of sixteen he entered the workshop of Ebenezer Landells, a wood engraver, with whom he worked for six years as an illustrative draughtsman, devoting himself mainly to landscape. During the succeeding fifteen years he became famous as a prolific and accomplished illustrator, but about 1861 abandoned illustration for painting, and gained wide popularity by his pictures, chiefly in water colours, of landscapes and rustic subjects, with figures, mainly of children. He was elected in 1860 associate and in 1862 full member of the Royal Society of Painters in Water Colours. His work is memorable for its delicacy and minute finish, and for its daintiness and pleasantness of sentiment.

See Birket Foster, his Life and Work (extra number of the Art Journal) by Marcus B. Huish (1890), an interesting sketch; and Birket Foster, R.W.S., by H.M. Cundall (London, 1906), a very complete and fully illustrated biography.


FOSTER, STEPHEN COLLINS (1826-1864), American song and ballad writer, was born near Pittsburg, Pennsylvania, on the 4th of July 1826. He was the youngest child of a merchant of Irish descent who became a member of the state legislature and was related by marriage to President Buchanan. Stephen early showed talent for music, and played upon the flageolet, the guitar and the banjo; he also acquired a fair knowledge of French and German. He was sent to school in Towanda, Pennsylvania, and later to Athens, Pennsylvania, and when thirteen years old he wrote the song “Sadly to Mine Heart Appealing.” At sixteen he wrote “Open thy Lattice, Love”; at seventeen he entered his brother’s business house, Cincinnati, Ohio, where he remained about three years, composing meanwhile such popular pieces as “Old Uncle Ned,” “O Susannah!” and others. He then adopted song-writing as a profession. His chief successes were songs written for the negro melodists or Christy minstrels. Besides those mentioned the following attained great popularity: “Nelly was a Lady,” “Old Kentucky Home,” “Old Folks at Home,” “Massa’s in de Cold, Cold Ground,” &c. For these and other songs the composer received considerable sums, “Old Folks at Home” bringing him, it is said, 15,000 dollars. For most of his songs Foster wrote both songs and music. In 1850 he married and moved to New York, but soon returned to Pittsburg. His reputation rests chiefly on his negro melodies, many of which have been popular on both sides of the Atlantic and sung in many tongues. “Old Black Joe,” the last of these negro melodies, appeared in 1861. His later songs were sentimental ballads. Among these are “Old Dog Tray,” “Gentle Annie,” “Willie, we have missed you,” &c. His “Come where my Love lies Dreaming” is a well known vocal quartet. Although as a musician and composer Foster has little claim to high rank, his song-writing gives him a prominent place in the modern developments of popular music. He died at New York on the 13th of January 1864.


FOSTORIA, a city, partly in Seneca, partly in Hancock, and partly in Wood county, Ohio, U.S.A., 35 m. S. by E. of Toledo. Pop. (1890) 7070; (1900) 7730 (584 foreign-born); (1910) 9597. It is served by the Baltimore & Ohio, the New York, Chicago & St Louis, the Ohio Central, the Lake Erie & Western, and the Hocking Valley railways, and by two interurban electric lines. The city is situated in an agricultural region, and oil abounds in the vicinity. Among the city’s manufactures are glass, flour, planing mill products, brass and iron, carriages, barrels, incandescent lamps, carbons, wire nails and fences, automobile engines and parts, railway torpedoes and muslin underwear. The waterworks are owned and operated by the municipality. In 1832, upon the coming of the first settlers, two towns, Rome and Risdon, were laid out on the site of what is now Fostoria. A bitter rivalry arose between them, but they were finally united under one government, and the city thus formed was named in 734 honour of Charles W. Foster, whose son Charles Foster (1828-1904), governor of the state from 1880 to 1884 and secretary of the United States treasury from 1891 to 1893, did much to promote its growth. Fostoria was chartered as a city in 1854.


FOTHERGILL, JOHN (1712-1780), English physician, was born of a Quaker family on the 8th of March 1712 at Carr End in Yorkshire. He took the degree of M.D. at Edinburgh in 1736, and after visiting the continent of Europe he in 1740 settled in London, where he gained an extensive practice. In the epidemics of influenza in 1775 and 1776 he is said to have had sixty patients daily. In his leisure he made a study of conchology and botany; and at Upton, near Stratford, he had an extensive botanical garden where he grew many rare plants obtained from various parts of the world. He was the patron of Sidney Parkinson, the South Sea voyager. A translation of the Bible (1764 sq.) by Anthony Purver, a Quaker, was made and printed at his expense. His pamphlet entitled “Account of the Sore Throat attended with Ulcers” (1748) contains one of the first descriptions of diphtheria in English, and was translated into several languages. He died in London on the 26th of December 1780.


FOTHERINGHAY, a village of Northamptonshire, England, picturesquely situated on the left bank of the river Nene, 1½ m. from Elton station on the Peterborough branch of the London & North-Western railway. The castle, of which nothing but the earthworks and foundations remain, is famous as the scene of the imprisonment of Mary queen of Scots from September 1586 to her trial and execution on the 8th of February 1587. The earthworks, commanding a ford of the river, are apparently of very early date, and probably bore a castle from Norman times. It became an important stronghold of the Plantagenets from the time of Edward III., and was the birthplace of Richard III. in 1452. The church of St Mary and All Saints, originally collegiate, is Perpendicular, and only the nave with aisles, and the tower surmounted by an octagon, remain; but the building is in the best style of its period. Edward, second duke of York, who was killed at the battle of Agincourt in 1415, Richard, the third duke, and his duchess, Cicely (d. 1495), also his son the earl of Rutland, who with Richard himself, fell at the battle of Wakefield in 1460, are buried in the church. Their monuments were erected by Queen Elizabeth, who found the choir and tombs in ruins.


FOUCAULT, JEAN BERNARD LÉON (1819-1868), French physicist, was the son of a publisher at Paris, where he was born on the 18th of September 1819. After an education received chiefly at home, he studied medicine, which, however, he speedily abandoned for physical science, the improvement of L.J.M. Daguerre’s photographic processes being the object to which he first directed his attention. During three years he was experimental assistant to Alfred Donné (1801-1878) in his course of lectures on microscopic anatomy. With A.H.L. Fizeau he carried on a series of investigations on the intensity of the light of the sun, as compared with that of carbon in the electric arc, and of lime in the flame of the oxyhydrogen blowpipe; on the interference of heat rays, and of light rays differing greatly in lengths of path; and on the chromatic polarization of light. In 1849 he contributed to the Comptes Rendus a description of an electromagnetic regulator for the electric arc lamp, and, in conjunction with H.V. Regnault, a paper on binocular vision. By the use of a revolving mirror similar to that used by Sir Charles Wheatstone for measuring the rapidity of electric currents, he was enabled in 1850 to demonstrate the greater velocity of light in air than in water, and to establish that the velocity of light in different media is inversely as the refractive indices of the media. For his demonstration in 1851 of the diurnal motion of the earth by the rotation of the plane of oscillation of a freely suspended, long and heavy pendulum exhibited by him at the Pantheon in Paris, and again in the following year by means of his invention the gyroscope, he received the Copley medal of the Royal Society in 1855, and in the same year he was made physical assistant in the imperial observatory at Paris. In September of that year he discovered that the force required for the rotation of a copper disk becomes greater when it is made to rotate with its rim between the poles of a magnet, the disk at the same time becoming heated by the eddy or “Foucault currents” induced in its metal. Foucault invented in 1857 the polarizer which bears his name, and in the succeeding year devised a method of giving to the speculum of reflecting telescopes the form of a spheroid or a paraboloid of revolution. With Wheatstone’s revolving mirror he in 1862 determined the absolute velocity of light to be 298,000 kilometres (about 185,000 m.) a second, or 10,000 kilom. less than that obtained by previous experimenters. He was created in that year a member of the Bureau des Longitudes and an officer of the Legion of Honour, in 1864 a foreign member of the Royal Society of London, and next year a member of the mechanical section of the Institute. In 1865 appeared his papers on a modification of Watt’s governor, upon which he had for some time been experimenting with a view to making its period of revolution constant, and on a new apparatus for regulating the electric light; and in the following year (Compt. Rend. lxiii.) he showed how, by the deposition of a transparently thin film of silver on the outer side of the object glass of a telescope, the sun could be viewed without injuring the eye by excess of light. Foucault died of paralysis on the 11th of February 1868 at Paris. From the year 1845 he edited the scientific portion of the Journal des Débats. His chief scientific papers are to be found in the Comptes Rendus, 1847-1869.

See Revue cours scient. vi. (1869), pp. 484-489; Proc. Roy. Soc. xvii. (1869), pp. lxxxiii.-lxxxiv.; Lissajous, Notice historique sur la vie et les travaux de Léon Foucault (Paris, 1875).


FOUCHÉ, JOSEPH, Duke of Otranto (1763-1820), French statesman, was born in a small village near Nantes on the 21st of May 1763. His father, a seafaring man, destined him for the sea; but the weakness of his frame and the precocity of his talents soon caused this idea to be given up. He was educated at the college of the Oratorians at Nantes, and showed marked aptitude for studies both literary and scientific. Desiring to enter the teaching profession he was sent to an institution kept by brethren of the same order at Paris. There also he made rapid progress, and soon entered upon tutorial duties at the colleges of Niort, Saumur, Vendôme, Juilly and Arras. At Arras he had some dealings with Robespierre at the time of the beginning of the French Revolution (1789).

In October 1790 he was transferred by the Oratorians to their college at Nantes, owing to irregularities due to his zeal for revolutionary principles; but at Nantes he showed even more democratic fervour. His abilities and the zeal with which he espoused the most subversive notions brought him into favour with the populace at Nantes; he became a leading member of the local Jacobin club; and on the dissolution of the college of the Oratorians at Nantes in May 1792, Fouché gave up all connexion with the church, whose major vows he had not taken. After the downfall of the monarchy on the 10th of August 1792, he was elected as deputy for the department of the Lower Loire to the National Convention which met at the autumnal equinox and proclaimed the republic. The literary and pedagogic sympathies of Fouché at first brought him into touch with Condorcet and the party, or group, of the Girondists; but their vacillation at the time of the trial and execution of Louis XVI. (December 1792-January 21, 1793) led him to espouse the cause of the Jacobins, the less scrupulous and more thoroughgoing champions of revolutionary doctrine. On the question of the execution of the king, Fouché, after some preliminary hesitations, expressed himself with the utmost vigour in favour of immediate execution, and denounced those who “wavered before the shadow of a king.”

The crisis which resulted from the declaration of war by the Convention against England and Holland (Feb. 1, 1793), and a little later against Spain, brought Fouché into notoriety as one of the fiercest of the Jacobinical fanatics who then held power at Paris. While the armies of the first coalition threatened the north-east of France, a revolt of the royalist peasants of Brittany and la Vendée menaced the Convention on the west. That body deputed Fouché with a colleague, Villers, to proceed 735 to the west as commissioners invested with almost dictatorial powers for the crushing of the revolt of “the whites.” The vigour with which he carried out these duties earned him other work, and he soon held the post of commissioner of the republic in the department of the Nièvre. Together with Chaumette, he helped to initiate the atheistical movement, the founders of which in the autumn of 1793 began to aim at the extinction of Christianity in France. In the department of the Nièvre he ransacked the churches, sent their spoils to the treasury and established the cult of the goddess of Reason. Over the cemeteries, he ordered these words to be inscribed: “Death is an eternal sleep.” He also waged war against luxury and wealth, and desired to abolish the use of money. The new cult was inaugurated at Paris at Notre Dame by the strange orgy known as “The Festival of Reason” (November 10, 1793).

Fouché then proceeded to Lyons to execute the vengeance of the Convention on that city, which had revolted against the new Jacobin tyranny. Preluding his work by a festival remarkable for its obscene parody of religious rites, he then, along with his colleague, Collot d’Herbois, set the guillotine and cannon to work with a rigour which made his name odious. Modern research, however, proves that at the close of those horrors Fouché exercised a moderating influence. Outwardly his conduct was marked by the utmost rigour, and on his return to Paris early in April 1794, he thus characterised his policy: “The blood of criminals fertilises the soil of liberty and establishes power on sure foundations.” By that time Robespierre had struck down the other leaders of the atheistical party; but early in June 1794, at the time of the “Festival of the Supreme Being,” Fouché ventured to mock at the theistic revival which Robespierre then inaugurated. Sharp passages of arms took place between them, and Robespierre procured the ejection of Fouché from the Jacobin Club (July 14, 1794). Fouché, however, was working with his customary skill and energy, and along with Tallien and others, managed to effect the overthrow of the theistic dictator on Thermidor 10 (July 28), 1794. The ensuing reaction in favour of more merciful methods of government threatened to sweep away the group of Terrorists who had been mainly instrumental in carrying through the coup d’état of Thermidor; but, thanks largely to the skill of Fouché in intrigue, they managed for a time to keep at the head of affairs. Discords, however, crept in which left him for a time almost isolated, and it needed all his ability to withstand the attacks of the moderates. A vigorous attack on him by Boissy d’Anglas, on the 9th of August 1795, caused him to be arrested, but the troubles which ensued in Vendémiaire averted the doom that seemed to be pending; and he owed his release to the amnesty which was passed on the proclamation of the new constitution of the year 1795.

In the ensuing period, known as that of the Directory (1795-1799), Fouché remained at first in obscurity, but the relations which he had with the communists, once headed by Chaumette and now by François N. (“Gracchus”) Babeuf (q.v.), helped him to rise once more. He is said to have betrayed to the director Barras the secret of the strange plot which Babeuf and a few accomplices hatched in the year 1796; but recent research has tended to throw doubt on the assertion. His rise from poverty was slow, but in 1797 he gained an appointment for the supply of military matériel, which offered opportunities direct and indirect. After offering his services to the royalists, whose movement was then gathering force, he again decided to support the Jacobins and the director Barras (q.v.). In the coup d’état of Fructidor 1797 he made himself serviceable to Barras, who in 1798 appointed him to be French ambassador to the Cisalpine republic. At Milan he carried matters with so high a hand against the Gallophobes of that government that his actions were disavowed and he himself was removed; but in the confused state in which matters then were, he was able for a time to hold his own and to intrigue successfully against his successor. Early in 1799 he returned to Paris, and after a brief tenure of office as ambassador at The Hague, he became minister of police at Paris (July 20, 1799). The newly elected director, Sieyès (q.v.), was then in the ascendant and desired to curb the excesses of the Jacobins, who had recently reopened their club. Fouché, casting consistency to the winds, closed the Jacobins club in a manner at once daring and clever. Thereupon he hunted down the pamphleteers and editors, whether Jacobins or royalists, who were obnoxious to the government, so that at the time of the return of Bonaparte from Egypt (October 1799) the ex-Jacobin was one of the most powerful men in France.

Knowing well the unpopularity of the directors, Fouché lent himself to the schemes of Bonaparte and Sieyès for their overthrow. His activity in furthering the coup d’état of Brumaire 18-19 (November 9-10), 1799, procured him the favour of Bonaparte, who kept him in office (v. Napoleon I.). In the ensuing period of the Consulate (1799-1804) Fouché behaved with the utmost adroitness. While curbing the royalists and extreme Jacobins who at first alone opposed Bonaparte, Fouché was careful to temper as far as possible the arbitrary actions of the new master of France. In this difficult task he acquitted himself with so much skill as to earn at times the gratitude even of the royalists. Thus, while countermining a foolish intrigue of theirs in which the duchesse de Guiche was the chief agent, Fouché took care that she should escape. Equally skilful was his action in the affair of the so-called Aréna-Ceracchi plot, in which the agents provocateurs of the police were believed to have played a sinister part. The chief “conspirators” were easily ensnared and were executed when the affair of Nivôse (December 1800) enabled Bonaparte to act with rigour. This far more serious attempt (in which royalist conspirators exploded a bomb near the First Consul’s carriage with results disastrous to the bystanders) was soon seen by Fouché to be the work of royalists; and when the First Consul, eager to entrap the still formidable Jacobins, sought to fasten the blame on them, Fouché firmly declared that he would not only assert but would prove that the outrage was the work of royalists. All his efforts, however, failed to avert the punishment which Bonaparte was resolved to inflict on the leading Jacobins. In other matters (especially in that known as the Plot of the Placards in the spring of 1802) Fouché was thought to have secured the Jacobins concerned from the vengeance of the First Consul. In any case the latter resolved to rid himself of a man who had too much power and too much skill in intrigue to be desirable as a subordinate. On the proclamation of Bonaparte as First Consul for life (August 1, 1802) Fouché was deprived of his office; but the blow was softened by the suppression of the ministry of police and by the attribution of most of its duties to an extended ministry of justice. Fouché also became a senator and received half of the reserve funds of the police which had accumulated during his tenure of office. He continued, however, to intrigue through his spies, whose information was so superior to that of the new minister of police as to render great services to Napoleon at the time of the Cadoudal-Pichegru conspiracy (February-March 1804).

As a result Napoleon, now emperor, brought back Fouché to the re-constituted ministry of police (July 1804); he also later on entrusted to him that of the interior. His work was no less important than at the time of the Consulate. His police agents were ubiquitous, and the terror which Napoleon and Fouché inspired, owing to their proven ability to benefit by plots, partly accounts for the absence of conspiracies after 1804. After Austerlitz (December 1805) Fouché uttered the mot of the occasion: “Sire, Austerlitz has shattered the old aristocracy; the boulevard St Germain no longer conspires.”

That Napoleon retained some feeling of distrust, or even of fear, of Fouché was proved by his conduct in the early days of 1808. While engaged in the campaign of Spain, the emperor heard rumours that Fouché and Talleyrand, once bitter enemies, were having interviews at Paris in which Murat, king of Naples, was concerned. At once the sensitive autocrat hurried to Paris, but found nothing to incriminate Fouché. In that year Fouché received the title of duke of Otranto. During the absence of Napoleon in Austria in the campaign of 1809, the British Walcheren expedition threatened for a time the safety of 736 Antwerp. Fouché thereupon issued an order to the prefects of the northern departments of the empire for the mobilization of 60,000 National Guards. He added to the order a statement in which occurred the words: “Let us prove to Europe that although the genius of Napoleon can throw lustre on France, his presence is not necessary to enable us to repulse the enemy.” The emperor’s approval of the measure was no less marked than his disapproval of the words just quoted. The next months brought further causes of friction between emperor and minister. The latter, knowing the desire of his master for peace at the close of the year 1809, undertook on his own account to make secret overtures to the British ministry. A little later Napoleon opened negotiations and found that Fouché had forestalled him. His rage against his minister was extreme, and on the 3rd of June 1810 he dismissed him from his office. However, as it was not the emperor’s custom completely to disgrace a man who might again be useful, Fouché received the governorship of Rome. He went thither, not as governor but as fugitive, for on receiving the emperor’s order to give up certain important documents of his former ministry, he handed over only a few, declaring that the rest were destroyed. At this the emperor’s anger burst forth again, and Fouché on learning, after his arrival at Florence, that the storm was still raging at Paris, prepared to sail to the United States. Compelled, however, by stress of weather and sickness to put back again, he found a mediator in Elisa Bonaparte, grand duchess of Tuscany, thanks to whom he was allowed to settle at Aix and finally to return to his domain of Point Carré. In 1812 he sought vainly to turn Napoleon from the projected invasion of Russia; and on the return of the emperor in haste from Smorgoni to Paris at the close of that year, the ex-minister of police was suspected of complicity in the conspiracy of General Malet, which came so strangely near to success. From this suspicion Fouché cleared himself and gave the emperor useful advice concerning internal affairs and the diplomatic situation. Nevertheless, the emperor, still distrustful of the arch-intriguer, ordered him to undertake the government of the Illyrian provinces. On the break-up of the Napoleonic system in Germany in October 1813 Fouché was ordered to repair to Rome and thence to Naples, in order to watch the movements of Murat. Before Fouché arrived at Naples Murat threw off the mask and invaded the Roman territory, whereupon Fouché received orders to return to France. He arrived at Paris on the 10th of April 1814 at the time when Napoleon was being constrained by his marshals to abdicate.

The conduct of Fouché at this crisis was characteristic. As senator he advised the senate to send a deputation to the comte d’Artois, brother of Louis XVIII., with a view to a reconciliation between the monarchy and the nation. A little later he addressed to Napoleon, then at Elba, a letter begging him in the interests of peace and of France to withdraw to the United States. To the new sovereign Louis XVIII. he sent an appeal in favour of liberty and recommending the adoption of measures which would conciliate all interests. It was not successful, but Fouché remained unmolested.

This was far from satisfying him, and when he found that there were no hopes of advancement, he entered into relations with conspirators who sought the overthrow of the Bourbons. Lafayette and Davout were concerned in the affair, but their refusal to take the course desired by Fouché and other bold spirits led to nothing being done. Soon Napoleon escaped from Elba and made his way in triumph to Paris. Shortly before his arrival at Paris (March 19, 1815) Louis XVIII. sent to Fouché an offer of the ministry of police, which he declined, saying, “It is too late; the only plan to adopt is to retreat.” He then foiled an attempt of the royalists to arrest him, and on the arrival of Napoleon he received for the third time the portfolio of police. That, however, did not prevent him from entering into secret relations with Metternich at Vienna, his aim being then, as always, to prepare for all eventualities. Meanwhile he used all his powers to induce the emperor to popularise his rule, and he is said to have caused the insertion of the words “The sovereignty resides in the people; it is the source of power” in the declaration of the council of state. But the autocratic tendencies of Napoleon could scarcely be held in check, and Fouché seeing the fall of the emperor to be imminent, took measures to expedite it and secure his own interests. On the 22nd of June Napoleon abdicated for the second time, and Fouché was next day elected president of the commission which provisionally governed France. Already he was in touch with Louis XVIII., then at Ghent, and now secretly received the overtures of his agent at Paris. While ostensibly working for the recognition of Napoleon II., he facilitated the success of the Bourbon cause, and thus procured for himself a place in the ministry of Louis XVIII. Even his skill, however, was unequal to the task of conciliating hot-headed royalists who remembered his vote as regicide and his fanaticism as terrorist. He resigned office, and after acting for a brief space as ambassador at Dresden, he retired to Prague. Finally he settled at Trieste, where he died on the 25th of December 1820. He had accumulated great wealth.

Marked at the outset by fanaticism, which, though cruel, was at least conscientious, Fouché’s character deteriorated in and after the year 1794 into one of calculating cunning. The transition represented all that was worst in the life of France during the period of the Revolution and Empire. In Fouché the enthusiasm of the earlier period appeared as a cold, selfish and remorseless fanaticism; in him the bureaucracy of the period 1795-1799 and the autocracy of Napoleon found their ablest instrument. Yet his intellectual pride prevented him sinking to the level of a mere tool. His relations to Napoleon were marked by a certain aloofness. He multiplied the means of resistance even to that irresistible autocrat, so that though removed from office, he was never wholly disgraced. Despised by all for his tergiversations, he nevertheless was sought by all on account of his cleverness. He repaid the contempt of his superiors and the adulation of his inferiors by a mask of impenetrable reserve or scorn. He sought for power and neglected no means to make himself serviceable to the party whose success appeared to be imminent. Yet, while appearing to be the servant of the victors, present or prospective, he never gave himself to any one party. In this versatility he resembles Talleyrand, of whom he was a coarse replica. Both professed, under all their shifts and turns, to be desirous of serving France. Talleyrand certainly did so in the sphere of diplomacy; Fouché may occasionally have done so in the sphere of intrigue.

Bibliography.—Fouché wrote some political pamphlets and reports, the chief of which are Réflexions sur le jugement de Louis Capet (1793); Réflexions sur l’éducation publique (1793); Rapport et projet de loi relatif aux collèges (1793); Rapport sur la situation de Commune-Affranchie [Lyons] (1794); Lettre aux préfets concernant les prêtres, &c. (1801); also the letters of 1815 noted above, and a Lettre au duc de Wellington (1817). The best life of Fouché is that by L. Madelin, Fouché (2 vols., Paris, 1901). The so-called Fouché Memoirs are not genuine, but they were apparently compiled, at least in part, from notes written by Fouché, and are often valuable, though their account of events (e.g. of the negotiations of 1809-1810) is not seldom untrustworthy. For those negotiations see Coquelle, Napoléon et l’Angleterre (Paris, 1903, Eng. trans., London, 1904). For the plots with which Fouché had to deal see E. Daudet, La Police et les Chouans sous le Consulat et l’Empire (Paris, 1895); P.M.C. Desmarest, Témoignages historiques, ou quinze ans de haute police (Paris, 1833, 2nd ed., 1900); É. Picard, Bonaparte et Moreau (Paris, 1905); G.A. Thierry, Conspirateurs et gens de police; le complot de libelles (Paris, 1903) (Eng. trans., London, 1903); H. Welschinger, Le Duc d’Enghien (Paris, 1888); E. Guillon, Les Complots militaires sous le Consulat et l’Empire (Paris, 1894).

(J. Hl. R.)

FOUCHER, SIMON (1644-1696), French philosopher, was born at Dijon on the 1st of March 1644. He was the son of a merchant, and appears to have taken orders at a very early age. For some years he held the position of honorary canon at Dijon, but this he resigned in order to take up his residence in Paris. He graduated at the Sorbonne, and spent the remainder of his life in literary work in Paris, where he died on the 27th of April 1696. In his day Foucher enjoyed considerable repute as a keen opponent of Malebranche. His philosophical standpoint was one of scepticism in regard to external perception. He revived the old arguments of the Academy, and advanced them with much ingenuity against Malebranche’s doctrine. Otherwise 737 his scepticism is subordinate to orthodox belief, the fundamental dogmas of the church seeming to him intuitively evident. His object was to reconcile his religious with his philosophical creed, and to remain a Christian without ceasing to be an academician. His writings against Malebranche were collected under the title Dissertations sur la recherche de la vérité, 1693.

See F. Rabbe, L’Abbé Simon Foucher (1867); C. Jourdain in Dictionnaire des sciences philosophiques (1875), pp. 557-559.


FOUCQUET, JEAN, or Jehan (c. 1415-1485), French painter, born at Tours, is the most representative and national French painter of the 15th century. Of his life little is known, but it is certain that he was in Italy about 1437, where he executed the portrait of Pope Eugenius IV., and that upon his return to France, whilst retaining his purely French sentiment, he grafted the elements of the Tuscan style, which he had acquired during his sojourn in Italy, upon the style of the Van Eycks, which was the basis of early 15th-century French art, and thus became the founder of an important new school. He was court painter to Louis XI. Though his supreme excellence as an illuminator and miniaturist, of exquisite precision in the rendering of the finest detail, and his power of clear characterization in work on this minute scale, have long since procured him an eminent position in the art of his country, his importance as a painter was only realized when his portraits and altarpieces were for the first time brought together from various parts of Europe in 1904, at the exhibition of the French Primitives held at the Bibliothèque Nationale in Paris. One of Foucquet’s most important paintings is the diptych, formerly at Notre Dame de Melun, of which one wing, depicting Agnes Sorel as the Virgin, is now at the Antwerp Museum and the other in the Berlin Gallery. The Louvre has his oil portraits of Charles VII., of Count Wilczek, and of Jouvenal des Ursins, besides a portrait drawing in crayon; whilst an authentic portrait from his brush is in the Liechtenstein collection. Far more numerous are his illuminated books and miniatures that have come down to us. The Brentano-Laroche collection at Frankfort contains forty miniatures from a Book of Hours, painted in 1461 for Etienne Chevalier who is portrayed by Foucquet on the Berlin wing of the Melun altarpiece. From Foucquet’s hand again are eleven out of the fourteen miniatures illustrating a translation of Josephus at the Bibliothèque Nationale. The second volume of this MS., unfortunately with only one of the original thirteen miniatures, was discovered and bought in 1903 by Mr Henry Yates Thompson at a London sale, and restored by him to France.

See Œuvres de Jehan Foucquet (Curmer, Paris, 1866-1867); A. de Champeaux and P. Gauchery, Œuvres d’art exécutées pour le duc de Berry; “Facsimiles of two histories by Jean Foucquet” from vols. i. and ii. of the Anciennetés des Juifs (London, 1902); Charles Blanc, Histoire des peintres de toutes les écoles (introduction); and Georges Lafenestre, Jehan Fouquet (Paris, 1902).


FOUGÈRES, a town of north-western France, capital of an arrondissement in the department of Ille-et-Vilaine, 30 m. N.E. of Rennes by rail. Pop. (1906) 21,847. Fougères is built on the summit and slopes of a hill on the left bank of the Nançon, a tributary of the Couesnon. It was formerly one of the strongest places on the frontier towards Normandy, and it still preserves some portions of its medieval fortifications, notably a gateway of the 15th century known as the Porte St Sulpice. The castle, which is situated in the lower part of the town, directly overlooking the Nançon, is now a picturesque ruin, but gives abundant evidence in its towers and outworks of its former strength and magnificence. The finest of the towers was erected in 1242 by Hugues of Lusignan, and named after Mélusine, the mythical foundress of the family. The churches of St Léonard and St Sulpice both date, at least in part, from the 15th century. An hôtel de ville and a belfry, both of the 15th century, are of architectural interest, and the town possesses many curious old houses. There is a statue of General B. de Lari Coisière (d. 1812), born in the town. Fougères is the seat of a subprefect, and has a tribunal of first instance, a chamber of commerce and a communal college. It is the chief industrial town of its department, being a centre for the manufacture of boots and shoes; tanning and leather-dressing and the manufacture of sail-cloth and other fabrics are also important industries. Trade is in dairy produce and in the granite of the neighbouring quarries. Fougères frequently figures in Breton history from the 11th to the 15th century. It was taken by the English in 1166, and again in 1448; and the name of Surienne, the captor on the second occasion, is still borne by one of the towers of the castle. In 1488 it was taken by the troops of Charles VIII. under la Trémoille. In the middle ages Fougères was a lordship of some importance, which in the 13th century passed into the possession of the family of Lusignan, and in 1307 was confiscated by the crown and afterwards changed hands many times. In 1793, during the wars of the Vendée, it was occupied by the insurgents.


FOUILLÉE, ALFRED JULES EMILE (1838-  ), French philosopher, was born at La Pouëze on the 18th of October 1838. He held several minor philosophical lectureships, and from 1864 was professor of philosophy at the lycées of Douai, Montpellier and Bordeaux successively. In 1867 and 1868 he was crowned by the Academy of Moral Science for his work on Plato and Socrates. In 1872 he was elected master of conferences at the École Normale, and was made doctor of philosophy in recognition of his two treatises, Platonis Hippias Minor sive Socratica contra liberum arbitrium argumenta and La Liberté et le déterminisme. The strain of the next three years’ continuous work undermined his health and his eyesight, and he was compelled to retire from his professorship. During these years he had published works on Plato and Socrates and a history of philosophy (1875); but after his retirement he further developed his philosophical position, a speculative eclecticism through which he endeavoured to reconcile metaphysical idealism with the naturalistic and mechanical standpoint of science. In L’Évolutionnisme des idées-forces (1890), La Psychologie des idées-forces (1893), and La Morale des idées-forces (1907), is elaborated his doctrine of idées-forces, or of mind as efficient cause through the tendency of ideas to realize themselves in appropriate movement. Ethical and sociological developments of this theory succeed its physical and psychological treatment, the consideration of the antinomy of freedom being especially important. Fouillée’s wife, who by a previous marriage was the mother of the poet and philosopher Jean Marie Guyau (1854-1888), is well known, under the pseudonym of “G. Bruno,” as the author of educational books for children.

His other chief works are: L’Idée moderne du droit en Allemagne, en Angleterre et en France (Paris, 1878); La Science sociale contemporaine (1880); La Propriété sociale et la démocratie (1884); Critique des systèmes de morale contemporains (1883); La Morale, l’art et la religion d’après Guyau (1889); L’Avenir de la métaphysique fondée sur l’expérience (1889); L’Enseignement au point de vue national (1891); Descartes (1893); Tempérament et caractère (2nd ed., 1895); Le Mouvement positiviste et la conception sociologique du monde (1896); Le Mouvement idéaliste et la réaction contre la science positive (1896); La Psychologie du peuple français (2nd ed., 1898); La France au point de vue moral (1900); L’Esquisse psychologique des peuples européens (1903); Nietzsche et l’ “immoralisme” (1903); Le Moralisme de Kant (1905).


FOULD, ACHILLE (1800-1867), French financier and politician, was born at Paris on the 17th of November 1800. The son of a rich Jewish banker, he was associated with and afterwards succeeded his father in the management of the business. As early as 1842 he entered political life, having been elected in that year as a deputy for the department of the Hautes Pyrénées. From that time to his death he actively busied himself with the affairs of his country. He readily acquiesced in the revolution of February 1848, and is said to have exercised a decided influence in financial matters on the provisional government then formed. He shortly afterwards published two pamphlets against the use of paper money, entitled, Pas d’Assignats! and Observations sur la question financière. During the presidency of Louis Napoleon he was four times minister of finance, and took a leading part in the economical reforms then made in France. His strong conservative tendencies led him to oppose the doctrine of free trade, and disposed him to hail the coup d’état and the new empire. On the 25th of January 1852, in consequence of the decree confiscating the property of the Orleans family, 738 he resigned the office of minister of finance, but was on the same day appointed senator, and soon after rejoined the government as minister of state and of the imperial household. In this capacity he directed the Paris exhibition of 1855. The events of November 1860 led once more to his resignation, but he was recalled to the ministry of finance in November of the following year, and retained office until the publication of the imperial letter of the 19th of January 1867, when Émile Ollivier became the chief adviser of the emperor. During his last tenure of office he had reduced the floating debt, which the Mexican war had considerably increased, by the negotiation of a loan of 300 millions of francs (1863). Fould, besides uncommon financial abilities, had a taste for the fine arts, which he developed and refined during his youth by visiting Italy and the eastern coasts of the Mediterranean. In 1857 he was made a member of the Academy of the Fine Arts. He died at Tarbes on the 5th of October 1867.


FOULIS, ANDREW (1712-1775) and ROBERT (1707-1776), Scottish printers and publishers, were the sons of a Glasgow maltman. Robert was apprenticed to a barber; but his ability attracted the attention of Dr Francis Hutcheson, who strongly recommended him to establish a printing press. After spending 1738 and 1739 in England and France in company with his brother Andrew, who had been intended for the church and had received a better education, he started business in 1741 in Glasgow, and in 1743 was appointed printer to the university. In this same year he brought out Demetrius Phalereus de elocutione, in Greek and Latin, the first Greek book ever printed in Glasgow; and this was followed in 1774 by the famous 12mo edition of Horace which was long but erroneously believed to be immaculate: though the successive sheets were exposed in the university and a reward offered for the discovery of any inaccuracy, six errors at least, according to T.F. Dibdin, escaped detection. Soon afterwards the brothers entered into partnership, and they continued for about thirty years to issue carefully corrected and beautifully printed editions of classical works in Latin, Greek, English, French and Italian. They printed more than five hundred separate publications, among them the small editions of Cicero, Tacitus, Cornelius Nepos, Virgil, Tibullus and Propertius, Lucretius and Juvenal; a beautiful edition of the Greek Testament, in small 4to; Homer (4 vols. fol., 1756-1758); Herodotus, Greek and Latin (9 vols. 12mo, 1761); Xenophon, Greek and Latin (12 vols. 12mo, 1762-1767); Gray’s Poems; Pope’s Works; Milton’s Poems. The Homer, for which Flaxman’s designs were executed, is perhaps the most famous production of the Foulis press. The brothers spared no pains, and Robert went to France to procure manuscripts of the classics, and to engage a skilled engraver and a copper-plate printer. Unfortunately it became their ambition to establish an institution for the encouragement of the fine arts; and though one of their chief patrons, the earl of Northumberland, warned them to “print for posterity and prosper,” they spent their money in collecting pictures, pieces of sculpture and models, in paying for the education and travelling of youthful artists, and in copying the masterpieces of foreign art. Their countrymen were not ripe for such an attempt, and the “Academy” not only proved a failure but involved the projectors in ruin. Andrew died on the 18th of September 1775, and his brother went to London, hoping to realize a large sum by the sale of his pictures. They were sold for much less than he anticipated, and Robert returned broken-hearted to Scotland, where he died at Edinburgh on the 2nd of June 1776. Robert was the author of a Catalogue of Paintings with Critical Remarks. The business was afterwards carried on under the same name by Robert’s son Andrew.

See W.J. Duncan, Notices and Documents illustrative of the Literary History of Glasgow, printed for the Maitland Club (1831), which inter alia contains a catalogue of the works printed at the Foulis press, and another of the pictures, statues and busts in plaster of Paris produced at the “Academy” in the university of Glasgow.


FOULLON, JOSEPH FRANÇOIS (1717-1789), French administrator, was born at Saumur. During the Seven Years’ War he was intendant-general of the armies, and intendant of the army and navy under Marshal de Belle-Isle. In 1771 he was appointed intendant of finances. In 1789, when Necker was dismissed, Foullon was appointed minister of the king’s household, and was thought of by the reactionary party as a substitute. But he was unpopular on all sides. The farmers-general detested him on account of his severity, the Parisians on account of his wealth accumulated in utter indifference to the sufferings of the poor; he was reported, probably quite without foundation, to have said, “If the people cannot get bread, let them eat hay.” After the taking of the Bastille on the 14th of July, he withdrew to his estate at Vitry and attempted to spread the news of his death; but he was recognized, taken to Paris, carried off with a bundle of hay tied to his back to the hôtel de ville, and, in spite of the intervention of Lafayette, was dragged out by the populace and hanged to a lamp-post on the 22nd of July 1789.

See Eugène Bonnemère, Histoire des paysans (4th ed., 1887), tome iii.; C.L. Chassin, Les Élections et les cahiers de Paris en 1789. (Paris, 1889), tomes iii. and iv.


FOUNDATION (Lat. fundatio, from fundare, to found), the act of building, constituting or instituting on a permanent basis; especially the establishing of any institution by endowing or providing it with funds for its continual maintenance. The word is thus applied also to the institutions so established, such as a college, monastery or hospital; and the terms “on the foundation,” or “foundationer,” are used of members of such a college or society who enjoy, as fellows, scholars, &c., the benefits of the endowment. Formerly “foundation” also meant the charter or incorporation of any such institution or society, and it is still applied to the funds used for the endowment of such institutions.

The terms “old foundation” and “new foundation” used in connexion with the organizing of English cathedral chapters have no reference to the age of the cathedrals. At the time of the Reformation under Henry VIII. the old college chapters were left unchanged, and are referred to as the “old foundations,” but the monastic chapters were all suppressed, consequently new chapters had to be formed for their cathedrals and these constitute the “new foundations.”

“Foundation” also means the base (natural or artificial) on which any erection is built up; generally made below the level of the ground (see Foundations below). A foundation-stone is one of the stones at the base of a building, generally a corner-stone, frequently laid with a public ceremony to celebrate the commencement of the building. The term is also applied to the ground-work of any structure, such as, in dress-making, the underskirt over which the real skirt is hung, any material used for stiffening purposes, as “foundation muslin or net.” In knitting or crochet the first stitches onto which all the rest are worked are called the “foundation chain.” In gem-cutting the “foundation-square” is the first of eight squares round the edges of a brilliant made in bevel planes and from which the angles are all removed to form three-corner facets.


FOUNDATIONS, in building. The object of foundations is to distribute the weight of a structure equally over the ground. In the construction of a building the weights are concentrated at given points on piers, columns, &c., and these foundations require to be spread so as to reduce the weight to an average. In the preparation of a foundation care must be taken to prevent the lateral escape of the soil or the movement of a bed upon sloping ground, and it is also necessary to provide against any damage by the action of the atmosphere. The soils met with in ordinary practice, such as rock, gravel, chalk, clay and sand, vary as to their capabilities of bearing weight. There is no provision in any English building acts as to the load that may be placed on any of these soils, but under the New York Building Code it is provided that, where no test of the sustaining power of the soil is made, different soils, excluding mud, at the bottom of the footings shall be deemed to safely sustain the following loads to the superficial foot:

  per sq. ft.
Soft clay 1 ton.
Ordinary soft clay and sand, together in layers, wet and springy 2 tons.
Loam, clay or fine sand, firm and dry 3 tons.
Very firm coarse sand, stiff gravel or hard clay 4 tons.

739

A comparison of the pressure exerted on an ordinary foundation by the walls of the several thicknesses and heights provided for by the London Building Act of 1894, and a comparison of a few of the principal authorities, will be Load on foundation. found useful in helping us to arrive at a decision as to what can safely be allowed. Take as an example a wall of the warehouse class, 70 ft. high, whose section at the base for a height of 27 ft. is 2½ bricks thick (or 22½ in.), and for the same distance in height again is 2 bricks thick (or 18 in.), the remainder to the top being 1½ bricks thick (or 14 in.). The weight of brickwork per foot run of such a wall is 4.05 tons on any area of 3.75 ft. super. of brickwork. According to the act the concrete is to project 4 in. on each side; we have then an additional area of .66 ft. super. to add, thus making the total foundation area of each foot run of wall 4.41 ft. super. to take a weight of 4.05 tons or nearly a ton per foot super. (viz. .9 ton.)

Another factor must, however, be taken into consideration, viz. the weight distributed from the loaded floor and from the roof. In this case there would be at least six floors, and the entire weight could hardly be taken at less than 6 tons, which would give a total weight of 10.05 tons on an area of 4.41 ft. super. or a load of 2.28 tons per foot super. This is on the assumption that no extra weight has been thrown on the foundations by openings or piers, or by girders, &c., in which case, in addition to the work being executed in cement, the foundations should be increased in area. Piers always involve a great increase of weight on the foundations, and in very many instances this increased weight, instead of being provided for by increasing the area of the foundations and so reducing the weight per foot super., is only partly met by the improper method of merely increasing the depth of the concrete, while keeping the same projection of concrete round the footings as for the walls. As an example take an iron column to carry a safe load of 80 tons, standing on a York stone template, and in turn supported by a brick pier 22½ in. square. In this case we should have, after allowing for the projection of concrete on either side, an area of 4 ft. 5 in. square, or 19.6 ft. super., and this would give a pressure of 4.1 tons per foot on the foundations, or almost twice as much as in the previous example of a warehouse wall. Here, instead of increasing the depth of the concrete, it would be necessary to increase its width; if it were made 6 ft. square, we should have an area of 36 ft. super. to take the 80 tons, and thus the pressure would only be 2.2 tons per foot, and the cost of the foundation be much the same.

If we compare a section of wall of the dwelling-house class, as prescribed by the London Building Act, we find that, taking a wall 50 ft. high and having a thickness at base of 22½ in. as for the warehouse wall to which we have referred, we have a wall weighing 3.75 tons per foot super. on an area of 4.41 feet super., or .85 ton per foot without weight of floors and roof as against the .9 ton in the warehouse example. To this must be added the weight of, say, 5 floors and roof at a total of 3 tons per foot run of wall, and we then have an aggregate of 6.75 tons per foot run and 1.50 tons per foot super. as against 2.28 tons in the warehouse class.

If we turn from the act to text-books we find that Colonel Seddon in the Aide Memoir gives the load which ordinary foundations will bear as a safe load per foot super. as follows:

  tons.
Rock, moderately hard  9
Rock of strength of good concrete  3
Rock, very soft 1.8
Firm earth 1 to 1½
Hard clay 1 to 1½
Clean dry gravel and clean sharp sand prevented from spreading sideways 1 to 1½

Most of the work in London may be classed under one of the latter heads, and according to this table we have, when we erect walls in accordance with the building act, to overload our foundations.

As to the possibility of spreading weights, we have as an example the chimney at Adkin’s Soap Works in Birmingham, 312 ft. high, so arranged that its pressure on the foundations is only 1½ tons per foot super.; also the great St Rollox chimney at Glasgow, which has a pressure of 1¾ tons; the weight of the Eiffel Tower (7500 tons) is so spread over 4 bases, each 130 ft. square, that the pressure is only .117 ton, or 213 cwt., per foot super. The Tower Bridge has a load of 16 tons per foot on the granite bed under the columns of towers, reduced by spreading to an actual pressure on the clay foundation of 4 tons. The piers under the Holborn Viaduct have a load of 2¼ tons only, those of the Imperial Institute 2¼ tons, and those of the destructor cells and chimney shaft at Great Yarmouth 4 tons 6¾ cwt. per foot super. From these various examples it would appear that on sound clay or gravel foundation a load of from 2¼ to 4 tons may be employed with safety.

One of the first and most important requirements in preparing drawings for a large building is to ascertain the nature of the subsoil and strata at different levels over the proposed site, so as to be able to arrange the footings accordingly at the Trial borings. various depths and to decide as to the various forms and methods to be employed. For this purpose trial holes or borings are sunk until a suitable bed or bottom is found, upon which the concrete foundation may safely be put. If no such solid bottom is found, as often happens near the water side, special foundations must be employed, such as dock, gridiron, cantilever and pile foundations, &c., all of which will be described hereafter. As examples of the varying subsoils we may mention the following, in which will be noticed the great depths dug before getting through the made ground: At the Bank of England there were 22 ft. of made ground resting on 4 ft. of gravel. Some of the made ground was of ancient date, and preserved relics of Roman occupation. In some parts the subsoils have been excavated for ballast or gravel, as at Kensington, or for brick earth, as at Highbury, and the pits filled in with rubbish. Rock, which forms an excellent and unchanging foundation in one situation, may prove a dangerous foundation in another. Thus chalk forms a good limestone foundation in certain positions, but when it dips towards a slope or a cliff with an outcrop of the gault or underlying clay, it is a very unsuitable foundation for any building, as the landslips in the Isle of Wight and on the Dorsetshire coast bear witness. A boring made in Tallis Street, near the Thames embankment, showed: (1) 18 in. ballast, dirty; (2) 6 in. greensand, wet and dirty; (3) 2 ft. peat clay; (4) 6 in. greensand; (5) 5½ ft. peaty bog; (6) 9 ft. running sand; and (7) 4 ft. clean ballast, resting at a depth of 23 ft. below the ground line upon blue clay. A boring at Highbury New Park gave: (1) 2 ft. made ground, (2) 18 ft. loam, (3) 9 ft. sand, (4) 4 ft. peat, and (5) 8 ft. gravel and sand. These examples show that while trial holes should always be made before designing a foundation, to ascertain the nature of the subsoil, care must be taken not to calculate upon uniformity. Thus at the block 2 of the admiralty extension new buildings (London), one of the trial holes upon the south-west side of the old buildings showed the clay to be about 29½ ft. below the surface of the ground, while actual excavation proved the dip of the clay to be such that in the execution of the new building it became necessary to underpin the north-west corner of the old building at the deepest part 42 ft. below the ground. The foundations of block 1 of the new admiralty buildings are placed in a dock, built upon the London clay at a depth of 30 ft. in solid concrete 6 ft. thick. At the Hotel Victoria, in Northumberland Avenue (London), the various subsoils are as follows: (1) 38½ ft. made ground clay and gravel mixed, (2) 4 ft. gravel and sand, (3) 6 ft. rising sand; (4) 2 ft. fine ballast, and at a depth of 50 ft. blue clay. At the south end the clay was 43 ft. down and at the north end 37 ft. The front wall was constructed on a concrete bed 9 ft. wide. The site was surrounded by a similar wall of concrete about 6 ft. wide, forming a species of boxes, and the whole was covered with a depth of 6 ft. of concrete upon which the walls were raised. The foundation for 53 Parliament Street, where running sand was encountered, was constructed with short piles, 7 or 8 ft. long and 6 in. diam., pointed and placed as close together as possible over the whole foundation, the tops were then sawn off level, and a concrete raft, 7 or 8 ft. thick, was built over the whole area. At the Institution of Civil Engineers, Great George Street, Westminster, the foundations to the two party walls upon each side of the building were carried down about 22 ft. below the pavement level, that on the west side being 22 ft. deep and that on the east side 24 ft.

The London Building Act and the model by-laws prohibit the erection of buildings on sites that have been used as “shoots” for faecal matter or vegetable refuse, and in such cases the objectionable material must be removed prior to the Construction. commencement of building operations, and the holes from which it was taken filled up with dry brick or other rubbish well rammed. Foundations are usually executed by excavators or navvies, and the tools and implements used are boning rods, level pegs, lines, spirit level, pickaxe, various shovels, wheel-barrow, rammer or punner, &c. In digging the ordinary trenches and 740 excavations, should the ground be loose, planking and strutting have to be employed. This consists of rough boarding put along the sides of the trenches and wedged tight with waling pieces and struts; this work is done by navvies. Figs. 1 and 2 show the general forms of planking and strutting for the different soils.

Fig. 1.
Fig. 2.

In very large works of excavation in soft soil a steam digger is used for the bulk of the work. It consists of a large steel bucket with a cutting edge; this is lowered by means of a crane into the excavation, and on being withdrawn cuts off a portion of soil which is hoisted and deposited in carts for removal to any desired position within the radius commanded by the crane. The work of trimming the excavation to a regular shape must always be done by manual labour.

Concrete for filling into the foundations is usually mixed by navvies; for large works it is sometimes mixed by machinery.

In order that the work of excavating and constructing the foundations may proceed in a water-logged site, pumps have to be employed, and where the inrush of water is great it is usual to sink a sump hole lower than the depth required for the foundations, and to use a steam pump kept going day and night.

The foundation of a wall is required to be as follows in accordance with the London Building and Amendment Acts: “The projection of the bottom of the footings of every wall on each side of the wall shall be at least equal to half of the thickness of the wall at its base, unless an adjoining wall interferes, in which case the projection may be omitted where that wall adjoins, and the diminution of the footings of every wall shall be formed in regular offsets and the height from the bottom of such footing to the base of the wall shall be at least equal to two-thirds of the thickness of the wall at its base.” (See Brickwork.) The base of a wall is the thickness above the footing; the footing is the brickwork built directly on the top of the concrete and diminishing in width in every course. Thus: “The projection of the bottom footing to be equal to one-half the thickness of wall on both sides” means that a 13½-in. wall would require to have three courses of footings, the bottom one being 27 in. wide. “The height from the bottom of such footing to the base of the wall shall be at least equal to two-thirds the thickness of wall at its base” means that in the case of a 13½-in. wall the height of footings would have to be 9 in., or three courses of brickwork, each measuring 3 in.

The New York Building Code enters more fully into the requirements for the foundation of walls as regards depth than that in use in London. Section 25, Part 5, requires that every building, except buildings erected upon solid rock, or upon wharves and piers on the water front, shall have foundations of brick, stone, iron or concrete laid not less then 4 ft. below the surface of the earth, on the solid ground or level surface of rock, or upon piles or ranging timbers when solid earth or rock is not found. Piles intended to sustain a wall, pier or post, shall be spaced not more than 36 in. nor less than 20 in. on centres; they must be driven to a solid bearing if practicable, and their number must be sufficient to support the superstructure proposed. No pile shall be used of less dimensions than 5 in. at the small end and 10 in. at the butt for short piles, or piles 20 ft. or less in length. No pile shall be weighted with a load exceeding 40,000 ℔. When a pile is not driven to refusal, its safe sustaining power shall be determined by the following formula: twice the weight of the hammer in tons multiplied by the height of the fall in feet divided by the least penetration of pile under the last blow in inches plus one. There are also further requirements as to piles, &c., and the commissioner of buildings must be notified when the piles are to be driven.

The New York Code, Section 26, further goes on to say that foundation walls shall be constructed to include all walls and piers built below the curb level or nearest tier of beams to the curb, to serve as supports for the walls, piers, columns, girders, posts or beams. Foundation walls shall be built of stone, brick, Portland cement concrete, iron or steel. If built of rubble stone or Portland cement concrete, they shall be at least 8 in. thicker than the wall above them to a depth of 12 ft. below the curb level, and for every additional 10 ft. or part thereof deeper, they shall be increased 4 in. in thickness. If built of brick, they shall be at least 4 in. thicker than the wall next above them to a depth of 12 ft. below the curb level, and for every additional 10 ft. or part thereof deeper, they shall be increased 4 in. in thickness. The footing or base course shall be of stone or concrete, or both, or of concrete and stepped up brickwork of sufficient thickness and area to bear safely the weight to be imposed thereon. If the footing or base course be of concrete, the concrete shall not be less than 12 in. thick; if of stone, the stones shall not be less than 2 × 3 ft. and at least 8 in. in thickness for walls, and not less than 10 in. in thickness if under piers, columns or posts. The footing or base course, whether formed of concrete or stone, shall be at least 12 in. wider than the bottom width of walls, and at least 12 in. wider on all sides than the bottom width of said piers, columns or posts. If the superimposed load is such as to cause undue transverse strain on a footing projecting 12 in., the thickness of such footing is to be increased so as to carry the load with safety. For small structures and for small piers sustaining light loads the commissioner of buildings having jurisdiction may, in his discretion, allow a reduction in the thickness and projection specified for footing or base courses. All base stones shall be bedded and laid crosswise, edge to edge. If stepped-up footing of brick is used in place of stone above the concrete, the offsets if laid in single courses shall each not exceed 1½ in., or, if laid in double courses, then each shall not exceed 3 in. offsetting the first course of brickwork back one-half the thickness of the concrete base, so as properly to distribute the load to be imposed thereon. It will be seen by the foregoing that the American acts are far more extensive than in London. The London Building Act mentions that the footings of a wall shall rest upon the solid ground or concrete or upon other solid substructure. The building act amendment says: “The foundations of the walls of every house or building shall be formed of a bed of good concrete not less than 9 in. thick, and projecting at least 4 in. on each side of the lowest course of footings.”

Various Types of Foundations.—The most natural foundations for walls are those constructed where the walls are built directly upon the ground; this is only possible where the ground is very hard or consists of rock, and in either of these cases the ground is simply levelled and the building commenced.

The next and most universally recognized method, which might safely be said to be adopted in 95% of all modern buildings, is the system of placing a bed of concrete under the walls, digging trenches where the walls are to come until a solid bottom is reached, and in these laying the concrete. The London Building Act requires this concrete bed to be at least 4 in. wider than the bottom course of footings on each side of the wall, but it is generally made 6 in. wider on each side and in general circumstances the depth of the concrete is varied according to the weight placed upon it.

Where a site is in close proximity to a river or old water-course, &c., where deep basements are excavated, or where the ground lies low, naturally water is met with, and where water is the ground is soft. It is here that special foundations are required.

In certain cases it is necessary to use concrete legs or stilts. These are placed in such positions as to take the weights of the building, and sunk to depths of 40 ft. more or less as the case may require according to the nature of the ground; and on Concrete piers, legs, or stilts. the tops of these stilts concrete arches or lintels are turned over (fig. 3). As an example of the stilt principle, mention may be made of some premises at Stratford and a church at South Bermondsey, London, in which concrete piers were sunk at 12 ft. centres apart and 4½ ft. square, in pot holes dug out of made ground; then concrete arches were formed over the intervening untrustworthy ground with a minimum thickness of 18 in. or the piers were connected by concrete lintels 3 ft. thick in which steel joists were embedded. At Sion College, Victoria Embankment, London, the foundations were formed with cement concrete stilts or piers 8 ft. square, and going down to the London clay; from the tops of these stilts brick arches were turned, spanning the spaces between the piers, and upon these arches the walls were built.

Pile foundations, used in the case of soft ground, for small works, consist either of stout scaffold poles or of timbers varying from 6 in. to 12 in. square according to requirements (fig. 4). The bottom ends of these timbers have an iron shoe with a point, so as to Pile foundations. be easily driven into the ground, and the tops of the timbers have an iron band round, so that when the timbers are being driven in 741 the band prevents them from splitting (fig. 5). The methods of driving these piles are various. The usual plan is to erect a temporary structure, upon one side of which is a guide path faced with sheet-iron so as to give a smooth face. Up and down this guide path a heavy iron weight, called a monkey, is worked; the monkey is hoisted to the top of the guide path by means of a crab worked by hand or steam, and when released descends with a good force, and so drives the piles into the ground. The monkey usually weighs from 2 cwt. to 10 cwt. and is allowed a drop of 15 to 40 ft.

Fig. 3.

Piles are driven all round under the walls at varying intervals or under piers where the weights of a building are to be concentrated. In the erection of the Chicago public library four Norway pine piles, each with an average diameter of 13 in., were driven to a depth of 52½ ft. and loaded with a dead load of 50.7 tons per pile for a period of two weeks, and no settlement taking place 30 tons per pile was adopted as a safe load. The following are some examples of loads used in practice: passenger station, Harrison Street, Chicago, piles 50 ft. in length, each carrying 25 tons; elevator, Buffalo, N.Y., piles 20 ft. in length, weight 25 tons; Trinity church, Boston, 2 tons; Schiller building, Chicago, 55 tons per pile, but in this case the building settled considerably. All timber grillage and the tops of all piles should be kept below the lowest water level, and be capped with concrete or stone. In Boston it is obligatory to cap with blocks of granite.

Fig. 4.

Another form of foundation takes the shape of Portland cement concrete blocks, and is used chiefly for bridges and in marshy land, &c. In some cases cylinders of brickwork are built, and the centres are filled with blocks of concrete and grouted Concrete piles. in. The Yarmouth destructor cells and chimney shaft were built in this way; the cylinders were constructed of 9 in. brickwork built in Portland cement, the lower 4 ft. being encased in a wooden drum with cutting edge sunk into the gravel and sand at least 2 ft. The cylinders were sunk by the aid of a grab, the bottom being levelled and the concrete blocks laid by a diver. Use is also made of piles consisting of Portland cement concrete having steel rods embedded in it, and provided with iron shoes and head for driving (fig. 6).

Fig. 5. Fig. 6. Fig. 7. Fig. 8.

Cast iron screw piles (fig. 7) used in very loose sandy soils, consist of large hollow cast iron columns with flat screw blades cast on the lower ends. The projection of this screw from the pile may vary from 9 in. to 18 in. with a pitch of from one-quarter to one-half of the projection, the blade making a little over one turn round the shaft. For most requirements a diameter of screw from 3½ to 4½ ft. will be found sufficient, a sandy foundation requiring the largest. The lower end of the tube is generally left open, the edge being bevelled and occasionally provided with teeth to assist in cutting into and penetrating the soil.

Another system of piling known as sheet piling (fig. 8), consists in driving piles into the ground at intervals, and between these, also driven into the ground, are timbers measuring 3 in. by 9 in., which form a wall to keep the soft earth up under the building. In this way the earth is prevented from spreading out and so causing the building to settle unevenly.

Another kind of foundation, known as plank foundation (fig. 9), Plank foundations. consists of elm planks, about 9 in. by 3 in. laid across the trench and spiked together; on the top of these are laid similar planks but at right angles to the last, and upon the platform thus formed the wall is built. This method is used in soft ground.

Caissons are usually employed by engineers for the construction of the foundations of bridge piers, but instances of their use in Caissons. foundations for buildings are to be found in the American Surety and the Manhattan Life Insurance buildings, New York City. The latter building is 242 ft. high to the parapet, and the dome and tower rise 108 ft. higher. The building is carried on 16 solid masonry piers, taken down 54 ft. below the street level to solid rock, and these piers support the 34 cast iron columns upon which the building is erected. The piers to each building were constructed by the pneumatic caisson process (see Caisson).

Fig. 9.

A good plan for foundations when the ground is loose and sandy is to build upon wells of brickwork, a method which has been successfully practised in Madras. The wells are made circular, about 3 ft. in diameter and one brick thick. Well foundations. The first course is laid and cemented together on the surface of the ground when it is dry, and the earth is excavated inside and round about it to allow it to sink. Then another is laid over it and again sunk. The well is thus built downwards. The brickwork is sunk bodily to a depth of 10 ft. or more, according 742 to building to be erected upon it, and the interior is filled up with rubble work. All the public buildings at Madras were erected upon foundations of this kind. Well foundations were employed under the city hall, Kansas City, and the Stock Exchange, Chicago.

Fig. 10.

Coffer dams are wooden structures used to keep back the water whilst putting in foundations on the waterside, and are constructed with two rows of timbers, 12 in. square as piles spaced about 6 ft. apart, and filled in between with a double row Coffer dams. of 2 in. or 3 in. boards, the space between the rows being packed with clay puddle (fig. 10). The general rule for the thickness of a coffer dam is to make it equal to the depth of water. An interesting example of a coffer dam is that at the Keyham dock extension, where piles varied in length from 65 ft. to 85 ft. They were driven in a double row 5 ft. apart, and over 13,000 were used.

Fig. 11.

Dock foundations are constructed after the fashion of a large concrete tank, and are adapted to large sites where a difficulty arises as to the ingress of water. They are considered the best method of constructing a building on soft ground Dock foundations. and of keeping a building dry (fig. 11). This type of foundation was used at the new colonial office, Whitehall, London, and the new admiralty buildings at St James’s Park, London. A few buildings treated after the style of a dock, but in some instances without the enclosing walls, are the following: At the admiralty buildings already mentioned a concrete retaining wall completely surrounds the exterior below the ground, and is joined up to the underpinning work; the whole site being covered with concrete 6 ft. thick, a huge tank is formed of an average inside clear depth of 20 ft. in which the basements are built. The new “Old Bailey” buildings in Newgate Street, London, are constructed on a concrete table 5 ft. thick, as also are the Army and Navy Auxiliary Stores, Victoria Street. At Kennet’s Wharf, near Southwark Bridge, a concrete table, 8 ft. thick, was spread all over the site, with an extra thickness under the walls. Foundations formed similarly to dock foundations, but in addition having steel joists and rods inserted in the thickness of the concrete table, to tie the whole together, are known as gridiron foundations.

In the Hennebique concrete system, all beams, &c., are formed with small rods and then surrounded with concrete; it is designed for floors and for spreading the weight of a building over an extended foundation on soft ground.

Where a heavy wall is to be built against an old one and there is not sufficient room for the foundations, the plan is adopted of building pier foundations at some distance from the proposed new wall. On the top of these piers rest Cantilever foundations. steel cantilevers over steel pin rockers upon cast iron bedplates; the cantilevers are secured at one end to a column, while the other ends go through the full thickness of the new wall. Upon these last ends is placed a steel girder upon which the wall is built. This construction (fig. 12) has been used in America, and in the Ritz Hotel, Piccadilly, London.

Another form of cantilever foundations was employed in the case of some premises at Carr’s Lane, Birmingham, partly built over the Great Western railway tunnel (fig. 13). In this instance large piers were built below the ground at the side of the tunnel. From the tops of these piers large steel cantilevers were erected projecting over the crown of the tunnel, and on these steel girders were fixed and the building constructed upon them.

In modern Tunis, a section of which city is built on marshy ground, the subsoil is an oozy sediment, largely deposited by the sewage water from the ancient or Arab quarter of the city, which is situated on an adjacent Foundations in Tunis. hill. This semi-fluid mud has a depth of about 33 ft. To prepare the soil for supporting an ordinary house, pits from 8 ft. to 10 ft. square are excavated to a depth of about 10 ft., to the level of the ground water. A mixture is made of the excavated soil and powdered fat lime, procured from clinkers and unburnt stone from the lime-kilns, which soon crumbles to fine dust when exposed to the air. The mixture is thrown into pits in layers about 12 in. thick and rammed down for a very long time by specially trained labourers. A gang of 15 or 20 men will work at least 10 or 12 days ramming for the foundations of a moderate-sized house. An extremely hard bed is thus obtained, reaching to within 18 in. of the surface of the ground, and on this artificial bed the foundations of the building are laid. Although this method of construction is crude, it is stated that the practical results are superior to those obtained by using piles, concrete or other recognized methods, and in all cases the cost is much less, for labour is cheap.

Fig. 12.

A novel and interesting foundation was designed for a signal station at Cape Henlopen, Delaware. This is built on top of the highest sandhill at Cape Henlopen, so that the observer may have an unobstructed Building on sand. view; it rises about 80 ft. above the level of the sea and is exposed to all winds and weather, while it is absolutely required that it shall stand firmly planted in such a way that even a hurricane shall not shake it or make it tremble, since that would affect the sight of the telescope in the observatory. The usual mode of securing such a building is by means of a foundation of screw piles or of heavy timbers sunk into the sand; this method, however, has the disadvantage that if the wind shifts the sand away from around the foundation, it becomes undermined and its effect is destroyed. To avoid such an accident, recourse was had to the following design, which was considered to be cheap and at the same time to provide an effective anchorage. The building is entirely of wood; it has a cellar, above which are two rooms one above the other, and the whole is 743 surmounted by the observatory proper. First, the ground sill is a square of 20 ft., made of yellow pine sticks mortised together and pinned with stout trunnels. The sill of the observatory is made likewise of heavy timbers, 12 ft. long. The two sills are joined together by four stout yellow pine corner posts, which in turn are mortised into both sills. The posts are 26 ft. in length. Five feet above the lower sill is the sill which supports the floor of the first room. Ten feet above this is the sill which supports the upper room. Both these sills again are mortised into the corner posts. The structure is sheathed outside with German siding, and inside with rough boards covered with felt, and again by tongued and grooved yellow pine boards. The observatory proper, octagonal in shape, is securely mortised into the top sill and covered with a corrugated iron roof conical in shape. The cellar is floored with 3 in. wood, and boarded all round on the inside of the posts. A pit was first dug in the sand about 6 ft. deep and fully 20 ft. wide on the bottom. The cellar sill was laid on this bottom, and the structure built upon it; thus the whole depth of cellar is sunk below the top of the hill or the level of the sand. The cellar was then filled up with sand and packed solid all round, consequently the building is anchored in its place by the load in the cellar, about 100 tons in weight.

Fig. 13.—Cantilever Foundation over Railway Tunnel.

The subject of foundations, being naturally of the first importance, is one that calls for most careful study. It is not of so much importance that the ground be hard or even rocky as that it be compact and of similar consistency throughout. It is not always that a site answers to this description, and the problem of what will be the best form of foundation to use in placing a building, more especially if that building be of large dimensions and consequently great weight, on a site of soft yielding soil, is one that is often most difficult of solution. The foregoing article indicates in a brief manner some of the obstacles the architect or engineer is required to surmount before his work can even be started on its way to completion.

Authorities.—The principal books for reference on this subject are: A Practical Treatise on Foundations, by W.M. Patron, C. E.; Building Construction and Superintendence, part i., by F.E. Kidder; Notes on Building Construction, vols. i. ii. and iii.; Aide Memoir, vol. ii., by Colonel Seddon, R.E.; Advanced Building Construction, by C.F. Mitchell; Modern House Construction, by G.L. Sutcliffe; Building Construction, by Professor Henry Adams; Practical Building Construction, by J.P. Allen.

(J. Bt.)

FOUNDING (from Lat. fundere, to pour), the process of casting in metal, of making a reproduction of a given object by running molten metal into a mould taken in sand, loam or plaster from that object. To enable the founder to prepare a mould for the casting, he must receive a pattern similar to the casting required. Some few exceptions occur, to be noted presently, but the above statement is true of perhaps 98% of all castings produced. The construction of such patterns gives employment to a large number of highly skilled men, who can only acquire the necessary knowledge through an apprenticeship lasting from five to seven years. A knowledge of two trades at least is involved in the work of pattern construction—that of the craft itself and that of the moulder and founder. Patterns have to be constructed strongly. They are generally of wood, and they thus require skill in the use of woodworking tools and the making of timber joints, together with a knowledge of the behaviour of timber, &c. Some few patterns are made in iron, brass or white metal alloys. They have to be embedded in a matrix of sand by the founder, and being enclosed, they have to be withdrawn without inflicting any damage in the way of fracture in the sand. Since cast work involves shapes that are often very intricate, including projections and hollow spaces of all forms, it is obvious that the withdrawal of the patterns without entailing tearing up and fracture of the sand must involve many difficult problems that have to be as fully understood by the pattern-maker as by the moulder. It is from this point of view that the work of the pattern-maker should be approached in the first place. No closed mould can possibly be made without one or more joints, for if a pattern is wholly enclosed in a matrix of sand it cannot be withdrawn except by making a parting in the sand, and it is not difficult to conceive that the parting in the pattern might advantageously be made to coincide, either exactly or approximately, with that of the mould. Nor must obstacles exist to the free withdrawal of patterns. They must therefore not be wider or larger in the lower than in the upper parts; actually they are made a trifle smaller or “tapered.” Nor may they have any lateral extensions into the lower sand, unless these can be made to withdraw separately from the main portion of the pattern. Finally, there are many internal spaces which cannot be formed by a pattern directly in the sand, but provision for which must be made by some means extraneous to the pattern, as by cores.

Fig. 1. Fig. 2.

A single example must illustrate the main principles which have just been stated. The object selected is a bracket which involves questions of joints, of cores, of pattern construction and of moulding. The casting, the pattern, and its mould are illustrated. Fig. 1 illustrates in plan the casting of a double bracket, the end elevation of which is seen in fig. 2; the pattern of which presents obvious difficulties in the way of withdrawal from a mould, supposing it were made just like its casting. But if it be made as in fig. 3, with the open spaces A, B, in fig. 2, occupied with core prints, and the pieces A, A in fig. 3 left loosely skewered on, everything will “deliver” freely. Moreover the pattern might be made solidly as shown in fig. 3, or else jointed and dowelled in the plane a-a, as in fig. 4, or along the upper faces of the prints b-b, fig. 3. The 744 timber shadings in figs. 3 and 4 illustrate points in the most suitable arrangement of material. The prints are “boxed up.” Fig. 4 shows a certain stage of the moulding, in which one half of the pattern has been “rammed” in sand, and turned over in the “bottom box,” and the upper half is ready to be rammed in the “top box,” with “runner pin” or “git stick” A, set in place. The lower loose piece has had its skewer removed during the ramming. Fig. 5 illustrates the mould completed and ready for pouring. The boxes have been parted, the pattern has been withdrawn, cores inserted in the impressions left by the prints, vents taken from the central body of cinders, the pouring basin made and the boxes cottered together.

Fig. 3.

Every single detail now briefly noted in connexion with this bracket is applied and modified in an almost infinite number of ways to suit the ever varying character of foundry work. Yet this process does not touch some of the great subdivisions of moulding and casting. There is a large volume of large and heavy work for which complete patterns and core boxes are never made, because of the great expense that would be involved in the pattern construction. There are also some cases in which the methods adopted would not permit of the use of patterns, as in that group of work in which the sand or loam is “swept” to the form required for the moulds and cores by means of striking boards, loam boards, core boards or strickles. In these classes of moulding the loose green sands and core sands are not much used; instead, loam—a wet and plastic sand mixture—is employed, supported against bricks (loam moulds) or against core bars and plates, and hay ropes (loam cores). All heavy marine engine cylinders are thus made by sweeping, and all massive cores for engine cylinders and large pipes, besides much large circular and cylindrical work, as foundation cylinders, soap pans, lead pans, mortar pans, large propeller blades, &c. In these cases the edge of the striking board is a counterpart of the profile of the work swept up. Joints also have to be made in such moulds, not of course in order to provide for the removal of a pattern, but for the exposure of the separate parts in course of construction, and for closing them up, or putting them together in their due relations. These joints also are swept by the boards, generally cut to produce suitable “checks,” or “registers” to ensure that they accurately fit together. Fig. 6, showing a portion of a swept-up mould, illustrates the general arrangement. A plate, A, carries a quantity of bricks, B, which are embedded in loam, and break joint. To a striking bar, C, supported in a step, a striking board or sweeping board, D, is bolted, and is swept round against plastic loam, which is afterwards dried. The check on the board at A corresponds with a similar check on the board which strikes the interior of the pan, and by which top and bottom portions of the mould are registered together. This is indicated in dotted outline. Its mould also is swept on bricks, and turned over into place, and the metal is poured into the space b, b, between the two moulds. There is also a large group of swept-up work which is not symmetrical about a centre of rotation. Then the movements of the sweeping boards are controlled by the edges of “core plates,” or of “core irons” (fig. 7). Bend pipes, and the volute casings of centrifugal pumps and pipes, afford examples of this kind. In fig. 7, A is the core iron, held down by weights, and B the “strickle,” sweeping up the half bend C, two such halves pasted together completing the core.

Fig. 4.
Fig. 5.
Fig. 6.

Core-making is a special department of foundry work, often involving as much detail as the construction and moulding of patterns. Two perfectly plain boxes are shown in figs. 8 and 9, in both of which provision exists for removing the box parts from the core after the latter has been rammed. Core boxes are jointed and tapered, and often have loose pieces within them, and also prints, into the impressions of which other cores are inserted.

Fig. 7.

Machine-moulding.—There is a development of modern methods of founding which is effecting radical changes in some departments of foundry practice, namely, moulding by machines. The advantages of this method are manifold, and its limitations 745 are being lessened continually. There are two broad departments between which machine-moulding is divided. One, of less importance, is that of toothed wheels; the other is that of general work, except of a very massive character.

Fig. 8. Fig. 9.

Gear-wheel moulding machines are essentially a special adaptation of the mechanism of the dividing engine, by means of which, instead of using a complete pattern of a toothed wheel, two or three pattern teeth are used, and the machine takes charge of the correct pitching or division of the teeth moulded therefrom, leaving to the moulder the work only of turning the handle of the division plate, and ramming the sand around the pattern teeth. The result is accurate pitching, and the use of two or three teeth instead of a full pattern, together with any core boxes and striking boards that are necessary for the arms.

The other department of machine moulding includes nearly every conceivable class of work of small and medium dimensions. There are some dozens of distinct types of machines in use, for no one type is suitable for all classes of moulds, while some are designed specially for one or two kinds only.

Fig. 10.

The fundamental principles of operation are briefly these: The pattern parts constitute, by their method of attachment to a plate or table A (fig. 10), an integral portion of the machine, so that they must partake of certain movements which are imparted to it. Often patterns mounted, as in fig. 10, are moulded by hand, without any aid from a machine, by methods of “plate-moulding.” The delivery of the pattern from the sand is invariably accomplished by a perpendicular movement of a portion of the machine (fig. 11), withdrawing either the pattern from the mould or the mould from the pattern. The important point is that the perpendicular movement, being under the coercion of the vertical guides provided in the hand machines, or the hydraulic ram in fig. 11, is free from the unsteadiness which is incidental to withdrawal by the hands of the moulder; and if the machine performed nothing more than this it would justify its existence. Little or no taper is required in the pattern, and the moulds are more nearly uniform in dimensions than hand-made moulds. But there are other advantages. In machine-moulding the joint faces for parting moulds are produced by the faces of the plates on which the pattern is mounted (figs. 10 and 11), instead of by the hands and trowel of the moulder. When the joint face is of irregular outline, as it often is, this item alone saves a good deal of time, which again is multiplied by the number of moulds repeated, often amounting to thousands. Further, provision is generally made on machine plates for the ingates and runners (fig. 10) through which the metal enters the mould, the preparation of which in hand work occupies a considerable amount of time. Another great advantage applies especially to the case of deep moulds. These give much trouble in hand-moulding in consequence of the liability of the sand to become torn up during the withdrawal of the pattern. But in machine-moulding such patterns are encircled by a plate, termed a “stripping plate,” which is pierced to allow the patterns to pass through, and which, being maintained firmly on the sand during the lifting of the pattern, prevents it from becoming torn up. This is not merely a matter of convenience, but is a necessity in numerous instances. The most familiar example is that of the teeth of gear wheels, in which even a very slight amount of taper interferes with accurate engagement, and this is representative of many other portions of mechanism. These stripping plates are of metal, but in order to save the cost of filing them in iron or steel, many are cheaply made by casting a white metal alloy round the actual pattern itself in the first place, the white metal being enclosed and retained in a plain iron frame which forms the body of the plate. Lastly, many machines, but not the majority, include provision for mechanically ramming the sand around the pattern by power instead of by hand. This is really the least valuable feature of a moulding machine, because it is not applicable to any but rather shallow moulds. It is commonly used for these, but the consistence and homogeneity of a mass of sand round a pattern having deep perpendicular sides can only be ensured by careful hand ramming.

Fig. 11.

The highest economies of machine-moulding are obtained when (1) several small patterns are mounted and moulded at once on a single plate (fig. 10); (2) when top and bottom parts of a mould are produced on different machines, carrying each its moiety of the pattern; (3) when the machine and pattern details are simplified so much that the labour of trained moulders is displaced by that of unskilled attendants who are taught in a month or two the few simple operations required. That is the direction in which repetitive casting is now rapidly tending.

In fig. 11 A is the plate, which in its essentials corresponds with the plate A in fig. 10, but which in the machine is made to swivel so as to bring each half of the pattern B, B in turn uppermost for ramming in the box parts C, C. The ramming is done by hand, the final squeeze being imparted against the presser D by the action of the hydraulic ram E pushing the plate, mould and box up against D. The plate being then lowered, and turned over, the further descent of the ram withdraws the bottom box from the pattern, which is the stage seen in the illustration. Then the half mould is run away on the carriage F, provided with wheels to run on rails.

Though casting in iron, steel, the bronzes, aluminium, &c., is 746 carried on by different men in distinct shops, yet the foregoing principles and methods apply to all alike. Work is done in green, i.e. moist sand, in dry sand (the moulds being dried before being used), and in plastic loam (which is subsequently dried). Hand and machine moulding are practised in each, the last-named excepted. The differences in working are those due to the various characteristics of the different metals and alloys, which involve differences in the sand mixtures used, in the dimensions of the pouring channels, of the temperature at which the metal or alloy must be poured, of the fluxing and cleansing of the metal, and other details of a practical character. Hence the practice which is suitable for one department must be modified in others. Many castings in steel would inevitably fracture if poured into moulds prepared for iron, many iron castings would fracture if poured into moulds suitable for brass, and neither brass nor steel would fill a mould having ingates proportioned suitably for iron.

A special kind of casting is that into “chill moulds,” adopted in a considerable number of iron castings, such as the railway wheels in the United States, ordinary tramway wheels, the rolls of iron and steel rolling mills, the bores of cast wheel hubs, &c. The chill ranges in depth from ¼ in. to 1 in., and is produced by pouring a special mixture of mottled, or strong, iron against a cold iron surface, the parts of the casting which are not required to be chilled being surrounded by an ordinary mould of sand. The purpose of chill-casting is to produce a surface hardness in the metal.

The shrinkage of metal is a fact which has to be taken account of by the pattern-maker and moulder. A pattern and mould are made larger than the size of the casting required by the exact amount that the metal will shrink in cooling from the molten to the cold state. This amount varies from 18 in. in 15 in., in thin iron castings, to 18 in. in 12 in. in heavy ones. It ranges from 316 in. to 516 in. per foot in steel, brass and aluminium. Its variable amount has to be borne in mind in making light and heavy-castings, and castings with or without cores, for massive cores retard shrinkage. It is also a fruitful cause of fracture in badly proportioned castings, particularly of those in steel. Brass is less liable to suffer in this respect than iron, and iron much less than steel.

(J. G. H.)

FOUNDLING HOSPITALS, originally institutions for the reception of “foundlings,” i.e. children who have been abandoned or exposed, and left for the public to find and save. The early history of such institutions is connected with the practice of infanticide, and in western Europe where social disorder was rife and famine of frequent occurrence, exposure and extensive sales of children were the necessary consequences. Against these evils, which were noticed by several councils, the church provided a rough system of relief, children being deposited (jactati) in marble shells at the church doors, and tended first by the matricularii or male nurses, and then by the nutricarii or foster-parents.1 But it was in the 7th and 8th centuries that definite institutions for foundlings were established in such towns as Trèves, Milan and Montpellier. In the 15th century Garcias, archbishop of Valencia, was a conspicuous figure in this charitable work; but his fame is entirely eclipsed by that of St Vincent de Paul, who in the reign of Louis XIII., with the help of the countess of Joigny, Mme le Gras and other religious ladies, rescued the foundlings of Paris from the horrors of a primitive institution named La Couche (rue St Landry), and ultimately obtained from Louis XIV. the use of the Bicêtre for their accommodation. Letters patent were granted to the Paris hospital in 1670. The Hôtel-Dieu of Lyons was the next in importance. No provision, however, was made outside the great towns; the houses in the cities were overcrowded and administered with laxity; and in 1784 Necker prophesied that the state would yet be seriously embarrassed by this increasing evil.2 From 1452 to 1789 the law had imposed on the seigneurs de haute justice the duty of succouring children found deserted on their territories. The first constitutions of the Revolution undertook as a state debt the support of every foundling. For a time premiums were given to the mothers of illegitimate children, the “enfants de la patrie.” By the law of 12 Brumaire, An II. “Toute recherche de la paternité est interdite,” while by art. 341 of the Code Napoléon, “la recherche de la matérnité est admise.”

France.—The laws of France relating to this part of what is called L’Assistance Publique are the decree of January 1811, the instruction of February 1823, the decree of the 5th of March 1852, the law of the 5th of May 1869, the law of the 24th of July 1889 and the law of the 27th of June 1904. These laws carry out the general principles of the law of 7 Frimaire An V., which completely decentralized the system of national poor relief established by the Revolution. The enfants assistés include, besides (1) orphans and (2) foundlings proper, (3) children abandoned by their parents, (4) ill-treated, neglected or morally abandoned children whose parents have been deprived of their parental rights by the decision of a court of justice, (5) children, under sixteen years of age, of parents condemned for certain crimes, whose parental rights have been delegated by a tribunal to the state. Children classified under 1-5 are termed pupilles de l’assistance, “wards of public charity,” and are distinguished by the law of 1904 from children under the protection of the state, classified as: (1) enfants secourus, i.e. children whose parents or relatives are unable, through poverty, to support them; (2) enfants en dépôt, i.e. children of persons undergoing a judicial sentence and children temporarily taken in while their parents are in hospital, and (3) enfants en garde, i.e. children who have either committed or been the victim of some felony or crime and are placed under state care by judicial authority. The asylum which receives all these children is a departmental (établissement dépositaire), and not a communal institution. The établissement dépositaire is usually the ward of an hospice, in which—with the exception of children en dépôt—the stay is of the shortest, for by the law of 1904, continuing the principle laid down in 1811, all children under thirteen years of age under the guardianship of the state, except the mentally or physically infirm, must be boarded out in country districts. They are generally apprenticed to some one engaged in the agricultural industry, and until majority they remain under the guardianship of the administrative commissioners of the department. The state pays the whole of the cost of inspection and supervision. The expenses of administration, the “home” expenses, for the nurse (nourrice sédentaire) or the wet nurse (nourrice au sein), the prime de survie (premium on survival), washing, clothes, and the “outdoor” expenses, which include (1) temporary assistance to unmarried mothers in order to prevent desertion; (2) allowances to the foster-parents (nourriciers) in the country for board, school-money, &c.; (3) clothing; (4) travelling-money for nurses and children; (5) printing, &c.; (6) expenses in time of sickness and for burials and apprentice fees—are borne in the proportion of two-fifths by the state two-fifths by the department, and the remaining fifth by the communes. The following figures show the number of children (exclusive of enfants secourus) relieved at various periods:

Year. Number relieved.
1890 95,701
1895 121,201
1900 138,308
1905 149,803

The droit de recherche is conceded to the parent on payment of a small fee. The decree of 1811 contemplated the repayment of all expenses by a parent reclaiming a child. The same decree directed a tour or revolving box (Drehcylinder in Germany) to be kept at each hospital. These have been discontinued. The “Assistance Publique” of Paris is managed by a “directeur” appointed by the minister of the interior, and associated with a representative conseil de surveillance. The Paris Hospice des Enfants-Assistés contains about 700 beds. There are also in Paris numerous private charities for the adoption of poor children and orphans. It is impossible here to give even a sketch of the long and able controversies which have occurred in France on the principles of management of foundling hospitals, the advantages of tours and the system of admission à bureau ouvert, the transfer of orphans from one department to another, the hygiene and service of hospitals and the inspection of nurses, the education and reclamation of the children and the rights of the state in their future. Reference may be made to the works noticed at the end of this article.

Belgium.—In this country the arrangements for the relief of foundlings and the appropriation of public funds for that purpose very much resemble those in France, and can hardly be usefully described apart from the general questions of local government and poor law administration. The Commissions des Hospices Civiles, however, are purely communal bodies, although they receive pecuniary assistance from both the departments and the state. A decree of 1811 directed that there should be an asylum and a wheel for receiving foundlings in every arrondissement. The last “wheel,” that of Antwerp, was closed in 1860. (See Des Institutions de bienfaisance et de prévoyance en Belgique, 1850 à 1860, par M.P. Lentz.)

Italy is very rich in foundling hospitals, pure and simple, orphans and other destitute children being separately provided for. (See Della carità preventiva in Italia, by Signor Fano.) In Rome one branch of the Santo Spirito in Sassia (so called from the Schola Saxonum built in 728 by King Ina in the Borgo) has, since the time of Pope Sixtus IV., been devoted to foundlings. The average annual number of foundlings supported is about 3000. (See The Charitable Institutions of Rome, by Cardinal Morichini.) In Venice the Casa degli Esposti or foundling hospital, founded in 1346, and receiving 450 children annually, is under provincial administration. The splendid legacy of the last doge, Ludovico Manin, is applied to the 747 support of about 160 children by the “Congregazione di Carità” acting through 30 parish boards (deputazione fraternate).

Austria.—In Austria foundling hospitals occupied a very prominent place in the general instructions which, by rescript dated 16th of April 1781, the emperor Joseph II. issued to the charitable endowment commission. In 1818 foundling asylums and lying-in houses were declared to be state institutions. They were accordingly supported by the state treasury until the fundamental law of 20th October 1860 handed them over to the provincial committees. They are now local institutions, depending on provincial funds, and are quite separate from the ordinary parochial poor institute. Admission is gratuitous when the child is actually found on the street, or is sent by a criminal court, or where the mother undertakes to serve for four months as nurse or midwife in an asylum, or produces a certificate from the parish priest and “poor-father” (the parish inspector of the poor-law administration) that she has no money. In other cases payments of 30 to 100 florins are made. When two months old the child is sent for six or ten years to the houses in the neighbourhood of respectable married persons, who have certificates from the police or the poor-law authorities, and who are inspected by the latter and by a special medical officer. These persons receive a constantly diminishing allowance, and the arrangement may be determined by 14 days’ notice on either side. The foster-parents may retain the child in their service or employment till the age of twenty-two, but the true parents may at any time reclaim the foundling on reimbursing the asylum and compensating the foster-parents.

Russia.—Under the old Russian system of Peter I. foundlings were received at the church windows by a staff of women paid by the state. But since the reign of Catherine II. the foundling hospitals have been in the hands of the provincial officer of public charity (prykaz obshestvennago pryzrenya). The great central institutions (Vospitatelnoi Dom), at Moscow and St Petersburg (with a branch at Gatchina), were founded by Catherine. When a child is brought the baptismal name is asked, and a receipt is given, by which the child may be reclaimed up to the age of ten. The mother may nurse her child. After the usual period of six years in the country very great care is taken with the education, especially of the more promising children. The hospital is a valuable source of recruits for the public service. Malthus (The Principles of Population, vol. i. p. 434) has made a violent attack on these Russian charities. He argues that they discourage marriage and therefore population, and that the best management is unable to prevent a high mortality. He adds: “An occasional child murder from false shame is saved at a very high price if it can be done only by the sacrifice of some of the best and most useful feelings of the human heart in a great part of the nation.” It does not appear, however, that the rate of illegitimacy in Russia is comparatively high; it is so in the two great cities. The rights of parents over the children were very much restricted, and those of the government much extended by a ukase issued by the emperor Nicholas in 1837. The most eminent Russian writer on this subject is M. Gourov. See his Recherches sur les enfants trouvés, and Essai sur l’histoire des enfants trouvés (Paris, 1829).

In America, foundling hospitals, which are chiefly private charities, exist in most of the large cities.

Great Britain.—The Foundling Hospital of London was incorporated by royal charter in 1739 “for the maintenance and education of exposed and deserted young children.” The petition of Captain Thomas Coram, who is entitled to the whole credit of the foundation,3 states as its objects “to prevent the frequent murders of poor miserable children at their birth, and to suppress the inhuman custom of exposing new-born infants to perish in the streets.” At first no questions were asked about child or parent, but a distinguishing mark was put on each child by the parent. These were often marked coins, trinkets, pieces of cotton or ribbon, verses written on scraps of paper. The clothes, if any, were carefully recorded. One entry is, “Paper on the breast, clout on the head.” The applications became too numerous, and a system of balloting with red, white and black balls was adopted. In 1756 the House of Commons came to a resolution that all children offered should be received, that local receiving places should be appointed all over the country, and that the funds should be publicly guaranteed. A basket was accordingly hung outside the hospital; the maximum age for admission was raised from two to twelve months, and a flood of children poured in from the country workhouses. In less than four years 14,934 children were presented, and a vile trade grew up among vagrants of undertaking to carry children from the country to the hospital,—an undertaking which, like the French meneurs, they often did not perform or performed with great cruelty. Of these 15,000 only 4400 lived to be apprenticed out. The total expense was about £500,000. This alarmed the House of Commons. After throwing out a bill which proposed to raise the necessary funds by fees from a general system of parochial registration, they came to the conclusion that the indiscriminate admission should be discontinued. The hospital, being thus thrown on its own resources, adopted a pernicious system of receiving children with considerable sums (e.g. £100), which sometimes led to the children being reclaimed by the parent. This was finally stopped in 1801; and it is now a fundamental rule that no money is received. The committee of inquiry must now be satisfied of the previous good character and present necessity of the mother, and that the father of the child has deserted it and the mother, and that the reception of the child will probably replace the mother in the course of virtue and in the way of an honest livelihood. All the children at the Foundling hospital are those of unmarried women, and they are all first children of their mothers. The principle is in fact that laid down by Fielding in Tom Jones—“Too true I am afraid it is that many women have become abandoned and have sunk to the last degree of vice by being unable to retrieve the first slip.” At present the hospital supports about 500 children up to the age of fifteen. The average annual number of applications is over 200, and of admissions between 40 and 50. The children used to be named after the patrons and governors, but the treasurer now prepares a list. Children are seldom taken after they are twelve months old. On reception they are sent down to the country, where they stay until they are about four or five years old. At sixteen the girls are generally apprenticed as servants for four years, and the boys at the age of fourteen as mechanics for seven years. There is a small benevolent fund for adults. The musical service, which was originally sung by the blind children only, was made fashionable by the generosity of Handel, who frequently had the “Messiah” performed there, and who bequeathed to the hospital a MS. copy (full score) of his greatest oratorio. The altar-piece is West’s picture of Christ presenting a little Child. In 1774 Dr Burney and Signor Giardini made an unsuccessful attempt to form in connexion with the hospital a public music school, in imitation of the Conservatorium of the Continent. In 1847, however, a successful “Juvenile Band” was started. The educational effects of music have been found excellent, and the hospital supplies many musicians to the best army and navy bands. The early connexion between the hospital and the eminent painters of the reign of George II. is one of extreme interest. The exhibitions of pictures at the Foundling, which were organized by the Dilettanti Club, undoubtedly led to the formation of the Royal Academy in 1768. Hogarth painted a portrait of Captain Coram for the hospital, which also contains his March to Finchley, and Roubillac’s bust of Handel. (See History and Objects of the Foundling Hospital, with Memoir of its Founder, by J. Brownlow.)

In 1704 the Foundling hospital of Dublin was opened. No inquiry was made about the parents, and no money received. From 1500 to 2000 children were received annually. A large income was derived from a duty on coal and the produce of car licences. In 1822 an admission fee of £5 was charged on the parish from which the child came. This reduced the annual arrivals to about 500. In 1829 the select committee on the Irish miscellaneous estimates recommended that no further assistance should be given. The hospital had not preserved life or educated the foundlings. The mortality was nearly 4 in 5, and the total cost £10,000 a year. Accordingly in 1835 Lord Glenelg (then Irish Secretary) closed the institution.

Scotland never seems to have possessed a foundling hospital. In 1759 John Watson left funds which were to be applied to the pious and charitable purpose “of preventing child murder” by the establishment of a hospital for receiving pregnant women and taking care of their children as foundlings. But by an act of parliament in 1822, which sets forth “doubts as to the propriety” of the original purpose, the money was given to trustees to erect a hospital for the maintenance and education of destitute children.

Authorities.Histoire statistique et morale des enfants trouvés by MM. Terme et Montfalcon (Paris, 1837) (the authors were eminent medical men at Lyons, connected with the administration of the foundling hospital); Remacle, Des hospices d’enfants trouvés en Europe (Paris, 1838); Hügel Die Findelhäuser und das Findelwesen Europas (Vienna, 1863); Emminghaus, “Das Armenwesen und die Armengesetzgebung,” in Europäischen Staaten (Berlin, 1870); Sennichon, Histoire des enfants abandonnés (Paris, 1880); the annual Rapport sur le service des enfants assistés du département de la Seine; Epstein, Studien zur Frage der Findelanstalten (Prague, 1882); Florence D. Hill, Children of the State (2nd ed., 1889). For United States, see H. Folks, Care of Neglected and Dependent Children (1901); A.G. Warner, American Charities (enlarged, 1908) and Reports of Massachusetts State Board of Charities. Information may also be got in the Reports on Poor Laws in Foreign Countries, communicated to the Local Government Board by the foreign secretary; Accounts and Papers (1875), vol. lxv. c. 1225; Report of Committee on the Infant Life Protection Bill (1890); Report of Lords Committee on the Infant Life Protection Bill (1896). (See also Charity and Charities.)


1 See Capitularia regum Francorum, ii. 474.

2 De l’administration des finances, iii. 136; see also the article “Enfant exposé” in Diderot’s Encyclopédie, 1755, and Chamousset’s Mémoire politique sur les enfants, 1757.

3 Addison had suggested such a charity (Guardian, No. 3).


FOUNTAIN (Late Lat. fontana, from fons, a spring), a term applied in a restricted sense to such outlets of water as, whether fed by natural or artificial means, have contrivances of human art at a point where the water emerges. A very early existing example is preserved in the carved Babylonian basin (about 3000 B.C.) found at Tello, the ancient Lagash, and Layard mentions an Assyrian fountain, found by him in a gorge of the river Gomel, 748 which consists of a series of basins cut in the solid rock and descending in steps to the stream. The water had been originally led from one to the other by small conduits, the lowest of which was ornamented by two rampant lions in relief. The term is applied equally to the simpler arrangements for letting water gush into an ornamental basin or to the more elaborate ones by which water is mechanically forced into high jets; and a “fountain” may be either the ornamental receptacle or the jet of water itself. In modern times the examples of ornamental or useful fountains are legion, and it will suffice here to mention some of the more important facts of historical interest.

Among the Greeks fountains were very common in the cities. Springs being very plentiful in Greece, little engineering skill was required to convey the water from place to place. Receptacles of sufficient size were made for it at the springs; and to maintain its purity, structures were raised enclosing and covering the receptacle. In Greece they were dedicated to gods and goddesses, nymphs and heroes, and were frequently placed in or near temples. That of Pirene at Corinth (mentioned also by Herodotus) was formed of white stone, and contained a number of cells from which the pleasant water flowed into an open basin. Legend connects it with the nymph Pirene, who shed such copious tears, when bewailing her son who had been slain by Diana, that she was changed into a fountain. The city of Corinth possessed many fountains. In one near the statues of Diana and Bellerophon the water flowed through the hoofs of the horse Pegasus. The fountain of Glauce, enclosed in the Odeum, was dedicated to Glauce, because she was said to have thrown herself into it believing that its waters could counteract the poisons of Medea. Another Corinthian fountain had a bronze statue of Poseidon standing on a dolphin from which the water flowed. The fountain constructed by Theagenes at Megara was remarkable for its size and decorations, and for the number of its columns. One at Lerna was surrounded with pillars, and the structure contained a number of seats affording a cool summer retreat. Near Pharae was a grove dedicated to Apollo, and in it a fountain of water. Pausanias gives a definite architectural detail when he says that a fountain at Patrae was reached from without by descending steps. Mystical, medicinal, surgical and other qualities, as well as supernatural origin, were ascribed to fountains. One at Cyane in Lycia was said to possess the quality of endowing all persons descending into it with power to see whatever they desired to see; while the legends of fountains and other waters with strange powers to heal are numerous in many lands. The fountain Enneacrunus at Athens was called Callirrhoe before the time the water was drawn from it by the nine pipes from which it took its later name. Two temples were above it, according to Pausanias, one dedicated to Demeter and Persephone, and the other to Triptolemus. The fountain in the temple of Erechtheus at Athens was supplied by a spring of salt water, and a similar spring supplied that in the temple of Poseidon Hippios at Mantinea.

The water-supply of Rome and the works auxiliary to it were on a scale to be expected from a people of such great practical power. The remains of the aqueducts which stretched from the city across the Campagna are amongst the most striking monuments of Italy. Vitruvius (book viii.) gives minute particulars concerning the methods to be employed for the discovery, testing and distribution of water, and describes the properties of different waters with great care, proving the importance which was attached to these matters by the Romans. The aqueducts supplied the baths and the public fountains, from which last all the populace, except such as could afford to pay for a separate pipe to their houses, obtained their water. These fountains were therefore of large size and numerous. They were formed at many of the castella of the aqueducts. According to Vitruvius, each castellum should have three pipes,—one for public fountains, one for baths and the third for private houses. Considerable revenue was drawn from the possessors of private water-pipes. The Roman fountains were generally decorated with figures and heads. Fountains were often also the ornament of Roman villas and country houses; in those so situated the water generally ally fell from above into a large marble basin, with at times a second fall into a still lower receptacle. Two adjacent houses in Pompeii had very remarkable fountains. One, says Gell, “is covered with a sort of mosaic consisting of vitrified tesserae of different colours, but in which blue predominates. These are sometimes arranged in not inelegant patterns, and the grand divisions as well as the borders are entirely formed and ornamented with real sea-shells, neither calcined by the heat of the eruption nor changed by the lapse of so many centuries” (Pompeiana, i. 196). Another of large size was similarly decorated with marine shells, and is supposed to have borne two sculptured figures, one of which, a bronze, is in the museum at Naples. This fountain projects 5 ft. 7 in. from the wall against which it is placed, and is 7 ft. wide in front, while the height of the structure up to the eaves of the pediment is 7 ft. 7 in. On a central column in the piscina was a statue of Cupid, with a dove, from the mouth of which water issued. Cicero had, at his villa at Formiae, a fountain which was decorated with marine shells.

Fountains were very common in the open spaces and at the crossways in Pompeii. They were supplied by leaden pipes from the reservoirs, and had little ornament except a human or animal head, from the mouth of which it was arranged that the water should issue. Not only did simple running fountains exist, but the remains of jets d’eau have been found; and a drawing exists representing a vase with a double jet of water, standing on a pedestal placed in what is supposed to have been the impluvium of a house. There was also a jet d’eau at the eastern end of the peristyle of the Fullonica at Pompeii.

As among the Greeks, so with the early Celts, traces of superstitious beliefs and usages with relation to fountains can be traced in monumental and legendary remains. Near the village of Primaleon in Brittany was a very remarkable monument,—one possibly unique, as giving distinct proof of the existence of an ancient cult of fountains. Here is a dolmen composed of a horizontal table supported by two stones only, one at each end. All the space beneath this altar is occupied by a long square basin formed of large flat stones, which receives a fountain of water. At Lochrist is another vestige of the Celtic cult of fountains. Beneath the church, and at the foot of the hill upon which it is built, is a sacred fountain, near which is erected an ancient chapel, which with its ivy-covered walls has a most romantic appearance. A Gothic vault protects this fountain. Miraculous virtues are still attributed to its water, and on certain days the country people still come with offerings to draw it (see La Poix de Freminville, Antiquités de la Bretagne, i. p. 101). In the enchanted forest of Brochelande, so famous from its connexion with Merlin, was the fountain of Baranton, which was said to possess strange characteristics. Whoever drew water from it, and sprinkled the steps therewith, produced a tremendous storm of thunder and hail, accompanied with thick darkness.

Christianity transferred to its own uses the ancient religious feeling concerning fountains. Statues of the Virgin or of saints were erected upon the rude structures that collected the water and preserved its purity. There is some uniformity in the architectural characteristics of these structures during the middle ages. A very common form in rural districts was that in which the fountain was reached by descending steps (fontaine grotte). A large basin received the water, sometimes from a spout, but often from the spring itself. This basin was covered by a sort of porch or vault, with at times moulded arches and sculptured figures and escutcheons. On the bank of the Clain at Poitiers is a fountain of this kind, the Fontaine Joubert, which though restored in 1597 was originally a structure of the 14th century. This kind of fountain is frequently decorated with figures of the Virgin or of saints, or with the family arms of its founder; often, too, the water is the only ornament of the structure, which bears a simple inscription. A large number of these fountains are to be found in Brittany and indeed throughout France, and the great antiquity of some of them is proved by the superstitions regarding them which still exist amongst the peasantry. A form more common in populous districts was that of a large open basin, round, square, polygonal, or lobed in 749 form, with a columnar structure at the centre, from the lower part of which it was arranged that spouts should issue, playing into an open basin, and supplying vessels brought for the purpose in the cleanest and quickest manner. The columns take very various forms, from that of a simple regular geometrical solid, with only grotesque masks at the spouts, to that of an elaborate and ornate Gothic structure, with figures of virgins, saints and warriors, with mouldings, arches, crockets and finials. At Provins there is a fountain said to be of the 12th century, which is in form an hexagonal vase with a large column in the centre, the capital of which is pierced by three mouths, which are furnished with heads of bronze projecting far enough to cast the water into the basin. In the public market-place at Brunswick is a fountain of the 15th century, of which the central structure is made of bronze. Many fountains are still existing in France and Germany which, though their actual present structure may date no earlier than the 15th or 16th century, have been found on the place of, and perhaps may almost be considered as restorations of, pre-existing fountains. Except in Italy few fountains are of earlier date than the 14th century. Two of that date are at the abbey of Fontaine Daniel, near Mayenne, and another, of granite, is at Limoges. Some of these middle-age fountains are simple, open reservoirs enclosed in structures which, however plain, still carry the charm that belongs to the stone-work of those times. There is one of this kind at Cully, Calvados, walled on three sides, and fed from the spring by two circular openings. Its only ornamentation is a small empty niche with mouldings. At Lincoln is a fountain of the time of Henry VIII., in front of the church of St Mary Wickford. At Durham is one of octangular plan, which bears a statue of Neptune.

The decay of architectural taste in the later centuries is shown by the fountain of Limoges. It is in form a rock representing Mount Parnassus, upon which are carved in relief Apollo, the horse Pegasus, Philosophy and the Nine Muses. At the top Apollo, in the 16th-century costume, plays a harp. Rocks, grass and sheep fill up the scene.

Purely ornamental fountains and jets d’eau are found in or near many large cities, royal palaces and private seats. The celebrated Fontana di Trevi, at Rome, was erected early in the 18th century under Pope Clement XII., and has all the characteristics of decadence. La Fontana Paolina and those in the piazza of St Peter’s are perhaps next in celebrity to that of Trevi, and are certainly in better taste. At Paris the Fontaine des Innocens (the earliest) and those of the Place Royal, of the Champs Elysées and of the Place de la Concorde are the most noticeable. The fountain of the lions and other fountains in the Alhambra palace are, with their surroundings, a very magnificent sight. The largest jets d’eau are those at Versailles, at the Sydenham Crystal Palace and at San Ildefonso.

About the earliest drawing of any drinking fountain in England occurs in Moxon’s Tutor to Astronomie and Geographie (1659); it is “surmounted by a diall, which was made by Mr John Leak, and set upon a composite column at Leadenhall corner, in the majoralty of Sir John Dethick, Knight.” The water springs from the top and base of the column, which stands upon a square pedestal and bears four female figures, one at least of which represents the costume of the period.

In the East the public drinking fountains are a very important institution. In Cairo alone there are three hundred. These “sebeels” are not only to be seen in the cities, but are plentiful in the fields and villages.

The Metropolitan Drinking Fountain Association (1859) has done much to provide facilities in London for both man and beast to get water to drink in the streets. And in the United States liberal provision has also been made by private and public enterprise.


FOUNTAINS ABBEY, one of the most celebrated ecclesiastical ruins in England. It lies in the sequestered valley of the river Skell, 3 m. S.W. of the city of Ripon in Yorkshire. The situation is most beautiful. The little Skell descends from the uplands of Pateley Moor to the west a clear swift stream, traversing a valley clothed with woods, conspicuous among which are some ancient yew trees which may have sheltered the monks who first sought retreat here. Steep rocky hills enclose the vale. Mainly on the north side of the stream, in an open glade, rise the picturesque and extensive ruins, the church with its stately tower, and the numerous remnants of domestic buildings which enable the great abbey to be almost completely reconstructed in the mind. The arrangements are typical of a Cistercian house (see Abbey). Building began in earnest about 1135, and was continued steadily until the middle of the 13th century, after which the only important erection was Abbot Huby’s tower (c. 1500). The demesne of Studley Royal (marquess of Ripon) contains the ruins. It is in part laid out in the formal Dutch style, the work of John Aislabie, lord of the manor in the early part of the 18th century. Near the abbey is the picturesque Jacobean mansion of Fountains Hall.

In 1132 the prior and twelve monks of St Mary’s abbey, York, being dissatisfied with the easy life they were living, left the monastery and with the assistance of Thurstan, archbishop of York, founded a house in the valley of the Skell, where they adopted the Cistercian rule. While building their monastery the monks are said to have lived at first under an elm and then under seven yew trees called the Seven Sisters. Two years later they were joined by Hugh, dean of St Peter’s, York, who brought with him a large sum of money and a valuable collection of books. His example was followed by Serlo, a monk of St Mary’s abbey, York, and by Tosti, a canon of York, and others. Henry I. and succeeding sovereigns granted them many privileges. During the reign of Edward I. the monks appear to have again suffered from poverty, partly no doubt owing to the invasion of the Scots, but partly also through their own “misconduct and extravagance.” On account of this Edward I. in 1291 appointed John de Berwick custodian of the abbey so that he might pay their debts from the issues of their estates, allowing them enough for their maintenance, and Edward II. in 1319 granted them exemption from taxes. After the Dissolution Henry VIII. sold the manor and site of the monastery to Sir Richard Gresham, and from him after passing through several families it came to the marquess of Ripon.

See Victoria County History, Yorkshire; Dugdale, Monasticon; Surtees Society, Memorials of the Abbey of St Mary of Fountains, collected and edited by J.R. Walbran (1863-78).


FOUQUÉ, FERDINAND ANDRÉ (1828-1904), French geologist and petrologist, was born at Mortain, dept. of La Manche, on the 21st of June 1828. At the age of twenty-one he entered the École Normale in Paris, and from 1853 to 1858 he held the appointment of keeper of the scientific collections. In 1877 he became professor of natural history at the Collège de France, in Paris, and in 1881 he was elected a member of the Academy of Sciences. As a stratigraphical geologist he rendered much assistance on the Geological Survey of France, but in the course of time he gave his special attention to the study of volcanic phenomena and earthquakes, to minerals and rocks; and he was the first to introduce modern petrographical methods into France. His studies of the eruptive rocks of Corsica, Santorin and elsewhere; his researches on the artificial reproduction of eruptive rocks, and his treatise on the optical characters of felspars deserve special mention; but he was perhaps best known for the joint work which he carried on with his friend Michel Lévy. He died on the 7th of March 1904. His chief publications were: Santorin et ses éruptions, 1879; (with A. Michel Lévy) Minéralogie micrographique, Roches éruptives françaises (2 vols., 1879); and Synthèse des minéraux et des roches (1882).


FOUQUÉ, FRIEDRICH HEINRICH KARL DE LA MOTTE, Baron (1777-1843), German writer of the romantic movement, was born on the 12th of February 1777 at Brandenburg. His grandfather had been one of Frederick the Great’s generals and his father was a Prussian officer. Although not originally intended for a military career, Friedrich de la Motte Fouqué ultimately gave up his university studies at Halle to join the army, and he took part in the Rhine campaign of 1794. The rest of his life was devoted mainly to literary pursuits. Like so many of the younger romanticists, Fouqué owed his introduction to 750 literature to A.W. Schlegel, who published his first book, Dramatische Spiele von Pellegrin in 1804. His next work, Romanzen vom Tal Ronceval (1805), showed more plainly his allegiance to the romantic leaders, and in the Historie vom edlen Ritter Galmy (1806) he versified a 16th-century romance of medieval chivalry. Sigurd der Schlangentöter, ein Heldenspiel (1808), the first modern German dramatization of the Nibelungen saga, attracted attention to him, and influenced considerably subsequent versions of the story, such as Hebbel’s Nibelungen and Wagner’s Ring des Nibelungen. These early writings indicate the lines which Fouqué’s subsequent literary activity followed; his interests were divided between medieval chivalry on the one hand and northern mythology on the other. In 1813, the year of the rising against Napoleon, he again fought with the Prussian army, and the new patriotism awakened in the German people left its mark upon his writings.

Between 1810 and 1815 Fouqué’s popularity was at its height; the many romances and novels, plays and epics, which he turned out with extraordinary rapidity, appealed exactly to the mood of the hour. The earliest of these are the best—Undine, which appeared in 1811, being, indeed, one of the most charming of all German Märchen and the only work by which Fouqué’s memory still lives to-day. A more comprehensive idea of his powers may, however, be obtained from the two romances Der Zauberring (1813) and Die Fahrten Thiodulfs des Isländers (1815). From 1820 onwards the quality of Fouqué’s work rapidly degenerated, partly owing to the fatal ease with which he wrote, partly to his inability to keep pace with the changes in German taste. He remained the belated romanticist, who, as the reading world turned to new interests, clung the more tenaciously to the paraphernalia of romanticism; but in the cold, sober light of the post-romantic age, these appeared merely flimsy and theatrical. The vitalizing imaginative power of his early years deserted him, and the sobriquet of a “Don Quixote of Romanticism” which his enemies applied to him was not unjustified.

Fouqué’s first marriage had been unhappy and soon ended in divorce. His second wife, Karoline von Briest (1773-1831) enjoyed some reputation as a novelist in her day. After her death Fouqué married a third time. Some consolation for the ebbing tide of popular favour was afforded him by the munificence of Frederick William IV. of Prussia, who granted him a pension which allowed him to spend his later years in comfort. He died in Berlin on the 23rd of January 1843.

Fouqué’s Ausgewählte Werke, edited by himself, appeared in 12 vols. (Berlin, 1841); a selection, edited by M. Koch, will be found in Kürschner’s Deutsche Nationalliteratur, vol. 146, part ii. (Stuttgart, 1893); Undine, Sintram, &c., in innumerable reprints. Bibliography in Goedeke’s Grundriss zur Geschichte der deutschen Dichtung (2nd ed., vi. pp. 115 ff., Dresden, 1898). Most of Fouqué’s works have been translated, and the English versions of Aslauga’s Knight (by Carlyle), Sintram and his Companions and Undine, have been frequently republished. For Fouqué’s life cp. Lebensgeschichte des Baron Friedrich de la Motte Fouqué. Aufgezeichnet durch ihn selbst (Halle, 1840), (only to the year 1813), and also the introduction to Koch’s selections in the Deutsche Nationalliteratur.

(J. G. R.)

FOUQUET (or Foucquet), NICOLAS (1615-1680), viscount of Melun and of Vaux, marquis of Belle-Isle, superintendent of finance in France under Louis XIV., was born at Paris in 1615. He belonged to an influential family of the noblesse de la robe, and after some preliminary schooling with the Jesuits, at the age of thirteen was admitted as avocat at the parlement of Paris. While still in his teens he held several responsible posts, and in 1636, when just twenty, he was able to buy the post of maître des requêtes. From 1642 to 1650 he held various intendancies at first in the provinces and then with the army of Mazarin, and, coming thus in touch with the court, was permitted in 1650 to buy the important position of procureur général to the parlement of Paris. During Mazarin’s exile Fouquet shrewdly remained loyal to him, protecting his property and keeping him informed of the situation at court.

Upon the cardinal’s return, Fouquet demanded and received as reward the office of superintendent of the finances (1653), a position which, in the unsettled condition of the government, threw into his hands not merely the decision as to which funds should be applied to meet the demands of the state’s creditors, but also the negotiations with the great financiers who lent money to the king. The appointment was a popular one with the moneyed class, for Fouquet’s great wealth had been largely augmented by his marriage in 1651 with Marie de Castille, who also belonged to a wealthy family of the legal nobility. His own credit, and above all his unfailing confidence in himself, strengthened the credit of the government, while his high position at the parlement (he still remained procureur général) secured financial transactions from investigation. As minister of finance, he soon had Mazarin almost in the position of a suppliant. The long wars, and the greed of the courtiers, who followed the example of Mazarin, made it necessary at times for Fouquet to meet the demands upon him by borrowing upon his own credit, but he soon turned this confusion of the public purse with his own to good account. The disorder in the accounts became hopeless; fraudulent operations were entered into with impunity, and the financiers were kept in the position of clients by official favours and by generous aid whenever they needed it. Fouquet’s fortune now surpassed even Mazarin’s, but the latter was too deeply implicated in similar operations to interfere, and was obliged to leave the day of reckoning to his agent and successor Colbert. Upon Mazarin’s death Fouquet expected to be made head of the government; but Louis XIV. was suspicious of his poorly dissembled ambition, and it was with Fouquet in mind that he made the well-known statement, upon assuming the government, that he would be his own chief minister. Colbert fed the king’s displeasure with adverse reports upon the deficit, and made the worst of the case against Fouquet. The extravagant expenditure and personal display of the superintendent served to intensify the ill-will of the king. Fouquet had bought the port of Belle Isle and strengthened the fortifications, with a view to taking refuge there in case of disgrace. He had spent enormous sums in building a palace on his estate of Vaux, which in extent, magnificence, and splendour of decoration was a forecast of Versailles. Here he gathered the rarest manuscripts, the finest paintings, jewels and antiques in profusion, and above all surrounded himself with artists and authors. The table was open to all people of quality, and the kitchen was presided over by Vatel. Lafontaine, Corneille, Scarron, were among the multitude of his clients. In August 1661 Louis XIV., already set upon his destruction, was entertained at Vaux with a fête rivalled in magnificence by only one or two in French history, at which Molière’s Les Fâcheux was produced for the first time. The splendour of the entertainment sealed Fouquet’s fate. The king, however, was afraid to act openly against so powerful a minister. By crafty devices Fouquet was induced to sell his office of procureur général, thus losing the protection of its privileges, and he paid the price of it into the treasury.

Three weeks after his visit to Vaux the king withdrew to Nantes, taking Fouquet with him, and had him arrested when he was leaving the presence chamber, flattered with the assurance of his esteem. The trial lasted almost three years, and its violation of the forms of justice is still the subject of frequent monographs by members of the French bar. Public sympathy was strongly with Fouquet, and Lafontaine, Madame de Sévigné and many others wrote on his behalf; but when Fouquet was sentenced to banishment, the king, disappointed, “commuted” the sentence to imprisonment for life. He was sent at the beginning of 1665 to the fortress of Pignerol, where he undoubtedly died on the 23rd of March 1680.1 Louis acted throughout “as though he were conducting a campaign,” evidently fearing that Fouquet would play the part of a Richelieu. Fouquet bore himself with manly fortitude, and composed several mediocre translations in prison. The devotional works bearing his name are apocryphal. A report of his trial was published in Holland, in 15 volumes, in 1665-1667, in spite of the remonstrances which Colbert addressed to the States-General. A second edition under the title of Œuvres de M. Fouquet appeared in 1696.

751

See Chéruel, Mémoires sur la vie publique et privée de Fouquet ... d’après ses lettres et des pièces inédites (2 vols., Paris, 1864); J. Lair, Nicolas Foucquet, procureur général, surintendant des finances, ministre d’État de Louis XIV (2 vols., Paris, 1890); U.V. Châtelain, Le Surintendant Nicolas Fouquet, protecteur des lettres, des arts et des sciences (Paris, 1905); R. Pfnor et A. France, Le Château de Vaux-le-Vicomte dessiné et gravé (Paris, 1888).


1 Fouquet has been identified with the “Man with the Iron Mask” (see Iron Mask), but this theory is quite impossible.


FOUQUIER-TINVILLE, ANTOINE QUENTIN (1746-1795), French revolutionist, was born at Hérouel, a village in the department of the Aisne. Originally a procureur attached to the Châtelet at Paris, he sold his office in 1783, and became a clerk under the lieutenant-general of police. He seems to have early adopted revolutionary ideas, but little is known of the part he played at the outbreak of the Revolution. When the Revolutionary Tribunal of Paris was established on the 10th of March 1793, he was appointed public prosecutor to it, an office which he filled until the 28th of July 1794. His activity during this time earned him the reputation of one of the most terrible and sinister figures of the Revolution. His function as public prosecutor was not so much to convict the guilty as to see that the proscriptions ordered by the faction for the time being in power were carried out with a due regard to a show of legality. He was as ruthless and as incorrupt as Robespierre himself; he could be moved from his purpose neither by pity nor by bribes; nor was there in his cruelty any of that quality which made the ordinary Jacobin enragé by turns ferocious and sentimental. It was this very quality of passionless detachment that made him so effective an instrument of the Terror. He had no forensic eloquence; but the cold obstinacy with which he pressed his charges was more convincing than any rhetoric, and he seldom failed to secure a conviction.

His horrible career ended with the fall of Robespierre and the terrorists on the 9th Thermidor. On the 1st of August 1794 he was imprisoned by order of the Convention and brought to trial. His defence was that he had only obeyed the orders of the Committee of Public Safety; but, after a trial which lasted forty-one days, he was condemned to death, and guillotined on the 7th of May 1795.

See Mémoire pour A.Q. Fouquier ex-accusateur public près le tribunal révolutionnaire, &c. (Paris, 1794); Domenget, Fouquier-Tinville et le tribunal révolutionnaire (Paris, 1878); H. Wallon, Histoire du tribunal révolutionnaire de Paris (1880-1882) (a work of general interest, but not always exact); George Lecocq, Notes et documents sur Fouquier-Tinville (Paris, 1885). See also the documents relating to his trial enumerated by M. Tourneux in Bibliographie de l’histoire de Paris pendant la Révolution Française, vol. i. Nos. 4445-4454 (1890).


FOURCHAMBAULT, a town of central France in the department of Nièvre, on the right bank of the Loire, 4½ m. N.W. of Nevers, on the Paris-Lyon railway. Pop. (1906) 4591. It owes its importance to its extensive iron-works, established in 1821, which give employment to 2000 workmen and produce engineering material for railway, military and other purposes. Among the more remarkable chefs-d’œuvre which have been produced at Fourchambault are the metal portions of the Pont du Carrousel, the iron beams of the roof of the cathedral at Chartres, and the vast spans of the bridge over the Dordogne at Cubzac. A small canal unites the works to the Lateral canal of the Loire.


FOURCROY, ANTOINE FRANÇOIS, Comte de (1755-1809), French chemist, the son of an apothecary in the household of the duke of Orleans, was born at Paris on the 15th of June 1755. He took up medical studies by the advice of the anatomist Félix Vicq d’Azyr (1748-1794), and after many difficulties caused by lack of means finally in 1780 obtained his doctor’s diploma. His attention was specially turned to chemistry by J.B.M. Bucquet (1746-1780), the professor of chemistry at the Medical School of Paris, and in 1784 he was chosen to succeed P.J. Macquer (1718-1784) as lecturer in chemistry at the college of the Jardin du Roi, where his lectures attained great popularity. He was one of the earliest converts to the views of Lavoisier, which he helped to promulgate by his voluminous writings, but though his name appears on a large number of chemical and also physiological and pathological memoirs, either alone or with others, he was rather a teacher and an organizer than an original investigator. A member of the committees for public instruction and public safety, and later, under Napoleon, director general of instruction, he took a leading part in the establishment of schools for both primary and secondary education, scientific studies being especially provided for. Fourcroy died at Paris on the 16th of December 1809, the very day on which he had been created a count of the French empire. By his conduct as a member of the Convention he has been accused of contributing to the death of Lavoisier. Baron Cuvier in his Éloge historique of Fourcroy repels the charge, but he can scarcely be acquitted of time-serving indifference, if indeed active, though secret, participation be not proved against him.

The Royal Society’s Catalogue of Scientific Papers enumerates 59 memoirs by Fourcroy himself, and 58 written jointly by him and others, mostly L.N. Vauquelin.


FOURIER, FRANÇOIS CHARLES MARIE (1772-1837), French socialist writer, was born at Besançon in Franche-Comté on the 7th of April 1772. His father was a draper in good circumstances, and Fourier received an excellent education at the college in his native town. After completing his studies there he travelled for some time in France, Germany and Holland. On the death of his father he inherited a considerable amount of property, which, however, was lost when Lyons was besieged by the troops of the Convention. Being thus deprived of his means of livelihood Fourier entered the army, but after two years’ service as a chasseur was discharged on account of ill-health. In 1803 he published a remarkable article on European politics which attracted the notice of Napoleon, some of whose ideas were foreshadowed in it. Inquiries were made after the author, but nothing seems to have come of them. After leaving the army Fourier entered a merchant’s office in Lyons, and some years later undertook on his own account a small business as broker. He obtained in this way just sufficient to supply his wants, and devoted all his leisure time to the elaboration of his first work on the organization of society.

During the early part of his life, and while engaged in commerce, he had become deeply impressed with the conviction that social arrangements resulting from the principles of individualism and competition were essentially imperfect and immoral. He proposed to substitute for these principles co-operation or united effort, by means of which full and harmonious development might be given to human nature. The scheme, worked out in detail in his first work, Théorie des quatre mouvements (2 vols., Lyons, 1808, published anonymously), has for foundation a particular psychological proposition and a special economical doctrine. Psychologically Fourier held what may with some laxity of language be called natural optimism,—the view that the full, free development of human nature or the unrestrained indulgence of human passion is the only possible way to happiness and virtue, and that misery and vice spring from the unnatural restraints imposed by society on the gratification of desire. This principle of harmony among the passions he regarded as his grandest discovery—a discovery which did more than set him on a level with Newton, the discoverer of the principle of attraction or harmony among material bodies. Throughout his works, in uncouth, obscure and often unintelligible language, he endeavours to show that the same fundamental fact of harmony is to be found in the four great departments,—society, animal life, organic life and the material universe. In order to give effect to this principle and obtain the resulting social harmony, it was needful that society should be reconstructed; for, as the social organism is at present constituted, innumerable restrictions are imposed upon the free development of human desire. As practical principle for such a reconstruction Fourier advocated co-operative or united industry. In many respects what he says of co-operation, in particular as to the enormous waste of economic force which the actual arrangements of society entail, still deserves attention, and some of the most recent efforts towards extension of the co-operative method, e.g. to house-keeping, were in essentials anticipated by him. But the full realization of his scheme demanded much more than the mere admission that co-operation is economically more 752 efficacious than individualism. Society as a whole must be organized on the lines requisite to give full scope to co-operation and to the harmonious evolution of human nature. The details of this reorganization of the social structure cannot be given briefly, but the broad outlines may be thus sketched. Society, on his scheme, is to be divided into departments or phalanges, each phalange numbering about 1600 persons. Each phalange inhabits a phalanstère or common building, and has a certain portion of soil allotted to it for cultivation. The phalanstères are built after a uniform plan, and the domestic arrangements are laid down very elaborately. The staple industry of the phalanges is, of course, agriculture, but the various series and groupes into which the members are divided may devote themselves to such occupations as are most to their taste; nor need any occupation become irksome from constant devotion to it. Any member of a group may vary his employment at pleasure, may pass from one task to another. The tasks regarded as menial or degrading in ordinary society can be rendered attractive if advantage is taken of the proper principles of human nature: thus children, who have a natural affinity for dirt, and a fondness for “cleaning up,” may easily be induced to accept with eagerness the functions of public scavengers. It is not, on Fourier’s scheme, necessary that private property should be abolished, nor is the privacy of family life impossible within the phalanstère. Each family may have separate apartments, and there may be richer and poorer members. But the rich and poor are to be locally intermingled, in order that the broad distinction between them, which is so painful a feature in actual society, may become almost imperceptible. Out of the common gain of the phalange a certain portion is deducted to furnish to each member the minimum of subsistence; the remainder is distributed in shares to labour, capital and talent,—five-twelfths going to the first, four-twelfths to the second and three-twelfths to the third. Upon the changes requisite in the private life of the members Fourier was in his first work more explicit than in his later writings. The institution of marriage, which imposes unnatural bonds on human passion, is of necessity abolished; a new and ingeniously constructed system of licence is substituted for it. Considerable offence seems to have been given by Fourier’s utterances with regard to marriage, and generally the later advocates of his views are content to pass the matter over in silence or to veil their teaching under obscure and metaphorical language.

The scheme thus sketched attracted no attention when the Théorie first appeared, and for some years Fourier remained in his obscure position at Lyons. In 1812 the death of his mother put him in possession of a small sum of money, with which he retired to Bellay in order to perfect his second work. The Traité de l’association agricole domestique was published in 2 vols. at Paris in 1822, and a summary appeared in the following year. After its publication the author proceeded to Paris in the hope that some wealthy capitalist might be induced to attempt the realization of the projected scheme. Disappointed in this expectation he returned to Lyons. In 1826 he again visited Paris, and as a considerable portion of his means had been expended in the publication of his book, he accepted a clerkship in an American firm. In 1829 and 1830 appeared what is probably the most finished exposition of his views, Le Nouveau Monde industriel. In 1831 he attacked the rival socialist doctrines of Saint-Simon and Owen in the small work Pièges et charlatanisme de deux sectes, St Simon et Owen. His writings now began to attract some attention. A small body of adherents gathered round him, and the most ardent of them was Victor Considérant (q.v.). In 1832 a newspaper, Le Phalanstère ou la réforme industrielle was started to propagate the views of the school, but its success was not great. In 1833 it declined from a weekly to a monthly, and in 1834 it died of inanition. It was revived in 1836 as Le Phalange, and in 1843 became a daily paper, La Démocratie pacifique. In 1850 it was suppressed.

Fourier did not live to see the success of his newspaper, and the only practical attempt during his lifetime to establish a phalanstère was a complete failure. In 1832 M. Baudet Dulary, deputy for Seine-et-Oise, who had become a convert, purchased an estate at Condé-sur-Vesgre, near the forest of Rambouillet, and proceeded to establish a socialist community. The capital supplied was, however, inadequate, and the community broke up in disgust. Fourier was in no way discouraged by this failure, and till his death, on the 10th of October 1837, he lived in daily expectation that wealthy capitalists would see the merits of his scheme and be induced to devote their fortunes to its realization. It may be added that subsequent attempts to establish the phalanstère have been uniformly unsuccessful.1

Fourier seems to have been of an extremely retiring and sensitive disposition. He mixed little in society, and appeared, indeed, as if he were the denizen of some other planet. Of the true nature of social arrangements, and of the manner in which they naturally grow and become organized, he must be pronounced extremely ignorant. The faults of existing institutions presented themselves to him in an altogether distorted manner, and he never appears to have recognized that the evils of actual society are immeasurably less serious than the consequences of his arbitrary scheme. Out of the chaos of human passion he supposed harmony was to be evolved by the adoption of a few theoretically disputable principles, which themselves impose restraints even more irksome than those due to actual social facts. With regard to the economic aspects of his proposed new method, it is of course to be granted that co-operation is more effective than individual effort, but he has nowhere faced the question as to the probable consequences of organizing society on the abolition of those great institutions which have grown with its growth. His temperament was too ardent, his imagination too strong, and his acquaintance with the realities of life too slight to enable him justly to estimate the merits of his fantastic views. That this description of him is not expressed in over-strong language must be clear to any one who not only considers what is true in his works,—and the portion of truth is by no means a peculiar discovery of Fourier’s,—but who takes into account the whole body of his speculations, the cosmological and historical as well as the economical and social. No words can adequately describe the fantastic nonsense which he pours forth, partly in the form of general speculation on the universe, partly in the form of prophetic utterances with regard to the future changes in humanity and its material environment. From these extraordinary writings it is no extreme conclusion that there was much of insanity in Fourier’s mental constitution.

Authorities.—Ch. Pellarin, Fourier, sa vie et sa théorie (5th ed., 1872); Sargant, Social Innovators (1859); Reybaud, Réformateurs modernes (7th ed., 1864); Stein, Socialismus und Communismus des heutigen Frankreichs (2nd ed., 1848); A.J. Booth, Fortnightly Review, N. S., vol. xii.; Czynski, Notice bibliographique sur C. Fourier (1841); Ferraz, Le Socialisme, le naturalisme et le positivisme (1877); Considérant, Exposition abrégée du système de Fourier (1845); Transon, Théorie sociétaire de Charles Fourier (1832); Stein, Geschichte der sozialen Bewegung in Frankreich (1850); Marlo, Untersuchungen über die Organisation der Arbeit (1853); J.H. Noyes, History of American Socialisms (1870); Bebel, Charles Fourier (1888); Varschauer, Geschichte des Sozialismus und Kommunismus im 19. Jahrhundert (1903); Sambuc, Le Socialisme de Fourier (1900); M. Hillquit, History of Socialism in the United States (1903); H. Bourgin, Fourier, contribution à l’étude de socialisme français (1905).

(R. Ad.)

1 Several experiments were made to this end in the United States (see Communism) by American followers of Fourier, whose doctrines were introduced there by Albert Brisbane (1809-1890). Indeed, in the years between 1840 and 1850, during which the movement waxed and waned, no fewer than forty-one phalanges were founded, of which some definite record can be found. The most interesting of all the experiments, not alone from its own history, but also from the fact that it attracted the support of many of the most intellectual and cultured Americans was that of Brook Farm (q.v.).


FOURIER, JEAN BAPTISTE JOSEPH (1768-1830), French mathematician, was born at Auxerre on the 21st of March 1768. He was the son of a tailor, and was left an orphan in his eighth year; but, through the kindness of a friend, admission was gained for him into the military school of his native town, which was then under the direction of the Benedictines of Saint-Maur. He soon distinguished himself as a student and made rapid progress, especially in mathematics. Debarred from entering the army on account of his lowness of birth and poverty, he was appointed 753 professor of mathematics in the school in which he had been a pupil. In 1787 he became a novice at the abbey of St Benoît-sur-Loire; but he left the abbey in 1789 and returned to his college, where, in addition to his mathematical duties, he was frequently called to lecture on other subjects,—rhetoric, philosophy and history. On the institution of the École Normale at Paris in 1795 he was sent to teach in it, and was afterwards attached to the École Polytechnique, where he occupied the chair of analysis. Fourier was one of the savants who accompanied Bonaparte to Egypt in 1798; and during this expedition he was called to discharge important political duties in addition to his scientific ones. He was for a time virtually governor of half Egypt, and for three years was secretary of the Institut du Caire; he also delivered the funeral orations for Kléber and Desaix. He returned to France in 1801, and in the following year he was nominated prefect of Isère, and was created baron and chevalier of the Legion of Honour. He took an important part in the preparation of the famous Description de l’Égypte and wrote the historical introduction. He held his prefecture for fourteen years; and it was during this period that he carried on his elaborate and fruitful investigations on the conduction of heat. On the return of Napoleon from Elba, in 1815, Fourier published a royalist proclamation, and left Grenoble as Napoleon entered it. He was then deprived of his prefecture, and, although immediately named prefect of the Rhone, was soon after again deprived. He now settled at Paris, was elected to the Académie des Sciences in 1816, but in consequence of the opposition of Louis XVIII. was not admitted till the following year, when he succeeded the Abbé Alexis de Rochon. In 1822 he was made perpetual secretary in conjunction with Cuvier, in succession to Delambre. In 1826 Fourier became a member of the French Academy, and in 1827 succeeded Laplace as president of the council of the École Polytechnique. In 1828 he became a member of the government commission established for the encouragement of literature. He died at Paris on the 16th of May 1830.

As a politician Fourier achieved uncommon success, but his fame chiefly rests on his strikingly original contributions to science and mathematics. The theory of heat engaged his attention quite early, and in 1812 he obtained a prize offered by the Académie des Sciences with a memoir in two parts, Théorie des mouvements de la chaleur dans les corps solides. The first part was republished in 1822 as La Théorie analytique de la chaleur, which by its new methods and great results made an epoch in the history of mathematical and physical science (see below: Fourier’s Series). An English translation has been published by A. Freeman (Cambridge, 1872), and a German by Weinstein (Berlin, 1884). His mathematical researches were also concerned with the theory of equations, but the question as to his priority on several points has been keenly discussed. After his death Navier completed and published Fourier’s unfinished work, Analyse des équations indéterminées (1831), which contains much original matter. In addition to the works above mentioned, Fourier wrote many memoirs on scientific subjects, and éloges of distinguished men of science. His works have been collected and edited by Gaston Darboux with the title Œuvres de Fourier (Paris, 1889-1890).

For a list of Fourier’s publications see the Catalogue of Scientific Papers of the Royal Society of London. Reference may also be made to Arago, “Joseph Fourier,” in the Smithsonian Report (1871).


FOURIER’S SERIES, in mathematics, those series which proceed according to sines and cosines of multiples of a variable, the various multiples being in the ratio of the natural numbers; they are used for the representation of a function of the variable for values of the variable which lie between prescribed finite limits. Although the importance of such series, especially in the theory of vibrations, had been recognized by D. Bernoulli, Lagrange and other mathematicians, and had led to some discussion of their properties, J.B.J. Fourier (see above) was the first clearly to recognize the arbitrary character of the functions which the series can represent, and to make any serious attempt to prove the validity of such representation; the series are consequently usually associated with the name of Fourier. More general cases of trigonometrical series, in which the multiples are given as the roots of certain transcendental equations, were also considered by Fourier.

Before proceeding to the consideration of the special class of series to be discussed, it is necessary to define with some precision what is to be understood by the representation of an arbitrary function by an infinite series. Suppose a function of a variable x to be arbitrarily given for values of x between two fixed values a and b; this means that, corresponding to every value of x such that a ≦ x ≦ b, a definite arithmetical value of the function is assigned by means of some prescribed set of rules. A function so defined may be denoted by ƒ(x); the rules by which the values of the function are determined may be embodied in a single explicit analytical formula, or in several such formulae applicable to different portions of the interval, but it would be an undue restriction of the nature of an arbitrarily given function to assume à priori that it is necessarily given in this manner, the possibility of the representation of such a function by means of a single analytical expression being the very point which we have to discuss. The variable x may be represented by a point at the extremity of an interval measured along a straight line from a fixed origin; thus we may speak of the point c as synonymous with the value x = c of the variable, and of ƒ(c) as the value of the function assigned to the point c. For any number of points between a and b the function may be discontinuous, i.e. it may at such points undergo abrupt changes of value; it will here be assumed that the number of such points is finite. The only discontinuities here considered will be those known as ordinary discontinuities. Such a discontinuity exists at the point c if ƒ(c + ε), ƒ(c − ε) have distinct but definite limiting values as ε is indefinitely diminished; these limiting values are known as the limits on the right and on the left respectively of the function at c, and may be denoted by ƒ(c + 0), ƒ(c − 0). The discontinuity consists therefore of a sudden change of value of the function from ƒ(c − 0) to ƒ(c + 0), as x increases through the value c. If there is such a discontinuity at the point x = 0, we may denote the limits on the right and on the left respectively by ƒ(+0), ƒ(−0).

Suppose we have an infinite series u1(x) + u2(x) + ... + un(x) + ... in which each term is a function of x, of known analytical form; let any value x = c (a = c = b) be substituted in the terms of the series, and suppose the sum of n terms of the arithmetical series so obtained approaches a definite limit as n is indefinitely increased; this limit is known as the sum of the series. If for every value of c such that a ≦ c ≦ b the sum exists and agrees with the value of ƒ(c), the series Σ 1 un(x) is said to represent the function (ƒx) between the values a, b of the variable. If this is the case for all points within the given interval with the exception of a finite number, at any one of which either the series has no sum, or has a sum which does not agree with the value of the function, the series is said to represent “in general” the function for the given interval. If the sum of n terms of the series be denoted by Sn(c), the condition that Sn(c) converges to the value ƒ(c) is that, corresponding to any finite positive number δ as small as we please, a value n1 of n can be found such that if n ≧ n1, |ƒ(c) − Sn(c)| < δ.

Functions have also been considered which for an infinite number of points within the given interval have no definite value, and series have also been discussed which at an infinite number of points in the interval cease either to have a sum, or to have one which agrees with the value of the function; the narrower conception above will however be retained in the treatment of the subject in this article, reference to the wider class of cases being made only in connexion with the history of the theory of Fourier’s Series.

Uniform Convergence of Series.—If the series u1(x) + u2(x) + ... + u2(x) + ... converge for every value of x in a given interval a to b, and its sum be denoted by S(x), then if, corresponding to a finite positive number δ, as small as we please, a finite number n1 can be found such that the arithmetical value of S(x) − Sn(x), where n ⋝ n1 is less than δ for every value of x in the given interval, the series is said to converge uniformly in that interval. It may however happen that as x approaches a particular value the number of terms of the series which must be taken so that |S(x) − Sn(x)| may be < δ, increases indefinitely; the convergence of the series is then infinitely slow in the neighbourhood of such a point, and the series is not uniformly convergent throughout the given interval, although it converges at each point of the interval. If the number of such points in the neighbourhood of which the series ceases to converge uniformly be finite, they may be excluded by taking intervals of finite magnitude as small as we please containing such points, and considering the convergence of the series in the given interval with such sub-intervals excluded; the convergence of the series is now uniform throughout the remainder of the interval. The series is said to be in general uniformly convergent within the given interval a to b if it can be made uniformly convergent by the exclusion of a finite number of portions of the interval, each such portion being arbitrarily small. It is known that the sum of an infinite series of continuous terms can be discontinuous only at points in the neighbourhood of which the convergence of the series is not 754 uniform, but non-uniformity of convergence of the series does not necessarily imply discontinuity in the sum.

Form of Fourier’s Series.—If it be assumed that a function ƒ(x) arbitrarily given for values of x such that o ≦ x ≦ l is capable of being represented in general by an infinite series of the form

A1 sin πx + A2 sin 2πx + ... + An sin nπx + ...,
l l l

and if it be further assumed that the series is in general uniformly convergent throughout the interval 0 to l, the form of the coefficients A can be determined. Multiply each term of the series by sin nπx / l, and integrate the product between the limits 0 and l, then in virtue of the property l0 sin (nπx / l) sin (n′πx / l) dx = 0, or ½ l, according as n′ is not, or is, equal to n, we have ½ lAn= l0 ƒ(x) sin (nπx / l) dx, and thus the series is of the form 2/l Σ 1 sin (nπx / l) l0 sin (nπx / l) dx ...

(1)

This method of determining the coefficients in the series would not be valid without the assumption that the series is in general uniformly convergent, for in accordance with a known theorem the sum of the integrals of the separate terms of the series is otherwise not necessarily equal to the integral of the sum. This assumption being made, it is further assumed that ƒ(x) is such that l 0 ƒ(x)sin (nπx /l) dx has a definite meaning for every value of n.

Before we proceed to examine the justification for the assumptions made, it is desirable to examine the result obtained, and to deduce other series from it. In order to obtain a series of the form

B0 + B1 cos πx + B2 cos 2πx + ... + Bn cos nπx + ...
l ll

for the representation of ƒ(x) in the interval o to l, let us apply the series (1) to represent the function ƒ(x) sin (πx / l); we thus find

2 Σ 1 sin nπx l 0 ƒ(x) sin πx sin nπx dx,
l l l l

or

1 Σ 1 sin nπx l 0 ƒ(x) { cos (n − 1) πx − cos (n + 1) πx } dx.
l l l l

On rearrangement of the terms this becomes

1 sin πx l 0 ƒ(x) dx + 2 Σ sin πx cos nπx l 0 ƒ(x) cos nπx dx.
l l l l l l

hence ƒ(x) is represented for the interval 0 to l by the series of cosines

1 l 0 ƒ(x) dx + 2 Σ 1 cos nπx l 0 ƒ(x) cos nπx dx.
l l l l
(2)

We have thus seen, that with the assumptions made, the arbitrary function ƒ(x) may be represented, for the given interval, either by a series of sines, as in (1), or by a series of cosines, as in (2). Some important differences between the two series must, however, be noticed. In the first place, the series of sines has a vanishing sum when x = 0 or x = l; it therefore does not represent the function at the point x = 0, unless ƒ(0) = 0, or at the point x = l, unless ƒ(l) = 0, whereas the series (2) of cosines may represent the function at both these points. Again, let us consider what is represented by (1) and (2) for values of x which do not lie between o and l. As ƒ(x) is given only for values of x between 0 and l, the series at points beyond these limits have no necessary connexion with ƒ(x) unless we suppose that ƒ(x) is also given for such general values of x in such a way that the series continue to represent that function. If in (1) we change x into −x, leaving the coefficients unaltered, the series changes sign, and if x be changed into x + 2l, the series is unaltered; we infer that the series (1) represents an odd function of x and is periodic of period 2l; thus (1) will represent ƒ(x) in general for values of x between ±∞, only if ƒ(x) is odd and has a period 2l. If in (2) we change x into −x, the series is unaltered, and it is also unaltered by changing x into x + 2l; from this we see that the series (2) represents ƒ(x) for values of x between ±∞, only if ƒ(x) is an even function, and is periodic of period 2l. In general a function ƒ(x) arbitrarily given for all values of x between ±∞ is neither periodic nor odd, nor even, and is therefore not represented by either (1) or (2) except for the interval 0 to l.

From (1) and (2) we can deduce a series containing both sines and cosines, which will represent a function ƒ(x) arbitrarily given in the interval −l to l, for that interval. We can express by (1) the function ½ {ƒ(x) − ƒ(−x)} which is an odd function, and thus this function is represented for the interval −l to +l by

2 Σ sin nπx l 0 ½ {ƒ(x) − ƒ(−x)} sin nπx dx;
l l l

we can also express ½ {ƒ(x) + ƒ(−x)}, which is an even function, by means of (2), thus for the interval −l to +l this function is represented by

1 l 0 ½ {ƒ(x) + ƒ(−x)} dx + 2 Σ 1 cos nπx l 0 ½ {ƒ(x) + ƒ(−x)} cos nπx dx.
l l l l

It must be observed that ƒ(−x) is absolutely independent of ƒ(x), the former being not necessarily deducible from the latter by putting −x for x in a formula; both ƒ(x) and ƒ(−x) are functions given arbitrarily and independently for the interval 0 to l. On adding the expressions together we obtain a series of sines and cosines which represents ƒ(x) for the interval −l to l. The integrals

l 0 ƒ(−x) cos nπx dx,   l 0 ƒ(−x) sin nπx dx
l l

are equivalent to

−l 0 ƒ(x) cos nπx dx,   + −l 0 ƒ(x) sin nπx dx,
l l

thus the series is

1 l −l ƒ(x) dx + 1 Σ 1 cos nπx l −l ƒ(x) cos nπx dx + 1 Σ 1 sin nπx l −l ƒ(x) sin nπx dx,
2l l l l l l l

which may be written

1 l −l ƒ(x′) dx′ + 1 Σ 1 l −l ƒ(x′) cos nπ (x − x′) dx′.
2l l l
(3)

The series (3), which represents a function ƒ(x) arbitrarily given for the interval −l to l, is what is known as Fourier’s Series; the expressions (1) and (2) being regarded as the particular forms which (3) takes in the two cases, in which ƒ(−x) = −ƒ(x), or ƒ(−x) = ƒ(x) respectively. The expression (3) does not represent ƒ(x) at points beyond the interval −l to l, unless ƒ(x) has a period 2l. For a value of x within the interval, at which ƒ(x) is discontinuous, the sum of the series may cease to represent ƒ(x), but, as will be seen hereafter, has the value ½ {ƒ(x + 0) + ƒ(x − 0)}, the mean of the limits at the points on the right and the left. The series represents the function at x = 0, unless the function is there discontinuous, in which case the series is ½ {ƒ(+0) + ƒ(−0)}; the series does not necessarily represent the function at the points l and −l, unless ƒ(l) = ƒ(−l). Its sum at either of these points is ½ {ƒ(l) + ƒ(−l)}.

Examples of Fourier’s Series.—(a) Let ƒ(x) be given from 0 to l, by ƒ(x) = c, when 0 ≦ x < ½ l, and by f(x)= −c from ½ l to l; it is required to find a sine series, and also a cosine series, which shall represent the function in the interval.

We have

l 0 ƒ(x) sin nπx dx = c ½ l 0 sin nπx dx − c l ½l sin nπx dx
l l l
= cl (cos nπ − 2 cos ½nπ + 1).

This vanishes if n is odd, and if n = 4m, but if n = 4m + 2 it is equal to 4cl / nπ; the series is therefore

4c ( l sin 2πx + 1 sin 6πx + 1 sin 10πx + ... ).
π 2 l 3 l 5 l

For unrestricted values of x, this series represents the ordinates of the series of straight lines in fig. 1, except that it vanishes at the points 0, ½ l, l, 32 l ...

Fig. 1.

We find similarly that the same function is represented by the series

4c ( cos πx 1 cos 3πx + 1 cos 5πx − + ... )
π l 3 l 5 l

during the interval 0 to l; for general values of x the series represents the ordinate of the broken line in fig. 2, except that it vanishes at the points ½ l, 32 l ...

Fig. 2.

(b) Let ƒ(x) = x from 0 to ½ l, and f(x) = l − x, from ½ l to l; then

l 0 ƒ(x) sin nπx dx = ½ l 0 x sin nπx dx + l ½ l (l − x) sin nπx dx
l l l
= − cos + sin + l²n ( cos − cos nπ )
2nπ 2 n²π² 2 2
+ cos nπ − cos + sin = 2l² sin
2nπ 2 n²π² 2 n²π² 2

755

hence the sine series is

4l ( sin nx 1 sin 3πx + 1 sin 5πx − ... )
π² l l l

For general values of x, the series represents the ordinates of the row of broken lines in fig. 3.

Fig. 3.

The cosine series, which represents the same function for the interval 0 to l, may be found to be

1 l − 2l ( cos 2πx + 1 cos 6πx + 1 cos 10πx + ... )
4 π² l l l

This series represents for general values of x the ordinate of the set of broken lines in fig. 4.

Fig. 4.

Dirichlet’s Integral.—The method indicated by Fourier, but first carried out rigorously by Dirichlet, of proving that, with certain restrictions as to the nature of the function ƒ(x), that function is in general represented by the series (3), consists in finding the sum of n+1 terms of that series, and then investigating the limiting value of the sum, when n is increased indefinitely. It thus appears that the series is convergent, and that the value towards which its sum converges is ½ {ƒ(x + 0) + ƒ(x − 0)}, which is in general equal to ƒ(x). It will be convenient throughout to take −π to π as the given interval; any interval −l to l may be reduced to this by changing x into lx / π, and thus there is no loss of generality.

We find by an elementary process that

½ + cos (x − x′) + cos 2(x − x′) + ... + cos n(x − x′)

= sin ½ (2n + 1) (x′ − x) .
2 sin ½ (x′ − x)

Hence, with the new notation, the sum of the first n+1 terms of (3) is

= π −π ƒ(x′) sin ½ (2n + 1) (x′ − x) dx′.
2 sin ½ (x′ − x)

If we suppose ƒ(x) to be continued beyond the interval −π to π, in such a way that ƒ(x) = ƒ(x + 2π), we may replace the limits in this integral by x + π, x − π respectively; if we then put x′ − x = 2z, and let ƒ(x′) = F(z), the expression becomes 1/π π/2 −π/2 F(z) (sin mz) / (sin z) dz, where m = 2n + 1; this expression may be written in the form

1 π/2 0 F(z) sin mz dz + 1 π/2 0 F(−z) sin mz dz.
π sin z π sin z
(4)

We require therefore to find the limiting value, when m is indefinitely increased, of π/2 0 F(z) (sin mz) / (sin z) dz; the form of the second integral being essentially the same. This integral, or rather the slightly more general one h 0 F(z) (sin mz) / (sin z) dz, when 0 < h ≦ ½π, is known as Dirichlet’s integral. If we write X(z) = F(z) (z / sin z), the integral becomes h 0 X(z) (sin mz) / z dz, which is the form in which the integral is frequently considered.

The Second Mean-Value Theorem.—The limiting value of Dirichlet’s integral may be conveniently investigated by means of a theorem in the integral calculus known as the second mean-value theorem. Let a, b be two fixed finite numbers such that a < b, and suppose ƒ(x), φ(x) are two functions which have finite and determinate values everywhere in the interval except for a finite number of points; suppose further that the functions ƒ(x), φ(x) are integrable throughout the interval, and that as x increases from a to b the function ƒ(x) is monotone, i.e. either never diminishes or never increases; the theorem is that

b a ƒ(x) φ(x) dx = ƒ(a + 0) ξ a φ(x) dx + ƒ(b − 0) b ξ φ(x) dx

when ξ is some point between a and b, and ƒ(a), ƒ(b) may be written for ƒ(a + 0), ƒ(b − 0) unless a or b is a point of discontinuity of the function ƒ(x).

To prove this theorem, we observe that, since the product of two integrable functions is an integrable function, b a ƒ(x) φ(x) dx exists, and may be regarded as the limit of the sum of a series

ƒ(x0) φ(x0) (x1 − x0) + ƒ(x1) φ(x1) (x2 − x1) + ... + ƒ(xn−1) φ(xn−1) (xn − xn−1)

where x0 = a, xn = b and x1, x2 ... xn−1 are n − 1 intermediate points. We can express φ(xr) (xr+1 − xr) in the form Yr+1 − Yr, by putting

Yr = ΣK=r K=1 φ (xK-1) (xK − xK−1), Y0 = 0.

Writing Xr for ƒ(xr), the series becomes

X0 (Y1 − Y0) + X1 (Y2 − Y1) + ... + Xn−1 (Yn − Yn−1)

or

Y1 (X0 − X1) + Y2 (X1 − X2) + ... + Yn(Xn−1 − Xn) + YnXn.

Now, by supposition, all the numbers Y1, Y2 ... Yn are finite, and all the numbers Xr−1 − Xr are of the same sign, hence by a known algebraical theorem the series is equal to M (X0 − Xn) + YnXn, where M is a number intermediate between the greatest and the least of the numbers Y1, Y2, ... Yn. This remains true however many partial intervals are taken, and therefore, when their number is increased indefinitely, and their breadths are diminished indefinitely according to any law, we have

Y b a ƒ(x) φ(x) dx = {ƒ(a) − ƒ(b)} M + ƒ(b) b a φ(x) dx

when M is intermediate between the greatest and least values which x a φ(x) dx can have, when x is in the given integral. Now this integral is a continuous function of its upper limit x, and therefore there is a value of x in the interval, for which it takes any particular value between the greatest and least values that it has. There is therefore a value ξ between a and b, such that M = ξ a φ(x) dx, hence

b a ƒ(x) φ(x) dx = {ƒ(a) − ƒ(b)} ξ a φ(x) dx + ƒ(b) b a φ(x) dx

= ƒ(a) ξ a φ(x) dx + ƒ(b) b ξ φ(x) dx.

If the interval contains any finite numbers of points of discontinuity of ƒ(x) or φ(x), the method of proof still holds good, provided these points are avoided in making the subdivisions; in particular if either of the ends be a point of discontinuity of ƒ(x), we write ƒ(a + 0) or ƒ(b − 0), for ƒ(a) or ƒ(b), it being assumed that these limits exist.

Functions, with Limited Variation.—The condition that ƒ(x), in the mean-value theorem, either never increases or never diminishes as x increases from a to b, places a restriction upon the applications of the theorem. We can, however, show that a function ƒ(x) which is finite and continuous between a and b, except for a finite number of ordinary discontinuities, and which only changes from increasing to diminishing or vice versa, a finite number of times, as x increases from a to b, may be expressed as the difference of two functions ƒ1(x), ƒ2(x), neither of which ever diminishes as x passes from a to b, and that these functions are finite and continuous, except that one or both of them are discontinuous at the points where the given function is discontinuous. Let α, β be two consecutive points at which ƒ(x) is discontinuous, consider any point x1, such that α ≦ x1 ≦ β, and suppose that at the points M1, M2 ... Mr between α and x1, ƒ(x) is a maximum, and at m1, m2 ... mr, it is a minimum; we will suppose, for example, that the ascending order of values is α, M1, m1, M2, m2 ... Mr, mr, x1; it will make no essential difference in the argument if m1 comes before M1, or if Mr immediately precedes x1, Mr−1 being then the last minimum.

Let

ψ(x1) = [ƒ(M1) − ƒ(α + 0)] + [ƒ(M2) − ƒ(m1)] + ... + [ƒ(Mr) − ƒ(mr−1)] + [ƒ(x1) − ƒ(mr)];

now let (x1) increase until it reaches the value (Mr+1) at which ƒ(x) is again a maximum, then let

ψ(x1) = [ƒ(M1) − ƒ(α + 0)] + [ƒ(M2) − ƒ(m1)] + ... + [ƒ(Mr) − ƒ(mr−1)] + [ƒ(Mr+1) − ƒ(mr)];

and suppose as x increases beyond the value Mr+1, ψ(x1) remains constant until the next minimum mr+1 is reached, when it again becomes variable; we see that ψ(x1) is essentially positive and never diminishes as x increases.

Let

χ(x1) = [ƒ(M1) − f(m1)] + [ƒ(M2) − ƒ(m1)] + ... + [ƒ(Mr) − ƒ(mr)],

then let x1 increase until it is beyond the next maximum Mr+1, and then let

χ(x1) = [ƒ(M1) − ƒ(m1)] + [ƒ(M2) − ƒ(m1)] + ... + [ƒ(Mr) − ƒ(mr)] + [ƒ(Mr+1) − ƒ(x1)]

thus χ(x1) never diminishes, and is alternately constant and variable. We see that ψ(x1) − χ(x1) is continuous as x1 increases from α to β, and that ψ(x1) − χ(x1) = ƒ(x1) − ƒ(α + 0), and when x1 reaches β, we have ψ(β) − χ(x1) = ƒ(β − 0) − ƒ(α + 0). Hence it is seen that between α and β, ƒ(x) = [ψ(x) + ƒ(α + 0)] − χ(x), where ψ(x) + ƒ(α + 0), χ(x) are continuous and never diminish as x increases; the same reasoning 756 applies to every continuous portion of ƒ(x), for which the functions ψ(x), χ(x) are formed in the same manner; we now take ƒ1(x) = ψ(x) + ƒ(α + 0) + C, ƒ2(x) = χ(x) + C, where C is constant between consecutive discontinuities, but may have different values in the next interval between discontinuities; the C can be so chosen that neither ƒ1(x) nor ƒ2(x) diminishes as x increases through a value for which ƒ(x) is discontinuous. We thus see that ƒ(x) = ƒ1(x) − ƒ2(x), where ƒ1(x), ƒ2(x) never diminish as x increases from a to b, and are discontinuous only where ƒ(x) is so. The function ƒ(x) is a particular case of a class of functions defined and discussed by Jordan, under the name “functions with limited variation” (fonctions à variation bornée); in general such functions have not necessarily only a finite number of maxima and minima.

Proof of the Convergence of Fourier’s Series.—It will now be assumed that a function ƒ(x) arbitrarily given between the values −π and +π, has the following properties:—

(a) The function is everywhere numerically less than some fixed positive number, and continuous except for a finite number of values of the variable, for which it may be ordinarily discontinuous.

(b) The function only changes from increasing to diminishing or vice versa, a finite number of times within the interval; this is usually expressed by saying that the number of maxima and minima is finite.

These limitations on the nature of the function are known as Dirichlet’s conditions; it follows from them that the function is integrable throughout the interval.

On these assumptions, we can investigate the limiting value of Dirichlet’s integral; it will be necessary to consider only the case of a function F(z) which does not diminish as z increases from 0 to ½ π, since it has been shown that in the general case the difference of two such functions may be taken. The following lemmas will be required:

1. Since

π/2 0 sin mz dz = π/2 0 {1 + 2cos 2z + 2cos 4z + ... + 2cos 2nz} dz = π ;
sin z 2

this result holds however large the odd integer m may be.

2. If 0 < α < β ≦ π/2,

β α sin mz dz = 1 γ α sin mz dz + 1 β γ sin mz dz
sin z sin α sin β

where α < γ < β, hence

| ∫ β α sin mz dz | < 2 ( 1 + 1 ) < 4 ;
sin z m sin α sin β m sin α

a precisely similar proof shows that | ∫ β α (sin mz / z) dz | < 4 / mα, hence the integrals β α (sin mz / sin z) dz, β α (sin mz / z) dz, converge to the limit zero, as m is indefinitely increased.

3. If α > 0, | ∫ α (sin θ / θ) dθ | cannot exceed ½ π. For by the mean-value theorem | ∫ h α (sin θ / θ) dθ | < 2/α + 2/h,

hence | Lh = ∞ h α (sin θ / θ) dθ | ≦ 2/α

in particular if α ≧ π | ∫ α (sin θ / θ) dθ | ≦ 2/π < π/2.

Again d/dα α (sin θ / θ) dθ = − (sin α) / α, α > 0,

therefore α (sin θ / θ) dθ increases as α diminishes, when θ < α < π;

but lim α=0 α (sin θ / θ) dθ = π/2, hence | ∫ α (sin θ / θ) dθ | < π/2,

where α < π, and < 2/π where α ≧ π. It follows that

| ∫ β α sinθ | ≦ π, provided 0 ≦ α < β.
θ

To find the limit of π/2 0 F(z) (sin mz / sin z) dz, we observe that it may be written in the form

F(0) π/2 0 sin mz dz + μ 0 {F(z) − F(0)} sin mz dz + π/2 μ {F(z) − F(0)} sin mz dz
sin z sin z sin z

where μ is a fixed number as small as we please; hence if we use lemma (1), and apply the second mean-value theorem,

π/2 0 F(z) sin mz dz − π F(0) = μ 0 {F(z) − F(0)} z   sin mz dz
sin z 2 sin z z
+ {F(μ + 0) − F(0)} ξ1 μ sin mz dz + [F (½ π − 0) − F(0)] π/2 ξ1 sin mz dz
sin z sin z

when ξ¹ lies between μ and ½ π. When m is indefinitely increased, the two last integrals have the limit zero in virtue of lemma (2). To evaluate the first integral on the right-hand side, let G(z) = {F(z) − F(0)} (z / sin z), and observe that G(z) increases as z increases from 0 to μ, hence if we apply the mean value theorem

| ∫ μ 0 G(μ) sin mz dz | = | G(μ) μ ξ sin mz dz | = | G(μ) sinθ | < πG(μ),
z z θ

where 0 < ξ < μ, since G(z) has the limit zero when z = 0. If ε be an arbitrarily chosen positive number, a fixed value of μ may be so chosen that πG(μ) < ½ ε, and thus that | ∫ μ 0 G(z) (sin mx / z) dz | < ½ ε. When μ has been so fixed, m may now be so chosen that

| ∫ ½ π 0 F(z) sin mz dz − π F(0) | < ε.
sin z 2

It has now been shown that when m is indefinitely increased π/2 0 F(z) (sin mz / sin z) dz − (π/2) F(0) has the limit zero.

Returning to the form (4), we now see that the limiting value of

1 π/2 0 F(z) sin mz + 1 π/2 0 F(−z) sin mz dz is ½ {F(+0) + F(−0)};
π sin z π sin z

hence the sum of n + 1 terms of the series

1 l −l ƒ(x) dx + 1 Σ l −l ƒ(x¹) cos nπ(x − x¹) dx
2l l l

converges to the value ½ {ƒ(x + 0) + ƒ(x − 0)}, or to ƒ(x) at a point where ƒ(x) is continuous, provided ƒ(x) satisfies Dirichlet’s conditions for the interval from −l to l.

Proof that Fourier’s Series is in General Uniformly Convergent.—To prove that Fourier’s Series converges uniformly to its sum for all values of x, provided that the immediate neighbourhoods of the points of discontinuity of ƒ(x) are excluded, we have

| ∫ π/2 F(z) sin mz dz − π F(0) | < πG(μ) + 4 {F(μ + 0) − F(0)} + 4 {F(½ π − 0) − F(0)}
sin z 2 m sin μ m sin ξ¹
< πμ {ƒ(x + 2μ) − ƒ(x)} + 4 {ƒ(x + 2μ) − ƒ(x)} + 4 {ƒ(x + π) − ƒ(x)}.
sin μ m sin μ m sin ξ¹

Using this inequality and the corresponding one for F(−z), we have

|S2n+1(x) − ƒ(x)| < μ cosec μ [|ƒ(x + 2μ) − ƒ(x)| + |ƒ(x − 2μ) − ƒ(x)|] + A|m cosec μ,

where A is some fixed number independent of m. In any interval (a, b) in which ƒ(x) is continuous, a value μ1 of μ can be chosen such that, for every value of x in (a, b), |ƒ(x + 2μ) − ƒ(x)|, |ƒ(x − 2μ) − ƒ(x)| are less than an arbitrarily prescribed positive number ε, provided μ = μ1. Also a value μ2 of μ can be so chosen that εμ2 cosec μ2 < ½ η, where η is an arbitrarily assigned positive number. Take for μ the lesser of the numbers μ1, μ2, then |S2n+1 − ƒ(x)| < η + A|m cosec μ for every value of x in (a, b). It follows that, since η and m are independent of x, |S2n+1 − ƒ(x)| < 2ε, provided n is greater than some fixed value n1 dependent only on ε. Therefore S2n+1 converges to ƒ(x) uniformly in the interval (a, b).

Case of a Function with Infinities.—The limitation that ƒ(x) must be numerically less than a fixed positive number throughout the interval may, under a certain restriction, be removed. Suppose F(z) is indefinitely great in the neighbourhood of the point z = c, and is such that the limits of the two integrals c±ε c F(z) dz are both zero, as ε is indefinitely diminished, then π/2 0 F(z) (sin mz / sin z) dz denotes the limit when ε = 0, ε¹ = 0 of c-ε 0 F(z) (sin mz / sin z) dz + π/2 c+ε¹ F(z) (sin mz / sin z) dz, both these limits existing; the first of these integrals has ½ πF(+0) for its limiting value when m is indefinitely increased, and the second has zero for its limit. The theorem therefore holds if F(z) has an infinity up to which it is absolutely integrable; this will, for example, be the case if F(z) near the point C is of the form x(z)(z − c)−μ + ψ(z), where χ(c), ψ(c) are finite, and 0 < μ < 1. It is thus seen that ƒ(x) may have a finite number of infinities within the given interval, provided the function is integrable through any one of these points; the function is in that case still representable by Fourier’s Series.

The Ultimate Values of the Coefficients in Fourier’s Series.—If ƒ(x) is everywhere finite within the given interval −π to +π, it can be shown that an, bn, the coefficients of cos nx, sin nx in the series which represent the function, are such that nan, nbn, however 757 great n is, are each less than a fixed finite quantity. For writing ƒ(x) = ƒ1(x) − ƒ2(x), we have

π −π ƒ1(x) cos nxdx = ƒ1(−π + 0) ξ −π cos nxdx + ƒ1(π − 0) π ξ cos nxdx

hence

π −π ƒ1(x) cos nxdx = ƒ1(−π + 0) sin nξ + ƒ1(π − 0) sin nξ
n n

with a similar expression, with ƒ2(x) for ƒ1(x), ξ being between π and −π; the result then follows at once, and is obtained similarly for the other coefficient.

If ƒ(x) is infinite at x = c, and is of the form φ(x) / (x − c)K near the point c, where 0 < K < 1, the integral π −π ƒ(x)cos nxdx contains portions of the form ε+ε c [φ(x) / (x − c)K] cos nxdx c c−ε [φ(x) / (x − c)K] cos nxdx; consider the first of these, and put x = c + u, it thus becomes ε 0 [φ(c + u) / uK] cos n(c + u) du, which is of the form φ(c + θε) ε 0 [cos n(c + u) / uK] du; now let nu = v, the integral becomes

φ(c + θε) { cos nc θε 0 cos v dv − sin nc θε 0 sin v dv };
n1−K vK n1−K vK

hence n1−K π −π ƒ(x) cos nxdx becomes, as n is definitely increased, of the form

φ(c) { cos nc 0 cos v dv − sin nc 0 sin v dv }
vK vK

which is finite, both the integrals being convergent and of known value. The other integral has a similar property, and we infer that n1−K an, n1−K bn are less than fixed finite numbers.

The Differentiation of Fourier’s Series.—If we assume that the differential coefficient of a function ƒ(x) represented by a Fourier’s Series exists, that function ƒ’(x) is not necessarily representable by the series obtained by differentiating the terms of the Fourier’s Series, such derived series being in fact not necessarily convergent. Stokes has obtained general formulae for finding the series which represent ƒ′(x), ƒ″(x)—the successive differential coefficients of a limited function ƒ(x). As an example of such formulae, consider the sine series (1); ƒ(x) is represented by

2 Σ sin nπx l 0 ƒ(x) sin nπx dx;
l l l

on integration by parts we have

l 0 ƒ(x) sin nπx dx = l [ ƒ(+0) ± ƒ(l − 0) + Σ cos nπa {ƒ(α + 0) − ƒ(α − 0)} ]
l l
+ l l 0 ƒ′(x) cos nπx dx
l

where α represent the points where ƒ(x) is discontinuous. Hence if f(x) is represented by the series Σan sin (nπx / l), and ƒ′(x) by the series Σbn cos (nπx / l), we have the relation

bn = an 2 [ ƒ(+0) = ƒ(l − 0) + Σ cos nπα {ƒ(α + 0) − ƒ(α − 0)} ]
l l l

hence only when the function is everywhere continuous, and ƒ(+0) ƒ(l − 0) are both zero, is the series which represents ƒ′(x) obtained at once by differentiating that which represents ƒ(x). The form of the coefficient an discloses the discontinuities of the function and of its differential coefficients, for on continuing the integration by parts we find

αn = 2 [ ƒ(+0) = ƒ(l − 0) + Σ cos nπα {ƒ(α + 0) − ƒ(α − 0)} ]
l
+ 2l [ ƒ′(+0) = ƒ′(l − 0) + Σ cos nπβ {ƒ′(β + 0) − ƒ′(β − 0)} ] + &c.
n²π² l

where β are the points at which ƒ′(x) is discontinuous.

History and Literature of the theory

The history of the theory of the representation of functions by series of sines and cosines is of great interest in connexion with the progressive development of the notion of an arbitrary function of a real variable, and of the peculiarities which such a function may possess; the modern views on the foundations of the infinitesimal calculus have been to a very considerable extent formed in this connexion (see Function). The representation of functions by these series was first considered in the 18th century, in connexion with the problem of a vibrating cord, and led to a controversy as to the possibility of such expansions. In a memoir published in 1747 (Memoirs of the Academy of Berlin, vol. iii.) D’Alembert showed that the ordinate y at any time t of a vibrating cord satisfies a differential equation of the form δ²y / δt² = a² (δ²y / δx²), where x is measured along the undisturbed length of the cord, and that with the ends of the cord of length l fixed, the appropriate solution is y = ƒ(at + x) − ƒ(at − x), where ƒ is a function such that ƒ(x) = ƒ(x + 2l); in another memoir in the same volume he seeks for functions which satisfy this condition. In the year 1748 (Berlin Memoirs, vol. iv.) Euler, in discussing the problem, gave ƒ(x) = α sin (πx / l) + β sin (2πx / l) + ... as a particular solution, and maintained that every curve, whether regular or irregular, must be representable in this form. This was objected to by D’Alembert (1750) and also by Lagrange on the ground that irregular curves are inadmissible. D. Bernoulli (Berlin Memoirs, vol. ix., 1753) based a similar result to that of Euler on physical intuition; his method was criticized by Euler (1753). The question was then considered from a new point of view by Lagrange, in a memoir on the nature and propagation of sound (Miscellanea Taurensia, 1759; Œuvres, vol. i.), who, while criticizing Euler’s method, considers a finite number of vibrating particles, and then makes the number of them infinite; he did not, however, quite fully carry out the determination of the coefficients in Bernoulli’s Series. These mathematicians were hampered by the narrow conception of a function, in which it is regarded as necessarily continuous; a discontinuous function was considered only as a succession of several different functions. Thus the possibility of the expansion of a broken function was not generally admitted. The first cases in which rational functions are expressed in sines and cosines were given by Euler (Subsidium calculi sinuum, Novi Comm. Petrop., vol. v., 1754-1755), who obtained the formulae

½ φ = sin φ − ½ sin 2φ + 13 sin 3φ ...

π² φ² = cos φ − ¼ cos 2φ + 19 cos 3φ ...
12 4

In a memoir presented to the Academy of St Petersburg in 1777, but not published until 1798, Euler gave the method afterwards used by Fourier, of determining the coefficients in the expansions; he remarked that if Φ is expansible in the form

A + B cos φ + C cos 2φ + ..., then A = 1 π 0 Φ dφ, B = 2 π 0 Φ cos φ dφ, &c.
π π

The second period in the development of the theory commenced in 1807, when Fourier communicated his first memoir on the Theory of Heat to the French Academy. His exposition of the present theory is contained in a memoir sent to the Academy in 1811, of which his great treatise the Théorie analytique de la chaleur, published in 1822, is, in the main, a reproduction. Fourier set himself to consider the representation of a function given graphically, and was the first fully to grasp the idea that a single function may consist of detached portions given arbitrarily by a graph. He had an accurate conception of the convergence of a series, and although he did not give a formally complete proof that a function with discontinuities is representable by the series, he indicated in particular cases the method of procedure afterwards carried out by Dirichlet. As an exposition of principles, Fourier’s work is still worthy of careful perusal by all students of the subject. Poisson’s treatment of the subject, which has been adopted in English works (see the Journal de l’école polytechnique, vol. xi., 1820, and vol. xii., 1823, and also his treatise, Théorie de la chaleur, 1835), depends upon the equality

π −π ƒ(α) 1 − h² dα = 1 π −π ƒ(α) dα + 1 Σ hn π −π ƒ(α) cos n(x − α) dα
1 − 2h cos (x − α) + h² π

where 0 < h < 1; the limit of the integral on the left-hand side is evaluated when h = 1, and found to be ½ {ƒ(x + 0) + ƒ(x − 0)}, the series on the right-hand side becoming Fourier’s Series. The equality of the two limits is then inferred. If the series is assumed to be convergent when h = 1, by a theorem of Abel’s its sum is continuous with the sum for values of h less than unity, but a proof of the convergency for h = 1 is requisite for the validity of Poisson’s proof; as Poisson gave no such proof of convergency, his proof of the general theorem cannot be accepted. The deficiency cannot be removed except by a process of the same nature as that afterwards applied by Dirichlet. The definite integral has been carefully studied by Schwarz (see two memoirs in his collected works on the integration of the equation (δ²u / δx²) + (δ²u / δy²) = 0), who showed that the limiting value of the integral depends upon the manner in which the limit is approached. Investigations of Fourier’s Series were also given by Cauchy (see his “Mémoire sur les développements des fonctions en séries périodiques,” Mém. de l’Inst., vol. vi., also Œuvres complètes, vol. vii.); his method, which depends upon a use of complex variables, was accepted, with some modification, as valid by Riemann, but one at least of his proofs is no longer regarded as satisfactory. The first completely satisfactory investigation is due to Dirichlet; his first memoir appeared in Crelle’s Journal for 1829, and the second, which is a model of clearness, in Dove’s Repertorium der Physik. Dirichlet laid down certain definite sufficient conditions in regard to the nature of a function which is expansible, and found under these conditions the limiting value of the sum of n terms of the series. Dirichlet’s determination of the sum of the series at a point of discontinuity has been criticized by Schläfli (see Crelle’s Journal, vol. lxxii.) and by Du Bois-Reymond (Mathem. Annalen, vol. vii.), who maintained that the sum is really 758 indeterminate. Their objection appears, however, to rest upon a misapprehension as to the meaning of the sum of the series; if x1 be the point of discontinuity, it is possible to make x approach x1, and n become indefinitely great, so that the sum of the series takes any assigned value in a certain interval, whereas we ought to make x = x1 first and afterwards n = ∞, and no other way of going to the double limit is really admissible. Other papers by Dircksen (Crelle, vol. iv.) and Bessel (Astronomische Nachrichten, vol. xvi.), on similar lines to those by Dirichlet, are of inferior importance. Many of the investigations subsequent to Dirichlet’s have the object of freeing a function from some of the restrictions which were imposed upon it in Dirichlet’s proof, but no complete set of necessary and sufficient conditions as to the nature of the function has been obtained. Lipschitz (“De explicatione per series trigonometricas,” Crelle’s Journal, vol. lxiii., 1864) showed that, under a certain condition, a function which has an infinite number of maxima and minima in the neighbourhood of a point is still expansible; his condition is that at the point of discontinuity β, |ƒ(β + δ) − f(β)| < Bδα as δ converges to zero, B being a constant, and α a positive exponent. A somewhat wider condition is

{ƒ(β + δ) − ƒ(β)} log δ = 0,
δ = 0

for which Lipschitz’s results would hold. This last condition is adopted by Dini in his treatise (Sopra la serie di Fourier, &c., Pisa, 1880).

The modern period in the theory was inaugurated by the publication by Riemann in 1867 of his very important memoir, written in 1854, Über die Darstellbarkeit einer Function durch eine trigonometrische Reihe. The first part of his memoir contains a historical account of the work of previous investigators; in the second part there is a discussion of the foundations of the Integral Calculus, and the third part is mainly devoted to a discussion of what can be inferred as to the nature of a function respecting the changes in its value for a continuous change in the variable, if the function is capable of representation by a trigonometrical series. Dirichlet and probably Riemann thought that all continuous functions were everywhere representable by the series; this view was refuted by Du Bois-Reymond (Abh. der Bayer. Akad. vol. xii. 2). It was shown by Riemann that the convergence or non-convergence of the series at a particular point x depends only upon the nature of the function in an arbitrarily small neighbourhood of the point x. The first to call attention to the importance of the theory of uniform convergence of series in connexion with Fourier’s Series was Stokes, in his memoir “On the Critical Values of the Sums of Periodic Series” (Camb. Phil. Trans., 1847; Collected Papers, vol. i.). As the method of determining the coefficients in a trigonometrical series is invalid unless the series converges in general uniformly, the question arose whether series with coefficients other than those of Fourier exist which represent arbitrary functions. Heine showed (Crelle’s Journal, vol. lxxi., 1870, and in his treatise Kugelfunctionen, vol. i.) that Fourier’s Series is in general uniformly convergent, and that if there is a uniformly convergent series which represents a function, it is the only one of the kind. G. Cantor then showed (Crelle’s Journal, vols. lxxii. lxxiii.) that even if uniform convergence be not demanded, there can be but one convergent expansion for a function, and that it is that of Fourier. In the Math. Ann. vol. v., Cantor extended his investigation to functions having an infinite number of discontinuities. Important contributions to the theory of the series have been published by Du Bois-Reymond (Abh. der Bayer. Akademie, vol. xii., 1875, two memoirs, also in Crelle’s Journal, vols. lxxiv. lxxvi. lxxix.), by Kronecker (Berliner Berichte, 1885), by O. Hölder (Berliner Berichte, 1885), by Jordan (Comptes rendus, 1881, vol. xcii.), by Ascoli (Math. Annal., 1873, and Annali di matematica, vol. vi.), and by Genocchi (Atti della R. Acc. di Torino, vol. x., 1875). Hamilton’s memoir on “Fluctuating Functions” (Trans. R.I.A., vol. xix., 1842) may also be studied with profit in this connexion. A memoir by Brodén (Math. Annalen, vol. lii.) contains a good investigation of some of the most recent results on the subject. The scope of Fourier’s Series has been extended by Lebesgue, who introduced a conception of integration wider than that due to Riemann. Lebesgue’s work on Fourier’s Series will be found in his treatise, Leçons sur les séries trigonométriques (1906); also in a memoir, “Sur les séries trigonométriques,” Annales sc. de l’école normale supérieure, series ii. vol. xx. (1903), and in a paper “Sur la convergence des séries de Fourier,” Math. Annalen, vol. lxiv. (1905).

Authorities.—The foregoing historical account has been mainly drawn from A. Sachse’s work, “Versuch einer Geschichte der Darstellung willkürlicher Functionen einer Variabeln durch trigonometrische Reihen,” published in Schlömilch’s Zeitschrift für Mathematik, Supp., vol. xxv. 1880, and from a paper by G.A. Gibson “On the History of the Fourier Series” (Proc. Ed. Math. Soc. vol. xi.). Reiff’s Geschichte der unendlichen Reihen may also be consulted, and also the first part of Riemann’s memoir referred to above. Besides Dini’s treatise already referred to, there is a lucid treatment of the subject from an elementary point of view in C. Neumann’s treatise, Über die nach Kreis-, Kugel- und Cylinder-Functionen fortschreitenden Entwickelungen. Jordan’s discussion of the subject in his Cours d’analyse is worthy of attention: an account of functions with limited variation is given in vol. i.; see also a paper by Study in the Math. Annalen, vol. xlvii. On the second mean-value theorem papers by Bonnet (Brux. Mémoires, vol. xxiii., 1849, Lionville’s Journal, vol. xiv., 1849), by Du Bois-Reymond (Crelle’s Journal, vol. lxxix., 1875), by Hankel (Zeitschrift für Math. und Physik, vol. xiv., 1869), by Meyer (Math. Ann., vol. vi., 1872) and by Hölder (Göttinger Anzeigen, 1894) may be consulted; the most general form of the theorem has been given by Hobson (Proc. London Math. Soc., Series II. vol. vii., 1909). On the theory of uniform convergence of series, a memoir by W.F. Osgood (Amer. Journal of Math. xix.) may be with advantage consulted. On the theory of series in general, in relation to the functions which they can represent, a memoir by Baire (Annali di matematica, Series III. vol. iii.) is of great importance. Bromwich’s Theory of Infinite Series (1908) contains much information on the general theory of series. Bôcher’s “Introduction to the Theory of Fourier’s Series,” Annals of Math., Series II. vol. vii., 1906, will be found useful. See also Carslaw’s Introduction to the Theory of Fourier’s Series and Integrals, and the Mathematical Theory of the Conduction of Heat (1906). A full account of the theory will be found in Hobson’s treatise On the Theory of Functions of a Real Variable and on the Theory of Fourier’s Series (1907).

(E. W. H.)

FOURMIES, a town of northern France, in the department of Nord, on an affluent of the Sambre, 39 m. S.E. of Valenciennes by rail. Pop. (1906) 13,308. It is one of the chief centres in France for wool combing and spinning, and produces a great variety of cloths. The glass-works of Fourmies date from 1599, and were the first established in the north of France. Iron is worked in the vicinity, and there are important forges and foundries. Enamel-ware is also manufactured. In 1891 labour troubles brought about military intervention and consequent bloodshed. A board of trade arbitration and a school of commerce and industry are among the public institutions.


FOURMONT, ÉTIENNE (1683-1745), French orientalist, was born at Herbelai, near Saint Denis, on the 23rd of June 1683. He studied at the Collège Mazarin, Paris, and afterwards in the Collège Montaigu, where his attention was attracted to Oriental languages. Shortly after leaving the college he published a Traduction du commentaire du Rabbin Abraham Aben Esra sur l’ecclésiaste. In 1711 Louis XIV. appointed Fourmont to assist a young Chinese, Hoan-ji, in compiling a Chinese grammar. Hoan-ji died in 1716, and it was not until 1737 that Fourmont published Meditationes Sinicae and in 1742 Grammatica Sinica. He also wrote Réflexions critiques sur les histoires des anciens peuples (1735), and several dissertations printed in the Mémoires of the Academy of Inscriptions. He became professor of Arabic in the Collège de France in 1715. In 1713 he was elected a member of the Academy of Inscriptions, in 1738 a member of the Royal Society of London, and in 1742 a member of that of Berlin. He died at Paris on the 19th of December 1745.

His brother, Michel Fourmont (1690-1746), was also a member of the Academy of Inscriptions, and professor of the Syriac language in the Royal College, and was sent by the government to copy inscriptions in Greece.

An account of Étienne Fourmont’s life and a catalogue of his works will be found in the second edition (1747) of his Réflexions critiques.


FOURNET, JOSEPH JEAN BAPTISTE XAVIER (1801-1869), French geologist and metallurgist, was born at Strassburg on the 15th of May 1801. He was educated at the École des Mines at Paris, and after considerable experience as a mining engineer he was in 1834 appointed professor of geology at Lyons. He was a man of wide knowledge and extensive research, and wrote memoirs on chemical and mineralogical subjects, on eruptive rocks, on the structure of the Jura, the metamorphism of the Western Alps, on the formation of oolitic limestones, on kaolinization and on metalliferous veins. On metallurgical subjects also he was an acknowledged authority; and he published observations on the order of sulphurability of metals (loi de Fournet). He died at Lyons on the 8th of January 1869. His chief publications were: Études sur les dépôts métallifères (Paris, 1834); Histoire de la dolomie (Lyons, 1847); De l’extension des terrains houillers (1855); Géologie lyonnaise (Lyons, 1861).


FOURNIER, PIERRE SIMON (1712-1768), French engraver and typefounder, was born at Paris on the 15th of September 1712. He was the son of a printer, and was brought up to his father’s business. After studying drawing under the painter 759 Colson, he practised for some time the art of wood-engraving, and ultimately turned his attention to the engraving and casting of types. He designed many new characters, and his foundry became celebrated not only in France, but in foreign countries. Not content with his practical achievements, he sought to stimulate public interest in his art by the production of various works on the subject. In 1737 he published his Table des proportions qu’il faut observer entre les caractères, which was followed by several other technical treatises. In 1758 he assailed the title of Gutenberg to the honour awarded him as inventor of printing, claiming it for Schöffer, in his Dissertation sur l’origine et les progrès de l’art de graver en bois. This gave rise to a controversy in which Schöpflin and Baer were his opponents. Fournier’s contributions to this debate were collected and reprinted under the title of Traités historiques et critiques sur l’origine de l’imprimerie. His principal work, however, was the Manuel typographique, which appeared in 2 vols. 8vo in 1764, the first volume treating of engraving and type-founding, the second of printing, with examples of different alphabets. It was the author’s design to complete the work in four volumes, but he did not live to execute it. He died at Paris on the 8th of October 1768.


FOURNIER L’HÉRITIER, CLAUDE (1745-1825), French revolutionist, called “l’Américain,” was born at Auzon (Haute-Loire) on the 21st of December 1745, the son of a poor weaver. He went to America to seek his fortune, and started at San Domingo an establishment for making tafia (an inferior quality of rum), but lost his money in a fire. Returning to France he threw himself into the Revolution with enthusiasm, and specially distinguished himself by the active part he took in the organization of the popular armed force by means of which the most famous of the revolutionary coups were effected. His influence was principally manifested in the insurrections of the 5th and 6th of October 1789, the 17th of July 1791, and the 20th of June and the 10th of August 1792. He was on bad terms with the majority of the politicians, and particularly with Marat, and spent a great part of his time in prison, all the governments regarding him as an agitator and accusing him of inciting to insurrection. Arrested for the first time for trying to force an entrance into the club of the Cordeliers, from which he had been expelled, he was released, but was in prison from the 12th of December 1793 to the 21st of September 1794, and again from the 9th of March 1795 to the 26th of October 1795. After the attempt on the First Consul in the rue Sainte-Nicaise he was deported to Guiana, but was allowed to return to France in 1809. In 1811, while under surveillance at Auxerre, he was accused of having provoked an émeute against taxes known as the droits réunis (afterwards called contributions indirectes), and was imprisoned in the Château d’If, where he remained till 1814. On the second restoration of the Bourbons Fournier was confined for about nine months in the prison of La Force. After 1816 he was left unmolested, turned royalist, and passed his last years in importuning the Restoration government for compensation for his lost property in San Domingo. He died in obscurity.

For further details see preface to F.A. Aulard’s edition of Fournier’s Mémoires secrets (Paris, 1890), published by the Société de l’histoire de la Révolution.


FOURTOU, MARIE FRANÇOIS OSCAR BARDY DE (1836-1897), French politician, was born at Ribérac (Dordogne) on the 3rd of January 1836, and represented his native department in the National Assembly after the Franco-German War. There he proved a useful adherent to Thiers, who made him minister of public works in December 1872. He was minister of religion in the cabinet of May 18-24, 1873, being the only member of the Right included by Thiers in that short-lived ministry. As minister of education, religion and the fine arts in the reconstructed cabinet of the duc de Broglie he had used his administrative powers to further clerical ends, and as minister of the interior in Broglie’s cabinet in 1877 he resumed the administrative methods of the Second Empire. With a well-known Bonapartist, Baron R.C.F. Reille, as his secretary, he replaced republican functionaries by Bonapartist partisans, reserving a few places for the Legitimists. In the general elections of that year he used the whole weight of officialdom to secure a majority for the Right, to support a clerical and reactionary programme. He accompanied Marshal MacMahon in his tour through southern France, and the presidential manifesto of September, stating that the president would rely solely on the Senate should the elections prove unfavourable, was generally attributed to Fourtou. In spite of these efforts the cabinet fell, and a commission was appointed to inquire into their unconstitutional abuse of power. Fourtou was unseated in consequence of the revelations made in the report of the commission. In the Chamber of Deputies Gambetta gave the lie direct to Fourtou’s allegation that the republican party opposed every republican principle that was not antiquated. A duel was fought in consequence, but neither party was injured. He was re-elected to the chamber in 1879 and entered the Senate the next year. Failing to secure re-election to the Senate in 1885 he again entered the popular chamber as Legitimist candidate in 1889, but he took no further active part in politics. He died in Paris in 1897.

His works include Histoire de Louis XVI (1840); Histoire de Saint Pie V (1845); Mme Swetchine, sa vie et ses œuvres (2 vols., 1859); La Question italienne (1860); De la contre-révolution (1876); and Mémoires d’un royaliste (2 vols., 1888).


FOUSSA, or Fossa, the native name of Cryptoprocta ferox, a somewhat cat-like or civet-like mammal peculiar to Madagascar, where it is the largest carnivorous animal. It is about twice the size of a cat (5 ft. from nose to end of tail), with short close fur of nearly uniform pale brown. Little is known of its habits, except that it is nocturnal, frequently attacks and carries off goats, and especially kids, and shows great ferocity when wounded, on which account it is much dreaded by the natives. An example lived in the London zoological gardens for nearly fourteen years. See Carnivora.


FOWEY (usually pronounced Foy), a seaport and market-town in the Bodmin parliamentary division of Cornwall, England, on the Great Western railway, 25 m. by sea W. of Plymouth. Pop. (1901) 2258. It lies on the west shore of the picturesque estuary of the river Fowey, close to the water’s edge, and sheltered by a screen of hills. Its church of St Nicholas is said to have been built in the 14th century, on the site of a still older edifice dedicated to St Finbar of Cork. It has a fine tower and late Norman doorway. Within are a priest’s chamber over the porch, a handsome oak ceiling, a 15th-century pulpit, and some curious monuments and brasses. Place House, adjacent to the church, is a highly ornate Tudor building. A few ancient houses remain in the town. Deep-sea fishing is carried on; but the staple trade consists in the export of china clay and minerals, coal being imported. Fowey harbour, which is easy of access in clear weather, will admit large vessels at any state of the tide. St Catherine’s Fort, dating from the days of Henry VIII. and now ruined, stands at the harbour’s mouth, and once formed the main defence of the town. Opposite the town, and connected with it by Bodeneck Ferry, is the village of Polruan. Its main features are St Saviour’s Chapel, with an ancient rood-stone, and the remains of Hall House, which was garrisoned during the civil wars of the 17th century.

Fowey (Fawy, Vawy, Fowyk) held a leading position amongst Cornish ports from the reign of Edward I. to the days of the Tudors. The numerous references to the privateering exploits of its ships in the Patent and Close Rolls and the extraordinary number of them at the siege of Calais in 1346 alike testify to its importance. During this period the king’s mandates were addressed to the bailiffs or to the mayor and bailiffs, and no charter of incorporation appears to have been granted until the reign of James II. Under the second charter of 1690 the common council consisted of a mayor and eight aldermen and these with a recorder elected the free burgesses. A member for Fowey and Looe was summoned to a council at Westminster in 1340, but from that date until 1571, when it was entrusted with the privilege of returning two members, it had no parliamentary representation. By the Reform Act of 1832 it lost both its 760 members. It had ceased to exercise its municipal functions a few years previously. In 1316 the prior of Tywardreath, as lord of the manor, obtained the right to hold a Monday market and two fairs on the feasts of St Finbar and St Lucy, but by the charter of 1690 provision was made for a Saturday market and three fairs, on the 1st of May, 10th of September and Shrove Tuesday, and only these three continue to be held.


FOWL (Dan. Fugl, Ger. Vogel), a term originally used in the sense that bird1 now is, but, except in composition,—as sea-fowl, wild-fowl and the like,—practically almost confined2 at present to designate the otherwise nameless species which struts on our dunghills, gathers round our barn-doors, or stocks our poultry yards—the type of the genus Gallus of ornithologists, of which four well-marked species are known. The first of these is the red jungle-fowl of the greater part of India, G. ferrugineus,—called by many writers G. bankiva,—which is undoubtedly the parent stock of all the domestic races (cf. Darwin, Animals and Plants under Domestication, i. pp. 233-246). It inhabits northern India from Sind to Burma and Cochin China, as well as the Malay Peninsula and many of the islands as far as Timor, besides the Philippines. It occurs on the Himalayas up to the height of 4000 ft., and its southern limits in the west of India proper are, according to Jerdon, found on the Raj-peepla hills to the south of the Nerbudda, and in the east near the left bank of the Godavery, or perhaps even farther, as he had heard of its being killed at Cummum. This species resembles in plumage what is commonly known among poultry-fanciers as the “Black-breasted game” breed, and this is said to be especially the case with examples from the Malay countries, between which and examples from India some differences are observable—the latter having the plumage less red, the ear-lappets almost invariably white, and slate-coloured legs, while in the former the ear-lappets are crimson, like the comb and wattles, and the legs yellowish. If the Malayan birds be considered distinct, it is to them that the name G. bankiva properly applies. This species is said to be found in lofty forests and in dense thickets, as well as in ordinary bamboo-jungles, and when cultivated land is near its haunts, it may be seen in the fields after the crops are cut in straggling parties of from 10 to 20. The crow to which the cock gives utterance morning and evening is just like that of a bantam, never prolonged as in most domestic birds. The hen breeds from January to July, according to the locality; and lays from 8 to 12 creamy-white eggs, occasionally scraping together a few leaves or a little dry grass by way of a nest. The so-called G. giganteus, formerly taken by some ornithologists for a distinct species, is now regarded as a tame breed of G. ferrugineus or bankiva. The second good species is the grey jungle-fowl, G. sonnerati, whose range begins a little to the northward of the limits of the preceding, and it occupies the southern part of the Indian peninsula, without being found elsewhere. The cock has the end of the shaft of the neck-hackles dilated, forming a horny plate, like a drop of yellow sealing-wax. His call is very peculiar, being a broken and imperfect kind of crow, quite unlike that of G. ferrugineus and more like a cackle. The two species where their respective ranges overlap, occasionally interbreed in a wild state, and the present readily crosses in confinement with domestic poultry, but the hybrids are nearly always sterile. The third species is the Sinhalese jungle-fowl, G. stanleyi (the G. lafayettii of some authors), peculiar to Ceylon. This also greatly resembles in plumage some domestic birds, but the cock is red beneath, and has a yellow comb with a red edge and purplish-red cheeks and wattles. He has also a singularly different voice, his crow being dissyllabic. This bird crosses readily with tame hens, but the hybrids are believed to be infertile. The fourth species, G. varius (the G. furcatus of some authors), inhabits Java and the islands eastwards as far as Flores. This differs remarkably from the others in not possessing hackles, and in having a large unserrated comb of red and blue and only a single chin wattle. The predominance of green in its plumage is another easy mark of distinction. Hybrids between this species and domestic birds are often produced, but they are most commonly sterile. Some of them have been mistaken for distinct species, as those which have received the names of G. aeneus and G. temmincki.

Several circumstances seem to render it likely that fowls were first domesticated in Burma or the countries adjacent thereto, and it is the tradition of the Chinese that they received their poultry from the West about the year 1400 B.C. By the Institutes of Manu, the tame fowl is forbidden, though the wild is allowed to be eaten—showing that its domestication was accomplished when they were written. The bird is not mentioned in the Old Testament nor by Homer, though he has Ἀλέκτωρ (cock) as the name of a man, nor is it figured on ancient Egyptian monuments. Pindar mentions it, and Aristophanes calls it the Persian bird, thus indicating it to have been introduced to Greece through Persia, and it is figured on Babylonian cylinders between the 6th and 7th centuries B.C. It is sculptured on the Lycian marbles in the British Museum (c. 600 B.C.), and E. Blyth remarks (Ibis, 1867, p. 157) that it is there represented with the appearance of a true jungle-fowl, for none of the wild Galli have the upright bearing of the tame breed, but carry their tail in a drooping position. For further particulars of these breeds see Poultry.

(A. N.)

1 Bird (cognate with breed and brood) was originally the young of any animal, and an early Act of the Scottish parliament speaks of “Wolf-birdis,” i.e. Wolf-cubs.

2 Like Deer (Dan. Dyr, Ger. Tier). Beast, too, with some men has almost attained as much specialization.


FOWLER, CHARLES (1792-1867), English architect, was born at Cullompton, Devon, on the 17th of May 1792. After serving an apprenticeship of five years at Exeter, he went to London in 1814, and entered the office of David Laing, where he remained till he commenced practice for himself. His first work of importance was the court of bankruptcy in Basinghall Street, finished in 1821. In the following year he gained the first premium for a design for the new London bridge, which, however, was ultimately built according to the design of another architect. Fowler’s other designs for bridges include one constructed across the Dart at Totnes. He was also the architect for the markets of Covent Garden and Hungerford, the new market at Gravesend, and Exeter lower market, and besides several churches he designed Devon lunatic asylum (1845), the London fever hospital (1849), and the hall of the Wax Chandlers’ Company, Gresham Street (1853). For some years he was honorary secretary of the institute of British architects, and he was afterwards created vice-president. He retired from his profession in 1853, and died at Great Marlow, Bucks, on the 26th of September 1867.


FOWLER, EDWARD (1632-1714), English divine, was born in 1632 at Westerleigh, Gloucestershire, and was educated at Corpus Christi College, Oxford, afterwards migrating to Trinity College, Cambridge. He was successively rector of Norhill, Bedfordshire (1656) and of All Hallows, Bread Street, London (1673), and in 1676 was elected a canon of Gloucester, his friend Henry More, the Cambridge Platonist, resigning in his favour. In 1681 he became vicar of St Giles, Cripplegate, but after four years was suspended for Whiggism. When the Declaration of Indulgence was published in 1687 he successfully influenced the London clergy against reading it. In 1691 he was consecrated bishop of Gloucester and held the see until his death on the 26th of August 1714. Fowler was suspected of Pelagian tendencies, and his earliest book was a Free Discourse in defence of The Practices of Certain Moderate Divines called Latitudinarians (1670). The Design of Christianity, published by him in the following year, in which he laid stress on the moral design of revelation, was criticized by Baxter in his How far Holiness is the Design of Christianity (1671) and by Bunyan in his Defence of the Doctrine of Justification by Faith (1672), the latter describing the Design as “a mixture of Popery, Socinianism and Quakerism,” a horrid accusation to which Fowler replied in a scurrilous pamphlet entitled Dirt Wip’d Off. He also published, in 1693, Twenty-Eight Propositions, by which the Doctrine of the Trinity is endeavoured to be explained, challenging with some success the Socinian position.

761


FOWLER, JOHN (1826-1864), English inventor, was born at Melksham, Wilts, on the 11th of July 1826. He learned practical engineering at Middlesborough-on-Tees, and about 1850 invented a mechanical system for the drainage of land. In 1852 he began experiments in steam cultivation, and in 1858 the Royal Agricultural Society awarded him the prize of £500 which it had offered for a steam-cultivator that should be an economic substitute for the plough or the spade. In 1860 he founded at Hunslet, Leeds, the firm of Fowler & Co., manufacturers of agricultural machinery, traction engines, &c. He died at Ackworth, Yorkshire, on the 4th of December 1864.


FOWLER, SIR JOHN (1817-1898), English civil engineer, was born on the 15th of July 1817 at Wadsley Hall, near Sheffield, where his father was a land-surveyor. At the age of sixteen he became a pupil of John Towlerton Leather, the engineer of the Sheffield water-works. The latter’s uncle, George Leather, was engineer of the Great Aire and Calder Navigation Company, of the Goole Docks, and other similar works, and Fowler passed occasionally into his employment, in which he acquired a thorough knowledge of hydraulic engineering. The era of railway construction soon swept both Fowler and his employers into its service, and one of his first employments was to oppose the route of the Midland railway, chosen by the Stephensons, which left Sheffield on a branch line, and was therefore strongly resented by the inhabitants. The prestige of the Stephensons carried all before it, but in later life Sir John Fowler had the satisfaction of seeing the opposition of his clients justified, and Sheffield placed on the main line. In 1838 he went into the office of John Urpeth Rastrick, one of the leading railway engineers of the day, where he was employed in designing bridges for the line from London to Brighton, and also in surveying for railways in Lancashire. In 1839 he went as representative of Mr Leather to take charge of the construction of the Stockton & Hartlepool railway and remained as manager of the line after it was finished. In 1844 he began his independent career as an engineer, and from the first was largely employed, more particularly in laying out the small railway systems which eventually were amalgamated under the title of the Manchester, Sheffield & Lincolnshire. In the course of this work he designed a bridge known as Torksey Bridge, which was disallowed by the Board of Trade inspector, Captain (afterwards Field-Marshal Sir) Lintorn Simmons. The engineering profession espoused Fowler’s side in the controversy which followed, and as a result the verdict of the Board of Trade was modified. The episode was the beginning of a warm friendship between these distinguished representatives of civil and military engineering. Fowler was engineer of the London Metropolitan railway, the pioneer of underground railways, and noteworthy in that it was mostly made not by tunnelling, but by excavating from the surface and then covering in the permanent way; and he lived to be one of the engineers officially connected with the deep tunnelling “tube” system extensively adopted for electric railways in London. He was also engaged in the making of railways in Ireland, and in 1867 he was selected by Disraeli to serve on a commission to advise the government in respect of a proposal for a state-purchase of the Irish railway system. He also carried out considerable works in relation to the Nene Valley drainage and the reclamation of land at the Norfolk estuary.

In 1865 he was elected president of the Institution of Civil Engineers, the youngest president who had ever sat in the chair. He was strongly opposed to the project of a Channel tunnel to France, and in 1872 he endeavoured to obtain the consent of parliament to a Channel ferry scheme, whereby trains were to be transported across the strait in large ferry steamers. The proposal involved the making of enlarged harbours at Dover and Audresselles on the French coast, and the bill, after passing the Commons, was thrown out by the casting vote of the chairman of a committee of the House of Lords. In 1875 he was enabled to render, in his private capacity, a signal service to the Italian government, which was much embarrassed by impracticable proposals pressed on it by Garibaldi for a rectification of the course of the Tiber and other engineering works. He had several interviews with the Italian patriot, and persuaded him of the impracticable nature of his plan, thereby obtaining for the government leisure to devise a more reasonable scheme. For eight years from 1871 he acted as general engineering adviser in Egypt to the Khedive Ismail. He projected a railway to the Sudan, and also the reparation of the barrage. These and many other plans came to an end owing to financial reasons. But the maps and surveys for the railway were given to the war office, and proved most useful to Lord Wolseley in his Nile expedition. For his service Fowler was made K.C.M.G. (1885). He was created a baronet in 1890 on the completion of the Forth bridge, of which with his partner Sir Benjamin Baker he was joint engineer. He died at Bournemouth on the 20th of November 1898.


FOWLER, WILLIAM (c. 1560-1614), Scottish poet, was born about the year 1560. He attended St Leonard’s college, St Andrews, between 1574 and 1578, and in 1581 he was in Paris studying civil law. In 1581 he issued a pamphlet against John Hamilton and other Catholics, who had, he said, driven him from his country. He subsequently (about ?1590) became private secretary and Master of Requests to Anne of Denmark, wife of James VI., and was renominated to these offices when the queen went to England. In 1609 his services were rewarded by a grant of 2000 acres in Ulster. His sister Susannah Fowler married Sir John Drummond, and was mother of the poet William Drummond of Hawthornden. On the title-page of The Triumphs of Petrarke, Fowler styles himself “P. of Hawick,” which has been held to mean that he was parson of Hawick, but this is doubtful. A MS. collection of seventy-two sonnets, entitled The Tarantula of Love, and a translation (1587) from the Italian of the Triumphs of Petrarke are preserved in the library of the university of Edinburgh, in the collection bequeathed by his nephew, William Drummond. Two other volumes of his manuscript notes, scrolls of poems, &c., are preserved among the Drummond MSS., now in the library of the Society of Antiquaries of Scotland. Specimens of Fowler’s verses were published in 1803 by John Leyden in his Scottish Descriptive Poems. Fowler contributed a prefatory sonnet to James VI.’s Furies; and James, in return, commended, in verse, Fowler’s Triumphs.


FOX, CHARLES JAMES (1749-1806), British statesman and orator, was the third son of Henry Fox, 1st Lord Holland, and his wife. Lady Caroline Lennox, eldest daughter of Charles Lennox, 2nd duke of Richmond. He was born at 9 Conduit Street, Westminster, on the 24th of January 1749. The father, who treated his children with extreme indulgence, allowed him to choose his school, and he elected to go to one kept at Wandsworth by a French refugee, named Pampelonne. In a very short time he asked to be sent to Eton, where he went in 1757. At Eton he did no more work than was acceptable to him, but he had an inborn love of literature, and he laid the foundation of that knowledge of the classic languages which in after years was the delight of his life. The vehemence of his temper was controlled by an affectionate disposition. When quite a boy he checked his own tendency to fits of passion on learning that his father trusted him to cure his defects.

That he learnt anything, and that he grew up an amiable and magnanimous man, were solely due to his natural worth, for no one ever owed less to education or to family example. The relations of Lord Holland to his sons would be difficult to parallel. He not only treated them, and in particular Charles, as friends and companions in pleasure from the first, but he did his best to encourage them in dissipation. In 1763 he took Charles for a tour on the continent, introduced him to the most immoral society of the time and gave him money with which to gamble. The boy came back to Eton a precocious rake. It was his good fortune that he did go back, for he was subjected to a wholesome course of ridicule by the other boys, and was flogged by Dr Barnard, the headmaster. In 1764 Charles proceeded to Hertford College, Oxford. At Oxford, as at Eton, he read literature from natural liking, and he paid some attention to mathematics. His often quoted saying that he found mathematics entertaining was probably meant as a jest at the expense 762 of Sir G. Macartney, to whom he was writing, and who was known to maintain that it was useless. His own account of his school and college training, given in a letter to the same correspondent (6th August 1767), is: “I employed almost my whole time at Oxford in the mathematical and classical knowledge, but more particularly in the latter, so that I understand Latin and Greek tolerably well. I am totally ignorant in every part of useful knowledge. I am more convinced every day how little advantage there is in being what at school and the university is called a good scholar: one receives a good deal of amusement from it, but that is all. At present I read nothing but Italian, which I am immoderately fond of, particularly of the poetry.... As for French, I am far from being so thorough a master of it as I could wish, but I know so much of it that I could perfect myself in it at any time with very little trouble, especially if I pass three or four months in France.” The passage is characteristic. It shows at once his love of good literature and his thoroughness. Fox’s youth was disorderly, but it was never indolent. He was incapable of half doing anything which he did at all. He did perfect himself in French, and he showed no less determination to master mere sports. At a later period when he had grown fat he accounted for his skill in taking “cut balls” at tennis by saying that he was a very “painstaking man.” He was all his life a great and steady walker.

The disorders of his early years were notorious, and were a common subject of gossip. In the spring of 1767 he left Oxford and joined his father on the continent during a tour in France and Italy. In 1768 Lord Holland bought the pocket borough of Midhurst for him, and he entered on his parliamentary career, and on London society, in 1769. Within the next few years Lord Holland reaped to the full the reward for all that was good, and whatever was evil, in the training he had given his son. The affection of Charles Fox for his father was unbounded, but the passion for gambling which had been instilled in him as a boy proved the ruin of the family fortune. He kept racehorses, and bet on them largely. On the racecourse he was successful, and it is another proof of his native thoroughness that he gained a reputation as a handicapper. It is said that he won more than he lost on the course. At the gambling table he was unfortunate, and there can be little question that he was fleeced both in London and in Paris by unscrupulous players of his own social rank, who took advantage of his generosity and whose worthlessness he knew. In the ardour of his passion Fox took his losses and their consequences with an attractive gaiety. He called the room in which he did business with the Jew moneylenders his “Jerusalem chamber.” When his elder brother had a son, and his prospects were injured, he said that the boy was a second Messiah, who had appeared for the destruction of the Jews. “He had his jest, and they had his estate.” In 1774 Lord Holland had to find £140,000 to pay the gambling debts of his sons. For years Charles lived in pecuniary embarrassment, and during his later years, when he had given up gambling, he was supported by the contributions of wealthy friends, who in 1793 formed a fund of £70,000 for his benefit.

His public career did not supply him with a check on habits of dissipation in the shape of the responsibilities of office. He began, as was to be expected in his father’s son, by supporting the court; and in 1770, when only twenty-one, he was appointed a junior lord of the admiralty with Lord North. During the violent conflict over the Middlesex election (see Wilkes, John) he took the unpopular side, and vehemently asserted the right of the House of Commons to exclude Wilkes. In 1772 during the proceedings against Crosby and Oliver—a part of the “Wilkes and liberty” agitation—he and Lord North were attacked by a mob and rolled in the mud. But Fox’s character was incompatible with ministerial service under King George III. The king, himself a man of orderly life, detested him as a gambler and a rake. And Fox was too independent to please a master who expected obedience. In February 1772 he threw up his place to be free to oppose the Royal Marriage Act, on which the king’s heart was set. He returned to office as junior lord of the treasury in December. But he was insubordinate; his sympathy with the American colonies, which were now beginning to resist the claims of the mother country to tax them, made him intolerable to the king and he was dismissed in February 1774. The death of his father on the 1st of July of that year removed an influence which tended to keep him subordinate to the court, and his friendship for Burke drew him into close alliance with the Rockingham Whigs. From the first his ability had won him admiration in the House of Commons. He had prepared to distinguish himself as an orator by the elaborate cultivation of his voice, which was naturally harsh and shrill. His argumentative force was recognized at once, but the full scope of his powers was first shown on the 2nd of February 1775, when he spoke on the disputes with the colonies. The speech is unfortunately lost, but Gibbon, who heard it, told his friend Holroyd (afterwards Earl of Sheffield) that Fox, “taking the vast compass of the question before us, discovered powers for regular debate which neither his friends hoped nor his enemies dreaded.”

His great political career dates from that day. It is unique among the careers of British statesmen of the first rank, for it was passed almost wholly in opposition. Except for a few months in 1782 and 1783, and again for a few months before his death in 1806, he was out of office. If he was absolutely sincere in the statement he made to his friend Fitzpatrick, in a letter of the 3rd of February 1778, his life was all he could have wished. “I am,” he wrote, “certainly ambitious by nature, but I really have, or think I have, totally subdued that passion. I have still as much vanity as ever, which is a happier passion by far, because great reputation I think I may acquire and keep, great situation I never can acquire, nor if acquired keep, without making sacrifices that I never will make.” His words show that he judged himself and read the future accurately. Yet it was certainly a cause of bitter disappointment to him that he had to stand by while the country was in his opinion not only misgoverned, but led to ruin. His reputation as an orator and a political critic, which was great from the first and grew as he lived, most assuredly did not console him for his impotence as a statesman. Of the causes which rendered his brilliant capacity useless for the purpose of obtaining practical success the most important, perhaps the only one of real importance, was his personal character. Lord John Russell (afterwards Earl Russell), his friendly biographer, has to confess that Fox might have joined in the confession of Mirabeau: “The public cause suffers for the immoralities of my youth.” His reputation as a rake and gambler was so well established at the very beginning of his career that when he was dismissed from office in 1774 there was a general belief among the vulgar that he had been detected in actual theft. His perfect openness, the notoriety of his bankruptcies and of the seizure of his books and furniture in execution, kept him before the world as a model of dissipation. In 1776, when he was leading the resistance to Lord North’s colonial policy, he “neither abandoned gaming nor his rakish life. He was seldom in bed before five in the morning nor out of it before two at noon.” At the most important crisis of his life in 1783, he almost made an ostentation of disorder and of indifference not only to appearances, but even to decency. Horace Walpole has drawn a picture of him at that time which Lord Holland, Fox’s beloved and admiring nephew, speaking from his early recollections of his uncle, confesses has “some justification.” Coming from such an authority the certificate may be held to confirm the substantial accuracy of Walpole. “Fox lodged in St James’s Street, and as soon as he rose, which was very late, had a levée of his followers and of the gaming club at Brooks’s—all his disciples. His bristly black person, and shagged breast quite open and rarely purified by any ablutions, was wrapped in a foul linen nightgown and his bushy hair dishevelled. In these cynic weeds and with Epicurean good humour did he dictate his politics, and in this school did the heir of the empire attend his lessons and imbibe them.” That this cynic manner, and Epicurean speech, were only the outside of a manly and generous nature was well known to the personal friends of Fox, and is now universally allowed. But by the bulk of his contemporaries, 763 who could not fail to see the weaknesses he ostentatiously displayed, Fox was, not unnaturally, suspected as being immoral and untrustworthy. Therefore when he came into collision with the will of the king he failed to secure the confidence of the nation which was his only support. Nor ought any critical admirer of Fox to deny that George III. was not wholly wrong when he said that the great orator “was totally destitute of discretion and sound judgment.” Fox made many mistakes, due in some cases to vehemence of temperament, and in others only to be ascribed to want of sagacity. That he fought unpopular causes is a very insufficient explanation of his failure as a practical statesman. He could have profited by the reaction which followed popular excitement but for his bad reputation and his want of discretion.

During the eight years between his expulsion from office in 1774 and the fall of Lord North’s ministry in March 1782 he may indeed be said to have done one very great thing in politics. He planted the seed of the modern Liberal party as opposed to the pure Whigs. In political allegiance he became a member of the Rockingham party and worked in alliance with the marquis and with Burke, whose influence on him was great. In opposing the attempt to coerce the American colonists, and in assailing the waste and corruption of Lord North’s administration, as well as the undue influence of the crown, he was at one with the Rockingham Whigs. During the agitation against corruption, and in favour of honest management of the public money, which was very strong between 1779 and 1782, he and they worked heartily together. It had a considerable effect, and prepared the way for the reforms begun by Burke and continued by Pitt. But if Fox learnt much from Burke he learnt with originality. He declined to accept the revolution settlement as final, or to think with Burke that the constitution of the House of Commons could not be bettered. Fox acquired the conviction that, if the House was to be made an efficient instrument for restraining the interference of the king and for securing good government, it must cease to be filled to a very large extent by the nominees of boroughmongers and the treasury. He became a strong advocate for parliamentary reform. In all ways he was the ardent advocate of what have in later times been known as “Liberal causes,” the removal of all religious disabilities and tests, the suppression of private interests which hampered the public good, the abolition of the slave trade, and the emancipation of all classes and races of men from the strict control of authority.

A detailed account of his activity from 1774 to 1782 would entail the mention of every crisis of the American War of Independence and of every serious debate in parliament. Throughout the struggle Fox was uniformly opposed to the coercion of the colonies and was the untiring critic of Lord North. While the result must be held to prove that he was right, he prepared future difficulties for himself by the fury of his language. He was the last man in the world to act on the worldly-wise maxim that an enemy should always be treated as if he may one day be a friend, and a friend as if he might become an enemy. On the 29th of November 1779 Fox was wounded in a duel with Mr William Adam, a supporter of Lord North’s whom he had savagely denounced. He assailed Lord North with unmeasured invective, directed not only at his policy but at his personal character, though he well knew that the prime minister was an amiable though pliable man, who remained in office against his own wish, in deference to the king who appealed to his loyalty. When the disasters of the American war had at last made a change of ministry necessary, and the king applied to the Whigs, through the intermediary of Lord Shelburne, Fox made a very serious mistake in persuading the marquess of Rockingham not to insist on dealing directly with the sovereign. The result was the formation of a cabinet belonging, in Fox’s own words, partly to the king and partly to the country—that is to say, partly of Whigs who wished to restrain the king, and partly of the king’s friends, represented by Lord Shelburne, whose real function was to baffle the Whigs. Dissensions began from the first, and were peculiarly acute between Shelburne and Fox, the two secretaries of state. The old division of duties by which the southern secretary had the correspondence with the colonies and the western powers of Europe, and the northern secretary with the others, had been abolished on the formation of the Rockingham cabinet. All foreign affairs were entrusted to Fox. Lord Shelburne meddled in the negotiations for the peace at Paris. He also persuaded his colleagues to grant some rather scandalous pensions, and Fox’s acquiescence in this abuse after his recent agitation against Lord North’s waste did him injury. When the marquess of Rockingham died on the 1st of July 1782, and the king offered the premiership to Shelburne, Fox resigned, and was followed by a part of the Rockingham Whigs.

In refusing to serve under Shelburne he was undoubtedly consistent, but his next step was ruinous to himself and his party. On the 14th of February 1783 he formed a coalition with Lord North, based as they declared on “mutual goodwill and confidence.” Plausible excuses were made for the alliance, but to the country at large this union, formed with a man whom he had denounced for years, had the appearance of an unscrupulous conspiracy to obtain office on any terms. In the House of Commons the coalition was strong enough to drive Shelburne from office on the 24th of February. The king made a prolonged resistance to the pressure put on him to accept Fox and North as his ministers (see Pitt, William). On the 2nd of April he was constrained to submit to the formation of a new ministry, in which the duke of Portland was prime minister and Fox and North were secretaries of state. The new administration was ill liked by some of the followers of both. Fox increased its unpopularity both in the House and in the country by consenting against the wish of most of his colleagues to ask for the grant of a sum of £100,000 a year to the prince of Wales. The act had the appearance of a deliberate offence to the king, who was on bad terms with his son. The magnitude of the sum, and his acquiescence in the grant of pensions by the Shelburne ministry, convinced the country that his zeal for economy was hypocritical. The introduction of the India Bill in November 1783 alarmed many vested interests, and offended the king by the provision which gave the patronage of India to a commission to be named by the ministry and removable only by parliament. The coalition, and Fox in particular, were assailed in a torrent of most telling invective and caricature. Encouraged by the growing unpopularity of his ministers, George III. gave it to be understood that he would not look upon any member of the House of Lords who voted for the India Bill as his friend. The bill was thrown out in the upper House on the 17th of December, and next day the king dismissed his ministers.

Fox now went into opposition again. The remainder of his life may be divided into four portions—his opposition to Pitt during the session of 1784; his parliamentary activity till his secession in 1797; his retirement till 1800; his return to activity and his short tenure of office before his death in 1806. During the first of these periods he deepened his unpopularity by assailing the undoubted prerogatives of the crown, by claiming for the House of Commons the right to override not only the king and the Lords but the opinion of the country, and by resisting a dissolution. This last pretension came very ill from a statesman who in 1780 had advocated yearly elections. He lost ground daily before the steady good judgment and unblemished character of Pitt. When parliament was dissolved at the end of the session of 1784, the country showed its sentiments by unseating 180 of the followers of Fox and North. Immense harm was done to both by the publication of a book called The Beauties of Fox, North and Burke, a compilation of their abuse of one another in recent years.

Fox himself was elected for Westminster with fewer votes than Admiral Lord Hood, but with a majority over the ministerial candidate, Sir Cecil Wray. The election was marked by an amazing outflow of caricatures and squibs, by weeks of rioting in which Lord Hood’s sailors fought pitched battles in St James’s Street with Fox’s hackney coachmen, and by the intrepid canvassing of Whig ladies. The beautiful duchess of Devonshire 764 (Georgiana Spencer) is said to have won at least one vote for Fox by kissing a shoemaker who had a romantic idea of what constituted a desirable bribe. The high bailiff refused to make a return, and the confirmation of Fox’s election was delayed by the somewhat mean action of the ministry. He had, however, been chosen for Kirkwall, and could fight his cause in the House. In the end he recovered damages from the high bailiff. In his place in parliament he sometimes supported Pitt and sometimes opposed him with effect. His criticism on the ministers’ bill for the government of India was sound in principle, though the evils he foresaw did not arise. Little excuse can be made for his opposition to Pitt’s commercial policy towards Ireland. But as Fox on this occasion aided the vested interests of some English manufacturers he secured a certain revival of popularity. His support of Pitt’s Reform Bill was qualified by a just dislike of the ministers’ proposal to treat the possession of the franchise by a constituency as a property and not as a trust. His unsuccessful opposition to the commercial treaty with France in 1787 was unwise and most injurious to himself. He committed himself to the proposition that France was the natural enemy of Great Britain, a saying often quoted against him in coming years. It has been excused on the ground that when he said France he meant the aggressive house of Bourbon. A statesman whose words have to be interpreted by an esoteric meaning cannot fairly complain if he is often misunderstood. In 1788 he travelled in Italy, but returned in haste on hearing of the illness of the king. Fox supported the claim of the prince of Wales to the regency as a right, a doctrine which provoked Pitt into declaring that he would “unwhig the gentleman for the rest of his life.” The friendship between him and the prince of Wales (see George IV.) was always injurious to Fox. In 1787 he was misled by the prince’s ambiguous assurances into denying the marriage with Mrs Fitzherbert. On discovering that he had been deceived he broke off all relations with the prince for a year, but their alliance was renewed. During these years he was always in favour of whatever measures could be described as favourable to emancipation and to humanity. He actively promoted the impeachment of Warren Hastings, which had the support of Pitt. He was always in favour of the abolition of the slave trade (which he actually effected during his short tenure of office in 1806), of the repeal of the Test Acts, and of concessions to the Roman Catholics, both in Great Britain and in Ireland.

The French Revolution affected Fox profoundly. Together with almost all his countrymen he welcomed the meeting of the states-general in 1789 as the downfall of a despotism hostile to Great Britain. But when the development of the Revolution caused a general reaction, he adhered stoutly to his opinion that the Revolution was essentially just and ought not to be condemned for its errors or even for its crimes. As a natural consequence he was the steady opponent of Pitt’s foreign policy, which he condemned as a species of crusade against freedom in the interest of despotism. Between 1790 and 1800 his unpopularity reached its height. He was left almost alone in parliament, and was denounced as the enemy of his country. On the 6th of May 1791 occurred the painful scene in the House of Commons, in which Burke renounced his friendship. In 1792 there was some vague talk of a coalition between him and Pitt, which came to nothing. It should be noted that the scene with Burke took place in the course of the debate on the Quebec Bill, in which Fox displayed real statesmanship by criticizing the division of Upper from Lower Canada, and other provisions of the bill, which in the end proved so injurious as to be unworkable. In this year he carried the Libel Bill. In 1792 his ally, the duke of Portland, and most of his party left him. In 1797 he withdrew from parliament, and only came forward in 1798 to reaffirm the doctrine of the sovereignty of the people at a great Whig dinner. On the 9th of May he was dismissed from the privy council.

The interval of secession was perhaps the happiest in his life. In 1783 he formed a connexion with Elizabeth Bridget Cane, commonly known as Mrs Armstead or Armistead, an amiable and well-mannered woman to whom he was passionately attached. In company with her he established himself at St Anne’s Hill near Chertsey in Surrey. In 1795 he married her privately, but did not avow his marriage till 1802. In his letters he spoke of her always as Mrs Armistead, and some of his friends—Mr Coke of Holkham, afterwards Lord Leicester, with whom he stayed every year, being one of them—would not invite her to their houses. It is hard to explain this solitary instance of shabby conduct in a thoroughly generous man towards a person to whom he was unalterably attached and who fully deserved his affection. Fox’s time at St Anne’s was largely spent in gardening, in the enjoyment of the country, and in correspondence on literary subjects with his nephew, the 3rd Lord Holland, and with Gilbert Wakefield, the editor of Euripides. His letters show that he had a very sincere love for, and an enlightened appreciation of, good literature. Greek and Italian were his first favourites, but he was well read in English literature and in French, and acquired some knowledge of Spanish. His favourite authors were Euripides, Virgil and Racine, whom he defends against the stock criticisms of the admirers of Corneille with equal zeal and insight.

Fox reappeared in parliament to take part in the vote of censure on ministers for declining Napoleon’s overtures for a peace. The fall of Pitt’s first ministry and the formation of the Addington cabinet, the peace of Amiens, and the establishment of Napoleon as first consul with all the powers of a military despot, seemed to offer Fox a chance of resuming power in public life. The struggle with Jacobinism was over, and he could have no hesitation in supporting resistance to a successful general who ruled by the sword, and who pursued a policy of perpetual aggression. During 1802 he visited Paris in company with his wife. An account of his journey was published in 1811 by his secretary, Mr Trotter, in an otherwise poor book of reminiscence. It gives an attractive picture of Fox’s good-humour, and of his enjoyment of the “species of minor comedy which is constantly exhibited in common life.” His main purpose in visiting Paris was to superintend the transcription of the correspondence of Barillon, which he needed for his proposed life of James II. The book was never finished, but the fragment he completed was published in 1808, and was translated into French by Armand Carrel in 1846. Fox was not favourably impressed by Napoleon. He saw a good deal of French society, and was himself much admired for his hearty defence of his rival Pitt against a foolish charge of encouraging plots for Napoleon’s assassination. On his return he resumed his regular attendance in the House of Commons. The history of the renewal of the war, of the fall of Addington’s ministry, and of the formation of Pitt’s second administration is so fully dealt with in the article on Pitt (q.v.) that it need not be repeated here.

The death of Pitt left Fox so manifestly the foremost man in public life that the king could no longer hope to exclude him from office. The formation of a ministry was entrusted by the king to Lord Grenville, but when he named Fox as his proposed secretary of state for foreign affairs George III. accepted him without demur. Indeed his hostility seems to a large extent to have died out. A long period of office might now have appeared to lie before Fox, but his health was undermined. Had he lived it may be considered as certain that the war with Napoleon would have been conducted with a vigour which was much wanting during the next few years. In domestic politics Fox had no time to do more than insist on the abolition of the slave trade. He, like Pitt, was compelled to bow to the king’s invincible determination not to allow the emancipation of the Roman Catholics. When a French adventurer calling himself Guillet de la Gevrillière, whom Fox at first “did the honour to take for a spy,” came to him with a scheme for the murder of Napoleon, he sent a warning on the 20th of February to Talleyrand. The incident gave him an opportunity for reopening negotiations for peace. A correspondence ensued, and British envoys were sent to Paris. But Fox was soon convinced that the French ministers were playing a false game. He was resolved not to treat apart from Russia, then the ally of Great Britain, 765 nor to consent to the surrender of Sicily, which Napoleon insisted upon, unless full compensation could be obtained for King Ferdinand. The later stages of the negotiation were not directed by Fox, but by colleagues who took over his work at the foreign office when his health began to fail in the summer of 1806. He showed symptoms of dropsy, and operations only procured him temporary relief. After carrying his motion for the abolition of the slave trade on the 10th of June, he was forced to give up attendance in parliament, and he died in the house of the duke of Devonshire, at Chiswick, on the 13th of September 1806. His wife survived him till the 8th of July 1842. No children were born of the marriage. Fox is buried in Westminster Abbey by the side of Pitt.

The striking personal appearance of Fox has been rendered very familiar by portraits and by innumerable caricatures. The latter were no doubt deliberately exaggerated, and yet a comparison between the head of Fox in Sayer’s plate “Carlo Khan’s triumphal entry into Leadenhall,” and in Abbot’s portrait, shows that the caricaturist did not depart from the original. Fox was twice painted by Sir Joshua Reynolds, once when young in a group with Lady Sarah Bunbury and Lady Susan Strangeways, and once at full length. A half-length portrait by the German painter, Karl Anton Hickel, is in the National Portrait Gallery, where there is also a terra-cotta bust by Nollekens.

Authorities.—The materials for a life of Fox were first collected by his nephew, Lord Holland, and were then revised and rearranged by Mr Allen and Lord John Russell. These materials appear as Memoirs and Correspondence of C.J. Fox (London, 1853-1857). On them Lord John Russell based his Life and Times of C.J. Fox (London, 1859-1866); Sir G.O. Trevelyan’s Early History of C.J. Fox (London. 1880) brings new evidence; Charles James Fox, a Political Study, by J.L. Le B. Hammond (London, 1903), is a series of studies written by an extreme admirer. His Speeches were collected and published in 1815. The newspaper articles (e.g. in The Times) published on the occasion of the centenary of his death contain interesting appreciations. See also Lloyd Sanders, The Holland House Circle (1908).

(D. H.)

FOX, EDWARD (c. 1496-1538), bishop of Hereford, was born about 1496 at Dursley in Gloucestershire; he is said on very doubtful authority to have been related to Richard Fox (q.v.). From Eton he proceeded to King’s College, Cambridge, and after graduating was made secretary to Wolsey. In 1528 he was sent with Gardiner to Rome to obtain from Clement VII. a decretal commission for the trial and decision of the case between Henry VIII. and Catherine of Aragon. On his return he was elected provost of King’s College, and in August 1529 was the means of conveying to the king Cranmer’s historic advice that he should apply to the universities of Europe rather than to the pope. This introduction led eventually to Cranmer’s promotion over Fox’s head to the archbishopric of Canterbury. After a brief mission to Paris in October 1529, Fox in January 1530 befriended Latimer at Cambridge and took an active part in persuading that university and Oxford to decide in the king’s favour. He was sent to employ similar methods of persuasion at the French universities in 1530-1531, and was also engaged in negotiating a closer league between England and France. In April 1533 he was prolocutor of convocation when it decided against the validity of Henry’s marriage with Catherine, and in 1534 published his treatise De vera differentia regiae potestatis et ecclesiae (second ed. 1538, English transl. 1548). Various ecclesiastical preferments were now granted him, including the archdeaconry of Leicester (1531) and the bishopric of Hereford (1535). In 1535-1536 he was sent to Germany to discuss the basis of a political and theological understanding with the Lutheran princes and divines, and had several interviews with Luther, who could not be persuaded of the justice of Henry VIII.’s divorce. The principal result of the mission was the Wittenberg articles of 1536, which had no slight influence on the English Ten Articles of the same year. Bucer dedicated to him in 1536 his Commentaries on the Gospels, and Fox’s Protestantism was also illustrated by his patronage of Alexander Aless, whom he defended before Convocation. Fox is credited with the authorship of several proverbial sayings, such as “the surest way to peace is a constant preparedness for war” and “time and I will challenge any two in the world.” The former at any rate is only a variation of the Latin si vis pacem, para bellum, and probably the latter is not more original in Fox than in Philip II., to whom it is usually ascribed. Fox died on the 8th of May 1538 and was buried in the church of St Mary Mounthaw, London. His chief distinction is perhaps that he was the most Lutheran of Henry VIII.’s bishops, and was largely responsible for the Ten Articles of 1536.

See Letters and Papers of Henry VIII., vols. iv.-xiv.; Cooper’s Athenae Cantabrigienses; Dict. Nat. Biogr.; R.W. Dixon’s Church History; G. Mentz, Die Wittenberger Artikel von 1536 (1905).

(A. F. P.)






End of the Project Gutenberg EBook of Encyclopaedia Britannica, 11th
Edition, Volume 10, Slice 6, by Various

*** END OF THIS PROJECT GUTENBERG EBOOK ENCYCLOPAEDIA BRITANNICA ***

***** This file should be named 35925-h.htm or 35925-h.zip *****
This and all associated files of various formats will be found in:
        http://www.gutenberg.org/3/5/9/2/35925/

Produced by Marius Masi, Don Kretz and the Online
Distributed Proofreading Team at http://www.pgdp.net


Updated editions will replace the previous one--the old editions
will be renamed.

Creating the works from public domain print editions means that no
one owns a United States copyright in these works, so the Foundation
(and you!) can copy and distribute it in the United States without
permission and without paying copyright royalties.  Special rules,
set forth in the General Terms of Use part of this license, apply to
copying and distributing Project Gutenberg-tm electronic works to
protect the PROJECT GUTENBERG-tm concept and trademark.  Project
Gutenberg is a registered trademark, and may not be used if you
charge for the eBooks, unless you receive specific permission.  If you
do not charge anything for copies of this eBook, complying with the
rules is very easy.  You may use this eBook for nearly any purpose
such as creation of derivative works, reports, performances and
research.  They may be modified and printed and given away--you may do
practically ANYTHING with public domain eBooks.  Redistribution is
subject to the trademark license, especially commercial
redistribution.



*** START: FULL LICENSE ***

THE FULL PROJECT GUTENBERG LICENSE
PLEASE READ THIS BEFORE YOU DISTRIBUTE OR USE THIS WORK

To protect the Project Gutenberg-tm mission of promoting the free
distribution of electronic works, by using or distributing this work
(or any other work associated in any way with the phrase "Project
Gutenberg"), you agree to comply with all the terms of the Full Project
Gutenberg-tm License (available with this file or online at
http://gutenberg.org/license).


Section 1.  General Terms of Use and Redistributing Project Gutenberg-tm
electronic works

1.A.  By reading or using any part of this Project Gutenberg-tm
electronic work, you indicate that you have read, understand, agree to
and accept all the terms of this license and intellectual property
(trademark/copyright) agreement.  If you do not agree to abide by all
the terms of this agreement, you must cease using and return or destroy
all copies of Project Gutenberg-tm electronic works in your possession.
If you paid a fee for obtaining a copy of or access to a Project
Gutenberg-tm electronic work and you do not agree to be bound by the
terms of this agreement, you may obtain a refund from the person or
entity to whom you paid the fee as set forth in paragraph 1.E.8.

1.B.  "Project Gutenberg" is a registered trademark.  It may only be
used on or associated in any way with an electronic work by people who
agree to be bound by the terms of this agreement.  There are a few
things that you can do with most Project Gutenberg-tm electronic works
even without complying with the full terms of this agreement.  See
paragraph 1.C below.  There are a lot of things you can do with Project
Gutenberg-tm electronic works if you follow the terms of this agreement
and help preserve free future access to Project Gutenberg-tm electronic
works.  See paragraph 1.E below.

1.C.  The Project Gutenberg Literary Archive Foundation ("the Foundation"
or PGLAF), owns a compilation copyright in the collection of Project
Gutenberg-tm electronic works.  Nearly all the individual works in the
collection are in the public domain in the United States.  If an
individual work is in the public domain in the United States and you are
located in the United States, we do not claim a right to prevent you from
copying, distributing, performing, displaying or creating derivative
works based on the work as long as all references to Project Gutenberg
are removed.  Of course, we hope that you will support the Project
Gutenberg-tm mission of promoting free access to electronic works by
freely sharing Project Gutenberg-tm works in compliance with the terms of
this agreement for keeping the Project Gutenberg-tm name associated with
the work.  You can easily comply with the terms of this agreement by
keeping this work in the same format with its attached full Project
Gutenberg-tm License when you share it without charge with others.

1.D.  The copyright laws of the place where you are located also govern
what you can do with this work.  Copyright laws in most countries are in
a constant state of change.  If you are outside the United States, check
the laws of your country in addition to the terms of this agreement
before downloading, copying, displaying, performing, distributing or
creating derivative works based on this work or any other Project
Gutenberg-tm work.  The Foundation makes no representations concerning
the copyright status of any work in any country outside the United
States.

1.E.  Unless you have removed all references to Project Gutenberg:

1.E.1.  The following sentence, with active links to, or other immediate
access to, the full Project Gutenberg-tm License must appear prominently
whenever any copy of a Project Gutenberg-tm work (any work on which the
phrase "Project Gutenberg" appears, or with which the phrase "Project
Gutenberg" is associated) is accessed, displayed, performed, viewed,
copied or distributed:

This eBook is for the use of anyone anywhere at no cost and with
almost no restrictions whatsoever.  You may copy it, give it away or
re-use it under the terms of the Project Gutenberg License included
with this eBook or online at www.gutenberg.org

1.E.2.  If an individual Project Gutenberg-tm electronic work is derived
from the public domain (does not contain a notice indicating that it is
posted with permission of the copyright holder), the work can be copied
and distributed to anyone in the United States without paying any fees
or charges.  If you are redistributing or providing access to a work
with the phrase "Project Gutenberg" associated with or appearing on the
work, you must comply either with the requirements of paragraphs 1.E.1
through 1.E.7 or obtain permission for the use of the work and the
Project Gutenberg-tm trademark as set forth in paragraphs 1.E.8 or
1.E.9.

1.E.3.  If an individual Project Gutenberg-tm electronic work is posted
with the permission of the copyright holder, your use and distribution
must comply with both paragraphs 1.E.1 through 1.E.7 and any additional
terms imposed by the copyright holder.  Additional terms will be linked
to the Project Gutenberg-tm License for all works posted with the
permission of the copyright holder found at the beginning of this work.

1.E.4.  Do not unlink or detach or remove the full Project Gutenberg-tm
License terms from this work, or any files containing a part of this
work or any other work associated with Project Gutenberg-tm.

1.E.5.  Do not copy, display, perform, distribute or redistribute this
electronic work, or any part of this electronic work, without
prominently displaying the sentence set forth in paragraph 1.E.1 with
active links or immediate access to the full terms of the Project
Gutenberg-tm License.

1.E.6.  You may convert to and distribute this work in any binary,
compressed, marked up, nonproprietary or proprietary form, including any
word processing or hypertext form.  However, if you provide access to or
distribute copies of a Project Gutenberg-tm work in a format other than
"Plain Vanilla ASCII" or other format used in the official version
posted on the official Project Gutenberg-tm web site (www.gutenberg.org),
you must, at no additional cost, fee or expense to the user, provide a
copy, a means of exporting a copy, or a means of obtaining a copy upon
request, of the work in its original "Plain Vanilla ASCII" or other
form.  Any alternate format must include the full Project Gutenberg-tm
License as specified in paragraph 1.E.1.

1.E.7.  Do not charge a fee for access to, viewing, displaying,
performing, copying or distributing any Project Gutenberg-tm works
unless you comply with paragraph 1.E.8 or 1.E.9.

1.E.8.  You may charge a reasonable fee for copies of or providing
access to or distributing Project Gutenberg-tm electronic works provided
that

- You pay a royalty fee of 20% of the gross profits you derive from
     the use of Project Gutenberg-tm works calculated using the method
     you already use to calculate your applicable taxes.  The fee is
     owed to the owner of the Project Gutenberg-tm trademark, but he
     has agreed to donate royalties under this paragraph to the
     Project Gutenberg Literary Archive Foundation.  Royalty payments
     must be paid within 60 days following each date on which you
     prepare (or are legally required to prepare) your periodic tax
     returns.  Royalty payments should be clearly marked as such and
     sent to the Project Gutenberg Literary Archive Foundation at the
     address specified in Section 4, "Information about donations to
     the Project Gutenberg Literary Archive Foundation."

- You provide a full refund of any money paid by a user who notifies
     you in writing (or by e-mail) within 30 days of receipt that s/he
     does not agree to the terms of the full Project Gutenberg-tm
     License.  You must require such a user to return or
     destroy all copies of the works possessed in a physical medium
     and discontinue all use of and all access to other copies of
     Project Gutenberg-tm works.

- You provide, in accordance with paragraph 1.F.3, a full refund of any
     money paid for a work or a replacement copy, if a defect in the
     electronic work is discovered and reported to you within 90 days
     of receipt of the work.

- You comply with all other terms of this agreement for free
     distribution of Project Gutenberg-tm works.

1.E.9.  If you wish to charge a fee or distribute a Project Gutenberg-tm
electronic work or group of works on different terms than are set
forth in this agreement, you must obtain permission in writing from
both the Project Gutenberg Literary Archive Foundation and Michael
Hart, the owner of the Project Gutenberg-tm trademark.  Contact the
Foundation as set forth in Section 3 below.

1.F.

1.F.1.  Project Gutenberg volunteers and employees expend considerable
effort to identify, do copyright research on, transcribe and proofread
public domain works in creating the Project Gutenberg-tm
collection.  Despite these efforts, Project Gutenberg-tm electronic
works, and the medium on which they may be stored, may contain
"Defects," such as, but not limited to, incomplete, inaccurate or
corrupt data, transcription errors, a copyright or other intellectual
property infringement, a defective or damaged disk or other medium, a
computer virus, or computer codes that damage or cannot be read by
your equipment.

1.F.2.  LIMITED WARRANTY, DISCLAIMER OF DAMAGES - Except for the "Right
of Replacement or Refund" described in paragraph 1.F.3, the Project
Gutenberg Literary Archive Foundation, the owner of the Project
Gutenberg-tm trademark, and any other party distributing a Project
Gutenberg-tm electronic work under this agreement, disclaim all
liability to you for damages, costs and expenses, including legal
fees.  YOU AGREE THAT YOU HAVE NO REMEDIES FOR NEGLIGENCE, STRICT
LIABILITY, BREACH OF WARRANTY OR BREACH OF CONTRACT EXCEPT THOSE
PROVIDED IN PARAGRAPH 1.F.3.  YOU AGREE THAT THE FOUNDATION, THE
TRADEMARK OWNER, AND ANY DISTRIBUTOR UNDER THIS AGREEMENT WILL NOT BE
LIABLE TO YOU FOR ACTUAL, DIRECT, INDIRECT, CONSEQUENTIAL, PUNITIVE OR
INCIDENTAL DAMAGES EVEN IF YOU GIVE NOTICE OF THE POSSIBILITY OF SUCH
DAMAGE.

1.F.3.  LIMITED RIGHT OF REPLACEMENT OR REFUND - If you discover a
defect in this electronic work within 90 days of receiving it, you can
receive a refund of the money (if any) you paid for it by sending a
written explanation to the person you received the work from.  If you
received the work on a physical medium, you must return the medium with
your written explanation.  The person or entity that provided you with
the defective work may elect to provide a replacement copy in lieu of a
refund.  If you received the work electronically, the person or entity
providing it to you may choose to give you a second opportunity to
receive the work electronically in lieu of a refund.  If the second copy
is also defective, you may demand a refund in writing without further
opportunities to fix the problem.

1.F.4.  Except for the limited right of replacement or refund set forth
in paragraph 1.F.3, this work is provided to you 'AS-IS' WITH NO OTHER
WARRANTIES OF ANY KIND, EXPRESS OR IMPLIED, INCLUDING BUT NOT LIMITED TO
WARRANTIES OF MERCHANTIBILITY OR FITNESS FOR ANY PURPOSE.

1.F.5.  Some states do not allow disclaimers of certain implied
warranties or the exclusion or limitation of certain types of damages.
If any disclaimer or limitation set forth in this agreement violates the
law of the state applicable to this agreement, the agreement shall be
interpreted to make the maximum disclaimer or limitation permitted by
the applicable state law.  The invalidity or unenforceability of any
provision of this agreement shall not void the remaining provisions.

1.F.6.  INDEMNITY - You agree to indemnify and hold the Foundation, the
trademark owner, any agent or employee of the Foundation, anyone
providing copies of Project Gutenberg-tm electronic works in accordance
with this agreement, and any volunteers associated with the production,
promotion and distribution of Project Gutenberg-tm electronic works,
harmless from all liability, costs and expenses, including legal fees,
that arise directly or indirectly from any of the following which you do
or cause to occur: (a) distribution of this or any Project Gutenberg-tm
work, (b) alteration, modification, or additions or deletions to any
Project Gutenberg-tm work, and (c) any Defect you cause.


Section  2.  Information about the Mission of Project Gutenberg-tm

Project Gutenberg-tm is synonymous with the free distribution of
electronic works in formats readable by the widest variety of computers
including obsolete, old, middle-aged and new computers.  It exists
because of the efforts of hundreds of volunteers and donations from
people in all walks of life.

Volunteers and financial support to provide volunteers with the
assistance they need, are critical to reaching Project Gutenberg-tm's
goals and ensuring that the Project Gutenberg-tm collection will
remain freely available for generations to come.  In 2001, the Project
Gutenberg Literary Archive Foundation was created to provide a secure
and permanent future for Project Gutenberg-tm and future generations.
To learn more about the Project Gutenberg Literary Archive Foundation
and how your efforts and donations can help, see Sections 3 and 4
and the Foundation web page at http://www.pglaf.org.


Section 3.  Information about the Project Gutenberg Literary Archive
Foundation

The Project Gutenberg Literary Archive Foundation is a non profit
501(c)(3) educational corporation organized under the laws of the
state of Mississippi and granted tax exempt status by the Internal
Revenue Service.  The Foundation's EIN or federal tax identification
number is 64-6221541.  Its 501(c)(3) letter is posted at
http://pglaf.org/fundraising.  Contributions to the Project Gutenberg
Literary Archive Foundation are tax deductible to the full extent
permitted by U.S. federal laws and your state's laws.

The Foundation's principal office is located at 4557 Melan Dr. S.
Fairbanks, AK, 99712., but its volunteers and employees are scattered
throughout numerous locations.  Its business office is located at
809 North 1500 West, Salt Lake City, UT 84116, (801) 596-1887, email
business@pglaf.org.  Email contact links and up to date contact
information can be found at the Foundation's web site and official
page at http://pglaf.org

For additional contact information:
     Dr. Gregory B. Newby
     Chief Executive and Director
     gbnewby@pglaf.org


Section 4.  Information about Donations to the Project Gutenberg
Literary Archive Foundation

Project Gutenberg-tm depends upon and cannot survive without wide
spread public support and donations to carry out its mission of
increasing the number of public domain and licensed works that can be
freely distributed in machine readable form accessible by the widest
array of equipment including outdated equipment.  Many small donations
($1 to $5,000) are particularly important to maintaining tax exempt
status with the IRS.

The Foundation is committed to complying with the laws regulating
charities and charitable donations in all 50 states of the United
States.  Compliance requirements are not uniform and it takes a
considerable effort, much paperwork and many fees to meet and keep up
with these requirements.  We do not solicit donations in locations
where we have not received written confirmation of compliance.  To
SEND DONATIONS or determine the status of compliance for any
particular state visit http://pglaf.org

While we cannot and do not solicit contributions from states where we
have not met the solicitation requirements, we know of no prohibition
against accepting unsolicited donations from donors in such states who
approach us with offers to donate.

International donations are gratefully accepted, but we cannot make
any statements concerning tax treatment of donations received from
outside the United States.  U.S. laws alone swamp our small staff.

Please check the Project Gutenberg Web pages for current donation
methods and addresses.  Donations are accepted in a number of other
ways including checks, online payments and credit card donations.
To donate, please visit: http://pglaf.org/donate


Section 5.  General Information About Project Gutenberg-tm electronic
works.

Professor Michael S. Hart is the originator of the Project Gutenberg-tm
concept of a library of electronic works that could be freely shared
with anyone.  For thirty years, he produced and distributed Project
Gutenberg-tm eBooks with only a loose network of volunteer support.


Project Gutenberg-tm eBooks are often created from several printed
editions, all of which are confirmed as Public Domain in the U.S.
unless a copyright notice is included.  Thus, we do not necessarily
keep eBooks in compliance with any particular paper edition.


Most people start at our Web site which has the main PG search facility:

     http://www.gutenberg.org

This Web site includes information about Project Gutenberg-tm,
including how to make donations to the Project Gutenberg Literary
Archive Foundation, how to help produce our new eBooks, and how to
subscribe to our email newsletter to hear about new eBooks.