The Project Gutenberg EBook of Scientific American Architects and Builders Edition, No. 26, Dec, 1887, by Various This eBook is for the use of anyone anywhere in the United States and most other parts of the world at no cost and with almost no restrictions whatsoever. You may copy it, give it away or re-use it under the terms of the Project Gutenberg License included with this eBook or online at www.gutenberg.org. If you are not located in the United States, you'll have to check the laws of the country where you are located before using this ebook. Title: Scientific American Architects and Builders Edition, No. 26, Dec, 1887 Author: Various Release Date: January 14, 2016 [EBook #50927] Language: English Character set encoding: UTF-8 *** START OF THIS PROJECT GUTENBERG EBOOK SCIENTIFIC AMERICAN, DEC. 1887 *** Produced by Juliet Sutherland, Brian Wilcox and the Online Distributed Proofreading Team at http://www.pgdp.net
Link to Contents.
Link to Classified Index of Advertisements.
Link to Colored plates.
Link to Index.
With Two Supplements consisting of
Two Plates in Colors and One Large Sheet of Details.
DECEMBER, 1887 Single Copies, 25 Cents.—$2.50 a Year
Copyrighted, 1887, By Munn & Co.
New York: Published by MUNN & CO., 361 Broadway, corner Franklin Street.
Best in principle, workmanship, and materials. An unequalled small Motor adapted to all uses. When the Motor is not at work, the expense of running it ceases. Simple, Safe, Economical, Durable. No extra Insurance required.
PLUMBERS’ GAS ENGINE.
Especially adapted for pumping water in Private and Apartment Houses, Flats, Small Hotels, and many other places.
No. 6.1 Man.
Capacity 250 Gallons, 50 feet high, per hour.
LARGER SIZES.
No. 7. One‐Half Horse, 600 Gallons, 50 feet High, per Hour.
No. 8. One Horse, – 1,500
„
„
„ „
GASOLINE GAS ENGINES.
No. 15. One Man, – 300 Gallons, 50 feet High, per Hour.
No. 16. One‐Half Horse, 600
„
„
„ „
No. 18, One Horse, – 1,500
„
„
„ „
Four Sizes, from Motor for Sewing Machine or Dental Engine to One Horse
Power.
Our Gas Engines will work satisfactorily when attached to Gasoline
Machines.
SEND FOR ILLUSTRATED CATALOGUE.
Economic Gas Engine Co.,
Office and Salesroom, 34 DEY ST., NEW YORK.
STAR HACK SAW. No. 2.
This Saw is much harder than a file, and will cut iron almost as fast as it will wood. One saw blade will cut off a bar of half‐inch round iron one hundred times. The blade is eight inches long, and will do most of the sawing required about a house, shop, or farm. The Patent Frame is made of steel, polished and nickel plated. It will face the saw in four directions, as desired. Frame and twelve Saw Blades sent by mail, postage prepaid, on receipt of $1.50. Hardware dealers will furnish them at the same price. All genuine goods are marked with a star and bear our name. We also have full control of the Star Bracket Saws, and warrant them to be better than any imported blades.
MILLER’S FALLS CO., 93 Reade Street, New York.
A
FIRST CLASS
OFFICE BUILDING
SHOULD BE Furnished With
A
U. S. MAIL CHUTE
(PAT’D.) Connecting EVERY STORY with
THE U. S.MAIL BOX.
ADDRESS FOR CIRCULARS, &c.,
CUTLER MF’G. CO.
“A NECESSITY.” Sole Makers, ROCHESTER, N. Y.
THE OTIS TUBULAR FEED WATER HEATER
With Seamless Brass Tubes and the most recent improvements.
Specially adapted for utilizing the exhaust steam of
ELEVATOR
PUMPS,
both Passenger and Freight, to heat the Feed Water for the boilers.
We guarantee one square foot of heating surface per horse power.
We can give reference from Heaters already in operation under the same conditions, giving the best of satisfaction.
MANUFACTURED
BY
Stewart Heater
COMPANY,
40 & 42 Clinton Street,
BUFFALO, N. Y.
DESKS
—AND—
OFFICE
FURNITURE
In Great Variety
MANUFACTURED BY
T. G. SELLEW,
111 Fulton Street,
NEW YORK.
THE JACKSON
Heat‐Saving & Ventilating Grate
COMBINED
GRATE and FURNACE.
HEATING
on ONE or TWO Floors.
Greatest variety of rich and chaste designs in plain or oxidized Iron, Steel, Nickel‐Plate, Electro‐Bronze, Solid Brass or Bronze. Largest rooms in coldest climates thoroughly heated. Out‐door air warmed by the heat wasted in ordinary grates, and introduced, producing perfect ventilation and equable temperature, without drafts. In use everywhere. Illustrated Catalogues.
EDWIN A. JACKSON & BRO., 77 Beekman St., New York.
ARCHITECTS, BUILDERS!
ATTENTION IS CALLED TO
ADVERTISEMENT ON PAGE iii.
FRANK B. MALLORY.
SPECIFICATIONS SHOULD INCLUDE
Folsom’s Patent Roof Snow‐Guards
——300,000 IN USE.——
Address, JOHN H. HILLER, 1408 Tremont St., Boston.
Solid Braided Cotton Sash Cord.
The “SAMSON” Window Line does not wear out. Save the annoyance of broken cords. Samples free on application to the manufacturers.
J. P. TOLMAN & CO., 164 High Street, Boston, Mass.
THE
Asbestos Packing Co.
ASBESTOS REMOVEABLE COVERING
BOSTONITE
ASBESTOS FLOORING FELT &c.
No. 1 WAREPROOF SHEATHING
THE A. P. Co. 3 PLY ROOFING
ASBESTOS CEMENT FELTING
ROOFING PITCH
OFFICES:
169 Congress St., Boston.
33 John St., New York.
BRUSH
Electric Lights.
Incandescence Lights for Apartment Houses and Residences furnished by
THE BRUSH ELECTRIC COMPANY,
CLEVELAND, OHIO.
NEW YORK OFFICE: No. 36 Union Square.
CHICAGO OFFICE: No. 130 Washington Street.
ST. LOUIS OFFICE: No. 404 Market Street.
DETROIT OFFICE: No. 88 Griswold Street.
SEND FOR CATALOGUE No. 8.
SCHUMACHER & ETTLINGER,
LITHOGRAPHERS,
32, 34 and 36 Bleecker and 311 Mott Streets,
NEW YORK.
FINE COLOR WORK A SPECIALTY.
STANLEY RULE & LEVEL CO.,
MANUFACTURERS OF
IMPROVED
CARPENTERS’ TOOLS.
FACTORIES:
NEW BRITAIN,
CONN.
SOLD BY ALL
HARDWARE DEALERS.
Stanley’s Universal Hand Beader.
For Beading, Reeding or Fluting, and for all kinds of light Routering, this tool is invaluable to wood‐workers.
Seven superior steel cutters go with each tool. Both ends are sharpened, thus embracing six ordinary sizes of Beads, four sets of Reeds, two Fluters and a double Router Iron (⅛ and ¼ inch).
No. 66 Iron stock with seven Steel Cutters, $1.00.
NEW YORK, DECEMBER, 1887.
Entered at the Post Office of
New York as Second Class Matter.
Vol. IV.Subscription, $2.50 a Year.
Single Copies, 25 Cents.
No. 6.
The American veneration for the birthplace of Shakespeare is well known, and it has just taken practical shape by the presentation to the town of a public drinking fountain and clock tower, the gift of an American citizen, Mr. George W. Childs, of Philadelphia, in commemoration of the jubilee of Queen Victoria. The memorial has been erected in Rother Street, a broad open space near the center of the town, where several thoroughfares converge, and where the annual statute fairs or “mops” take place. The structure is handsome and imposing, and is built of Peterhead granite (for the fountain) and of hard freestone (for the clock tower). The base of the tower is square, with projecting buttresses at the four corners, terminating in acutely pointed gablets, surmounted by a lion bearing the arms of Great Britain alternately with the American eagle and the stars and stripes. Appropriate inscriptions are engraved on the four sides of the memorial. The tower terminates in a spire, beneath and surrounding which are smaller spires and turrets. The whole height of the structure is fifty feet. The architect is Mr. Jethro A. Cossins, of Birmingham. The ceremony of inaugurating the fountain was performed on Monday, October 17, by Mr. Henry Irving, in the presence of the Mayor (Sir Arthur Hodgson, K.C.M.G.), the corporation, and a distinguished company of visitors. Sympathetic letters were read from Mr. J. Russell Lowell and Mr. Whittier; and speeches were delivered by Mr. Irving, by Mr. Phelps, the American Minister, Mr. Walter, of the Times, Sir Theodore Martin, and others.—London Graphic.
Many architects look upon all refinements of line and curve as so much waste time, and would as soon think of referring to the original Latin of Vitruvius for rules in proportioning their rooms as to consult and apply the corrections of the Parthenon to their buildings. In sketching out his design to a small scale on a sheet of Whatman’s drawing paper, the architect does so without any further thought than to produce a convenient plan or a well grouped elevation. Any infinitesimal correction to the straight line or entasis would be inappreciable to the naked eye on the surface of paper the inequalities of which would render it worthless; nor does he take much trouble in the proportions of his rooms, so long as they look right and fit well. If such refinements are to be made, they should be shown in large drawings, or set out to the full size on the works by proper rules and other instruments. The task is laborious and troublesome, and contract prices are little in sympathy with such niceties of adjustment. Even of the more practicable mode of adopting certain ratios and proportions, the architect does not avail himself very much.
We do not say that every horizontal beam—such as an entablature supported by columns at intervals—ought to be “corrected” by the application of a parabolic curve, or that every string course and cornice should be arranged to curve or bend upward; but we contend that these refinements ought to be made in interiors wherever the lines are long, and contrasting lines and surfaces occur in juxtaposition; that they are, in truth, applying precisely the same principle of correction as the colorist or decorator would apply when he takes care to juxtapose two colors or shades which shall be complementary to or harmonize with each other.
It is painful to witness in modern buildings a perfect ignoring of these principles of design. We go into a public hall or concert room, and take our seat. The flat coffered ceiling appears to be literally bending or falling upon our heads. To make the impression still more apparent, the architect has introduced a circular or flatly curved arch over the orchestral recess. If the ceiling is a flat curve, as it often is, the trusses are, perhaps, brought down below and incased, their lower edges being made perfectly horizontal, the two lines serving to increase the difference between them; in other words, to make the trusses look as if they were deflecting.
Mr. Pennethorne, some years ago, showed that the masses of the temples of Athens and Rome were designed on perspective principles—that is to say, the masses and many of the details were designed as they were intended to be viewed. The point of sight was always before the architect—that is to say, he studied the effect of his entablatures, abaci, and other masses of details from points of view that were likely to be frequented. It is well known that the various sections through the Doric capitals, the mouldings, and other parts of Athenian buildings, were composed of different arcs of the conic sections. Mr. Pennethorne says that the Greek entablature is perspectively proportioned and arranged to suit the given points of sight thus: The apparent height of entablature is measured in seconds upon the arc of a great circle. “Then, dividing this whole apparent height into some given number of aliquot parts, measured also in seconds, the apparent height of the architrave, of the frieze, and cornice will, in each case, be a multiple of this given modulus. Again, by dividing the first modulus into a given number of apparent aliquot parts, a second modulus is obtained, by which the apparent heights of all the details of the cornice of architrave and frieze will be regulated, and the true lineal heights are then all determined by trigonometrical calculations.” In short, all the visible heights of features are, upon this principle, regulated from a given point, the real elevational height of each part being afterward found.
This system of proportion would probably entail too much labor upon the architect to work out with any accuracy, and may be looked upon as chimerical. But we see instances every day of positive ignorance of these principles, especially in the designing of mouldings, projecting features, and towers. If the architect is too impatient to make nice corrections in the manner we have pointed out, he ought at least to take the trouble necessary to regulate his heights and masses before inking in his elevations. Sketching in perspective is a valuable auxiliary in designing roughly the masses of a building; but some more accurate method is required in perspectively setting out the heights of stories, entablatures, parapets, towers, and other features. This can only be done by adjusting all heights from a given point of sight, or upon the arc of a circle described from the said point. An elevation is misleading, as every architect knows who has suffered disappointment after the building is finished. It only gives vertical heights, which may be very much curtailed or foreshortened in the actual view of the building from the opposite side of the street, for example.
Many towers and spires have been spoiled by designing them in elevation instead of at the angle. In broach spires we find a want of care in one particular above the others. The broach is designed on the level. The hips of the broach are made to look gentle in elevation, but when raised above the eye 60 or 100 feet, they become so depressed as to give a very ungraceful and abrupt springing to the spire.
We may instance the want of entasis to spires and columns. Every one who has a critical sense of vision must have observed the apparent weakness there is in a spire that has perfectly straight sides, when compared with one which has been entasised, and the same with all columns. Here also the method to insure the correction can be easily applied. The more important of these refinements are capable of being made at the initial stage of design, without recourse to decimals of two or three removes from the decimal point, or to mathematical calculations.—Abstract from the Building News.
In 1882 several piles, coated with various patent anti‐teredo coverings, were driven in the harbor of San Francisco for the purpose of testing them. Recently Engineer Manson began pulling up the piles in order to see the result of the experiments. A pile coated with Pearce’s compound, composed of paraffine, limestone, kaolin, etc., was found to be completely honeycombed by the teredos. The eucalyptus and cedar piles were also nearly destroyed. In 1884 the two piles incased by A. W. Von Schmidt in sewer pipe and cement, the twenty‐three coated by Frank Shay with asphalt and wire cloth, the ten of McKeon & Co., coated with warm cement containing a poisonous substance, and those of W. H. Hayes, coated with Portland cement, etc., were examined by Colonel Mendel and Mr. Manson. All showed signs of having proved failures. The insect is ahead of the inventors up to date.
The tower which is being erected by the Russians on the highest point of the Mount of Olives is already several stories high, but one more is to be added. The object is to make it so high that both the Mediterranean and the Dead Sea may be seen from the top. A number of bells will be placed in the tower. In digging the foundation, several Christian graves were found, together with an inscription in Greek, in which the word “Stephanus” could yet be deciphered.
ESTABLISHED 1845.
Munn & Co., Editors and Proprietors,
No. 361 BROADWAY, NEW YORK.
O. D. MUNN.A. E. BEACH.
NEW YORK, DECEMBER, 1887.
THE
SCIENTIFIC AMERICAN,
ARCHITECTS AND BUILDERS EDITION.
$2.50 a Year, Single Copies, 25 cents.
This is a Special Edition of The Scientific American, issued monthly. Each number contains about forty large quarto pages, forming, practically, a large and splendid Magazine of Architecture, richly adorned with elegant plates in colors and with fine engravings; illustrating the most interesting examples of modern Architectural Construction and allied subjects.
A special feature is the presentation in each number of a variety of the latest and best plans for private residences, city and country, including those of very moderate cost as well as the more expensive. Drawings in perspective and in color are given, together with full Plans, Specifications, Costs, Bills of Estimate, and Sheets of Details.
No other building paper contains so many plans, details, and specifications regularly presented as the Scientific American. Hundreds of dwellings have already been erected on the various plans we have issued, and many others are in process of construction.
All who contemplate building or improving homes, of erecting structures of any kind, have before them in this work an almost endless series of the latest and best examples from which to make selections, thus saving time and money.
Many other subjects, including Sewerage, Piping, Lighting, Warming, Ventilating, Decorating, Laying Out of Grounds, etc., are illustrated. An extensive Compendium of Manufacturers’ Announcements is also given, in which the most reliable and approved Building Materials, Goods, Machines, Tools, and Appliances are described and illustrated, with addresses of the makers, etc.
The fullness, richness, cheapness, and convenience of this work have won for it the Largest Circulation of any Architectural publication in the world.
An Increase of Trade will necessarily accrue to all Manufacturers and Dealers whose establishments are conspicuously represented in this important edition of The Scientific American. Terms for advertising very moderate. A card of rates sent on application.
Bound Volumes.—Two volumes are published annually. Volumes 1, 2, 3, and 4, which include all the numbers of this work from commencement to close of 1887, may now be obtained at this office or from Booksellers and Newsdealers. Price, bound in paper, $1.50 per volume. These volumes contain all the colored plates, sheets of details, specifications, and all the other interesting matter pertaining to the work. They are of great permanent value. Forwarded to any address.
MUNN & CO., Publishers,
361 Broadway, New York.
For additional information concerning any of the plans or buildings illustrated in these pages, address Munn & Co., as above.
Customers who pay money to subscription agents or brokers do so at their own risk. Care should be taken to deal only with known, responsible, and reliable parties. We send no papers until we receive the subscription price; and no person is authorized to represent us, act for us, or receipt for us.
Munn & Co., Publishers, 361 Broadway, New York.
| (Illustrated articles are marked with an asterisk.) | |
|---|---|
| Arch construction | 131 |
| Architectural era | 129 |
| Architecture, optical refinements in | 119 |
| Ash, white | 125 |
| Bamboo tree | 123 |
| Bathing establishment and casino in Vittel (Vosges)* | 134 |
| Beams, iron, in place of wood | 133 |
| Board, sounding, in St. Paul’s Cathedral | 142 |
| Books for architects, builders, etc | xiii |
| Bricks, fire | 126 |
| Building, a great | 140 |
| Cement, Portland | 126 |
| Charleston, S. C., building in | 139 |
| Chateau at Castelnaudary* | 130 |
| Chimes for churches, new form of* | 132 |
| Chimes, tube | 132 |
| Chimneys, removal of | 132 |
| Church, unsafe | 126 |
| College for women, the John Crouse memorial* | 139 |
| Compounds, pile protecting, testing | 119 |
| Correction, a | 120 |
| Cottage, a French* | 122 |
| Cottage for $4,200* | 136, 140 |
| Cottage, sketch for a* | 135 |
| Drain pipes and wells | 130 |
| Dwelling, a $4,200* | 138 |
| Dwelling of moderate cost* | 120 |
| Dwellings at Glenridge* | 126 |
| Engine, Charter gas and gasoline | 142 |
| Fever, typhoid, carried by well water | 126 |
| Fireproof structures* | 124 |
| Fireside, cheerful, how to make* | 142 |
| Flues, chimney, construction of | 124 |
| Forestry problem, our | 122 |
| Foundations in wet ground | 142 |
| Furnace, hot air, the “Fortune”* | 142 |
| Gangways vs. staircases | 133 |
| Grown, how we have | 135 |
| Heater, Wainwright* | 142 |
| Hemlock | 127 |
| Home, Florence Nightingale’s* | 132 |
| Homes of factory operatives* | 133 |
| House, $2,500 California* | 128 |
| Ice house, how to build | 130 |
| Ink, marking, blue | 129 |
| Keystones, ornamental* | 125 |
| Library, curious | 138 |
| Memorial, Shakespeare, at Stratford‐upon‐Avon* | 119 |
| Mortar, sugar | 122 |
| Nails | 130 |
| Notes and queries | vi, x |
| Painting | 132 |
| Pavements, cedar | 127 |
| Pine woods | 134 |
| Planer, improved double surface* | 142 |
| Plants for room decoration | 141 |
| Plate, roofing, a large contract for | 120 |
| Plumbing, not defective | 142 |
| Protection, fire | 140 |
| Rabbit remedy | 130 |
| Readers and patrons, to our | 120 |
| Residence, a suburban* | 121 |
| Residence for $5,000* | 137, 140 |
| Residence for $8,000* | 123 |
| Roburite—a new explosive* | 133 |
| Roofing plate, contract for, large | 120 |
| Rooms, proportions of | 140 |
| Saw, band, hand and foot power* | 142 |
| Sawdust | 125 |
| Stable costing $5,500* | 140 |
| Statue, marble, how made | 139 |
| Suggestion, a good | 135 |
| Temple, Egyptian | 124 |
| Tower on the Mount of Olives | 119 |
| Trees, roadside, in Belgium | 124 |
| Victory, tower of | 135 |
| Walls of burning buildings, collapse of | 127 |
| Walter, Thomas Ustick | 134 |
| Yard, back, the | 134 |
The present number closes our fourth volume and brings us to the end of another year. Many subscriptions now terminate, and we ask our patrons to be prompt in sending their renewals, thus avoiding the loss of any numbers. The terms are only $2.50 a year.
Considering the wealth of illustration, the variety and value of information presented, this work is by far the cheapest of anything in the same line.
To builders, and those contemplating the erection of dwellings or other structures, our paper has proved to be of great value.
With every number, during the past two years, we have given plates in colors of many new buildings, with specifications, accompanied by extra special sheets of details. In most cases these have been so complete as to enable the builder and contractor to proceed at once with the construction; and on the plans thus presented, thousands of new buildings have been erected in all parts of the country. In almost every town in the land attractive dwellings are now to be seen, which, on inquiry, will be found to have been built from Scientific American plans.
No architectural publication in the world presents to its patrons so many practical specifications and drawings without cost, except the merely nominal subscription rate of $2.50 a year. It is hardly necessary to remind the builder that he would be obliged to pay several hundred dollars if the same number of plans were to be specially prepared for him.
In addition to the colored plates, details, and specifications, we have furnished a large number of other new architectural illustrations and many pages of valuable information. In all, the past year’s volumes include about one thousand engravings.
We remind our readers of these items with the hope they will mention them to their friends, and, if possible to secure a new subscription, to send it in with the renewal of their own.
Our aim is to improve and enlarge the sphere of work, rendering it more and more valuable. To this end we need the support and encouragement of as many subscribers as possible. If each one of our friends will do a little for us in this direction, all the parties concerned will derive benefit.
If any of readers have inquiries to be answered, or suggestions to make, relating to subjects or features they would like to see treated in our paper, we shall, at all times, be pleased to hear from them.
Architects and builders who desire to see their plans reproduced in our pages are also invited to communicate with the editor.
In our November number an error was made in the estimate given for the $2,500 house illustrated in our colored plate. The cost should have been stated at $3,400. In some way the bill for mason work and painting was omitted. These additions and other modifications bring the cost up to the above sum.
One of our colored plates this month represents a suburban dwelling built of dark trap rock, trimmed with buff brick, and roofed with ornamental stamped iron plates. It is now being constructed in New Jersey, by days’ work, at a cost of about $9,250. The following is an abstract from the
Excavating.—Excavation under the entire house to a depth of about 4′.
Cellar Walls.—Cellar walls built of good sized trap rock. All necessary bluestone sills, cellar steps, and copings, fine tooled brownstone steps for stoops, also fine tooled brownstone sills for the doors and windows above cellar.
Walls.—All stone walls above cellar are medium sized trap rock and well selected, pointed with black mortar.
Brick Trimmings.—Buff brick used for trimmings, as shown on the plans, laid in mortar same color as brick.
Chimneys.—Chimneys built of trap rock and buff brick, and topped out as shown on the plans.
Fireplaces.—Fireplaces built where shown, of white fire brick, and the hearths laid in tile.
Stone Steps.—Stone steps from main entrance to ground.
Porch Floor.—Porch floor is cemented with Portland cement.
Cementing.—The entire cellar bottom is cemented 3” thick with concrete and Portland cement.
Plastering.—The entire first and second stories are plastered three‐coat work, hard finished. Cornices in principal part of first story and second story hall. Center pieces in rooms to correspond.
Timber.—Timber all well seasoned spruce. Floor timbers, 2″ × 10″, 12″ on centers. Studding, 3″ × 4″. Main rafters, 2″ × 8″, 24″ on center.
Cornice.—The cornice is formed of wood heavily moulded.
Roof.—The rafters are covered with hemlock boards, then covered with ornamental iron plates laid on tar felt. Valleys and gutters, XX tin. Leaders, galvanized iron. The ridge is ornamental iron work.
Floors.—The floors throughout are double. The upper floors are narrow white pine, except hall and kitchen. The hall is narrow oak, the kitchen narrow white maple, the bath rooms are white maple. The main hall is paneled wainscot, 4′ high. Kitchen and bath rooms wainscoted with narrow beaded strips of maple. The trimmings throughout, except main hall, will be selected white pine. Hall to be of white oak. Doors to be six paneled. Main stairs and balustrade to be white oak. Others stairs white pine, with Georgia pine treads. Inside blinds throughout. Plain bronze hardware on principal part of first story. Jet and bronze for balance.
Painting.—The wood and iron work on the outside will be painted three coats. The inside will be wood filled and have two coats of hard oil.
Plumbing.—The apparatus for plumbing work located as shown on the plans. To be piped and arranged for water pressure.
Range.—The kitchen to have an approved low down range, fitted in fireplace.
Heater.—There will be placed in the cellar a No. 14 combination steam and hot air heater.
| ESTIMATE OF COST. | |
|---|---|
| Mason work, complete | $4,400 |
| Carpenter and roof work | 3,400 |
| Painting | 200 |
| Plumbing, gas pipes, etc. | 650 |
| Steam heating | 600 |
| $9,250 | |
The interesting picture of the Western Tennessee Hospital for the Insane, at Bolivar, in that State, which will be found in our advertising pages, will command the attention of humanitarians and administrators everywhere. Such buildings, devoted to such purposes, are not frequently to be met with. The announcement made in connection therewith, that the Alderly brand of square Terne plate was selected by the commissioners for the roof, gutters, and valleys of the structure, requiring over 1,000 boxes of roofing plate, presents, in a forcible way, the claims of that article. It is manufactured and sold by Messrs. Gummey, Spering, Ingram & Co., of Philadelphia, Pa., and Liverpool, England.
This cottage is built in Plymouth Park, Buzzard’s Bay, near Wareham, Mass., one of the most charming locations on the New England coast. From the veranda a beautiful view is obtained of the bay and coast. The cottage is erected on one of the knolls (which is one of the features of the park), and has for a background a grove of pine and oak trees. The shingles are treated with “Cabot’s creosote stains” of the following colors: On roofs, a steel gray, and on sides, sienna. The clapboards are painted a light olive green and trimmed with bronze green and Indian red. The studs of hall, dining room, and parlor are exposed, and together with underboarding and beams overhead are planed and sand‐papered, and all woodwork is given two coats of shellac of light finish. The second floor is plastered (sand finish). The contract price for cottage was $2,800 complete. The architect is Chas. E. Miller, 149 Broadway, N. Y.
The contractor is to give his personal superintendence to the work, and to furnish all transportation, labor, materials, apparatus, scaffolding, and utensils needful for performing the work in the best workmanlike manner, according to the true intent and meaning of the drawings and these specifications, which are intended to be co‐operative, and when anything is shown on plans and not mentioned in specification, or vice versa, the same is to be furnished as though it were both shown and specified. This specification and the drawings annexed are intended to include everything requisite to the proper and entire finishing of carpenter’s, mason’s, and plumber’s work, and the same shall be furnished, notwithstanding every item necessarily involved in the above words is not particularly mentioned.
All work when finished is to be delivered up in an undamaged state, without exception, except where otherwise specified, all materials to be of their respective kinds, and all labor to be done in the best workmanlike manner, to the full satisfaction of owner. Should the contractor introduce, at any time, materials different from the sort and quality herein specified, the same shall be removed and made good at the contractor’s expense.
The contractor will be held responsible for all portions of the work let to him.
The contractor shall make no alterations of the drawings or specification, but should any error or inconsistency appear in these, it shall be the duty of the contractor121 to duly notify architect, who will make proper adjustment. The contractor is to give to the proper authorities all requisite notices of the work in his charge, obtain official permits and licenses for temporary obstructions and pay all proper fees for the same, and to be solely answerable for all damage to neighboring premises or to the person or property of the public by himself or his men or through any operatives under his charge, whether in contract or extra work. Contractor is to protect his work from frost until building is finished, and is to cart away all rubbish and leave the whole broom clean. All drawings, etc., are to be returned to the architect, and are not to be used for any other building.
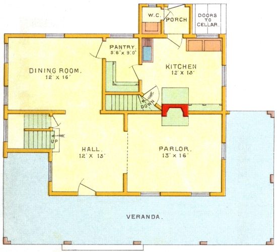
Scantling.—Sills over piers 6″ × 8″, sills that rest on stone wall 4″ × 6″, all to be halved and pinned at angles. Plates 4″ × 4″, posts 4″ × 6″, girts 4″ × 4″, braces 2″ × 4″, studding 2″ × 4″. The studding of hall, parlor, and dining room to be planed and chamfered.
Partition caps 2″ × 4″ to be planed in the above rooms. Soles 2″ × 4″ as well. First floor beams 2″ × 8″, 16″ on centers. Second floor 2″ × 8″, 16″ on centers, and to be dressed when exposed in above rooms. Attic beams 2″ × 8″, 16″ on centers. All beams under partitions to be doubled and spiked. Trimmers ditto.
Main Roof.—Rafters 2″ × 8″, 2′ on centers. Valley rafters 3″ × 10″.
Veranda.—Girders 4″ × 8″, floor beams 2″ × 6″, 2′ on centers. Rafters 2″ × 6″ (dressed). Posts constructed of studs. Hemlock boards and shingles. Veranda roof timber will be exposed and dressed, floor to be merchantable yellow pine, free from large loose knots, shakes, or sap. Balcony floors to be covered with heavy canvas and slushed over with metallic paint, to be graded away from wall of house.
Framing.—The house to be framed and braced in a perfect and substantial manner, and to be perfectly plumb and true. All beams to be spiked together where practicable, so as to form tie across building. All framing of beams to be with tenon and tusk. Roofs strongly framed and cross bridges, first and third tier of beams. Gutters on roof to be hung of galvanized iron. Veranda to be built in and lined with Merchant & Company’s roofing tin (or plates). There will be three 4″ galvanized iron leaders for main roof, and one in front for veranda. (See plans.)
Gables.—Construct gables as shown.
Roofing.—Cover all roofs with sawed pine shingles 6″ × 18″, three shingles to the lap. On main roofs these to be nailed on shingle laths; on veranda roofs, on spruce boards, underside dressed (as specified). Flashing of Merchant & Company’s old method roofing plates. Flash around chimney, valleys, and junction of roofs with walls of house.
Walls.—The walls of hall, dining room, and parlor to be covered with good ⅞″ pine boards dressed on exposed side; all other underboarding to be of hemlock of even thickness. Over this cover walls with felt paper, and then on first story cover paper with clear pine clapboards 5″ to weather. Above felt cover paper with 6″× 16″ sawed pine shingles not more than 6″ to weather. Between partitions of hall, dining room, and parlor fit ⅞″ pine boards, dressed on both sides, with ¼ round mould to keep panel in place; the sheathing on other sides of room dressed on one side; boards not more than 5″ wide.
Bases.—Form base as shown of 1½″ thick pine.
Casings.—1¼″ thick and 2″ wide.
Furring.—Fur out the walls of stairs to cellar (corner boards to be 4″ wide, 1¼″ thick; put on angle beads where necessary).
Outside Step.—⅞″ thick riser, 1¼″ thick tread.
Flooring.—First and second floors to be made of good T. and G. yellow pine in rooms over hall, parlor, and dining room; to be dressed on both sides; third floor spruce; all to be not more than 5″ wide.
Partitions.—Set the partitions between hall, parlor, dining room, pantry, kitchen, and cellar stairs with 2″ × 4″ spruce, studs dressed and chamfered. (Note.—This is to be done so as to make a uniform appearance in hall, dining room, and parlor.) Studs of all other partitions of hemlock. Construct woodwork between piers, as shown.
Interior Stock.—All the stock for inside finish to be best quality, well seasoned, smoothed, and sand‐papered, and, unless otherwise specified, of white pine. Hardwood saddles for all hearths and door openings.
Architraves.—All doors and windows to have ⅞″ × 5″ plain architrave with moulding and bead on ends. No splicing allowed.
Doors.—Front door to be 2″ thick, of design shown (cherry). All other doors to have 1⅝″ thick four paneled stock door (local manufacture), and, unless otherwise shown, to be 2′ 6″ × 7′ 6″. The openings from hall to parlor and dining room to be: hall and parlor, 7′ × 7′ 6″; hall and dining room, 6′ × 7′ 6″. Bases 6″ high, moulded (in bed rooms, closets, and pantries).
Door Frames.—All door frames to have 1⅛″ thick jamb, with stops nailed on.
Window Frames.—All windows, unless otherwise shown, to have box frames with pockets; sills to have sub‐sill, upper sill, plowed, etc., and given proper pitch.
Sashes.—All sashes to be 1⅝″ thick, with lights as shown, and to have moulded sash bars. All sliding sashes to be double hung, the best steel axle pulleys, hemp sash cords, and iron weights. Cellar windows to have plank frame hinged at top. Casements to be hinged and have spring catches.
Bath Room.—Sheathe up sides of bath tub, riser of water closet and basin, with clear white pine ⅝″ thick; wainscoating of bath room of same stuff 4′ 6″ high with neat mould on top. Make a batten door under basin with catch, etc. Door in riser of and in top of water closet and bath to be black walnut put on with brass screws.
Closets.—Fit up closets, except as otherwise specified, with one shelf, and cleat under for books. Bed room in attic to be furred as shown.
Dressers.—Fit up dresser in kitchen of clear white pine, glass doors at top and drawers and cupboards under; dressers in pantry to be the same.
Blinds.—Provide and hang to all windows of first and second floors 1¼″ outside blinds of two folds properly hinged, and having rolling slats.
Base Knobs.—To all doors, and to have rubber tips.
Hardware.—Butts.—All doors to be properly hung with japanned butts of requisite sizes. Locks.—The front door to be supplied with brass faced mortise, patent reversible front door knob lock with night work, with two keys to each combination, and brass striking plate. All other doors (except closets) to have 4″ mortised locks, brass face and brass striking plate. Closets to have rim locks. All locks to have brass keys. Knobs.—The front door to have a plain 2½″ round bronze knob, with bronze rose and drop escutcheon to match. All other knobs to be (black) terra cotta with bronze iron mounting, etc. Bell pulls.—The bell pull to front door to be bronze, to match front door hardware. Bolts.—The rear door to kitchen to have two barrel bolts; door to cellar one, doors to bulkhead to have brass padlock with staples, etc. Drawer pulls.—Drawers to have bronzed iron drawer pulls. Sash fasts.—All double hung windows on first floor to have Morris patent self‐locking sash fasts, to be of bronzed iron. Put on patent fasts to all casements, windows. Hooks.—Put heavy, triple hooks of japanned cast iron to all closets, 8″ apart. Screws.—All hinges, etc., to be securely put in place with steel screws of proper size. Bell hanging.—Put in a large gong for front door, properly connect with wire, etc.
Stairs.—Main stairs to have an open string moulded and nosing to return on ends and carried around well. Risers ⅞″ thick, tread 1½″ thick: tread and risers housed into wall string and treads plowed into risers; risers plowed into the underside of the tread. The outer string to be 1″ thick, and beaded on lower edge. All to be of clear pine. The stairs to have cherry newel, 5″ × 5″, turned. Cherry rail, 2″ × 3″. Balusters, 3 on each tread, 1⅛ × 1⅛; all to be solidly put together and wedged. Cellar stairs to have 1½″ thick strings, sawed to receive 1¼ treads; all of spruce. Attic stairs to have 1¼″ strings, plowed to receive risers and treads; all of spruce.
All shingles of walls and roof to be stained with Cabot’s best creosote stains, of colors selected by architect. The clapboards to receive two coats of best white lead and linseed oil finish, in colors as directed.
Hardwood.—The newel, rail, and balusters to be filled with three coats of hard oil, rubbed to a dead finish. The studs and beams overhead in dining room, parlor, and hall to have two coats of shellac (or Wheeler’s hard finish). All other woodwork the same.
Glazing.—All glass to be double thick American, of number of lights shown; all to be well puttied and tacked, thoroughly cleaned, and left whole and perfect. All small lights to have cathedral glass, selected.
Excavation.—Excavate for all cellar wall piers, etc., as shown. Dump the earth where directed, and leave the premises clear after building is finished. Piers 3′ below surface.
Cement, Lime, and Sand.—All lime used in the mason’s work to be extra No. 1 Rockland lime. Cement, best quality Rosendale of approved brand. Sand to be clean and sharp, and all to be used in proper proportions.
Foundations.—Furnish all materials and build walls, unless otherwise shown, 1′ 6″ thick of stone laid in lime and cement mortar in equal portions, and clean, sharp sand in proper proportion; the whole to be well bonded and trowel jointed inside and out.
Hearths.—Hearths to be of Portland cement, with lampblack to give color.
Bluestone.—Chimney cap to be of bluestone in one piece, holes for flues cut in. Cellar stairs as shown.
Brickwork.—Brickwork of chimney to be selected, on exposed places jointed in red mortar, all to be hard, well burned brick. Build in register flue in kitchen breast where directed and 6″ C. I. thimble where shown. Build in breast of chimney on second floor 5″ C. I. thimble, 2′ 6″ from floor.
Trimmer Arches.—Turn trimmer arches over all fireplace openings.
Laths.—Laths to be best seasoned pine, free from all imperfections, laid ⅜″ apart and breaking joint.
Plaster.—Plaster will be two coat work, the second to be white sand finish, well floated. The first coat to be best Rockland lime and clean sharp sand, well mixed with long cattle or goat hair, to be thoroughly worked and stacked, all to be well troweled and made perfectly true. Patch up and repair all plastering at completion of building.
Lead Pipes.—The lead pipes through to be AA lead pipe. The waste pipes to be heavy; all joints between lead pipes to be heavily wiped, and joints between lead and iron pipes to be made with brass ferrules wiped into lead pipe and calked into iron pipe with molten lead and oakum.
Iron Pipes.—Iron pipes to be heavy C. I. soil pipe, free from all imperfections, and of uniform thickness; thoroughly coated inside and out with coal tar. All joints to be calked tight with molten lead and oakum.
Drain Pipe.—From point marked on plans run a four inch C. I. pipe to roof, making all proper branches for water closets, baths, basins, tubs, sinks, and at roof to be capped with Smith’s patent ventilating cap. At foot of this place a 4″ running trap, with hole for cleaning out, and an inlet to run out under servants’ water closet. All branches to be Y branches, 4″ for water closet, and 2″ for basins, sink, etc. Plumber to make connections with street pipe.
Lead Supply Pipe.—Run from point marked on plans a ¾″ lead pipe. Place at the beginning of this a rough round way lever handle, stop and waste cock. Connect with main supply. From the ¾ lead pipe make all proper connections for water closets, tubs, baths, and sink with ⅝″ pipe, all to be graded so as to empty at stock cock. In kitchen, over sink, put two cocks (lever handle), so as to control supply of hot and cold water to second floor, the same to empty in the sink.
Boiler.—Furnish and set where shown in kitchen a heavy 30 gallon galvanized iron boiler with stand complete. The boiler to be supplied with water through a branch of ⅝″ lead pipe, and connect with water tank of range with a ⅝″ extra strong lead pipe, the other part of boiler to be fitted up with ⅝″ strong lead pipe with ⅝″ sediment cock, and the required length of light lead pipe to empty into sink trap (boiler to have a safety attachment). Furnish and put on to supply to boiler in the most convenient place a ⅝″ finished lever handled stop cock to control supply to boiler. From head of boiler run lines of ⅝″ lead pipe to supply sink and tubs in kitchen, basin, and bath tub on second floor.
Sink.—Furnish and set up (and of size shown) a plain C. I. sink with slate back. To be set on C. I. legs, to be supplied with hot and cold water through ⅝″ lead pipe, drawn through ⅝″ compression bibb cocks, one hose, the other plain, wasted through heavy lead S trap calked into iron pipe as specified.
Tubs.—Furnish and set up tubs of size shown, supplied and wasted the same as sink, but to have brass plugs and safety chains. Tubs of wood well dovetailed.
Wash Basin.—Furnish and fit up (of size shown) in bath room a 1¼″ thick Italian marble slab, counter‐sunk and moulded on edges, backs 10″ high, the slab to be fitted with a 12″ marble pattern basin (overflow) well fitted to slab, with brass clamps, etc. The basin to be supplied with hot and cold water through silver plated compression basin bibb cocks (⅝), wasted through 2″ lead pipe and S trap, silver plated basin plug and safety chain.
Bath.—Furnish and fit up bath of size shown, 14 ounce copper tinned and planished, tub to be supplied with hot and cold water through ⅝″ lead pipe, and drawn through ⅝″ bath silver plated compression cocks. Wasted through 2″ lead S trap. Silver plated plug and safety chain.
Note.—All lead S traps to have brass trap screws for cleaning.
Water Closet.—Water closet in bath to be a Demarest or Manhattan patent long oval flushing rim earthenware hopper, automatic seat, all complete, with waste preventing cistern, to be copper lined; supply through ⅝″ lead pipe connected to main supply; to have heavy last lead trap, properly connected with soil pipe. Connect from cistern to hopper with 1¼″ light lead pipe so as to get good flush. The water closet for servants to be enameled iron hopper with cistern, etc., as above.
It is said that the ova of tapeworms are frequently deposited in the wrinkles of a lettuce leaf and near the mid rib of a cabbage leaf, and so it behooves those wishing uncooked leaves of any kind to have them carefully washed.
We publish herewith the plans for a house designed by M. A. Fatalot and erected by M. Valette, architect. It is built on the side of the terrace (Rue Babie), on the green hills which overlook the Seine.
The construction is very simple. The architect was, in fact, asked to use the strictest economy. The first floor, built over a cellar, consists simply of a vestibule, A, which opens into a dining room, C, a bed room, D, a kitchen, B, the water closets, E, and the stairway. The latter is constructed of wood and leads to the second story, which serves as both studio and drawing room. This room is lighted by the large window shown in our perspective view. The walls of the building are of stone—stone from Meudon, nicely colored—and Bourgogne bricks of different shades form the design of the frieze. The basement is of dressed stone; the pediments of the gables and the cornice are covered with a plaster of sand and mortar colored in imitation of stone. The tops of the pediments are decorated with Parvillee faience. The perron is of Bagneux stone and the mullions and supports of Euville stone.
| The following is a detailed list of the expenses: | |
|---|---|
| Masonry | $1,480 |
| Carpenter work | 265 |
| Plumbing, etc. | 166 |
| Joiner’s work | 462 |
| Locksmith’s work | 315 |
| Heater, etc. | 74 |
| Painting and glazing | 92 |
| $2,854 | |
| Salaries | 200 |
| $3,054 | |
According to latest estimates, we consume yearly, with our present population of sixty millions, not less than twenty billion cubic feet of wood. The amount is made up, in round figures, in the following manner:
2,500,000,000 feet for lumber market and wood manufactures;
360,000,000 feet for railroad construction;
250,000,000 feet for charcoal;
500,000,000 feet for fence material, etc.;
17,500,000,000 feet for fuel.
To this it will be safe to add, for wasteful practices and for the destruction by yearly conflagrations, at the least, twenty‐five per cent.
The average yearly growth of wood per acre in the well stocked and well cared for forests of Germany has been computed at fifty cubic feet. Applying this figure to our present requirements, we should have an area of not less than five hundred million acres in well stocked forest to give us a continual supply of all kinds for our present needs. Now, a careful canvass made four years ago developed the result that the existing forest area in the United States, excluding Alaska and Indian Territory, comprised almost five hundred million acres (489,280,000); but it is well known to everybody who is acquainted with our forests that they cannot compare in yield with the average European Continental forests under systematic management. Much of what is reported as forest is useless brush land or open woods, and depreciated in its capacity for wood production by annual fires, by which the physical structure of the leaf mould is destroyed, and thus, too, its capacity for storing the needful moisture, reducing wood production, and killing all young growth.
Without care, without management, and left to the kind but uneconomical work of nature, interfered with, in addition, by rude and ignorant action of man, it is doubtful whether, on the existing area, one half the amount of wood is produced yearly which we now require. We have, therefore; beyond doubt, reached—if not passed—the time when increased drain means squandering of capital, and when regard to husbanding, to careful management, to recuperation of our forests, and planting of new forests is required for the purpose of merely furnishing raw material; and it should not be forgotten that to reproduce the quick growing white pine of an acceptable quality and sufficient size requires not less than eighty to one hundred years, and for the long leaved pine two hundred years; that, altogether, wood crops are slow crops; that nothing of size can be grown under a quarter of a century at the best.
That this is a business requiring intelligent national consideration is apparent. Not less so if we appreciate the magnitude of the values resulting from it. The total value of forest products in the census year was placed at $700,000,000, or ten times the value of the gold and silver production, five times the value of all coal and mineral production, and exceeding every one of the agricultural crops, corn and wheat not excepted; and representing in value about thirty per cent. of the total agricultural production.
Of injuries wrought locally by the reckless clearing of hill sides and of deterioration of the soil due to inconsiderate action of man, I could entertain you by the hour. The country is full of examples. Any one who wishes to study the effect of such denuding of hill sides upon the soil, the water flow, and agricultural conditions, need not go to France, Spain, Italy, Greece, or Palestine. The Adirondack Mountains are within easier reach, where the thin cover of earth exposed to the washing rains is carried into the rivers, leaving behind a bare, forbidding rock and desolation, while at Albany the Hudson River is being made unnavigable by the debris and soil carried down the river. The government has spent more than ten million dollars, I believe, and spends every year a goodly sum, to open out a passage over the sand bar thus formed.
Go to the eastern Rocky Mountains, or to Southern California, and you can gain an insight into the significance of regulated water supply for the agriculture below, and also learn how imprudently we have acted and are acting upon the knowledge of this significance by allowing the destruction of mountain forests in the most reckless and unprofitable manner. Along the shores of Lake Michigan, and along the sea coast, we are creating shifting sands by the removal of the forest cover, to make work for the ingenuity of our children in devising methods for fixing these sands again. The vegetable mould with which the kind forest had covered the alluvial sands of the southern coast plain we are taking pains to burn off in order to replace it with expensive artificial fertilizers.
That the great flood of the Ohio, which cost the country more than twenty million dollars, was entirely due to deforestation, I will not assert; but it must have been considerably aggravated by the accumulation of minor local floods, due to the well known reckless clearing of the hill sides, which sent their waters down into the river in torrents. At the season when the winter snows are melting, watch the newspapers, and you will find an almost daily mention of the disastrous ravages of brooks and streams, many of which injuries could have been prevented by avoiding the creation of their distant and indirect cause. Thus we may multiply examples all over the country, showing harmful local influences upon agricultural conditions due to forest devastation.
That the vast stretches of land in the Northwest, from which the white pine has been cut and burned off, present the aspect of a desolation which sickens the heart, you may hear from every one who has seen these deserts unnecessarily wrought by man. Every traveler in this country, be it to the White Mountains, to the Adirondacks, along the Alleghany Mountains, be it through the Rockies or the redwoods of California, cannot but be startled by the desolate, sad aspect of many of these once beautifully clad mountain crests.
And we are a nation hardly a hundred years old, with over thirty acres per capita to spread ourselves upon. What will become of us when we must live upon five acres per head? We are far enough advanced in our recklessness of disregarding the indirect significance of forest areas to have learned a lesson at home, and to feel the necessity of being more careful in the utilization of the forest, so as not to lose its protection for our agricultural and general interests.
The means for its solution I may only briefly indicate. They are education, example, encouragement, legislation. Some of these are of slow effect. Others can be made to give results at once. Let the United States government, which still holds some seventy million acres of the people’s land in forests, mostly on the Western mountains, where its preservation is most urgently needed—let the government set aside these otherwise valueless lands, and manage them as a national forest domain, and then the first effective step, a feasible and not a forcible one, is made. Let the military reservations on the Western treeless plains, which are still in the hands of the general government, be planted to forests and managed as such. This would be no doubtful experiment, would interfere with nobody, would enhance the value of the surrounding country—and education, example, and encouragement are provided, as far as it is in the legitimate province of the general government. And such example, instead of costing anything to the country, can be made self‐sustaining—nay, productive—and would add appreciably to the people’s wealth.—B. E. Fernow.
Mortar containing sugar has been employed in building the new Natural History Museum in Berlin, and has proved far superior to common mortar. It sets almost with the firmness of a good cement, while mortar made with molasses became soft and brittle after a time. In Madras a mortar is used with which either sugar, butter or buttermilk, shellac and eggs are mixed. It holds well and takes a marble‐like polish.
The perspective and plans herewith presented are from the designs of Mr. S. W. Whittemore, architect, East Orange, N J. The general dimensions are: Front, 36 feet, exclusive of bay windows; side, 51 feet, exclusive of piazza and laundry. Height of stories: Cellar, 7 feet; first story, 10 feet; second story, 9 feet 6 in.; attic, 8 feet.
Materials.—Foundation, stone; first and second stories, clapboards; roof, shingles.
Cost.—$8,000.
Fireplaces are provided in the dining room, library, parlor, and hall. The attic is finished throughout. Cellar under the whole house except laundry.
Writing from China, a correspondent says that the Chinese have developed the culture of the bamboo tree very wonderfully. They can produce a perfectly black as well as a yellow bamboo. The Emperor of China has one officer whose duty is to look after his bamboo gardens. This valuable tree is found in all tropical and sub‐tropical regions, both in the eastern and western hemispheres. An attempt has been made in England, and with some success, to raise a dwarf species found at an altitude of 12,000 feet in the Himalaya mountains. The new world furnishes bamboo of the greatest diameter. The stems are usually very slender, but in the northwestern part of South America is found one species with a diameter of 16 inches. The Chinese put this plant to a greater variety of uses than any other people. Some kinds of it when it first shoots up from the ground are used as a vegetable as we use 124asparagus, or it can be pickled in vinegar or made into delicious sweetmeats. The plant has to be 30 years old to blossom, and then it bears a great profusion of seeds and dyes. These seeds may be used like rice, and a kind of beer may be made from them. In 1812 severe famine in portions of China was prevented by the sudden blossoming of a great number of bamboo trees. The stems of all the varieties are remarkably silicious. One kind found in Java is so hard that it strikes fire when the hatchet is applied to it. This has only a very slender stem, which is polished and used as stems for tobacco pipes. This Protean tree furnishes material for houses, boats, cordage, sails of boats, telescopes, aqueduct pipes, water‐proof thatching, clothing, water wheels, fences, chairs, tables, book cases, boxes, hats, umbrellas, shields, spears, and paper. The pith is used for lamp wicks, so there is no part of it that cannot be used for something. From some of it exquisite carvings inlaid with gold and silver are cut, that exceed in beauty the ivory carvings for which the Chinese are so famed. Recently it has been put to another use. Mr. Edison has found that the carbonized fibers of the bamboo furnish the best material for the incandescent electric lamp, and has made use of it in his system of lighting. In Burmah and Siam whole cities are built from bamboo. These houses are made in pieces, lashed together, and raised on posts several feet high.—The Lumber World.
An article recently published by us apropos of the Opera Comique catastrophe has brought us several interesting communications, and, among them, one from Mr. Hennebique, one of the designers of the 948 foot Belgian tower. Mr. Hennebique has established the fact that structures in which iron is used in the flooring do not arrest the ravages of fire, but fall even more quickly than those in which wood is employed.
In fact, the beams that support the ceiling joists, flooring, and laths, naturally combustible materials, are raised to a high temperature, and, becoming red hot, bend under their own weight, and at the same time shove the walls outwardly.
The flooring of Mr. Hennebique’s invention, which is composed of a cement made of coal ashes, plaster rubbish, and hydraulic lime, is refractory enough to resist the heat developed by combustion.
As may be seen from the figure, this flooring consists of tubular girders resting upon very simple metallic anchorages. These girders are of the composition above described, and thus constitute a sort of monolith upon which any sort of a floor can be laid—terra cotta, marble, wood, etc.
Aside from its being nearly completely incombustible, this sort of flooring presents a great advantage, from an economical standpoint, in consequence of the rational utilization of the materials employed. It is unnecessary to say that the metal is perfectly protected against oxidation.
Another advantage of this flooring is that it almost entirely prevents the propagation of sound.
HENNEBIQUE’S FIREPROOF FLOORING.
As may be readily seen, this mode of construction is applicable to different uses and to every possible sort of decoration, such as cornices, compartment ceilings, girders of various styles, as well as pillars, pilasters, columns, and supports of every shape and every resistance.—Chronique Industrielle.
In a letter to the Insurance World Mr. Thomas Boyd, architect, of Pittsburg, Pa., gives the following practical information:
I have had considerable experience in examining buildings burned by fire, having been associated with my father for eleven years, and during that time have examined hundreds of buildings destroyed by fire. I have traced more fires to the cause of defective flues than to any other source, and I could refer you to buildings, not only in this city but in others, where fires have occurred from this cause, and the insurance men and the public in general stated that the fire occurred from “unknown causes,” as it was first seen many feet away from the flues.
In seventy‐five cases in one hundred where fires occur from “unknown causes,” it can be traced to defective brickwork. Ordinarily, an architect specifies that the brickwork shall be well slushed, and that the flues shall be well pargeted or plastered on the inside. This is a great error, as no flues should be plastered on the inside, and no walls having flues in them should be slushed, as the term is generally understood.
The flues should in all cases be built smooth on the inside, and all the joints should be filled full of mortar, the vertical joints as well as the bed joints. The lining of the flue or the four inches surrounding the flue should always be kept in advance of the brickwork, and the brick adjoining the lining and the second and third brick, and so on, should be shoved in soft mortar up against each other. This will fill all the vertical joints from bottom to top as laid. The slushing that is ordinarily put in from the top only goes down into the joint about ½ inch, thus leaving an opening the entire length of the wall, and in some cases an opening which a mouse could crawl through. As it is only a question of time when all the plastering that can be put on the inside of a flue will fall off, it will leave these vertical joints between the bricks open into the flue, and as the joists cross through these joints in the brickwork, fire is liable to take place ten or twenty feet away from the flue. I have taken down many old buildings in which these joints were filled with carbon or soot.
If the flues are built as above described, any competent builder or architect can find out whether the mechanics doing the work are slighting it or not; but if the inside of the flue is plastered or lined with terra cotta or any other material, you cannot tell whether the wall is properly built or not until this plastering falls off, which it will in the course of a few years. Thus all buildings erected with plastered flues are liable to burn at any time.
I have made a practice for a number of years of building flues without lining them, and then when the house is built, or as each story is erected, I put a dense smoke in the flue and close the opening at the top. If there is a hole the size of an ordinary pin head, the smoke will find it and penetrate into the interior of the wall adjoining the flue.
The roadside planting of trees is carried out on a most extensive scale in Belgium, forming a marked feature in the landscape of that country. According to the report of M. J. Houba, State Head Bailiff or Ranger of Woods and Rivers in Belgium, recently published in the Revue Horticole, the total length of the highroads of Belgium in 1881 amounted to 4,227 miles, classified, as regards tree planting, in the following manner:
| Miles. | |
|---|---|
| Roads already planted | 2,417 |
| „ still to be planted | 264 |
| „ which cannot be planted | 1,546 |
| 4,227 |
From this it will appear that, at the date mentioned, more than half the entire length of the Belgian highroads had been planted, and that the proportion would soon reach two‐thirds.
The number of trees used in forming these plantations amounted to 871,685, representing in 1881 a money value of £415,986, the average cost of each tree when planted having been about 2s. 6d. The plantations had therefore at this date increased in value to nearly four times the amount of the capital originally expended upon them.
The trees principally employed in these roadside plantations (already made) are: Elms, 371,621; oaks, 130,828; poplars, 80,853; ash, 73,893; beech, 32,970; maples, 27,755; service trees, 24,630; Norway spruce, 43,767; larch, 41,699. It will be seen from this list that coniferous trees are largely used in Belgium for roadside planting. On the other hand, the report only gives 897 plane trees, 976 acacias, and 672 cherry trees, apple trees, and pear trees, showing that while the Belgian authorities fully recognize the great utility of these roadside plantations in other respects, they especially aim at the production of timber of good quality in a commercial point of view.—The Garden.
An Egyptian temple appears to have been one of the most imposing assemblages of buildings that can be well conceived. Avenues lined with hundreds of sphinxes on each side led the worshiper to the sacred precinct for the distance of thousands of feet, and thus the mind, even when remote from the vicinity of the temple, received an impression calculated to excite veneration. This avenue was terminated by a stupendous mass of pyramidal form, above 200 feet wide and about 80 feet high, whose enormous proportion was naught diminished by the vastness of the plain in which it stands, nor by contrast with the mountains that overhung it. In the center of this propyleum is a door, flanked in advance by an obelisk on each side, about 90 feet high, and beside which are figures of colossal dimensions, 45 feet high, sitting as guardians of the sacred portal. The effect of the whole is gigantic, and calculated to impress the coming worshiper with the fullest notions of his insignificance in the scale of material nature. The triumphal gateway being passed, a magnificent court meets the eyes of the beholder, having on each side a colonnade. And this court led to a densely columned hall or vestibule, under the shades of which the crowds of Egypt’s sons and daughters reposed to recover from the exhaustion and fatigue caused by their journey under a burning sun to the fane of their creature god. And here the mind also dwelt awhile on the first impressions produced by the contemplation of the overpowering majesty of the gorgeous mass. For the huge propylea, which inclosed either end of the court, and the hall, with its forest of clustered columns, which the eye could not number, and the playful variety and copiousness of channeled hieroglyphics which left not a space uncovered, and the brilliancy of the pigment which gave an endless variety to the shafts and capitals of the columns, to the beams, the walls and ceilings, bewildered the attention, and left not a moment of repose to the wondering stranger. A lofty central avenue of columns, above 60 feet high, forming, as it were, a triumphal way, leads under a third portal, of dimensions by no means inferior to the others just mentioned, and marked with what care and with what sanctity the priests guarded every approach to the inner parts of the temple. But this gateway passed, and a scene the most sublime burst upon the view. An ample peristyle much larger than the one already passed, presented itself to the eye, probably planted with trees, crowded with metaphoric statues.
On either hand a double avenue of columns, less for convenience than dignity of effect. In the center uprose the portico of the mass of building, that formed the temple itself—the columns in dimension more lofty, in decoration more rich, in proportion more graceful than those of the courts. The dynasties that had ruled over the country up to the period of the erection of this temple have their histories graven on the walls and on the columns. The same pyramidal form gives an appearance of endless durability to the mass, which is surmounted by an immense hollowed cavetto having the center occupied by the sculptured form of the agatho demon, or winged globe and serpents, with outstretched wings extending over the center intercolumniation of the facade, and seemingly a being of another world. Admitted beneath this porch, the minds of the worshipers are prepared for the gloomy inner penetralia, where every object was mysterious and emblematic. Numerous doorways closed by curtains succeeded each other, and led from vestibule to vestibule, which hindered the eye from penetrating with sacrilegious gaze into the inmost sanctuary, all access to it being forbidden to the multitude.
To these vestibules the light of day was denied, and the mind was subdued by the gloom of the spot, for the attention was absorbed by the contemplation of the sacred mysteries of the place and by the effects produced on the attention by the huge incongruous figures of granite—monstrous reflections of the gloomy minds of the religious inhabitants of the sacred precinct, who sought to deify matter and the animal instincts.—T. L. Donaldson.
“About twenty years ago, Prof. J. L. Budd, of Ames, Iowa, advised keeping the seeds of the ash through the winter in kegs or boxes, mixed with clean moist sand, taking care that they become neither too wet nor too dry. Freezing will do no harm. The ground should be marked and prepared as for corn, and planting at the intersections, placing four to six seeds in the hill. They should be carefully cultivated, and the next spring thinned to one plant in each hill, the vacancies being supplied. By planting thus thickly, the young trees get a straight growth. At the end of six years every alternate row north and south should be thinned out, and at the end of ten years every alternate tree in each row. When twelve years old, on good soil and proper culture the first four years the grove would have 12,000 trees on ten acres, averaging eight inches in diameter. By cutting the stumps close to the ground, and covering with a light furrow on each side, a second growth is obtained in eight or ten years, more valuable than the first.”
Prof. C. S. Sargent, in speaking of this timber, says: “To develop its best qualities, the white ash should be planted in a cool, deep, moist, but well drained soil, where it will make a rapid growth. That the plantation may be profitable as early as possible, the young trees should be inserted in rows three feet apart, the plants being two feet apart in the rows. This would give 7,260 plants to the acre, which should be gradually thinned until 108 trees are left standing, twenty feet apart each way. The first thinning, which might be made at the end of ten years, would give 4,000 hoop poles, which at present price would be worth $400.
“The remaining thinnings, made at different periods up to 25 or 30 years, would produce some three thousand trees more, worth at least three times as much as the first thinnings. Such cutting would pay all the expenses of planting, the care of plantation, and the interest on the capital invested, and would leave the land covered with trees capable of being turned into money at a moment’s notice, or whose value would increase for a hundred years, making no mean inheritance for the descendants of a Massachusetts farmer. The planting of the white ash as a shade and roadside tree is especially recommended, and for that purpose it ranks, among our native trees, next to the sugar maple.”
Prof. B. G. Northrop says in reference to this tree: “One of the most valuable of our native trees is the white ash, and, all things considered, it is one of the most profitable for planting. Combining lightness, strength, toughness, elasticity, and beauty of grain in a rare degree, it is in great and growing demand for farming tools, furniture, interior finishing of houses and railroad cars, the construction of carriages, for oars and pulley blocks, and many other purposes. The excellence of our ash is one secret of the preference given abroad to American agricultural implements. It is hardy, will bear the bleakest exposure, is a rapid grower and attains large size, but will not thrive on poor lands. It is every way superior to the European ash, much as that has been cultivated and lauded abroad. It is now found widely in the nurseries and young plantations attached to the forest schools of Europe. Director General Adolfo di Beranger, president of the Royal Instituto Forestale, at Vallombrosa, pointed me to his plantations of Fraxinus Americana with a tone which implied that is the tree of which Americans may well be proud.
“The ash is a fine ornamental tree for private grounds, public parks, or for the wayside. When planted closely for timber they grow straight and free from low laterals, and early reach a size that makes the thinnings valuable for poles and fencing.
“The seeds of the white ash are abundant, ripening by the first of October. They may be easily gathered after the first frost. If sown in the fall, they should be covered with three inches of straw. If to be sown in the spring, the seed may be mixed with damp sand.”
Sawdust has been a source of worry and expense to mill men in various ways, though it is to be admitted that in utilizing it to some extent as fuel they have in part solved the problem of its economical disposition. Lately, there has sprung up a certain demand for it, and the problem of its cheap shipment is now one that presents itself. A Yankee inventor has tried baling it, and appears to have devised a scheme that accomplishes the purpose successfully. He makes the sawdust into bales, and has progressed so far as to be able to compress thirty‐two cubic feet, or a quarter of a cord, into a package three feet long by two feet on each of its sides. As this occupies only twelve cubic feet, the reduction is sixty‐two and one‐half per cent. of its original bulk. The machine used is nothing more than an ordinary hydraulic press, which is arranged in a manner similar to a hay or cotton press. The sawdust is pressed into bales and at the same time inclosed in a burlap covering, making a neat and easily handled package for shipment. Small pieces of wood, shavings, etc., may be baled with the sawdust or separately with equal facility. It appears a simple method of putting this bulky stuff in convenient shape for shipment, and it would seem might be employed to advantage wherever a market can be found for this species of mill refuse.—The Timberman.
ORNAMENTAL KEYSTONES.
We illustrate a few of the tasteful residences which have been erected at Glenridge, N. J., a charming suburb of New York City, situate on the line of the Delaware and Lackawanna Railway. Glenridge is 14 miles from New York, and the time required for the trip, including the ferry across the Hudson River at New York, is about 40 minutes. The dwellings we have chosen for illustration have been recently erected. They vary in cost from $4,000 to $6,500 or more. We can supply on application such further information as readers may desire.
Mr. W. Y. Dent, in a Cantor lecture at the Society of Arts, London, on building materials, gave an account of some of the chemical problems involved in the constituency of fire clay and fire bricks.
The plastic clays consist of silica and alumina chemically combined with water. They are hydrated silicates of alumina, the plasticity depending upon the water that enters into their composition. The water with which the clay is chemically combined can be expelled at a temperature a little above that of boiling, without detriment to its plasticity, but the whole of the water contained cannot be driven off without raising the temperature to dull redness. Silica, alumina, and lime are separately very infusible substances, and are capable of resisting exposure to very high temperatures without softening. It is on account of its extreme infusibility that lime is found to be the most suitable material for the cylinders upon which the oxyhydrogen flame is made to impinge to produce a brilliant light, the intensity of the light being due to the extremely high temperature to which the lime is raised. Lime, however, from its want of cohesion, could never be brought into general use for such purposes as fire clay is employed, and this is also the case as regards silica, which requires the addition of some substance of a basic character, with which it will unite, and so cause the particles to bind together. The nearest approach to the use of silica alone as a fire brick is in the case of the Welsh brick, made from the Dinas rock in the Vale of Neath.
This material, before being made into fire bricks, had long been used for repairing the furnaces at the copper works of South Wales, for which purpose its peculiar property of expanding when subjected to the influence of a high temperature, instead of contracting, as in the case of some other fire clays, renders it particularly suitable, the cementation of the bricks being facilitated by the increase of temperature. This Dinas rock occurs in various conditions, from that of a firm rock to that of disintegrated sand, and a mixture of about 1 per cent. of lime is, therefore, necessary in order to make it into bricks. Dinas bricks will stand very high temperatures, but are more friable than ordinary fire bricks, and will not resist to the same extent the action of basic substances, such as furnace slags, containing much oxide of iron. They are, besides, porous and readily absorb moisture, rendering it necessary for furnaces built of them to be gradually heated, as they are liable to crack if sufficient time is not allowed for driving off the moisture. The composition of the clay used for fire bricks is a question of great importance, inasmuch as its quality depends greatly upon its chemical constituents, although its power of resisting fusion, when exposed to intense heat, is effected by its mechanical condition.
The same materials, when mixed together in the form of a coarse powder, will require a higher temperature to fuse them than would be the case if they were reduced to a fine state of division. The qualities required in fire bricks are that they should bear exposure to intense heat for a long time without fusion, that they should be capable of being subjected to sudden changes of temperature without injury, and that they should be able to resist the action of melted copper or iron slag. The Dinas brick, which contains 98 per cent. of silica, will bear exposure to a higher temperature than most others, but it will run down sooner when in contact with melted iron slag. Ganister is the name given to a fine grit which occurs under certain coal beds in Yorkshire, Derby, and South Wales, and the black ganister from the neighborhood of Sheffield is especially adapted for lining cupola furnaces, owing to its capacity to stand high temperatures without shrinking, in consequence of the large quantity of silica it contains.
Fire bricks made of silicious clays from granitic deposits in various parts of Devonshire also contain a large proportion of silica, but their powers of supporting exposure to high temperatures are materially increased by the coarseness of the particles of disintegrated granite of which they are composed. The material employed for the Dinas bricks, as well as the others mentioned, differs considerably in its character from what is ordinarily understood by the term fire clay, as used in the manufacture of the celebrated fire bricks of Blaydon Burn, Stourbridge, or Glenboig; the quality of which, as regards their chemical composition, depends upon the relative portions of silica and alumina, and their freedom from iron oxide and alkaline salts, the presence of which tends to render the clay more fusible.
Clay is taken as dug from the pit, without being dried, and mixed with the usual proportion of lime, a portion of which is used as limestone, the remainder as freshly burnt lime. The burnt lime is first added in such proportion that the water in the clay exactly suffices to slake it, and the heat given out effects the necessary drying. The limestone is then added and the mixture ground in a mill to the usual degree of fineness, made into bricks, calcined, and the “clinker” reduced to a fine state of division as usual.
The following account of the transmittal of cases of typhoid fever by well water is sent us by Dr. Henry B. Baker, secretary of the Michigan State Board of Health. It is made to him by Dr. H. McColl, of Lapeer, Mich.
Dr. McColl reports: About September 1, 1887, Myron Gardner, railroad employe, came from the South sick with fever to his father’s house. He was supposed to be malarial. No care was exercised with stools in the way of disinfection, but they were thrown into privy vault in rear of house, and in close proximity to well. Wash water was thrown on the surface of the ground, which was very dry at the time. About September 7 or 8, a copious rain fell and soaked the sandy soil; and on September 14, Wm. Gardner and wife, father and mother of Myron, and E. D. Gardner, a brother (who was a student in my office), and who boarded at home, were attacked with fever. On this day I got home from Washington, and found four of them down with a severe type of typhoid fever; and in two weeks Myron’s wife and child were attacked; also a child across the street at Terry’s, who had used water from the Gardner well; about the same time three cases in the Clifford house, south of Gardner’s, who also used water from the Gardner well. None of the people from either of these houses were in the Gardner house. In the Walker house, still further south, one case has occurred, and I was at a loss to account for this case till a few days ago, when the young man said that at the mill where he was working they had used the Gardner water for a few days, owing to the disarrangement of the pump at the mill. Two others of the mill hands—Anderson and Lester—who used the same water were attacked about the same time. Lester is now convalescent. Anderson is dead, as also the child at Terry’s. When I took charge of the cases, I ordered the discontinuance of water from the Gardner well and the disinfection of the stools, and no new cases are now reported. People who assisted to take care of the Gardner and other families, and who use water from other sources, have not been attacked. Clearly, Myron Gardner brought the fever home, the well became infected after the first rain from slops and privy, and the other cases got their seed from the water.
Dr. Baker adds: The foregoing instructive account of the way typhoid fever was spread, in one instance, is produced in the hope that it may lead others to trace the spread of this important disease, and, what is of greater importance, act intelligently for the prevention and restriction of the disease, as Dr. McColl did in this instance.—Sanitary News.
About a month ago, Inspector of Buildings Griffin discovered that the wall on the southern side of the Warren Avenue Baptist Church, Boston, Mass., was bulging. He climbed to the roof, and was astonished to find that the scissors truss that supported the pitch of the roof was not bolted together, but was fastened only with railroad spikes.
The wall was out of plumb fully nine inches. A peremptory order was issued to vacate the church. Then a more careful examination was made, with startling results.
The truss was laid bare, and then it was discovered that the sole support for the roof of the great building consisted of three iron rods one and one half inches in diameter.
The cross rods were of no use, because the wood had shrunk away and the bolts could be rattled. The upper and lower chords of the truss were made of eight two‐inch planks, and where the cross rods had been put through and clinched the auger had cut off one plank and part of another, weakening the truss by one‐eighth.
The lower chord of the truss was cut completely through in two places. It is said that it will cost nearly $200,000 to repair the church, which is one of the largest in the city.
It would not be a bad idea for the trustees of other churches to have the trusses carefully examined.
To pave a city with cedar would seem to be a luxury, but it appears that in the city of Chicago, out of 277.71 miles of paved streets, there are 213.35 miles of cedar blocks, of which nearly forty miles was laid last year, and the Chicago Tribune says it is the cheapest pavement laid in the city. Dead cedar brought from the vicinity of Green Bay, Wis., was first used, but it was found that it did not wear well, and live timber is now required. The cedar is a tree which does not taper rapidly, and one of good size should furnish a stick 30 ft. long. The logs are brought here by boats in lengths of about 6 ft., with the bark still on, peeled, and cut into blocks 5 in. long. The blocks range in diameter from 3 in. to 9 in., and cost 50 to 60 cents a yard, measurement being made after they are laid. The process of paving a street with cedar blocks is much the same as was used with the Nicholson pavement. A sand foundation is first provided, and on this are laid boards which serve as stringers. On the stringers planks are placed parallel with the curb, and the cedar blocks are stood on end on the planks. The interstices between the blocks are filled with gravel and coal tar.
For the last three years block pavement has cost in Chicago from $1.00 to $1.30 a yard. The life of cedar block pavement is three to seven years, and it is an excellent pavement when first laid. It is believed by many to be detrimental to health from the fact that it absorbs all liquids falling upon it, gives them back in the shape of vapor under the influence of the sun, and is itself constantly decaying. It is stated as a curious fact that this pavement wears out faster on streets where traffic is light than where it is heavy. Cedar blocks are used for paving all through the West, but more freely probably in Chicago than in any other city in the world. They are cheap, and that is a great point in their favor.
Respecting the merits of hemlock, the Minneapolis Lumberman has a good word in its last issue. It quotes from a correspondent at Williamsport, Pa., regarding the experience with the wood there as a foundation for paving blocks; and in regard to a stretch of Nicholson pavement there which had been down sixteen years, goes on to say:
“The blocks had been placed on two thicknesses of one inch hemlock, the boards coated both sides with coal tar. When the pavement was taken up, the boards were found to be in good condition—so perfectly sound that they were put back again for possibly another sixteen years. The correspondent says that out of a mile of sixty foot street, less than 10,000 feet of the old planking was condemned. There seems to be no question as to the superlative merit of hemlock for paving purposes.”
This is valuable testimony, and better evidence of the lasting qualities of hemlock under paving blocks than any Western experience has produced, for the reason that it has nowhere in the West been so long as that in use. It has been recognized, however, as a wood excellently suited to this purpose, and is employed almost exclusively wherever the cedar block pavement is freely used, which includes a good many of the large cities in the United States, and practically all Western towns in which any paving is done. It is apparent that lumbermen are beginning to take a strong interest in hemlock, and evidences of its growth in favor are becoming rather plentiful. It occasionally gets a setback from some local dealer, who has come off second best in an encounter with its slivers, but it is bound to come more and more in use in spite of the strong objection that is made to it by some users. Its light weight and great strength for many building purposes are factors that tell.—Timberman.
Mr. Alex. Black, writing to the Building News, says: The expansion of brick by fire heat may be estimated at rather above half that of wrought iron; and of mortar at about one‐fourth more than that of wrought iron. The mortar joints in the wall may occupy, say, one‐fifth to one‐sixth of the height of the wall. There is no accurate data as to the maximum heat developed at Whiteley’s fire. It, however, depends on the nature of the contents, etc., consumed and the accumulation of draught currents. If there is free lime, etc., in brick or mortar, there is added to the expansion more or less disintegration, which would become not the least potent cause of collapse.
We may assume that the interior surface of the brickwork exposed to the fire expanded, say, 1 in. in 8 ft. or 10 ft., vertically and horizontally, which would produce a distortion by buckling, or curving inward, dish‐like, of the inside half thickness of the wall, both vertically and horizontally, leaving for a time the outside half thickness (say, for convenience of description) not much disturbed; in the meanwhile, air gets in between these inside and outside half thicknesses, or slices, and it may become gradually expanded by heat and help to force them further apart until the whole wall collapses.
In setting iron girders, the usual practice appears to be to build the ends solidly in the wall to act as a tie; but by having cross flanges at ends the wall may be built close to these on inside toward interior of building, and space left for expansion on their outside; but this space is of no use without the ends of the girders are set upon rollers or rockers, as is done for bridge girders, because the rigidity of wall would not be sufficient to withstand undisturbed the expansive pushing out, or horizontal thrust, of loaded girder end if resting upon a rough bearing plate or block.
If building timber joists into walls, it is a safe method to bevel off the upper corner equal to the bearing of the end in the wall, which allows the projecting portion of joist, if broken accidentally, to drop down without disturbing the wall, by the leverage which it would exert if built in the wall in the usual way.
California can justly boast of a larger number of pretty places and picturesque localities in which to erect residences of moderate cost than can be found in any other State in the Union. The beautiful town of Alameda, covering, as it does, a large extent of ground, embracing several square miles, may be regarded as a paradise for those who wish a quiet retreat, away from the din and confusion of the city, and yet be in close connection with the great mart. Nearly every portion of the town is covered with a natural growth of oak trees. Nor does this growth stop at this point. For a long distance to the north the ground is covered by the beautiful trees from which the neighboring city of Oakland derives its name.
Extremes meet in architecture as well as other matters. Some æsthetic persons have sought to copy the humble abode of the laborer in the external view of a dwelling, while the internal arrangements and fittings rival those of Aladdin’s palace. Others seek to have the outside present to the eye a conglomeration of whimsical ideas, while they have not deigned to cover the floors with a carpet, nor have a door between any of the rooms or halls, excepting those connecting with the outer world.
Much benefit has been derived from these whimsical erections, and it is only by much study and close application to the fancies of their clients that architects have been enabled to prepare the beautiful bijou plans, a good representation of which is given in this issue. In justice to the architectural profession, we must say that no portion of their practice has been so usefully bestowed as that which has been bestowed upon the production of plans for such homes, a full plan of which accompanies this article.
A CALIFORNIA HOUSE FOR $2,500.
The elevation, as shown, is a model of neatness and economy. At once attractive in appearance and substantial in all its surroundings, it does away with all those horrible idiosyncrasies and bugbears of the Elizabethan and Queen Anne styles. There are no small windows to cause the one who cleans them to utter a whole vocabulary of cuss words at the architect who made so many corners to dig out. There is no part of California but what needs all the sunshine that was intended to enter a room, and the large windows shown allow the heat and light to make glad the hearts of the dwellers therein. Even with the thermometer at 100 degrees and over in the shade at noontime, still, when evening comes, the cool winds that invariably bless the sleep of those who are tired from their daily toil has easy ingress from these same large windows. And in winter, from the absence of snow in all of our beautiful valleys, the same windows are a source of joy and comfort for the occupants to observe the driving rains, or admit the blessed sunshine as it pierces through the wintry clouds.
Great care should be exercised in painting the exterior. The colors selected should be a happy blending of light and dark shades. They should be graded from rich, heavy grades at the bottom to the lighter tones at the gable peaks, preserving, through the intermediate section, a consistent harmony. The roof may be of dark slate color. The trimmings may be colored with a combination of blue, black, and Indian red. The body of the house may be varied to suit the above. It must be distinctly borne in mind that all buildings of the same class cannot be treated alike. Trees have a wonderful effect on colors used, and the main study of the painter and owner should be that the salient points of form and detail be enhanced by the proper selection of the various colors. By all means, if you are building a home for yourself, take the good wife into your confidence, and let her judgment be given on the various colors to be used.
PLAN OF $2,500 CALIFORNIA HOUSE.
SECTION OF DOOR JAMBS AND INSIDE FINISH.
A CALIFORNIA HOUSE FOR $2,500.
ROOF PLAN.
SECTION & ELEVATION OF SIDE PORCH AND RAILING.
The arrangement of the rooms, as shown by the plan, is very desirable for any one with a small family. A feature is made of the entrance way. From the hall, one can pass either to the parlor or dining room, the latter being the general sitting room. The parlor is large—13 × 17 feet in size. It has a fireplace, as shown. A cornice is also designated. Sliding doors connect this room with the dining room, the size of the latter129 being 12 × 17¾ feet. A cornice and fireplace are also shown. In case of company or family gathering, the two rooms will be practically one. The porch shown in front will be very handy for the gentlemen who smoke, or, on warm days the ladies can use the same for sewing purposes, sheltered, as the plans show, by the roof overhead.
You pass from this room into a hall, from which you can enter all the rest of the rooms. The main chamber is 12 feet 6 inches by 16 feet 6 inches, besides a large bay window, having four windows for light and air. There is also a cornice in this room, and a place for a stove to connect with parlor chimney. There is a very large closet, and also wash room, which is well lighted and ventilated. Passing along the hall, we next come to a large linen closet. This will be found very serviceable for the storage of the linen in daily use. Then comes a large chamber, 11 feet 6 inches by 12 feet. No cornice is shown. Should a fire be needed in this room, a patent flue could be placed therein, starting from near the ceiling. A large closet is also connected with this room. At the end of the hall is the bath room, 6 feet 3 inches by 9 feet 6 inches. A wash bowl and water closet are shown. The window, being directly over the tub, assures perfect ventilation.
On opposite side of hall from bath room is a room designated as breakfast room, in size 10 × 11 feet, with two windows. This can be used as a bed room, should the dining room suffice for the needs of the occupants of the house. This room is very convenient, as it can be reached by three different ways. The next room is the kitchen, in size 10 × 13 feet, with plenty of light and ample means of ventilation. The place for the stove pipe is indicated by the dotted lines leading to the dining room chimney. Should it be found more desirable to have the stove in a different position from that indicated, a patent flue can be put in, starting near the ceiling. A large pass closet, amply fitted with drawers and shelves, connects with the dining room. There is also a large pantry fitted up with bins, etc.
A stairway is shown, near breakfast room, leading to the attic. No plan is given of the latter, as the space can be divided according to the individual tastes of the parties building. The rear hall is 3 feet 6 inches wide.
The whole plan is very compact, and will bear careful study. The detail drawings, as shown, will give an adequate idea of the various finishes. Each one is distinctly marked.
We append a general set of specifications to aid those who may see fit to adopt the design. Should any one want a complete set, we can forward them a printed copy.
Excavations.—All rock, dirt, etc., to be cleared away from site of the building. Trenches for walls and piers to be extended down to firm and solid ground. The bank to be dug well away from the walls, and the same to be left open until the walls are well set and dry.
Drains.—To be of ironstone pipe, with cemented joints. The fall to be not less than one‐fourth inch to one foot. No drains to be less than sixteen inches from surface of ground.
Brick Work.—Hard, well burned brick to be used throughout. All brick walls to be made level and straight to the proper and exact height, and to a true line from one end to the other, even to the splitting of a brick where necessary. Piers 12 × 12 inches. Turn trimmer arches for the support of all hearths at the time chimneys are built. All sills to be set in mortar after walls are proper height.
Size of Timbers, etc.—Main sills, 6 × 8 inches; plates, 2 × 4; studs, 2 × 4; underpinning, 4 × 6; joists, 2 × 10; ceiling joists, 2 × 4; rafters, 2 × 4; bridging, 2 × 3 and 2 × 4. Studs and joists spaced 16 inches from center; rafters, 2 feet 8 inches from center; underpinning 2 feet 8 inches from center. All timber below main sills to be of redwood.
Roof to be sheathed with 1 × 6 Oregon pine, well nailed to every rafter. Gutters arranged so as to carry off water wherever directed.
Rustic.—All laps and butt joints to be painted before being nailed in position. Butt joints to have a 3 × 11 inch piece of tin to keep out water.
Outside Steps to be built upon strong stringers, inch risers of redwood, and two inch treads of Oregon pine, with nosing and scotia. The recess to front hall will be floored six inches below main floor, with three inch Oregon pine, put together with white lead.
Floors.—Oregon pine, tongued and grooved, 4 inches wide, to be used throughout the house. One tongue nail and one through nail to be driven in each piece at each nailing.
Grounds to be of ¾ in. Oregon pine at all openings.
No inside finish to be put on until the last coat of plastering is on.
Face casings to be 6 inches wide and 1¼ inches thick, with suitable plinths.
Sash beads to be fastened on with raised head screws.
All interior work to be hand‐smoothed and sand‐papered.
All carved or planted‐on work to be primed before putting up.
Bases in all rooms to be 10 inches wide, with 2 inch moulding.
Wainscoting.—Rear hall, kitchen, and breakfast room to be wainscoted 3 feet high, and capped with nosing and scotia. Bath room, 6 feet high all around.
Pantry and Pass Closet to be fitted up with shelves and hooks complete, and bins and drawers as shown.
Lathing.—Good sound lath to be used, laid on not less than ⅜ of an inch apart. Joints broken over 8 laths. No lath to be put on vertically, to finish out to corners or angles; neither must there be any lath run through angles and behind studding from one room to another. All angles to be formed and nailed solid by carpenter before laths are put on.
Plastering.—All walls, partitions, and ceilings to be plastered one coat of well haired mortar, made of best lime and clean, sharp sand, free from loam and salt, using best cattle hair. To be made at least eight days before using.
Brown coat to be covered with a good coat of best white hard finish. All plastering to extend to the floor. Center pieces where designated on plans.
Painting.—All interior wood work to have three coats of best white lead, in such tints as may be approved by the owner. Kitchen floor to be oiled two coats.
Gas Pipes to be introduced so as to give the number of lights shown on plan.
Plumbing.—Water pipes to be of galvanized iron ¾ inch diameter. No ½ inch pipe to be used. A 40 gallon galvanized iron boiler, with necessary connections, to be placed in the kitchen. Sink to be of size shown by drawing, to have 2 inch iron water pipe and a Garland trap; 3½ inch brass strainer; back of sink to be lined with zinc. Slop hoppers to be placed as shown. Wash basins to be located as per plan, and to have all necessary hot and cold water connections. Water from all basins to discharge into an open slop hopper outside. Bath tub to be lined with No. 12 zinc, to have a 1¼ inch waste, with Garland trap. All necessary fixtures for bath tub to be placed in proper position. The water closet to be Budde’s patent. Place safe trays under all sinks, bath tub, wash basins, water closets, etc., with 2 inch turned‐up edges, well nailed to wood work. Three‐fourths inch wastes. All waste or soil pipes to be connected with the sewer, and extend the same above basins, sinks, bath tub, water closets, etc., out through the roof.
Generally.—Drawings and specifications are intended to correspond, and to be illustrative the one of the other. All drawings to be furnished by the architect. Details to be given from time to time as the work progresses. Should the necessity arise that any change or changes be made from the original design, the owner shall have the right so to do without invalidating the contract, adding to or deducting from the contract price the agreed sum of any change made.
The above specifications are given as a general index of the work. No accurate estimate can be given from them of the cost of the house. Quality and price of hardware, etc., have been omitted, leaving same to the pocket books of intending builders. As shown, with finishes indicated by the details given, the house can be erected at a cost of about $2,500. Of course this figure can be changed considerably. Using the best of materials, etc., the price should be given at $3,000, at which sum a truly cozy home can be obtained by those seeking a permanent dwelling place.—California Architect.
This is the title of a new monthly published at Syracuse, N. Y. It is finely printed, handsomely illustrated, and full of interesting reading matter. It forms a valuable addition to the architectural literature of the day. The elegant style in which it is produced does honor to its enterprising publishers, Messrs. D. Mason & Co. Three dollars a year, twenty‐five cents per number.
Mix a sufficient quantity of ultramarine with barytes (sulphate of barium, blanc fix) and water to produce the desired tint. It may be rendered more permanent by adding some liquid glue (solution of glue in acetic acid) or some starch paste, prepared with the addition of a little wax.—Chem. and Drug.
The internal decoration of the structure represented in the accompanying engravings is due to Mr. Arnaud, an architect at Carcassonne. The front already existed in part, and merely the finishing of it is due to him. As for the parlor and dining room, of which we give an illustration, these two rooms, like the rest, were studied with very artistic care by Mr. Arnaud, and the execution of the work was closely watched.
CHATEAU OF CASTELNAUDARY—FRONT VIEW—M. AUBRY, ARCHITECT.
The chimney that decorates the dining room is of Echaillon stone, and was made at the works of Mr. G. Biron. It is 14 feet in height, and cost, all carved, $1,400. The flooring of the rooms is of oak, of two colors, and was put down by the house of Idrac, of Toulouse, which makes a specialty of old oak inlaid floors. The color of the old oak, introduced into the very substance of the wood, lasts an indefinite length of time. The wainscoting of the dining room and that of the parlor is of walnut, and forms a frame, in the case of the dining room, for old tapestry. In the parlor the panels are covered with large‐figured cretonne.
INTERIOR OF CASTELNAUDARY CHATEAU.
The ceilings are of plaster, with mouldings. To that of the dining room are affixed, by invisible hooks, some old Japanese plates. These produce a very happy effect in the ceiling as a whole, and in nowise injure it. The ceilings are painted in softening tints, the principal of which are red, blue and maroon. The dining room cost, as a whole, $3,600, the old tapestry included. It is 24 × 30 feet, and the parlor is 28 × 37 feet.—La Construction Moderne.
A test has recently been made of the relative value of wire and cut nails, with results quite at variance with generally received opinions. This test, given below, is published in a circular issued to the nail trade by the Wheeling nail manufacturers, and was made by a committee appointed by the Wheeling manufacturers, who give the following result:
| Number of nails in pound. | Pounds required to pull nails out. | |||
|---|---|---|---|---|
| Cut. | Wire. | Cut. | Wire. | |
| 20d | 23 | 35 | 1,593 | 703 |
| 10d | 60 | 86 | 908 | 315 |
| 8d | 90 | 126 | 597 | 227 |
| 6d | 160 | 206 | 383 | 200 |
| 4d | 280 | 316 | 286 | 123 |
This test showed the relative value of a pound of each kind to be as follows:
1 lb. of 20d. cut nails equals 1·40 lb. of wire nails.
1 lb. of 10d. cut nails equals 2·01 lb. of wire nails.
1 lb. of 8d. cut nails equals 1·87 lb. of wire nails.
1 lb. of 6d. cut nails equals 1·49 lb. of wire nails.
1 lb. of 4d. cut nails equals 2·06 lb. of wire nails.
In obtaining the above results, two tests were made of the 8d. cut nail and four of the 8d. wire nail; three tests each were made of the 6d. and 4d. cut nails and 6d. and 4d. wire nails, and the average is shown.
The committee report as a result of their experiments that $1 worth of cut nails will give the same service as $1.78 in wire nails, if at the same price per pound.—Building.
A correspondent of the Revue Horticole states that he has been completely successful in saving both his vines and haricot beans from being totally destroyed by the rabbits which swarm in this district by using a remedy which he terms the “Bouillie bordelaise.” This consists of a mixture of sulphate of copper (bluestone or blue vitriol) and fresh slaked lime, in the proportion of 3¼ lb. of the former to 4½ lb. of quicklime in twenty‐one gallons of water. The bluestone is first dissolved in a bucket of water, the quicklime is then slaked, and when cool it is thrown along with the dissolved bluestone into a barrel or other vessel of sufficient size; water is then added to make up twenty‐one gallons, and the whole is well stirred up. The mixture is conveniently applied with a whitewash brush, and in fine, dry weather only should it be used. The object of the lime in the mixture is to counteract any ill effects that the sulphate of copper or bluestone might have on the vegetable tissues, and also to indicate that no part of the stem or plant which it is intended to protect has been passed over without receiving its proper share of the application.
Under this head the American Architect advises a correspondent as follows:
1. The ice house floor should be above the level of the ground, or, at least, should be sufficiently above some neighboring area to give an outfall for a drain, put in in such a way as to keep the floor clear of standing water.
2. The walls should be hollow. A four inch lining wall, tied to the outer wall with hoop iron, and with a three inch air space, would answer, but it would be better, if the air space is thoroughly drained, to fill it with mineral wool, or some similar substance, to prevent the movement of the air entangled in the fibers, and thus check the transference by convection of heat from the outside to the lining wall.
3. A roof of thick plank will keep out heat far better than one of thin boards with an air space under it.
4. Shingles will be much better for roofing than slate.
5. It is best to ventilate the upper portion of the building. If no ventilation is provided, the confined air under the roof becomes intensely heated in summer, and outlets should be provided at the highest part, with inlets at convenient points, to keep the temperature of the air over the ice at least down to that of the exterior atmosphere.
In reply to inquiries from various correspondents we would say that Messrs. Munn & Co., 361 Broadway, proprietors of this periodical, have an extensive architectural bureau connected with their establishments, and here, with the assistance of an able corps of architects, they prepare, in the best and most prompt manner, designs, plans, specifications, and details for all kinds of buildings, churches, schools, stores, dwellings, etc. Hundreds of buildings in all parts of the country have been erected from their plans. Messrs. Munn & Co. will be pleased to furnish any information desired by readers relative to any buildings illustrated in these pages.
The Rhode Island State board of health has completed its investigation of the epidemic of typhoid fever at Conanicut park hotel, made last summer.
At the opening of the season of 1887 trouble was experienced, but no action was taken. Soon the people in the house began to be ill, and at a time when all the rooms were taken and many more guests were to come and occupy the cottage apartments. From the first symptoms, which were not considered serious, the disease, which proved to be typhoid fever, assumed a violent form, and Dr. Jernigan, on whose advice several patients had come to the island, directed a practical plumber to make a thorough examination of the premises.
The plumber discovered that the pipes leading from the water closets had leaked into the cellar, and that from all appearances the leak had existed from the first of the season. The sewage had run into the well from which the water was drawn for general uses about the hotel. Prior to the discovery of the contamination of the water, its sparkling qualities had been praised by all the guests. The plumber also reported that the ground near the well was saturated with the sewage, and that when disturbed the earth emitted an overpowering and sickening stench. From the cellar the investigation was continued to the well at the north end of the house. It was dug quite recently, and the shaft had been sunk through an old drain leading to a cesspool, and a portion of the drain constituted a section of the well shaft.
The State board of health proposes to ask for an appropriation this winter sufficient to pay for a careful examination of all the hotels in the State, and the inspection and analysis of all waters used for drinking purposes where there is liability of contamination.—Sanitary News.
Messrs. Munn & Co., in connection with the publication of the Scientific American, continue to examine improvements, and to act as Solicitors of Patents for Inventors.
In this line of business they have had forty years’ experience, and have now unequaled facilities for the preparation of Patent Drawings, Specifications, and the prosecution of Applications for Patents in the United States, Canada, and Foreign Countries. Messrs. Munn & Co. also attend to the preparation of Caveats, Copyrights for Books, Labels, Reissues, Assignments, and Reports on Infringement of Patents. All business intrusted to them is done with special care and promptness, on very reasonable terms.
A pamphlet sent free of charge, on application, containing full information about Patents and how to procure them; directions concerning Labels, Copyrights, Designs, Patents, Appeals, Reissues, Infringements, Assignments, Rejected Cases, Hints on the Sale of Patents, etc.
We also send, free of charge, a synopsis of Foreign Patent Laws, showing the cost and method of securing patents in all the principal countries of the world.
MUNN & CO., Solicitors of Patents,
361 Broadway, New York.
BRANCH OFFICE.—622 F Street, Washington, D. C.
Iron construction has so completely superseded masonry for bridge building that it would appear almost unnecessary to discuss the question of the equilibrated arch for any large span. But the mathematical principles of the arch have always been an interesting subject with geometricians and theorists, and the theory, at any rate, ought to form one of the subjects of the architect’s and engineer’s education. As a problem of the equilibrium of forces, the theory of arch construction is instructive, inasmuch as it presents us with a concrete example of three forces balanced in a structure. The other day, at the opening of the engineering section of the Bristol Naturalists’ Society, at University College, Bristol, the president, Mr. Charles Richardson, C.E., read a paper on arch building, in which he advocated the employment of arches of equilibrium for bridges. The author referred to the well known and elegant property of the balanced arch, which is derived from the principle of the catenary or suspended chain or inverted polygon of bars, each bar or link assuming the position (inverted) that the arch stones of an equilibrated arch would have. In Dr. Hutton’s valuable “Tracts on Bridges,” this principle is followed in his elucidation of the arch, and readers of that work will remember the diagrams given of various kinds of balanced arches, and the curves of extrados necessary to insure equilibrium. The theory, indeed, is older than Hutton. Belidor and Dr. Hooke both investigated the form of the extrados from the nature of the curve, and this theory has been made the foundation of a very interesting system of designing arches. According to this theory of the question, the stones are considered free from all friction—a condition which does not hold in practice. Mr. Richardson follows, as far as we can see, this theory. He enunciated the theorem that the weight on any point of the arch is proportional to the vertical line from the road line to the intrados at that point; that the horizontal thrust is the same throughout the arch, and is equal to the weight on the crown per unit of area multiplied by the radius of curvature there; and also that the bed pressure at any point is equal to the horizontal thrust multiplied by the secant of the angle the curve makes with the horizon at that point. This rule is thoroughly mathematical and true for arches of equilibrium; and the author exhibited an instructive model of an arch equilibrated, and showed by inverting it, and suspending a chain weighted by steel rods representing the loads at each point, that the latter coincided with the road line. But the engineer‐architect has to do with arches in which the element of friction enters; the stones are cemented, and therefore the theory, however beautiful, does not hold good in every case. Instead of the separate arch stones or voussoirs, he has to deal with segments of the arch which turn upon certain edges. Thus an arch which fails breaks into four parts, the crown sinks, and the haunches rise, the joints at those points opening. One of the questions to decide is the points at which rupture occurs, that being found to find out what horizontal pressure each of those lower segments have to sustain. From knowing the thrust and its point of action, the stability of the arch will depend on the mass and weight of the pier. The experiments of Rondelet and others have proved that the voussoirs unite into segments of the arch, and tend to overturn the abutment, acting rather as levers than wedges. He found, also, that the greatest thrust was in arches with an even number of voussoirs or a point at the vertex; that a keystone lessened the thrust. Nevertheless, the theory of equilibration should be known by all architects and bridge builders.
In alluding to the materials, the author showed the impossibility of dressing and bedding stones accurately. Practically, the stone built arch is difficult to execute with precision. The facing stones only are cut to the true curve, the backing being filled in with rubble and roughly executed. With brickwork the bricks can be all bedded in cement, being more convenient for handling, and a vitrified brick is equal at least to the best stone in resistance. The brick arch should be built in vertical bond, not in rings. Mr. Richardson finds that, taking the safe load in cement at 5 cwt. upon the square inch, an arch 15 in. thick at the springing and 12⅚ at the crown is sufficient for a span of 85 feet with a rise of ⅛ of the span. He says: “As all loads and thrusts on such an arch are in direct proportion, if each dimension were multiplied by four, we should have a span of 340 feet with a rise of 42 feet and an arch thickness of 5 feet. This 5 feet thickness would give a sufficient margin of safety for the moving load, because 5 feet is only the necessary thickness at the springing, while that at the crown would be 9 in. less. The total weight of this bridge would be 100,000 tons.” Ring‐built arches are advisedly objected to, as the rings tend to separate when any settlement takes place. Mr. Richardson does not rely too much on friction, and he is right. There can be no scientific arch construction that is not based on the principle of equilibrium, the line of thrust being kept within the middle third of the arch thickness; and in designing arches of brick or stone the engineer should always be able by diagram to satisfy himself of this condition. Whenever the line of thrust passes close to the lower edge of the arch ring at the haunches, there must be undue pressure and a tendency to open at the other edge. In other words, the arch is inclined to drop at the crown. When it passes out of the arch, failure must take place sooner or later. Instead of first deciding upon the curve and road line, as is frequently done, the right course is to find the line of thrust for the given span and loading, and then make the arch conform as nearly as possible to this line. We agree with the opinion that brickwork, if correctly applied, would be found to excel iron construction in strength, durability, and economy—certainly in appearance. In the construction of masonry arches, sufficient care is not always bestowed upon the drainage of the arches—a cause, we imagine, of many failures.—Building News.
Gilbert Sheffield, a Warren County, N. Y., lumberman, is one of the men who believes in using his men well, and in doing something to relieve the tedium of life in the woods. He has 35 men employed at Tahawus, in Essex County, and says that for the past two years it has been his practice to furnish them with copies of the prominent newspapers, so that when they left camp they were as well informed regarding current events as when they went in.
A new form of chimes for churches is being introduced in England, which are said to give much satisfaction. They consist of a series of metallic tubes suspended from a beam, as shown in our engraving. They are struck by hammers, are very resonant, loud, and pleasing. A correspondent of the Pall Mall Gazette, speaking of their effect, says: “The music of many tuneful bells, harmonious, ever changing, lending themselves to any simple air, easy of management, and mellowed as the sound of cathedral bells.... Such music I have heard at Coventry.”
The new invention which goes under the name of tube chimes is a musical chime in which metal tubes instead of bells are employed. The tube chimes can be used for any purpose that bells are used for, and besides are an economical substitute for bells. They are remarkable also for a depth and richness of tone which one does not expect to find except in high class cathedral bells. A tube chime for a church belfry is especially suitable. The carrying power is not quite equal to that of bells. A chime was lately set up in the tower of one of the Dorsetshire churches which has pleased all concerned. Rung for the first time on occasion of the harvest festival, it caused both delight and surprise by the sweet and melodious tones it gave out. The invention has not long been brought under public notice, but the demand for household octaves in place of the inharmonious gong is already very large. Mr. Harrington has a taste for music, and the idea of adapting tubes of metal for the musical purposes of bells is no new one. It has taken, though, many years of experiment and study to perfect the principle. One difficulty, which was a great obstacle in the way, may be alluded to. The large chimes are rung by bell ropes, but, contrary to the plan of bells, there is an external hammer instead of the internal clapper. If the hammers were made of sufficient hardness to prevent wear and tear, the chime lost its sweet tones and became harsh. If the hammers were less hard, they would constantly require to be replaced. Fortunately, that difficulty, like many others, has been satisfactorily got over. The chimes can be, it should be noted, tuned to any desired pitch, and Messrs. Harrington & Co. are probably warranted when they say: “The introduction of this invention will, we are assured, mark the commencement of a new era in connection with church bells and carillons, chimes for clocks of all sizes, dinner calls and gongs, and all mechanisms in which musical bells are used or required, and in some of these departments bids fair to work a complete revolution.”—The Architect.
THE NEW TUBE CHIMES.
At the residence of Sir Harry Verney, Claydon House, Buckinghamshire, a deputation from the Working Men’s Club of Whatstandwell, Derbyshire, recently waited on Miss Florence Nightingale, for the purpose of presenting to her an oil painting, by Mr. E. Crosland, of her late home, Lea Hurst, as a token of their esteem, and in recognition of the great interest taken by her in that institution. The deputation, consisting of Mr. F. C. Iveson, Mr. Crosland, the artist, and Mr. W. Peacock, assured Miss Nightingale of the love felt for her by all classes of people at Whatstandwell and in that district, and of their gratitude for her kindness and help in every good work. Miss Nightingale, in thanking them for the present, which she admired very much, expressed her continued great interest in the institution and its members, and assured them of her hopes for its welfare. The deputation were entertained at Claydon House by Sir Harry and Lady Verney. We are permitted to copy the picture of Lea Hurst in our engraving, using a photograph taken by Mr. J. Schmidt, of Belper.
LEA HURST, DERBYSHIRE, THE HOME OF MISS FLORENCE NIGHTINGALE.
Miss Florence Nightingale is a lady whose name has been deservedly honored in England since the Crimean war and has become the symbol of a particular type of personal efforts in the service of afflicted humanity. She was born at Florence, in May, 1820, youngest daughter and coheiress of W. E. Nightingale, Esq., of Lea Hurst, Derbyshire, and Embley Park, Hampshire. She devoted her attention to the working of schools for the poor, juvenile reformatories, and hospitals, inspecting many such institutions on the Continent, and residing, in 1851, with the Protestant Sisters of Mercy at Kaiserswerth, on the Rhine. She next bestowed her care and gifts of her money on the London Governesses’ Sanatorium in Harley street. During the Crimean war, in 1854, when the inefficient state of our military hospitals in the East demanded instant reform, the hospital at Scutari, opposite Constantinople, was established for the relief of sick and wounded British soldiers and prisoners. It was resolved to form a select band of volunteer lady superintendents and female nurses for this and other army hospitals. At the request of the Secretary of State for the War Department, Mr. Sidney Herbert, afterward Lord Herbert of Lea, Miss Nightingale undertook the task of organizing and directing this service, which she performed in a manner universally admired, and which earned her the personal friendship of the Queen, with many public and private expressions of gratitude and esteem. A testimonial fund amounting to $250,000 was subscribed in recognition of her patriotic and benevolent work, and was, at her special desire, applied to create and maintain an institution for the training of nurses. Miss Nightingale’s impaired health, for many years past, has debarred her from active public exertions but she has continued to study the plans and operations of those charitable agencies on which she is a high authority, and has written brief treatises on subjects of much practical importance. Her “Notes on Hospitals,” printed in 1859; “Notes on Nursing,” in 1860; and “Notes on Lying‐in Institutions,” and on the training of midwives and midwifery nurses, in 1871, were of considerable utility. She also wrote, in 1863, valuable observations on the sanitary condition of the army in India, and has furnished to the War Office useful reports and suggestions concerning the army medical department.—Illustrated London News.
In order to use paints and oils economically, a clear understanding of their purpose and action is absolutely necessary. Linseed oil is said to “dry” after being applied. That is only partially true. It rather oxidizes and changes to a tough, gummy substance not unlike hard glue. This action is accelerated by the use of “driers,” as they are called. But in no case does it give the same results as when left to dry of its own free will. The carbonate of lead or mineral which is added to the oil gives the color and assists in making up the body. The life of the paint is the oil, and when it is oxidized, it alone is the binding element. Upon it depends the durability of the paint. A piece of wood dipped in linseed oil and hung up to dry, or oxidize, in the air, will soon become covered with a beautiful translucent film of oxidized oil, which grows harder daily. It will take a high polish and preserve the wood. Another piece dipped in carbonate of lead, or mineral, mixed in turpentine, or any fluid to allow it to spread evenly over the surface, will when dry have a dead or flat color without polish or body to bind it together, and the slightest abrasion will remove portions of it. All painting is done either with pure oils or with the admixture of a fluid like turpentine, which assists in the distribution of the mineral, but does not add to the body. When the surface of wood has been covered with a thick coating of oxidized oil, it can be washed and rubbed to look clean and polished. Boats, when of a light color, are often painted with a mixture containing much turpentine, in order that all marks may be removed with a little beach sand, by rubbing off the mineral, which is not bound together securely by oil, but only loosely by turpentine. Car builders now often paint their cars or varnish them a second time soon after the first, say after about six months’ run. This gives them a good coat of oxidized oil to withstand the weather and preserve the wood. A few coats applied within short intervals produce a fine covering which is very durable and will take a polish after washing.—Master Mechanic.
An interesting scene was caused recently by the blowing up of the two immense chimneys on Borsig’s machine works in Berlin. A large number of spectators were present to witness the ceremony, including several officers of the army, the trustees of the Borsig estates, and the employes of the works. Punctually at five minutes past six P. M., the signal to “Look out!” was given; then came the word of command, “Fire!” and at this moment the vast chimney, towering to a height of say 120 feet 9 inches, quietly collapsed. The noise occasioned by the fall was not very great, ditches two meters in breadth having been dug all round the chimney and filled with straw. For blowing up this colossus, which consisted of 98,000 bricks and was topped with a heavy iron cap weighing twenty‐five centners, only 24 kilos of dynamite were employed. Photographs were taken of the chimney before it fell, and also as it was in the act of falling, by an officer of the Commission for Experimenting with Explosives. The second chimney standing about 80 feet high, was blasted with gun cotton, of which 35 kilos were required.
The institution of the factory system changed the workshop home of the domestic system to the home proper by transferring work to the factory. As a result, the homes of the operatives under the factory system have undergone a great change, and are still undergoing changes, which are making the English significance of the word “home” a reality to the poorest. It is perfectly true that in every large factory town one can find loathsome dwellings occupied by groups of persons called families. In most factory towns, both in America and Europe, it is easy to find dwellings occupied by factory operatives which are a disgrace to the owners and the municipality. Yet, taking the operative population of such towns as a class, they are very comfortably housed, and about as well housed in one country as another. The personal inspection of more than 1,000 homes of factory operatives leads Mr. Carroll D. Wright to this conclusion, he having written a special report on the “Factory System of the United States” for the Census Bureau.
British factory houses being floored with stone, as a rule, present a cold and cheerless look. The dimensions of the British house are much smaller than factory houses in America. The tenements of three rooms have much less space than tenements of three rooms here. This is generally true of all European factory towns. But the houses of the operatives are, as a rule, separate ones, the tenement house being quite unknown except where what is termed the “model workingmen’s houses” are being tried. The boarding house is not an institution for factory operatives.
At Saltaire, near Bradford, the homes of the work‐people are excellent; rents vary from $30 to $100 per year for three to five room houses. The houses are neat, tidy, and prettily furnished. At Queensbury, where John Foster & Son have works, the weavers earn 15 to 18 shillings per week full run, and the rents are 84 cents per week for three rooms. Some of the best houses in England are at Copley village, in Halifax, built by James Akroyd & Sons. They rent three rooms for £10 per year, and the operatives are helped to acquire a freehold. The Crowleys at Halifax employ 5,000 people, who have good houses. The houses at Salford and Manchester are not so good. The factories at Paisley are excellent evidences of the good influence which arises from proper interest in employes. The works of the Messrs. Clark and Messrs. Coates are model establishments and the influence of model works extends to the houses of the people employed, which are here very comfortable. Rents vary from 72 cents to $2 per week, according to number of rooms.
In Glasgow no cellarages can now be found. The operatives have gone to the suburbs, where they have changed their cramped city abodes for clean and light houses. Belfast, Ireland, is improving the dwellings of the linen factory operatives. The houses are tidy, and rents are from 48 to 60 cents per week for four rooms. There are houses with flats in Belfast. In the west and east of Scotland the operatives live very largely in flats; rents in Dundee and Dunfermline being for two rooms from $15 to $30 per year, and for three or four rooms from $30 to $50 per year.
Among the most substantial houses for workingmen will be found those of Herr Krupp, in Essen, Rhenish Prussia. By his system of employment he has the selection of the best mechanics in Europe. This system comprehends all the advantages to be found in model industrial establishments, including excellent tenements and gardens at low rents. A foreman, a gun‐maker, earning $45 per month, receives four rooms, a drying place on the roof, a cellar, and a garden for $45 per year. A workman with wages at 75 cents per day pays $37 per year for three large rooms, drying place, cellar, and garden. There are fair tenements, in two or three story blocks, situated in colonies just outside the towns. For $100 per year, one can obtain a most excellent tenement of seven large rooms, cellar, garden, etc. The houses in the colonies are owned by Herr Krupp. In fact, he believes that he receives better results by owning everything, and by being able thereby to control the sanitary surroundings of the dwellings of his people. These colonies, each having its name, are laid out with park, schools, churches, supply stores, etc. The housing of the single men is on the barrack plan.
It may be stated that the houses in Great Britain and on the Continent are of stone or brick, as the locality may afford, and the neat wood cottage of America cannot be found. It is quite impossible to compare the houses of European factory operatives with those of the same class in America. The great mass of the former are, generally speaking, quite as well housed as the latter, so far as the quality of the house is concerned; but so far as quantity of room and excellence of living are concerned, the advantage is with the operatives of America. When the operative of this country steps out of the boarding or the tenement house, he steps into an individual home the equal of which cannot be found in the factory towns of the Old World.
The cottage of the American factory operative, when he sees fit to occupy one, is superior to the cottage of the workingman of any other country. It is most gratifying to know that the individual homes are not only increasing in number in this country, but they are increasing in influence. In all the leading factory towns this is the course of progress.
The plates we give on this page represent one of the styles of modern cottages built by the Willimantic Linen Co., of Willimantic, Conn. With each cottage is quite a garden of several thousand feet of land. The rent is from $60 to $125 per year. These houses are located in such a way as to exhibit variety of styles; that is, two of like architecture are never placed side by side. The company has a large number of these houses occupied by operators and overseers. The cuts show the front and side elevations, and the plans of the two floors. These are given as a type of the detached workingmen’s homes used in this country.—Min. and Sci. Press.
Mr. A. Lindsay Miller, in the Building News, recommends for theaters and other public buildings the use of gangways instead of stairs.
In public works, especially dye works, they will not use the stairs, but gain access to the several floors by gangways, with a rise of about 5 ft. in 12 ft. or 13 ft. of length, and any one watching the speed and ease with which the workers run from floor to floor would at once understand why staircases are not used. Of course, architecturally, they have not the dignity of the staircase; but, in theaters and music halls, dignity is secondary to security. The advantage of the gangway is easily explained.
In going down a stair, each step, or, in a hurry, each second step, must be taken, and the slightest mistake throws the person down. In a stair 12 ft. long, at least six different steps require to be taken. In the gangway of the same length, a person in a hurry, or in the excitement of a panic, would take it in two bounds, and with perfect safety.
A number of experiments were conducted lately at the works of Messrs. Heenan & Froude, Manchester, with a new explosive, called “roburite,” which is manufactured in Germany, and is about to be introduced into this country for use in blasting operations. The composition and process of manufacture of this explosive are kept secret, but we understand that it consists of two non‐explosive and perfectly harmless substances, of such a nature that they may be stored or transported without special precautions or restrictions. These two substances may be mixed together when required, and, in combination, become roburite, a yellowish compound, which will bear rough handling with safety. We understand that an intense heat is necessary to explode it. In order to prove this, the explosive was placed, in the experiments in question, between two plates, which were freely rubbed together and hammered; and a small quantity thrown upon a fire was merely consumed, without exploding.
Fig. 1.
In order to obtain an idea of the explosive effectiveness of roburite, eight ounces of the explosive were placed on a plate of the very best steel, at the point marked A in Fig. 1, which shows the state of the plate after the explosion. This plate was 3 ft. square by ½ in. thick, and a bulge of about 1 ft. diam. and 3½ in. deep was caused by the explosion. Twelve ounces of the explosive were then placed at A (Fig. 2) on a cast iron plate, 6 in. thick, and weighing nearly three tons. After the explosion the plate was found to be broken transversely, in the manner shown in the engraving. Unlike dynamite, roburite is said to be in no way affected by varying temperatures, and if duly protected against damp, it may be kept for years in any climate, without its efficiency becoming in any way impaired. It is also claimed by the manufacturers that roburite has an explosive force greater than dynamite by at least 25 per cent.
Fig. 2.
In exploding, roburite does not produce noxious gases, and, therefore, may be used without intermission, while the poisonous gases given off by dynamite often necessitate the stoppage of work, in some cases for a considerable time. This new explosive is applicable for use in mines and quarries, and for torpedoes and blasting operations generally.—Industries.
Speaking of the large apartment house in New York lately condemned for dry rot (see illustration last November number of this paper), the American Architect says: A few of the floors were of spruce, and these, as might be expected, had resisted the rot much better than the hemlock, and were still sound, but the construction ought certainly to be changed. In view of the dangers from this source which attend efforts to provide fire‐resisting floors of wood, it would seem that something might be done with light shapes of rolled iron beams. We have seen rolled floor beams used in Paris nearly as light as wooden ones of the same depth, and a tier of these, deafened with mortar on wire in the French manner, and wire‐lathed underneath, with a wooden floor over, would cost little more than a solid mass of wooden beams, and would be proof against rot as well as fire.
The casino is built of plastered quarry stone, with the exception of the socle, the balustrades, and the pillars, which consist of gray Vosges sandstone. The facade is ornamented with mosaics, and the roof is covered with slate of two colors.
BATHING HOUSE AND SALOON AT VITTEL—CHARLES GARNIER, ARCHITECT.
The bathing establishment is colored in Moorish style. Red brick bands in the socle, as well as the faience and mosaics in the main cornice, stand out artistically from the gray plaster of the walls. The roof is covered with red tiles.—Architektonische Rundschau.
Our immediate ancestors had their farm house, with its necessary accompaniment of granaries, barn, etc. We move to town and build our shingle palace or brick mansion, with its large front show window, in which the well preserved, gilt edged family Bible and the Rogers group have it which and t’other for supremacy—and set up in our back yard, to represent the outbuildings of our ancestry, a privy, a pile of slabwood, generally as dumped, a few barrels, perhaps a cheap stable. Not then satisfied with the amount of decaying wood about the premises, we lay a lot of wood walk.
Walking along the avenue, we see a pretentious residence. It must be occupied by people of great refinement, for is not the most prominent room in the house the library, the whole street side taken up with an immense bay window, the glass reaching nearly to the floor? How splendidly it was lighted as we passed last night! What elegant sets of books on the shelves! Plenty of pictures, too. Let us to‐day take a look at the back yard. Why do not these people board up the windows at the back of the house? Here is a well with a dirty puddle by it, the pump standing on a rotting platform; hard by some kitchen garbage, farther on ashes, and so it goes, the whole rear of the lot so bad as to discourage vegetable life even. It is mercifully screened in part from the general view by a high, unpainted board fence, against which, now and then, a weed or tuft of grass grows. Where is there better field for the crusade?
The rear of the house and the outbuildings, though not so expensively finished, have a right to be carefully and artistically done. A woodshed is not a nuisance if inclosed, well boarded and painted, and the wood kept inside. A privy has no right to exist. If there be no proper system of drainage in the house for a water closet, partition off an earth closet from the woodshed or stable. Tasteful, well cared for outbuildings and fences are not only not an offense to the artistic sense, but are rather pleasing, indicating thrift, tidiness, and comfort. But when we consider the opportunities they offer for the support of the vine morning glories, sweet peas, nasturtiums, climbing roses, and like forms of plant life, what a joyous recompense for so little labor and care. Then all the available back yard space that is not used for walks, drives, etc., should give either vegetables or flowers—minister to the comfort or culture of the family.
Listen to people who lament the bad influences of street associations upon the children. Yet they say, very reasonably, the children must have outdoor air, etc., and they have never considered but that the only alternative from the housing of the children is the freedom of the streets. They do not know what moral education is contained in a few feet of ground, congenial work for the hands, and the prettiest of life development studies for the mind. Give each of these street‐loving children a flower bed, a small set of garden tools, some flower seeds, and what help and advice they need, and note if there be not germs of nobler thoughts and desires taking root at the same time in their fertile natures. But—to moralize a little—there is a kinship between the ornamented front and disgraceful rear of a residence and the fine clothes and the false heart of the wearer, and we fear that the majority of people who inhabit that sort of residence would rather risk some contamination of their children’s characters than to see their faces, hands, and clothes besmeared with Mother Earth.
The back yard of the future will be a bower of flowers and greenery and the leisure hour resort of the family.—N. W. Architect.
Thomas Ustick Walter died at his home, in Philadelphia, on October 30, aged eighty‐four years. He had been for some years president of the American Institute of Architects.
His first principal work was the new county prison, in 1831, now generally known as “Moyamensing Jail.” In 1833 he made the original designs for Girard College, and was sent to Europe by the building committee of the institution. His tour through the principal countries was made for the specific purpose of the study of the principal buildings of the old world. Upon his return he took charge of the college buildings, which were finished in 1847, in accordance with his suggestions, when he was also made one of the directors of the college.
Mr. Walter’s next great public work was the break‐water at Laguayra for the Venezuelan government. In 1851 his design for the extension of the national capitol was adopted, and he was appointed government architect. He removed to Washington, where he designed several prominent public buildings, among them being the wing added to the Patent Office in 1851, the reconstruction of the Congressional Library building, which was destroyed by fire in 1851, the extensions of the United States Treasury building in 1855, and the Post Office in the same year, the dome of the national capitol, and the government hospital for the insane.
The sights and sounds of pine woods, the comfort and delight of walking in them, cannot be half told in a short paragraph. They are also as sanitary as they are pleasing and beautiful. It is said that the air of the Black Forest does more to revive and cure weakly patients than gallons of medicine; and from experience of the odors of pines at night, or in the early morning and dewy eve, I should say they were not only antiseptic, but strengthening as a dose of quinine. The living leaves, as well as the dead and slowly decomposing needles, redolent of healing and strengthening odors, bring back the color to pale cheeks and strength to semi‐exhausted constitutions.
The shelter of pine forests is also perfect. No matter how the wind thunders and roars among the tops, calm prevails on the surface of the ground. Just as the waves of the ocean are, after all, limited to its surface while a perpetual calm rests on its deeper depths, so the turmoil of the storm exhausts its force on the tops of the trees, while the base of the boles are hardly moved by it. Hence the superlative value of pines in masses for shelter. The shelter of a large pine wood is unique in character, providing a local atmosphere as genial as it is pleasant. The elasticity of the dead needles seems to get into one’s spirits, and enables one for the nonce to bid adieu to the cares and the ills of life. One saunters along under the shadow of tall pines without fatigue, and can rest on the clean, sweet carpet of dead needles and leaves with little fear of noxious weeds, insects, or malaria; and the whole air is deodorized and charged to the full with health‐giving properties by the odor‐distributing pines, that not only provide warmth and shelter, but health, to all who walk under or linger among them. Pine woods in England are mostly too small to furnish to the full all these advantages; but the black forests of Scotland, Germany, Denmark, Sweden, and Russia are massive enough to furnish shelter, shadow, rest, and health to those wise enough to seek for either amid their grand trunks or under their dense, dark masses of branches and leaves.—The Garden.
We give from the Architectural Era the floor plans and perspective sketch for a cottage which presents a number of attractive features. This house might be well built for $5,500, and perhaps less, depending on the locality and style of interior finish.
SKETCH FOR A COTTAGE.
FIRST FLOOR PLAN.
SECOND FLOOR PLAN.
When the history of the past seven years comes to be written, they will stand as years of the most marvelous expansion ever known in our history. Two of them, 1884 and 1885, were held as they passed to be dull years, but even these included great growth, and were a period of industrial readjustment rather than liquidation. The population of this country has not increased more than a fourth since the census of 1880, but house building, as an industry, has more than doubled, the number of common brick made in this country having increased from 3,800,000,000 to 7,000,000,000, worth $49,000,000. As the lumber trade has increased in less but large proportion, and iron production has risen over one‐half from 4,300,000 tons in 1880 to 6,300,000 in 1886, it is certain that the past seven years have seen the most active building ever known in this country. Chicago uses one‐seventeenth of the brick made in the country, and if its building represents the same share of the cost of house erection of all sorts in the United States, fully $2,000,000,000 have been spent on buildings in this country in the last seven years. As about the same sum will be reached by adding the building in the leading cities and estimating for the rest of the country, the truth is probably not far from these figures, which are under rather than over the mark. The railroad building since 1880 has cost, at $50,000 a mile, $2,700,000,000. This makes $4,700,000,000, or about one‐tenth of the national wealth in 1880, turned into railroads and buildings in this country. As the residence and business real estate of the country, including water power, was valued in the census of 1880 at $9,881,000,000, and the railroads at $5,500,000,000, we have added one‐half to the cost of the latter and one‐fifth to the former in seven years, although the railroads represent the accumulated construction of fifty years, and the buildings are spread over an even longer period in their erection. This enormous increase has taken place without adding a bale to the cotton to be carried or a bushel to the grain raised. No more pork is produced now than in 1880, and the number of sheep is no greater now than then. Great increase has been made in cattle raised for food, in fruits, and, on the average, in canned goods. Coal, taking bituminous and anthracite together, has increased one‐half from 70,000,000 to 106,000,000 tons. Copper has advanced in output from 27,009 tons in 1880 to 69,800 in 1886, and about the same this year. A great advance is true of nearly all mineral products, but in agriculture the United States has made little or no progress in product in the last seven years, but a great advance in acreage or the cost of cultivation.—Philadelphia Press.
Charles Hardy, in the National Builder, says: Underestimating means working for nothing and forcing others to do the same; it means impoverishment and poor work. The contractor has himself and his family to maintain, and the temptation is great to get out by doing poor work. I would suggest that every contractor purchase an account book large enough to enter, line by line, upon a single page, every item of his estimate—giving quantity, price, and labor for each item. Let him leave opposite to this page a blank page, on which he may enter, on the corresponding line opposite, the actual amount of labor expended upon the item, and he will thus be able to see the result of his contract.
A tower of Victory has been erected on the grounds of Washington’s Headquarters, at Newburg, N. Y., at a cost of $35,000. It affords beautiful views of the Hudson, the Highlands, and the surrounding country.
A COTTAGE FOR $4,200.
[For description see page 140.]
We give a perspective view and plans of a neat dwelling, the general dimensions of which are as follows:
Front, 29 ft. 6 in., exclusive of bay window; side, 48 ft. 9 in., not including piazza.
Cellar, 7 ft.; first story, 9 ft. 6 in.; second story, 9 ft.; attic, 8 ft. See floor plans for dimensions of rooms.
Materials.—Foundation, brick; first and second stories, clapboards; gables, cut shingles; roof, slate.
Cost.—Four thousand two hundred dollars, including furnace and mantels.
Fireplaces are provided in the dining room, parlor, and one bed room. The attic has two bed rooms, front room, and hall. Cellar under the whole house.
Prof. Thomas, of Little Rock, has a curious library. The covers of the books are of wood, each a different specimen. They are made from white oak, red oak, black oak, chestnut, American beech, birch, red cedar, yellow pine, pitch pine, willow, poplar, cypress, “old field” or long‐leaved pine, bois d’arc, black walnut, hickory (several varieties), white and red maple, box elder, black locust, black sumac, water locust, coffee bean, wild plum, holly, basswood, papaw, bay, umbrella, wild cherry, sweet gum, elm (several varieties), sycamore, witch hazel, butternut, pecan, hickory, and twenty or more other woods.
We take pleasure in presenting to our readers an illustration of the John Crouse Memorial College for Women, which it is proposed to erect on the hill west of the Hall of Languages, Syracuse University, Syracuse, N. Y. This edifice is to be the gift of one of the wealthiest and most prominent citizens of Syracuse, Mr. John Crouse. The donor of this magnificent gift well deserves to be held in grateful remembrance by every friend and well wisher of the Syracuse University, as well as by the students and faculty. It is proposed to make this building a model one in every respect, and neither pains nor money are to be spared to render it the most perfectly equipped college to be found in the country. The structure is to be five stories in height, to be built of East Long Meadow brownstone, and to cover an area of nearly two hundred feet square.
In this connection a brief historical sketch of Syracuse University may interest our readers.
The college now known as Syracuse University had its origin in Lima, a pretty little village in Western New York, but quite out of the way, and not easy of access. It was then called Genesee College, and the first gathering of faculty and students occurred on Monday, June 9, 1851. The faculty consisted of Benjamin F. Tefft, D.D. LL.D. and Professors Houghton, Douglass, Whitlock, and Alverson. On June 12 of same year, the Rev. B. F. Tefft was inaugurated president of Genesee College, and on July 10 the names of thirty‐eight students were enrolled on the college register. November 5 saw the faculty increased by the addition of Professors Hoyt and Fowler. The college thus organized continued with varying fortunes until July 7, 1871, when it disbanded. In 1866 the subject of removing the college from Lima began to be agitated, and the idea of a central university for the Methodism of New York was first publicly announced in the Northern Christian Advocate, during the year 1873. From this time forth the new enterprise met with great favor on all sides, except with the citizens of Lima, who were reluctant to see the withdrawal from their midst of their principal attraction, to which we may well believe they had become greatly attached, and who procured an injunction against its removal. Prominent members of the Methodist Central Conference were nevertheless commissioned to carry forward the good work, and substantial aid was soon forthcoming. Syracuse, being the most central city in the State, was finally settled upon as the most appropriate home for the new college.
The site now known as University Hill was secured, plans made by the well known architect, H. N. White, were adopted, and July 19, 1871, the contract for building the Hall of Languages was let for the sum of $136,000, and Syracuse University became an assured fact. The corner stone of the Hall of Languages was laid on August 31, with impressive ceremonies, and the faculty of the College of Liberal Arts was inaugurated. On September 1 the college opened in the Myers block, which had been secured for the use of the university, and here the sessions were held until May 1, 1873, when the Hall of Languages being completed, it was on that date occupied for the first time. During the year 1871 the plan for a medical college in connection with the university was adopted, and its first commencement exercises were held February 12, 1873. When the Hall of Languages was erected, other buildings were contemplated at such time as the finances of the university should admit of their realization. The institution has struggled along, sometimes meeting with reverses, but now and then being fortified and strengthened by the reception of substantial encouragement from some of its many and devoted friends. Now at last the wheel of fortune has suddenly turned in its favor, and it finds itself at the flood tide of prosperity, with the prospect before it of a long and honorable course of usefulness and well deserved success. University Hill commands a magnificent view of the belt of hills which girdle the city, with Onondaga Lake set like a sparkling gem in the distance. Upon the west hill an observatory has just been erected, and near the Hall of Languages a suitable building is in process of erection, for the accommodation of the fine and valuable library which has been generously bestowed upon it by one of its friends. Syracusans are proud of the University, and they, in common with its hosts of warm friends throughout all parts of the country, rejoice in the evidence of its well merited prosperity.
The alumni of Syracuse University have members not only in almost every State in the Union, but count among their number graduates from Canada, England, Mexico, San Domingo, Brazil, China, India, and Japan.—Architectural Era.
Mr. John A. P. Macbride, sculptor, who was introduced to a large audience, chiefly of workingmen, by Sir James Picton, recently gave a practical lecture on the above subject, at the Rotunda lecture hall, Liverpool. After giving a sketch of the art and its great antiquity, the lecturer drew a profile in chalk on the blackboard, which he filled in with clay, and proceeded to demonstrate the building up and modeling of a portrait bust of soft clay. He stated that there was a general and erroneous opinion that in taking a portrait bust it was necessary to take a cast of the face. This was a mistake, for the head lost all the spirit and go by such a mechanical process that should distinguish an artist’s work. The truth was not always that which appeared to be true, and the sculptor had to convey some idea of the character as well as of the mind of the sitter; and a man who knew his work ought to be able to do so with his fingers. Carving was a secondary consideration. The lecturer then explained the process of pointing a marble statue. In this process, the model and the block of marble were each fixed on a base called a scale stone, to which a standard vertical rod could be attached at corresponding centers, having at its upper end a sliding needle, so adapted by a movable joint as to be set at any angle and fastened by a screw when set. The sculptor having marked the governing points with a pencil on the model, the instrument was applied to these, and the measure taken. The standard being then transferred to the block base, the pointer, guided by this measure, cuts away the marble, taking care to leave it rather larger than the model, so that the general proportions were kept, and the more important work then left for the sculptor’s hand.—Building News.
About 5,500 buildings have been rebuilt and improved in Charleston, S. C., in the year since the earthquake, and 270 new buildings have been erected. This has been a busy year with mechanics and builders at Charleston, and about $3,500,000 has been expended in this work.
We present herewith front and rear perspectives, with plans, for a handsome stable now being erected in Brooklyn, N. Y., from designs and plans prepared at the Scientific American office. The general dimensions are: Front, 40 feet; side, 25 feet. Height of stories: First story, 11 feet: 5 feet breastwork in second story.
Materials.—Foundation, stone; water table, red granite; outside walls, red pressed brick; trimmings, buff brick; tower and gables, shingles; roof, black and red slate; inside wall finish, enameled brick; ceilings and stable work, Georgia pine; cellar under carriage room. Cost, $5,500.
Special Features.—Space for six carriages in carriage room; accommodation for four horses; ample ventilation and light; stable connected by sliding door. Both floors are laid with 2 inch Georgia pine plank.
Mr. J. L. Smithmeyer, architect of the Congressional Library building, states in his first annual report that the Congressional Library building when completed will be the largest structure in Washington, with the exception of the Capitol. It will cover 111,000 square feet of space.
In a building of such magnitude and importance, every step in the progress of the work must be carefully considered, lest fatal mistakes, due to hasty construction, should occur. It was deemed of the utmost importance to test every foot of ground supporting the foundation walls. For this purpose a traveling testing machine was constructed, which will give an accurate test of the entire soil. The tests thus far made have been most satisfactory, the soil standing a maximum pressure of 13·5 tons to the square foot, only 2·5 tons being required. These tests will be continued until the foundations are laid.
The method of testing the soil and putting in the concrete foundations may be briefly described as follows: First, the trench excavations are made by the contractor to the width and depth required by the plans, the bottom of the trenches being made perfectly level. Then the testing machine, consisting of a car bearing the required amount of weight in pig lead for making the tests, is placed in the trenches upon iron rails, which rest upon four cast iron pedestals, the latter being set four feet apart each way, each pedestal covering one foot of ground. Thus, one‐fourth of the entire weight borne by the car rests upon each one of the pedestals, and the precise weight sustained by each square foot of ground is exactly determined. The soil being thus tested as to its resisting strength, is then ready to receive the concrete foundations.
We give on page 136 a perspective view and floor plans of a cottage costing $4,200. The general dimensions are:
Front, 32 ft.; side, 39 ft. 2 in., exclusive of bay window and butler’s pantry. The size of rooms will be seen by reference to the floor plans.
The height of stories is as follows: Cellar, 7 ft.; first story, 9 ft. 6 in.; second story, 9 ft.; attic, 8 ft.
Materials.—Foundation, stone; first and second stories, clapboarded; gables, cut shingles; roof, slate.
Cost.—Four thousand two hundred dollars, including furnace and mantels.
This house is designed to be heated by a furnace. There are fireplaces in the dining room and in one front bed room. The attic has two bed rooms and hall finished, and garret. Cellar under the whole house.
The house illustrated on page 137 has the following general dimensions:
Front, 31 ft. 6 in., including bay window; side, 43 ft., including bay window.
Cellar, 7 ft.; first story, 10 ft.; second story, 9 ft. 6 in.; attic, 8 ft. The floor plans show the sizes of the rooms.
Materials.—Foundation, stone; first and second stories, clapboards; gables, cut shingles; roof, slate.
Cost.—Five thousand dollars, without heater and mantels.
It may be heated by a furnace. There are fireplaces in the dining room and in one chamber. The attic has two chambers and hall finished. Cellar under the whole house. Water closet off the laundry, and private stairs from kitchen to platform of main staircase.
There are few objects connected with our art that have been more frequently dwelt on by those who have undertaken to be our guides and monitors than the right proportions to be given to rooms. Vitruvius led the way, and subsequent theorizers have laid down, sometimes very dogmatically, their views of just proportions. I find, however, in the actual practice of the ablest men such extreme diversity, and I observe pleasing effects producible by the adoption of such widely different proportions, that I find myself, I confess, much inclined to be somewhat incredulous of all these theories. Certainly if beauty could be thus reduced to a formula, and the proper relation indisputably established between the length, breadth, and height of every room, a royal road would be cleared for us, which would be at least very convenient both to those who teach and to those who learn. I fear I can scarcely hope to furnish you with such a desirable help in your studies. I find rooms of universally admitted beauty, yet of almost every geometrical figure. I have heard of the room in the museum of Florence, the Tribune it is called, which contains the Venus di Medici, spoken of in terms of rapturous approval for the beauty of its form and proportions. This saloon is an equilateral octagon on plan. I have known square rooms greatly admired—such, for example, as the saloon in Cobham Hall, which is usually pointed to as one of the chefs‐d’œuvre of Inigo Jones. Who is there that is not charmed with the proportions of the Pantheon at Rome? This, you know, is circular. The classical teacher of our art, Vitruvius, seems to contemplate only rectangular forms, and directs us to adapt the double cube and the cube and a half, whether for a temple or a triclinium.
The Sistine Chapel, attached to the Papal Palace, upon which the best art of Italy in its best days was expended, is a triple cube, viz., 133 by 44. While of modern French, Italian, and English teachers, each seems to have his own special favorite proportion. The truth I believe to be that, so bounteously have we been endowed, and so liberally have the laws of beauty in form and proportion been framed, there exists in fact an endless variety of beautiful forms and proportions. My impression is that it is as little consistent with truth to lay down any one definite form or proportion as the best as it is to extol any one particular curve as the line of beauty. I believe that there are as many pleasing proportions to be given to rooms as there are pleasing harmonies of color and sound. The purpose of a room must always be an important guide in determining the form and proportions to be given to it. If planned so long in proportion to its width as to remind us of a passage, it loses its distinctive character, and creates a false impression, which it can never be good art to do. It is indeed obvious that a consideration of the special fitness of a room for its destined uses must always greatly influence its proportions. The octagon form, so much affected by our ancestors in planning their chapter houses, owes its origin probably far more to the propriety of that form for a chamber intended for the convenient assemblage of the members of the chapter sitting in council than to any intrinsic architectural beauty, however unquestionable that beauty may be.—S. Smirke.
The Firemen’s Herald says fire protection, like charity, should begin at home. However efficient may be the public service against fire, a single bucket of water properly administered may stop a fire that all the efforts of the brigade would be unable to quench, and besides, the jet of a powerful engine is as destructive in its way as fire to all perishable articles within a room, such as furniture, pictures, and bric‐a‐brac.
The universal custom now prevailing in most establishments of having a few plants in addition to cut flowers dotted about the different rooms induces me to write a short paper thereon, not only because it has developed into a very important part of the gardener’s work, but it likewise requires a fair share of taste in the arrangements, as well as suitable plants for the purpose. Generally speaking, each room being differently furnished will require a different class of plants for its adornment, but, as a rule, plants with stiff, upright growth are objectionable to the eye, as they do not hide the pot or stems unless others of a dwarfer growth are associated with them; therefore they should only be used when possessing special features either in flower or foliage. Too many plants in a room are objectionable, because they detract from rather than elevate or enhance the effect, especially if the room is elaborately furnished. For instance, plants assigned to the front hall or corridor would be unsuitable in a drawing room or boudoir.
Another important matter to study is the various kinds of receptacles provided for the use of plants. These vary in size and shape greatly, but are generally of a fanciful, elaborate, and artistic design, and the plants for these should be selected with the greatest care and taste, so as to add a completeness and finish, and in no way hide or diminish the effect of their appearance. I have often found, however, a great difficulty in getting plants to go in them without taking them out of the pots, and in many cases I have found it necessary to reduce the ball of roots in order to fit the latter in properly. This quite ruins the plant, for, in the case of choice or delicate growing subjects, it is almost impossible for them to recover. But in order to meet this difficulty, it is advisable to make a selection of plants, grow them in suitable sized pots, and use them for no other purpose. To do this it requires a sufficient number for three changes; say, if twenty plants are required at one time, sixty should be grown, and duplicates of all to be grown to follow on.
The atmosphere of rooms is generally dry, though warm, and impregnated with gas and other enemies to plant life. So different is all this to the healthy atmosphere of a plant house, that it is necessary that every plant used should have completed its growth, or some injury will follow. Take the different varieties of adiantums, for instance. If used for the decoration of rooms in a growing state, the young fronds would most certainly be injured; yet, when properly prepared, there are no more popular or suitable plants for the purpose, and they can be grown to a useful size in small pots. Nephrolepis exaltata, though not so choice as others, is a most handsome fern to use. Its long and gracefully drooping fronds are an ornament in any position, while many of the Pteris family have a fine and graceful appearance, and may be used freely. Nice plants of Spiræa japonica with or without flowers are very ornamental. The different sorts of lycopods make perfect plants for small vases, as also do the artillery plant (Pilea muscosa) and the little Caladium argyrites. In fact, there is no lack of either foliage or flowering plants suitable for a tasteful arrangement either in a drawing room or boudoir, while for more commodious places, such as the entrance hall, corridor, or staircase, and where larger plants are admissible, there is the beautiful Caladium esculentum, with noble foliage and which stands well, several sorts of palms, the larger fronded ferns, curculigo, Ficus elastica, Hibbertia volubilis, and the calla or Ethiopian lily, all of which have a reputation for retaining their beauty better than many others, and therefore should be grown for the purpose. But to avoid as little injury as possible, frequent changes are necessary, and it is a very good rule to water every plant well before it is used, and when it again needs water change it for another. Let all pots and plants be kept very clean, and avoid letting the plants remain long enough to make growth in the different positions, for such growth, when brought out to the light, is generally very weak.—Thomas Record, The Garden.
THE WAINWRIGHT HORIZONTAL FEED‐WATER HEATER.
We illustrate herewith the Wainwright Horizontal Feed‐Water Heater, adapted for use in a horizontal position under the floor of an engine room, or where the head room is limited. The feed water enters at the lower opening marked “feed,” fills the body of the heater, and having been heated by the exhaust steam surrounding the tubes, passes to the boiler at upper opening marked “feed,” the exhaust entering at either end. A drip pipe, as shown, is provided for escape of the water of condensation, and a hand hole for washing and cleaning. It will be seen that this heater contains a large body of water well disposed to receive heat, the tubes, being of corrugated copper, present 50 per cent. increased heating surface over plain tubes of the same length, while at the same time five times the strength is added, and owing to their property of expansion and contraction, all danger of the ends pulling out or the joints working and leaking is eliminated. This property of expansion and contraction also prevents any accumulation of scale and sediment.
HORIZONTAL FEED‐WATER HEATER.
These heaters are manufactured by The Wainwright Mfg. Co., 65 Oliver St., Boston.
This gas engine, manufactured by the Williams & Orton Manufacturing Company, of Sterling, Illinois, possesses various features that must commend it to the attention of all interested in the production of power from gas. It is characterized by great simplicity, having no gearing, so that it is practically noiseless. It has a power and a supply cylinder, one placed over the other, and each working or worked by its own crank. An impulse is given at every revolution of the wheel, and by the governing device the amount of gas consumed is regulated in proportion to the work done. The ignition valve is easily accessible, and needs no adjustment on starting the engine. It can be used either for gas or gasoline. For the latter, a few drops are aspirated at each stroke into the cylinder, where mingling with the air they form the mixture for ignition. The gasoline can be kept in a tank outside the building, and is subjected to no contact with the flame until it has been thoroughly vaporized and has entered the working cylinder.
GLEASON’S DOUBLE SURFACE PLANER.
A four‐roll machine that is simple and durable, and all geared with the most improved extension gearing, is shown in the accompanying illustration, as made by Messrs. E. & F. Gleason, manufacturers of improved wood tools, American Street and Susquehanna Avenue, Philadelphia, Pa. Both heads are driven with one counter, and only two belts are required, the adjustment of bed and control of feed being both on left‐hand side of machine, at B C, within immediate reach of the operator. The bottom head is quite as easy of adjustment as the top head, having large screws, F, one at each box, to regulate cut or chip and keep it in line with bed and top head, both heads having self‐oiling boxes. The machine will double‐surface stuff from one‐eighth inch to six inches in thickness. It occupies a floor space of about four feet by forty inches. The counter shaft has patent self‐oiling hangers and patent self‐oiling loose pulleys.
A new method of making foundations in wet ground has been devised by M. Bonnetond, a French military engineer. His plan is to bore a hole 10 ft. or 12 ft. deep and 1½ ft. in diameter in the damp ground, and in this a series of dynamite cartridges are placed, and finally exploded. The expansion of the gases generated drives the water far out beyond the sides of the hole, into which it does not return for at least half an hour. The time thus gained is utilized in rapidly excavating the cavity, which is then filled with a cement concrete, which sets before the return of the water. The method has been adopted in the construction of a fortified enceinte at Lyons, and is said to have led to very rapid work.
In the accompanying illustration is shown one of several forms of arranging artificial sticks or logs in a fireplace for burning gas, to give a close imitation of a blazing wood fire, which has been patented and is made by Henry P. Dixon & Co, of 1330 Chestnut Street, Philadelphia. Several other forms of logs and grouping are also made, the sticks and the logs being colored to resemble wood, and having fixed between them splints of asbestos, which become incandescent when in use, so that when the gas is turned on and a match applied to the small jets arranged to the best advantage over and between the logs, it gives the appearance of a first class wood fire. These artificial logs are made of material not injured by the flames, and are designed to last a life‐time without cracking or breaking, the gas being supplied through a brass union fixed in the back of each log, through which connection can be readily made by rubber tubing or otherwise to the nearest gas pipe. A good, cheerful fire, which makes neither dust, dirt, nor ashes, is thus ever ready at hand and available by simply turning on and lighting the gas, the flow of which is regulated as desired.
ARTIFICIAL LOGS FOR FIREPLACES.
The form of the sounding board is, I think, a novelty, but I am led to believe that it is an approach to the true form for the purpose. Flat sounding boards have been most commonly tried, but they are now generally discarded. A parabolic sounding board behind the preacher has been used with a certain effect, but the advantage is limited to those in the direction of the axis of the curve; and in these cases, action and reaction being equal, the preacher can sometimes hear the criticisms of his audience, if any should be uttered tolerably loud in the proper direction. Besides which, a shell of this description would have had little effect in stopping the objectionable echoes. To meet these difficulties, a curve was selected which has the property of distributing uniformly in every direction so much of the preacher’s voice as can be advantageously reflected. The figure is hyperbolic, the axis being perpendicular over the preacher. The diameter is ten feet, and so much of the voice it receives is reflected as if it came from a point about four feet from the preacher. It would be interesting to know, but I am not aware that sufficient experiments have been made to ascertain, what amount of sound is reflected from a given material. The harder the material, obviously the better the result. In this case hard organ pipe metal has been used. I observed a marked increase of audibility of the voice at a place where the assistance of the reflected sound is obtained over a point equidistant from the pulpit, but too high to receive the reflected wave from the sounding board.—F. C. Penrose.
A hot air furnace that is designed to include all the good elements of the best styles of modern construction, and is especially adapted for suburban houses, is shown in the accompanying illustration. It is manufactured by Messrs. Thomas, Roberts, Stevenson & Co, of Philadelphia, in four sizes, and has clinker‐cleaning, shaking, and dumping grate, upright lever for shaking the grate, improved dust flue and check draft, improved cylinder, with and without drum heads, and extra large radiating surface, being durable and cheap, while economical in use. These furnaces are made at a moderate price, without any expense being put on for mere show, and thousands of them are in use in nearly all parts of the country.
THE FORTUNE HEATER.
It many times so happens that plumbing is found a ready excuse for filthy people to place the blame upon “defective plumbing,” while in reality it is other defects that are the real cause. There are many things to take into consideration besides faulty plumbing. You should ask yourself: Is your cellar pure? How many germs of disease are lurking there because you have failed to properly drain and ventilate it, and remove the decayed vegetation and other impurities? And the well or spring; how much filth, unseen or unrealized though it be, is permitted to enter there, until at last it enters your life blood and becomes a part of your being, bringing you to an untimely grave?—Plumbers’ Trade Journal.
A strong and well made band saw machine, to be run by foot or hand power, is shown in the accompanying illustration, and is manufactured by Messrs. J. M. Marston & Co., of No. 3 Appleton Street, Boston, Mass. The table is 18 × 21 inches and 42 inches high, and is adjustable for cutting on a bevel. There is an adjustable guide for the saw above and below the table, the saw pulleys are 16 inches in diameter, and the driving power is by means of gears, all shafts being of steel. The upper saw pulley has an adjustment to tighten the saw and bring it in line with the lower saw pulley. The power machines are from the same pattern, and are arranged with driving shaft and pulley on lower part of the frame, and tight and loose pulley on lower saw shaft, so that it can be belted direct from main shafting without counter shaft. The machine is a very easy‐working one, cutting some four times as fast as a gig saw with less power.
MARSTON’S BAND SAW.
The circular saw machine made by the same firm has its center part of iron, with grooves planed for gauges to slide in, which allows very fine and exact work to be done on the machine. There is a collar on the arbor, so that any endwise wear can be taken up, and the gears are accurately cut from solid iron. The aim of the manufacturers has been to make a simple, strong, accurate, and durable machine, such as can be put to hard work without injury, some of their saws having been in use for fifteen years without needing repairs.
GILDED WITH PURE GOLD.
TOWER ORNAMENTS, CHURCH CROSSES, FINIALS, ETC.
N E W S
Vanes made from any Drawing or Design on Short Notice.
T. W. JONES,
SUCCESSOR TO
CHAS. C. BRIGGS,
V. W. BALDWIN,
Removed from 213 Pearl Street to
168 Front Street,
Near Maiden Lane,
NEW YORK.
Illustrated catalogue of over 250 designs, mailed to any address on receipt of a two cent stamp, half the postage.
ACME
PAT. REG.
27. 83.
The best made, all steel, and warranted, 8 sizes.
28 to 32 South Canal Street, Chicago, U. S. A.
H. W. Hartwell & Wm. C. Richardson. Archts.
Boston Mass
Are made of the very best English Ground Colors, and contain no benzine, water, or creosote. They have been thoroughly tested by some of the best Architects in the country during the past three or four years, and the colors are more lasting than any other stain. The price is 75 cents a gallon for any color. We would advise Architects to specify Dexter Brothers’ English Shingle Stain, and note the number on the Sample boards. Send for Sample Boards of Colors. DEXTER BROTHERS, 55 and 57 Broad Street, Boston, Mass.
SHOULD ALWAYS SPECIFY
Mueller’s WATER PRESSURE Regulators
to insure against the bursting of pipes and to preserve a uniform pressure throughout the building. Write for illustrated catalogue and prices.
H. MUELLER & SONS,
220 and 222 East Main St., Decatur, Ill.
School Houses.
| [At Albany, N. Y.] | |
|---|---|
| State of New York, | ⎫ ⎪ ⎬ ⎪ ⎭ |
| Department of Public Instruction, | |
| Superintendent’s Office, | |
| Albany, N. Y., September 20, 1887. | |
Plans and specifications for school‐houses.
Architects are invited to submit competition plans for six school buildings, for which $975 is offered in prizes. Time of competition limited to December 15, 1887.
For further particulars address A. S. DRAPER,
State Superintendent, Albany, N. Y.
ABSOLUTELY
Gas Tight
Constructed with Simplicity & Economy.
Healthy, Pure Warm Air.
No Flues
to Stop Up. No Mechanic
Required Every Year to
Put Them in
Order.
Has more radiating surface than any Hot Air Furnaces made. Every Joint is a Steam Boiler Joint. Adapted for Heating Dwellings, Stores, Churches, School‐houses, etc.
MANUFACTURED BY
Klein Furnace Co.,
250 and 254 North Ave., Rochester, N. Y.
Klein’s Steel Plate Tubular Furnaces.
Also Mfrs. of Economist Steel Plate Ranges.
☞See them and you will buy no other Warm Air Furnace. Every Heater Warranted.
Should use our Lead Covered Electric Conductors and Cables for circuits for Electric Call Bells, Annunciators, Electric Gas Lighting, Incandescent Lighting, or for communication between Residence and Stable, etc., and avoid the vexation and inconvenience of broken, leaky, or grounded circuits. Our Cables are moisture proof and can be embedded in the plaster walls, while the flat cable is specially adapted for arranging along the wainscoting, and staining to match. They are permanent, reliable, and economical.
Standard Underground Cable Co.
GENERAL OFFICES:
No. 708 PENN AVENUE, PITTSBURGH, PA.
Branch Offices:
Telephone Building, Cortlandt St., New York. G. L. Wiley, Manager.
139 East Madison Street, Chicago. F. E. Dehenhardt, Manager.
MANUFACTURERS OF
The WARING ANTI‐INDUCTION and BUNCHED CABLES, and
ACHESON COMPOUND CABLE.
For Telegraph, Telephone, Electric Light and Power, Underground, Submarine, and Aerial.
Light Leaded Cables (containing one or more conductors) for use in Houses, or for connecting Residence and Stable.
Insulated Line Wire, Underwriters’, Magnet, Annunciator, and Office Wire.
All Work Guaranteed. ☞Send for Illustrated Circular.☜
PATENTEES AND MANUFACTURERS OF THE GREAT AMERICAN PIPE COVERING
FOR
HOT‐AIR PIPES
STEAM GAS AND WATER
PIPES
FRONT AND ORANGE STS
WILMINGTON, DEL.
PATENTED IN UNITED STATES AND CANADA
These coverings beyond question are the best non‐conductors of heat known to the scientific world. They are easily applied, very durable, and indestructible. Recommended by Engineers and Architects.
INSULATION OF HEAT.PROTECTION AGAINST FROST.
FREEDOM FROM RATS, MICE, AND INSECTS.
Many good Heaters have been condemned and thrown away for not giving a supply of hot air, when the fault was in the uncovered pipes in the cellar wasting the heat, which could have been saved with J. F. Wood & Co.’s Great American Pipe Covering.
It sends the heat where wanted. It protects the woodwork near from fire. It is a great saving in fuel. It prevents water and gas pipes from freezing. It prevents the condensation of steam. Fire and water have no effect on them. They do not powder down, char, nor crack. They are cleanly in application. They are neat and regular in appearance. They are applied to pipes without the use of paste or cement of any kind. Send for Catalogue and Price List.
Solar Iron Clad.
E Rogers. Phila’
This is a Cast Iron Casing, lined with tin or galvanized iron, to prevent direct radiation of heat in cellar; four loose panels lift out, so as to give access to furnace for repairs or renewal, if necessary, without disturbing the Hot Air Pipes; it has sliding panels for feed door and smoke pipe to allow for expansion; it has also a dust flue and flue door for Damper. We claim this to be the most complete, durable, and convenient cold case made, equal in efficiency to Brick set, with much less room required and less expensive, besides the facility for access for repairs, without requiring, as in a brick set, so large a space to work in. It is much superior to the ordinary sheet iron casing, both for durability and efficiency. It is not necessary to remove the casing or Hot Air Pipe to clean out, or repair, or even renew or change the heater.
The Leibrandt & McDowell Stove Co.,
PHILADELPHIA and BALTIMORE.
IMPORTER AND MANUFACTURER,
88 Madison Street, Chicago, Ill.
ARCHITECTS’ AND SURVEYORS’ SUPPLIES.
Drawing Tools, Papers, Tapes, Chains, Colors, Inks, etc.
Improved LEVELS for Builders and Tiling.
Illustrated Catalogues Sent on Application.
Established 1857.
FRINK’S Patent Reflectors, for Gas or Oil, give the most powerful, softest, cheapest and best light known for Churches, Stores, Show Windows, Banks, Theatres, Depots, etc. New and elegant designs. Send size of room. Get circular and estimate. A liberal discount to churches and the trade. Don’t be deceived by cheap imitations.
I. P. FRINK, 551 Pearl St., N. Y.
Perfection of Cleanliness and Durability.
SHARPLESS & WATTS, Patentees,
BAKER BUILDING,
1524 CHESTNUT ST., PHILADELPHIA.
Send for Illustrated Circular and References.
CHICAGO
ANDERSON
PRESSED BRICK CO.
189 & 191 La Salle St.,
CHICAGO, ILL.
Front & Ornamental
Pressed Brick.
The latest improved, i.e., the boss to Engineers, Architects, Builders, Contractors, Farmers, and all others requiring a low price Leveling Instrument for grading, measuring heights, squaring, or getting any desired angle. Descriptive circulars furnished on receipt of stamp.
JOHN W. HARMON,
65 Haverhill Street, Boston, Mass.
ORNAMENTAL BRICK
Brick and Terra‐Cotta furnished from any design.
Bricks for Arches ground to suit any radius.
Equal in Quality and Color to Philadelphia Brick.
JAMES H. BEGGS & CO.,
Wilmington, Del.
H. W. JOHNS’
TRADEMARK ASBESTOS
LIQUID PAINTS.
Asbestos Roofing, Building Felt,
Steam Packings, Boiler Coverings,
Fire Proof Paints, Cements, Etc.
Samples and Descriptive Price Lists Free.
H. W. JOHNS MF’G CO., 87 MAIDEN LANE, N. Y.
Fine Office & Bank Fittings
BRASS & WIRE WORK.
A. H. ANDREWS & CO. 195 Wabash
Ave., Chicago, and 686 Broadway, N. Y.
COSY HOMES!
How to Build Them.
Contains 96 pages, showing complete designs of 10 low‐cost houses, with valuable information for those who wish to build economically. Post‐paid on receipt of price. 25c.
F. L. SMITH, Architect, 22 School St., Boston.
SEAMLESS
BRASS & COPPER TUBES,
SHEET BRASS, BRASS WIRE
FINE TOOLS, TAPS,
DRILLS, VISES
CHUCKS
CHARLES H.
BESLY & CO.
175–177 LAKE ST. CHICAGO.
SEND FOR CATALOGUE
Mention this paper.
STEWART’S
MACHINE‐WAXED
SHEATHING.
Absolutely Water‐proof, Air‐proof and Decay‐proof.
ODORLESS AND PERFECTLY CLEAN TO HANDLE.
The Cheapest and Best in the Market.
FOR LINING BUILDINGS UNDER CLAPBOARDS, SHINGLES, SLATE OR TIN.
Put up in rolls containing 650 square feet each, and at the low price
of $2.00 per roll (less than one‐third of a cent per square foot).
SAMPLES FREE BY MAIL.
W. H. STEWART, 74 Cortlandt Street, New York.
Send for Samples and Illustrated Pamphlet of STEWART’S PATENT LAP‐SEAL READY ROOFING and IRON‐FIBRE PAINTS.
THE STAR VENTILATORS
ARE SUPERIOR TO ALL OTHERS.
PATENTED
TRADE MARK
SECTIONAL VIEW
The ventilating area is greater than any other
that is storm‐proof.
HANDSOME, NOISELESS, DURABLE, STORM‐PROOF,
SIMPLE, CHEAP.
After competitive trial, have been adopted by the United States Government for their light houses in this district. Received the only Award of Merit at the Pennsylvania State Fair, 1886. Recommended by the leading Architects, and always adopted wherever it is put in competition with any other for curing gassy and smoking chimneys, and ventilating Factories, Light houses, Schools, Churches, Dye Houses, Cotton and Woolen Mills, Cars, Residences, Bath‐rooms or Water‐closets.
Prices and special discounts named on application.
MERCHANT & CO.,
GENERAL MANAGERS,
Philadelphia, New York, Chicago, London.
CREOSOTE WOOD STAINS.
FOR SHINGLES, FENCES, CLAPBOARDS ETC.
PRICE
30ᶜ. 50ᶜ. & 75ᶜ. PER GALL.
ACCORDING TO COLOR.
VERY DURABLE AND ARTISTIC.
FOR SAMPLES ON WOOD & CIRCULARS SEND TO
SAM’L CABOT SOLE MANFR. 70 KILBY ST. BOSTON.
FOOT‐POWER MACHINERY.
COMPLETE OUTFITS for CONTRACTORS and BUILDERS.
Machines for ripping, cross‐cutting, scroll‐sawing, mortising and tenoning, forming edges, grooving, gaining, rabbeting, cutting dadoes, and turning. Builders use our Hand Circular Rip Saw for the greater portion of their ripping in preference to carting their lumber to a mill five minute’s drive from their shops. The same is true in regard to scroll sawing, mortising, tenoning, cutting stuff for drawers, boxes, etc. Builders using these machines can bid lower and save more money from their contracts than by any other means.
Read the Following Letters from Builders:
Clarence F. Lee, carpenter and builder, Morristown, N. J., says: “I have had one of your Hand Circular Rip‐Saws for about three months, and am much pleased with it. Have done the ripping for 15 houses in that time, which is over forty miles through inch boards. Have ripped as high as 3‐inch plank. Table is also good for rabbeting; having rabbeted all jambs and sawed all drips for 200 windows.”
Alex. Shields, Lima, Ohio, says: “A few days since we had some 150 small drawers to make for a drug store; the steam power mill wanted 50 cents each for making them. With my foot power machinery I made them, and saved $25 above good wages on the job.
If desired, these machines will be sold ON TRIAL.
The purchaser can have ample time to test them in his own shop and on the work he wishes them to do. Descriptive Catalogue and Price List Free.
W. F. & JOHN BARNES CO., No. 567 ... Ruby St., Rockford, Ill.
CHAS E LITTLE,
59 FULTON ST.
New York.
Silver Medal on Tools Awarded by Amer. Inst. 1886. Medal “Superiority” for
W. F. & J. Barnes’ Workshop MACHINERY.
New York Agency.Factory Prices.
Patent Foot Power Machinery!
The Latest and Most Improved
Scroll Saws, Circular Saws, Lathes, Mortisers, Etc.
THE “ACME” CIRCULAR SAW.
For Foot or Hand Power.
Suitable for various kinds of work, in Cutting‐off, Ripping, Mitring, Rabbeting, and Grooving, and with the addition of the extra attachments, Scroll Sawing, Boring, etc.
Price, with two 7‐inch Saws, $40.
“Diamond” Mortising Machine.
Will mortise ¼ to 1 inch wide, 3 inches deep, and with the addition of the Diamond Adjustable Tenoning Tool, cut Tenons ⅛ to ¾ in. thick, 3 in. wide.
Price, with 3 chisels, $25.
Machines on Trial. Catalogue Free.
Seneca Falls Mfg. Co.,
276 Water Street,
SENECA FALLS, N. Y.
THE
NEW YORK
SELF ACTING
SHADE ROLLER
THE BEST ON THE MARKET
MADE IN TIN AND WOOD
EVERY ROLLER WARRANTED
MANUFACTURED BY
CUSHMAN BROS. & CO.,
BOSTON, MASS.
All Shades and Upholstery Goods at
Bottom Prices.
LYON & HEALY
State & Monroe Sts., Chicago, will mail, free, their newly enlarged Catalogue of Band Instruments, Uniforms and Equipments. 400 Fine Illustrations describing every article required by Bands or Drum Corps, including Repairing Materials, Trimmings, etc.
Contains Instructions for Amateur Bands, Exercises and Scales, Drum Major’s Tactics, By‐Laws, and a Selected List of Band Music.
E. & H. T. ANTHONY & CO.,
591 Broadway, N. Y.
Manufacturers and Importers of PHOTOGRAPHIC INSTRUMENTS, Apparatus and Supplies, OF EVERY DESCRIPTION.
Sole Proprietors of the Patent Detective, Fairy, Novel, and Bicycle Cameras, and the Celebrated Stanley Dry Plates.
Amateur Outfits in great variety from $9.00 upward. Send for Catalogue or call and examine.
☞More than Forty Years Established in this line of business.
ESTABLISHED 1854.
DEVINE’S STEAM BOILER WORKS,
Marine, Locomotive, Tubular, House, and
GREENHOUSE BOILERS.
WROUGHT IRON HOT WATER BOILERS A SPECIALTY.
Manufactory, 381 to 393 S. Canal Street, Chicago.
The above cut is of Greenhouse Boiler, meeting with universal success wherever placed. Estimates gladly furnished for any capacity.
PETER DEVINE,
387 S. CANAL ST., CHICAGO.
AUTOMATIC AIR VALVE.
For STEAM COILS and RADIATORS
Direct and Indirect.
Most Simple and Reliable Air Valve Made. Nothing to Get Out of Order. Has No Movable Piece. No Loose Thimbles to Fly Off. Every Valve is Thoroughly Tested, and Warranted to Give Satisfaction.
Manufactured by
Thos. L. McKeen,
EASTON, PA.
Brick Making Machinery.
MACHINES OF 10,000, 25,000, 50,000 BRICKS PER DAY CAPACITY.
ERECTED SUBJECT TO TRIAL AND APPROVAL.
CHAMBERS, BROTHER & CO.,
PHILADELPHIA, Fifty‐second St., below Lancaster Ave.
THE HERCULES.
TRADE MARK
PATᴰ JUNE 12, 1883
Section of Copper‐Wire‐Sewed Light Double Belting, specially
adapted to use on cone pulleys and other hard places. Manufactured
by the PAGE BELTING CO., Concord, N. H. Also manufacturers of
Staple and Special Grades of Leather Belting and the “HERCULES” Lacing.
☞ Send for Catalogue No. 23.☜
WOODWORKING MACHINERY,
PLANERS AND MATCHERS,
PONY PLANERS,
Hand Matchers, Solid Plate and SEGMENT RE‐SAWS.
CONNELL & DENGLER, Rochester, N. Y.
(Iron Beam Protection. Patented June 3, 1884.)
HENRY MAURER & SON,
MANUFACTURERS OF
FIRE‐PROOF MATERIAL
Of every description. Hollow Brick made of Clay for Flat Arches, Partitions, Furring, etc. Porous Terra Cotta, Fire Bricks, etc., etc.
Office and Depot, 420 East 23d St., New York.
WORKS, PERTH AMBOY, N. J.
WOODWORKING
MACHINERY
FOR
Chair, Furniture and
Cabinet Mills, Pattern
Makers’ use, etc.
Rollstone Machine Co.
48 Water St., Fitchburg, Mass.
FINE TAPS AND DIES.
LIGHTNING
Lightning and Green River Screw Plates. Bolt Cutters, hand and power. Drilling Machines, Punching Presses, Tire Benders, Tire Upsetters and other Labor Saving Tools. Send for Price List C.
Wiley & Russell Mfg. Co., Greenfield, Mass.
BRAY & BRECK,
Stained Glass Works,
35 and 37 Province St.,
BOSTON, MASS.
SEND FOR
Illustrated Catalogue and Price List.
J. M. STUTZMAN, 181 William St., New York.
STEEL NAME STAMPS
Steel Alphabets and Tool Stamps. Stencil Cutting, Dies, Burning Brands, Door Plates, Soap Moulds, Seals, &c.
Liberal discount to Agents.
Price for Tool Stamps, 15 cents per letter up to ⅛ in. Postage, 10 cents additional per stamp.
AIR BRUSH.
Received Gold Medal Franklin Institute. A legitimate artists’ and draughtsmen’s tool. Applies color by a jet of air. Greatly economizes time in mechanical, engineering and architectural draughting. Send for description.
AIR BRUSH MFG. CO.
80 Nassau St., Rockford, Ill.
RICHMOND WEATHER STRIP CO.
MANUFACTURERS OF
ROWLETT’S INDEPENDENT
AUTOMATIC COUNTER‐BALANCED
WEATHER STRIP.
AWARDED BRONZE MEDAL AT CINCINNATI INDUSTRIAL (EXPOSITION 1884.)
HAS NO SPRINGS, TRIGGERS OR CIRCLE IRONS; POSITIVE ACTION; CANNOT GET OUT OF ORDER; FITS ANY DOOR.
AGENTS WANTED IN EVERY CITY AND TOWN IN THE U. S. SEND FOR CIRCULAR. SAMPLE STRIP. PREPAID TO ANY PERSON ON RECEIPT OF $1.00. ADDRESS
RICHMOND WEATHER STRIP CO. RICHMOND, IND.
P. O. BOX 282. FACTORY 217 N. 6TH STREET.
MENTION THIS PAPER.
MALLORY’S
STANDARD SHUTTER WORKER
Opens and closes the blinds without raising the window.
Automatically locks the blinds in any position.
Best and cheapest blind hinge.
Incomparable for strength, durability, and power.
Can be applied to old or new houses, of brick, stone, or wood.
Send for Illustrated Catalogue to
Frank B. Mallory,
FLEMINGTON, NEW JERSEY, or
60 LIBERTY STREET, NEW YORK.
EDWIN LEE BROWN, Pres’t.
The Western Sand Blast Co.,
Ornamenters of Glass for
VESTIBULE DOORS,
TRANSOMS,
BANK & OFFICE COUNTERS,
——AND——
Manufacturers of Advertising Glass Signs.
Sand Blast & Embossed Railroad Glass a specialty.
N. W. Cor. Clinton & Jackson Sts.,
CHICAGO, ILL.
Telephone 4085.
WILLER’S
PATENT
SLIDING
BLIND
WILLIAM WILLER, SOLE MFR.
MILWAUKEE WIS.
SEND FOR CATALOGUE
Clark’s New Drying Exhaust and Ventilating Fans,
PATENT ADJUSTABLE WINGS.
Capacity Quickly Increased or Diminished.
Self‐Oiling Bearings. Light Running.
Durable.
PRICE LIST FREE.
GEO. P. CLARK, (Box A), Windsor Locks, Ct.
GLASS
PHILLIP SEMMER & COMPANY.
PLATE, SHEET & LOOKING GLASS Depot
No 4, 6, 8 & 10 DESBROSSES. ST.
NEW YORK.
WRITE FOR QUOTATIONS.
HAYDEN BROTHERS,
Hardwood Lumber,
MAHOGANY AND VENEERS,
LUMBER DRYING A SPECIALTY,
22d and Jefferson Streets, CHICAGO.
THORN SHINGLE & ORNAMENT CO.,
SOLE MANUFACTURERS OF
The Best and Cheapest Metallic Roofing
TILES AND SHINGLES
YET OFFERED TO THE BUILDING TRADE.
The Horseshoe Spring‐Lock Shingle (Patten’s Patent) just out. This Shingle can be put on in one‐half the time it requires with any other shingle now in the market. Is cheap, durable, secure, thoroughly water‐tight and makes a good appearance as a roof covering. Two (2) sizes.
THORN’S PATENT ROOFING and WALL TILES, the most perfect and Unique Roof, Gable, Tower, and Wall covering, yet produced in metal. On the roof in appearance they are like terra cotta earthen tiles, and are better, and half the cost. Four (4) designs or sizes are made.
All the above goods are packed a square to the box and delivered f.o.b. cars in Philadelphia.
For particulars, price lists, etc., address
THORN SHINGLE & ORNAMENT CO. 12th & Callowhill Streets, Philadelphia, Pa.
THE PULLMAN SASH BALANCE.
A MORE PERFECT and ECONOMICAL
Balance than Weights and Cords.
Works smoother and easier
than any other device.
No Boxes or Pockets in Frame necessary.
IT IS ADJUSTABLE.
Made entirely of steel. The best coil spring is used, it being encased in a drawn steel drum, and a metallic tape fastened on outside of drum to operate sash.
Is very compact, occupying space required for ordinary sash pulley.
This Balance entirely overcomes the difficulty of friction occasioned by counter weights.
It relieves the entire heft of sash. A 75 to 100 lb. sash works as easily as a very light one. Applied to old windows as readily as to new, without altering frame or sash. Will last a lifetime.
The Pullman Balance is being introduced to all the leading Architects and Builders in the country, and they pronounce them far superior to the old method.
Send for Description and Prices.
☞ A fair discount to the Hardware trade.
PULLMAN SASH BALANCE CO., Rochester, N. Y.
——THE——
Standard Wood Turning Co.
58 BAY STREET,
Jersey City, N. J.
MACHINE‐TURNED
BALUSTERS
Various Sizes and Patterns Dovetailed ready for use, with Tait’s Patent Dovetail.
PEDESTAL and TURNED NEWELS.
STAIR RAILS,
Of all dimensions, worked, ready to put up.
Send 4c. Stamp for our 32‐page Catalogue, containing 200 Illustrations of Balusters, Pedestal Newels, Brackets, Drops, etc.
ANDERSON & DICKEY
Architectural Wood Turning
——AND——
Spiral Moulding,
43 Bristol Street
BOSTON, MASS.
All kinds of Newels, Stair Posts, Balusters, Rails, Table and Chair Legs, etc.
Wood Mantels, Office Fittings, Interior Decorations, etc.
Rope Moulding and Twist Screen Work, etc. Architects’ Designs a specialty.
Estimates given. Send 2‐cent stamp for illustrated catalogue.
No. 11 PLANER & MATCHER
Double Belted and Geared Lower Rolls.
Special Machinery for Car Work and the latest improved Woodworking Machinery of all kinds.
C. B. ROGERS & CO.
Norwich, Conn.
109 Liberty Street,
New York.
CHARTER’S GAS ENGINE.
The safest, most reliable and economical Motor in existence.
Independent of Gas Works and Machines.
So it can be used anywhere.
2 to 25 H. P.
Makes its Own Gas
AT COST OF ABOUT
65 cents per M Feet.
A Saving of 25 to 85 per cent guaranteed over all other Gas Engines.
Chicago Agent: H. H. Latham, 42 Dearborn Street.
New York House: 12 Cortlandt Street.
Williams & Orton Mfg. Co.
P. O. Box 148.STERLING, ILL.
Shimer’s Variety Moulder, with
Surface Moulding Attachment.
FOR SINKING panels with pattern guided by pin that automatically takes its position when you start the Machine, and drops out of the way when you stop it. The Cutter in the overhanging arm of the Machine has a perpendicular adjustment of one inch, and is operated by the handle shown in the cut attached to an eccentric lever that is automatically locked to the one position when at work.
TO CHANGE from Surface Moulder to Variety Moulder, disconnect the rod that runs the incline on the T lever and pin it up. Run the housing up by means of the hand wheel until it stands above the belt line, remove the one spindle, substitute the other and set screw it to the housing. Turn the small table back under the arm. Raise the arm, disconnect the shaft that runs the upper pulley, and the Machine becomes an Edge Moulder without having any of its parts unbolted and laid away.
You never tire of the make up of this Machine, which is as simple and effective as it is durable.
Reversible Cutters for any shape of mould made to order, and warranted to cut free and easy.
For Circulars and full information, address,
SAMUEL J. SHIMER,
MANUFACTURER of the SHIMER CUTTER HEADS and SPECIAL WOODWORKING MACHINERY,
MILTON, PENN.
The Mason REDUCING VALVE
Gives satisfaction wherever used
OFFICE 22 CENTRAL ST. BOSTON, MASS.
CARPENTERS’ MACHINERY,
HAND AND FOOT POWER.
| Lathes, | Rip Saws, |
|---|---|
| Tenoners, | Cross Cut Saws, |
| Mortisers, | Combined Saws, |
| Scroll Saws, | Jig Saws, |
| Groovers, | Edge Moulders, |
| Formers. | Dado Heads. |
FRED. A. RICH, 25 South Canal Street, Chicago.
ROOFING ✠ SLATE.
The AMERICAN BANGOR SLATE CO.,
Miners and Manufacturers of best Pennsylvania Black Roofing Slate,
BANGOR, PENN.
Address correspondence to J. EDGAR MITCHELL, Sec’y and Treas., Allentown, Pa.
PARQUET FLOORS
(Butcher’s Patent).
PARQUET FLOORS
CHAS. BUTCHER. & Co. BOSTON
The only Wood Flooring made on the correct principle, being laid with perforated metal tongues so that Floors of any thickness from ¼ inch up can be laid and blind‐nailed.
Butcher’s Boston Polish is the best finish for Hardwood Floors. For sale by agents in all large cities. Full information on application to
THE BUTCHER FLOORING CO.,
9 and 11 Haverhill Street, BOSTON, MASS.
“BUILDING”
——AN——
Architectural Weekly.
PUBLISHED EVERY SATURDAY.
| Devoted to Architecture, Engineering, Furniture, Decoration, and Ornament. | |
|---|---|
| Subscription, | $6 a year. |
| Sample subscription of three months, | $1.50 |
| Single Copies, | 15 cents. |
MONTHLY NUMBER.
A special feature of these numbers will be Small Country and City Houses, with plans and details.
| Subscription, | $1.75 a year. |
|---|---|
| Sample subscription of three months, | 50 cents. |
| Single Copies, | 15 cents. |
JUST PUBLISHED.
INTERIOR DECORATION.
By Arnold W. Brunner and Thomas Tryon, Architects.
One Quarto Vol., Cloth, Price, $3.00.
Containing, besides introductory remarks, chapters on The Hall, The
Staircase, The Library, The Parlor, The Dining‐room, The Study, The
Bedrooms.
This book is fully illustrated with 75 drawings of interiors, details, furniture, etc. It contains suggestions for the treatment of both city and country houses, and indicates methods for altering and improving old work. It is written with a view of interesting non‐professional readers and all who care to beautify their homes, as well as architects and decorators.
NEW BOOKS.
Improved Plumbing Appliances. By J. Pickering Putnam, Architect. This work was printed last year in serial form in “Building,” and has since then been carefully revised and brought out in book form, as being worthy of more permanent form. With 91 illustrations. One octavo volume, cloth, price, $1.50.
Architectural Studies.
Vol. II.
JUST PUBLISHED, PART 6.
$500 to $2,500 Houses, giving perspectives, elevations and plans, with specifications, bills of materials and estimates of cost. One Paper Portfolio, 12 plates, Price, $1.00.
| PLATE. | PLATE. |
|---|---|
| I.—$500 House. | VII.—$1,000 House. |
| II.—$700 „ | VIII.—$1,000 „ |
| III.—$800 „ | IX.—$1,200 „ |
| IV.—$800 „ | X.—$1,500 „ |
| V.— $900 „ | XI.—$2,000 „ |
| VI.—$1,000 „ | XII.—$2,500 „ |
PART 7.
INTERIOR WOODWORK
——FOR——
HOUSES OF MODERATE COST.
One paper portfolio, $1.00.
Plates XIII and XIV.—Two China Closets, with details. XV.—Parlor Mantel, with details. XVI.—Book Shelves, with details. XVII.—Staircase Screen, with details. XVIII.—Two Bedroom Mantels, with details. XIX and XX. Entrance Hall and Staircase, with details. XXI.—Bathroom, with details. XXII.—Hall Fireplace, with details. XXIII.—Library Bookcase, with details. XXIV.—Dining‐room Mantel, with details.
PART 8.
STORE FITTINGS.
LIST OF PLATES.—Plate 25, Counter and Showcase, with Details; 26, Detached Case, with Details; 27, Wall‐shelving, with Details; 28, Telephone Case, with Details; 29, Counter for Druggist, with Details; 30, Wall Cases, with Details; 31, Two Counters, with Details; 32, Two Detached Cases, with Details; 33, Prescription Counter, with Details; 34, Perfumery Case, with Details; 35, Wall Shelving, with Details; 36, Cashier’s Desk, with Details. One Paper Portfolio, Twelve Plates.
Price, $1.00.
A Most Complete Work of Details.
Modern Architectural Practice.
No. 1.
A Large Country House in Detail.
By BRUCE PRICE, Archt.
This number contains twenty‐four 12 × 15 plates, and full specifications illustrated by woodcuts and diagrams. One Large Quarto, 12 × 15, Boards.
Price, $5.00.
ARCHITECTURAL STUDIES.
VOL. I.
One Large Quarto Vol., Cloth, Price $5. Containing 60 large Lithographic Plates, treating on the following Subjects.
PART I.—LOW COST HOUSES, including prize designs, with elevations, plans, details, specifications, bills of materials, and estimates of cost. 12 large (11 × 14) plates of practical designs, costing from $500 to $3,000.
PART II.—STORE FRONTS AND INTERIOR DETAILS. 12 plates and descriptive letterpress.
PART III.—STABLES. Containing 12 plates of Stables, suitable for village lots, ranging in cost from $300 upward.
PART IV.—SEASIDE AND SOUTHERN HOUSES. 12 plates of designs for Cheap Houses, with ample verandas, suited to a summer climate. Average cost, $1,500.
PART V.—OUT‐BUILDINGS. Containing 12 plates of designs of Small Stables, Summer Houses, Pavilions, Privies, Fences, Gates, etc.
Each of these parts may be obtained separately when desired. Paper portfolio, 12 plates and descriptive letterpress, $1 each.
W. T. COMSTOCK, Publisher,
23 WARREN ST., NEW YORK.
THE LATEST & BEST IMPROVED
BRICK
MACHINES
FOR BOTH STEAM
AND HORSE POWER.
STEAM POWER BRICK MACHINE
WITHOUT GEARING.
WEIGHT 7000 LBS.
STEAM POWER BRICK MACHINE
READY FOR PULLEY.
WEIGHT 7200 LBS.
HORSE POWER BRICK MACHINE
WT. 4500 LBS.
SEND FOR ILLUSTRATED CATALOGUE
HENRY MARTIN,
INVENTOR, PROPRIETOR,
AND MANUFACTURER.
139 CHESTNUT ST.
LANCASTER, PA., U. S. A.
A. PALMER CO. ENG.
Manufacturers and Dealers in Parquet and Inlaid Floors, Wainscoting, Etc.
J. DUNFEE & CO.,
Wood Carpet and Weather Strips
OF ALL KINDS,
102 Washington Street,—CHICAGO.
SEND FOR CATALOGUE.
Factory, 204 to 212 South Clinton Street.
B. G. UNDERWOOD,
ADVERTISING AGENT,
361 Broadway, New York,
AND
31 Pemberton Sq., Boston.
Cast Iron Gas and Water Pipes
1½ to 48 INCHES DIAMETER.
Cast Iron Flange Heating and Steam Pipes, Fire Hydrants and Stop Valves for Water or Gas, all Sizes.
ALL PIPE PROVED BY HYDROSTATIC PRESSURE.
| GLOUCESTER IRON WORKS, | ||
|---|---|---|
| GLOUCESTER CITY, N. J. | ||
| SAMUEL R. SHIPLEY, Prest. | JAMES P. MICHELLON, Secy. | |
| HENRY B. CHEW, Treas. | OFFICE, | WILLIAM SEXTON, Supt. |
| 6 North Seventh Street, Philadelphia. | ||
VentilatoR.
Patented May 4th, 1886.
For Bulk Windows.
Adapted for Dwellings, Stores, Hospitals, School Rooms, Offices, Public Institutions, &c., allowing ventilation without draught. Simple and readily adjustable. Manufactured and sold, Wholesale and Retail, also Patent Right for sale for States, United States or Canada, address
T. T. COHEN, 211 So. 13th St., Phila., Pa.
ESTABLISHED 1868 BY GEORGE HAYES
THE HAYES SKYLIGHTS
PERFORATED METALLIC, INSECT & STORM PROOF BLINDS
SEND FOR CATALOGUE
71–8TH AVE. NEW YORK.
COMBINATION SQUARE.
This tool, with its sliding blade and stock having right angle and mitre faces, level and scriber, is more than a substitute for a whole set of the common kind. It can be used in many places and for purposes that a stationary blade cannot.
Send for price.
L. S. STARRETT,
Manufacturer of Fine Tools, ATHOL, MASS.
DRAFTSMANS’ ADJUSTABLE CURVE RULER.
Highly Commended. Makes any Curve.
For sale everywhere, 14 inch, $1.50; 30 inch, $2.87. Circular Gratis.
FRANK W. DAVENPORT, Patentee and Manufacturer, Providence,
R. I., U. S. A.
New York City. Room 217 Stewart Building.
C. POWELL KARR, C.E.
CONSULTING ARCHITECT.
Plans and Specifications prepared for Heating, Lighting, Ventilation and Sanitation of Buildings.
SPECIAL ATTENTION DEVOTED TO THE INSPECTION AND IMPROVEMENT OF THE ACOUSTIC PROPERTIES OF THEATERS, MUSIC HALLS, AND PUBLIC BUILDINGS.
ALLEN B. RORKE,
Contractor and Builder,
423 WALNUT STREET, PHILADELPHIA.
MORSE ELEVATOR WORKS.
Morse, Williams & Co.
Successors to CLEM & MORSE,
BUILDERS OF ALL KINDS OF
Passenger and Freight ELEVATORS
Send for Circulars.
OFFICE: 411 CHERRY STREET.
Works: Frankford Avenue, Wildey and Shackamaxon Streets
PHILADELPHIA.
NEW YORK OFFICE: 108 Liberty Street.
PASSENGER ELEVATORS,
MANUFACTURED BY
HOWARD IRON WORKS,
BUFFALO, N. Y.
The Elevators in the State Capitol, Albany, New York, were built by us, and many others in some of the finest buildings in the country.
GRAVES’
ELEVATORS,
PASSENGER and FREIGHT,
MANUFACTURED BY
L. S., GRAVES & SON, Rochester, N. Y.
BRANCH OFFICE: 46 Cortlandt Street, New York.
JOHN WHEELER,
CARPENTER and BUILDER
——OF——
ORNAMENTAL RUSTIC
WORK
Medals from American Institute, And other Associations.
P. O. Box 140. Cleveland St., Orange, N. J.
LEPAGE’S
THE ONLY GENUINE
LIQUID GLUE
UNEQUALLED for CEMENTING
wood, glass, china, paper, leather, &c. Always ready for use.
Pronounced strongest glue known.
AWARDED TWO GOLD MEDALS.
IS MADE BY THE
Russia Cement Co.,
Gloucester, Mass.
Sample 20c stamps
FIRST CLASS
HEATING APPARATUS,
J. REYNOLDS & SON,
Thirteenth and Filbert Streets, PHILADELPHIA, PA.
Manufacturers of
Steel Air Tight Furnaces,
KEYSTONE
Steel Furnaces.
BRICK SET AND PORTABLE.
For Anthracite and Bituminous Coal or Wood.
Our heaters are strictly first‐class, made of the best material and workmanship, and are supplied with the Reynolds’ Shaking Grate, the best labor and fuel saving appliances. They are absolutely Gas, Dust and Smoke Tight. Cooking Ranges, Low and Half Low Grates, in great variety of styles and sizes. Descriptive circulars sent free to any address. The trade supplied.
KEYSTONE FLOORING MACHINE.
THE foremost floorer in the market. There are perhaps without a single exception more “Keystone” Flooring Machines in use than any other make in the market. Valuable references and testimonials and full information cheerfully given.
GOODELL & WATERS,
3031 Chestnut St., Philadelphia.
Names and Address must accompany all letters, or no attention will be paid thereto. This is for our information, and not for publication.
References to former articles or answers should give date of paper and page or number of question.
Inquiries not answered in reasonable time should be repeated; correspondents will bear in mind that some answers require not a little research, and, though we endeavor to reply to all, either by letter or in this department, each must take his turn.
Special Written Information on matters of personal rather than general interest cannot be expected without remuneration.
Scientific American Supplements referred to may be had at the office. Price 10 cents each.
Books referred to promptly supplied on receipt of price.
Minerals sent for examination should be distinctly marked or labeled.
(1) G. W. B. asks: 1. What kind of cement used, and how to cement gum face on band saws? A. Ordinary rubber cement, such as you can purchase at any of the rubber stores, will answer your purpose. 2. Is there anything to be put in glue to prevent moisture from disturbing the joints in patterns? A. A little bichromate of potash put into your glue will render it insoluble, after exposure to light. 3. Is there anything to prevent shellac used for patterns from getting dark before using after it is mixed some time? A. We know of no way to prevent this.
(2) W. S. C.—In closed circuits for steam heating, the pressure of the steam along the flow pipes and in coils in well arranged systems is so nearly equalized with the pressure in the boiler, that it requires but small elevation of the water of condensation in the return pipe above the water level in the boiler to allow of its return by gravity. In this system all of the radiators should be not less than from 1 to 5 feet above the water level in the boiler, according to the complication and extent of the circuit. The air is discharged at the radiators, and no waste of water is necessary.
(3) E. H. S.—Coal tar alone with gravel and sand for sidewalks does not dry well. Asphaltum with equal parts of coal tar melted together and sprinkled upon the mixed sand and gravel that has been made hot upon an iron plate (the mixing to be done in a large pan of iron), putting no more asphalt and tar upon the sand and gravel than will just make it stick together; then dump into place while hot, spread quickly, and beat level with a ram or heavy roller. Dust over the surface with fine sand before rolling or beating, to prevent the material from sticking to the roller or beater. This operation requires a little care and experience as to just the amount of asphalt and tar for a given measure of sand and gravel, and also for the proportions of sand and gravel required to make the best pavement. Sometimes a thin bed of broken stone is laid as a foundation. Also a thin bed of coarse gravel is sometimes spread before dumping the hot mixture.
(4) J. C.—A first class ice boat, sailing on first class ice, will sail from three to four times faster than the wind that drives the boat. For example, a wind having a velocity of fifteen miles an hour will drive the boat at the rate of from forty to sixty miles an hour.
(5) T. H. G. writes: I have a mahogany table which has been varnished and has ink spots on it. 1. By what means can I get the varnish and ink off, in order to rub on an oil finish? A. The ink spots can be washed off with water and the varnish with alcohol. 2. What is best to polish carved brass? A. Polish with rotten stone and oil, alcohol, or spirits of turpentine. 3. What will remove water stains from polished marble? A. Mix quicklime with strong lye,
(Continued on page x.)
In connection with the publication of the Building Edition of the Scientific American, Messrs. Munn & Co. furnish Plans and Specifications for Buildings of every kind, including Public Buildings, Churches, Schools, Stores, Dwellings, Carriage Houses, Barns, etc. In this work they are assisted by able and experienced architects.
Those who contemplate building, or who wish to alter, improve, extend, or add to existing buildings, whether wings, porches, bay windows, or attic rooms, are invited to communicate with the under‐signed. Our work extends to all parts of the country. Estimates, plans, and drawings promptly prepared. Terms moderate. Address
MUNN & CO., 361 Broadway, New York
Any person having a new invention may, without charge, consult MUNN & CO., Scientific American Office, 361 Broadway, New York, for advice how to obtain a Patent or Caveat. Our Hand Book of Instructions relating to Patents sent free.
Practical Working Drawings of machinery made by A. K. Mansfield & Co., 280 Broadway, N. Y. Life‐long mechanics. One formerly R. R. supt. M. P. Important references. Work guaranteed. Correspondence invited.
For Sale—22 unbound volumes Scientific American, of old dates. Also a lot of odd numbers, in good order. For a descriptive list address I. R. Hudson, 212 East 14th St., New York.
All kinds wood engraving. Perfect; lowest rate; sell engr. tools, mate’l, machs. N. H. Taylor, Wyandotte, Kan.
Portable grinding mills. Chas. Kaestner & Co., Chicago, Ill.
Engines and boilers. Chas. Kaestner & Co., Chicago, Ill.
For Sale—The following braiding machines: 2 nine carriers, 1 twelve carriers, 2 thirteen carriers, 1 sixteen carriers, 1 twenty carriers, 1 twenty‐one carriers. Also three looms, 24 and 30 shuttles. All the above will be sold cheap. Raymold & Whitlock, 99 Fourth Ave., N. Y.
Wanted—New invention or novelty for the English market by a first‐class London house, having a large connection among shippers, warehousemen, drapers, etc. Address “Everclean,” 100 Wood St., London, England.
Lacquers.—Zapon, Brilliantine, Brassoline, Opaline, and other lacquers and special varnishes. Brilliant, hard, durable. Send for catalogue. The Fred’k Crane Chemical Co., Short Hills, N. J. N. Y. agent, Horace Van Sands, 733 Broadway.
For the best and cheapest 4 Horse Engine, address Peter Walrath, Chittenango, N. Y.
Perforated metals of all kinds for all purposes. The Robert Aitchison Perforated Metal Co., Chicago, Ill.
For the latest improved diamond prospecting drills, address the M. C. Bullock Mfg. Co., 138 Jackson St., Chicago, Ill.
The Railroad Gazette, handsomely illustrated, published weekly, at 73 Broadway, New York. Specimen copies free. Send for catalogue of railroad books.
The Knowles Steam Pump Works, 113 Federal St., Boston, and 93 Liberty St., New York, have just issued a new catalogue, in which are many new and improved forms of Pumping Machinery of the single and duplex, steam and power type. This catalogue will be mailed free of charge on application.
Link Belting and Wheels. Link Belt M. Co., Chicago.
Presses & Dies. Ferracute Mach. Co., Bridgeton, N. J.
Nickel Plating.—Sole manufacturers cast nickel anodes, pure nickel salts, polishing compositions, etc. $100 “Little Wonder.” A perfect Electro Plating Machine. Sole manufacturers of the new Dip Lacquer Kristaline. Complete outfit for plating, etc. Hanson, Van Winkle & Co., Newark, N. J., and 92 and 94 Liberty St., New York.
Iron Planer, Lathe, Drill, and other machine tools of modern design. New Haven Mfg. Co., New Haven, Conn.
Supplement Catalogue.—Persons in pursuit of information of any special engineering, mechanical, or scientific subject, can have catalogue of contents of the Scientific American Supplement sent to them free. The Supplement contains lengthy articles embracing the whole range of engineering, mechanics, and physical science. Address Munn & Co., Publishers, New York.
The Holly Manufacturing Co., of Lockport, N. Y., will send their pamphlet, describing water works machinery, and containing reports of tests, on application.
Curtis Pressure Regulator and Steam Trap. See p. 301.
Planing and Matching Machines. All kinds Wood Working Machinery. C. B. Rogers & Co., Norwich, Conn.
For best leather belting and lace leather, including Hercules, see Page Belting Co.’s adv., p. 318.
Iron, Steel, and Copper Drop Forgings of every description. Billings & Spencer Co., Hartford, Conn.
Paint mills. Chas. Kaestner & Co., Chicago, Ill.
Pat. Geared Scroll Chucks, with 3 pinions, sold at same prices as common chucks by Cushman Chuck Co., Hartford, Conn.
Steam Hammers, Improved Hydraulic Jacks, and Tube Expanders. R. Dudgeon, 24 Columbia St., New York.
60,000 Emerson’s 1887 ☞ Book of superior saws, with Supplement, sent free to all Sawyers and Lumbermen. Address Emerson, Smith & Co., Limited, Beaver Falls, Pa., U. S. A.
Safety Elevators, steam and belt power; quick and smooth. D. Frisbie & Co., 112 Liberty St., New York.
“How to Keep Boilers Clean.” Send your address for free 88 page book. Jas. C. Hotchkiss, 120 Liberty St., N. Y.
Pays well on Small Investment.—Stereopticons, Magic Lanterns, and Views illustrating every subject for public exhibitions. Lanterns for colleges, Sunday schools, and home amusements. 152 page illustrated catalogue free. McAllister, Manufacturing Optician, 49 Nassau St., N. Y.
Ax handle and spoke lathes. Railway cutting off saw machines. Rollstone Machine Co., Fitchburg, Mass.
Best belt hooks are Talcott’s. Providence, R. I.
The Most Popular Scientific Paper in the World.
Only $3.00 a Year, including Postage. Weekly. 52 Numbers a Year.
This widely circulated and splendidly illustrated paper is published weekly. Every number contains sixteen pages of useful information and a large number of original engravings of new inventions and discoveries, representing Engineering Works, Steam Machinery, New Inventions, Novelties in Mechanics, Manufactures, Chemistry, Electricity, Telegraphy, Photography, Architecture, Agriculture, Horticulture, Natural History, etc.
All Classes of Readers find in the Scientific American a popular resume of the best scientific information of the day; and it is the aim of the publishers to present it in an attractive form, avoiding as much as possible abstruse terms. To every intelligent mind, this journal affords a constant supply of instructive reading. It is promotive of knowledge and progress in every community where it circulates.
Terms of Subscription.—One copy of the Scientific American will be sent for one year—52 numbers—postage prepaid, to any subscriber in the United States or Canada, on receipt, of three dollars by the publishers; six months, $1.50; three months, $1.00.
Clubs.—One extra copy of the Scientific American will be supplied gratis for every club of five subscribers at $3.00 each; additional copies at same proportionate rate.
The safest way to remit is by Postal Order, Draft, or Express Money Order. Money carefully placed inside of envelopes, securely sealed, and correctly addressed, seldom goes astray, but is at the sender’s risk. Address all letters and make all orders, drafts, etc., payable to
MUNN & CO.,
361 Broadway, New York.
This is a separate and distinct publication from The Scientific American, but is uniform therewith in size, every number containing sixteen large pages. The Scientific American Supplement is published weekly, and includes a very wide range of contents. It presents the most recent papers by eminent writers in all the principal departments of Science and the Useful Arts, embracing Biology, Geology, Mineralogy, Natural History, Geography, Archæology, Astronomy, Chemistry, Electricity, Light, Heat, Mechanical Engineering, Steam and Railway Engineering, Mining, Ship Building, Marine Engineering, Photography, Technology, Manufacturing Industries, Sanitary Engineering, Agriculture, Horticulture, Domestic Economy, Biography, Medicine, etc. A vast amount of fresh and valuable information pertaining to these and allied subjects is given, the whole profusely illustrated with engravings.
The most important Engineering Works, Mechanisms, and Manufactures at home and abroad are represented and described in the Supplement.
Price for the Supplement for the United States and Canada, $5.00 a year, or one copy of the Scientific American and one copy of the Supplement, both mailed for one year for $7.00. Address and remit by postal order, express money order, or check,
MUNN & Co., 361 Broadway, N. Y.,
Publishers Scientific American.
To Foreign Subscribers.—Under the facilities of the Postal
Union, the Scientific American is now sent by post direct from
New York, with regularity, to subscribers in Great Britain, India,
Australia, and all other British colonies; to France, Austria, Belgium,
Germany, Russia, and all other European States; Japan, Brazil, and
all States of Central and South America. Terms, when sent to foreign
countries, Canada and Mexico, excepted. $4, gold, for Scientific
American, one year; $9, gold for both Scientific American
and Supplement for one year. This includes postage, which we
pay. Remit by postal or express money order, or draft to order of
MUNN & CO., 361 Broadway, New York.
The Tiffany
Glass Company
MEMORIAL WINDOWS
GLASS WORK DECORATIONS
Designs and Estimates submitted.
| Louis C. Tiffany, Pres. | Pringle Mitchell, M’ger. |
|---|---|
| John Du Fais, Sec. | John C. Platt, Treas. |
333–335 Fourth Ave., New York City.
509 Pullman Building, Chicago.
The Old Bangor Slate Company
| F. C. YARNALL, President, | I. S. MOYER, Sec. & Treas., |
|---|---|
| Philadelphia. | Bethlehem, Pa. |
This Company is the original operator in the Bangor Valley, and continues to manufacture the Blue Roofing Slates which have become so celebrated for fineness of texture and uniformity of color.
We also beg to call the special attention of Architects and Builders to the fact that we have perfected a system by which we can furnish Slates with Sawed Edges of suitable size and curve for Towers or Domes of any size or shape.
Working Drawings should be furnished, in which case we can guarantee a perfect job.
Address Correspondence to
The Old Bangor Slate Company,
At Office, BETHLEHEM, PA.
Nystrom’s Pocket‐Book of Mechanics and Engineering.
Nineteenth Edition, Revised and Greatly Enlarged with Original Matter. By Wm. Dennis Marks, Ph.B., C.E. (Yale S.S.S.) Illustrated. 16mo. $3.50.
“A library in itself, giving a little of everything that the engineer and mechanic will need to know to aid them in every‐day practice.”—Industrial World, Chicago.
Marks on the Steam Engine.
Third Edition, Revised. Enlarged, and Interleaved. The Relative Proportions of the Steam Engine. By Wm. D. Marks. With numerous Illustrations. 12mo. Extra Cloth. $3.00.
“A work of inestimable value to every mechanic, containing as it does, rules, tables, and directions in regard to the steam engine which come into use in every‐day practical life of the engineer.”—San Francisco Wood and Iron.
Elements of Modern Chemistry.
(WURTZ.)
New Edition, Thoroughly Revised. Translated by W. H. Greene. 12mo. Cloth. $2.50. Sheep. $3.00.
“A valuable work as a class‐book, and a most interesting and instructive volume for the general reader.”—New York School Journal.
If not obtainable at your Booksellers’, send direct to the Publishers, who will forward the books, FREE OF POSTAGE, promptly on receipt of the price.
J. B. LIPPINCOTT COMPANY
PUBLISHERS,
715 and 717 Market St., Philadelphia.
Red‐Letter Days Abroad. By John L. Stoddard, author of “The Stoddard Lectures,” etc. 8vo. With illustrations. In box, $5; in morocco, $10. New Library edition, $3.50, in half calf, $7.
Laurence Hutton’s Literary Landmarks of London. 12mo. $1.50.
J. R. G. Hassard’s A Pickwickian Pilgrimage. $1.
William Winter’s Shakespeare’s England. 50 cents.
William Winter’s English Rambles. 12mo. $1.50.
William Winter’s The Trip to England. Ill’d. $2.
Robert Laird Collier’s English Home Life. $1.
Mrs. Lew Wallace’s The Storied Sea. 16mo. $1.
Henry James’s Portraits of Places. $1.50.
Henry James’s A Little Tour in France. $1.50.
Hubbard’s Woods and Lakes of Maine. $3.
Jane G. Austin’s Nantucket Scraps. $1.50.
Miss E. B. Chase’s Over the Border. Ill’d. $1.50.
Clarence King’s Mountaineering in the Sierra Nevada. With maps. 12mo. $2.
L. H. Weeks’s Among the Azores. Ill’d. $1.50.
Waring’s The Bride of the Rhine. Ill’d. $1.50.
Mrs. Dahlgren’s South‐Sea Sketches. $1.50.
D. J. Snider’s Walk in Hellas (Modern Greece). $2.50.
Geraldine. A sumptuous illustrated edition.
Scott’s Poems. New holiday edition. 350 illustrations.
Swanee River. A beautiful illustrated book.
My Old Kentucky Home. Richly illustrated.
Juan and Juanita. By Frances C. Baylor.
Fools of Nature. An Anti‐Spiritualist novel.
Under Pine and Palm. By Frances L. Mace.
Sobriquets and Nicknames. A reference book.
A Flock of Girls. By Nora Perry.
The New Astronomy. By Prof. S. P. Langley.
Carlyle‐Emerson Correspondence.
Hawthorne and His Wife. New editions. Each in two volumes. With illustrations. Per set, $3.00; in half calf, $6.00.
Japanese Homes. By Prof. E. S. Morse.
Chosön: The Land of the Morning Calm (Korea). By Percival Lowell. New editions. Each in one volume. 12mo. Illustrated. Per volume, $3.00; in half calf, $6.00.
THE TICKNOR SERIES OF OCTAVO POETS.
LIBRARY EDITION.
The Lady of the Lake.
The Lay of the Last Minstrel.
Marmion.
The Princess.
Childe Harold.
Lucile.
Six volumes, elegantly and uniformly bound, with all the original illustrations, beveled boards, and full gilt. In cloth. Each, $3.50. In tree calf or antique morocco, $7.50.
These are the most famous and popular editions in existence of great poems. In their original shape they have had enormous sales, and in their cheaper form, with all their original illustrations, complete and unworn, they will have renewed popularity.
Also uniform with the above in style and price, cheaper editions of the beautifully illustrated
Tuscan Cities. By W. D. Howells.
Red‐Letter Days Abroad. By J. L. Stoddard.
⁂ For sale by all booksellers. Sent, post‐paid, on receipt of the price by the publishers,
TICKNOR & CO., BOSTON.
J. Rayner.
IMPORTER AND MANUFACTURER
MAHOGANY
CABINET Woods and Veneers.
FOOT. EAST HOUSTON Sᵀ
NEW YORK.
275–289 EAST 20ᵀᴴ ST
CHICAGO, ILL.
HOT‐WATER HEATING,
For Greenhouses and Dwellings
HITCHINGS & CO.,
233 Mercer Street, N. Y.
SEND 3 CENTS POSTAGE FOR ILLUSTRATED CATALOGUE.
VIOLIN OUTFITS.
Consisting of Violin Box, Bow, and Teacher, sent to any part of the United States on 1 to 3 days’ trial before buying.
Violin Outfits at $4, $8, $15 and $25 each. Send Stamp for
Beautiful Illustrated 96‐page Catalogue of Violins, Guitars, Banjos, Cornets,
Flutes, Strings, etc. Lowest prices. Mail orders a specialty. C. W.
STORY, 26 Central Street, Boston, Mass.
PRICE $193.
WE SELL DIRECT TO FAMILIES— (avoid Agents and Dealers whose profits and expenses double the cost on every Piano they sell) and send this First‐Class UPRIGHT Cabinet GEM 7½ Octave Rosewood Piano, Warranted 6 years, for $193! We send it—with Beautiful Cover and Stool—for Trial in your own Home before you buy. Send for circulars to
Marchal & Smith, 235 East 21st St., N. Y.
ICE & REFRIGERATING
Machines. York Patent.
YORK MFG. CO., York, Pa.
Trade Mark.
Warren’s Natural Asphalt Roofing.
FINALLY PERFECTED AND TESTED BY TEN
YEARS OF PRACTICAL USE.
Over 15,000,000 square feet, or 350 acres, of this roofing have been laid within the past ten years. Superior to all other for flat roofs.
Much more durable than coal tar materials, because it remains practically unchanged when exposed to the weather.
An Asphalt roof emits no odor, and does not injure rain water.
References to many of the best buildings throughout the country given on application.
“Composite” Felt
FOR ROOF FOUNDATIONS.
A two‐ply composed of one layer of saturated felt and one of Manila rope paper. Combines durability and strength with lightness and pliability.
Send for Circulars and Samples.
Warren Chemical and Manufacturing Co.,
114 JOHN ST., N. Y.101 MILK ST., BOSTON.
BEATTY ORGANS
For $37.50 worth $75
$400.00 Organs only $80.00
$1200.00 Pianos for $250.00
Other BARGAINS, write for catalogue. Address,
DANIEL F. BEATTY, Washington, New Jersey
We
can
offer
to
your
advantage
GLUE.
| ⎧ ⎪ ⎨ ⎪ ⎩ |
SHELLAC, | ⎫ ⎪ ⎬ ⎪ ⎭ |
||
|---|---|---|---|---|
| ORANGE | WHITE | |||
| GUM | GUM | |||
| SHELLAC | VARNISH. | SHELLAC | ||
WOOD ALCOHOL,
WOOD STAIN.
F. W. THURSTON & CO.
IMPORTERS,
CHICAGO.
F. W. DEVOE & CO.
(Established 1852)
PURE
MIXED
PAINTS
We desire to call attention of consumers to the fact that we guarantee our ready mixed paints to be made only of pure linseed oil and the most permanent pigments. They are not “Chemical,” “Rubber,” “Patent,” or “Fireproof.” We use no secret or patent method in manufacturing them by which benzine and water are made to serve the purpose of pure linseed oil. Sample cards, containing 50 desirable shades, sent on application.
FINE VARNISHES,
WOOD FILLERS,
WOOD STAINS.
ARTISTS’ MATERIALS, MATHEMATICAL INSTRUMENTS.
Catalogues of our different departments to responsible parties.
| Cor. Fulton and | Coffin, Devoe & Co., |
|---|---|
| William Sts., | 176 Randolph St., |
| NEW YORK. | CHICAGO. |
——THE——
“Timby Burglar Proof Sash‐Lock & Ventilator.”
PATENTED MARCH 29th, 1887.
MEETS A LONG FELT WANT.
It is manufactured from the best Malleable Iron and Bronze Metal.
FIG. 1.
Section of Frame with Lock applied.
Thumb piece moved upward releasing upper sash.
FIG. 2.
Back view of Lock and operating device.
Thumb piece moved upward and bolt thrown back, same as in Fig. 1.
Is very simple in construction, strong and durable, absolutely Burglar Proof, and a perfect ventilator; Automatic in action, easily applied to any window, as it adjusts itself to varying thicknesses of Sash, or inside stops.
Only One Lock is Required for
A WINDOW.
As it controls both Sash perfectly, bolting either or both securely in any position desired, thereby affording means for perfect ventilation, and at the same time absolute security against Burglars and Sneak Thieves.
It is easily operated, ornamental in appearance, and does not interfere with applying weather strips or inside blinds, and is the only Side Sash Mortise Lock that can be used in connection with inside screens, it having been constructed with special reference to the same. As a rule, Burglars and Sneak Thieves have little difficulty in entering dwellings through windows because of their insecure fastenings. Hence it is just as important that each and every window should be provided with a good substantial lock as that the front door should be.
Buy the Timby Burglar Proof, and take no other.
The Convenience and Absolute Security afforded will be ample reward.
Full Directions and Pattern for setting accompany each Lock Sold.
For further information apply to I. G. JENKINS, Oswego, N. Y.
E. J. JOHNSON,
ROOFING SLATE
MARBLEIZED SLATE MANTELS, SLATE HEARTHS, SILLS, LINTELS, ETC.
SLATE NAILS, ROOFING FELT, SLATERS’ CEMENT, ETC.
Estimates Furnished on all Slate Work.
| QUARRY, | OFFICE, | |
|---|---|---|
| BANGOR, PA. | 18 BURLINGTON SLIP, N. Y. |
ADAMANT
WALL PLASTER.
MANUFACTURED BY
Adamant
Manufacturing
Company.
OFFICE
32 EAST GENESEE STREET,
SYRACUSE, N. Y.
The New, Cheap, and Only Superior Substitute for Common Plaster.
It is hard as marble, and will last as long as the building.
It does away with the warping and shrinking of doors and casings, it not being necessary, as with common plaster, to saturate the building with water.
It costs but little more than lime plaster, and its superior qualities make it immeasurably cheaper.
It saves waiting several weeks or months for the building to dry out. A room finished one day can be occupied the next.
It does not crack or fall off, even in case of leakages.
It is applied easily by any good mason.
It is the only material with which repairing can be done neatly and “to stay.”
☞ For Prices and Estimates, or Further Information, Apply to or Address the Company.
IMPORTANT
To Architects, Builders, House‐Painters, Decorators, Boat‐Builders and
Yachtsmen desiring an extremely durable Finish for Wood.
ROSENBERG’S
ELASTICA
TRADE MARK
REGISTERED
FINISHES
NO.1 & NO.2.
Are superior to any Varnishes or Wood‐Finishes in the market, for the following reasons, viz.:
They possess more body, higher luster, greater resisting properties to atmospheric influences, action of water and alkali, are more elastic, will not scratch or mar white, and are more durable.
For all classes
Inside Work,
Requiring great durability, use No. 2 ELASTICA FINISH.
For
Outside Work,
Requiring extreme durability, use No. 1 ELASTICA FINISH.
| WORKS: | Manufactured by | |
|---|---|---|
| 734–740 East 14th Street, | ⎫ ⎬ ⎭ |
STANDARD VARNISH WORKS, |
| 733–739 East 13th Street, | ||
| 199–207 Avenue D. | ||
| D. ROSENBERG & SONS, | ||
| Office, 207 Avenue D, | NEW YORK. | |
| Send for Samples and Full Particulars. | ||
The “Barry” Hanger.
Each wheel on the “Barry Hanger” is on an independent axle. All other hangers have the two wheels on one axle. Consequently, when one track settles more than the other (as they frequently do), the axle “tips,” and carries the door side‐wise toward the lowest track, causing an unpleasant rubbing against the track or casings below. The “Barry Hanger” overcomes this trouble, and a door will run as easy and true in the center, when there is a variation of one half inch or more in the height of the tracks, as it would when they are perfectly level.
—MANUFACTURED BY—
SYRACUSE BOLT CO.,
SYRACUSE, N. Y.
BUFF AND BLUE
AMHERST AND BEREA
SANDSTONE
Sawed stone of all kinds. Sawed and split flagging, curbing and gutter stone and bridge stone.
THE CLEVELAND STONE CO., CLEVELAND, O.
Send for illustrated catalogue.
EXCELLENT Black Copies of Architectural Drawings, Sketches, etc., by the Patent
AUTOCOPYIST
Only equalled by Lithography.
Specimen Free.
AUTOCOPYIST CO., 166 William St., New York.
⁂ PECORA ⁂ MORTAR ⁂ COLORS ⁂
Telephone 3454
Office
John M. Sharp,
Builder,
1936 SOUTH COLLEGE AVENUE,
Philadelphia.
Philadelphia, Jan. 27, 1887
Mess. S. Bowens Sons
Dr Sirs
After using a large quantity of your Red & Black I have found them entirely satisfactory and in all respects the best colors I have handled.
Yrs respectfully
John M Sharp
S. BOWEN’S SONS, 150 North 4th St., Philadelphia.
THE BRIDGEPORT WOOD FINISHING CO.
G. M. BREINIG, AGENT, Principal Office At manufactory
New Milford, Conn.
New York Business Office, 96–98 Maiden Lane. Manufacturers of
Wheelers Patent Wood Filler
Breinig’s Lithogen Silicate Paint.
LITHOGEN PRIMER, WOOD STAINS
SILEX FLINT AND FELDSPAR.
PAMPHLET GIVING DIRECTIONS FOR FINISHING HARD WOOD FREE TO ANY ADDRESS.
DRAW KNIFE CHAMFERER,
with adjusting screw to set it to the width of Chamfer wanted.
PAT. JULY 19, 87.
For sale by the Jobbing and Retail Hardware Dealers.
Sent to any address on receipt of 60c.
J. H. HOAGUE, TOOL MFR., CHICOPEE, MASS.
Two‐Horse Power Engine. $75.
WITH STEEL BOILER, $150.
Cheap, Reliable, Safe.
Automatic Boiler Feed. Automatic Pop Safety Valve, Steel Boiler. Cost of running guaranteed not to exceed three cents per hour. Nothing equal to it ever before offered for the price. Larger sizes equally low. Send for free descriptive circular.
CHAS. P. WILLARD & CO.,
236 Randolph Street, Chicago, Ill.
SHIELDS & BROWN CO.
Manufacturers of
Sectional
INSULATED AIR COVERS
—FOR—
Steam, Gas and Water Pipes, Drums, Heaters, etc.
The Best Non‐Conductor of Heat & Cold in the World.
Send for illustrated descriptive Circular, and name this paper.
| 143 Worth Street, | 78 and 80 Lake St., | |
|---|---|---|
| NEW YORK. | CHICAGO. |
Screw Plates.
THE NEW LITTLE GIANT
Send for CATALOGUE
F. F. F.
Adjustable Die
WELLS BROS. & CO.,
GREENFIELD, MASS.
MANUFACTURERS OF
Screw Cutting Machinery and Tools for Machinists’, Carriage Makers’,
and Blacksmiths’ Use.
COLEMAN
NAT’L BUSINESS
COLLEGE.
Newark, N. J.
National Patronage, Best Facilities, Best course of Business Training, Shortest Time, Lowest Rates, No Vacation. Address, H. COLEMAN, Pres.
ESTABLISHED 1843.
Manufacturers of
Stable Fittings and Fixtures,
IMPROVED and PATENTED
IRON, BRASS, BRONZED and NICKEL‐PLATED
POULTRY YARD APPLIANCES, ETC.
Low estimates furnished to Architects, Builders, Carpenters, Masons, etc.
Catalogue Mailed on Application.
SAMUEL S. BENT & SON,
No. 111 Chambers St., New York, N. Y.
EVERY VARIETY OF
PLAIN and FIRE PROOF
BUILDING PAPER,
ASBESTOS PAPERS,
Waterproof and Inodorous Papers, Plain and Corrugated Carpet Linings,
Deadening Felts, Roofing Materials, Tarred Board, &c., &c.
Two and Three Ply
Keystone Prepared Roofing
Send for Samples and Delivered Price List “B.”
H. F. WATSON, Manufactu’r, ERIE, PA.
Daily Capacity of Mills, 60 Tons.
CHANDLER & FARQUHAR
177 Washington St.
BOSTON.
New England Agents for
BARNES’ FOOT POWER MACHINERY
AND DEALERS IN
Machinists’ Supplies of Every Kind
Send two stamps for illus. catalogue
WELL
Encyclopedia of 700 Engravings of WELL TOOLS,
Diamond Drills and Lightning Hydraulic WELL Machines.
Book free, 25c. for mailing it.
American Well Works, Aurora, Ill.
Architectural Sheet‐Metal Works.
Metal Building Trimmings, Ventilating Skylights, Metallic Roofing Tiles, Building Specialties, Builders’ Light Iron Work.
J. S. THORN,
No. 1201 Callowhill St., Philadelphia, Pa.
N. CHENEY. C. HEWLETT.
CHENEY & HEWLETT
Architectural Iron Works.
EVERY VARIETY OF WROUGHT AND CAST IRON WORK FOR BUILDINGS.
OFFICE 201 BROADWAY.
NEW YORK.
BOOK GIVING STRENGTH OF WROUGHT IRON GIRDERS, BEAMS AND CAST IRON COLUMNS, MAILED ON APPLICATION.
ARCHITECTURAL AND ORNAMENTAL
IRON STAIRS, GRILLES,
GUARDS, GATES, RAILING.
Special attention to Ornamental Work.
Vault, Area, and Skylight (Cement and Iron).
Designs, Estimates, and Catalogues on application.
MANLY & COOPER MFG. CO.
4150 Elm Ave., Philadelphia. 271 Broadway, N. Y.
ESTABLISHED 1844.
SAMUEL H. FRENCH & CO.,
York Avenue, Fourth and Callowhill Sts.,
PHILADELPHIA, PA.
PAINT MANUFACTURERS.
Strictly Pure Lead, Zinc and Colors, Dry, in Oil, Japan,
and Ready Mixed for Use.
PEERLESS MORTAR COLORS
BLACK, BROWN, BUFF, AND RED.
Masons’ and Builders’ Supplies.
SEND FOR CATALOGUE AND CIRCULARS.
HOYT & BROTHER
Manufacturing Co.,
AURORA, ILL.
MANUFACTURERS OF
Machinery for Working Wood.
Planing Mill Machinery
a Specialty.
Send for Catalogue.
| CHILTON PAINTS. | ⎧ ⎪ ⎨ ⎪ ⎩ |
The Chilton Manuf’g Co. would call the attention of Architects and persons desiring a good article to their Pure Linseed Oil Paints. The most durable and therefore the most economical in use. Sample cards of colors sent on application. | ⎫ ⎪ ⎬ ⎪ ⎭ |
147 Fulton St., New York. |
|---|---|---|---|---|
| 141 Milk Street, Boston. |
HULL’S
Patent Wrought Iron Steel Dome
FURNACE.
(PATENTED SEPTEMBER 5th, 1882.)
Unequaled for Heating Power, Durability, and Freedom from Gas.
Send for Circular and References.
Four Sizes.
Portable and Brick Set.
Shaking and Dumping Grate.
No Charge for Estimating.
MANUFACTURED AND SET BY
HULL, GRIPPEN & CO.
310 & 312 THIRD AVENUE, NEW YORK.
THE IMPROVED FLORIDA
STEAM HEATER
The best and most complete House Heater in the world. Self‐feeding, automatic, portable and saves all expense of brick‐work. Most economical. Carries steam from 10 to 12 hours without attention. Compact. 14 sizes, from 4 to 6 feet high. Anti‐clinker grate, easily shaken, no dust. Sales larger than the combined sales of all reputable Steam Heaters.
3500 in ACTUAL USE,
all giving the best satisfaction. Estimates furnished on application.
Send for Illustrated Catalogue. Address
PIERCE, BUTLER & PIERCE MFG. CO.,
Sole Manufacturers, SYRACUSE, N. Y.
| GENERAL | ⎧ ⎪ ⎪ ⎨ ⎪ ⎪ ⎩ |
GEO. B COBB, 97 William St., New York, N. Y. CRANE BROS. MFG. CO., Chicago, Ill. JAS. B. ROBERTSON & CO., Baltimore, Md. N. O. NELSON MFG. CO., St. Louis, Mo. B. TABER & SON, Chicago, Ill. JAMES P. WOOD & CO., Philadelphia, Pa. |
|---|---|---|
| AGENCIES |
Black Diamond Steel Dome Furnaces.
ALL SIZES.
Patent Self‐Cleaning Ash Pit Obviates labor, dirt, and annoyance. Sure preventive from fire caused by hot ashes.
PORTABLE and BRICK SET.
Common Sense Clinker‐Crushing Grate. Great saving of labor and fuel.
Perfect Dump.
Patented and Manufactured by
The Schoen Heater and Stove Co.
Office and Salesroom
13 North Eleventh St.
Philadelphia.
SEND FOR ILLUSTRATED CATALOGUE.
AGENTS WANTED IN EVERY TOWN.
BENJ. THACKARA
CHAS. THACKARA
A. M. THACKARA
GAS FIXTURES
Chandeliers, Lanterns, Brackets, Electroliers,
Ecclesiastical Decorations, Lamps, and Grills
IN ALL Metals.
Designs Furnished, Estimates Given.
Correspondence Solicited.
Holiday Goods.
Bric‐a‐Brac.
THACKARA SONS & CO.,
1300 Chestnut St., Philadelphia.
Bartlett’s Wrought‐Iron, Brick‐Lined Portable Furnace.
THE VETERAN,
For fifty years has proven the Veteran’s Power, Durability, Efficiency, and Reliability.
HOT AIR
RADIATOR
STEEL DOME
JOB BARTLETT’s SONS
PHILAD.
USE EGG COAL
CLEAN OUT AND CHECK DOOR
VETERAN PORTABLE HEATER
ASHPIT MUST BE KEPT CLEAN
COLD AIR
PATD SEP. 5. 1882 AND JULY 20. 1886
NO DUST,
NO GAS,
NO SMOKE,
NO DAMPERS.
No Overheated Cast‐iron Surfaces.
Fire Clay Lined Fire Chambers.
The Veteran is made of Heavy Boiler Plate Iron. A Shaking and Dumping Grate is attached, which will give you great satisfaction in its control and management. Pure warm air in great abundance. Every furnace is warranted to give perfect satisfaction.
ESTABLISHED 1847.
Job Bartlett’s Sons, 10th & Filbert Sts., Phila.
ESTIMATES AND ADVICE FREE.
The Globe Steam Heater
DAMPER
SAFETY VALVE
TO DRAFT DOOR
Has been thoroughly tried in many private and public buildings and always found to be the best. Very economical, and easily managed. Large surface exposed directly to the fire. Ask for all particulars before you place your order for any other.
THE GLOBE SAFETY DAMPER REGULATOR SHOULD BE USED ON EVERY STEAM HEATER IN USE.
For new Illustrated Price List of Globe Steam Heating Appliances, address
Globe Steam Heater Co., North Wales, Pa.
THE DECORATOR AND FURNISHER.
FLEMING BREWSTER & ALLEY. N. Y.
PRESIDENT’S OFFICE OF THE DECORATOR AND FURNISHER COMPANY.
The Decorator and Furnisher.
A magnificently illustrated magazine devoted to the one subject of home adornment, both in furnishing and decorating. It is an artistic and practical answer to every inquiry and want in beautifying the home.
The Decorator and Furnisher contains original designs and articles on decoration by the best writers and most prominent artists.
The most successful magazine of its kind in this country, and it deserves all the prosperity it enjoys.—Buffalo News.
Yearly Subscription. $4.00. Single Copies, 35c.
30 & 32 East 14th St., New‐York.
Art Stained Glass
FOR CHURCHES, DWELLINGS, Etc.
Keystone Stained Glass Works,
271 SOUTH 5th ST., PHILADELPHIA.
The Combination Heater.
THE IMPROVED ECONOMY
Combination Steam and Warm Air
HEATER
IN ITS MANY POINTS OF MERIT
LEADS EVERY HEATER MADE.
SIMPLE, PRACTICAL, ECONOMICAL,
EMBODYING
DURABILITY and ABSOLUTE SAFETY.
Low Pressure, Radiates Heat with from 1½ to 3 pounds of Steam. One fire generates both Warm Air and Steam, increasing its capacity 25 per cent. over any All‐Steam Apparatus. Automatically regulated, maintaining a uniform temperature.
Our System of Warming Buildings with Steam Radiation and Warm Air insures
PERFECT VENTILATION.
THE ECONOMY WARM AIR FURNACES
Have a reputation that is neither excelled nor equalled for
DURABILITY, POWER, AND ECONOMY,
and are guaranteed in every respect.
Send for New 72 Page Catalogue,
giving full particulars, descriptions, and illustrations of 7 different styles of the
The Double Radiator Economy
Warm Air Furnace.
Combination Heaters
AND THE
Economy Warm Air
FURNACES.
Manufactured solely by the
J. F. Pease Furnace Co.,
Syracuse, N. Y., and Toronto, Ont.
Eastern Agents.—Earl B. Chace & Co., 206 Water St., New York; John Demarest, General New England Agent, 112 Portland St., Boston; W. H. Fenner & Co., Providence.
Western Agents.—Adkins & Hoffman, 177 East Randolph St., Chicago, Ill.; Goss Heating & Plumbing Co., 703 Main St., Kansas City, Mo.; Arthur A. Pond, 35 Washington Ave. South, Minneapolis, Minn.; Gage & Horton Mfg. Co., 1231 Olive St., St. Louis, Mo.
The M. H. JACOBS’ FURNACE CO.,
Manufacturers of the celebrated wrought iron spiral radiator and
steel dome portable
WARM AIR
FURNACES
With Hot Water Attachment.
Most Perfect and Durable
THE KING
of HEATERS
It wears the
Crown of
Superiority.
Most Economical
AND
POWERFUL.
The Spiral Radiator is exciting universal attention and careful examination by the public, as evidenced by the drift of popular favor. A cursory examination alone is sufficient to show its merits and superiority. It combines all the requisites of a successful furnace, viz.: Future Maintenance, Efficiency, and Power to Economize and Radiate the Heat Desired. No less attention has been given to the qualities upon which depend the health and vitality of our families.
MANUFACTURED BY
M. H. JACOBS’ FURNACE CO., Syracuse, N. Y.
“The AUBURN”
Steam Heating Boilers,
Automatic, Self‐Feeding, Portable.
Requires attention but once in from twelve to twenty‐four hours. Fuel magazine surrounded by water. Self‐locking shaking grate. Waste of coal impossible. No dust. No gas.
The Woodcock Patent Shaking Grate,
For Boiler Furnaces of all Descriptions
Saves its cost in a year, supplanting all other shaking grates. No waste of coal. No burnt or broken grates. Self‐locking, and as nearly automatic as a grate can be made.
Send for Illustrated Catalogue.
Woodcock & Co., Auburn, N. Y.
so as to form a mixture having the consistency of cream, and apply it immediately with a brush. If this composition be allowed to remain for a day or two, and be then washed off with soap and water, the marble will appear as though it were new.
(6) J. M. D. asks: Is there any virtue in the “divining rod,” so called, as a means of determining the locality of hidden streams of water? A. None whatever. The bobbing of the stick is due to a muscular pressure by the holder.
(7) C. W. C. desires (1) a recipe for a stain to imitate mahogany on white birch wood, that will not raise the grain of the wood. A. A dark mahogany stain is made as follows: Boil half a pound of madder and 2 ounces of logwood chips in 1 gallon of water, and brush well over the wood while hot; when dry, go over the whole with pearlash solution, 2 drachms to the quart. 2. Can you give recipe for making the acid stain? A. In the acid stain you take nitric acid, and dilute with 10 parts of water, and wash the wood with it. 3. Are there any books which give full directions for imitating the different woods? A. We would recommend for your purpose Spons’ Workshop Receipts (second series), which we can send you, postpaid, for $2.00.
(8) A subscriber asks how to make spirit varnish suitable for varnishing carved wood. A. Take 1 ounce copal and ½ ounce shellac; powder them well, and put them into a bottle or jar containing 1 quart alcohol. Place the mixture in a warm place and shake it occasionally until the gums are completely dissolved; and when strained the varnish will be ready for use.
(9) J. W. B. desires a recipe for some fire‐extinguishing liquid. A. One of the best solutions for the extinction of incipient fires consists of crude calcium chloride 20 parts, salt 5 parts, dissolved in water 75 parts. Keep at hand, and apply with a hand pump.
(10) G. H. A. says: I have lately made a workshop of an upper room, and have put in a lathe, boiler, and engine of a total weight of 2,400 pounds, resting upon 3 joists 3 inches by 9 inches by 16 feet 0 inches. Will it strengthen the floor sufficiently to enable it to carry the increased weight if I bolt three 3 inch by 8 inch joists to the existing ones? A. You had better use 4 inch by 8 inch joists bolted with ⅜ inch bolts about 10 inches apart. Take care to provide solid bearings for your new joists, wedging the ends up with tiles in cement.
(11) W. A. writes: I have noticed in your issue of the Scientific American, at various times, the receipt for making a printing machine called the hektograph. You also gave a recipe for making a black ink to be used with the same. I have tried both, but I find a great difficulty in gaining a success. I have tried the process for the ink in the manner you describe, but I fail to produce any copies. Ink is prepared with nigrosine. It will not create a bronze. Would you therefore kindly direct me in the right direction, that is to say, to get a black ink that can be used by the hektograph? A. The ink you desire is made by dissolving soluble nigrosine (aniline black) in 5 to 7 parts of water. It should be a saturated solution and rather thick. For use on the hektograph it is best to use a purple ink. See “The Copying Pad,” etc., contained in Scientific American Supplement, No. 438.
(12) A. C. R. writes: Can you recommend me a good rubber cement? I wish to cement leather together, the cement to be waterproof, to resist oil, and the leather to retain its elasticity after pressing. A. Dissolve gutta percha in bisulphide of carbon; shave off the edges of the leather, and pour on the cement; allow to evaporate to dryness. Then put the two faces together, previously heating thoroughly, and press until cool.
(13) G. F. asks the best kind of a vessel to make liquid gold in, for potter’s use. A. Either a glass or a porcelain vessel will answer.
(14) W. J. M. asks how papier mache is made to stand the action of water. A. Coat with a mixture made by fusing together equal parts of pitch and gutta percha, to which is added two parts of linseed oil containing five parts of litharge. Continue the heat until the ingredients are uniformly commingled, and apply warm.
(15) J. D. & Co. ask a process to prevent the smuts from escaping in the air from a lampblack house. A. Carry the outlet of your lampblack chamber to one side and into the top of a vertical shaft, where place a rose jet of water. Have the water drop vertically in an even spray, so as to produce a draught down the shaft. The water will gather the waste lampblack, which can be either utilized or run into the sewer. A vent at the bottom of the shaft may connect with a chimney or into the open air. A pump or city water supply will be required.
(16) W. D. G., Jr., asks how large a main pipe will be required to supply 6 hydrants and 50 dwelling houses, the water to be brought 1 mile with a 70′ head; the hydrants to be used with a 1″ nozzle, and there being no probability of more than two being required at a time? A. About a 6″ pipe; a smaller one would not give the desired pressure for hydrant uses.
(17) S. M. writes: Can you give a formula for a brilliant waterproof finishing polish to be used on veneer after it is rubbed down with pumice stone and water? The polish to be applied the same as French polish. Use linseed oil 1½ pounds, amber 1 pound, litharge 5 ounces, white lead, pulverized, 5 ounces, minium 5 ounces. Boil the linseed oil in an untinned copper vessel, and suspend in it the litharge and minium in a small bag, which must touch the bottom of the vessel. Continue the boiling until the oil has acquired a deep brown color, then take out of the bag and put in a clove of garlic; this is to be repeated 7 or 8 times, the boiling being always continued. Before the amber is added to the oil it is to be mixed with 2 ounces linseed oil and melted over a fire that is well kept up. When the mass is fluid, it is to be boiled and stirred continually for 2 or 3 minutes; afterward filter the mixture, and preserve it in bottles tightly corked. When this varnish is used, the wood must be previously well polished and covered with a thin coat of soot and spirits of turpentine. When the coat is dry some of the varnish may be applied, which should be equally distributed on every part with a small, fine sponge. This operation must be repeated four times, being always careful that each coat will be well dried first. After the last coat of varnish, the wood must be dried in an oven and afterward polished.
(18) G. P. writes: We want some plan to prevent the noise or work of our lodge room (I.O.O.F.) from being heard in the room below; we have a good floor and carpet, good partitions, walls plastered, etc., but are willing to go to quite an expense to remedy the present defect on this score. A. Probably you have no deafening under the floor. In such case there are only two ways that we can suggest for your trouble: To take up the floor and put in a plaster deafening between the seams. Next, to take up the carpet and lay two thicknesses of roof felting or paper boards (book‐binders’ boards might do, or paper carpet lining). Then lay battens across the floor, and a new floor on the battens. Do not nail the battens to the old floor. Then lay the carpet lining and the carpet on the lining.
(19) W. A.—To clean marble from discoloration: Try 2 parts sodium carbonate, 1 of pumice stone, and 1 of finely powdered chalk. Mix into a fine paste with water. Rub this over the marble, and the stains will be removed; then wash with soap and water.
(20) F. B. asks in regard to papier mache floor covering: 1. Will it hurt to use printed paper? A. According to the article “A Papier Mache Floor Covering” we find Manila paper recommended. It is very likely that newspaper would answer, but it is by no means as strong an article as the variety spoken of. 2. How thick will that covering be? A. The thickness depends upon whether more than a single thickness of the paper is used—probably from one‐sixteenth to one‐eighth of an inch in thickness. 3. How long will it be before it is ready for use? A. That depends entirely upon the drying; if artificial heat is applied, we should think that the whole operation could be carried through and the covering finished within a week.
(21) C. C. C. asks: Which would be the best test for water works—to have three streams on one main near each other, or three streams on different mains scattered over the town? The mains 8 inches, 6 inches, and 4 inches, works half a mile from town. A. If you are testing in the interest of contractors, place the trial streams as near the source of supply as possible, and also near the 8 inch main. A fair test will be to locate the streams widely apart on one distributing branch.
(22) F. L. asks how to imitate walnut graining. A. Try the following: The wood, previously thoroughly dried and warmed, is coated once or twice with a stain composed of 1 ounce extract of walnut peel dissolved in 6 ounces of soft water by heating it to boiling, and stirring. The wood, thus treated, when half dry is brushed with a solution of 1 ounce potassium bichromate in 5 ounces boiling water, and is then allowed to dry thoroughly, and is to be rubbed and polished as usual.
(23) Z. T. D. asks: How much water per second will flow through a 14 inch pipe, 80 feet long, with 8 feet head? Also, 18 inch and 21 inch pipes, same conditions? A. The discharge for 14 inch pipe, 18 cubic feet per second. For 18 inch pipe, 34 cubic feet per second. For 21 inch pipe, 50 cubic feet per second.
Full plans and specifications for any of the various buildings illustrated in this work may be obtained, on very moderate terms, at this office. These include churches, schools, dwellings, enlargements, extensions, wings, etc. The two volumes for the past year, which may be purchased for $3, contain nearly 200 elevations and many plans. Address Munn & Co., 361 Broadway, Architects and Builders Edition Scientific American.
PATENTS.
Messrs. Munn & Co., in connection with the publication of the Scientific American, continue to examine improvements, and to act as Solicitors of Patents for Inventors.
In this line of business they have had forty‐one years’ experience, and now have unequaled facilities for the preparation of Patent Drawings, Specifications, and the prosecution of Applications for Patents in the United States, Canada, and Foreign Countries. Messrs Munn & Co. also attend to the preparation of Caveats, Copyrights for Books, Labels, Reissues, Assignments, and Reports on Infringements of Patents. All business intrusted to them is done with special care and promptness, on very reasonable terms.
A pamphlet sent free of charge, on application, containing full information about Patents and how to procure them; directions concerning Labels, Copyrights, Designs, Patents, Appeals, Reissues, Infringements, Assignments, Rejected Cases, Hints on the Sale of Patents, etc.
We also send, free of charge, a Synopsis of Foreign Patent Laws, showing the cost and method of securing patents in all the principal countries of the world.
MUNN & CO., Solicitors of Patents,
361 Broadway, New York.
BRANCH OFFICES.—No. 622 and 624 F Street, Pacific
Building, near 7th Street, Washington, D. C.
Duplex Steam‐Heater Co.
Manufacturers under FISKE’S PATENTS,
10 Barclay Street, New York.
Simplest in Construction.
Largest Steaming Capacity.
Write for References and Discount.
Send for Illustrated Catalogue and Price‐List.
Agents Wanted Everywhere.
THE NEW ERA RADIATOR
SEMI‐SECTIONAL VIEW.
Will utilize the heat that now escapes up your chimney.
It will save 500 to 1,000 lbs. of coal out of every ton.
Can be put on any stove pipe, either in the room with the stove, to increase the heat, or it will heat room adjoining or room above.
COSTS LITTLE.
SAVES MUCH.
Send for Circular and Testimonials.
Wilmot Castle & Co.,
Rochester, N. Y.
GATES IMPROVED HOT WATER HEATER
Office of FITCHBURG GAS CO.
Fitchburg, May 17, 1887.
Mr. E. N. Gates.
Dear Sir: Having now used your system of Hot Water Circulation
in my house from December first to May fifth, it gives me pleasure
to say that it has met the requirements of the extreme cold of the
past winter and the mild weather of the spring months in the most
perfect manner, giving out just the temperature for comfort in all the
variations of temperature outside, and with great economy in fuel.
Yours respectfully,
H. F. COGGSHALL, Treasurer and Manager.
The following Special Advantages over other Methods of Heating:
1st.—Over Hot Air Furnaces.—No Dust! No Burnt Air! No Gas! and ability to send the heat where it is wanted, without regard to direction of wind or height of cellar, and using less fuel for amount of space heated.
2d.—Over Steam, High or Low Pressure.—From the fact the temperature of water in radiators can be between 70° and 212° or higher, thus adapting it to all degrees of outside temperature, thereby, taking the season through, it makes a great saving in fuel in this point alone, besides the comfort of having a building evenly heated.
3d.—Over Other Hot Water Systems.—In all others, the water goes to Radiators from one common reservoir. Therefore, being next to impossible to have all rooms heated alike. Different rooms will receive current of water at different rates of speed. With this system all rooms can be heated alike, when desired, from the fact that each current is provided with an independent boiler, and the hot water must go where the pipe leads, and you have perfect control over every room, and can be put in at less cost than any other system of hot water heating to do the same work.
For Illustrated Circular, References, and Full Particulars, address
E. N. GATES, Box 1504, FITCHBURGH, MASS.
NEW YORK SAFETY DUMB WAITER FIXTURES
Patented United States, April 19th, 1887; in Canada, May 18th, 1887.
The MOST COMPLETE, SIMPLE and ABSOLUTELY SAFE WAITER made. Provided with SAFETY ROPE, AVOIDING ACCIDENT. ENTIRELY NOISELESS, and moves with perfect ease.
FIXTURES ONE SIZE ONLY, adapted to any size waiter. Can be adjusted by any CARPENTER or MECHANIC. DIAGRAM and FULL DIRECTIONS ACCOMPANY EACH SET.
HANDSOMELY BRONZED, and packed ONE SET in a BOX. Sold by the Hardware trade.
PRICE, 15.00.
For catalogue address the manufacturers.
THE EDWARD STORM SPRING CO., Limited,
Poughkeepsie, N. Y.
or, JOHN H. GRAHAM & CO., Sole Mfrs. Agents,
113 Chambers Street, New York.
N. W. AYER–SON. PHILA.
ARTISTIC HOMES, 1887.
The most practical work published. Contains 76 full page Illustrations of Queen Anne and Colonial Villas and Cottages, costing from $1500 upward. Price $4.50. Parties contemplating building cheap or expensive residences will find it to their advantage to correspond with us.
FULLER & WHEELER,
Architects,
ALBANY, N. Y.
Our celebrated ALDERLY brand was selected by the Commissioners of the Western Tennessee Hospital for the Insane at Bolivar, Tennessee, for the Roof, Gutters and Valleys of the building, over all other leading brands of Terne Plates after a thorough test of all its qualities.
These buildings required over 1000 boxes of ALDERLY Brand Terne Plate, which is the largest contract ever made for one particular brand of Roofing Tin.
The ALDERLY Brand was selected purely on its merits.
GUMMEY, SPERING, INGRAM & CO.,
PHILADELPHIA—LIVERPOOL.
P. S.—The ALDERLY is the only perfectly square Terne plate in the market, being resheared before coating.
THE FEW ADVANTAGES OF THE COMBINATION SYSTEM AS DEMONSTRATED BY
THE PERFECTLY COMBINED STEAM AND WARM AIR HEATING APPARATUS.
Portable: 3 sizes, 28, 32, and 36 inch.
1st.—Two results with but one fire.
2d.—All benefit derived from a Steam Heater is radiated in the Combination, while no sacrifice is made in wasting what you are compelled to burn before reaching Steam Radiation (212 degrees).
3d.—With steam, when fire is banked for the night, radiation ceases—in the Combination, never!
4th.—With steam, the consumption of fuel is the same at 60° as it is at zero. In the Combination, you burn only what the outside temperature demands.
5th.—The drafts are automatically arranged, requiring no further attention.
6th.—In zero weather all Hot Air Heaters are weak—in the Combination, steam supplies the power whenever wanted.
Brick set: 5 sizes, 28, 32, 36, 40, and 48 inch.
With these positive advantages, it is no difficult matter to decide which to purchase.
A home well heated is a necessity. This comfort can be secured by a little outlay.
THE PERFECTLY COMBINED
Steam and Warm Air Heating Apparatus
IS MANUFACTURED BY THE
WEIR & NIXON STEAM and WARM AIR HEATING CO.
1410 & 1412 North Sixth St., Philadelphia, Pa.
CATALOGUES SENT TO PARTIES WISHING HEATING APPARATUS.
The OMEGA FIREPLACE FURNACE
20 page illustrated catalogue, containing full information and prices, sent to any address.
A Double Heater and Perfect Ventilator. A Revolution in Fireplace Heating. Gives the combined heat of both a Furnace and Fireplace, with Perfect Ventilation. Equalizes the heat in every part of the room. Burns equally well Hard or Soft Coal, Wood or Coke. Address
OMEGA STOVE AND GRATE CO.,
89 Euclid Ave., Cleveland, Ohio.
The Draper Recording Thermometer.
Size 14 × 20 in. Patented. Copyrighted.
This thermometer gives a permanent and continuous record in ink of the temperature. The chart indicating hours of the day and days of the week gives the degrees of temperature from 20° below zero to 110° above. All instruments are accurately adjusted and warranted. The record is easily read and absolutely correct. Sold by the leading instrument dealers and opticians throughout the United States and Canada, and by
The DRAPER
MANUFACTURING CO.
Owners of the United States and foreign patents. 152 Front Street, New York
THE BARAGWANATH STEAM JACKET
Feedwater Boiler and Purifier.
Boils the feedwater. Keeps the boiler clean. Saves boiler repairs. Saves from 15 to 40 per cent. of fuel. Large heating surface. No radiating surface. No back pressure. Thoroughly utilizes the exhaust. Strong and durable. Over 5,000 in use. Send for circular.
WM. BARAGWANATH & SON. 40 West Division Street, Chicago, Ill.
JAS. B. CROUTHERS, M. E., General Eastern Manager, 112 Liberty Street, New York.
DRAWING INSTRUMENTS,
DRAWING PAPER,
BLUE PROCESS PAPER,
AMERICAN LIQUID INK.
A fully illustrated and priced catalogue of 200 pages of all instruments and materials used by draughtsmen sent upon mention of this paper.
G. S. WOOLMAN,
116 FULTON ST.,
NEW YORK.
“MERSHON” PATENT
SHAKING GRATE
For Steam and Hot Air Furnaces. The most reliable and Perfect Shaking Grate in the world. Send for catalogue. “Mershon” Patent Shaking Grate, Heater and Range Works,
1203 Filbert Street, Philadelphia, Pa.
HOW TO MAKE AN INCUBATOR.—
Full directions, illustrated with 7 figures. Also directions for
operating the apparatus. Contained in SCIENTIFIC AMERICAN SUPPLEMENT,
No. 612. Price 10 cents. To be had at this office and from all
news‐dealers.
MINERAL WOOL!
INDESTRUCTIBLE. FIRE‐PROOF. SOUND‐PROOF.
FROST‐PROOF. VERMIN‐PROOF. ODORLESS.
For Deadening, Fire‐Proofing, Insulation of Heat and Cold in Buildings, Prevention of Frost in Water or Gas Pipes.
MINERAL WOOL FIRE PROOF COVERING
(Patented May 29, 1883.)
Also Fire‐Proof Sectional Coverings for Steam Pipes and Boilers. Best non‐conductor for all surfaces, Steam or Fire Heat. Will not Char, Crack, or Burn. Easily applied and removed by any one, and is indorsed by Insurance Companies. For full information and sample free, address
Western Mineral Wool Co.,
Box 123. CLEVELAND, O.
| EDWARD FORD, Prest. | E. L. FORD, Secy. | |
|---|---|---|
| A. PITCAIRN, Vice‐prest. | JOHN F. SCOTT, Treas. |
PITTSBURGH PLATE GLASS CO.,
CREIGHTON, PA.,
MANUFACTURERS
POLISHED PLATE GLASS.
Ground and Rough Plate Glass for Floors and Skylights.
Three‐sixteenths thickness, made expressly for fine residences.
LARGE AND WIDE GLASS A SPECIALTY.
The Largest Plates of Glass in the cities of Chicago, Cleveland,
Detroit, St. Paul, Syracuse, Pittsburgh, Philadelphia,
Baltimore, and in many New York buildings, were
manufactured at our works.
IMMENSE PRODUCTION.
The combined production of our two factories is 260,000 square feet per month. The largest production of any factory in the world, which enables us to fill our orders promptly.
The high reputation and unprecedented large sale of glass made by this company since its organization is due entirely to its superior quality, NATURAL GAS alone being used throughout both works as fuel.
—CORRESPONDENCE SOLICITED.—
| Works No. 1, | Works No. 2, | |
|---|---|---|
| CREIGHTON, PA. | TARENTUM, PA. |
WESTERN UNION WIRE AND TELEPHONE CONNECTION IN GENERAL OFFICE, CREIGHTON, PA.
REFRIGERATORS.
Estimates furnished (under new construction) for
Hotels, Stores and Butchers’ Use
ALSO A LINE
FOR RESIDENCES,
BY
FRANK W. LOCKWOOD,
240 South Second St., Philadelphia.
J. I. CASE
T. M. Cᴼ.
Saw Mills
Stationary & Portable Engines and Threshers.
Racine Wisconsin.
Send for Illustrated Catalogue
23 Awards of Merit for Superiority.
Walter Shingle.
The oldest, the best, the cheapest.
Locks of one piece. No cleats or springs. Simple and perfect. Made in four sizes, of Copper, Tin, Steel, or Galvanized Tin.
Full line of Roofing Sundries.
If you want an antique finish, get our Queen Anne Shingles.
Send for Catalogue and Price List, special to the trade.

Wholesale Agents:
W. W. Montague & Co., San Francisco, Cal., Pacific Coast.
Knisely & Miller, Chicago, Ill.
Geo. Tritch Hardware Co., Denver, Col.
Phillips & Buttorff Mfg. Co., Nashville, Tenn.
McDonald, Kemp & Co., Toronto, Sole Agts., Canada.
Jerome Twichell & Co., Kansas City, Mo.
The Nat’l Sheet Metal Roofing Co., 510 to 520 E. 20th St. N. Y.
ARTESIAN
Wells, Oil and Gas Wells, drilled by contract to any depth, from 50 to 3000 feet. We also manufacture and furnish everything required to drill and complete same. Portable Horse Power and Mounted Steam Drilling Machines for 100 to 600 ft. Send 6 cents for illustrated catalogue.
Pierce Well Excavator Co.
New York.
USEFUL BOOKS.
Manufacturers, Agriculturists, Chemists, Engineers, Mechanics, Builders, men of leisure, and professional men, of all classes, need good books in the line of their respective callings. Our post office department permits the transmission of books through the mails at very small cost. A comprehensive catalogue of useful books by different authors, on more than fifty different subjects, has just been published for free circulation at the office of this paper. Subjects classified, with names of author. Persons desiring a copy have only to ask for it, and it will be mailed to them.
TITLE OF SUBJECTS:
AGRICULTURE.
ANATOMY & PHYSIOLOGY.
ANIMALS, DOMESTIC.
ARCHITECTURE & BUILDING.
ANALYSIS AND ASSAYING.
ASTRONOMY.
BIOLOGY, ZOOLOGY, ETC.
BOTANY.
BREWING AND DISTILLING.
CABINET MAKING, CARVING, AND TURNING.
CARPENTRY.
CHEMISTRY.
CIVIL ENGINEERING.
COOKING.
DICTIONARIES AND CYCLOPEDIAS.
DRAWING, ETCHING, ENGRAVING, ETC.
DYEING AND PRINTING.
ELECTRICITY.
FISHING, SHOOTING, ETC.
GAS.
GEOLOGY & MINERALOGY.
HEAT.
HORTICULTURE AND ARBORICULTURE.
HOROLOGY.
HYDRAULICS.
LAW.
LEATHER.
MATHEMATICS AND SURVEYING.
MACHINERY.
MARINE ENGINEERING.
MECHANICS.
MEDICINE AND SURGERY.
MENTAL SCIENCE.
METALLURGY.
MICROSCOPY.
MILLS AND MILLING.
MILITARY ENGINEERING TACTICS, ETC.
MINING.
MISCELLANEOUS.
MOULDING AND FOUNDING.
NATURAL HISTORY, ETC.
NAVIGATION.
PAINTING.
PERFUMERY.
PHOTOGRAPHY.
PHYSICS.
POLITICAL ECONOMY.
POTTERY.
SANITARY ENGINEERING.
SCIENCE SERIES.
STEAM ENGINEERING.
STEEL AND IRON.
STONE.
TAXIDERMY.
TEXTILE MANUFACTURES.
TECHNOLOGY.
Address MUNN & CO., 361 Broadway, New York.
RUBBER BELTING, PACKING, HOSE,
AND ALL OTHER KINDS OF
RUBBER GOODS,
——FOR——
MECHANICAL and MANUFACTURING PURPOSES.
The Largest and Most Extensive Manufacturers in America.
THE GUTTA PERCHA AND RUBBER MFG. CO.
New York, Chicago, San Francisco, Toronto.
CONANT BOSTON
MARSTON’S
Hand & Foot Power
Circular Saw.
Iron frame 36 inches high. Top 80 × 40 inches, centre part of iron with planed grooves on each side of saw for cutting off gauges to slide in. Ripping gauge slides in iron groove. Steel shafts. Gears are all machine cut from solid iron. Boring table and side treadle. Two 6‐inch saws and two cranks with each machine. Weight 350 pounds.
Send for price list.
J. M. Marston & Co.
Cor. Appleton & Tremont Sts.,
BOSTON, MASS.
Plans and Specifications.
Full plans, specifications, and sheets of details, complete, ready for the builder, may be obtained at this office, for any of the structures illustrated in this publication. We also prepare plans for buildings of every description, including churches, colleges, schools, stores, dwellings, carriage houses, barns, etc.
We are assisted in this work by able architects, and we try to make our estimates reliable, so that the work can be done by any reliable builder at the prices named. Terms moderate.
MUNN & CO.,
361 Broadway New York.
Valuable Books for Architects, Builders, Etc.
Promptly sent, on receipt of the price, by MUNN & Co. No. 361 Broadway, New York City.
AMERICAN COTTAGES.
Consisting of 44 large quarto plates. Containing Original Designs of
Medium and Low‐cost Cottages, Seaside and Country Houses; also a Club
House, School House, Pavilion, and a small Seaside Chapel, together
with a Form of Specification for Cottages. One large quarto volume.
$5.00
ARCHITECTS’ AND BUILDERS’ POCKET‐BOOK.
Containing Original Tables and Valuable Information for Architects,
Builders, Engineers, and Contractors. By E. F. Kidder. Fully
illustrated with plates. Put up in pocket‐book form, morocco flaps
$3.50
ARCHITECT’S HAND‐BOOK.
A Hand‐Book of Formulæ, Tables, and Memoranda, for Architectural
Surveyors and others engaged in Building. By J. T. Hurst, C.E.
Thirteenth edition. Royal 32mo, roan $2.00
ARCHITECTURAL DETAILS.
Containing 387 designs and 967 illustrations of the various Parts
needed in the Construction of Buildings, Public and Private, both for
the City and Country; also, Plans and Elevations of Houses, Stores,
Cottages, and other Buildings. By M. F. Cummings, M.A., Architect,
Associate Author of “Architecture, by Cummings & Miller.” One large 4to
volume, 56 plates. Reduced from $10.00 to $6.00
ARCHITECTURAL STUDIES.
PART I.—12 Designs for Low‐cost Houses. This set includes the Prize
Designs for $2,500 Houses of “Building Competition No. 1.” These will
show Elevations, Plans, and Details, together with Specifications,
Bills of Materials, and Estimates of Cost. In addition to the above,
there are given a number of other Designs, ranging in cost from $500 to
$4,000 $1.00
PART II.—Store Fronts and Interior Details. Containing 12 plates of
Designs and Details for the following classes of Stores: Drug Store,
Restaurant, Village Shop, Retail 25‐ft. Store, Bank and Office Finish,
Cigar Store, Corner Dry Goods Store, Store Front, Basement, and First
Story, and others $1.00
PART III.—Stables. Containing 12 plates of Stables suitable for
Village Lots, ranging in cost from $300 upward. This set of plates will
contain a fine selection of Designs giving Exteriors, Plans, and some
Details. Paper portfolio $1.00
PART IV.—Seaside and Southern Houses. 12 plates of Designs for Cheap
Houses, with ample Verandas, suited to a summer climate. Average cost,
$1,500 $1.00
PART V.—Outbuildings. Containing 12 plates of Designs of small
Stables, Summer Houses, Pavilions, Privies, Fences, Gates, etc.
$1.00
PART VI.—Perspectives, Elevations, and Plans, with Specifications,
Bills of Materials, etc., of Houses costing from $500 to $2,500
$1.00
PART VII.—Designs for Door and Window Finish, Wainscoting, Mantels,
Closets, etc. $1.00
ARCHITECTURE.
Encyclopedia of Gwilt’s, Historical, Theoretical, and Practical. New
edition, revised, with Alterations and considerable Additions. By Wyatt
Papworth, F.R.I.B.A. Nearly 1,600 wood engravings (about 500 being new
to the work). Thick 8vo, cloth $20.00
BRICKS, TILES, AND TERRA COTTA.
A Treatise on the Manufacture and Materials, Tools, Machines, and Kilns
used. By Charles T. Davis. 800 pages, 228 engravings, and 6 plates
$5.00
BUILDING SUPERINTENDENCE.
By Professor Theodore M. Clark. One vol. Profusely illustrated with
Plans, Diagrams, etc. $3.00
BUILDING CONSTRUCTION.
A Complete Manual of the Details of Construction, illustrated with
a large number of engravings.
PART I. Contents: Walling and Arches;
Brickwork; Masonry; Carpentry; Floors; Partitions; Timber Roofs; Iron
Roofs; Slating; Plumbers’ Work; Cast Iron Girders, etc.; Joinery.
PART II. Contents: Brickwork and Masonry; Timber Roofs; Roof Coverings;
Built‐up Beams; Curved Ribs; Timber and Iron Girders; Centers; Joinery;
Stairs; Riveting; Fire‐Proof Floors; Iron Roofs; Plasterers’ Work;
Painting, Paper‐Hanging and Glazing. Price of each $3.50
PART III. Materials: 1. Stone; 2. Bricks, Tiles, Terra Cotta, etc.; 3.
Limes, Cements, Mortar, Concrete, Plaster, and Asphalts; 4. Metals;
5. Timber; 6. Paints and Varnishes; 7. Glass; 8. Paper‐Hanging; 9.
Miscellaneous. Post‐paid $6.00
CARPENTRY MADE EASY;
Or, The Science and Art of Framing on a New and Improved System. With
Specific Instructions for Building Balloon Frames, Barn Frames, Mill
Frames, Warehouses, Church Spires, etc. Comprising also a System of
Bridge Building, with Bills, Estimates of Cost, and valuable Tables.
Illustrated by 44 plates, comprising nearly 200 figures. By William L.
Bell, Architect and Practical Builder. 8vo $5.00
CHURCH ARCHITECTURE, WITHERS’.
One large volume of fifty‐one 9 × 14 plates, substantially bound in
extra cloth, sent by mail or express to any part of the United States
upon receipt of price, reduced from $15.00 to $10.00
CONCRETE.
A Practical Treatise on Natural and Artificial Concrete, its Varieties
and Constructive Adaptations. By Henry Reid, C.E., author of “The
Science and Art of the Manufacture of Portland Cement.” Third edition,
8vo, cloth $6.00
COTTAGES;
Or, Hints on Economical Building. Containing 24 plates of Medium
and Low‐cost Houses, contributed by different New York Architects;
together with descriptive letterpress, giving Practical Suggestions
for Cottage Building. Compiled and edited by A. W. Brunner, Architect.
And a chapter on the Water Supply, Drainage, Sewerage, Heating, and
Ventilation, and other Sanitary Questions relating to Country Houses.
By Wm. Paul Gerhard. One 8vo volume, cloth $1.00
COTTAGE, THE SUBURBAN.
Its Design and Construction. Containing over 100 illustrations and full
descriptive letterpress. This book gives Practical Instruction on every
question arising in House Building, and should be in the hands of every
one intending to build. One 8vo vol., cloth $1.50
DECORATION, INTERIOR.
By A. W. Brunner and Thomas Tryon, Architects, with 65 illustrations,
giving suggestions about Hall, Staircase, Library, Parlor, Dining‐Room,
etc. Study, Bed‐Rooms. Fifteen plates. Just published $3.00
MANTELS, ALBUM OF.
One large quarto volume, bound in cloth $4.00
Unbound in portfolio 4.00
This book contains 60 plates and 103 designs of mantels and shelves.
MASONRY AND STONECUTTING,
In which the Principles of Masonic Projection and their Application
to the Construction of Curved Wing‐Walls, Domes, Oblique Bridges, and
Roman and Gothic Vaulting, are explained. By Edward Dobson, M.R.I.B.A.,
etc. $1.50
HOUSE PAINTER.
Modern House Painting, containing 20 colored lithographic plates,
exhibiting the Use of Color in Exterior and Interior House Painting,
and embracing examples of simple and elaborate in Plain, Graded, and
Parti‐colors; also the Treatment of old style of Houses, together
with full descriptive letter‐press, covering the Preparation, Use,
and Application of Colors, with Special Directions applicable to each
example; the whole Work offering Valuable Hints and Suggestions on
Harmonious Color Treatment, suitable to every variety of Building. By
E. K. Rossiter and F. A. Wright. Oblong, 4to, cloth $5.00
LEFFEL’S HOUSE PLANS.
Containing Elevations, Plans, and Descriptions of Houses costing
from $500 to $3,000, and adapted to families having good taste and
moderate means. Including the six prize plans in the Mechanical News
competition. One oblong quarto $2.00
Band Saws. Band Saws.
DAMASCUS TEMPERED BY NATURAL GAS HEAT, SUPERIOR TOUGHNESS.
After more than ten years’ experience in the manufacture of Band Saws,
we have discovered a new process of Tempering and Straightening
all at one operation. This process insures absolute perfection.
We specially request all users of Band Saws to send us their address in
full, and also a description of the sizes of saws used, and we will, by
return mail, quote them special prices, and also send them our pamphlet
on the Band Saw, which contains much valuable information for all users
of Band Saws.
The Superior Quality of our Band Saws, All Tempered, Straightened, and Trued at one operation, which we have patented, makes them so perfect that our SALES HAVE MORE THAN TREBLED IN THE PAST YEAR. Our largest and best customers prefer them to the best imported saws.
☞WRITE FOR OUR CIRCULAR AND REDUCED PRICE LISTS.☜
NATURAL GAS
Is perfectly free from all impurities, and steel heated by its use does not scale. It contains no sulphur or other base substances. We are the first to adopt its use in heating saws for tempering, which explains the cause of our saws being tougher than any others now made.
The Emerson Patent
$100.00 GOLD PREMIUM
DAMASCUS TEMPERED
SAWS
MADE BY
EMERSON SMITH & CO.
BEAVER FALLS PA
Send for price list and circular
PATENTED SEPT. 9ᵀᴴ 1884.
OUR CIRCULAR SAW
Of all sizes from 6 inches in diameter to 6 feet, both Solid and Inserted Teeth, also our
Double Toothed Cross Cuts
(two saws in one), for all uses HAVE NO EQUAL.
Our SAWYER’S HANDBOOK will be sent FREE to any part of the world on receipt of full name and address.
Address EMERSON, SMITH & CO. (LIMITED).
Beaver Falls, Pa.
| Adjustable Clapboard Marker. | Page | |
|---|---|---|
| Stanley Rule & Level Co. | cover ii | |
| Adjustable Planes. | ||
| Stanley Rule & Level Co. | cover ii | |
| Advertising Agent. | ||
| B. G. Underwood | v | |
| Advertising Glass Signs. | ||
| The Western Sand Blast Co. | iii | |
| Air Brush. | ||
| Air Brush Mfg. Co. | iii | |
| Architects’ and Surveyors’ Supplies. | ||
| L. Manasse | ii | |
| Architects. | ||
| Fuller & Wheeler | xi | |
| C. Powell Karr, C.E. | v | |
| Munn & Co. | vi | |
| F. L. Smith | ii | |
| Architectural Iron Work. | ||
| Cheney & Hewlett | viii | |
| J. S. Thorn | viii | |
| Manly & Cooper Mfg. Co. | viii | |
| Architectural Wood Turning. | ||
| Anderson & Dickey | iv | |
| Standard Wood Turning Co. | iv | |
| Artesian Well Machinery. | ||
| Pierce Well Excavator Co. | xiii | |
| Artists’ Materials. | ||
| F. W. Devoe & Co. | vii | |
| Asphalt Paint and Cement. | ||
| M. Ehret, Jr., & Co. | cover iv | |
| Warren Chemical and Mfg. Co. | vii | |
| Asbestos. | ||
| Asbestos Packing Co. | cover ii | |
| H. W. Johns Mfg. Co. | ii | |
| Automatic Air Valves. | ||
| Thos. L. McKeen | ii | |
| Balusters, Stair Rails, Etc. | ||
| The Standard Wood Turning Co. | iv | |
| Anderson & Dickey | iv | |
| Band Instruments. | ||
| Lyon & Healy | ii | |
| Bath Tub, Tile Lined. | ||
| Sharpless & Watts | ii | |
| Black Varnish. | ||
| M. Ehret, Jr., & Co. | cover iv | |
| Boiler Coverings. | ||
| Asbestos Packing Co. | cover ii | |
| M. Ehret, Jr., & Co. | cover iv | |
| Shields & Brown | viii | |
| H. W. Johns Mfg. Co. | ii | |
| Jas. F. Wood & Co. | i | |
| Booksellers and Publishers. | ||
| Decorator and Furnisher | ix | |
| Wm. T. Comstock | iv | |
| J. B. Lippincott & Co. | vi | |
| Ticknor & Co. | vi | |
| Brass Goods. | ||
| C. H. Besly & Co. | ii | |
| Bric‐a‐Brac. | ||
| Thackara Sons & Co. | ix | |
| Brick. | ||
| Jas. H. Beggs & Co. | ii | |
| Chicago Anderson Pressed Brick Co. | ii | |
| Brick Machinery. | ||
| Chambers, Bro. & Co. | iii | |
| Henry Martin | v | |
| Builders’ Hardware. | ||
| Orr & Lockett | cover iii | |
| Building Paper, Felt, Etc. | ||
| Asbestos Packing Co. | cover ii | |
| M. Ehret, Jr., & Co. | cover iv | |
| Warren‐Ehret Co. | cover iii | |
| Warren Chemical and Mfg. Co. | vii | |
| H. F. Watson | viii | |
| Builders’ Scroll Saw. | ||
| W. F. & J. Barnes Co. | ii | |
| Building Plans and Specifications. | ||
| Munn & Co. | vi | |
| Cabinet Woods and Veneers. | ||
| J. Rayner | vii | |
| Cables. | ||
| Standard Underground Cable Co. | i | |
| Calipers. | ||
| Chandler & Farquhar | viii | |
| Carbolate of Lime. | ||
| M. Ehret, Jr., & Co. | cover v | |
| Carpenters’ Machinery. | ||
| Fred. A. Rich | iv | |
| Carpenters’ Tools. | ||
| Stanley Rule and Level Co. | cover ii | |
| Carpet Lining. | ||
| Warren‐Ehret Co. | cover iii | |
| H. F. Watson | viii | |
| Cements. | ||
| H. W. Johns Mfg. Co. | ii | |
| M. Ehret, Jr., & Co. | cover iv | |
| Chandeliers. | ||
| J. P. Frink | ii | |
| Thackara Sons & Co. | ix | |
| Clapboard Marker. | ||
| Stanley Rule & Level Co. | cover ii | |
| Color Grinders. | ||
| Wm. T. Lindeman & Co. | cover iii | |
| Combination Square. | ||
| L. S. Starrett | v | |
| Contractor and Builder. | ||
| Allen B. Rorke | v | |
| Copying Process. | ||
| Autocopyist Co. | viii | |
| Cordage. | ||
| J. P. Tolman & Co. | cover ii | |
| Covering for Steam, Gas, and Water Pipes. | ||
| M. Ehret, Jr., & Co. | cover iv | |
| H. W. Johns Mfg. Co. | ii | |
| Shields & Brown | viii | |
| Western Mineral Wool Co. | xii | |
| Jas. F. Wood & Co. | i | |
| Creosote Wood Stains for Shingles, Etc. | ||
| Samuel Cabot | ii | |
| Cutter Heads. | ||
| Sam’l J. Shimer | iv | |
| Desks and Office Furniture. | ||
| T. G. Sellew | cover ii | |
| Door Hangers. | ||
| Syracuse Bolt Co. | viii | |
| Door Plates. | ||
| J. M. Stutzman | iii | |
| Draftsman’ Adjustable Curve Ruler. | ||
| Frank W. Davenport | v | |
| Draw Knife Chamferer. | ||
| J. H. Hoague | viii | |
| Drawing Instruments, Etc. | ||
| G. S. Woolman | xii | |
| L. Manasse | ii | |
| Drilling Tools and Machinery. | ||
| C. H. Besly & Co. | ii | |
| Dumb Waiter Fixtures. | ||
| The Edward Storm Spring Co. | xi | |
| Edge Tools. | ||
| Fayette R. Plumb | cover iv | |
| Electric Conductors and Cables. | ||
| Standard Underground Cable Co. | i | |
| Electric Lights. | ||
| Brush Electric Co. | cover ii | |
| The Thomson‐Houston Electric Co. | cover iii | |
| Electrical Supplies. | ||
| Shaw & Geary | cover iv | |
| Elevators. | ||
| L. S. Graves & Co. | v | |
| Howard Iron Works. | v | |
| Morse, Williams & Co. | v | |
| End Wood Mosaic. | ||
| Wood‐Mosaic Co. | cover iii | |
| Engines and Boilers. | ||
| C. P. Willard & Co. | viii | |
| Engineers’ Supplies. | ||
| L. Manasse | ii | |
| Feed Water Boiler and Purifier. | ||
| Wm. Baragwanath & Son | xii | |
| Feed Water Heaters. | ||
| Stewart Heater Co. | cover ii | |
| Fire Brick. | ||
| Henry Maurer & Son | iii | |
| Fireproof Building Materials. | ||
| Henry Maurer & Son | iii | |
| Fireproofing Material. | ||
| Asbestos Packing Co. | cover ii | |
| H. W. Johns Mfg. Co. | ii | |
| Foot and Hand Power Machinery. | ||
| W. F. & J. Barnes Co. | ii | |
| C. E. Little | ii | |
| Fred. A. Rich | iv | |
| Seneca Falls Mfg. Co. | ii | |
| Furnaces. | ||
| Abram Cox Stove Co. | cover iii | |
| Job Bartlett’s Sons | ix | |
| Hull, Grippen & Co. | ix | |
| E. A. Jackson & Bro. | cover ii | |
| M. H. Jacobs’ Furnace Co. | x | |
| Klein Furnace Co. | i | |
| Leibrandt & McDowell Stove Co. | i | |
| Omega Stove & Grate Co. | xii | |
| J. F. Pease Furnace Co. | x | |
| J. Reynolds & Son | v | |
| Schoen Heater and Stove Co. | ix | |
| Thomas, Roberts, Stevenson & Co. | cover iii | |
| Gas Engines. | ||
| Economic Motor Co. | cover ii | |
| Williams & Orton Mfg. Co. | iv | |
| Gas Fires. | ||
| H. P. Dixon & Co. | cover iv | |
| Gas Fixtures. | ||
| Thackara Sons & Co. | ix | |
| Gas and Water Pipes. | ||
| Gloucester Iron Works | v | |
| Glass—Plate. | ||
| Gillinder & Sons | cover iii | |
| Pittsburg Plate Glass Co. | xii | |
| P. Semmer & Co. | iii | |
| Glass (Stained and Mosaic). | ||
| Bray & Breck | iii | |
| Alfred Godwin | cover iv | |
| Gillinder & Sons | cover iii | |
| Keystone Stained Glass Works | ix | |
| Tiffany Glass Co. | vi | |
| Glaziers’ Diamonds, Etc. | ||
| Gillinder & Sons | cover iii | |
| Glue. | ||
| F. W. Thurston & Co. | vii | |
| Greenhouse Boilers. | ||
| Peter Devine | ii | |
| Hitchings & Co. | vii | |
| Ground & Rough Glass for Floors, Etc. | ||
| Pittsburg Plate Glass Co. | xii | |
| Hack Saws. | ||
| Miller’s Falls Co. | cover ii | |
| Hammers. | ||
| Fayette R. Plumb | cover iv | |
| Hand Sawing Machines. | ||
| W. F. & J. Barnes Co. | ii | |
| Hardwood Floors. | ||
| Wood‐Mosaic Co. | cover iii | |
| Heating Apparatus. | ||
| Abram Cox Stove Co. | cover iii | |
| Job Bartlett’s Sons | ix | |
| Wilmot Castle & Co. | xi | |
| Duplex Steam Heater Co. | xi | |
| E. N. Gates | xi | |
| Globe Steam Heater Co. | ix | |
| Hitchings & Co. | vii | |
| Hull, Grippen & Co. | ix | |
| E. A. Jackson & Bro. | cover ii | |
| M. H. Jacobs’ Furnace Co. | x | |
| Klein Furnace Co. | i | |
| Leibrandt & McDowell Stove Co. | i | |
| D. Mershon’s Sons | xii | |
| Omega Stove & Grate Co. | xii | |
| J. F. Pease Furnace Co. | x | |
| Pierce, Butler & Pierce | ix | |
| J. Reynolds & Son | v | |
| Schoen Heater and Stove Co. | ix | |
| Thomas, Roberts, Stevenson & Co. | cover iii | |
| Weir & Nixon | xii | |
| Woodcock & Co. | x | |
| Iron Work for Building Purposes. | ||
| Cheney & Hewlett | viii | |
| Manly & Cooper Mfg. Co. | viii | |
| J. S. Thorn | viii | |
| Leather Belting. | ||
| Page Belting Co. | iii | |
| Leveling Instruments. | ||
| John W. Harmon | ii | |
| Liquid Glue. | ||
| Russia Cement Co. | v | |
| Lithographers. | ||
| Schumacher & Ettlinger | cover ii | |
| Lumber. | ||
| I. G. Jenkins | vii | |
| Lumber Drying. | ||
| Hayden Bros. | iii | |
| Machinists’ Supplies. | ||
| Chandler & Farquhar | viii | |
| Mahogany and Veneers. | ||
| Hayden Bros. | iii | |
| J. Rayner | vii | |
| Mail Chutes. | ||
| The Cutler Mfg. Co. | cover ii | |
| Mantels, Grates, Fire Places, Etc. | ||
| E. J. Johnson | vii | |
| Masons’ and Builders’ Supplies. | ||
| S. Bowen’s Sons | viii | |
| S. H. French & Co. | viii | |
| Mathematical Instruments. | ||
| F. W. Devoe & Co. | vii | |
| Metallic Roofing Tiles and Shingles. | ||
| Gummey, Spering, Ingram & Co. | cover iv | |
| National Sheet Metal Roofing Co. | xiii | |
| Thorn Shingle and Ornament Co. | iii | |
| Mineral Wool. | ||
| Western Mineral Wool Co. | xii | |
| Mortar Colors. | ||
| S. Bowen’s Sons | viii | |
| S. H. French & Co. | viii | |
| “New Flint Glass Ornamental Tile.” | ||
| Gillinder & Sons | cover iii | |
| Office and Bank Fittings. | ||
| A. H. Andrews & Co. | ii | |
| Organs. | ||
| D. F. Beatty | vii | |
| Ornamental Brick. | ||
| Jas. H. Beggs & Co. | ii | |
| Chicago Anderson Pressed Brick Co. | ii | |
| Ornamental Glass Work. | ||
| C. H. Postel & Co. | cover iv | |
| The Western Sand Blast Co. | iii | |
| Ornamental Iron Work. | ||
| Manly & Cooper Mfg. Co. | viii | |
| Ornamental Rustic Work. | ||
| John Wheeler | v | |
| Packing Materials. | ||
| Asbestos Packing Co. | cover ii | |
| Paints. | ||
| The Chilton Mfg. Co. | viii | |
| F. W. Devoe & Co. | vii | |
| Eureka Color Works | cover iv | |
| S. H. French & Co. | viii | |
| H. W. Johns Mfg. Co. | ii | |
| Wm. T. Lindeman & Co. | cover iii | |
| W. H. Stewart | ii | |
| F. W. Thurston & Co. | vii | |
| Parquet Floors. | ||
| The Butcher Flooring Co. | iv | |
| J. Dunfee & Co. | v | |
| Wood‐Mosaic Co. | cover iii | |
| Pavement Lights. | ||
| Manly & Cooper Mfg. Co. | viii | |
| Photographic Outfits. | ||
| E. & H. T. Anthony & Co. | ii | |
| Pianos. | ||
| Marchal & Smith | vii | |
| Planing Mill Machinery. | ||
| Hoyt & Bro. Mfg. Co. | viii | |
| Polished Plate Glass. | ||
| Pittsburgh Plate Glass Co. | xii | |
| Porous Terra Cotta. | ||
| Henry Maurer & Son | iii | |
| Porous Earthenware. | ||
| Henry Maurer & Son | iii | |
| Poultry Yard Appliances. | ||
| S. S. Bent & Son | viii | |
| Prepared Roofing. | ||
| M. Ehret, Jr., & Co. | cover iv | |
| H. F. Watson | viii | |
| Pressed Brick. | ||
| Jas. H. Beggs & Co. | ii | |
| Chicago Anderson Pressed Brick Co. | ii | |
| Pumps. | ||
| Goulds Mfg. Co. | cover iv | |
| Pumping Engines. | ||
| Economic Motor Co. | cover ii | |
| Radiators. | ||
| Wilmot Castle & Co. | xi | |
| Railing Iron. | ||
| Manly & Cooper Mfg. Co. | viii | |
| Railway and Steam Fitters’ Supplies. | ||
| Fayette R. Plumb | cover iv | |
| Recording Thermometer. | ||
| The Draper Mfg. Co. | xii | |
| Reducing Valve. | ||
| Mason Regulator Co. | iv | |
| Reflectors. | ||
| J. P. Frink | ii | |
| Refrigerators. | ||
| F. W. Lockwood | xii | |
| Roof Snow Guards. | ||
| John H. Hiller | cover ii | |
| Roofing. | ||
| Asbestos Packing Co. | cover ii | |
| M. Ehret. Jr., & Co. | cover iv | |
| H. W. Johns Mfg. Co. | ii | |
| W. H. Stewart | ii | |
| Warren‐Ehret Co. | cover iii | |
| Warren Chemical & Mfg. Co. | vii | |
| H. F. Watson | viii | |
| Roofing Slate. | ||
| E. J. Johnson | vii | |
| The American Bangor Slate Co. | iv | |
| The Old Bangor Slate Co. | vi | |
| Roofing Tin. | ||
| Gummey, Spering, Ingram & Co. | xi & cover iv | |
| Merchant & Co. | cover iv | |
| N. & G. Taylor Co. | cover iv | |
| Roofing and Wall Tiles. | ||
| The National Sheet‐Metal Roofing Co. | xiii | |
| Thorn Shingle and Ornament Co. | iii | |
| Sandstone. | ||
| Cleveland Stone Co. | viii | |
| Sand Blast and Embossed Railroad Glass. | ||
| The Western Sand Blast Co. | iii | |
| Sash Balance. | ||
| Pullman Sash Balance Co. | iv | |
| Sash Cord. | ||
| J. P. Tolman & Co. | cover ii | |
| Sash Lock and Ventilator. | ||
| I. G. Jenkins | vii | |
| Saws. | ||
| Emerson, Smith & Co. | xiv | |
| Seneca Falls Mfg. Co. | ii | |
| Scroll Saws and Tools. | ||
| W. F. & J. Barnes Co. | ii | |
| Fred. A. Rich | iv | |
| Seneca Falls Mfg. Co. | ii | |
| Shade Roller. | ||
| Cushman Bros. & Co. | ii | |
| Shaking Grate. | ||
| D. Mershon’s Sons | xii | |
| Woodcock & Co. | xi | |
| Sheathing Lath. | ||
| I. G. Jenkins | vii | |
| Shellac. | ||
| F. W. Thurston & Co. | vii | |
| Shingles (Wood). | ||
| I. G. Jenkins | vii | |
| Shingle Stains. | ||
| Sam’l Cabot | ii | |
| Dexter Bros. | i | |
| Shutter Worker. | ||
| F. B. Mallory | iii | |
| Skylights. | ||
| G. Hayes | v | |
| J. S. Thorn | viii | |
| Sliding Blinds. | ||
| Wm. Willer | ii | |
| Stable Fittings and Fixtures. | ||
| S. S. Bent & Son | viii | |
| Stained Glass Substitute. | ||
| W. C. Young | cover iii | |
| Stair Iron. | ||
| Manly & Cooper Mfg. Co. | viii | |
| Steel Alphabets, Stencil Cutting, Etc. | ||
| J. M. Stutzman | iii | |
| Taps and Dies. | ||
| Wiley & Russell Mfg. Co. | iii | |
| Tinting Colors. | ||
| Eureka Color Works | cover iv | |
| Tools and Foot Power Machinery. | ||
| C. E. Little | ii | |
| Seneca Falls Mfg. Co. | ii | |
| Fayette R. Plumb | cover iv | |
| Tower Ornaments, Finials, Etc. | ||
| Thos. W. Jones | i | |
| Underground Cable. | ||
| Standard Underground Cable Co. | i | |
| Valves and Hydrants. | ||
| Gloucester Iron Works | v | |
| Varnish. | ||
| F. W. Devoe & Co. | vii | |
| Wm. T. Lindeman & Co. | cover iii | |
| Standard Varnish Works | viii | |
| F. W. Thurston & Co. | vii | |
| Vault Lights. | ||
| Manly & Cooper Mfg. Co. | viii | |
| Ventilating and Exhaust Fans. | ||
| Geo. P. Clark | iii | |
| Ventilators. | ||
| T. T. Cohen | v | |
| Merchant & Co. | ii | |
| Violin Outfits. | ||
| C. W. Story | vii | |
| Wall Plaster. | ||
| Adamant Mfg. Co. | vii | |
| Water Pressure Regulators. | ||
| H. Mueller & Sons | i | |
| Weather Strips. | ||
| J. Dunfee & Co. | v | |
| Richmond Weather Strip Co. | iii | |
| Weather Vanes. | ||
| Thos. W. Jones | i | |
| Well Tools. | ||
| American Well Works | viii | |
| Window Sash Cord. | ||
| J. P. Tolman & Co. | cover ii | |
| Window Shadings. | ||
| Oswego Shade Cloth Co. | cover iv | |
| Wood Carpet. | ||
| J. Dunfee & Co. | v | |
| Wood‐Mosaic Co. | cover iii | |
| Wood Filler. | ||
| Bridgeport Wood Finishing Co. | viii | |
| F. W. Devoe & Co. | vii | |
| Wm. T. Lindeman & Co. | cover iii | |
| D. Rosenberg & Sons | viii | |
| F. W. Thurston & Co. | vii | |
| Woodworking Machinery. | ||
| Connell & Dengler | iii | |
| E. & F. Gleason | cover iv | |
| Goodell & Waters | v | |
| Hoyt & Bro. | viii | |
| C. B. Rogers & Co. | iv | |
| Rollstone Machine Co. | iii | |
| Samuel J. Shimer | iv | |
| Wrenches. | ||
| Geo. W. Marble | i | |
SCIENTIFIC AMERICAN
ARCHITECTS
AND BUILDERS
EDITION.
Vol. IV.
JULY–DECEMBER,
1887.
MUNN & CO., PUBLISHERS,
No. 361 Broadway, New York.
Articles Marked * are Illustrated.
I. A Cottage for $2,500. A residence in Kansas City. With large plate of details drawn to a scale. July.
II. A $4,000 cottage. A $1,400 double house. With plate of details drawn to a scale. August.
III. A Southern residence of moderate cost. A $1,200 cottage. With plate of details drawn to a scale. September.
IV. A residence of moderate cost. A country store and flat. With plate of details drawn to a scale. October.
V. City frame houses of moderate cost. A $2,500 dwelling. With plate of details drawn to a scale. November.
VI. A dwelling of moderate cost. A suburban residence. With large plate of details drawn to a scale. December.
| Figures preceded by a star (*) refer to illustrated articles. | |
|---|---|
| A | |
| Adulteration of flour, | 44 |
| Africa, industries in, | 71 |
| Air filter, | *23 |
| Antiquarian discovery, | 24 |
| Arch, construction of, | 131 |
| Apartment house, Mortimer, | 121 |
| Arch, Roman, | *16 |
| Architects, women as, | 6 |
| Architecture, design in, | 100 |
| Architecture, mud, in Persia, | 41 |
| Architecture, naval, | 49 |
| Architecture, school house, | *105 |
| Architectural era, the, | 129 |
| Artist’s house, | *18 |
| Ash, white, the, | 125 |
| Asphalt, artificial, | 47 |
| B | |
| Bamboo tree, | 123 |
| Bank building, design, | *69 |
| Basswood, | 42 |
| Bathing establishment, | *134 |
| Beams, iron vs. wood, | 133 |
| Bearings, to obtain, | 70 |
| Bed room decoration, | 50 |
| Bell, largest known, | 69 |
| Bell, Shaw & Gray, | *78 |
| Bevel, improved, | *49 |
| Birthplace of James Watt, | *121 |
| Blacksmith’s epitaph, | 18 |
| Blinds, | 91 |
| Blistering, | 47 |
| Bloomfield, C. C., residence, | *72 |
| Board, sounding, St. Paul’s, | 142 |
| Boiler, Auburn, | *100 |
| Boilers, removing grease from, | 61 |
| Bourse, at Havre, | *10 |
| Brick and brickwork, cost, | 83 |
| Brick dust cement, | 69 |
| Bricks, Gladstone, | 78 |
| Brick making, Chinese, | 93 |
| Bricks, fire, | 126 |
| Bridge, Britannia, | 7 |
| Bridges, temporary, | *52 |
| Broiler farm, Howe, | *23 |
| Buffet in walnut, | *96 |
| Builders, items for, | 31 |
| Building, a great, | 140 |
| Building, Mr. Gunther’s, | 45 |
| Building, regulation of, | 8 |
| Building, Young Men’s Assoc., | *24 |
| C | |
| California house, $2,500, | *128 |
| Camera clamp, | *10 |
| Candle grease, to remove, | 9 |
| Car load, American, | 32 |
| Car wheels, paper, | 46 |
| Carpet, wood, | 70 |
| Carriages, sound in, | 109 |
| Carved work, | *43 |
| Casino in Vittel, | *134 |
| Cathedral of Notre Dame, | *21 |
| Cedar pavements, | 127 |
| Cedar shingles, | 104 |
| Ceilings and floors, | *36 |
| Cement, action of frost on, | 89 |
| Cement apparatus, | 116 |
| Cement, brick dust, | 69 |
| Cement, effect of freezing, | 115 |
| Cement, Portland, making, | 126 |
| Cement, Portland, tests of, | 87 |
| Cement, testing, | *37 |
| Cement testing machine, | *78 |
| Chateau at Castelnaudary, | *130 |
| Chimes, tube, new, | *132 |
| Chimney, tall, laddering, | *52 |
| Chimney flues, construction of, | 124 |
| Chimney tops, | 70 |
| Chimneys, lamp, how made, | 38 |
| Chimneys of the ancients, | 65 |
| Chimneys, removal of, | 132 |
| Church, an unsafe, | 126 |
| Church at La Capelle, | *94 |
| Church at Stratton, | *95 |
| Church of moderate cost, | *40, *109 |
| Chutes, mail, | *87 |
| Circulars, seven foot four, | 27 |
| City front, design, | *115 |
| Clamp, camera, new, | *10 |
| Clock, windmill, | 21 |
| College, John Crouse, | *139 |
| College of City of New York, | *48 |
| College, Polytechnic, Cogswell, | *32 |
| College, Vassar, sewerage, | 99 |
| Combustion, spontaneous, | 115 |
| Composition, new, | 63 |
| Concrete dockworks, failure, | 73 |
| Concrete, effect of sea water, | 98 |
| Contract, roofing plate, large, | 120 |
| Corner finish, | 68 |
| Correction, a, | 120 |
| Cottage, a continental, | *35 |
| Cottage, a $1,200, | *54 |
| Cottage, a $3,500, | *58 |
| Cottage, a $4,200, | *140 |
| Cottage, an $1,800, | *62 |
| Cottage, Cambridge, | *70 |
| Cottage, French, | *122 |
| Cottage, London, | *71 |
| Cottage of moderate cost, | *39 |
| Cottages, seaside, | *92 |
| Cottage, sketch for, | *135 |
| Court house, Montpelier, | *30 |
| Covering for pipes, | *118 |
| D | |
| Dam, California, great, | 43 |
| Decoration, bed room, | 50 |
| Decorative notes, | 95 |
| Decorative novelties, | 90 |
| Decoration, room, | 141 |
| Design in architecture, | 100 |
| Dining room, Tatton, | *17 |
| Disinfectant, new, | 92 |
| Disinfection for the household, | 50 |
| Disinfection of sick rooms, | 102 |
| Dockwork, concrete, failure, | 76 |
| Donatello, | *9 |
| Drainage and plumbing, | 16 |
| Dry rot, | 20 |
| Dry rot in large building, | *104 |
| Dumb waiters, | 7 |
| Duomo of Florence, | *9 |
| Dwelling, a Brooklyn, | *27 |
| Dwelling, a $1,200, | *30, *88 |
| Dwelling, a $2,500, | *102 |
| Dwelling, a $2,800, | *83 |
| Dwelling, a $3,500, | *111 |
| Dwelling, a $3,700, | *110 |
| Dwelling, a $3,800, | *114 |
| Dwelling, a $4,000, | *60 |
| Dwelling, a $4,200, | *61, *138 |
| Dwelling, a $4,500, | *33, *106, *117 |
| Dwelling, a $5,000, | *57, 140 |
| Dwelling, an artist’s, | *18 |
| Dwelling, an Ohio., | *68 |
| Dwelling at Cambridge, | *24 |
| Dwelling at E. New York, | *7 |
| Dwelling at Flushing, | *89 |
| Dwelling at Montclair, | *2 |
| Dwelling at Providence, | *5 |
| Dwelling, C. C. Bloomfield’s, | *72 |
| Dwelling, Chicago, | *19 |
| Dwelling, East Orange, | *9 |
| Dwelling, English, | *8 |
| Dwelling, Flatbush, | *13 |
| Dwelling, Flushing, | *28 |
| Dwelling for narrow lot, | *83 |
| Dwelling house, double, | *34 |
| Dwelling, Kansas City, | *3 |
| Dwelling, Minneapolis, | *108 |
| Dwelling, Mr. Gunther’s, | 45 |
| Dwelling, New York, | *1 |
| Dwelling of moderate cost, | *55, *80, *120 |
| Dwelling, seashore, | *65 |
| Dwelling, small, Paris, | *76 |
| Dwelling, Southern, | *83 |
| Dwelling, the Marquand, | 34 |
| Dwelling, Worcester, | *105 |
| Dwelling, $3,500, | *6 |
| Dwelling, suburban, | 67 |
| Dwellings at Glenridge, | *126 |
| Dry rot, preventive, | 13 |
| E | |
| Earthquake foundations, | *96 |
| Ebonizing, | 100 |
| Engine, gas, Charter, | 142 |
| Engine room, Paisley, | *44 |
| Entrance, design for, | *113 |
| Epitaph, blacksmith’s, | 18 |
| Exhibition at Madrid, | *97 |
| Exhibition, Manchester, | *14 |
| Exhibition of building materials, | 65 |
| Explosive, new, | *133 |
| Exposition, Agricultural, Nation’l, | *31 |
| F | |
| Factory operatives’ homes, | *133 |
| Faience, Burmantofts, | *45 |
| Fan, ventilating, | *78 |
| Fanlight grating, | *64 |
| Farm, broiler, Howe, | *23 |
| Feed water heater, new, | *142 |
| Fences, wire, | 18 |
| Fever, typhoid, by well water, | 126 |
| Filing machine, saw, | *87 |
| Filter, air, | *23 |
| Finger nail paint, | 97 |
| Finish, corner, | 68 |
| Fire and whitewash, | 37 |
| Fire brick, | 126 |
| Fire, care in respect to, | 96 |
| Fire place, marble, | *38 |
| Fire proof paper, | 22 |
| Fireside, cheerful, | *142 |
| Fire proof structures, | *124 |
| Flies, oil of bay for, | 89 |
| Floors and ceilings, | *36 |
| Floors, hydrofuge, | *52 |
| Floors, stable, | *75 |
| Flooring, fireproof, | *124 |
| Flour adulteration, | 44 |
| Fluatation, | 45, 100 |
| Flues, chimney construction of, | 124 |
| Food economy, | 61 |
| Forestry problem, our, | 122 |
| Foundations, earthquake, | *96 |
| Foundations in wet ground, | 142 |
| Front, city, design, | *115 |
| Furnace, hot air, Fortune, | *142 |
| Furniture, willow, to clean, | 7 |
| G | |
| Galvanizing process, | 95 |
| Gangways vs. staircases, | 133 |
| Gardens at railway stations, | 6 |
| Gas engine, Charter, | *142 |
| Gas fitting, rules for, | 92 |
| Gas tar, use of, | 56 |
| Gate at Bougival, | *93 |
| Gift, a jubilee, | 50 |
| Girders, effect of heat, | 22 |
| Glass, frosted, | 89, 97 |
| Glass, plate, | 58 |
| Glass, stained, | 52 |
| Glass window, | 42 |
| Gold, silk, and ivory, | 97 |
| Granite, | 69 |
| Granite, red, | 26 |
| Great woodcock, | *100 |
| Grating, fanlight, | *64 |
| Grease in boilers, removal, | 61 |
| Ground, frozen, excavating, | 69 |
| H | |
| Habitations, healthy, | 97 |
| Hall, Ancoats, | *16 |
| Hall, Holbrook, | *104 |
| Hall, Hulme, | *16 |
| Heater, feed water, new, | *142 |
| Heater, Fortune, | *142 |
| Heating by steam, | 104 |
| Hemlock, | 127 |
| Hemlock laths, | 46 |
| Herbinger, Col., tomb of, | *42 |
| Home of Miss Nightingale, | *132 |
| Home of Milton, | *37 |
| Home interiors, | 19 |
| Homes of factory operatives, | *133 |
| Hotel Bourgtheroulde, | *20 |
| Hotel de Peintre, Meudon, | *122 |
| Hotel de Ville, Paris, | *43 |
| Hotel, Spokane Falls, | *11 |
| House, apartment, Mortimer, | 121 |
| House, a New York, | *1 |
| House, a $1,200, | *30, *88 |
| House, a $2,500, | *102 |
| House, a $2,800, | *83 |
| House, a $3,500, | *6, *111 |
| House, a $3,700, | *110 |
| House, a $3,800, | *114 |
| House, a $4,000, | *60 |
| House, a $4,200, | *61, *138 |
| House, a $4,500, | *33, *106, *117 |
| House, a $5,000, | *57, *140 |
| House, an artist’s, | *18 |
| House, an English, | *8 |
| House, an Ohio, | *68 |
| House at Brooklyn, | *28 |
| House at Cambridge, | *24 |
| House at East Orange, | *9 |
| House at Flatbush, | *13 |
| House at Flushing, | *89 |
| House at Montclair, | *2 |
| House at Providence, | *5 |
| House, California, $2,500, | *128 |
| House, C. C. Bloomfield’s, | *72 |
| House, Chicago, | *19 |
| House, double, English, | *34 |
| House, Flushing, | *27 |
| House for narrow lot, | *83, *116 |
| House, ice, how to build, | 130 |
| House, ideal, of the future, | 64 |
| House, Kansas City, | *3 |
| House, Minneapolis, | *108 |
| House, Mr. Gunther’s, | 45 |
| House of moderate cost, | *55, *80, *86, *102 |
| House, railroad men’s, | *108 |
| House, seashore, | *65 |
| House, small, Paris, | *76 |
| House, Southern, | *83 |
| House, the Marquand, | 34 |
| House trap, Pietsch, | *69 |
| House, Worcester, | *105 |
| Houses, healthy, | 97 |
| Houses, suburban, | 67 |
| Houses, tenement, | *66 |
| How we have grown, | 135 |
| Hydrofuge floors, | *52 |
| I | |
| Industries in Africa, | 71 |
| Ink for marking boxes, etc., | 129 |
| Ink, marking, blue, | 129 |
| Interior, a Dutch, | 115 |
| Interiors, home, | 19 |
| Iron beams vs. wood, | 133 |
| Iron, to distinguish from steel, | 63 |
| Ivory, silk, and gold, | 97 |
| J | |
| Jacotot, Henri, | *22 |
| Joints and pipes, | 113 |
| Joints in woodwork, | *10 |
| K | |
| Keystone, ornamental, | *125 |
| Kerosene oil, | 45 |
| L | |
| Lamp chimneys, how made, | 35 |
| Lane, Market‐sted, | *16 |
| Lath, Hall’s, | *26 |
| Laths, hemlock, | 46 |
| Laundry, an English, | 40 |
| Leather, top, to clean, | 91 |
| Library, a curious, | 138 |
| Library, congressional, | 140 |
| Library building, | *53 |
| Library, Carnegie, | *31 |
| Lift for Eiffel tower, | 52 |
| Lime, testing, | *37 |
| Logs, artificial, | *142 |
| Love‐lies‐bleeding, | *70 |
| M | |
| Mail chutes, Cutler’s, | *87 |
| Manchester Exhibition, | *14 |
| Marble, effect of snow on, | 118 |
| Marble, practical use of, | 62 |
| Marble statue, how made, | 139 |
| Marble, to stain, | 27 |
| Marbles, Algerian, | 21 |
| Marbles, Vermont, | 66 |
| Masonry, measurement of, | 76 |
| Memorial, Shakespeare, | *119 |
| Mercury as disinfectant, | 92 |
| Milton, home of, | *37 |
| Mirrors, painted, | 44 |
| Miters, varying, | *18 |
| Monument, Grant, design, | *77 |
| Monument to M. Thiers, | *112 |
| Mortar, colored, | 91 |
| Moulder’s sand, | 75 |
| Mud architecture in Persia, | 41 |
| N | |
| Nails, | 130 |
| Naval architecture, | 49 |
| Nightingale, Miss, home of, | 132 |
| O | |
| Oil, kerosene, | 45 |
| Oil of bay for flies, | 89 |
| Open gas fire radiator, | 121 |
| Operatives, factory home, | *133 |
| Ornamental keystones, | *125 |
| P | |
| Pa crusta, | 19 |
| Painting, | 132 |
| Painting brick buildings, | 89 |
| Palaces, winter, | 73 |
| Panel, ornamental, | *64 |
| Panels, terra cotta, | 7 |
| Paper, best effects in, | 50 |
| Paper car wheels, | 46 |
| Paper, water proof, | 22 |
| Passion flower, new, | *22 |
| Pavements, cedar, | 127 |
| Pavilion, ornamental, | *107 |
| Pedestal tenoner, | *74 |
| Pile protecting compounds, testi’g, | 119 |
| Pine, long leaf, | 94 |
| Pine woods, | 134 |
| Pipes and joints, | 113 |
| Pipes, bursting of, | 38 |
| Pipes, drain, look to your, | 130 |
| Pipes, water, bursting, | 113 |
| Planer, improved, | *142 |
| Planer, surface, new, | *100 |
| Plaster, sand in, | 33 |
| Plaster, wall, adamant, | 52 |
| Plastering, | 107 |
| Plate glass, | 58 |
| Plumbing, about, | 24 |
| Plumbing and drainage, | 16 |
| Plumbing, not defective, | 142 |
| Portal of St. Ouen Abbey, | *20 |
| Portland cement, improvem’nts in, | 126 |
| Post office, Montpelier, | *30 |
| Post office, San Antonio, | *90 |
| Post office, Springfield, | *7 |
| Prints, transfer to wood, | 91 |
| Problem, forestry, our, | 122 |
| Pump, force, Alert, | *118 |
| Pyramids, | 75 |
| R | |
| Rabbit remedy, | 130 |
| Radiator, New Era, | *118 |
| Railroad men’s house, | *108 |
| Rainbows, double and single, | 64 |
| Readers and patrons, to our, | 120 |
| Relics, ancient, Sidon, | 21 |
| Residence, a $1,200, | *30, *88 |
| Residence, a $2,500, | *102 |
| Residence, a $2,800, | *83 |
| Residence, a $3,500, | *6 |
| Residence, a $3,700, | *110 |
| Residence, a $3,800, | *114 |
| Residence, a $4,200, | *61, *138 |
| Residence, a $4,500, | *33, *106, *117 |
| Residence, a $5,000, | *57, *140 |
| Residence, Parisian, | *76 |
| Residence at Flushing, | *28, *89 |
| Residence at Montclair, | *2 |
| Residence at Providence, | *5 |
| Residence, artist’s, | *18 |
| Residence, Brooklyn, | *27 |
| Residence, Cambridge, | *24 |
| Residence, Chicago, | *19 |
| Residence, East New York, | *7 |
| Residence, East Orange, | *9 |
| Residence, Flatbush, | *13 |
| Residence for $8,000, | *123 |
| Residence, Kansas City, | *3 |
| Residence, Minneapolis, | *108 |
| Residence, Mr. Gunther’s, | 45 |
| Residence, New York, | *1 |
| Residence of C. C. Bloomfield, | *72 |
| Residence of moderate cost, | *55, *80 |
| Residence, Ohio, | *68 |
| Residence, seashore, | *65 |
| Residence, Southern, | *83 |
| Residence, suburban, | *121 |
| Residences, suburban, | 67 |
| Residence, the Marquand, | 34 |
| Residence, Worcester, | *105 |
| Residence, $4,000, | *60 |
| Riverside Avenue, Spokane Falls, | *11 |
| Roburite, | *133 |
| Roofing plate contract, large, | 120 |
| Roofing plates, Penn, | 78 |
| Roofing slate, | 32 |
| Room, twelve mat, | *36 |
| Rooms, proportions of, | 140 |
| Rose, Gloire De Dijon, | *22 |
| Rouen, gems from, | 20 |
| Ruprich‐Robert, Mr., | 19 |
| S | |
| Sand in plaster, | 33 |
| Sand, moulders’, | 75 |
| Sandstone in building, | 25 |
| Saw, band, Marston’s, | *142 |
| Sawdust, | 125 |
| Saw filer, Sherman’s, | *87 |
| Scaffolding, portable, | *34 |
| School architecture, | *105 |
| School house and nursery, | *63 |
| Screens, | 91 |
| Sewerage, Vassar College, | 99 |
| Shakespeare memorial, | *119 |
| Shingle stains, | 118 |
| Shingles, cedar, | 104 |
| Shrubs, planting, | 50 |
| Shutter worker, Malloy’s, | *87 |
| Sideboard in walnut, | *96 |
| Silk, gold, and ivory, | 97 |
| Silk room, disinfecting, | 102 |
| Silo building, | *74 |
| Slate, roofing, | 32 |
| Snow, effect on marble, | 118 |
| Snow sheds, mountain, | 67 |
| Sounding board, St. Paul’s, | *142 |
| Stable, a $5,500, | *140 |
| Stable floors, | *75 |
| Staircase, Tatton, | *17 |
| Staircases, gangways vs., | 133 |
| Stains, shingle, | 118 |
| Statue, marble, how made, | 139 |
| Steam heating data, | 104 |
| Stone, Caen, | 70 |
| Stone, preservation of, | 100 |
| Stone steps, to repair, | 116 |
| Stone, waterproofing, | 45 |
| Store, a country., | *82 |
| Store at Winona, | *91 |
| Store, country, a $2,000, | *59 |
| Stores, water pipes in, | *104 |
| Suggestions, good, | 135 |
| T | |
| Tar, gas, use of, | 56 |
| Tatton, Cheshire, | *17 |
| Tea, Japanese, | 25 |
| Tenoner, pedestal, | *74 |
| Temple, Egyptian, | 124 |
| Terra cotta panels, | 7 |
| Theater, a safe, | 33 |
| Thuja gigantea, | 115 |
| Timber, green or dry, | 7 |
| Tomb, M. Thiers’, | *112 |
| Tomb of Col. Herbinger, | *42 |
| Tombs, Etruscan, | 35 |
| Tower on Mount of Olives, | 119 |
| Trade unions, | 104 |
| Trap, house, Pietsch, | *69 |
| Trap, plumbers’, | *49 |
| Tree, bamboo, | 123 |
| Trees, planting, | 50 |
| Trees, planting, roadside, | 124 |
| Tripod head, new, | *10 |
| Tube chimes, | 132 |
| Typhoid, | 110 |
| Typhoid fever by well water, | 126 |
| U | |
| United States, growth of, | 135 |
| V | |
| Vase, the largest, | 39 |
| Vassar College sewerage, | 99 |
| Vegetables in Japan, | 26 |
| Villa, a French, | *46 |
| Villa, an Austrian, | *41 |
| Villa at Saint Lo, | *98 |
| W | |
| Wages, how to increase, | 34 |
| Wall, Chinese, | 44 |
| Wall, dividing, removal, | 57 |
| Wall plaster, adamant, | 52 |
| Walls, burning buildings, collapse, | 127 |
| Walter, Thomas U., | 134 |
| Water, good, value of, | 34 |
| Water pipes, bursting of, | 113 |
| Waterproof paper, | 22 |
| Waterproof stone, | 45 |
| Water, the, keep out, | 120 |
| Watt, James, birthplace of, | *121 |
| Weather strip, Richmond, | 26 |
| Weather Vane, Reynolds’, | *26 |
| Wells, look to your, | 130 |
| Wheels, car, paper, | 46 |
| White ash, the, | 125 |
| Whitewash and fire, | 37 |
| Whooping cough, | 87 |
| Windmill clock, | 21 |
| Window glass, | 42 |
| Window shutter device, | *87 |
| Winter palaces, | 73 |
| Wire fences, | 18 |
| Wood carpet, | 70 |
| Wood filler, Wheeler’s, | 11 |
| Wood of Thuja gigantea, | 115 |
| Wood, preservation of, | 65 |
| Woodpecker’s sugar bush, | 32 |
| Woodwork, joints in, | *10 |
| Woodwork, preservation, | 32 |
| Woods, pine, | 134 |
| Woods, staining, | 47 |
| Woods, uses of, | 24 |
| Women as architects, | 6 |
| Writing, minute, | 77 |
| Y | |
| Yard, the back, | 134 |
The Thomson‐Houston Electric Co.
—MANUFACTURE—
THE ONLY PERFECT AUTOMATIC SYSTEM OF
ARC AND INCANDESCENT LIGHTING
In the World.
☞New illustrated pamphlet will be furnished on application.
THE THOMSON‐HOUSTON ELECTRIC COMPANY,
Principal Offices: 178 Devonshire St., BOSTON.
Western Offices: Pullman Building, CHICAGO.
WM. T. LINDEMAN & CO.
1400 and 1402 Frankford Avenue, Philadelphia,
Color Grinders.
MANUFACTURERS OF
Mahogany, Cherry, and Walnut Stains, Philadelphia Flat Brick Red, Outside
Hard Wood Finish, Philadelphia Iron Filler and Steel Color
Paint, Philadelphia Hard Wood Filler.
——§ AGENTS FOR §——
Boston Wax Floor Polish, Bigelow’s Varnishes, Cabot’s Creosote Stains, D. B. Crockett’s “Preservative” and “Spar Composition.”
FloorS End‐Wood a Specialty.
Parquetry, Wood Carpet.
Fine Hardwood Floors of every approved kind.
END‐WOOD MOSAIC is the most perfect and durable floor covering
ever made of wood.
Catalogue Free. Sample by Mail, Four Cents. Manufactured by
WOOD‐MOSAIC CO.,
| Office and Works, | Salesroom, | |
|---|---|---|
| 318 SCIO ST., ROCHESTER, N. Y. | 321 FIFTH AVE., NEW YORK CITY. |
THE NOVELTY HOT AIR FURNACE,
FIRE TESTED
AND
INDESTRUCTIBLE.
Tens of thousands in use.
All in good repair.
Thirteen Years of Public Service.
Universally Satisfactory.
Its wonderful merit has established its reputation.
“Par excellence,” wherever used.
It is the original and only possible perfect three drum construction.
Our Patents prevent the use of the essential and truly excellent features.
Base imitations, avoiding our Patents, exist.
Do not fail to specify the NOVELTY and be sure you get it.
GET DESCRIPTIVE PAMPHLET.
ABRAM COX STOVE CO.,
EXPERTS AND SPECIALISTS in the manufacture of
HEATING ENGINEERS’ SUPPLIES.
PHILADELPHIA. CHICAGO.
ORR & LOCKETT,
184 & 186 Clark Street, Chicago,
Builders’ Hardware
OF EVERY DESCRIPTION.
We are Sole Chicago Agents for
Geer’s Spring Hinge, Norton Door Check and Spring, Dudley Shutter‐Worker,
AND SEVERAL OTHER SPECIALTIES.
The following are some of the fine Public and Office Buildings furnished by us:
First National Bank Building; Montauk Block; Pullman Offices and Flats; C., B. and Q. Office Building; Grand Trunk Depot and Offices; New Board of Trade; Home Insurance Building; Insurance Exchange; Traders; Clark and Counselman Buildings; and New Union League Club Buildings, of this city; the Atchison Topeka and Santa Fé Offices of Topeka, Kansas; the Burlington, Cedar Rapids and Northern R. R. Offices, at Cedar Rapids, Iowa; and the George Spencer Office Buildings, at Duluth, Minn.
CORRESPONDENCE SOLICITED.SATISFACTION GUARANTEED.
GILLINDER & SONS,
720 ARCH STREET, — PHILADELPHIA.
IMPORTERS AND DEALERS IN
FRENCH and AMERICAN
Plate Glass,
Looking Glass Plates,
Enameled,
Colored,
Cathedral,
AND
other Ornamental
Glass.
Glaziers’ Diamonds.
Pure Putty,
Points, etc.
MANUFACTURERS OF
FRANKLIN
Window Glass,
Equal to Foreign Brands.
Also Manufacturers
OF THE
“New Flint Glass Ornamental Tile.”
—FOR—
Windows in Cars and Dwellings,
OF
Unequaled Brilliancy.
(SEE CUT.)
Catalogues and Estimates furnished on application.
Stained
Glass
SUBSTITUTE
Beautiful & Lasting for ORNAMENTING
WINDOWS, DOORS, TRANSOMS, &c.
AT SMALL COST. Send for Illustrated Catalogue and Prices. Samples by mail 25 cents.
W. C. YOUNG SOLE AGENT, 733 ARCH ST. PHILADELPHIA, PA.
AGENTS WANTED EVERYWHERE.
Warren‐Ehret Company
BUILDING AND SHEATHING PAPERS,
COMPLETE READY ROOFING,
—AND—
CARPET LININGS,
428 MARKET STREET, PHILADELPHIA.
Popular Fortune Hot Air Furnace
FOUR SIZES—Nos. 25, 28, 32, and 36.
BEST FURNACE KNOWN FOR HEATING DWELLINGS.
ECONOMICAL, DURABLE, AND CHEAP. IMPROVED DUST FLUE, LARGE RADIATION.
Having repeated inquiries for a Hot Air Furnace combining all the good elements of a first‐class furnace, with the FANCY FRILLS left off, that could be put up at a MODERATE PRICE, induced us to make the “Popular Fortune,” sales of which, and the satisfaction rendered, have proven it to be just the furnace wanted, specially for Suburban Houses.
Write for circular and prices.
MANUFACTURERS,
Thomas, Roberts, Stevenson & Co.,
PHILADELPHIA.
The BEST Roofing Tin
is the CHEAPEST!
But how are you to know that you get the quality and brand wanted?
Because every PERFECT SHEET of the following three extra fine guaranteed brands of Roofing TIN IS STAMPED at the works with the name of the brand and the thickness. Please note this.
| “Old Style.” | Extra Heavily Coated. The Best Made. |
|---|---|
| “Westminster.” | Re‐dipped. Made from Heavy Iron. |
| COOKLEY K |
Highest Grade of Heavy Regular Coated. |
EVERY BOX IS GUARANTEED.
Sample pieces of the Tin, also circulars and full information given.
N. & G. TAYLOR CO.
Established 1810. 77th year.
PHILADELPHIA.
Prepared Roofing
BEST, CHEAPEST, MOST DURABLE.
EHRET’S
BLACK DIAMOND
PREPARED ROOFING
ANYBODY CAN PUT IT ON. EASILY HANDLED.
PUT UP IN ROLLS OF 100 SQUARE FEET.
Send for Latest Circular, Price List, etc.
MANUFACTURED BY
M. EHRET, Jr., & CO.,
| PHILADELPHIA, | ST. LOUIS, | CHICAGO, | ||
|---|---|---|---|---|
| 423 Walnut Street. | 113 North 8th Street. | 50 Dearborn Street. |
Ornamental Glass Works.
EMBOSSED
Glass,
New Designs.
Memorial
WINDOWS.
SPECIAL WORK.
Brass Signs
AND
Memorials.
Sample of work on Exhibition at 14 Vesey St., N. Y.
DESIGNS and ESTIMATES FURNISHED.
Work as Reference,
Union News Co., Pennsylvania Railroad,
Pennsylvania University.
C. H. POSTEL & CO.,
1314 RIDGE AVENUE.
BRANCH OFFICE:
527 ARCH ST., PHILADELPHIA, PA.
TINTING COLORS
STRICTLY PURE.
For Painters’ and Builders’ Use.
Cannot be excelled for PURITY and FINENESS.
MANUFACTURED BY
EDW. E. JILLARD,
EUREKA COLOR WORKS,
1645 NORTH TENTH STREET, PHILADELPHIA, PA.
WOOD MANTELS.
INTERIOR DECORATIONS,
ARTISTIC FURNITURE,
DESIGNED AND MANUFACTURED BY
GEO. W. SMITH & CO.,
3907 to 3919 Powelton Avenue, Philadelphia, Pa.
FAYETTE R. PLUMB,
Successor to YERKES & PLUMB, Manufacturer of
Hammers, Edge Tools, Sledges, Blacksmith and Railroad Tools.
MAIN OFFICE and WORKS:
PENN. R. R., TUCKER AND JAMES STREETS, PHILADELPHIA, PA.
Architects, Roofers, Builders. “Alderly” and “Penn” Old Method Roofing Plates
THE TWO BEST BRANDS OF GUARANTEED ROOFING PLATES. THERE ARE NO OTHER BRANDS EQUAL TO THESE PLATES.
| ALDERLY | ⎧ ⎨ ⎩ |
Made of Siemens‐Martin Soft Steel, same as Old Style Plates. Next in Quality, of Standard Weight, Perfectly Square, Perfectly Assorted. True to Gauge. We carry in Stock, Stamped and Unstamped. |
|---|
| “PENN” OLD METHOD Treble Coated Roofing Plate. | ⎧ ⎪ ⎪ ⎨ ⎪ ⎪ ⎩ |
GUARANTEED to stand any test demanded. Guaranteed to be heavier coated than any other plate, each box, 14 × 20 contains 20 lbs., and 28 × 20 contains 40 lbs. Guaranteed to have all the Coating that it is possible for any plate to hold. Guaranteed Rolled true to Gauge. Absolutely perfect in every respect. Guaranteed to last longer on Roof without being painted than any other Old Style Plate. Guaranteed sheets perfectly square and flat. Both IC and IX, all strapped with iron. |
|---|
SOLE MANUFACTURERS of the “PATTEN” METALLIC ROOFING SHINGLES.
GUMMEY, SPERING, INGRAM & CO.,Philadelphia—Liverpool.
Stained glass
For Churches and Private Dwellings, etc.
JEWELED MOSAICS.
Illustrated Catalogues Free.
ALFRED GODWIN,
1201 Market Street, Philadelphia, Pa.
WOOD WORKING MACHINERY.
Band Saws, Jointers, Pony Planers, Shapers.
SPECIAL FOR CARPENTERS AND BUILDERS.
E. & F. GLEASON, 250 Susquehanna Avenue, Philadelphia, Pa.
The “Gilbertson’s Old Method” is the only brand of Dipped Plates of which the makers have notified consumers—through a letter published by us some time since—that they would send NO WASTERS TO THIS COUNTRY.
SHEETS that are GUARANTEED and STAMPED are the only protection to the Architect, Owner, and Roofer, against dishonest competition and the USE OF INFERIOR MATERIAL.
——MERCHANT & CO.,——
525 Arch St., PHILADELPHIA.
9 Burling Slip, NEW YORK.
202 Lake St., CHICAGO.
No. 1 Metal Exchange Buildings, LONDON, E. C.
GAS FIRES
Resembling Wood or Coal.
Burning Natural or Manufactured Gas.
HENRY P. DIXON & CO.,
Manufacturers,
1330 Chestnut St., Phila., Pa.
SHAW & GEARY,
MANUFACTURERS & DEALERS
Electrical Appliances.
53 No. Seventh St., PHILADELPHIA.
CHOUAGUEN,
TRADE MARK
Opaqued Hollands.
In ordering your Window Shadings specify
“CHOUAGUEN.”
AND TAKE NO OTHER.
See Trade Mark.
Are the Best Finished, Most Uniform, and Most Durable Goods made.
ENQUIRE OF ANY DEALER.
The Goulds Mfg. Co.
MANUFACTURERS OF
Pumps For Hand and Power Use in and About
PRIVATE RESIDENCES
Send For New No. 10 Catalogue
Address
Seneca Falls, N. Y.
60 Barclay St. New York
Plan of First Floor.
Plan of Second Floor.
Transcriber’s note:
The original accentuation, punctuation spelling and hyphenation has been retained.
On the first page there is mention of ‘One Large Sheet of Details’, which unfortunately is unavailable. It may have been lost or perhaps was never printed.
End of the Project Gutenberg EBook of Scientific American Architects and
Builders Edition, No. 26, Dec, 188, by Various
*** END OF THIS PROJECT GUTENBERG EBOOK SCIENTIFIC AMERICAN, DEC. 1887 ***
***** This file should be named 50927-h.htm or 50927-h.zip *****
This and all associated files of various formats will be found in:
http://www.gutenberg.org/5/0/9/2/50927/
Produced by Juliet Sutherland, Brian Wilcox and the Online
Distributed Proofreading Team at http://www.pgdp.net
Updated editions will replace the previous one--the old editions will
be renamed.
Creating the works from print editions not protected by U.S. copyright
law means that no one owns a United States copyright in these works,
so the Foundation (and you!) can copy and distribute it in the United
States without permission and without paying copyright
royalties. Special rules, set forth in the General Terms of Use part
of this license, apply to copying and distributing Project
Gutenberg-tm electronic works to protect the PROJECT GUTENBERG-tm
concept and trademark. Project Gutenberg is a registered trademark,
and may not be used if you charge for the eBooks, unless you receive
specific permission. If you do not charge anything for copies of this
eBook, complying with the rules is very easy. You may use this eBook
for nearly any purpose such as creation of derivative works, reports,
performances and research. They may be modified and printed and given
away--you may do practically ANYTHING in the United States with eBooks
not protected by U.S. copyright law. Redistribution is subject to the
trademark license, especially commercial redistribution.
START: FULL LICENSE
THE FULL PROJECT GUTENBERG LICENSE
PLEASE READ THIS BEFORE YOU DISTRIBUTE OR USE THIS WORK
To protect the Project Gutenberg-tm mission of promoting the free
distribution of electronic works, by using or distributing this work
(or any other work associated in any way with the phrase "Project
Gutenberg"), you agree to comply with all the terms of the Full
Project Gutenberg-tm License available with this file or online at
www.gutenberg.org/license.
Section 1. General Terms of Use and Redistributing Project
Gutenberg-tm electronic works
1.A. By reading or using any part of this Project Gutenberg-tm
electronic work, you indicate that you have read, understand, agree to
and accept all the terms of this license and intellectual property
(trademark/copyright) agreement. If you do not agree to abide by all
the terms of this agreement, you must cease using and return or
destroy all copies of Project Gutenberg-tm electronic works in your
possession. If you paid a fee for obtaining a copy of or access to a
Project Gutenberg-tm electronic work and you do not agree to be bound
by the terms of this agreement, you may obtain a refund from the
person or entity to whom you paid the fee as set forth in paragraph
1.E.8.
1.B. "Project Gutenberg" is a registered trademark. It may only be
used on or associated in any way with an electronic work by people who
agree to be bound by the terms of this agreement. There are a few
things that you can do with most Project Gutenberg-tm electronic works
even without complying with the full terms of this agreement. See
paragraph 1.C below. There are a lot of things you can do with Project
Gutenberg-tm electronic works if you follow the terms of this
agreement and help preserve free future access to Project Gutenberg-tm
electronic works. See paragraph 1.E below.
1.C. The Project Gutenberg Literary Archive Foundation ("the
Foundation" or PGLAF), owns a compilation copyright in the collection
of Project Gutenberg-tm electronic works. Nearly all the individual
works in the collection are in the public domain in the United
States. If an individual work is unprotected by copyright law in the
United States and you are located in the United States, we do not
claim a right to prevent you from copying, distributing, performing,
displaying or creating derivative works based on the work as long as
all references to Project Gutenberg are removed. Of course, we hope
that you will support the Project Gutenberg-tm mission of promoting
free access to electronic works by freely sharing Project Gutenberg-tm
works in compliance with the terms of this agreement for keeping the
Project Gutenberg-tm name associated with the work. You can easily
comply with the terms of this agreement by keeping this work in the
same format with its attached full Project Gutenberg-tm License when
you share it without charge with others.
1.D. The copyright laws of the place where you are located also govern
what you can do with this work. Copyright laws in most countries are
in a constant state of change. If you are outside the United States,
check the laws of your country in addition to the terms of this
agreement before downloading, copying, displaying, performing,
distributing or creating derivative works based on this work or any
other Project Gutenberg-tm work. The Foundation makes no
representations concerning the copyright status of any work in any
country outside the United States.
1.E. Unless you have removed all references to Project Gutenberg:
1.E.1. The following sentence, with active links to, or other
immediate access to, the full Project Gutenberg-tm License must appear
prominently whenever any copy of a Project Gutenberg-tm work (any work
on which the phrase "Project Gutenberg" appears, or with which the
phrase "Project Gutenberg" is associated) is accessed, displayed,
performed, viewed, copied or distributed:
This eBook is for the use of anyone anywhere in the United States and
most other parts of the world at no cost and with almost no
restrictions whatsoever. You may copy it, give it away or re-use it
under the terms of the Project Gutenberg License included with this
eBook or online at www.gutenberg.org. If you are not located in the
United States, you'll have to check the laws of the country where you
are located before using this ebook.
1.E.2. If an individual Project Gutenberg-tm electronic work is
derived from texts not protected by U.S. copyright law (does not
contain a notice indicating that it is posted with permission of the
copyright holder), the work can be copied and distributed to anyone in
the United States without paying any fees or charges. If you are
redistributing or providing access to a work with the phrase "Project
Gutenberg" associated with or appearing on the work, you must comply
either with the requirements of paragraphs 1.E.1 through 1.E.7 or
obtain permission for the use of the work and the Project Gutenberg-tm
trademark as set forth in paragraphs 1.E.8 or 1.E.9.
1.E.3. If an individual Project Gutenberg-tm electronic work is posted
with the permission of the copyright holder, your use and distribution
must comply with both paragraphs 1.E.1 through 1.E.7 and any
additional terms imposed by the copyright holder. Additional terms
will be linked to the Project Gutenberg-tm License for all works
posted with the permission of the copyright holder found at the
beginning of this work.
1.E.4. Do not unlink or detach or remove the full Project Gutenberg-tm
License terms from this work, or any files containing a part of this
work or any other work associated with Project Gutenberg-tm.
1.E.5. Do not copy, display, perform, distribute or redistribute this
electronic work, or any part of this electronic work, without
prominently displaying the sentence set forth in paragraph 1.E.1 with
active links or immediate access to the full terms of the Project
Gutenberg-tm License.
1.E.6. You may convert to and distribute this work in any binary,
compressed, marked up, nonproprietary or proprietary form, including
any word processing or hypertext form. However, if you provide access
to or distribute copies of a Project Gutenberg-tm work in a format
other than "Plain Vanilla ASCII" or other format used in the official
version posted on the official Project Gutenberg-tm web site
(www.gutenberg.org), you must, at no additional cost, fee or expense
to the user, provide a copy, a means of exporting a copy, or a means
of obtaining a copy upon request, of the work in its original "Plain
Vanilla ASCII" or other form. Any alternate format must include the
full Project Gutenberg-tm License as specified in paragraph 1.E.1.
1.E.7. Do not charge a fee for access to, viewing, displaying,
performing, copying or distributing any Project Gutenberg-tm works
unless you comply with paragraph 1.E.8 or 1.E.9.
1.E.8. You may charge a reasonable fee for copies of or providing
access to or distributing Project Gutenberg-tm electronic works
provided that
* You pay a royalty fee of 20% of the gross profits you derive from
the use of Project Gutenberg-tm works calculated using the method
you already use to calculate your applicable taxes. The fee is owed
to the owner of the Project Gutenberg-tm trademark, but he has
agreed to donate royalties under this paragraph to the Project
Gutenberg Literary Archive Foundation. Royalty payments must be paid
within 60 days following each date on which you prepare (or are
legally required to prepare) your periodic tax returns. Royalty
payments should be clearly marked as such and sent to the Project
Gutenberg Literary Archive Foundation at the address specified in
Section 4, "Information about donations to the Project Gutenberg
Literary Archive Foundation."
* You provide a full refund of any money paid by a user who notifies
you in writing (or by e-mail) within 30 days of receipt that s/he
does not agree to the terms of the full Project Gutenberg-tm
License. You must require such a user to return or destroy all
copies of the works possessed in a physical medium and discontinue
all use of and all access to other copies of Project Gutenberg-tm
works.
* You provide, in accordance with paragraph 1.F.3, a full refund of
any money paid for a work or a replacement copy, if a defect in the
electronic work is discovered and reported to you within 90 days of
receipt of the work.
* You comply with all other terms of this agreement for free
distribution of Project Gutenberg-tm works.
1.E.9. If you wish to charge a fee or distribute a Project
Gutenberg-tm electronic work or group of works on different terms than
are set forth in this agreement, you must obtain permission in writing
from both the Project Gutenberg Literary Archive Foundation and The
Project Gutenberg Trademark LLC, the owner of the Project Gutenberg-tm
trademark. Contact the Foundation as set forth in Section 3 below.
1.F.
1.F.1. Project Gutenberg volunteers and employees expend considerable
effort to identify, do copyright research on, transcribe and proofread
works not protected by U.S. copyright law in creating the Project
Gutenberg-tm collection. Despite these efforts, Project Gutenberg-tm
electronic works, and the medium on which they may be stored, may
contain "Defects," such as, but not limited to, incomplete, inaccurate
or corrupt data, transcription errors, a copyright or other
intellectual property infringement, a defective or damaged disk or
other medium, a computer virus, or computer codes that damage or
cannot be read by your equipment.
1.F.2. LIMITED WARRANTY, DISCLAIMER OF DAMAGES - Except for the "Right
of Replacement or Refund" described in paragraph 1.F.3, the Project
Gutenberg Literary Archive Foundation, the owner of the Project
Gutenberg-tm trademark, and any other party distributing a Project
Gutenberg-tm electronic work under this agreement, disclaim all
liability to you for damages, costs and expenses, including legal
fees. YOU AGREE THAT YOU HAVE NO REMEDIES FOR NEGLIGENCE, STRICT
LIABILITY, BREACH OF WARRANTY OR BREACH OF CONTRACT EXCEPT THOSE
PROVIDED IN PARAGRAPH 1.F.3. YOU AGREE THAT THE FOUNDATION, THE
TRADEMARK OWNER, AND ANY DISTRIBUTOR UNDER THIS AGREEMENT WILL NOT BE
LIABLE TO YOU FOR ACTUAL, DIRECT, INDIRECT, CONSEQUENTIAL, PUNITIVE OR
INCIDENTAL DAMAGES EVEN IF YOU GIVE NOTICE OF THE POSSIBILITY OF SUCH
DAMAGE.
1.F.3. LIMITED RIGHT OF REPLACEMENT OR REFUND - If you discover a
defect in this electronic work within 90 days of receiving it, you can
receive a refund of the money (if any) you paid for it by sending a
written explanation to the person you received the work from. If you
received the work on a physical medium, you must return the medium
with your written explanation. The person or entity that provided you
with the defective work may elect to provide a replacement copy in
lieu of a refund. If you received the work electronically, the person
or entity providing it to you may choose to give you a second
opportunity to receive the work electronically in lieu of a refund. If
the second copy is also defective, you may demand a refund in writing
without further opportunities to fix the problem.
1.F.4. Except for the limited right of replacement or refund set forth
in paragraph 1.F.3, this work is provided to you 'AS-IS', WITH NO
OTHER WARRANTIES OF ANY KIND, EXPRESS OR IMPLIED, INCLUDING BUT NOT
LIMITED TO WARRANTIES OF MERCHANTABILITY OR FITNESS FOR ANY PURPOSE.
1.F.5. Some states do not allow disclaimers of certain implied
warranties or the exclusion or limitation of certain types of
damages. If any disclaimer or limitation set forth in this agreement
violates the law of the state applicable to this agreement, the
agreement shall be interpreted to make the maximum disclaimer or
limitation permitted by the applicable state law. The invalidity or
unenforceability of any provision of this agreement shall not void the
remaining provisions.
1.F.6. INDEMNITY - You agree to indemnify and hold the Foundation, the
trademark owner, any agent or employee of the Foundation, anyone
providing copies of Project Gutenberg-tm electronic works in
accordance with this agreement, and any volunteers associated with the
production, promotion and distribution of Project Gutenberg-tm
electronic works, harmless from all liability, costs and expenses,
including legal fees, that arise directly or indirectly from any of
the following which you do or cause to occur: (a) distribution of this
or any Project Gutenberg-tm work, (b) alteration, modification, or
additions or deletions to any Project Gutenberg-tm work, and (c) any
Defect you cause.
Section 2. Information about the Mission of Project Gutenberg-tm
Project Gutenberg-tm is synonymous with the free distribution of
electronic works in formats readable by the widest variety of
computers including obsolete, old, middle-aged and new computers. It
exists because of the efforts of hundreds of volunteers and donations
from people in all walks of life.
Volunteers and financial support to provide volunteers with the
assistance they need are critical to reaching Project Gutenberg-tm's
goals and ensuring that the Project Gutenberg-tm collection will
remain freely available for generations to come. In 2001, the Project
Gutenberg Literary Archive Foundation was created to provide a secure
and permanent future for Project Gutenberg-tm and future
generations. To learn more about the Project Gutenberg Literary
Archive Foundation and how your efforts and donations can help, see
Sections 3 and 4 and the Foundation information page at
www.gutenberg.org
Section 3. Information about the Project Gutenberg Literary Archive Foundation
The Project Gutenberg Literary Archive Foundation is a non profit
501(c)(3) educational corporation organized under the laws of the
state of Mississippi and granted tax exempt status by the Internal
Revenue Service. The Foundation's EIN or federal tax identification
number is 64-6221541. Contributions to the Project Gutenberg Literary
Archive Foundation are tax deductible to the full extent permitted by
U.S. federal laws and your state's laws.
The Foundation's principal office is in Fairbanks, Alaska, with the
mailing address: PO Box 750175, Fairbanks, AK 99775, but its
volunteers and employees are scattered throughout numerous
locations. Its business office is located at 809 North 1500 West, Salt
Lake City, UT 84116, (801) 596-1887. Email contact links and up to
date contact information can be found at the Foundation's web site and
official page at www.gutenberg.org/contact
For additional contact information:
Dr. Gregory B. Newby
Chief Executive and Director
gbnewby@pglaf.org
Section 4. Information about Donations to the Project Gutenberg
Literary Archive Foundation
Project Gutenberg-tm depends upon and cannot survive without wide
spread public support and donations to carry out its mission of
increasing the number of public domain and licensed works that can be
freely distributed in machine readable form accessible by the widest
array of equipment including outdated equipment. Many small donations
($1 to $5,000) are particularly important to maintaining tax exempt
status with the IRS.
The Foundation is committed to complying with the laws regulating
charities and charitable donations in all 50 states of the United
States. Compliance requirements are not uniform and it takes a
considerable effort, much paperwork and many fees to meet and keep up
with these requirements. We do not solicit donations in locations
where we have not received written confirmation of compliance. To SEND
DONATIONS or determine the status of compliance for any particular
state visit www.gutenberg.org/donate
While we cannot and do not solicit contributions from states where we
have not met the solicitation requirements, we know of no prohibition
against accepting unsolicited donations from donors in such states who
approach us with offers to donate.
International donations are gratefully accepted, but we cannot make
any statements concerning tax treatment of donations received from
outside the United States. U.S. laws alone swamp our small staff.
Please check the Project Gutenberg Web pages for current donation
methods and addresses. Donations are accepted in a number of other
ways including checks, online payments and credit card donations. To
donate, please visit: www.gutenberg.org/donate
Section 5. General Information About Project Gutenberg-tm electronic works.
Professor Michael S. Hart was the originator of the Project
Gutenberg-tm concept of a library of electronic works that could be
freely shared with anyone. For forty years, he produced and
distributed Project Gutenberg-tm eBooks with only a loose network of
volunteer support.
Project Gutenberg-tm eBooks are often created from several printed
editions, all of which are confirmed as not protected by copyright in
the U.S. unless a copyright notice is included. Thus, we do not
necessarily keep eBooks in compliance with any particular paper
edition.
Most people start at our Web site which has the main PG search
facility: www.gutenberg.org
This Web site includes information about Project Gutenberg-tm,
including how to make donations to the Project Gutenberg Literary
Archive Foundation, how to help produce our new eBooks, and how to
subscribe to our email newsletter to hear about new eBooks.